・
□□□□□□□□□□□□□□□□□□□□□□□□□□□□□□□□□□□□□□□
いつも弊社ホームページをご覧頂き誠にありがとうございます。
ライオンズマンション小石川植物園はお陰様で販売を終了致しました。弊社問合せフォームにてご要望頂けましたら、当お部屋でキャンセル等が発生した場合、他のお部屋が販売になりました際にご紹介させて頂きます。
不動産Agent 六棒株式会社
TEL:03‐5413‐5336
□□□□□□□□□□□□□□□□□□□□□□□□□□□□□□□□□□□□□□□
・
今回ご紹介するのは、東京メトロ丸ノ内線『茗荷谷』駅から徒歩7分、『ライオンズマンション小石川植物園』です♪♪山手線の内側でアクセス至便のエリアです☆下町の雰囲気もあってどこか懐かしい街並みです。
アクセス
東京メトロ丸ノ内線『茗荷谷』駅 徒歩7分
□□□□□□□□□□□□□□□□□□□□□□□□□□□□□□□□□□□□□□□
★★★【ライオンズマンション小石川植物園】周辺のハザードマップをCHECK!!★★★
お部屋の記事を読む前に…!周辺のハザードマップをチェックしておきませんか!
ライオンズマンション小石川植物園のハザードマップは★こちらから…どうぞ★
□□□□□□□□□□□□□□□□□□□□□□□□□□□□□□□□□□□□□□□
ハザードマップもご確認いただきましたので、早速駅から出発して街をご案内していきましょう!
『茗荷谷』駅周辺は、『お茶の水女子大学』、『拓殖大学』、『筑波大学』など多くの教育施設が立ち並ぶ文教地区♪♪緑が多くのんびりした街並みです(´∀`*)
また、アクセスの良さも魅力的♪♪東京、銀座、新宿、池袋といった場所にすぐに行けちゃいます (´∀`●)東京まで約11分、銀座まで約13分、新宿まで約15分、池袋まで約5分☆
大きな駅ではありませんが、駅前には、スーパー、カフェ、ファミレス、レンタルビデオショップ、ドラッグストア、100円均一ショップと生活に必要なものは、しっかりと揃っています(o´∀`ノ
茗荷谷駅の東側には春日通。今回ご紹介させていただくマンションは、春日通を渡った駅の東側です。
春日通の東側には、緑の多い公園がたくさん。こちらは、『教育の森公園』☆旧東京教育大学の跡地に開園した緑ゆたかなこの公園は、区民の憩いの場となっています。
教育の森公園のお隣には、『スポーツセンター』☆トレーニングルームやプールもあって充実の施設です(●’∀’●)
駅から、マンションに向かう道に沿うように『窪塚東公園』♪♪ユニコーンや鯉をモチーフにした彫刻がインパクト大の公園。マンションから駅までこちらの公園を通って行くことができますので、毎朝の通勤・通学も清々しい気持ちになれます♪♪
近隣には、『小石川植物園』☆正式名称は『東京大学大学院理学系研究科附属植物園』です(笑)
江戸幕府によって開園された、小石川御薬園♪♪時代劇でもおなじみの『小石川養生所』があったところです。有料の施設ですが、5月4日(みどりの日)は、無料ですので是非!!
お買い物環境はと言いますと、駅前にスーパー『三徳』、『マルエツ』。マンションのすぐ近く徒歩1分ほどの所には『コープ』もありますのでバッチリです。徒歩2分ほどの所にはコンビニも!!
こちらが今回ご紹介させていただく『ライオンズマンション小石川植物園』です♪
平成4年築、
前面道路は、片側二車線の通りですが、交通量はあまり多くない印象の通りです。
こちらがマンションのエントランス♪♪
1階には、イタリアンレストラン、クリーニング店、美容院などのお店も入っています(´∀`●)
エントランスはスロープになっていて、ベビーカーや車いすでも楽にのぼれます
(*´▽`)
管理体制は巡回管理ですが、オートロックがついているので防犯面も安心です。
オートロックを抜けると、シャープな雰囲気のエントランスホール。奥のエレベーターでお部屋へと向かいます♪♪
ここで間取り図のご紹介です。
※間取り図は別タブで開きますので、確認しながらご覧いただく事が出来ます。
□□□□□□□□□□□□□□□□□□□□□□□□□□□□□□□□□□□□□□□
★★★【ライオンズマンション小石川植物園】周辺のハザードマップをCHECK!!★★★
お部屋の記事を読む前に…!周辺のハザードマップをチェックしておきませんか!
ライオンズマンション小石川植物園のハザードマップは★こちらから…どうぞ★
□□□□□□□□□□□□□□□□□□□□□□□□□□□□□□□□□□□□□□□
今回のお部屋は2LDK、61.46㎡、7階。
角部屋で、全てのお部屋がバルコニーに面しているんですね。収納も豊富そうです(^^)
エレベーターを7階で降りて、明るい外廊下を進みます。
玄関に到着です。
カメラ付きインターホンが設置されていて、お部屋の中から訪問者を確認する事が出来ます。返事をする前にしっかりチェックしましょうね。
中に入ると、リノベーションによって生まれ変わった空間が迎えてくれました。玄関から廊下にかけては大理石で仕上げられていて、とても高級感があります。冷たくなりがちな大理石ですが、暖色系を使用する事で温かい雰囲気になっています。正面のニッチカウンター、皆さんなら何を飾りますか?
玄関の様子です。
荷物で両手が塞がっていても、人感センサーが照明を点けてくれるので安心です。明るい玄関に帰って来るのはいいものですよね♬
シューズボックスはトールタイプが二つ。一つは天井までありますので、収納力は抜群です。
廊下の突き当り…
左には廊下が続いていて、右は引き戸になっていました。まずは右の引き戸から開けてみましょう。
こちらはリビング・ダイニング・キッチンとなります。
窓がたくさんあって明るいお部屋ですね。さすが角部屋♬
家具があると生活のイメージがし易くて助かります。大きさや色などの参考にもなりますしね。(家具、調度品は販売価格には含まれていません)
間接照明、ダウンライト、スポットライトなど様々な種類のライトがあり、照明へのこだわりを感じます。お部屋の真ん中辺りにはモニターが。どこからでも近い所ですよ。
ブラインドよく似合ってますね。こちらも本来は付いて無いそうですが、お願いすれば何とかなるかもしれませんよ♪♪
ダイニング近くには造り付けのデスクがありました。パソコン机にしたり、勉強机にしたり、いろいろな使い方が出来ます。座ると周りが囲まれた感じになるので、集中出来そうですね(^^)
今度はキッチンを見ていきます。
横に大きさ窓のある、贅沢なペニンシュラキッチン。後ろには冷蔵庫や家電ラック、食器棚などのスペースがたっぷりとってあります。
お部屋の雰囲気に合った調理台です。
広いキッチンカウンターはお料理を出したり、下げ物をしたりに便利ですし、場合によっては朝食なんかにも使えると思います。
調理台下は、収納と食洗器になっていました。
食洗器に洗い物をお任せすれば、みんなでのんびり食後を過ごせますね♬
水栓は浄水機能付きシャワー水栓。ヘッドが伸びるので、シンクや大きな鍋などを洗う時にも便利です。
リビング・ダイニングが一望できます。一体感あっていいですね(^^)
コンロは3口。グリルも付いています。
グリルではお魚だけじゃなく、肉や野菜、パンなども焼けるらしいですよ。ご興味がある方は調べてみて下さい。
お料理中は換気扇をお忘れなく!
では、次のお部屋へ…
リビングのドアです。
こちらは真ん中の洋室です。
収納は、間口が広くて使いやすそうなクローゼットになっていました。中が見やすい方が、無駄な物を買わなくて済むらしいですよ。
では、いちど廊下に戻って、左に続いていた廊下を進みます。
途中の扉の奥には収納棚がありました。奥行きがあって、棚の手前に背の高い物も入りそうです。掃除機やハンディモップなんかピッタリかもしれませんね。
では、左から…
トイレです。
グルリと囲むようなカウンターや棚などが設置されていて、ストックするのも飾るのも自由自在です(^^)もちろんウォシュレットも完備していますよ。
では次へ…
洗面室です。
洗濯機スペース、洗面台、浴室があります。
三面鏡付きの洗面台です。
洗面台下と鏡裏が収納になっています。細かい物が多くなりがちな洗面周りには、鏡裏の様な収納がぴったりですよね。
水洗はハンドシャワータイプ。洗面台横の洗濯機スペースには可動棚も付いていて、洗剤やランドリーボックスなどを置いておけますよ。
次は浴室です。
追い焚き機能が付いていますので、いつでも温かいお風呂に入る事が出来ます。
ゆったり浸かれる広々とした浴槽。優しい曲線が気持ち良さそうですね。
浴室乾燥機は浴室の乾燥だけでなく、お洗濯物乾燥やヒートショック予防など様々な働きをしてくれます。
では最後のお部屋です。
内開きドアのデッドスペースは、お部屋の形で上手く解消しています。
こちらは北西側の洋室です。
先程の洋室より少しだけ広い気がします。メインの寝室に良さそうですね。当然、バルコニーに面していますよ(^^)
収納は…ウォークインクローゼット!しかも広い!
左には収納棚、右と正面にはハンガーポールが設置されています。キャリーバッグや大きなスーツケースなどでも余裕で入りそうですね。
それでは、最後にバルコニーに出てみましょう!
全ての居室から出る事が出来ますが、今回はリビングから出てみます。
ガラスのドアを開けて外へ…
三つのお部屋に面した7.41㎡のワイドなバルコニーです。綺麗にデッキパネルが張られていて、外壁のレンガによく合っていますね。
外には開放的な眺めが広がっていました。西方向には小石川植物園。季節を感じられるっていいですね♬
・
・
以上でライオンズマンション小石川植物園のご案内を終わります。
いかがでしたでしょうか??
茗荷谷駅から徒歩7分のマンションです。
リノベーション済みという事で室内はとてもキレイですよ (っ・ω・)っ
内見のご予約やご質問などございましたらお気軽にお問い合わせくださいませ。
ご連絡お待ちしております。
□□□□□□□□□□□□□□□□□□□□□□□□□□□□□□□□□□□□□□□
★★★【ライオンズマンション小石川植物園】周辺のハザードマップをCHECK!!★★★
お部屋のご購入前に…!周辺のハザードマップをチェックしておきませんか!
ライオンズマンション小石川植物園のハザードマップは★こちらから…どうぞ★
□□□□□□□□□□□□□□□□□□□□□□□□□□□□□□□□□□□□□□□
弊社、不動産Agent 六棒株式会社では、
□リノベーションマンションはほぼ全て仲介手数料無料!
□その他一般仲介物件は仲介手数料20%~30%OFF!
にてお取り扱いしております!※弊社の「Agent Fee=仲介手数料」についてはご案内、ご面談の際に営業担当者よりご説明いたします!
なるべく沢山のお部屋をホームページに掲載したいと思っておりますが、時間的成約もございますので、残念ながらご紹介できるお部屋の一部しか掲載できておりません。
このホームページに掲載中のお部屋、その他サイト等で気になるお部屋、街を歩いていて気になったマンション等々ございましたら是非、弊社営業部までご相談ください!
~不動産Agent 六棒株式会社の特徴~
・一般仲介物件の仲介手数料は20%~30%OFFにてご案内中です!
・リノベーションマンションについてはほぼ全て仲介手数料無料です!
・住宅ローンに自信あります!
・頭金10万円より購入できます。是非ご相談下さい!
・お部屋のご見学は車で2~3件まとめて案内します!
・物件数3000件以上、新築戸建、リノベ物件も多数ご用意しております!
過去に販売していたお部屋の概要 このお部屋の販売は終了いたしました。
| 価格 | -万円 |
| 面積 | 40.40㎡ |
| 間取り | 2bedrooms(2DK) |
| 管理費 | 月額16,100円 修繕積立金:月額11,310円 |
| 所在階 | 5階 |
| お問い合わせ・ご内見のご予約はこちらからお気軽にどうぞ | |
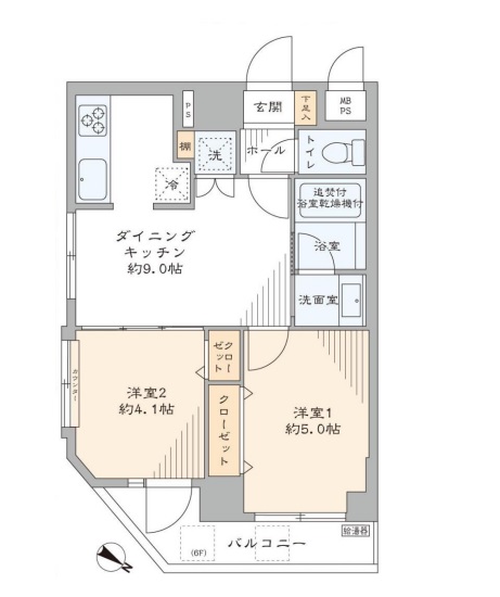
間取りのご紹介です。2DK、40.40㎡。
ゆとりの1人暮らし、もしくはご夫婦でお住いになるイメージでしょうか(●´∀`)
こちらの扉が、今回ご紹介させていただくお部屋です☆さっそくお部屋の中へ。扉を開けると、フルリノベーションを終え綺麗に生まれ変わった玄関がお出迎え☆白で清潔感がありますね♪♪玄関照明は人感センサー機能付ですので、玄関を開ければパッと明るくなります (●´∀`)
玄関の左手にはトールサイズのシューズボックスがあります。棚は可動式なのでブーツの収納もOK♪♪フットライトが付いていて、広く感じられます。
お隣りはトイレです☆トイレは嬉しいウォシュレット付になります。
上部には、扉付の収納棚があるので、ストック品の収納も完璧です♪♪
早速、お部屋を見ていきましょう♪♪
ダイニングキッチンは、約9帖。窓は南東向き♪♪ナチュラルなフローリングがステキなお部屋(o´∀`ノ
お部屋の中央には、梁が出ているのが少し気になります。高さは、約182cm。
お部屋に入って右手には、洗濯機置場。
しっかりと扉がついていますので、生活感を隠すことができて助かります(*´∀`*)
サイドには、収納棚があるので、ストック品の収納も完璧です♪♪
洗濯機置場のお隣には、独立したキッチンがあります。独立したキッチンスペースがしっかり確保されているので見た目を気にする必要がなく、お部屋のインテリアにも力が入ります。
木調のパネルで優しい雰囲気のシステムキッチン。
収納は、上部とシンク下の2か所にあります。シンク下の収納はスライド式で配管を気にせずたっぷりキッチンツールがしまえます。
3つ口コンロはお料理好きの方には嬉しいですね♪シンクは大きめで使い勝手◎
冷蔵庫置場もしっかりと用意されています(*´▽`)
ダイニングキッチンからスライド式のドアで出入りすることのできる洗面室&バスルーム。段差も無くて移動もスムーズです。少し狭いので、リネンの収納スペース等を工夫する必要があります。
正面には、ホワイトの木調キャビネットの洗面台。
鏡の裏に収納スペースがありますので、歯ブラシから洗顔フォームまでゴチャゴチャ散らかりがちな洗面まわりの物もスッキリお仕舞いただけます♪♪シャワーヘッドも嬉しいですね♫シャワーヘッドは、シャンプーに便利ですが、お掃除にも便利ですよ
(●´∀`)
バスルームは、優しい木調パネルが落ち着ける空間のバスルームです。
ミラー横にはシャンプーなどのボトルもキレイに並べて置ける棚があり、清潔感のある空間を保てますね◎
モザイクパターンの床は、すばやく乾燥、楽々お手入れ♪♪
乾燥・涼風・暖房・換気と機能は充実♪♪快適なバスタイムを過ごせそう(o´∀`ノお洗濯物も干せますので、雨の日でも安心してお洗濯ができますよ。
ダイニングキッチンから出入りすることができる2つの洋室を見ていきます♪♪まずは、洗面室のお隣に位置する約5帖のお部屋。窓は北東向き♪♪ベットルームにピッタリです(*´▽`)
こちらのお部屋には大型のクローゼットが設置されています♪
奥行きもしっかりで収納力バツグン☆バーも付いているので、ロングコート等の衣類の収納にも良いですね♪♪収納が大きいと生活スペースが広く使えて◎
お隣は約4.1帖のお部屋。北東&南東向きの二面採光のお部屋です。
こちらのお部屋にむ少し小さめですがクローゼットが設置されています。
こちらのお部屋とダイニングキッチンとは、スライド式ドアで隔てられているので、ライフスタイルに合わせて開けて使うこともできますね(*´▽`)開けて使えば、リビングダイニングキッチンになります。
それでは、最後にバルコニーへ出てみます。4.98㎡の北東向きのバルコニー☆お洗濯物も大丈夫そうです♫
通りに面していますが、さほど交通量は多くない印象ですので問題はなさそうです
(o´∀`ノ
緑の多い閑静な住宅街☆アクセスも至便で充実した生活が送れると思います☆
内見のご希望、ご質問などございましたら、![]()




























































































































































弊社 公式HP
六棒総合研究所
掲載予定物件
価格変更と販売終了物件
ハザードマップ検索
適合証明書.jp
Facebook
Twitter
Instagram