□□□□□□□□□□□□□□□□□□□□□□□□□□□□□□□□□□□□□□□
いつも弊社ホームページをご覧頂き誠にありがとうございます。
朝日三番町プラザはお陰様で販売を終了致しました。弊社問合せフォームにてご要望頂けましたら、当お部屋でキャンセル等が発生した場合、他のお部屋が販売になりました際にご紹介させて頂きます。
弊社では、仲介手数料無料orお値引(50%off、30%off、20%off)にて皆様のマイホーム探しのお手伝いをさせて頂きいております。朝日三番町プラザの類似物件や、お探しのご条件等をお聞かせ頂けましたらご条件に合ったお部屋をご紹介させて頂きます。また、ご来社頂き一緒に探させて頂くことも可能ですので、是非弊社問合せフォームよりお気軽にお問合せください。
不動産Agent 六棒株式会社
TEL:03‐5413‐5336
□□□□□□□□□□□□□□□□□□□□□□□□□□□□□□□□□□□□□□□
+゚ ゚*。*⌒*。*゚*⌒*゚*。*⌒*。*゚*⌒*゚*。*゚*⌒*゚*。*゚*
本日はわたくし、千代田区に来ております。
半蔵門線半蔵門駅から徒歩5分!!という背筋が伸びそうな感じの立地にある
リフォーム済みマンション『朝日三番町プラザ』のご紹介です!
* … * … * … * …* … * … * … * …*
◆ アクセス ◆
有楽町線・都営新宿線「市ヶ谷」駅徒歩6分
JR「市ヶ谷」駅徒歩6分
有楽町線「麹町」駅徒歩10分
* … * … * … * …* … * … * … * …*
本日は市ヶ谷駅から向かってみました。靖国通りを靖国神社方向に進みます。
途中には美味しそうなカフェが沢山あり、目移りしてしまいます。靖国神社には
今日も沢山の人が訪れていました。
大妻女子大学がある大妻通りに入ります。ゆるやかな坂になっていますよ。
物件到着\( ´・ω・`)┐しゅたっ
朝日三番町プラザは昭和61年5月築(新耐震基準です!)
総戸数70戸、7階建て。
大妻女子大学のとなりです。
マンション1階にも、とっても美味しそうなカフェを発見!うおお、入りたい。
「茄子とじゃがいものラザニアプレート」ですって?
管理の行き届いた共有部分ですね|ω・`)ちら

エントランスにはお花が飾られ、さりげない高級感。

宅配ボックスが完備され、いつでもAmazonサンタにポチポチ。。
階段の横にもスロープがあるので、車いすの方やベビーカーの方
スーツケースなど色んな状況でも移動が楽ですね(((uдu*)ゥンゥン


エレベーターでお部屋に向かいます!

共有廊下は半外廊下タイプになります!
明るくて綺麗な共有廊下ですね(((uдu*)ゥンゥン
さて今回のお部屋は5階になります。
間取り図はこちら↓ (図面と現況が異なる場合は現況を優先します。)
クリックすると別タブで開くことも可能です。
間取り図とお部屋比較すると見やすいですよ
では、営業部小倉が【朝日三番町プラザ 5階】
お部屋一緒にご案内させて頂きます(o*。_。)oペコッ

可愛いデザインの扉ですねo(^O^*=*^O^)o ワクワク
TVモニタ付きインターフォンがあるので来訪者もばっちり確認!
セキュリティ面も安心ですね|ω・`)ちら

では♡早速お部屋いってみましょう
お邪魔しまーす┏○ペコ

清潔感のある玄関ですね°˖✧◝(⁰▿⁰)◜✧˖°
玄関入って左手にトールタイプのシューズボックスがあります。

シューズインクローゼットですね!
棚の高さ調節が可能で大容量です(((uдu*)ゥンゥン
そんなに靴ないよー!という方は空いたスペースに
日用品のストックなど入れてもいいですよね(`・ω・´)b♡


玄関から洋室へ一直線ε=┏(・ω・)┛ ε=┏(・ω・)┛


ミューズホワイトという色の名前はミューズホワイト♡
あー可愛いらしい名前ヾ(o´∀`o)ノワァーィ♪

落ち着いた室内なのでどの家具にもあいますね(((uдu*)ゥンゥン
また、長期修繕計画書(案)もあるんですよ((ノェ`*)っ))タシタシ
ご自宅用でもいいですが、
投資マンションとかいかがでしょうか?(/・ω・)/

洋室はキッチン入れて1R約8.6帖になっています。


開口部分は北向きです(´;ω;`)
5階の為眺望はいいですよ(`・ω・´)b

キッチン見ていきましょうε=┏(・ω・)┛

IHコンロのキッチン
新規交換でピカピカでーす°˖✧◝(⁰▿⁰)◜✧˖°

こちら元々室内洗濯機置き場がなかったのですがΣ(゚Д゚;≡;゚д゚)
キッチンの下に洗濯機が置けました(”◇”)ゞ

スライド式で扉がしめられるので人目にもつきませんよ♡
洗濯機こんなんじゃ足りないよ!!!
という方は、コインランドリー室もあるので安心してください(*´・ω・)(・ω・`*)ネー


キッチンの横の扉は、、、、、|ω・`)ちら


トイレΣ(・ω・ノ)ノ!

やたら可愛いトイレがありました(;゚д゚)ゴクリ…
機能もばっちり◎
ウォシュレット機能付きトイレε=(ノ゚Д゚)ノ ∥WC∥

スイッチがわかりやすくて扱いやすいですねφ(`д´)メモメモ…

トイレの奥というか横は浴室になります|ω・`)ちら
わかりづらいですか??

こんな感じで繋がっております\( ´・ω・`)┐しゅたっ


浴室内は2点ユニットになります
窓付きで換気も出来ます♡
ジメジメしやすい浴室なので窓があるのは嬉しいですね(((uдu*)ゥンゥン



さてお部屋いかがでしたか?
最後に!北東向き(ほぼ北)
バルコニーへいってみましょう♪
(((((((((((っ・ω・)っ




ちょっとお天気が悪かったですが(;・∀・)
都心な感じの眺望ですね♡




さて、【朝日三番町プラザ 5階】はいかがでしたでしょうか?
◆新規内装リフォーム済み(詳細当社スタッフまで)
◆長期修繕計画書(案)有り
◆オートロック・宅配ボックス完備
◆事務所利用可能(条件有り)
◆千鳥ヶ淵が生活圏
他にも詳細が知りたい!!実際に見学をしたい!!などありましたら
仲介手数料最大無料の当社
お電話ください(^-^*)/
TEL 03-5413-5336
お気軽にお問い合わせください。
スタッフ一同お待ちしております。
弊社、不動産Agent 六棒株式会社では、
□リノベーションマンションはほぼ全て仲介手数料無料!
□その他一般仲介物件は仲介手数料20%~30%OFF!
にてお取り扱いしております!※弊社の「Agent Fee=仲介手数料」についてはご案内、ご面談の際に営業担当者よりご説明いたします!
なるべく沢山のお部屋をホームページに掲載したいと思っておりますが、時間的成約もございますので、残念ながらご紹介できるお部屋の一部しか掲載できておりません。
このホームページに掲載中のお部屋、その他サイト等で気になるお部屋、街を歩いていて気になったマンション等々ございましたら是非、弊社営業部までご相談ください!
~不動産Agent 六棒株式会社の特徴~
・一般仲介物件の仲介手数料は20%~30%OFFにてご案内中です!
・リノベーションマンションについてはほぼ全て仲介手数料無料です!
・住宅ローンに自信あります!
・頭金10万円より購入できます。是非ご相談下さい!
・お部屋のご見学は車で2~3件まとめて案内します!
・物件数3000件以上、新築戸建、リノベ物件も多数ご用意しております!
過去に販売していたお部屋の概要 このお部屋の販売は終了いたしました。
| 価格 | -万円 |
| 面積 | 69.44㎡ |
| 間取り | 2bedrooms(2LDK) |
| 管理費 | 月額28,200円 修繕積立金:月額15,000円 |
| 所在階 | 6階 |
| お問い合わせ・ご内見のご予約はこちらからお気軽にどうぞ | |
間取りのご紹介。69.44㎡、2LDKにウォークインクローゼット・シューズイン
クローゼット付です。
玄関入って左には、たっぷりとしたシューズインクローク。ウォークスルーに
なっており、そのまま廊下に抜けられます。玄関左のニッチは、何かお気に入りの
ものを飾っても、何なら照明付ベンチとして使っちゃってもいい高さです。
リビングに向かう廊下の途中にも収納発見。
リビングダイニングキッチンは約15.3帖。ゆったりとした広々空間です。
一角にカウンターコーナーがあり、そのまま書斎になりそうです。
奥の壁面にはキラキラのクロスが貼られており、気分が高まります。
バルコニーからは千代田区の風景が広がっています。周辺には学校が多いです。
大き目の窓があり明るいキッチン。リビングからは独立したつくりになっているので、
お料理に集中できそうです。シンクの水栓は浄水器内蔵型。
シューズインクロークと同じ、テラコッタタイルが素敵な洗面室。リネン庫も
あり、機能性もばっちりです。三面鏡の裏側は全面収納になっていますよ。
ドライヤーもすっぽり、コンセントもあるのでシェーバーも収納しながら充電
可能です。
バスルームには浴室換気乾燥機が設置されています。ほかにも、ドアノブに
チャイルドロック機能がついていたり、バスタブに手すりが設けてあったり、
細かな部分へ配慮がなされています。
トイレの床も同じタイル。デザインに統一性がありますね。奥に収納が
あります。なお、もちろんウォシュレット付。
リビングダイニング隣の洋室(約8.5帖)。ウォークインクローゼットが設置
されていますので、主寝室のイメージでしょうか。細かいボーダー柄のクロスは
キラキラしていてロマンの香りがします。
そのとなりの洋室。こちらも約6.4帖あり、広いです。
こちらのマンション、事務所としての使用も応相談となっています。とにかく
便利なロケーションなので、是非一度ご覧いただければと思います!
みなさまのご内見、こころよりお待ちしております!
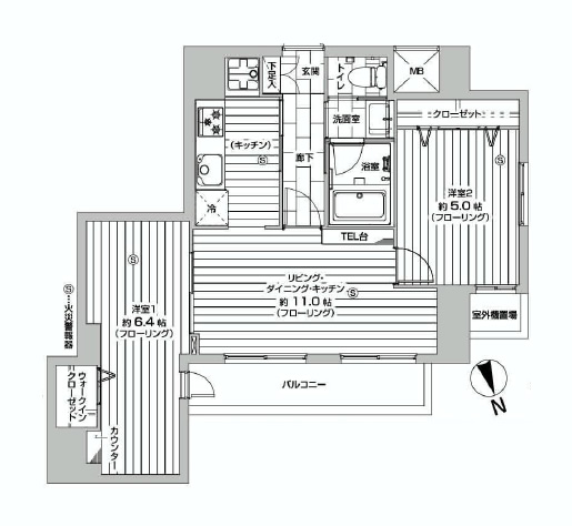
過去に販売していたお部屋の概要 このお部屋の販売は終了いたしました。
| 価格 | -万円 |
| 面積 | 51.62㎡ |
| 間取り | 2bedrooms(2LDK) |
| 管理費 | 月額:15,700円 修繕積立金:月額8,340円 |
| 所在階 | 6階 |
間取りのご紹介です。2LDK、約51.62㎡。
玄関前は非常階段なので外からの人目を気にする必要はなさそうです。
玄関を入ると右手に落ち着いた木目柄のシューズBOXがつくられています。
トールサイズで収納量はもちろん◎。
手持ちの靴のサイズに合わせて、棚の高さも変えらるのでブーツも入れて
おけます。
廊下をまっすぐ進み、正面の採光部のある扉の奥は・・・。
約11.0畳のリビングダイニング・キッチン。フローリングの遮音等級はLL45。
(通常の使用では居住者からの苦情がほとんど出ず、遮音性能上望ましいと
されている数値です。)
バルコニーに面しているので自然光だけでも日中は明るいですね。
LDKの入口の左右はキッチンスペースとTEL台がつくられています。
電話だけでなく、植物やお気に入りのインテリアをディスプレイできるスペース
の余裕もありそうです。
キッチンはリビング側だけでなく、廊下側からも出入りができる2WAYタイプ。
さらにキッチンの横には洗濯機置場があります。
料理をしながら洗濯ができ、動線も短いので家事もテキパキはかどります。
ブラインドがついているので使わない時は生活感も隠しておけます。
白い木目柄のシステムキッチンはパナソニック製。
IHタイプなのでお掃除が楽なのがいいですね!
ワークトップはしっとりした質感が魅力の人造大理石、さらに浄水器も
内蔵されています。
大割りのスライドストッカーには大きなフライパンや鍋もサクサク入りそうです。
洗面室は入口入って右手がバスルーム、正面が洗面化粧台、左手がトイレの
並びになっています。脱衣スペースが少しコンパクトな印象。
パナソニック製のシャワー付き洗面化粧台。
3面鏡の裏は小物が収納できるようになっているので、散らかりがちな水廻りも
スッキリ片付けられます。
洗面ボウル一体型カウンターでお掃除がしやすいところも実用的でグーです。
ユニットバスは1216サイズ。TOTOのものです。
浴室換気乾燥暖房機能付き。雨の日でも洗濯物を乾かせて便利です。
シャンプーやボディソープを置くトレイもついているので洗い場を少し広く
使えますね。
トイレはウォシュレット付き。INAXのものです。
後ろにトイレットペーパーのストックを入れておくのに重宝
しそうな壁面収納もつくられています。
洋室2部屋を順番にご紹介します。
1部屋目は約5.0畳の広さ。
枕棚付きの大型クローゼットもつくられています。
2部屋目はLDKと可動式の扉で仕切られています。
約6.4畳、縦長のお部屋です。
収納力のあるウォークインクローゼットとちょっとした物を置くのによさそうな
カウンターがつくられています。
バルコニーへはLDKから出られますが、こちらのお部屋からも出られるよう
になっています。
約4.33㎡のバルコニー。
北向きです。
眺めは、道を挟んで目の前には大妻女子短期大学が建っています。
こちらのマンション、事務所利用も相談可です。
さらに購入後も安心のアフターサービス保証も付きです。
みなさまのご内見、心よりお待ちしております!




























































































弊社 公式HP
六棒総合研究所
掲載予定物件
価格変更と販売終了物件
ハザードマップ検索
適合証明書.jp
Facebook
Twitter
Instagram