・
□□□□□□□□□□□□□□□□□□□□□□□□□□□□□□□□□□□□□□□
不動産Agent 六棒株式会社です。
弊社ホームページをご覧頂き誠にありがとうございます。
気になるお部屋がございましたら是非お問い合わせください!
・
□□□□□□□□□□□□□□□□□□□□□□□□□□□□□□□□□□□□□□□
・
都営新宿線・半蔵門線・東西線 「九段下駅」 徒歩7分
総武線・有楽町線・都営新宿線 「市ヶ谷駅」 徒歩8分
『ビラハイツ北の丸』のご紹介です!
今日は『九段下駅』下車、2番出口から真直ぐ歩き、左に日本武道館を
見ながら進みます。
3つ目の信号を左に曲がって進むと・・・みえてきました。
植栽に囲まれたこちらのマンションが『ビラハイツ北の丸』
平成12年5月築、12階建て、66戸。
ブラウンのタイルと自然石を使用した外観は、重厚感と品格を漂わせています。
最上階11階12階はオーナーズクラブになっていて、ゲストルームやキッチンスタジアム、バスルーム、バー&ダイニング、ライブラリー、リビングスペースなど充実の施設が使用可能です。


エントランスホールを入ると右にお花のディスプレイがあり癒されます。
左には管理室で、安心のオートロック。宅配ボックス完備。
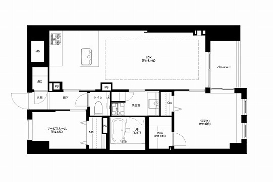
今回ご紹介するお部屋は4階、専有面積43.23㎡の1LDK。お一人暮らしやDINKSの方にお勧めのお部屋です。
間取り図はコチラ ↓ ↓ ↓
※間取り図は別タブで開きますので、確認しながらご覧いただくことができます。
只今リノベーション工事中
2026年2月上旬完成予定ですのでお楽しみに!
・
以上でビラハイツ北の丸のご案内を終わります。
いかがでしたでしょうか??
九段下駅から徒歩7分のマンションです。
リノベーション済みという事で室内はとてもキレイですよ (っ・ω・)っ
内見のご予約やご質問などございましたらお気軽にお問い合わせくださいませ。
ご連絡お待ちしております。
弊社、不動産Agent 六棒株式会社では、一般仲介物件は仲介手数料20%~30%OFF!
にてお取り扱いしております!
なるべく沢山のお部屋をホームページに掲載したいと思っておりますが、時間的成約もございますので、残念ながらご紹介できるお部屋の一部しか掲載できておりません。
このホームページに掲載中のお部屋、その他サイト等で気になるお部屋、街を歩いていて気になったマンション等々ございましたら是非、弊社営業部までご相談ください!
~不動産Agent 六棒株式会社の特徴~
・一般仲介物件の仲介手数料は20%~30%OFFにてご案内中です!
・住宅ローンに自信あります!
・頭金10万円より購入できます。是非ご相談下さい!
・お部屋のご見学は車で2~3件まとめて案内します!
・物件数3000件以上、新築戸建、リノベ物件も多数ご用意しております!
過去に販売していたお部屋の概要 こちらのお部屋の販売は終了いたしました
| 価格 | -万円 |
| 面積 | 62.88㎡ |
| 間取り | 1bedrooms(11SLDK) |
| 管理費 | 月額27,300円 修繕積立金:月額17,610円 |
| 所在階 | 5階 |
| お問い合わせ・ご内見のご予約はこちらからお気軽にどうぞ | |
それではここで間取り図のご紹介です。
※間取り図は別タブで開きますので、確認しながらご覧いただくことが出来ます。
今回ご紹介のお部屋は5階、専有面積62.88㎡の1SLDK。おひとり暮らしからスモールファミリーの方まで、幅広くお使いいただけるお部屋です。では、早速行ってみましょう!
【共用廊下】
吹き抜けを囲む開放的な共用廊下。ちょっと近未来的な感じしませんか?
【玄関】
シンプルな色使いですが、入った瞬間オシャレ…!ステキ…となりました。
人感センサー付きなのでいつでも明るい玄関が迎えてくれますよ。
【玄関】
奥行があるので靴以外のちょっとした物も入れておけそうです。
お部屋に持ち込みたくないスポーツやキャンプ用品とか、長さのあるものとか・・・
【LDK】
こちらは約15.4帖のリビング・ダイニング・キッチン。
南西向きのバルコニーに面したお部屋です。
【LDK】
床、天井、壁と木目をふんだんに使った温かみのある雰囲気で、とても居心地が良さそうですね。
【LDK】
間接照明が優しく照らす空間は高級感たっぷり。
リビングのコーナーには照明付き飾り棚。センス良く飾りましょう!
【LDK】
キッチン、ダイニング、リビングが縦に並んだオーソドックスなレイアウト。
なんだかんだ言って普通が一番です。
【キッチン】
キッチンはシンク部分とコンロ部分が分かれたⅡ型。広い作業スペースと動線の短さが特徴のキッチンです。
ダイニング側に開く戸棚付き。
【キッチン】
こちらがコンロ側。壁に面しているので油跳ねも気になりません。
収納は出し入れのしやすいスライドキャビネット。
【キッチン】
こちらがシンク側。家族や友人が来た時は料理をしながらコミュニケーションとれるのが嬉しいですね。一人の時もテレビを見ながらとかもできちゃうので最高です。
食後の洗い物は食器洗浄乾燥機にお任せして空いた時間はのんびり過ごしましょう!
【洋室】
こちらは6.6帖の洋室1。LDKのバルコ二ー側奥の扉を開くと登場します。
お昼時は、南側の二つの窓からの自然光がお部屋に入ってきてポカポカ気持ちが良いですよ。東側の窓はバルコニーに面しています。
【洋室】
なんとクローゼットが二つも!収納はいくらあっても困りません。
【洋室】
左側は約1.0帖のウォークインクローゼット。L字にハンガーパイプが付いています。
右側はクローゼット。左側よりは狭めですが、間口が広いので中がひと目で確認できるのがいいですね。
【洗面室】
洗面化粧台は身だしなみを整えるのに便利な三面鏡付き。
洗濯機スペース横の棚もイイ感じで、タオルや洗濯洗剤などのランドリー用品も入りそうです。
【洗面室】
鏡の間に照明が付いているので、鏡を開いた時に影になったりすることもありません。
【洗面室】
スライドキャビネットは二段になっているので、洗面関係のストックもたーっぷり入りそう。買いすぎた!にも安心です。
【浴室】
1317サイズの浴室は木目パネルに囲まれた落ち着いた雰囲気。リラックスしたバスタイムで一日の疲れも洗い流せそうですね。ひと昔前の四角いバスタブと違って体に合わせた曲線が気持ち良さそうです。
【浴室】
浴室換気乾燥機は換気以外にもヒートショック予防に効果的な浴室暖房や、暑い季節に活躍する涼風ボタンなど、いろいろな場面で役立ってくれること間違いナシ♬毎日の暮らしを豊かにしてくれそうですね(^^♪
【トイレ】
モノトーンでまとめられていてカッコイイ感じのトイレになっていますね。
トイレは洗浄機能付きのタンクレス。手洗いカウンターではインテリアを楽しむことも出来そうです。
【サービスルーム】
こちらは約3.5帖のサービスルーム。
もちろん普通に洋室としても使えますが、来客用や趣味の部屋、物入れなどにも使えそうですね。
【サービスルーム】
奥行きのあるクローゼットは棚も付いていて、スペースの無駄なく収納可能!
【バルコニー】
広さは5.12㎡、南西向き。幅はあまりありませんが奥行きがあるのでゆったり感じるバルコニーです。
【眺望】
目の前には大きめの建物がありますが、日差しは問題なさそうですね。
・
以上でビラハイツ北の丸のご案内を終わります。
いかがでしたでしょうか??
九段下駅から徒歩7分のマンションです。
リノベーション済みという事で室内はとてもキレイですよ (っ・ω・)っ
内見のご予約やご質問などございましたらお気軽にお問い合わせくださいませ。
ご連絡お待ちしております。
弊社、不動産Agent 六棒株式会社では、一般仲介物件は仲介手数料20%~30%OFF!
にてお取り扱いしております!
なるべく沢山のお部屋をホームページに掲載したいと思っておりますが、時間的成約もございますので、残念ながらご紹介できるお部屋の一部しか掲載できておりません。
このホームページに掲載中のお部屋、その他サイト等で気になるお部屋、街を歩いていて気になったマンション等々ございましたら是非、弊社営業部までご相談ください!
~不動産Agent 六棒株式会社の特徴~
・一般仲介物件の仲介手数料は20%~30%OFFにてご案内中です!
・住宅ローンに自信あります!
・頭金10万円より購入できます。是非ご相談下さい!
・お部屋のご見学は車で2~3件まとめて案内します!
・物件数3000件以上、新築戸建、リノベ物件も多数ご用意しております!
過去に販売していたお部屋の概要 こちらのお部屋の販売は終了いたしました
| 価格 | -万円 |
| 面積 | 95.01㎡ |
| 間取り | 2bedrooms(2SLDK) |
| 管理費 | 月額34,200円 修繕積立金:月額26,600円 |
| 所在階 | 10階 |
| お問い合わせ・ご内見のご予約はこちらからお気軽にどうぞ | |
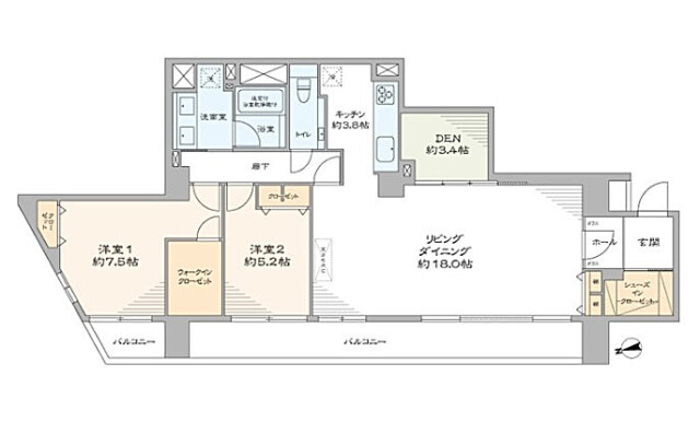
ここで間取り図のご紹介です。
※間取り図は別タブで開きますので、間取り図と記事や写真を照らし合わせながらご覧いただくことができます。
お部屋は10階、専有面積95.01㎡、間取りは2SLDK。余裕のある間取りのファミリータイプのお部屋です。この広さにしては玄関ホールがコンパクト。その分お部屋を広く出来てるんですね。ワイドスパンの約18帖のLDKが楽しみです♪
では、早速行ってみましょう!

間取り図を見た時はコンパクトだと思いましたが全然広いですね!!特に三和土部分は広く、ベビーカーやキャリーケースなども十分置けそうです。玄関より広いんじゃかというほどのシューズインクローゼットも付いていますので、玄関内も綺麗に保てますね。

こちらは約18帖のリビング・ダイニング。
西向きのバルコニーに面したワイドスパンのお部屋です。長辺全てが窓になっているのでとても明るいですね。木目を生かしたナチュラルなフローリング使用で、落ち着いた雰囲気になっています。

梁が一本通っていますが、上手いことリビング、ダイニングのゾーンニングに一役買っています。

キッチンは独立タイプ。
今はカウンターキッチンが多い印象ですが、密かにお料理好きの支持を受けているのがこの独立型キッチンです。料理に集中出来るというのが理由らしいですよ。システムキッチンは田中工藝製。馴染みがないかもしれませんが、100年の歴史がある素材や質感にこだわったモノづくりの会社です。

こちらは約3.4帖のサービスルーム。
LDに隣接したお部屋で、書斎やキッズルームに適したお部屋です。扉が引き込み式なので開放してつなげて使うことも出来ますよ。

廊下へ戻って次のお部屋へ…
こちらは約5.2帖の洋室。LDと同じ西向きバルコニーに面したお部屋です。クローゼットは間口が広くて使いやすそう。ひと目で中が確認出来るのっていいですよね♬

こちらは約7.5帖の洋室。
二面採光で明るさ、風通し共に良好なお部屋です。広さも十分でメインのベッドルームにピッタリですね。収納は間口が広いタイプのクローゼットと…

ウォークインクローゼット!!!
2帖以上ありそうなとても大きな収納です。大量の洋服はもちろん、スーツケースやキャリーバッグなどの嵩張る物や、収納力強化のための衣装ケースなども入りますよ。

次はトイレへ…
手洗いカウンター付の広々としたトイレで、私なんかは広すぎて落ち着かないんじゃないかと心配になるくらいです(笑)TOTO製タンクレストイレで、トイレットペーパーのストックなどに便利な吊戸棚や、洗浄便座も完備しています。

次は洗面室へ…
洗面室には洗面台、洗濯機スペース、浴室がまとめられ、脱衣所も兼ねています。
キッチンと同じ田中工藝製の洗面台は2ボウル!!! 朝のラッシュ時にも安心です。三面鏡も2セットってすごいですね。

浴室はTOTO製追い焚き機能付きユニットバス。ダークブラウンのパネルで落ち着いた雰囲気です。浴室換気乾燥機付きで、雨の多い時期のお洗濯も安心ですよ。

最後にバルコニーのご紹介…
透明な手すり壁がとても開放的ですね。場所柄高い建物が多いですがこちらも10階ということで負けていません。外には広い空が広がっています♬
・
以上でビラハイツ北の丸のご案内を終わります。
いかがでしたでしょうか??
九段下駅から徒歩7分のマンションです。
リノベーション済みという事で室内はとてもキレイですよ (っ・ω・)っ
内見のご予約やご質問などございましたらお気軽にお問い合わせくださいませ。
ご連絡お待ちしております。
弊社、不動産Agent 六棒株式会社では、
□リノベーションマンションはほぼ全て仲介手数料無料!
□その他一般仲介物件は仲介手数料20%~30%OFF!
にてお取り扱いしております!※弊社の「Agent Fee=仲介手数料」についてはご案内、ご面談の際に営業担当者よりご説明いたします!
なるべく沢山のお部屋をホームページに掲載したいと思っておりますが、時間的成約もございますので、残念ながらご紹介できるお部屋の一部しか掲載できておりません。
このホームページに掲載中のお部屋、その他サイト等で気になるお部屋、街を歩いていて気になったマンション等々ございましたら是非、弊社営業部までご相談ください!
~不動産Agent 六棒株式会社の特徴~
・一般仲介物件の仲介手数料は20%~30%OFFにてご案内中です!
・リノベーションマンションについてはほぼ全て仲介手数料無料です!
・住宅ローンに自信あります!
・頭金10万円より購入できます。是非ご相談下さい!
・お部屋のご見学は車で2~3件まとめて案内します!
・物件数3000件以上、新築戸建、リノベ物件も多数ご用意しております!
過去に販売していたお部屋の概要 このお部屋の販売は終了いたしました。
| 価格 | -万円 |
| 面積 | 43.23㎡ |
| 間取り | 1bedrooms(1LDK) |
| 管理費 | 月額9,900円 修繕積立金:月額7,900円 |
| 所在階 | 3階 |
| お問い合わせ・ご内見のご予約はこちらからお気軽にどうぞ | |
エレベータに乗り3階へ。降りたらすぐ右に玄関がありました。
玄関扉が銀色です・・・何故でしょうか。早く部屋の中が見てみたい!
室内をご紹介する前に間取りをどうぞ。
1LDK、43.23㎡。(バルコニー3.38㎡)
玄関を入るとまず石畳のLDKがお出迎えです。
奥は5.1畳の寝室になっています。

寝室にはクローゼットがあります。
寝室からバスルーム、お手洗いに行けます。
ガラス張りのバスルーム!とてもオシャレに感じてしまうのは私だけでしょうか?
左が外からで右が中からのショット。
奥に進むとトイレ、洗面台、洗濯機置場へと続きます。
ウォシュレット付トイレには、残念ながら収納がございません。
しかしながら上部にスペースが御座いますので後付けもできますよ。


インターホンテレビ電話は訪問者の顔が見えて安心ですね。
玄関に向かって左にセットしてあるクローゼット、こちらも大容量なので物が多い方でも安心です。厨房機器はシルバーで洗練された感じです。
ビラハイツ北の丸、いかがでしたでしょうか。とーってもオシャレな空間です。
平成12年築、何といっても2つの駅のちょうど真中なのでどちらの駅も利用できちゃう
この立地、お勧めです!
みなさまのご内見、こころよりお待ちしております!



























































