・
□□□□□□□□□□□□□□□□□□□□□□□□□□□□□□□□□□□□□□□
いつも弊社ホームページをご覧頂き誠にありがとうございます。
越前堀永谷マンションはお陰様で販売を終了致しました。弊社問合せフォームにてご要望頂けましたら、当お部屋でキャンセル等が発生した場合、他のお部屋が販売になりました際にご紹介させて頂きます。
不動産Agent 六棒株式会社
TEL:03‐5413‐5336
□□□□□□□□□□□□□□□□□□□□□□□□□□□□□□□□□□□□□□□
隅田川テラスまで徒歩1分のリノベーションマンション『越前堀永谷マンション』のご紹介です!
その前に…
□□□□□□□□□□□□□□□□□□□□□□□□□□□□□□□□□□□□□□□
★★★【越前堀永谷マンション】周辺のハザードマップをCHECK!!★★★
お部屋の記事を読む前に…!周辺のハザードマップをチェックしておきませんか!
越前堀永谷マンションのハザードマップは★こちらから…どうぞ★
□□□□□□□□□□□□□□□□□□□□□□□□□□□□□□□□□□□□□□□
ハザードマップもご確認いただきましたので、まずは周辺環境からご案内していきましょう!
アクセス
京葉線・東京メトロ日比谷線「八丁堀」駅徒歩6分
東京メトロ東西線・東京メトロ日比谷線「茅場町」駅徒歩9分
八丁堀は東京メトロ日比谷線で銀座まで約5分、その他六本木、中目黒、上野、秋葉原などへも1本で行け都内どこへ行くにもアクセス便利。中目黒から東横線に乗り換えれば横浜方面へも出られます。
京葉線に乗ると東京駅まで1駅。葛西臨海公園まで4駅、舞浜まで5駅。千葉方面へのアクセスも◎!水族館や大観覧車のある葛西臨海公園やディズニーランドなどの行楽地へも手軽に行ける距離です。お休みの日は朝から行って夜遅くまで遊んだり、なんてアクティブに過ごすのもいいですね(´∀`)
八丁堀駅周辺はオフィスも多く、ラーメン屋などの飲食店はランチを求める会社員でにぎわっている模様。遊具のある公園もあり、こちらの中もベンチで休憩している会社員+ハト、の姿が見られます。
ちなみに駅からマンションまではほぼ1本道で行けます。大通りを通って帰れるし、途中には交番もあるので夜遅くの帰宅も安心ではないでしょうか。
マンションから約36mのところにはマルエツプチ 、約130mのところにコンビニがあります。ちょっとしたお買い物なら徒歩3分圏内で済ませられます。マンションの斜め前あたりには雰囲気のいいベーカリーカフェも♪
そしてマンションから徒歩1分のところには隅田川テラス。水辺のお散歩も楽しめます。
これは・・・うるおいのある生活が送れそうな予感・・・!
越前堀永谷マンションは昭和49年築、14階建て、総世帯数183戸の大規模マンション。
平成13年に耐震補強工事実施済み、平成22年に地上波デジタルBS・CS共同アンテナ設置済み、平成26年に大規模修繕工事実施済みと管理状況も良好です。
前面道路。周囲はマンションやビルなどが立ち並んでいます。
エントランスは道路から少し奥まったところにあります。
スロープもあるのでキャリーケースやスーツケースを持っての移動もスムーズ。
オートロックはありませんが、常駐の管理人さんがいるので防犯面も安心です。
エントランスを入るとゆったりとした空間になっています。
エレベーターは2基。出勤&帰宅ラッシュ時でも待ち時間が少なくて済みそうです。
共用廊下は外廊下タイプ。戸数が多いので廊下も長いですね。
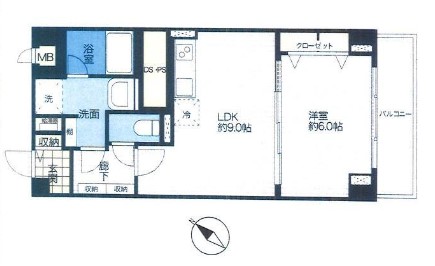
ここで間取り図のご紹介です。
※間取り図は別タブで開きますので、確認しながらご覧いただく事が出来ます。
□□□□□□□□□□□□□□□□□□□□□□□□□□□□□□□□□□□□□□□
★★★【越前堀永谷マンション】周辺のハザードマップをCHECK!!★★★
お部屋の記事を読む前に…!周辺のハザードマップをチェックしておきませんか!
越前堀永谷マンションのハザードマップは★こちらから…どうぞ★
□□□□□□□□□□□□□□□□□□□□□□□□□□□□□□□□□□□□□□□
今回のお部屋は11階、間取りは1LDK、専有面積は40.67㎡となります。
では、早速行ってみましょう!
エレベーターを11階で降りて…
明るい外廊下を進むと…
玄関に到着です。
カメラ付きインターホンが設置されていて、お部屋の中から訪問者の確認が出来ます。もう、息を殺して覗き穴から外を窺わなくていいんですね(笑)
それでは、お邪魔します。
玄関ドアには安心のダブルロック。面倒でも二つ共しっかりとロックしましょう!
中に入った時に照明を点けてくれたのは人感センサー。両手が塞がっている時などには助かります(^^)
シューズボックスかと思ったら、どうやら収納棚のようです。もちろん靴も入れられますよ。
廊下に上がった所にシューズボックスがありました。ロータイプで、上部はカウンターになっています。玄関は家の顏っていいますから、お洒落に飾りたいところですよね♬
では、まずは突き当りのドアから…
こちらは約9帖のリビング・ダイニング・キッチン+約6帖の洋室。仕切り戸を開けてつなげた様子です。
合わせると約15帖。やっぱり広い!お一人でお住まいなら、大きなワンルームと考えてこんな感じもいいですね♪♪
二部屋共、同じ面に同じアクセントクロスを使用しているので、開けた時に一体感があります。
壁部分に納まっている扉を出してくると…
本来の約6帖の洋室に。大きな窓からの光で明るいお部屋です。
収納は広いクローゼット。間口が広くとても使いやすそうです。奥行きもあるので、大きなキャリーバッグや衣装ケースなども楽に入りそうですね。
閉めた時のリビング・ダイニング・キッチン。窓が無いお部屋なので、日中は開けておいた方が明るくて良い気がします。
次はキッチンを…
真っ白な調理台。壁に溶け込むように目立たず、お部屋を広く見せています。
収納は調理台下と吊戸棚。どちらも奥の方が取りづらかったりしますので、収納グッズなどを活用するといいですね。
コンロは2口です。一つは高温炒め対応ですので、チャーハンもパラパラ、野菜炒めもシャキシャキ。中華好きにはたまりません♪♪
お料理中は換気扇をお忘れなく!グリルを使ってる時に忘れたら、大変な事になっちゃいますよ(笑)
水栓は、器具を交換すれば簡単に浄水機能を付けられるそうです。
いちど廊下に戻って…トイレです。
タンクレスはやっぱりスッキリ見えていいですね♪♪
別に手洗いボウルが付いていると、ワンランク上の感じがします。もちろん温水洗浄便座付き。パナソニック製『ビューティトワレ』です。
次は洗面室…
こちらには収納棚、洗濯機スペース、浴室、洗面台が。
まずは洗面台。三面鏡付きです。
収納は鏡の裏のキャビネットと洗面台下。細かい物から大きな物まで上手いこと収まりそうです。
水洗はハンドシャワータイプ。洗面ボウルを流したりに便利ですよ。
収納棚は天井までの大きな物。奥行きはありませんが、置いてある物がひと目で見えるのがいいですよね。
洗濯機スペースの上には窓があります。湿気の多い所なので窓は嬉しいです(^^)
では、浴室へ…
鏡が大分汚れているようですが・・・ご安心下さい、まだ全部リフォームが終わってないので最終的には綺麗になるとの事でした^^;)
追い焚き機能などの無い、シンプルな浴槽です。最近の浴槽は保温機能が優れていますし、お湯もすぐ出ますので問題ないと思います。
それでは、最後にバルコニーへ出てみましょう。
奥の洋室から出られます。
4.67㎡のバルコニーです。余計な出っ張りなどのないスッキリとした形。下まで手摺柵になっているので足元まで明るく、実際より広々と感じます。
バルコニーからの眺めです。
少々残念な眺めですが、少しなら空も見えますよ。陽が高くなれば陽射しも期待出来そうです(^^)
・
以上で越前堀永谷マンションのご案内を終わります。
いかがでしたでしょうか??
八丁堀駅から徒歩6分のマンションです。
内見のご予約やご質問などございましたらお気軽にお問い合わせくださいませ。
ご連絡お待ちしております。
□□□□□□□□□□□□□□□□□□□□□□□□□□□□□□□□□□□□□□□
★★★【越前堀永谷マンション】周辺のハザードマップをCHECK!!★★★
お部屋のご購入前に…!周辺のハザードマップをチェックしておきませんか!
越前堀永谷マンションのハザードマップは★こちらから…どうぞ★
□□□□□□□□□□□□□□□□□□□□□□□□□□□□□□□□□□□□□□□
弊社、不動産Agent 六棒株式会社では、
□リノベーションマンションはほぼ全て仲介手数料無料!
□その他一般仲介物件は仲介手数料20%~30%OFF!
にてお取り扱いしております!※弊社の「Agent Fee=仲介手数料」についてはご案内、ご面談の際に営業担当者よりご説明いたします!
なるべく沢山のお部屋をホームページに掲載したいと思っておりますが、時間的成約もございますので、残念ながらご紹介できるお部屋の一部しか掲載できておりません。
このホームページに掲載中のお部屋、その他サイト等で気になるお部屋、街を歩いていて気になったマンション等々ございましたら是非、弊社営業部までご相談ください!
~不動産Agent 六棒株式会社の特徴~
・一般仲介物件の仲介手数料は20%~30%OFFにてご案内中です!
・リノベーションマンションについてはほぼ全て仲介手数料無料です!
・住宅ローンに自信あります!
・頭金10万円より購入できます。是非ご相談下さい!
・お部屋のご見学は車で2~3件まとめて案内します!
・物件数3000件以上、新築戸建、リノベ物件も多数ご用意しております!
過去に販売していたお部屋の概要 このお部屋の販売は終了いたしました。
| 価格 | -万円 |
| 面積 | 35.92㎡ |
| 間取り | 1bedrooms(1LDK) |
| 管理費 | 月額5,500円 修繕積立金:月額11,000円 |
| 所在階 | 5階 |
| お問い合わせ・ご内見のご予約はこちらからお気軽にどうぞ | |
ここで間取り図のご紹介です。
※間取り図は別タブで開きますので、見比べながらご覧いただく事が出来ます。
□□□□□□□□□□□□□□□□□□□□□□□□□□□□□□□□□□□□□□□
★★★【越前堀永谷マンション】周辺のハザードマップをCHECK!!★★★
お部屋の記事を読む前に…!周辺のハザードマップをチェックしておきませんか!
越前堀永谷マンションのハザードマップは★こちらから…どうぞ★
□□□□□□□□□□□□□□□□□□□□□□□□□□□□□□□□□□□□□□□
今回ご紹介するお部屋は、1LDK、35.92㎡、5階。リノベーション済みです。
では、早速行ってみましょう!
エレベーターを5階で降りて、目隠しの付いた外廊下を進みます。
ドア横にはテレビモニター付きインターホンが付いていて、お部屋の中から訪問者を確認する事が出来ます。『ハイ』と返事をする前にちゃんとチェックしましょうね。
玄関を入ると、廊下の手前に広くなった部分がありました。ここが広いと荷物がいっぱいの時とかに助かるんですよね~(^^)
振り返って玄関の様子です。
ドアには安心のダブルロック。複数の鍵は防犯上有効ですからね。ダミーの鍵を付けている方もいらっしゃるとか^^;)
シューズボックスはロータイプ。上部はカウンターになっていて、物を置いたり飾ったり出来るようになってます。お花や写真を飾ったり、お洒落なトレイにキーやコインを入れるのもいいですね。
では、まずは突き当りのドアから…
こちらは約8.3帖のリビング・ダイニング・キッチン。奥には大きな窓があって明るいお部屋です。
フローリングは木肌を生かしたナチュラルな雰囲気。壁にはピクチャーレールが設置されていて、絵画や写真などを簡単に飾る事が出来る様になっています。壁かけ時計なんかも良いかもしれませんね。
次はキッチンを…
木目パネルの調理台。お部屋の雰囲気にピッタリですね。
収納は調理台下と吊戸棚。引き出しタイプは出し入れがしやすくて助かります。
水栓は浄水機能付きシャワー水栓。蛇口をひねるだけで美味しいお水が出てくるなんて、いい時代になったものです(^^)ヘッドが伸びるのでシンクのお掃除などにも便利です。
コンロは3口。グリルも付いています。三つのコンロでお料理の効率も上がりそうですね。
お料理中は換気扇をお忘れなく!
調理台横には冷蔵庫スペース、奥には家電ラックなどの置場がありました。ここならリビングからでも冷蔵庫の物が取り易くていいですね。
一度廊下に戻って…次は洗面室に行きます。
こちらには、洗面台、洗濯機スペース、浴室がまとまっています。
造り付けの洗面台。シンプルでカッコイイです♪♪
水洗はハンドシャワータイプ。鏡の裏はキャビネットになっていました。細かい物が多くなりがちな洗面周りには、嬉しいですね。
洗濯機スペースの上部には棚もあり、洗剤その他をまとめて置いておけますよ。
次は浴室を…
ブラウンのアクセントウォールを使用した、落ち着いた雰囲気の浴室ですね。一日の疲れを癒してくれそうです。
追い焚き機能が付いていますので、動画に夢中で長風呂になっても大丈夫。最後まで温かいお風呂に入れます。
ゆったり浸かれる1216の浴槽です。
浴室乾燥機は浴室の乾燥だけでなく、お洗濯物乾燥やヒートショック予防など様々な働きをしてくれます。使わないのはもったいないですよ!
次はトイレへ…
温水洗浄便座付き。INAX製のシャワートイレです。
では、次のお部屋へ…
こちらは約4帖の洋室。
ベッドは見本ですが、置いてあるとお部屋のサイズ感がつかみやすくて助かります。シンプルな内装でどんな家具でも合いそうですので、自分好みに変えていきましょう!
窓の外は外廊下。面格子などは付いていませんが、窓ガラスには金網が入っているので安心です。
収納はクローゼット。大きく開いて中が見やすく、使い勝手が良さそうです。見やすい収納にすると、無駄な買い物が減るそうですよ(^^)
それでは、最後はバルコニーへ出てみましょう。
リビングの窓、右の一枚はFIX窓で開きません。他の二枚が開きますのでそちらから…
4.40㎡のバルコニー。足元まで手摺柵になっていて開放感がありますね。物干し金具が設置されていて、お洗濯物も干せるようです。
バルコニーからの眺めです。いい眺めとは言えませんが、少なくても汚かったりごみごみした感じではないですよね。
少し見える空も、窓に映ってたくさんになっていますよ(^^)
・
・
以上で越前堀永谷マンションのご案内を終わります。
いかがでしたでしょうか??
八丁堀駅から徒歩6分のマンションです。
リノベーション済みという事で室内はとてもキレイですよ (っ・ω・)っ
内見のご予約やご質問などございましたらお気軽にお問い合わせくださいませ。
ご連絡お待ちしております。
□□□□□□□□□□□□□□□□□□□□□□□□□□□□□□□□□□□□□□□
★★★【越前堀永谷マンション】周辺のハザードマップをCHECK!!★★★
お部屋のお問い合わせ前に…!周辺のハザードマップをチェックしておきませんか!
越前堀永谷マンションのハザードマップは★こちらから…どうぞ★
□□□□□□□□□□□□□□□□□□□□□□□□□□□□□□□□□□□□□□□
弊社、不動産Agent 六棒株式会社では、一般仲介物件は仲介手数料20%~30%OFF!にてお取り扱いしております!
なるべく沢山のお部屋をホームページに掲載したいと思っておりますが、時間的成約もございますので、残念ながらご紹介できるお部屋の一部しか掲載できておりません。
このホームページに掲載中のお部屋、その他サイト等で気になるお部屋、街を歩いていて気になったマンション等々ございましたら是非、弊社営業部までご相談ください!
~不動産Agent 六棒株式会社の特徴~
・一般仲介物件の仲介手数料は20%~30%OFFにてご案内中です!
・住宅ローンに自信あります!
・頭金10万円より購入できます。是非ご相談下さい!
・お部屋のご見学は車で2~3件まとめて案内します!
・物件数3000件以上、新築戸建、リノベ物件も多数ご用意しております!
過去に販売していたお部屋の概要 このお部屋の販売は終了いたしました。
| 価格 | -万円 |
| 面積 | 32.32㎡ |
| 間取り | 1bedroom(1DK) |
| 管理費 | 月額5,500円 修繕積立金:月額11,000円 |
| 所在階 | 10階 |
| お問い合わせ・ご内見のご予約はこちらからお気軽にどうぞ | |
間取りのご紹介です。1DK、専有面積は32.32㎡。
シングルの方におすすめです。
室内は以下のリノベーションをおこなっています。
【リノベーション内容】
■キッチン・・・システムキッチン
■浴室・・・ユニットバス(TOTO)、追い焚き機能付き、浴室換気乾燥暖房機付き
■洗面所・・・洗面化粧台 、洗濯水栓、防水パン
■トイレ・・・LIXIL
■その他・・・フローリング貼替、建具・玄関収納交換、壁・天井クロス貼替、フロアタイル貼替、給湯器交換、エアコン(1基)、カラーTVモニター付きインターホン、新規照明器具取付、収納棚新設、スイッチ・コンセント交換、ハウスクリーニング
■アフターサービス保証付き
さっそく中へ。玄関は人感センサーがついており、人の出入りを察知して自動で照明が点灯・消灯します。消し忘れがなく経済的な上、スイッチを探す手間も省けて便利。
インターホンは来訪者の顔が確認できるTVモニターがついています。玄関扉を開ける前はこちらでご確認を!
玄関横にはたっぷり仕舞えるトールサイズのシューズBOXが設置されています。可動棚なので棚の高さは調節可能。傘もこの中に納まりそうですね。
玄関先は廊下になっており、左手にトイレと洗濯機置場、正面にダイニングキッチンの扉があります。建具もフローリングも木目調であたたかみのある雰囲気です。
洗濯機置場にはロールスクリーンがついています。使わない時やお友達が遊びに来た時にはサッと下げて生活感を隠しておけます。
トイレはウォシュレット付き。
ペーパーのストックの保管に便利な吊戸棚も設置されています。
採光部のある扉をあけてダイニングキッチンへ。
ダイニングキッチンは約6.6帖。ダイニングテーブルとちょっとした収納家具を置いてちょうどいい広さでしょうかφ(.. )
キッチンはダイニングキッチンの扉側にあります。水栓は浄水機能付き、コンロは2口ガスコンロ。お隣に可動棚付きの収納スペースがあるので、食器や食材のストックなどはここに置いておくと便利かも!
洗面室はキッチンに隣接しており、ダイニングキッチン内から行けるようになっています。
中は洗面化粧台とバスルームがまとまっています。白基調で清潔感たっぷり♪バスルームには追い焚き、浴室換気乾燥機がついて設備も充実しています。
洋室はダイニングキッチンに隣接しており、ダイニングキッチンとは3枚の可動扉で仕切れるようになっています。
洋室は約4.5.帖。壁面の一部にはやわらかい色合いのアクセントクロスが使われ落ち着いた雰囲気になっています。エアコンも設置済み。
可動扉をあけてダイニングキッチンと洋室をつなげて利用することもできます。扉をあけるとダイニングキッチン内も一層明るくなりました。
最後に洋室からバルコニーに出てみます。
広さは3.96㎡、南西向き。
正面には大きなビルが建っています。眺望には特にこだわらない、という方にゼヒ。
ご内見のご希望・ご質問などございましたら、お気軽にお問い合わせくださいませ♪
過去に販売していたお部屋の概要 このお部屋の販売は終了いたしました。
| 価格 | -万円 |
| 面積 | 37.58㎡ |
| 間取り | 1bedroom(1LDK) |
| 管理費 | 月額:5,500円 修繕積立金:月額11,000円 |
| 所在階 | 10階 |
間取りのご紹介です。1LDK、専有面積は37.58㎡。
10階、角部屋。シングルの方におすすめです。
室内は以下のリノベーションをおこなっています。
【リノベーション内容】
■キッチン・・・システムキッチン
■浴室・・・ユニットバス(TOTO)、追い焚き機能付き、浴室換気乾燥暖房機付き
■洗面所・・・洗面化粧台 、洗濯水栓、防水パン
■トイレ・・・LIXIL
■その他・・・フローリング貼替、建具・玄関収納交換、壁・天井クロス貼替、フロアタイル貼替、給湯器交換、エアコン(1基)、カラーTVモニター付きインターホン、新規照明器具取付、収納棚新設、スイッチ・コンセント交換、ハウスクリーニング
■アフターサービス保証付き
さっそく中へ。玄関は人感センサーがついており、人の出入りを察知して自動で照明が点灯・消灯します。消し忘れがなく経済的な上、スイッチを探す手間も省けて便利。
インターホンは来訪者の顔が確認できるTVモニターがついています。玄関扉を開ける前はこちらでご確認を!
玄関横にはたっぷり仕舞えるトールサイズのシューズBOXが設置されています。可動棚なので棚の高さは調節可能。傘もこの中に納まりそうですね。
玄関先は廊下になっており、左側に洋室、正面にLDKの扉があります。
これなら宅急便など玄関先での対応時もお部屋の中が見られる心配はありません。
廊下側を進んですぐ左手にある洋室は約4.0帖。スリムなクローゼットが設けられています。
廊下をまっすぐ進んだ先、採光部のある扉をあけてLDKへ。
LDKは約10.0帖。手前にキッチン、奥がリビングダイニングスペースになっています。
リビングダイニングスペース。
白と木目を基調とした明るい空間は置く家具も選ばなさそうです。エアコンも設置済みで引っ越したその日から快適に過ごせますね!
LDK内には収納力のあるウォークインクローゼットが設けられています。掃除機など大きな物はこの中に仕舞っておくイメージでしょうか。
キッチンはリビングが見える対面式。水栓は浄水機能付き、コンロは2口ガスコンロ。
キッチン脇には食材のストックや食器などおいて置くのに便利な棚が設置されています。そしてキッチン向かい側の扉の中は洗面室になっています。
洗面室は清潔感のある白基調。洗面化粧台、トイレ、バスルームがまとまっています。
洗面化粧台の鏡の裏、トイレ上の吊戸棚など洗面室内は小物の収納スペースも豊富。トイレはもちろんウォシュレット付きです。
バスルームは追い焚き、浴室換気乾燥機能付きと設備が充実しています。
暖房・涼風も入るので季節をとわず快適なバスタイムが過ごせますね。
上には洗剤を置くのに便利な棚もついています。
最後にLDKからバルコニーに出てみます。
広さは4.60㎡、南西向き。
正面には大きなビルが建っています。眺望には特にこだわらない、という方にゼヒ。
ご内見のご希望・ご質問などございましたら、お気軽にお問い合わせくださいませ♪
過去に販売していたお部屋の概要 このお部屋の販売は終了いたしました。
| 価格 | -万円 |
| 面積 | 38.51㎡ |
| 間取り | 1bedroom(1LDK) |
| 管理費 | 月額:5,500円 修繕積立金:月額11,000円 |
| 所在階 | 4階 |
間取りのご紹介です。2DK,37.58㎡。4階。
シングルの方にオススメです。
<リノベーション内容 平成26年11月完了>
■キッチン・・・システムキッチン(パナソニック)
■浴室・・・ユニットバスWT1116(TOTO)、追い焚き機能付き、浴室換気乾燥暖房機付き
■洗面所・・・洗面化粧台 (LIXIL)、洗濯水栓、防水パン
■トイレ・・・TOTO、ウォシュレット機能付き
■その他・・・フローリング貼替、壁・天井クロス張替、フロアタイル貼替、クッションフロア張替、建具・玄関収納交換、給湯器交換、エアコン(1基)、カラーTVモニター付インターフォン、新規照明器具取付、収納棚新設、スイッチ・コンセント交換、ハウスクリーニング
インターホンはTVモニター付き。安心な暮らしをサポートしてくれます。
玄関を入ると右手にシューズBOXが設置されています。
1人分の靴ならすっぽり収まるのではないでしょうか。真ん中のカウンター部分にお気に入りのインテリアなどを置いたりとお好みの空間づくりも楽しめます。
玄関をあがると目の前に廊下が伸びています。
正面の採光部のある扉はダイニングキッチン、左側に洋室の扉があります。
廊下の左側の洋室へ。
洋室は約4.0帖。壁の一部はナチュラル色あいの木目柄になっています。
クローゼットも設置されています。
つづいてダイニングキッチンへ。
ダイニングキッチンは約5.0帖。縦長の空間です。
キッチンは3口コンロ、浄水機能付き水栓、収納たっぷりとスペックも◎!
窓が近いので換気もサッと完了できます。
洗面室、もう1つの洋室の扉はダイニングキッチン内にあります。
洗面室。洗面化粧台、トイレ、洗濯機置場、バスルームがまとまっています。
脱衣スペースに余裕があるのがうれしいですね!
洗面化粧台の横にはコスメなど細かい物の保管にちょうどいいキャビネットが設置されています。洗面ボウルはお掃jがしやすいカウンター一体型。
洗濯機置場の上の収納棚には洗剤や洗濯ネットなどをどうぞ。
トイレはウォシュレット付き。トイレ内にも収納棚が設置されています。
ナチュラルな色合いの木目柄パネルが使われたやわらかい雰囲気のバスルーム。追い焚き、浴室換気乾燥機能付きと設備も充実。暖房、涼風機能もあるので季節を問わず快適なバスタイムがお過ごしいただけます。
ダイニングキッチンの一番奥の扉の洋室へ。
洋室は約5.0帖。横長のお部屋です。
もう1部屋の洋室と同じく壁の一部はナチュラル色あいの木目柄になっています。
こちらのお部屋には幅の広いクローゼットが設置されています。
最後に約5.0帖の洋室からバルコニーに出てみます。
約4.60㎡、ほぼ南向き。
正面には大きなビルが建っていますが、オフィスビルのようなので窓が開く心配はあまりないかと思います。
越前堀永谷マンション、いかがでしたでしょうか?
ご内見のご希望・ご質問などございましたら、お気軽にお問い合わせくださいませ♪

























































































































































































































弊社 公式HP
六棒総合研究所
掲載予定物件
価格変更と販売終了物件
ハザードマップ検索
適合証明書.jp
Facebook
Twitter
Instagram