・
□□□□□□□□□□□□□□□□□□□□□□□□□□□□□□□□□□□□□□□
いつも弊社ホームページをご覧頂き誠にありがとうございます。
浜町グランドハイツはお陰様で販売を終了致しました。弊社問合せフォームにてご要望頂けましたら、当お部屋でキャンセル等が発生した場合、他のお部屋が販売になりました際にご紹介させて頂きます。
不動産Agent 六棒株式会社
TEL:03‐5413‐5336
□□□□□□□□□□□□□□□□□□□□□□□□□□□□□□□□□□□□□□□
・
今回、営業部 大島がご案内させて頂くのはリノベーションマンション『浜町グランドハイツ』です!
東京メトロ日比谷線・都営浅草線の2路線が乗り入れる「人形町」駅徒歩10分、
都営新宿線「浜町」駅徒歩10分も利用可能。各所へのアクセスも◎です!
この日は水天宮前駅からマンションまで向かってみます。
1番出口を出るとロイヤルパークホテルがすぐ脇に建っています。
宿泊だけでなくレストランやバーも入っています。
マンションまでは首都高の高架下沿い道路をまっすぐ進んで途中で道を1回
折れればすぐ着きます。水天宮前駅といえば東京シティエアターミナルとも直結
しており、羽田空港・成田空港へのアクセスも便利。中には郵便局やコンビニ、
レストランも入っていますよ。
マンションから徒歩10分のところには運動広場や中央区立総合スポーツセンターが
入っている浜町公園も。横は隅田川テラスなので公園の緑のみならず、
水辺のお散歩も楽しめますよ!
浜町グランドハイツは昭和51年築、13階建て、総世帯数96戸。
オートロックはありませんが、管理は安心の住込管理です。
駐車場は月額35,000円~38,000円。空き状況はご確認ください。
エレベーターでお部屋へ向かいます。
今回ご紹介するお部屋は11階、専有面積65.78㎡の3LDK。オーソドックスなレイアウトのファミリータイプのお部屋です。
【リノベーション内容】
・システムキッチン新規交換
・ユニットバス新規交換
・洗面化粧台新規交換
・トイレ新規交換(温水洗浄機能付)
・フローリング新規張替
・フロアタイル、クロス新規貼替
・照明器具新規設置
・エアコン(1基)新規設置・・・等
間取り図はこちら ↓ ↓ ↓
※間取り図は別タブで開きますので、確認しながらご覧いただくことが出来ます。
では、早速行ってみましょう!
【玄関】
【LDK:約13.5帖・南東向き】
【LDK】
【キッチン:カウンタータイプ・食器洗浄乾燥機付き】
【洋室3:約5.3帖・ウォークインクローゼット付き】
【洋室2:約4.1帖・廊下に面した独立性の高いお部屋】
【洗面室:三面鏡付き洗面化粧台・洗濯機スペース】
【浴室:浴室換気乾燥機付き】
【トイレ:温水洗浄機能一体型・吊り戸棚付き】
【眺望:River View!】
・
以上で浜町グランドハイツのご案内を終わります。
いかがでしたでしょうか??
水天宮前駅から徒歩5分のマンションです。
内見のご予約やご質問などございましたらお気軽にお問い合わせくださいませ。
ご連絡お待ちしております。
弊社、不動産Agent 六棒株式会社では、一般仲介物件は仲介手数料20%~30%OFF!
にてお取り扱いしております!
なるべく沢山のお部屋をホームページに掲載したいと思っておりますが、時間的成約もございますので、残念ながらご紹介できるお部屋の一部しか掲載できておりません。
このホームページに掲載中のお部屋、その他サイト等で気になるお部屋、街を歩いていて気になったマンション等々ございましたら是非、弊社営業部までご相談ください!
~不動産Agent 六棒株式会社の特徴~
・一般仲介物件の仲介手数料は20%~30%OFFにてご案内中です!
・住宅ローンに自信あります!
・頭金10万円より購入できます。是非ご相談下さい!
・お部屋のご見学は車で2~3件まとめて案内します!
・物件数3000件以上、新築戸建、リノベ物件も多数ご用意しております!
過去に販売していたお部屋の概要 こちらのお部屋の販売は終了いたしました
| 価格 | -万円 |
| 面積 | 54.81㎡ |
| 間取り | 2bedroom(2LDK) |
| 管理費 | 月額7,560円 修繕積立金:月額12,720円 |
| 所在階 | 12階 |
| お問い合わせ・ご内見のご予約はこちらからお気軽にどうぞ | |
ここで間取り図のご紹介です。
※間取り図は別タブで開きますので、間取り図と記事や写真を照らし合わせながらご覧いただくことができます。
今回ご紹介するお部屋は12階、専有面積54.81㎡の2LDK。おひとり暮らしの方からファミリーまで幅広くお使いいただけるお部屋です。では、早速行ってみましょう!
【玄関廊下】
玄関の照明は人感センサー付き。自動でライトのON・OFFをしてくれるので両手が塞がっていても大丈夫、暗い中手探りでスイッチを探す必要もありません。いつでも明るい玄関が迎えてくれるのって嬉しいですよね。シューズボックスは収納力のあるトールタイプ!
【LDK】
こちらは約11.6帖のリビング・ダイニング・キッチン。南西向きのバルコニーに面したお部屋です。キッチン横にも北西向きの窓があり風通しも良さそうですね。バルコニーに向かってキッチン、ダイニング、リビングと並べるオーソドックスなタイプなので家具のレイアウトに悩むことはなさそうです。
【LDK】
明るい色使いの壁床に黒のアクセントのナチュラルモダン。置かれた家具はディスプレイ用なので付いては来ませんが、色やサイズ、質感などの参考にさせてもらいましょう!
【キッチン】
キッチンはリビングダイニングとの一体感が抜群のアイランドタイプ。ソリッドブラックのパネルを使用しシャープでスタイリッシュな印象です。この存在感はこの部屋の主役と言っても過言ではありません。食器洗浄乾燥機や浄水機能一体型水栓などの便利機能も充実していて使いやすさも満点ですよ。
【洋室2】
約5.8帖の洋室2はLDKと同じ南西向きバルコニーに面した明るいお部屋です。LDKとは引き込み式の引き戸で仕切られているので、全開にすればLDKとつなげて使うことも可能。
ご家族構成やライフスタイルによってフレキシブルに使えるのは嬉しいですよね。
【洋室1】
廊下へ戻って・・・こちらは約5帖の洋室。廊下に面した独立性の高いお部屋です。二面の窓からは柔らかな光が入ってきていて、北東・北西向きですが意外と明るいですね。クローゼットも付いています。
【洗面室】
洗面室には洗面化粧台の他に洗濯機スペース、浴室がまとまっていて脱衣室も兼ねています。洗面化粧台は身だしなみを整えるのに便利な三面鏡付き。裏がキャビネットになっているので細かいものもスッキリと片付けることができますよ。ランドリー用品は洗濯機スペース上の棚へどうぞ。
【浴室】
浴室は木目パネルに囲まれた落ち着いた雰囲気。ゆったりと湯舟に浸かれば一日の疲れも洗い流せそうですね♬ 追い焚き機能付きの給湯器はボタンひとつでお風呂の準備や保温をしてくれるので、いつでも温かいお風呂に入ることができますよ。花粉や雨が多い季節に嬉しい浴室換気乾燥機能付き!
【眺望】
それでは最後にバルコニーからの眺望をご紹介・・・隅田川を一望できる素晴らしい眺めです! 以前川沿いに住んでいたことがありますが、季節や天気、時間によって表情が変わる川の流れを眺めてるのってほんと癒されるんですよね。
・
以上で浜町グランドハイツのご案内を終わります。
いかがでしたでしょうか??
水天宮前駅から徒歩5分のマンションです。
リノベーション済みという事で室内はとてもキレイですよ (っ・ω・)っ
内見のご予約やご質問などございましたらお気軽にお問い合わせくださいませ。
ご連絡お待ちしております。
弊社、不動産Agent 六棒株式会社では、
□リノベーションマンションはほぼ全て仲介手数料無料!
□その他一般仲介物件は仲介手数料20%~30%OFF!
にてお取り扱いしております!※弊社の「Agent Fee=仲介手数料」についてはご案内、ご面談の際に営業担当者よりご説明いたします!
なるべく沢山のお部屋をホームページに掲載したいと思っておりますが、時間的成約もございますので、残念ながらご紹介できるお部屋の一部しか掲載できておりません。
このホームページに掲載中のお部屋、その他サイト等で気になるお部屋、街を歩いていて気になったマンション等々ございましたら是非、弊社営業部までご相談ください!
~不動産Agent 六棒株式会社の特徴~
・一般仲介物件の仲介手数料は20%~30%OFFにてご案内中です!
・リノベーションマンションについてはほぼ全て仲介手数料無料です!
・住宅ローンに自信あります!
・頭金10万円より購入できます。是非ご相談下さい!
・お部屋のご見学は車で2~3件まとめて案内します!
・物件数3000件以上、新築戸建、リノベ物件も多数ご用意しております!
過去に販売していたお部屋の概要 こちらのお部屋の販売は終了いたしました
| 価格 | -万円 |
| 面積 | 36.00㎡ |
| 間取り | 1bedrooms(1LDK) |
| 管理費 | 月額4,950円 修繕積立金:月額6,440円 |
| 所在階 | 2階 |
| お問い合わせ・ご内見のご予約はこちらからお気軽にどうぞ | |
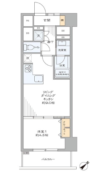
今回、ご紹介させて頂くお部屋の間取りです!
36.00㎡の1LDK。
バルコニーからは隅田川を望むことが出来ますよ!!
さっそく参りましょう(((((((((((っ・ω・)っ (((((((((((っ・ω・)っ
エレベータからお部屋までは外廊下が続いています。
普段よく見るタイプですね。
ホテルのような内廊下も魅力的ですが、湿気や臭いが籠らない外廊下は個人的にはイチオシです( ´∀`)b
玄関先にはモニター付きのインターフォンが付いています。
オートロックの付いていないマンションではありますが、お部屋の中から外の様子を確認できるのは防犯的にも心強いです∠(`・ω・´)
それではお部屋に入っていきますよ!!
玄関ドアから先はL字に曲がり、廊下が続いています。
ドアを開けている時でも、外の廊下からお部屋の奥までが見えないのでプライバシーも保たれます。
玄関の照明には人感センサーが付いているので、自動的にオンオフと切り替えてくれます(☆Д☆)
お買い物帰りなどで両手が塞がっている時はとても助かりますし、何より経済的なのは嬉しいですね!!
シューズボックスになるであろう棚は高さの調節が可能です。
ブーツなどの背の高い履物にも対応可能ですよ!!
玄関に長居しても始まりません!!
さっさと奥へ進みましょう -=≡ヘ(*・ω・)ノ -=≡ヘ(*・ω・)ノ
ここはッッ!!?
リビング・ダイニング・キッチンですッッ!!!
約9.0帖の広さがあります。
奥の洋室からは明るい光が入ってきますよ(☆Д☆)
照明はダウトレールに取り付けてあるダウンライトを自由に動かすことが出来ます。
位置や向きを自由に変えることが出来ますし、ダウンライトは様々なタイプのモノが販売されていますので、自分なりの照明を作り上げるのも良いかもしれませんね( ´∀`)b
奥に目を向けると、もう一つ洋室が。
こちらの洋室は約4.5帖。
クローゼットが付いているので、お洋服等の収納にも困りませんね!!
スライド式のドアによってリビング・ダイニングと仕切られています。
ドアを閉めても外からの光がリビングまで届くのが良いですね 。゜+.(o´∀`o)゜+.
もう少しプライベートな空間にしたい場合はガラスシート等で、模様をつけても良いかもしれません。
気になるバルコニーは後ほどご案内いたします。
次はキッチンです。
L字型のオープンキッチン。
開放感を保ちつつ作業スペースが広くとれ、移動が楽な点が特徴かと思います。
角の部分はデッドスペースになりがちなので、そこは工夫が必要という宿命は有りますが・・・
個人的には小さ目のワインラックを置きたい気分です。
浄水機能付きの水栓はシャワーヘッドになっています。
お掃除はもちろん捗りますし、お鍋等の背の高い容器に水を注ぐのも簡単ですよ(*’д`*)
3口のグリル付きガスコンロが付いているので、お料理の幅も広がりそうですよね!
特にグリルを使えばサンマ!!ピザ!!グラタン!!など、色々なお料理に応用が可能です!1
形の都合上、全てを開け放つことはできませんが収納も豊富です。
引き出しタイプの収納は上から出し入れができるので、奥まで無駄なく使うことが出来ます。
フライパンなどは重ねるのではなく、ブックスタンドなどを利用して立てて置くことで取り出しが楽になりますよヾ(*´∀`*)ノ
キッチンからバルコニーまでは一直線上に位置しています。
これならお料理中でもご家族とのコミュニケーションをとることが出来ますねっ!?
LDKを後にして、一度玄関の方向へと戻りましょう(((((((((((っ・ω・)っ
トイレです。
TOTOのウォシュレット機能付きのトイレですね!!
来客時にトイレのメーカーがTOTOじゃないのは少し気が引ける」という意見もあるくらい、日本の消費者からTOTOのトイレは厚い信頼を得ているようです。
便器においても温水便座においても、TOTOは2位を大きく引き離してシェア1位を獲得しているのですよ!!
玄関すぐの扉を開けると洗濯機置場があります。
外から帰ってきたら、まずはここでくつ下を脱ぎましょうね (・`ω´・ ○)
洗濯機置場の反対側は・・・
こちらは洗面室ですね
カメラの都合で赤っぽくなっていますが、モノトーンでシックにまとめられた洗面室になっています。
大きな一枚のミラーは視認性もバツグンです。
ミラーまわりに収納は特に設けられていませんが、サイドにフリースペースが設けてあるので、小物などの収納にはラックなどを置いて工夫したいところです。
洗練された、大人の雰囲気が漂う洗面室でした!!
そして次はバスルームです。
浴室には換気乾燥機能が付いています。
雨の日には浴室で洗濯物を干すことができるので、天候に洗濯が左右されることもありません。
梅雨の時期などは大助かりの機能ですよ!!
もちろんカビの発生を抑える効果もありますので、積極的に使っていきたい機能でもありますね!!
縦長のミラーがついていますね( ・`ω・´)
世間では壁一面に広がる横長ミラーの人気が人気だそうですが、個人的にはスタンダードなこちらの縦長をお勧めしますよ!!
理由は掃除が簡単だから!です!!
小さな理由かもしれませんが、塵も積もれば何とやら、長く住めば住むほど実感してくるかと思います。
追炊き機能もあるので、いつでも熱いお風呂に入ることができますよ!!
休日は1日中お風呂を楽しむことが出来そうですね ヾ(*≧∀≦)ノ゙
最後にバルコニーです。
なんだか盗撮したような影が左に付いていますが、カメラのレンズにゴミが付いていただけですので。。。。
本当ですよ??
バルコニーからは隅田川を望むことが出来ます。
左手に見えている水色の端は「清洲橋」という橋で、関東大震災の震災復興事業として、永代橋と共に計画されたそうです。
「帝都東京の門」と呼称された永代橋と対になるような設計で、「震災復興の華」とも呼ばれた優美なデザインが特徴ですよ!!
清洲橋。
名前は、建設当時の両岸である深川区清住町と日本橋区中洲町から採られたらしいです。
では、以上で浜町グランドハイツのご案内を終わります。
いかがでしたでしょうか??
水天狗前から徒歩5分のマンションです。
リノベーション済みという事で室内はとてもキレイですよ (っ・ω・)っ
内見のご予約やご質問などございましたらお気軽にお問い合わせくださいませ。
ご連絡お待ちしております。
弊社、不動産Agent 六棒株式会社では、
□リノベーションマンションはほぼ全て仲介手数料無料!
□その他一般仲介物件は仲介手数料20%~30%OFF!
にてお取り扱いしております!※弊社の「Agent Fee=仲介手数料」についてはご案内、ご面談の際に営業担当者よりご説明いたします!
なるべく沢山のお部屋をホームページに掲載したいと思っておりますが、時間的成約もございますので、残念ながらご紹介できるお部屋の一部しか掲載できておりません。
このホームページに掲載中のお部屋、その他サイト等で気になるお部屋、街を歩いていて気になったマンション等々ございましたら是非、弊社営業部までご相談ください!
~不動産Agent 六棒株式会社の特徴~
・一般仲介物件の仲介手数料は20%~30%OFFにてご案内中です!
・リノベーションマンションについてはほぼ全て仲介手数料無料です!
・住宅ローンに自信あります!
・頭金10万円より購入できます。是非ご相談下さい!
・お部屋のご見学は車で2~3件まとめて案内します!
・物件数3000件以上、新築戸建、リノベ物件も多数ご用意しております!
過去に販売していたお部屋の概要 このお部屋の販売は終了いたしました。
| 価格 | -万円 |
| 面積 | 54.81㎡ |
| 間取り | 2bedroom(2LDK) |
| 管理費 | 月額7,560円 修繕積立金:月額9,820円 |
| 所在階 | 10階 |
| お問い合わせ・ご内見のご予約はこちらからお気軽にどうぞ | |
ここで間取りのご紹介です。2LDK、54.81㎡。
玄関を入ると左手に白い扉のシューズBOXがつくられています。
収納量も◎!下からの照明で足元が明るいのもうれしいですね。
ちなみにインターフォンはTVモニター付きなので来訪者の顔が確認できて安心です。
廊下をまっすぐ進み・・・
つきあたり右側の採光部のある扉の奥は・・・
約12.0畳のリビングダイニングキッチン。
南西向きの明るいお部屋は家族の集いの場にピッタリです。
反対側からもご覧ください。
キッチンはリビングの様子が見渡せるオープンタイプ。お料理をしながら
家族と会話が楽しめます。
システムキッチンはフローリングにマッチした落ち着いた色合いの木目柄。
L字型で使い勝手もよさそうです。
ワークトップにはしっとりとした質感が魅力の人造大理石が使われています。
スライド式の収納もキッチングッズの出し入れがしやすそうで◎。
横に窓があるのでサッと自然換気ができるのもうれしいですね。
つづいて洗面室です。
3面鏡の裏が一面収納になっている洗面化粧台。
ゴチャゴチャと散らかりがちな洗面まわりの小物類もスッキリ収納いただけます。
蛇口はグーッと伸ばしてシャワーになるのでお掃除や花瓶の水入れも楽々できますよ。
洗面化粧台の右となりは洗濯機置場になっています。
ナチュラルな色合いの木目柄の壁パネルが使われたバスルームは、追い焚き機能と
浴室換気乾燥機能付き。お天気が悪い日でもお洗濯物が乾かせて助かります。
トイレは洗面室を出て右側に位置しています。
ウォシュレット付き。上には収納もつくられています。
ここから洋室を2部屋ご紹介します。
1部屋目は約5.5畳の広さ。 玄関から一番近いお部屋になります。
収納も半分は衣類をかけたり、半分は棚に物が置けたりと整理整頓がはかどりそうな
つくりです!
2部屋目はリビングに隣接しており、3枚の可動式の扉で区切られています。
約6.1畳の広さ。こちらのお部屋とリビングからはバルコニーにでられるように
なっています。
こちらのお部屋には大型のクローゼットもつくられています。
収納が大きいと生活スペースが広く使えていいですね。
可動式の扉を開けて2部屋つなげると広々とした空間になりました。
生活シーンに合わせてつなげて使ったり、独立させたりとフレキシブルなレイアウト
をお楽しみいただけます。
最後にバルコニーに出てみます。約8.19㎡、南西向きで陽当たりにも恵まれています。
お洗濯物もよく乾きそうです。
バルコニーからは隅田川ビューがお楽しみいただけます♪
こちらのお部屋は購入後も安心のアフターサービス保証付。
管理費7,560円、修繕積立金9,820円とランニングコストが低い点もひそかな
オススメポイントです。
みなさまのご内見、こころよりお待ちしております!




































































































































弊社 公式HP
六棒総合研究所
掲載予定物件
価格変更と販売終了物件
ハザードマップ検索
適合証明書.jp
Facebook
Twitter
Instagram