・
□□□□□□□□□□□□□□□□□□□□□□□□□□□□□□□□□□□□□□□
いつも弊社ホームページをご覧頂き誠にありがとうございます。
ライオンズマンション茅場町はお陰様で販売を終了致しました。弊社問合せフォームにてご要望頂けましたら、当お部屋でキャンセル等が発生した場合、他のお部屋が販売になりました際にご紹介させて頂きます。
不動産Agent 六棒株式会社
TEL:03‐5413‐5336
□□□□□□□□□□□□□□□□□□□□□□□□□□□□□□□□□□□□□□□
・
今回は東京メトロ日比谷線・東西線「茅場町」駅から徒歩8分の『ライオンズマンション茅場町』をご紹介します♪
「茅場町」駅の他にも、JR京葉線・東京メトロ日比谷線「八丁堀」駅から7分、東京メトロ半蔵門線「水天宮前」駅から11分と、3駅利用可能でとても便利です(*^^)v
□□□□□□□□□□□□□□□□□□□□□□□□□□□□□□□□□□□□□□□
★★★【ライオンズマンション茅場町】周辺のハザードマップをCHECK!!★★★
お部屋の記事を読む前に…!周辺のハザードマップをチェックしておきませんか!
ライオンズマンション茅場町のハザードマップは★こちらから…どうぞ★
□□□□□□□□□□□□□□□□□□□□□□□□□□□□□□□□□□□□□□□
ハザードマップもご確認いただきましたので、今回は、その中の「八丁堀」駅からスタートします♪
「八丁堀」駅は新大橋通りに面しています。そこから隅田川を目指してまっすぐ進みます!(^^)!
・・・がその前に。
八丁堀の駅近くには、桜川公園という大きな公園があります。名前に桜が付いているように、桜の木がたくさんあり、春には公園中がピンク色に染まり、桜の名所としても知られています。
八丁堀駅から真直ぐ隅田川に向かって歩いてくると、マルエツプチがありました。マンションからも近いので、いつものお買い物はここでOKです♪
夜10時までの営業なので、お仕事で少し遅くなっても、まだ開いていますよ!(^^)!
隅田川に出ると、とても気持ちのいい景色が広がりました☆
川沿いには遊歩道があり、のんびりとお散歩を楽しんでいる方もたくさんいました(*^。^*)
永代通りにかかる永代橋。永代橋のバックには東京スカイツリー。なんとも絵になる風景です☆
永代橋は夜になると青や紫にライトアップされて、昼間とはまた違ったオシャレな夜景に変わります(^o^)夜に永代橋越しに見るスカイツリーもまた素敵なんでしょうね♪
川を眺めていると、不思議な形をした船がやって来ました。
隅田川のクルーズ船「ヒミコ」です。もう一隻、「ホタルナ」という船もありますが、そちらは天井部分がデッキになっていて、外に出られる様になっています。
宇宙船の様な形をしたこの「ヒミコ」は「銀河鉄道999」や「宇宙戦艦ヤマト」の生みの親、松本零士氏がデザインした遊覧船です。
一度この船に乗ったことがありますが、船内のアナウンスは、メーテルと鉄郎、999の車掌さんがしてくれますよ♪ぜひ一度乗ってみてください(^_-)-☆
そんな永代橋のすぐ近くに『ライオンズマンション茅場町』がありました。
残念ながらこの日は修繕工事の真っ最中で外観を撮れませんでしたが、綺麗に生まれ変わるのが楽しみですね♪
ここで間取り図のご紹介です。
※間取り図は別タブで開きますので、見比べながらご覧いただく事が出来ます。
□□□□□□□□□□□□□□□□□□□□□□□□□□□□□□□□□□□□□□□
★★★【ライオンズマンション茅場町】周辺のハザードマップをCHECK!!★★★
お部屋の記事を読む前に…!周辺のハザードマップをチェックしておきませんか!
ライオンズマンション茅場町のハザードマップは★こちらから…どうぞ★
□□□□□□□□□□□□□□□□□□□□□□□□□□□□□□□□□□□□□□□
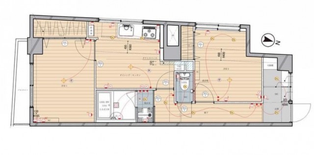
今回ご紹介するお部屋は、2DK、46.05㎡、11階。最上階の角部屋です。
では、早速行ってみましょう!
エレベーターを11階で降りて、明るい外廊下を進みます。
玄関ドア横にはテレビモニター付きインターホンが設置されていて、お部屋の中から訪問者を確認する事が出来ます。「ハイ」と言う前にじっくりとチェックしましょうね。
それではお邪魔します…
長い廊下の突き当りは壁になっています。戸口からお部屋の中が見えない様になっている、プライバシーに配慮された間取りですね。
振り返って…大きな窓のある明るい玄関です。
中に入った時に照明を点けてくれたのは、人感センサー。日中はありがたさが分かりづらいですが、夜帰った時に明るい玄関が待っていてくれるのは嬉しいものです(^^)
玄関右側は土間になっていました!
スペースは自転車やベビーカー、大きなキャリーバッグなどいろいろ使い道がありそうです。お部屋には持ち込みたくないスポーツ道具などもアリですね。
シューズボックスはロータイプ、奥には収納棚。。大きな窓で明るさはもちろんのこと、換気もバッチリです!
では、廊下を進んだ突き当り、ガラス入りのドアから開けてみましょう。建具のブルーが綺麗です。
こちらは約5.2帖のダイニング・キッチン。
窓の外は隣の建物の壁になっていましたので眺望などはありませんが、十分光は入ってきますし、なによりキッチンそばという事で換気に役立ってくれそうです。入り口近くには窪みがあり、そこに小さなカウンターが設置されていました。電話や無線LANを置く感じですかね。
次はキッチンを…
壁付けタイプ。建具に合わせたブルーのパネルを使っています。
調理台下は収納に。扉タイプは奥の物が取りづらかったりします。収納グッズなどを使うと良いかもしれません。
上部には換気扇と吊戸棚。窓があるとはいえ、お料理中は換気扇をお忘れなく!
コンロは3口。片面焼きグリルも付いています。お料理の幅も広がりそうですね。
調理台横には冷蔵庫スペースになっていました。せっかくの窓が少し隠れてしまうんですね。残念^^;)
では、次のお部屋へ…
こちらは約6帖の洋室。南向きの大きな窓からは眩しい陽射しが射し込んでいます。
収納の扉は白・・・たしかに、ここがブルーだとうるさくなってしまいそうですね。このブルーの面積がちょうどいい感じのアクセントになっています。
中はクローゼット。間口が広くて使いやすそうです。奥行きもあるので衣装ケースなどで収納力アップもいいですね。
次は浴室へ…
その手前の脱衣所には洗濯機スペースもありました。脱いですぐ洗濯・・・いい流れです(^^)
浴室も白とブルー。テーマカラーなんですね。洗面台が浴室内にあるタイプです。
追い焚き機能が付いていますので、いつでも温かいお風呂に入れます。お風呂は自分のタイミングで入りたいですよね。
浴室乾燥機能は浴室の乾燥だけでなく、お洗濯物乾燥やヒートショック予防など様々な働きをしてくれます。使わないのはもったいないですよ!
廊下に戻って、次はトイレです。
ゆったりとした広さがあります。シンプルなのもいいですね。
温水洗浄便座付き。INAX製のシャワートイレです。
では、次のお部屋へ…
こちらは約5帖の洋室。窓付きのお部屋です。
クローゼットは先程の洋室と比べれば少し小さめ。もちろん比べればですよ^^;)寝室を想定してか、窓は二重サッシになっていました。防音、遮熱いろいろな面で嬉しいです。
それでは、最後にバルコニーへ出てみましょう!
奥の洋室の窓から出られます。こちらも二重サッシですよ(^^)v
奥行きはあまりありませんが、幅のあるバルコニーです。ほぼ南向きなので陽当りも良好。お洗濯物も気持ち良く乾きそうです♬
外の眺めです。
高い建物も多いですが、奥には隅田川に架かる永代橋も見えます。川が見えるとなぜかテンションが上がります(笑)
・
以上でライオンズマンション茅場町のご案内を終わります。
いかがでしたでしょうか??
茅場町駅から徒歩8分のマンションです。
リノベーション済みという事で室内はとてもキレイですよ (っ・ω・)っ
内見のご予約やご質問などございましたらお気軽にお問い合わせくださいませ。
ご連絡お待ちしております。
□□□□□□□□□□□□□□□□□□□□□□□□□□□□□□□□□□□□□□□
★★★【ライオンズマンション茅場町】周辺のハザードマップをCHECK!!★★★
お部屋のご購入前に…!周辺のハザードマップをチェックしておきませんか!
ライオンズマンション茅場町のハザードマップは★こちらから…どうぞ★
□□□□□□□□□□□□□□□□□□□□□□□□□□□□□□□□□□□□□□□
弊社、不動産Agent 六棒株式会社では、
□リノベーションマンションはほぼ全て仲介手数料無料!
□その他一般仲介物件は仲介手数料20%~30%OFF!
にてお取り扱いしております!※弊社の「Agent Fee=仲介手数料」についてはご案内、ご面談の際に営業担当者よりご説明いたします!
なるべく沢山のお部屋をホームページに掲載したいと思っておりますが、時間的成約もございますので、残念ながらご紹介できるお部屋の一部しか掲載できておりません。
このホームページに掲載中のお部屋、その他サイト等で気になるお部屋、街を歩いていて気になったマンション等々ございましたら是非、弊社営業部までご相談ください!
~不動産Agent 六棒株式会社の特徴~
・一般仲介物件の仲介手数料は20%~30%OFFにてご案内中です!
・リノベーションマンションについてはほぼ全て仲介手数料無料です!
・住宅ローンに自信あります!
・頭金10万円より購入できます。是非ご相談下さい!
・お部屋のご見学は車で2~3件まとめて案内します!
・物件数3000件以上、新築戸建、リノベ物件も多数ご用意しております!
過去に販売していたお部屋の概要 このお部屋の販売は終了いたしました。
| 価格 | -万円 |
| 面積 | 42.07㎡ |
| 間取り | 2bedrooms(2DK) |
| 管理費 | 月額17,100円 修繕積立金:月額12,825円 |
| 所在階 | 8階 |
| お問い合わせ・ご内見のご予約はこちらからお気軽にどうぞ | |
間取り図のご紹介です。
※間取り図は別タブで開きますので、確認しながらご覧いただく事が出来ます。
今回のお部屋は8階、間取りは2DK、専有面積は42.07㎡となっています。
では、早速行ってみましょう。
□□□□□□□□□□□□□□□□□□□□□□□□□□□□□□□□□□□□□□□
★★★【ライオンズマンション茅場町】周辺のハザードマップをCHECK!!★★★
お部屋の記事を読む前に…!周辺のハザードマップをチェックしておきませんか!
ライオンズマンション茅場町のハザードマップは★こちらから…どうぞ★
□□□□□□□□□□□□□□□□□□□□□□□□□□□□□□□□□□□□□□□
エレベーターを8階で降りて明るい外廊下を進むと…
玄関に到着です。
カメラ付きインターホンがあって、お部屋の中から訪問者を確認する事が出来ます。わざわざ玄関まで来なくて済むのがいいですよね。
ではお邪魔します。
振り返って玄関の様子です。
シューズボックスはトールタイプ。棚板を調節すれば、ブーツや長靴などでも収納可能ですよ。
まずは、正面のドアから開けてみましょう。
こちらはダイニング・キッチン。窓の無いお部屋です。
シンプルなお部屋なので、いろいろな家具を合わせる事が出来そうです。自分好みに変えていくのは楽しいですよね。
今度はキッチンを見ていきます。
調理台は壁と同じ白。目立ちませんのでお部屋を広く見せる効果もあります。
収納は吊戸棚と調理台下。引き出しタイプは出し入れがし易く、吊戸棚は出し入れがしづらいので、使用頻度などで入れる場所を工夫するといいですね。
水栓は浄水機能付きシャワー水栓です。
切替えるだけでで水道水が美味しい水に早変わり。ヘッドが伸びるのでシンクのお掃除などにも便利ですよ。
コンロは3口。グリルも付いています。
みなさんグリルってお魚イメージ強いかと思いますが、実は何でも焼けてとても便利なんですよ。お掃除が面倒なのがネックなんですけどね^^;)
お料理中は換気扇をお忘れなく!
調理台の横には冷蔵庫スペース。後ろの壁、開きそうなんですが開きませんでした。
では、次のお部屋へ…
こちらは南側の洋室。南向きの窓がある明るいお部屋です。
二つの窓はどちらも二重サッシになっていました。防音、遮熱、防犯いろいろな面で嬉しい設備です。
収納はクローゼット。幅はそこそこですが奥行きがあります。
では、次はトイレへ…
シンプルなお部屋からは、打って変わって個性的な内装ですね。重厚感があります。
温水洗浄便座付き。INAX製のシャワートイレです。
廊下に戻って、洗面室へ…
こちらには、洗面台、浴室、洗濯機スペースがまとまっています。
まずは洗面台。
収納は洗面台下と鏡右横のトレイになります。細かい物を置く場所が少ないようですが、洗面ボウルの横に広いスペースがあるのでこちらに置けば良さそうです。
水洗はハンドシャワータイプ。ボウルを流したり、寝ぐせを直したりに使えます。
次は浴室。
ブラウンの木目、鏡面仕上げのパネルを使用しています。やっぱり木目は落ち着いた雰囲気になりますよね。
追い焚き機能が付いていますので、長風呂しても大丈夫ですよ。
浴室乾燥機をただの換気扇だと思ったら大間違い。お洗濯物乾燥やヒートショック予防などにも役立つ優れものです。どんどん使っていきましょう!
では、次のお部屋へ…
北側の洋室です。
こちらの洋室はアクセントウォールも控えめな、スッキリとした印象のお部屋です。
手前に広いカウンターのある窓。外は外廊下なので、しっかり面格子が設置されていました。
クローゼットなどはありませんが、カウンターの下が物入になっています。開けてみると、奥行きは左側が浅め、右側が深めになっていました。右側にはかなり大きな物も入りそうですね。
最後は1.71㎡のバルコニーです。
都会のバルコニーって感じですね^^;)陽当りは最高です♪♪
外の眺めです。高いビルが多いですが…
隙間からは隅田川に架かる永代橋。ライトアップもしていますので、夜も綺麗ですよ(^^)お散歩ついでにいかがですか?
・
以上でライオンズマンション茅場町のご案内を終わります。
いかがでしたでしょうか??
茅場町駅から徒歩8分のマンションです。
リノベーション済みという事で室内はとてもキレイですよ (っ・ω・)っ
内見のご予約やご質問などございましたらお気軽にお問い合わせくださいませ。
ご連絡お待ちしております。
□□□□□□□□□□□□□□□□□□□□□□□□□□□□□□□□□□□□□□□
★★★【ライオンズマンション茅場町】周辺のハザードマップをCHECK!!★★★
お問い合わせ前に…!周辺のハザードマップをチェックしておきませんか!
ライオンズマンション茅場町のハザードマップは★こちらから…どうぞ★
□□□□□□□□□□□□□□□□□□□□□□□□□□□□□□□□□□□□□□□
弊社、不動産Agent 六棒株式会社では、
□リノベーションマンションはほぼ全て仲介手数料無料!
□その他一般仲介物件は仲介手数料20%~30%OFF!
にてお取り扱いしております!※弊社の「Agent Fee=仲介手数料」についてはご案内、ご面談の際に営業担当者よりご説明いたします!
なるべく沢山のお部屋をホームページに掲載したいと思っておりますが、時間的成約もございますので、残念ながらご紹介できるお部屋の一部しか掲載できておりません。
このホームページに掲載中のお部屋、その他サイト等で気になるお部屋、街を歩いていて気になったマンション等々ございましたら是非、弊社営業部までご相談ください!
~不動産Agent 六棒株式会社の特徴~
・一般仲介物件の仲介手数料は20%~30%OFFにてご案内中です!
・リノベーションマンションについてはほぼ全て仲介手数料無料です!
・住宅ローンに自信あります!
・頭金10万円より購入できます。是非ご相談下さい!
・お部屋のご見学は車で2~3件まとめて案内します!
・物件数3000件以上、新築戸建、リノベ物件も多数ご用意しております!
過去に販売していたお部屋の概要 このお部屋の販売は終了いたしました。
| 価格 | -万円 |
| 面積 | 46.05㎡ |
| 間取り | 2bedrooms(2LDK) |
| 管理費 | 月額18,600円 修繕積立金:月額13,950円 |
| 所在階 | 7階 |
| お問い合わせ・ご内見のご予約はこちらからお気軽にどうぞ | |
間取りのご紹介です。2DK、46.05㎡。
リバービューの開放感のある眺めがご覧いただけるお部屋です。
ホワイト基調の明るい玄関ホール。
左側に可動棚のシューズBOXが設置されています。
玄関を上がりすぐ右側に5.8帖のベッドルームがあります。
ドアの右側の窓際が収納スペースになっています。
吊戸棚の設置されたウォシュレット付きのトイレ。
隣がサニタリールームです。
LIXIL製の洗面台はシャンプードレッサータイプで三面鏡の裏が収納になっています。
TOTO製のバスルームは追焚き・浴室乾燥機ももちろん付いています。
廊下の突き当たりのダイニングキッチンへ!
南向きのダイニングキッチンは8.3帖。
キッチンにはライディングレールの照明が設置されていてお好きな位置に調整可能です。
対面式のキッチンは独立した位置にあります。
炊飯器の蒸気排出ユニット付きのキャビネットも設置済みです。
洗濯機置き場はキッチン横にあり、照明も付いています。
人工大理石トップのLIXIL製システムキッチン。
キッチン設備は3口ガスコンロ、グリルや浄水器一体型水栓など充実しています。
隣のお部屋をと繋げて約13.4帖の広々としたLDKとしてもお使いになれます。
南側に面した洋室は5.1帖。
こちらのお部屋も二重サッシになっています。
こちらにも収納スペースがあり、クローゼットとしても日用品の収納ペーストしてもお使いになれます。
複数路線利用可能で隅田川テラスも至近の『ライオンズマンション茅場町』はいかがでしょうか。
皆様のご内見を心よりお待ちしております!
過去に販売していたお部屋の概要 このお部屋の販売は終了いたしました。
| 価格 | -万円 |
| 面積 | 71.56㎡ |
| 間取り | 2bedrooms(2LDK) |
| 管理費 | 月額:28,950円 修繕積立金:月額21,712円 |
| 所在階 | 2階 |
| お問い合わせ・ご内見のご予約はこちらからお気軽にどうぞ | |
では間取りと概要の紹介です。
71.56㎡ 2LDK
建物は昭和54年9月築ですが、室内はスケルトンからの新規リノベーション工事を終えたばかりでとても綺麗でオシャレです☆
玄関を開けると、まるで新築の様なとても綺麗なお部屋が広がっていました。
細部にいたるまで手の込んだ内装です☆
玄関には腰高くらいまでのシューズボックスが扉6つ分あり、大容量◎
何十足と靴が入るので、気兼ねなく新しいサンダルとスニーカーが買えますよ^_^;笑
上部はカウンターになっているので、お花を飾ったり、お気に入りの置物を飾ったり、玄関ホールにを「絵になる」空間にしてみてください(^_-)-☆
シューズボックスの隣にはトールサイズの廊下収納がありました。
棚が可動式なので、背の高い物まで入れることができて便利ですね♪
棚の隣のドアは7.0帖の洋室です。窓は北側(廊下側)なので、十分な明るさがあるわけではありませんが、7.0帖と広いので、開放的なお部屋です☆
南側に大きなクローゼットがあります。扉がスライド式で左右に大きく開くことができ、お部屋の床とフラットなので、大きな物、重い物もラクラク収納できます♪
このお部屋の西側にはエアコンが付いています。ご入居当日から快適にお休みいただけますよ♪
お部屋の隣にはもう一つ廊下収納がありました。
先程の収納棚と同じサイズなので、こちらも色々とアレンジして上手に収納してください(^_-)-☆
廊下収納の正面にサニタリールームがあります。ウッディで素敵な空間です☆
洗面台は可愛いボウルタイプのシンクが特徴的。鏡の裏側が収納になっているので、スッキリお使い頂けそうです!(^^)!
洗面台の隣が洗濯機置場です。こちらには棚がありませんので。上部に棚を取り付けて収納スペースを作っても良いかもしれませんね。
トイレには壁面埋め込みの収納棚がありますので、床に物を置かずに清潔にお使い頂けそうですね(^o^)
バスルームは洗面台と同じような色調で統一感を感じます。とてもラグジュアリーな雰囲気で、ワイン風呂をやりたくなってしまいますね笑
浴室換気乾燥機が付いていますので、雨の日も風の強い日も、安心してお洗濯できます(^v^)
タイル貼りの廊下を抜けると、広々17.6帖のリビングダイニングキッチンが広がります☆
南向きの窓からとても明るい光が差し込んでいました☆
リビングダイニングキッチンを入ってすぐの所に大きな収納棚があります。
扉が大きく左右に開くので、何がどこに入っているのかとても見やすく使いやすそうです(^o^)
キッチンの入り口にも収納棚があります。こちらは扉がない棚なので、余裕があれば飾り棚としてもお使い頂けます。
キッチンはとても広くて使いやすそう☆左側にはカップボードがあるので、収納力◎です(^v^)
キッチンのワークトップが広いと、お料理がとてもはかどります!!シンクの両側にワークトップがあるのはとても便利ですよね!(^^)!
お掃除のしやすい3口コンロと、食器洗浄機があるので、お料理もお片付けもどちらもラクチンです!(^^)!
カップボード側も収納たっぷり&ワークトップに色々置けるので、アレンジ次第で使いやすさが一段と上ります♪♪
試しに収納を全部開けてみました(^_-)-☆うーん、壮観☆調理器具も、食材も、食器も全部収納できますね~(*^^)v
リビングにはもう一つとてもオシャレなシェルフがあります☆
棚の大きさがそれぞれ違うので、お気に入りの本や雑誌を入れる棚、小物を入れる棚、観葉植物を入れる棚、、、それぞれアレンジすれば、絵になるシェルフの出来上がりです(*^^)v
リビングからは6.2帖の洋室に入ることができます。
こちらも南向きの窓があるのでとても明るく開放的です☆
北側一面がクローゼットになっています。こちらの扉も大きく左右に開き、スライドさせることができるので、おおきな物もラクラク収納できますね♪
バルコニーへはリビング、洋室どちらからでも出ることができます。
奥行きはありませんが、横に長いので、お洗濯物がたくさん干せますよ☆
今は修繕工事中なので、足場とネットが張り巡らされていますが、それでも陽の光がバルコニーに降り注いでいました(*^^)v
いかがでしたでしょうか。茅場町、八丁堀、水天宮前と3駅利用可能でアクセス◎なうえ、すぐ近くを隅田川が流れていて、気持ちのいい風が抜け、眺めもgood(*^^)v
お休みの日にはお散歩をしたり、遊覧船で東京観光も良いですね♪
絵になる橋と景色に、絵になるスタイリッシュなお部屋。ステキな毎日をお過ごしください♪
皆さまからのお問い合わせ、お待ちしております。
過去に販売していたお部屋の概要 このお部屋の販売は終了いたしました。
| 価格 | -万円 |
| 面積 | 43.36㎡ |
| 間取り | 1bedroom(1LDK) |
| 管理費 | 月額:17,550円 修繕積立金:月額8,775円 |
| 所在階 | 10階 |
| お問い合わせ・ご内見のご予約はこちらからお気軽にどうぞ | |
間取りの紹介です。
43.36㎡ 1LDK
平成27年3月に内装のリフォーム工事を終えて、とても綺麗なお部屋に生まれ変わりました☆
リフォーム内容は以下の通りです。
<玄関>ミラー付玄関収納新規交換、人感センサー・ダウンライト設置
<キッチン>洗浄機内蔵シャワー水栓キッチン(LIXIL)
<浴室>ユニットバス新規交換(LIXIL)
<トイレ>ウォシュレット新規交換(LIXIL)
<洗面台>洗面化粧台(LIXIL)、防水パン新規交換
<共通>クロス貼り替え、フローリング張り替え、TVモニター付きインターホン、追い焚き機能&マルチリモコン付き給湯器、室内クリーニング等
玄関を開けると、白と黒のコントラストがとても都会的でスタイリッシュなお部屋がひろがります。
玄関左側には全身を映せる鏡付きのシューズボックスがあります。
中の棚は可動式なので、お持ちの靴に合わせて、自由にアレンジできます☆
玄関には人感センサー付きライトがあります☆玄関を開けるとパッとライトが点灯してくれるので、真っ暗なお部屋に帰る事がありません♪
廊下に上がってすぐ左には洋室があります。北側に窓がありますので、閉塞感はありません。
北側の一角にちょっとしたカウンタースペースがありました。
小さくても、こうして観葉植物を置けたり、携帯を置いておいたりできるスペースがあると、とても便利ですね♪♪
南側にはクローゼットがあります。両側に扉が開いて、ハンガーパイプがあるので、普段使いの洋服をたくさん掛けておくことができます(^v^)
洋室の隣にはサニタリールームがあります。
スペースは大きくありませんが、使い勝手が良さそうです☆
洗面台はシンクの両側がカウンターになっています。左側が水切り用のラックになっているので、
石鹸やコップなどをいつも清潔に置いておけます(*^^)v
洗濯機置場には収納用の棚がありませんので、上部に棚を取り付けて、スッキリお使いください☆
バスルームは大理石調のパネルが豪華さを演出したデザインです☆
浴室換気乾燥機が付いていますので、これからの梅雨や台風の時期には乾燥機が大活躍してくれそうです♪
サニタリールームの隣に、トイレがあります。トイレ内には棚が無いので、清潔にお使いいただく為に棚を取り付けてみてはいかがですか??
廊下の突き当りのドアを開けると、リビングダイニングキッチンが広がります☆
南向きの窓が2面あるので、室内はとても明るく開放的です(^_-)-☆
対面式のキッチンはカウンター部分が天井まで抜けていて、天井からダウンライトがキッチンを明るく照らします☆
3口コンロと広めのシンク、浄水器付水栓があるので、お料理もお掃除もとてもやりやすいキッチンです!(^^)!
引出しタイプのキッチン収納は、収納力もバッチリ☆
ダイニングをスッキリお使いいただく為にも、できれば食器もこちらに入れたいですね(*^^)v
リビングの南側に小さなバルコニーがあります。南向きなので、とても良い光が射しこんでいました。(修繕中なので、ネット越しなのが残念ですが・・・)
修繕工事が終わると、バルコニーから永代橋と隅田川が綺麗に見えますよ(*^^)v
いかがでしたでしょうか。
ステキな景色の見えるお部屋は、お部屋もステキじゃないと。全体を統一された色調でまとめていますので、スタイリッシュでオシャレなお部屋づくりをしてくださいね♪
皆さまからのお問い合わせ、お待ちしております。









































































































































































































弊社 公式HP
六棒総合研究所
掲載予定物件
価格変更と販売終了物件
ハザードマップ検索
適合証明書.jp
Facebook
Twitter
Instagram