・
□□□□□□□□□□□□□□□□□□□□□□□□□□□□□□□□□□□□□□□
いつも弊社ホームページをご覧頂き誠にありがとうございます。
ニューハイツ八丁堀はお陰様で販売を終了致しました。弊社問合せフォームにてご要望頂けましたら、当お部屋でキャンセル等が発生した場合、他のお部屋が販売になりました際にご紹介させて頂きます。
不動産Agent 六棒株式会社
TEL:03‐5413‐5336
□□□□□□□□□□□□□□□□□□□□□□□□□□□□□□□□□□□□□□□
・

日比谷線、JR京葉線「八丁堀」駅より徒歩5分。リノベーションマンション『ニューハイツ八丁堀』のご紹介です!少し歩きますが、銀座線の京橋駅、有楽町線の新富町駅も徒歩でご利用いただけます。
アクセス
日比谷線、JR京葉線「八丁堀」駅徒歩5分
東西線「茅場町」駅徒歩9分
有楽町線「新富町」駅徒歩14分
銀座線「京橋」駅徒歩15分

今回は最寄り駅、「八丁堀」駅からスタートしてみました♪

駅周辺には、お洒落なバルや中華料理店など気になる飲食店がありました。
お仕事帰りなどに是非寄ってみたいですね!

駅周辺には桜川公園、越前堀児童公園などをはじめとした公園がたくさんあります。
その中でも気になる場所が…

…え?このちょっと暗い階段の上に本当に公園が…!?
写真では伝わりにくいかもしれませんが、本当に建物の間に急に現れるこの場所…
これはもう、のぼってみるしかないですね!!
…
…
…

はい!公園がありました(*・д・)!!
池もあり、水面に映る紅葉が綺麗でした~!

ちなみに、八丁堀駅のB4出口から出てみると、すぐ目の前に隅田川が!
川沿いの眺めが素敵ですヾ(゚ ▽゚*)
今回ご紹介のニューハイツ八丁堀は、駅から徒歩4分!嬉しい駅チカです!
しかも道順もわかりやすい!!
駅からまっすぐ歩き…こちらの交番を目印に、右に曲がります。

帰り道に交番があるのって、なにかと安心ですよね~(´∀`*)ノ

交番を曲がったらもうすぐそこです!

外観はこんな感じ!白い壁が目を引きます!
こちらのマンションは、鉄骨鉄筋コンクリート造地上12階建てです。

1階には印刷屋さん!静かに暮らせそうな環境です☆


エントランスがお洒落な色合いです!
オートロックで、入ったところに管理人室もあるので、セキュリティが気になる方も安心( ´∀`)b

エントランスを抜けると、駐輪場へ出ることができる扉もあります。便利!!

こちらのエレベーターでお部屋に向かいます!

お部屋までは外廊下が続いています。
外にも関わらず、管理がいきわたり綺麗に掃除されていて、気持ちがいいです!
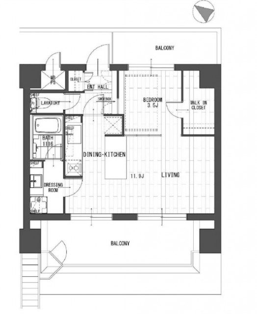
今回ご紹介するお部屋は6階、専有面積34.65㎡の1LDK。おひとり暮らしの方にお勧めのお部屋です。
間取り図はコチラ ↓ ↓ ↓
※間取り図は別タブで開きますので、確認しながらご覧いただくことができます。
では、早速行ってみましょう!
【玄関:人感センサー付き照明】
【LDK:約8.2帖・壁付けキッチン】
【LDK+洋室:仕切りを全開にすればつなげて使用可能・南西向き】
【洋室+LDK:約5.4帖の洋室内にオープンクローゼットあり】
【浴室:1116サイズ・追い焚き機能付】
・
以上でニューハイツ八丁堀のご案内を終わります。
いかがでしたでしょうか??
八丁堀駅から徒歩5分のマンションです。
リノベーション済みという事で室内はとてもキレイですよ (っ・ω・)っ
内見のご予約やご質問などございましたらお気軽にお問い合わせくださいませ。
ご連絡お待ちしております。
弊社、不動産Agent 六棒株式会社では、
□リノベーションマンションはほぼ全て仲介手数料無料!
□その他一般仲介物件は仲介手数料20%~30%OFF!
にてお取り扱いしております!※弊社の「Agent Fee=仲介手数料」についてはご案内、ご面談の際に営業担当者よりご説明いたします!
なるべく沢山のお部屋をホームページに掲載したいと思っておりますが、時間的成約もございますので、残念ながらご紹介できるお部屋の一部しか掲載できておりません。
このホームページに掲載中のお部屋、その他サイト等で気になるお部屋、街を歩いていて気になったマンション等々ございましたら是非、弊社営業部までご相談ください!
~不動産Agent 六棒株式会社の特徴~
・一般仲介物件の仲介手数料は20%~30%OFFにてご案内中です!
・リノベーションマンションについてはほぼ全て仲介手数料無料です!
・住宅ローンに自信あります!
・頭金10万円より購入できます。是非ご相談下さい!
・お部屋のご見学は車で2~3件まとめて案内します!
・物件数3000件以上、新築戸建、リノベ物件も多数ご用意しております!
過去に販売していたお部屋の概要 こちらのお部屋の販売は終了いたしました
| 価格 | -万円 |
| 面積 | 40.04㎡ |
| 間取り | 1bedrooms(1LDK) |
| 管理費 | 月額12,140円 修繕積立金:月額3,870円 組合費:月額200円 |
| 所在階 | 12階 |
| お問い合わせ・ご内見のご予約はこちらからお気軽にどうぞ | |
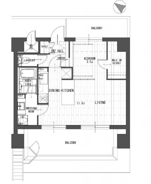
さて今回のお部屋は最上階!12階になります!
間取り図はこちら↓
クリックすると別タブで開くことも可能です。
ぜひ間取り図とお部屋比較しながら見ていただければと思います!
では、お部屋ご案内させて頂きます ∠(`・ω・´)

玄関先に、モニター付きのインターフォンが付いています。
お部屋の中から廊下の様子を確認できるので、エントランスとも併せて、防犯面も安心ですね (・ω・)b


では…おじゃましまーす!!

入って右手に大きなシューズボックスが!
シューズボックスの上も広々スペースで、センス良くいろいろ飾ってみたい!
コンセントもあるので、お洒落な照明を置いてみたり…♡
夢が膨らみます。゜+.(o´∀`o)゜+.

でも…このシューズボックス、横幅は広ーくあるけれど、奥行きが狭くない…?
大きい靴が入らないんじゃ…と思ったそこの方!
…私も思いました( ゚ω゚ )!!

中を覗いてみると…あれ!?
シューズボックス上面の棚よりまだまだ奥に広がってる…
どうなってるんだこれは…不思議だ( ー`дー´)!?
でもこれなら大きなサイズの靴も入れられる…!!

そして…シューズボックスの反対側に収納スペース!

おお!
ハンガーラックもあるので、コートなどもかけておけますねヽ(・∀・ )ノ
ハンガーラック上部には、箱などもおけそうな棚も!
お部屋にいろいろ置く必要がなく、綺麗に収納できそうですね☆


では、いざ!
お部屋に入ってみましょう!
まずはリビングからっ-=≡ヘ(*・ω・)ノ

ドアを開けると、素敵なキッチンが目に入り…気になりますがっ
とりあえずリビングまで進んで行ってみます!


リビング・ダイニングです!!!
木目調の床に、レンガ調の柱がとっても映えています!
お洒落なタイル調のカウンターキッチンは、テーブルにもなりそうですねヽ(゚▽゚*)乂(*゚▽゚)ノ

リビング奥の壁は斜めになっていてお洒落な雰囲気が香ります(☆Д☆)

リビング奥の天井の照明はレールが取り付けてあり、お好みの照明に付け替えも可能!
もちろんこのままでもとっても素敵な雰囲気です♡

カウンターの下には棚があり、こちらにすぐ使うものを置いてみたり、
小物を飾ってみたり…使い勝手が良さそう!!
さて、次は奥の洋室もみてみましょう(´∀`)


例のレンガ調の柱の奥になります♪

こちらです(´∀`*)ノ
バルコニーに繋がる窓から光が差し込み、明るいお部屋!!

あれ、この窓は…!!
こちら、ちょうど、玄関の裏側になります!
そしてこの台の部分が、シューズボックスの奥が広かったからくりですね!
なるほど!!

お部屋の壁がレンガ調ですね(´∀`*)

こちらの壁際にあるドアはなんでしょうか…?
開けてみます!!


クローゼットです!広い!!
この広さがあれば、なんでもここにしまって、すっきりしたお部屋にできそうですね!
ハンガーラックもあるので洋服もしっかり収納できそうです♬
さてさて、こちらのお部屋に明るい光を差し込んでくれているバルコニーもみてみましょう((っ・ω・)っ



じゃーん!!
バルコニーも広い!
そして、陽当りもいいので、洗濯物を外干しするのにもよさそう (○´ω`○)

では、リビングの方に戻って、最初に通過してずーっと気になっていた
キッチンを見てみましょう!


オシャレかつ使い勝手のよさそうなキッチン!!
カウンターの黒いタイルが素敵ですね♡
シンク上に棚があることもチェックポイント!
お洒落な調理器具やスパイスなどを置いて見たりして。。。”見せる収納”ができますね☆
奥の棚の奥にはコンセントもついています!

コンロは二口。
シンクとの間に作業スペースがあるところがいいですね~
お料理がはかどりそうです(*^艸^)

そして、こちらの蛇口のノズルは…伸びます!!
シンクのお掃除も楽々で、いつまでも綺麗なキッチンを保てそうです(・`ω´・ ○)

カウンターのこちら側にも収納スペースがありました( ´∀`)b

キッチンの横のドアも見てみましょ ( ゚ω^ )ゝ

こちらは、バスルームでした!
他のお部屋も含め、照明に本当にこだわりを感じられますよね~…

大きな鏡は、特に女性にとって嬉しいですよね~ヽ(・∀・ )ノ
洗面台の横には洗濯機置場があります。
こちらも新しくされていて、真っ白ぴかぴか☆彡

シンクはこんな感じ!
シンクわきが空いているのも、その時使うものを置いておきながら作業できそうでいいですね!!

実は、洗面台の右側に収納棚がございます!
洗面廻りって、なんだかんだ置いておきたいもの多かったりしますよね…
これはありがたい!!

次はお風呂です!
あら!こんなところにタオル掛けが!!

壁を一面だけ色を変えるの、増えていますね!
光沢感がある壁が高級感!
また、床は水はけがよく、乾きやすいタイルが使われています。

浴槽も広めで、しっかり身体を温められそうです!
鏡の横に棚がついているのも便利ですね!
シャンプーなどはぜひ、こちらに置いておきましょうヽ(゚▽゚*)
さぁ、ではいったん少し玄関の方に戻ります…!


最初に素通りしたこちらの、玄関から見て右手にあった扉…

…お察しの通り、トイレです。
ちなみにこちらの照明はバスルームとおそろい!
統一感がありますね。

ウォッシュレット完備!
黒い壁と無駄のないスペースで、落ち着けそうです ( ´∀`)

では、最後に!リビングから繋がるバルコニーを見てみましょう!


バルコニーまでは少し段差があるので、出る時はお足元気を付けて下さいね(*・ω・)ノ

こちらも広々ですね~ヽ(・∀・ )
奥に見えるのは、避難口ですね!
最上階のこちらのお部屋ですが、緊急時も安心!
…そう、最上階なんですここ!ということは…

おぉ!!上を見上げると、空が広い!!
これは気持ちよいですね~ヾ(*´∀`*)ノ

今度は下を見下ろしてみて…
目の前の道路は車通りも多くなく、静かにすごせそうな環境です♬
ニューハイツ八丁堀、いかがでしたでしょうか?
ご内見のご予約、ご質問などのお問合せはお電話03-5413-5336もしくはお問合せフォームからお気軽にどうぞ!














弊社 公式HP
六棒総合研究所
掲載予定物件
価格変更と販売終了物件
ハザードマップ検索
適合証明書.jp
Instagram