□□□□□□□□□□□□□□□□□□□□□□□□□□□□□□□□□□□□□□□
いつも弊社ホームページをご覧頂き誠にありがとうございます。
安田小網町マンションはお陰様で販売を終了致しました。弊社問合せフォームにてご要望頂けましたら、当お部屋でキャンセル等が発生した場合、他のお部屋が販売になりました際にご紹介させて頂きます。
不動産Agent 六棒株式会社
TEL:03‐5413‐5336
□□□□□□□□□□□□□□□□□□□□□□□□□□□□□□□□□□□□□□□
東京メトロ半蔵門線『水天宮前』駅から徒歩5分。
リノベーションマンション安田小網町マンションの紹介です。
水天宮前駅の他にも、
東京メトロ日比谷線、都営浅草線の『人形町』駅からは徒歩4分
東京メトロ東西線、日比谷線の『茅場町』駅からは徒歩5分
今日は「水天宮前」駅からスタートです。
水天宮前駅は、その名の通り水天宮の前の駅です
水天宮は、福岡県久留米市の水天宮を総本宮として、日本全国にあります
「子育て」の神として古くから信仰されています。
なので、水天宮には妊婦さんが安産祈願のお参りに来ていて、連日賑わっています。
せっかくなので、水天宮前駅近辺のオススメのお店を二つばかり。
先ずは水天宮前駅の交差点から新大橋通りをちょっとだけ茅場町方面へ。
2階にある「其ノ田水産」です。
普通の定食屋さんですが素材が美味しいのでどれも満足のお味ですよ♪
さらに水天宮から見て、交差点のはす向かいの路地を入って少し
“鳥わさ丼”が名物の「よね家」です。
新鮮な鶏肉でないとできないので、一度ご賞味ください♪(量に注意!!)
せっかくついでにもう二つ。今度は人形町近辺で。
まずは「玉ひで」です
説明のいらないくらい有名な親子丼のお店。
老舗ならではの佇まいで、御昼時には行列ができています(^v^)
もう一つは人形町の交差点からすぐにある「Junjino」というお店。
ランチに“牛タンシチュー”を頂けます♪♪
フォークがいらないくらいやわらかいタンシチューもぜひお試しください♪
さて、お気に入りのお店も紹介したところで、マンションに向かいたいと思います^_^;
水天宮前の交差点を茅場町方面に、新大橋通りを進んでいきます~(*^^)v
すると、「蛎殻町」の交差点が見えてきます。
そこに日本橋小網町郵便局がありますので、その手前の道を右へ進みます!!
ちなみに、今の交差点で曲がった道の1本左の道を進んでいくと
日本経済の中心地「東京証券取引所」があります。
毎日ここで大きなお金が動いて、日本経済を支えているんですね(*^。^*)
見えてきました中華そば屋さん!(^^)!
1階のこのラーメン屋さんが目印☆
安田小網町マンション
オフィスビル群の真ん中にドドーンと建っていました!!
鉄骨鉄筋コンクリート造地上9階建てです(/・ω・)/
エントランスには植栽がされていて、都会の喧騒を少し和らげてくれるよう
管理会社【ライフコミュニティ株式会社:通勤】
本日も清掃員の方が午後お掃除をして綺麗にしていました!
管理の良さが伺えますね(*´ω`)
さて今回のお部屋は2階になります。
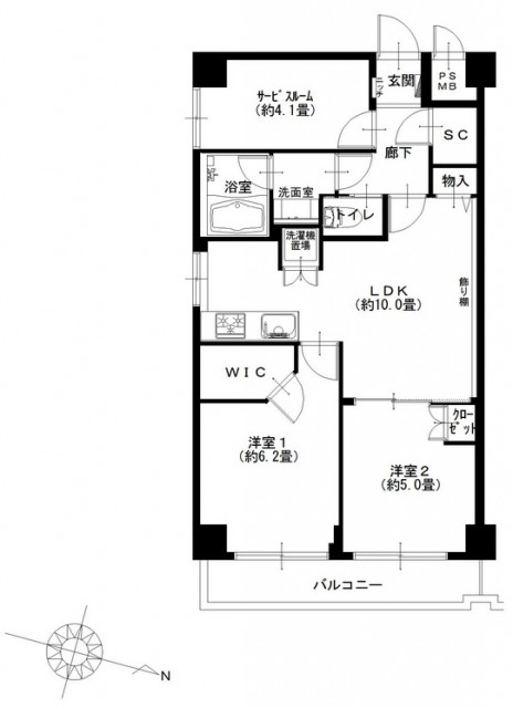
間取り図はこちら↓ (図面と現況が異なる場合は現況を優先します。)
クリックすると別タブで開くことも可能です。
間取り図とお部屋比較すると見やすいですよ
では、営業部小倉が【安田小網町マンション 2階】
お部屋一緒にご案内させて頂きます(o*。_。)oペコッ
真新しい玄関扉!
セキュリティが良さそうですね(*´ω`)
では、お部屋紹介してきましょう!!
入ってすぐ左手にはトールタイプのシューズボックス
姿見付きでお出かけ前の最終ファッションチェック✨
玄関廊下からは洋室とトイレに行けますが・・
(((((((((((っ・ω・)っ先にリビングへ
白いフローリングでお部屋が明るいですね(*´ω`)
家具が置いてあり生活のイメージがしやすいですね!(^^)!
(家具は販売価格に含まれません)
また、こちらのお部屋は事務所利用も可能です!!!
13沿線4駅利用可能なので拠点にするのにピッタリかも(*´ω`)
リビングにあるバルコニーは南東向き
ダイニングの置いてある小窓は南西向き
眺望はこちら(/・ω・)/
・・・目の前は住居?になります(*_*)
ダイニングの奥にはキッチンがあります。
独立しているのでプライバシーがありますね!
タカラスタンダードというメーカー品になります。
水栓がお洒落ですね!
浄水機能一体型のシャワーヘッドになっています。
またガスコンロは3口グリル付き、食洗機もついています◎
下の収納はもちろん、上にも吊戸棚がありました
またキッチンの後ろにも冷蔵庫や食器棚などの置けるスペースもありますね!
炊飯器や電子レンジの置き場所に困りません(/・ω・)/
独立しているキッチンには小窓がついていました。
焼き肉や揚げ物をしても匂いが気になりませんね!(^^)!
リビングへ戻って・・・
ダイニングの右手にも扉が
|ω・`)ちら
こちらもキッチンと同じメーカー”タカラスタンダード”
洗面化粧台になります。
鏡の裏と下が引き戸収納になっていました
収納がしっかりあるので洗面周りもスッキリ出来ますね(*´ω`)
背面には洗濯機置場があります。
浴室は・・・
お洒落なユニットバス!
壁がかっこいいですね(*´ω`)
浴室乾燥機や追い炊き機能も完備。
見た目だけではなく機能面も充実しています!
洗面を出て、玄関廊下へ戻ります
(((((((((((っ・ω・)っ
出て左手のこちらの扉・・
(((((((((((っ・ω・)っトイレでした
ウォシュレット一体型トイレ
メーカーは”LIXIL”丸みを帯びたデザインが個人的に好きです(*´ω`)
左手はトイレ、では右手は・・?
|ω・`)ちら
洋室でした(/・ω・)/
真っ白ですね!!
シンプルなので置く家具でガラッと変わりそうです
どんなお部屋になるか楽しみですねo(^O^*=*^O^)o ワクワク
また、このお部屋唯一の収納がこちら!!
アップ!!!!WICです。
コノ字で収納広め!
ハンガーパイプもついているので大事なお洋服も皺になりにくい(/・ω・)/
さて、安田小網町マンションお部屋いかがでしたか?
最後に南東向きむきのバルコニーご紹介させて頂きます。。
立地がいいせいか建物に囲まれています
下はお隣さんのバルコニーが見えちゃいますね(^^;)
いま、バルコニー用の目隠しの可愛いのがホームセンターとかでも
売っているのでそれを使ってもいいですね(/・ω・)/
事務所使いならこの眺望も気にならないかな??
さて、【安田小網町マンション 2階】はいかがでしたでしょうか?

六棒株式会社なら安田小網町マンション 2階が
仲介手数料無料でご案内可能!!
◆新規内装リノベーション済み
◆13路線4駅利用可能で交通環境良好
◆事務所利用可能
◆三方カドベヤ
他にも詳細が知りたい!!実際に見学をしたい!!などありましたら
仲介手数料最大無料の当社
お電話ください(^-^*)/
TEL 03-5413-5336
お気軽にお問い合わせください。
スタッフ一同お待ちしております。
弊社、不動産Agent 六棒株式会社では、
□リノベーションマンションはほぼ全て仲介手数料無料!
□その他一般仲介物件は仲介手数料20%~30%OFF!
にてお取り扱いしております!※弊社の「Agent Fee=仲介手数料」についてはご案内、ご面談の際に営業担当者よりご説明いたします!
なるべく沢山のお部屋をホームページに掲載したいと思っておりますが、時間的成約もございますので、残念ながらご紹介できるお部屋の一部しか掲載できておりません。
このホームページに掲載中のお部屋、その他サイト等で気になるお部屋、街を歩いていて気になったマンション等々ございましたら是非、弊社営業部までご相談ください!
~不動産Agent 六棒株式会社の特徴~
・一般仲介物件の仲介手数料は20%~30%OFFにてご案内中です!
・リノベーションマンションについてはほぼ全て仲介手数料無料です!
・住宅ローンに自信あります!
・頭金10万円より購入できます。是非ご相談下さい!
・お部屋のご見学は車で2~3件まとめて案内します!
・物件数3000件以上、新築戸建、リノベ物件も多数ご用意しております!
過去に販売していたお部屋の概要 このお部屋の販売は終了いたしました。
| 価格 | -万円 |
| 面積 | 57.00㎡ |
| 間取り | 2bedrooms(2LDK)+S+W |
| 管理費 | 月額:20,250円 修繕積立金:14.230円 |
| 所在階 | 4階 |
| お問い合わせ・ご内見のご予約はこちらからお気軽にどうぞ | |
ここで間取りの紹介です。
57.00㎡ 2SKDK+W 9階建ての4階部分です。
6月にリノベーション工事を終えたばかりのキレイなお部屋です☆
リノベーション内容は以下の通りです。
■給湯器交換
■システムキッチン交換
■ユニットバス交換
■洗面台交換
■トイレ交換
■全クロス張替
■全フローリング張替
■全建具交換
■CF張替
■洗濯水栓器具交換
■防水パン交換
■スイッチパネル設置
■ダウンライト設置
■照明器具設置
■エコカラット設置
■玄関人感センサー設置
■ハウスクリーニング
期待できる内容ですね~(*^。^*)
管理は自主管理、駐車場はありません。ペット飼育は不可ですごめんなさい^_^;
玄関を開けると、木目調のデザインが優しいお部屋でした☆
右側にカウンターがありますので、大切な写真やお気に入りのお花を飾ったり、ちょっとした棚を置いたりして、ご自由にアレンジしてください(^^)/
玄関すぐ左がシューズインクローゼットになっていますので、いっぱい収納してください!!
玄関の右がサービスルームです。南向きの窓があってとっても明るいので、普通のお部屋としてもお使い頂けますよ~(^v^)
サービスルームの先にトイレがあります。棚があるので、ストックを収納しておくことができますね☆目隠しにカーテンを付けたり、壁に絵や写真を飾ってお気に入りの空間を作りましょ☆
トイレの奥に洗面室があります。洗面台は新品なのでとってもキレイでした☆
バスルームには追い焚き機能と浴室乾燥機、そして使う人にやさしい手摺などが付いているので、お風呂タイムだけでなくお洗濯タイムにも大活躍しそうです(*^。^*)
リビングダイニングキッチンは10帖です。北側の壁にはエコカラットが使われているので、お部屋の空気をキレイに保ってくれますよ☆その下には飾り棚があります。
ここにもお気に入りの写真や絵や置物を置いて、お部屋を「自分色」にアレンジしていきましょ☆
廊下からリビングへの扉は“チョット”段差があるのでご用心!!
ドアの隣りには大きな収納棚があります。
また、キッチン手前には扉付の洗濯機置場があります。キッチンに洗濯機。欧米ですね~笑
キッチンはコンパクトかつ機能的なデザイン。換気用の窓の下には小さなカウンターがありますので、いといろと重宝しそうです(^v^)
リビングの先にはお部屋がふたつ。
一つ目は北側のお部屋です。5.0帖の洋室で東側に大きな窓が付いています。
クローゼットがついていて、独立したお部屋としてもお使いいただけますが、引戸を開ければリビングとしてもお使い頂けそうですね♪
こちらには広いウォークインクローゼットがついていますので、収納力は◎ですよ(*^^)v
いかがでしたか、安田小網町マンション。
人形町、水天宮といった下町の雰囲気も感じることができながら、オフィスが立ち並ぶ都会の雰囲気も持ち合わせて、絶妙なコラボ感を出しています。
皆様のご内見・お問い合わせ、お待ちしております☆

























































































弊社 公式HP
六棒総合研究所
掲載予定物件
価格変更と販売終了物件
ハザードマップ検索
適合証明書.jp
Instagram