・
□□□□□□□□□□□□□□□□□□□□□□□□□□□□□□□□□□□□□□□
いつも弊社ホームページをご覧頂き誠にありがとうございます。
マンション第二恵比須苑はお陰様で販売を終了致しました。弊社問合せフォームにてご要望頂けましたら、当お部屋でキャンセル等が発生した場合、他のお部屋が販売になりました際にご紹介させて頂きます。
不動産Agent 六棒株式会社
TEL:03‐5413‐5336
□□□□□□□□□□□□□□□□□□□□□□□□□□□□□□□□□□□□□□□
・
あのオシャレタウン代官山&恵比寿が生活圏。
『マンション第二恵比須苑』のご紹介です。
東急東横線「代官山」駅徒歩6分
JR山手線「恵比寿」駅徒歩5分
東急東横線・日比谷線「中目黒」駅徒歩9分
□□□□□□□□□□□□□□□□□□□□□□□□□□□□□□□□□□□□□□□
★★★【マンション第二恵比須苑】周辺のハザードマップをCHECK!!★★★
お部屋の記事を読む前に…!周辺のハザードマップをチェックしておきませんか!
マンション第二恵比須苑のハザードマップは★こちらから…どうぞ★
□□□□□□□□□□□□□□□□□□□□□□□□□□□□□□□□□□□□□□□
ハザードマップもご確認いただきましたので、次は街の紹介です!
代官山駅からの出発です。お隣の駅は複数路線がある「渋谷」駅。
通勤や通学の移動にも嬉しい立地ですね。
駅周辺には、ハイセンスなショップやカフェ、美容室や雑貨屋さんとおしゃれ三昧な街並みです。
駅近くにおしゃれなテラス付きのカフェがありました。今日は生憎の空模様ですが、これから暖かくなる季節、テラスでランチ気持ち良いでしょうね~コンビニだっておしゃれです~カラフルな模様入りの壁面、キュート過ぎます!こちらのコンビニお茶できるスペースまでありました~
リノベーションされたピカピカのお部屋「マンション第二恵比須苑」へ出発です!
改札出て正面口を右へ進みます。少し進みますと左手にカフェがあります。
こちらの角を左折します。
静かな街並みを進みたいと思います~
まっすぐきますと駒沢通りにあたります。こちらを左折し下っていきたいと思います。
歩いていると足が止まってしまう。。。ついつい可愛らしい雑貨店に目がいってしまいます~休日のお買い物が楽しみになりそうです。お部屋は代官山風になるんでしょうね~
「鑓ヶ崎」信号がみえてきましたら右へ横断します。横断しますと正面に細い道路がありますのでそのまま真っ直ぐ進みます。
こちらをとにかく真っ直ぐ~
大通りから細い通りに入りますと、閑静な住宅街になります。静かです~穏やかです~
公園を発見しました。広々とした遊具の先には、都会を漂わせるナカメにあるタワーマンションがみえます。 晴れた日は近所のお子さんが走り回っているんでしょうね~
公園をすぎるともうすぐ到着です。
余談ですが、ご近所にはアパレル余剰マートがあります。TVで見たことがある方もいらっしゃるかと思いますが、洋服が非常に安いお店です。足を踏み入れるのに勇気がいる外観はさておき、気になる方はご内見のついでに寄ってみてはいかがでしょうか(*’ω’*)
こちらがマンション第二恵比須苑です。
総世帯数102戸の大規模マンションは外観も風格が漂っています。
エントランスはエンガ調の階段を降りた先にあります。
道路からは見えません。
階段をどんどん降りて。。。見えてきました。
こちらがエントランス前。広々としており、家族同士がすれ違ってもぶつかることがなさそうです。正面の壁裏は集合ポストになっています。
エントランス内はとれもキレイにされており広々と開放的です。
※ちなみにこのエントランスがある階は4階になります。
奥へ進みますと管理室があります。管理は管理会社へ全部委託されています。さらに管理人さんは住込。安心した毎日が過ごせそうですね。
エレベーターでお部屋へ向かいます。
共用廊下は内廊下タイプ。玄関前で雨や風の影響を受ける心配がなく、プライバシーも保ちやすいのがいいですね。
ゴミ置場は各フロアにあります。雨の日に急いで外まで捨てにいかなきゃ!なんて心配は無用です。ご安心を!!
敷地内には駐車場、駐輪場、バイク置場もございます。空き状況は変動するのでご内見の際に営業マンに聞いてみてくださいね。駐車場横にもゴミ置場がありました。
ここで間取り図のご紹介です。
※間取り図は別タブで開きますので、確認しながらご覧頂く事が出来ます。
□□□□□□□□□□□□□□□□□□□□□□□□□□□□□□□□□□□□□□□
★★★【マンション第二恵比須苑】周辺のハザードマップをCHECK!!★★★
お部屋の記事を読む前に…!周辺のハザードマップをチェックしておきませんか!
マンション第二恵比須苑のハザードマップは★こちらから…どうぞ★
□□□□□□□□□□□□□□□□□□□□□□□□□□□□□□□□□□□□□□□
今回のお部屋は5階、間取りは1LDK、専有面積は44.84㎡。エントランスが4階になりますので、実質2階の高さになりますね。お一人暮らしの方にお勧めです。では、早速行ってみましょう!
エレベーターで5階へ上がり、内廊下を進むとお部屋に到着です。
玄関ドア横にはモニター付きインターホンが設置されて、お部屋の中から映像で訪問者を確認する事が出来ます。映像で確認してから応対するかを決められるのはいいですよね。
玄関から廊下にかけては揃いの大理石が貼られています。素材的に冷たい雰囲気になりがちですが、建具の木目や照明などで柔らかい印象になっていますね。
人感センサーは自動的にライトを点けてくれるので、暗い中スイッチを探す必要もありません。消し忘れも防げて一石二鳥!なにより、いつでも明るい玄関が迎えてくれるのが一番嬉しいですよね(*´▽`*)
シューズボックスはトールタイプが二つ。天井高まで使えて収納力抜群、可動式の棚を調節すればブーツなどでもそのまま収納可能です。傘が入る所もあるので、玄関内に傘立てなどを置かなくて済みますね。ただし、乾いてからしまいましょう!
では、お部屋の中へ…
こちらはリビング・ダイニング・キッチン。北東向きのバルコニーに面したワイドスパンの明るいお部屋です。キッチン部分とリビング部分に分かれていて、ダイニングはキッチンカウンターで代用しているようですね。
リビング部分にはTVボードが設置されています。鏡を貼った所があったり、不規則な棚組だったりがお洒落ですね。
天井には間接照明、ダウンライト、スポットライトなど様々な照明が。シンプルな色合いのお部屋に光でアクセントを付けているんですね。TVボードの横には収納棚がありました。上手く使って、散らかりがちなリビングを綺麗に保ちたいものです^^;)
キッチンカウンターは広く、お二人くらいなら普通に食事をする事が出来そうですね。では、キッチンを詳しく見ていきましょう。調理台の後ろには広いスペースがあり、冷蔵庫や家電ラックを置いても窮屈になる事はありませんよ。
調理台はフローリングに合わせたパネルを使用。一体感があって広く感じます。
調理台下はスライドキャビネットと食器洗浄乾燥機。スライドキャビネットは出し入れがしやすく、楽に収納出来るのが特徴です。たくさん入れてもが見やすいのも便利ですね。食洗機は手荒れに悩む方にはピッタリ。食後の時間をのんびり過ごせるのも嬉しいです(^^♪
コンロは3口、グリルも付いています。グリルって魚イメージ強いですが、肉でも野菜でも何にでも使える便利な調理器具なんですよ。レシピもたくさんありますので、ご興味がある方は是非調べてみて下さい。
オープンキッチンなので調理中は換気扇をお忘れなく!匂いって後から気になりますからね。少し前からスイッチオンが効果的らしいですよ。
カウンターキッチンと言えば、やっぱりこの眺めですよね(*´▽`*)
水栓は浄水機能付きシャワー水栓。切り替えひとつで気軽に美味しいお水を使えます。ヘッドが伸びるので、シンクや大きなお鍋などを洗うのも楽々(^^♪
廊下に出た所にはまたまた収納棚が!収納が多いのはほんと嬉しいですよね。こちらにはストック品や掃除機などが入りそうです。
次のお部屋へ…
こちらは北西・南西の二面採光の洋室。シンプルな内装でカーテンや家具を合わせやすそうです。
南西の窓の外は内廊下なので採光はあまり期待出来ませんが、通風で活躍してもらいましょう。北西の窓の外は抜けていて光も入って来ますし、緑が見えるのが嬉しいですね(^^)
こちらはクローゼット。ハンガーポールや棚、引き出しなどが設置されたマルチタイプです。とても大きな収納ですね!普通、部屋幅いっぱいを使う時は短辺が多いんですが、長辺を使っているので迫力が違います(笑)
次はトイレへ…
少し段差がありますので、足元にお気を付け下さい。
洗浄便座付き。TOTO製のウォシュレットです。トイレットペーパーなどのストックに便利な吊戸棚も付いていますよ。
次は洗面室へ…
洗面室には洗面台の他に、浴室、洗濯機スペースがまとまっていて、脱衣所も兼ねています。こちらも段差に注意しましょう。
清潔感のある洗面台は三面鏡付き。上部に付いている照明のおかげで、鏡を見る時に影になったりする心配もありません。
収納は三面鏡裏のミラーキャビネットと洗面台下の物入。細々した物が多くなりがちな洗面廻りには、キャビネットはとても重宝します。
水洗はハンドシャワータイプ。洗面ボウルが広めなので、寝ぐせくらいなら直せそう(笑)
洗濯機スペースには吊り扉が付いていますので、洗剤などはこちらにどうぞ。横の棚はリネン棚として使えそうですね。
追い焚き機能付きユニットバスはワンタッチでお風呂を沸かせます。そのまま保温もしてくれるのでいつでも温かいお風呂に入れますよ。
浴室換気乾燥は浴室乾燥の他に、寒い季節の浴室暖房、雨天や花粉の季節のお洗濯物乾燥など様々な使い方があります。暑い季節なら「涼風」ボタン!冷房ではありませんが、濡れた頭が涼しくていい気持ちです♬
それでは、最後はバルコニーへ出てみましょう。LDKのどちらの窓からでも出られます。
広さ8.28㎡、北東向き。きれいにデッキパネルの敷かれた幅の広いバルコニーです。手すりに物干し金具も設置されていて、お洗濯物も干せるようになっていますよ。(竿はご用意ください)方角的に午前中がお勧めです。
5階ですが外は2階からの眺めになっています。坂の多いこの辺りではよく見かけますが、反対側から見ると5階だったりするんですよね。大きな道路からは少し中に入っているのでとても静かですよ。
・
マンション第二恵比寿苑、いかがでしたでしょうか?
内見のご予約やご質問などございましたらお気軽にお問い合わせくださいませ。
ご連絡お待ちしております。
□□□□□□□□□□□□□□□□□□□□□□□□□□□□□□□□□□□□□□□
★★★【マンション第二恵比須苑】周辺のハザードマップをCHECK!!★★★
お部屋のご購入前に…!周辺のハザードマップをチェックしておきませんか!
マンション第二恵比須苑のハザードマップは★こちらから…どうぞ★
□□□□□□□□□□□□□□□□□□□□□□□□□□□□□□□□□□□□□□□
弊社、不動産Agent 六棒株式会社では、
□リノベーションマンションはほぼ全て仲介手数料無料!
□その他一般仲介物件は仲介手数料20%~30%OFF!
にてお取り扱いしております!※弊社の「Agent Fee=仲介手数料」についてはご案内、ご面談の際に営業担当者よりご説明いたします!
なるべく沢山のお部屋をホームページに掲載したいと思っておりますが、時間的成約もございますので、残念ながらご紹介できるお部屋の一部しか掲載できておりません。
このホームページに掲載中のお部屋、その他サイト等で気になるお部屋、街を歩いていて気になったマンション等々ございましたら是非、弊社営業部までご相談ください!
~不動産Agent 六棒株式会社の特徴~
・一般仲介物件の仲介手数料は20%~30%OFFにてご案内中です!
・リノベーションマンションについてはほぼ全て仲介手数料無料です!
・住宅ローンに自信あります!
・頭金10万円より購入できます。是非ご相談下さい!
・お部屋のご見学は車で2~3件まとめて案内します!
・物件数3000件以上、新築戸建、リノベ物件も多数ご用意しております!
過去に販売していたお部屋の概要 このお部屋の販売は終了いたしました。
| 価格 | -万円 |
| 面積 | 53.44㎡ |
| 間取り | 2bedrooms(2LDK) |
| 管理費 | 月額12,720円 修繕積立金:月額14,429円 |
| 所在階 | 3F |
| お問い合わせ・ご内見のご予約はこちらからお気軽にどうぞ | |
間取りは2LDK、53.44㎡。
リノベーション済みでピカピカのお部屋です。
間取りはクリックすると別タブで開くのでゼヒ写真と見比べながらご覧ください♫
□□□□□□□□□□□□□□□□□□□□□□□□□□□□□□□□□□□□□□□
★★★【マンション第二恵比須苑】周辺のハザードマップをCHECK!!★★★
お部屋の記事を読む前に…!周辺のハザードマップをチェックしておきませんか!
マンション第二恵比須苑のハザードマップは★こちらから…どうぞ★
□□□□□□□□□□□□□□□□□□□□□□□□□□□□□□□□□□□□□□□
お部屋は3階。アルコーブ(廊下の壁をわずかに後退させて作るくぼみ)があるのでプライバシーが守られやすいですね。
インターホンはTVモニター付き。
事前に来訪者の顔が確認できるので防犯面も安心安全です。
ピンポーン♪がなったらまずモニターをチェック!!しましょう。
では玄関扉をあけて中へおじゃまします。
昭和53年築ですが室内はリノベーション済み。新築同様ピカピカです。
玄関ホール横の木目調の扉はシューズBOXです。
背の高いタイプで収納力がありますね。棚の高さは調節できるのでブーツなども立てて収納できます。
シューズBOXの向かい側にも収納がありました。これだけ収納があれば玄関ホールにいつもすっきり片付いた状態を保てそうです。風水的にも玄関をきれいにしておくと運がよくなるみたいです。
玄関をあがると廊下がまっすぐのびています。
フローリングはナチュラルな色合いの木目調、建具はダークブラウン。
落ち着いた感じが心地いいですね。
廊下をまっすぐ進んで正面の扉を開けてリビングダイニングキッチンから見てきましょう。
じゃじゃん。
リビングダイニングキッチンは約9.2帖。
窓の外はバルコニー、方角は西向きです。
いろんな角度からご覧ください。
お部屋の壁面側には扉やキッチンがあるので家具はお部屋の中央に置く感じでしょうか(・ω・)生活動線を考えつつ、シュミレーションしてみてくださいね。
キッチンはフローリングに馴染むナチュラルな色合いの木目調。
窓際にあるのでお料理中の換気がしやすいのがうれしいですね。
冷蔵庫はカップボードとキッチンの間のスペースに置けるようになっています。
カップボードもあるのでキッチンは収納スペースがたっぷり!
食器棚は用意する必要なさそうです。引出はファイルスタンドなどを活用するとフライパンヤフタを立てて効率よく収納できますよ。(ネット情報)物が取り出しやすいのも◎。
コンロは3口、グリル付き、浄水器一体型シャワー水栓と設備も整っています。
シンクのお掃除をする時や大きなお鍋にお水を入れる時は水栓のホースを伸ばすとスムーズに作業ができますよ!日々のちょっとした動作が楽にできるっていいですよね。
2部屋ある洋室はリビングダイニングキッチンを介して行けるようになっています。2枚の可動扉側の洋室から見ていきましょう。
じゃん。約6.3帖の洋室です。
リビングと同じく西向き。6帖以上あるとゆとりがありますね。
壁一面使ったクローゼットもあります。
お洋服はまとめてここに仕舞っておけそう。衣替えの手間も省けるし、探し物も少なくなるはず。これはいい!
もう1部屋の洋室の扉はこちら。
こちらの洋室は約6.7帖。同じく6帖以上とゆとりがあります。
窓は共用廊下に面しています。
クローゼットとエアコンがついています。
引っ越したその日から快適に過ごせそうですね!
ちなみにこちらの洋室、廊下側からも出入りが可能なんです。
2方向から行ったり来たり・・・なんだか楽しい♪気分が上がってきました。
気分が上がってきたところで、今度はリビングダイニングを出て廊下側にある洗面室を見ていきましょう。キャッホー!レッツゴー!
廊下を出て左側は収納です。
扉がないので見せながらの収納が楽しめます。センスの見せどころです!
収納のお隣は洗面室の扉があります。
玄関から近いので帰宅後の手洗い・うがいもスムーズに済ませられます。
洗面室。ここに洗面化粧台、洗濯機置き場、トイレ、バスルームと水廻りの設備がまとまっています。お掃除もまとめてこなしやすそうです。
洗面化粧台と洗濯機置き場はお隣同士。洗面台で手洗いした衣類を軽く脱水したい時にお隣だと便利ですよね。鏡の裏や引出など収納スペースも豊富です。洗剤も洗面台の中に仕舞っておけそう。
洗面室には扉付きの棚収納もあります。
タオルやシャンプーのストックはここに仕舞っておけますよ♪
続いて1日の疲れを落とすバスルームへ。
木目調の壁パネルでナチュラルな雰囲気のバスルーム。
くつろいぎのバスタイムが満喫できそうです。
家族の帰宅時間がバラバラでも追い炊き機能があるので、いつでも温かいお湯につかれます。温かい湯船につかって、その日の疲れはその日のうちに取りましょう。
洗面室の奥にあるブラウンの扉がトイレです。
TOTOの温水洗浄便座です。
収納はないので、後から吊戸棚やラックなどを用意すると掃除道具やサニタリー用品の収納にいいかも。DIYがお好きな方はお好みで作ってみてもいいですね!
ちなみにペーパーホルダーはダブル。
両方にペーパーを設置しておけば「紙がない!」なんて事態は避けられますので、ペーパーのストックはトイレ内に置いておかなくてもよさそうです。
最後にリビングとお隣の洋室をつなぐバルコニーに出てみましょう。わくわく。
バルコニー単体の広さは不明ですが、お洗濯物を干すには十分な広さです。
方角は西向き。ちょうど12時頃でこのくらい陽射しが射し込みます。
気になる眺望です。正面は同じマンションの他の廊下に面しています。
距離があるので人目は気にせず過ごせそう。目の前の木々が茂ればまた景色も変わりそうです。
左右も同じ感じの風景です。何が見えるわけではありませんが、陽射しを遮る高い建物はありません。都会ながらも静かで快適です。
上を見上げれば太陽がキラリ、下を見れば敷地内の緑が目に入ります。
恵比寿、代官山、中目黒が生活圏と恵まれたロケーションで落ち着いた毎日が送れそうです( ´∀`)
マンション第二恵比寿苑、いかがでしたでしょうか?
内見のご予約やご質問などございましたらお気軽にお問い合わせくださいませ。
ご連絡お待ちしております。
□□□□□□□□□□□□□□□□□□□□□□□□□□□□□□□□□□□□□□□
★★★【マンション第二恵比須苑】周辺のハザードマップをCHECK!!★★★
お部屋のご購入前に…!周辺のハザードマップをチェックしておきませんか!
マンション第二恵比須苑のハザードマップは★こちらから…どうぞ★
□□□□□□□□□□□□□□□□□□□□□□□□□□□□□□□□□□□□□□□
弊社、不動産Agent 六棒株式会社では、
□リノベーションマンションはほぼ全て仲介手数料無料!
□その他一般仲介物件は仲介手数料20%~30%OFF!
にてお取り扱いしております!※弊社の「Agent Fee=仲介手数料」についてはご案内、ご面談の際に営業担当者よりご説明いたします!
なるべく沢山のお部屋をホームページに掲載したいと思っておりますが、時間的成約もございますので、残念ながらご紹介できるお部屋の一部しか掲載できておりません。
このホームページに掲載中のお部屋、その他サイト等で気になるお部屋、街を歩いていて気になったマンション等々ございましたら是非、弊社営業部までご相談ください!
~不動産Agent 六棒株式会社の特徴~
・一般仲介物件の仲介手数料は20%~30%OFFにてご案内中です!
・リノベーションマンションについてはほぼ全て仲介手数料無料です!
・住宅ローンに自信あります!
・頭金10万円より購入できます。是非ご相談下さい!
・お部屋のご見学は車で2~3件まとめて案内します!
・物件数3000件以上、新築戸建、リノベ物件も多数ご用意しております!
過去に販売していたお部屋の概要 このお部屋の販売は終了いたしました。
| 価格 | -万円 |
| 面積 | 55.78㎡ |
| 間取り | 2bedrooms(2LDK) |
| 管理費 | 月額:13,320円 修繕積立金:月額15,061円 |
| 所在階 | 4階 |
| お問い合わせ・ご内見のご予約はこちらからお気軽にどうぞ | |
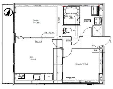
2LDK、55.78㎡。
間取りはクリックすると別タブで開くのでゼヒ写真と見比べながらご覧ください♫
お部屋は4階。といってもエントランスがある階が4階なのでエレベーターは利用しません。管理人室の前を通過してすぐのところに玄関扉があります。何かあればすぐ管理人室に行けるので安心です。また、インターホンはTVモニターがついており、来訪者の顏が確認できるので更に安心です。
では玄関扉をあけておじゃまします。
昭和53年築と築年数は経過していますが、室内はリノベーション済み。
新築同様ピカピカです♫
玄関ホール横の木目調の両開きの扉はシューズボックスです。
天井まで高さがあり収納力もバッチリ!
玄関をあがると廊下がまっすぐのびています。
建具はナチュラルな色合いの木目調、フローリングは白っぽい感じでうすーく木目が入っています。
廊下をまっすぐ進んで、1日の多くの時間を過ごすリビングダイニングキッチンから見ていきましょう♪
じゃじゃん。リビングダイニングキッチンは約13.7㎡。
南西向きのバルコニーに面した明るい空間です。
キッチンもクロスも白で明るいです!
置く家具も選ばなさそうです。シックな感じにまとめるか、ポップな感じにまとめるか・・・お好みの空間にしてみてくださいね(´∀`)
窓側からもリビングダイニングキッチンをご覧くださいませ。
キッチンは壁付けになっており、左横のスペースに冷蔵庫が置けるようになっています。窓が近いので自然換気がしやすいのもポイント高いです。
キッチンは吊戸棚もあり収納が豊富。
キッチングッズから食材のストックまでまとめて仕舞っておけそうです。
浄水器一体型シャワー水栓にグリル、コンロは3口と設備も◎!
調理スペースも広くお料理がしやすそうです。大きなお鍋にお水を入れる時は水栓のホースを伸ばすと便利ですよ。
2部屋ある洋室のうち1部屋はリビングダイニングキッチンに隣接しています。
2部屋は4枚の可動扉で仕切れるようになっています。
扉を横に動かすと。。。お隣の洋室は約11.8㎡です。
家具が置いてあるので実際の広さや生活イメージもわきやすいですね!
収納はありませんが、家具の配置に支障のでそうな梁などはありません。
こちらリビングと同じく南西向きです。
可動扉を横に寄せて2部屋をつなげるとこんな感じになります。
お隣の洋室はリビングスペースとして使うのもいいですね♫
今度はリビングダイニングキッチンを出て廊下側を見ていきましょう。
レッツゴー!!
廊下を出て右側の扉は洋室です。
廊下側の洋室は約12.5㎡。主寝室になるイメージでしょうか(*‘ω‘ *)
こちらのお部屋にはエアコンとクローゼットが2つ(!)ついています。
ひとつはお洋服、一つは日用品など分けて使うこともできますよ。
洋室の向かい側の扉はトイレです。
トイレの床はフローリング。廊下と一続きになっています。
珍しいですね!収納はないので、後から棚などを設置してもいいかもしれません。
もちのろんでウォシュレットがついております。
ペーパーホルダーがダブルだと得した気分になるのは私だけでしょうか(*‘ω‘ *)
トイレの並びに洗面室の扉があります。
玄関から近いので帰宅後の手洗い・うがいがスムーズに済ませられますよ!
これで風邪もひかない(はず。)
改めまして、洗面室です。脱衣スペースに余裕があり着替えもしやすそうです。
洗面化粧台は白で清潔感たっぷり♡ゴチャつきがちな小物類は鏡の裏に整理しながら仕舞えます。洗面ボウルで手洗いした衣類を脱水したいなんて時にお隣に洗濯機があるとホント便利ですよね。
水栓はホースを伸ばすとシャワーとしても利用可能です。
寝ぐせがひどくても、ご安心を!シャワーでザーッと濡らしてバーッと乾かしてセットすれば問題ありません。チャッチャと出かけましょう!
洗面化粧台の向かい側がバスルームです。
横にタオルや着替えを置くラックなどを置いてもいいかも(*‘ω‘ *)
スペースもありますし!
バスルームの壁パネルは木目調。ラウンド型のバスタブでのんびりとお湯に浸かれば1日の疲れもとれそうです。その日の疲れはその日のうちに・・・。
追い焚き機能もついています。
芯から温まるまで何度でも沸かしなおしてくださいませ。
最後にリビングとお隣の洋室をつなぐバルコニーに出てみましょう。
わくわく。
バルコニーは約8.28㎡。南西向き。
お洗濯物がたっぷり干せる広さです。この日は曇天でしたが晴れた日は陽ざしも期待できます☀
気になる眺望です。まずは正面。同じマンションの共用廊ビューです。
マンションの向こう側に中目黒駅前のアトラスタワーが見えますね!
左右も同じ感じです。特に何が見えるわけではありませんが、道路に面していないので外からの人目は気にせず過ごせそうです。静かなのもいいですね。
眼下は中庭っぽくなっています。新緑の季節になればまた風景も変わりそうですね。
マンション第二恵比須苑 4階、いかがでしたでしょうか?
内見のご予約やご質問などございましたらお気軽にお問い合わせくださいませ。
ご連絡お待ちしております。
過去に販売していたお部屋の概要 このお部屋の販売は終了いたしました。
| 価格 | -万円 |
| 面積 | 53.62㎡ |
| 間取り | 2bedrooms(2LDK) |
| 管理費 | 月額12,720円 修繕積立金:月額10,992円 |
| 所在階 | 4階 |
| お問い合わせ・ご内見のご予約はこちらからお気軽にどうぞ | |
間取りのご紹介です。2LDK、53.62㎡。
南向きで陽当たりも期待できます♪
7月下旬にリフォーム工事を終えたばかり!!
ピカピカのお部屋にご案内します(^v^)
玄関を開けると、とてもキレイなお部屋が出迎えてくれました☆
フローリングが光ってる☆☆
玄関にはトールサイズのシューズボックスがあります。
また人感センサー付きなので暗くなってからのお帰りでも安心ですね☆
廊下に上がって左側がサニタリールームです。
洗面台・洗濯機置場・トイレ・バスルームが一つになっているので、お洗濯やお掃除が楽ですね~(*^。^*)
洗面台と洗濯機置場はお隣同士。洗面台の大き目引出しには掃除道具や洗剤・シャンプーなどのストックを入れておくと便利ですね☆
バスルームは広々していてるので、のんびりバスタイムを楽しみたいですね☆
サニタリールームの正面には5.5帖の洋室があります。
廊下側に窓があり、明るい光が射しこんでいました。
クローゼットも大き目なので、たくさん荷物が入りそう(^v^)
廊下にも奥行きのある収納棚がありました☆
こちらには、食材のストックやホットプレート、などなど入れておけますね~(^v^)
廊下の先には10帖のリビングがあります。フローリングもクロスもホワイト基調なので、とっても明るく清潔感溢れる空間でした☆
キッチンはとっても広々!!冷蔵庫と食器棚を置いてもゆったりお料理を楽しめそう(*^。^*)
リビングを見渡せるので、ご家族と会話を楽しみながらお料理できますね☆
リビングの隣りには5.8帖の洋室があります。写真ではベッドルームとして使っていますが、 スライドドアを開けたままにすれば、大きなリビングが出来上がりますね!(^^)!
こちらも大容量のクローゼットが付いています!!
リビングと洋室から出られるバルコニーはとっても広く、南向きなのでお洗濯をするにはとっても嬉しい造りですね(^v^)
目の前には大きな木があって、とっても癒されます☆
いかがでしたか、しずかな住宅街の中で木々に囲まれた爽やかな暮らしができそうですね☆
皆さまからのご内見の御予約、お問い合わせお待ちしております!!
過去に販売していたお部屋の概要 このお部屋の販売は終了いたしました。
| 価格 | -万円 |
| 面積 | 53.62㎡ |
| 間取り | 2bedrooms(2LDK) |
| 管理費 | 月額12,720円 修繕積立金:月額10,992円 |
| 所在階 | 5階 |
| お問い合わせ・ご内見のご予約はこちらからお気軽にどうぞ | |
ここで間取りのご紹介です。(2LDK 53.62㎡)
昭和53年築 地上8階建て 総戸数/103戸
東南向き☆光たっぷりのお部屋です!
ブラウンの玄関前に到着です。
平成26年4月にリノベーション完了したばかり、ワクワクします!
玄関ホールです。ホワイトを基調とした明るい空間です。
左手にはトールサイズの玄関収納が設置されています。下部からはフットライトの光が照らされ足元もみやすく広々と感じます。
両開きのトールサイズの玄関収納をあけますと可動棚になっています。
高さのある靴もしっかり仕舞えそうです♪
お部屋に続く廊下です。優しい色のフローリングは木の温もりを感じます~
さっそく中へおじゃまします♪
廊下入って左手にある扉をあけますとサニタリールームになっています。
左にトイレ、正面には洗面化粧台があります。
TOTO製ウォシュレット付トイレです。ゆったりとした空間には、長いカウンターがあります。
おしゃれな芳香剤や癒しの緑を置いてみてはいかがでしょう~
吊戸棚も設置されていますので、トイレットペーパーはこちらにストックできますね!
ノーリツ製洗面化粧台です。とっても見やすい四面ある鏡~朝のメイクもセットもバッチリできそうです。三面鏡裏にはキャビネット!仕切りの大きさも化粧水などが置きやすい所もあり、形や大きさによって整理整頓もしやすいですね。おしゃれなスクエア型洗面ボウル両サイドにはスペースがあります、ハンドソープなど置けそうです。
続きまして~廊下右手にある引き戸を開けますと、左手に洗濯機置き場、正面に浴室があります。
洗濯機置き場です。左側に少しスペースがあります。こちらを利用して洗剤などが置けると良いですね!
TOTO製追炊き機能付き浴室です。追炊き以外にも浴室換気乾燥付きがあります!
これから雨が多くなる梅雨の時期だって心配なくお洗濯物が干せそうです。
ベージュのアクセントパネルが柔らかい雰囲気を演出~リラックスな入浴タイムがおくれそうです~シャワーは、使いやすい位置でセット可能です。
廊下正面にあるスリッドガラスの扉です。光を感じるLDKが~
扉をあけますとこちらの景色がみえました~光たっぷりのLDKを通りお部屋へもおじゃましたいと思います!
クリナップ製システムキッチンです。清潔感漂うホワイトなキッチンからはリビング・ダイニングを見渡すことができ、お料理中も家族との会話が絶えないんでしょうね♪
収納はスライド式収納になっています。奥に仕舞ってある物も取りやすく入れやすい!使い勝手の良い収納ですね。そして家事の助っ人☆食器洗浄機付きです。水道代も節約できそう!
光感じるリビングダイニングキッチン13.2帖です。家族の集まる憩いの場に~
キッチンお隣にある洋室4.5帖です。引き戸になっているので家具のレイアウトもしやすいでしょう~クローゼット付きのお部屋です。書斎やお子様のお部屋にいかがでしょう~
並びにある洋室5.5帖です。バルコニーに面している明るいお部屋です。
壁一面にある収納充実なクローゼット、お部屋を広々と活用できそうです。
南東向きバルコニーです。(7.20㎡)
心地よい風に揺られ~洗濯物もあっという間に乾いてくれそうです。
5階からの眺望です。周囲には建物がみえますが、窮屈間なくザワザワ感ない静かな環境です。清々しい青空が心地よいです。下を見下ろすとピンクのつつじと緑がみえます~
恵比寿・代官山・中目黒が生活圏内の人気エリアに恵まれたロケーション!
是非一度現地をご覧いただければと思います。
皆様のご内見、心よりお待ちしております。
過去に販売していたお部屋の概要 このお部屋の販売は終了いたしました。
| 価格 | -万円 |
| 面積 | 53.44㎡ |
| 間取り | 1bedroom(1LDK) |
| 管理費 | 月額12,720円 修繕積立金:月額10,955円 |
| 所在階 | 6階 |
| お問い合わせ・ご内見のご予約はこちらからお気軽にどうぞ | |
ここで間取りのご紹介です。(1LDK+W 53.44㎡)
昭和53年築 地上8階建て 総戸数/103戸
南西傾斜地につき日当たり眺望良好なお部屋です!
玄関です。変身したお部屋♪楽しみです。
横に広々とした使い勝手の良い玄関になりそうです。
玄関収納は右手に設置されています。傘たて等も右奥に置くことができそうなので、
靴を履いたり脱いだりする左側はいつもスッキリと出入りしやすいでしょうね。
トールサイズの玄関収納です。可動棚になっているので、ブーツなども仕舞えそうです。
ピカピカの床へおじゃまします。廊下左手から見学させて頂きます!
左手にあるサニタリールームです。少々段差があります。足元にきをつけてお上がり下さい!
左から洗濯機置き場・バスルーム、正面にトイレ、右側には洗面化粧台・収納となっています。
洗濯機置き場です。上部には収納棚がありますのでこちらに洗剤などが置けそうです。
ロールで目隠しもできますので、お客様がいらした時でも大丈夫!
追炊き機能付きバスルームです。グリーンのアクセントパネルがバスルームにピッタリです!
いつでも温かいお風呂に入れるって嬉しいですね。
正面にあるトイレです。こちらは扉がなく洗面台とトイレの間にあるブロックガラスで仕切られています。
ウォシュレット付トイレです。扉がない分サニタリールームもトイレの空間も広々と開放的です。
壁面にはトールサイズのミラーもあります。
洗面化粧台です。上下にはしっかりと収納もありますので、ゴチャゴチャしがちな洗面台もスッキリと整頓できそうです。下部はスライド式収納になっています、出し入れもしやすいでしょう。
サニタリールームにある収納です。かさばるタオルも沢山仕舞えそうです。
サニタリールームお隣にあるウォークインクローゼット3帖です。
ゴルフバックだってスーツケースだって~ゆうゆう置けちゃいます。
廊下正面にある扉へ~
リビングダイニングキッチン14.1帖です。バルコニーに面しているので日当たりバッチリの明るいお部屋です。
LDKカウンター付収納です。カウンターには電話が置けそうです!
ホワイトな清潔感漂うカウンター収納・システムキッチンです。シンク広々~大きなお鍋も力いっぱい洗えそうです!
収納とっても充実しています。カウンターには食器類も置けそうです。
調理スペースとしてもカウンターは大活躍してくれそうです。パンを捏ねたりお菓子作りをしたりと、料理の幅も広がりそうです!キッチンが充実しているとお腹も充実ですね☆
洋室6.5帖です。奥行きあるクローゼットが設置されています。日々毎日着る服はお部屋に、季節によって仕舞っておく服はウォークインクローゼットに。
共用部廊下側にある窓があります。2重サッシになっていますので防犯に音にと安心ですね。
南西向きバルコニーです。(8.28㎡)縦に伸びているので、お洗濯物を干していても反対側にはお花が置けそうです!
6階眺望です。遮るものなく抜ける景色と空、下を覗くと緑と開放的な中庭、どちらをみても穏やかな気持にさせてくれる嬉しい景色です。
平成19年6月 大規模修繕工事
平成22年12月 雑排水管更新工事
現在お部屋は、空室です。是非一度現地をご覧いただければと思います。
皆様のご内見、心よりお待ちしております。





































































































































































































































































































