・
□□□□□□□□□□□□□□□□□□□□□□□□□□□□□□□□□□□□□□□
いつも弊社ホームページをご覧頂き誠にありがとうございます。
松見坂武蔵野マンションはお陰様で販売を終了致しました。弊社問合せフォームにてご要望頂けましたら、当お部屋でキャンセル等が発生した場合、他のお部屋が販売になりました際にご紹介させて頂きます。
不動産Agent 六棒株式会社
TEL:03‐5413‐5336
□□□□□□□□□□□□□□□□□□□□□□□□□□□□□□□□□□□□□□□
・
総世帯数163戸のビックコミュニティ!
目黒区青葉台より『松見坂武蔵野マンション』のご紹介です。
アクセス
京王井の頭線「神泉」駅徒歩6分
東急田園都市線「池尻大橋」駅徒歩7分
JR山手線他「渋谷」駅徒歩15分
□□□□□□□□□□□□□□□□□□□□□□□□□□□□□□□□□□□□□□□
★★★【松見坂武蔵野マンション】周辺のハザードマップをCHECK!!★★★
お部屋の記事を読む前に…!周辺のハザードマップをチェックしておきませんか!
松見坂武蔵野マンションのハザードマップは★こちらから…どうぞ★
□□□□□□□□□□□□□□□□□□□□□□□□□□□□□□□□□□□□□□□
ハザードマップもご確認いただきましたので、次は街の紹介です!
渋谷と吉祥寺を結ぶ京王井の頭線。
その基点駅である渋谷駅の隣にある駅とは思えないほど、
お隣の神泉駅周辺は静かな住宅街です。
線路渡り北口にスーパーまいばすけっとがありました!
こちらのスーパーは価格もお手ごろで朝は7:00~夜は24:00までの営業。
しかも駅から徒歩1分。南口出発ですが北口もすぐの距離です。これは嬉しい☆
そして無添加の韓国料理のお店がありました。健康にお肌に良さそうですね。
向かう道に発見!通り道にコンビニがあると時間気にしなく助かります。
緑にはさまれもう少し進みたいと思います。
大きな建物やマンションが並ぶ山手通り、松見坂の交差点がみえたら到着です。
到着です!こちらが本日ご紹介の松見坂武蔵野マンションです!
昭和43年築、15階建て、総世帯数163戸の大規模マンション。
山手通り沿いに佇んでいます。
エントランス横には美容院が入っています。
そして朗報です。
平成30年6月に完了した大規模修繕工事でオートロックがつきました!
自動ドアを入ると管理人室があり、その先の扉がオートロックになっています。
これで日勤の管理人さんが帰った後でも安心ですね!
オートロックはチップをピッとかざすタイプ。
出入りもスムーズです+.゚(*´∀`)b゚+.゚イィ
ちなみに大規模修繕前はエントランスホールにイスが置かれていたのですが・・・
現在は宅配BOXが設置されています。
これで思いっきりネットショッピングが楽しめます。いつ届いてもOK牧場!
1階部分には駐車場とバイク置場がありました。他に駐輪場もあります。
敷地内にはカーシェアリングもあるそうですよ!
駐車場の横が集合ポストになっています。
こちら側からでも、メインエントランス側からでもどちらでも中へ入れますよ。
もちろん、ポスト側の扉もオートロックがついています。
そして駐車場の横にはマンション専用のゴミ置き場がありました。
時間を気にせずゴミを出せるのはうれしいですね。
防犯カメラも所々で目を光らせて居住者の安全を見守っています。
エレベーターは2基設置済み。朝の通勤・通学ラッシュ時間帯も
スムーズに移動ができそうです。
ここで間取り図のご紹介です。
※間取り図は別タブで開きますので、確認しながらご覧いただくことが出来ます。
□□□□□□□□□□□□□□□□□□□□□□□□□□□□□□□□□□□□□□□
★★★【松見坂武蔵野マンション】周辺のハザードマップをCHECK!!★★★
お部屋の記事を読む前に…!周辺のハザードマップをチェックしておきませんか!
松見坂武蔵野マンションのハザードマップは★こちらから…どうぞ★
□□□□□□□□□□□□□□□□□□□□□□□□□□□□□□□□□□□□□□□
今回ご紹介するお部屋は12階、専有面積56.92㎡の2LDK。おひとり暮らしの方からファミリーまで幅広くお使いいただけるお部屋です。では、早速行ってみましょう!
【玄関・廊下】
シューズボックスは高低それぞれ一つづつ。低い方のカウンターにはいろいろ並べて玄関を飾れますし、コインやキーを置いておくのにも重宝します。
【LDK】
こちらは約15帖のリビング・ダイニング・キッチン。南東向きバルコニーに向かってキッチン、ダイニング、リビングと並んだオーソドックスなタイプのお部屋です。広さもあるので家具のレイアウトはしやすそうですね。
【LDK】
キッチンそばにはリビング収納。日用品や食料品のストックから、リビングに散らかるものまで何でも入れておける便利な収納です。
隣にはデスクが造り付けられたちょっとしたDENスペースになっています。在宅ワークや勉強、趣味のスペースなど幅広く活用可能ですよ。
【キッチン】
キッチンはリビングダイニングとの一体感が人気のカウンタータイプ。コンロ前に壁があるものもありますが、こちらは全面開いたフルオープンタイプなので開放感も抜群ですよ。洗い物は食器洗浄乾燥機にお任せして食後はのんびり過ごしましょう♬
【浴室2】
こちらは約5.6帖の洋室2。LDKと同じバルコニーに面したお部屋です。収納には使い勝手のよいフルオープンになるクローゼットが付いています。
【洋室1】
廊下に戻って・・・こちらは約5.1帖の洋室1。廊下に面しているため出入りにLDKを通る必要のない独立性の高いお部屋です。洋室2とはほぼ同じ広さですがこちらの方が正方形に近いので、大きめのベッドを置くならこちらがお勧めです。
【トイレ】
トイレは洗浄機能一体型。掃除道具やトイレットペーパーのストックなどの収納に便利な吊り戸棚も付いています。
【洗面室】
洗面室には洗面化粧台の他に浴室とリネン庫がまとまっていて脱衣室も兼ねています。洗面化粧台は身だしなみを整えるのに便利な三面鏡付き。裏がキャビネットになっているので、洗面周りに散らかりがちな細々したものもスッキリと片付けることが出来ますよ。ちなみに洗濯機スペースは廊下にあります。
【浴室】
マンションでは珍しい窓付きの浴室。自然の光の中お風呂へ入るのって温泉みたいでテンション上がりませんか?たまには休みの朝にお風呂に浸かるのも良いかもしれませんね♬ 追い焚き機能や浴室換気乾燥機などの便利機能も完備。お天気を気にせずにお洗濯出来るのは助かります。
【眺望】
最後にバルコニーからの眺めをご紹介。遠くに大きなビルが並んでいますが手前にはそれほど高い建物もなく、THE都会って感じのいい眺めですね。
・
以上で松見坂武蔵野マンションのご案内を終わります。
いかがでしたでしょうか??
神泉駅から徒歩6分のマンションです。
リノベーション済みという事で室内はとてもキレイですよ (っ・ω・)っ
内見のご予約やご質問などございましたらお気軽にお問い合わせくださいませ。
ご連絡お待ちしております。
□□□□□□□□□□□□□□□□□□□□□□□□□□□□□□□□□□□□□□□
★★★【松見坂武蔵野マンション】周辺のハザードマップをCHECK!!★★★
お部屋のご購入前に…!周辺のハザードマップをチェックしておきませんか!
松見坂武蔵野マンションのハザードマップは★こちらから…どうぞ★
□□□□□□□□□□□□□□□□□□□□□□□□□□□□□□□□□□□□□□□
弊社、不動産Agent 六棒株式会社では、一般仲介物件は仲介手数料20%~30%OFFにてお取り扱いしております!
なるべく沢山のお部屋をホームページに掲載したいと思っておりますが、時間的成約もございますので、残念ながらご紹介できるお部屋の一部しか掲載できておりません。
このホームページに掲載中のお部屋、その他サイト等で気になるお部屋、街を歩いていて気になったマンション等々ございましたら是非、弊社営業部までご相談ください!
~不動産Agent 六棒株式会社の特徴~
・一般仲介物件の仲介手数料は20%~30%OFFにてご案内中です!
・住宅ローンに自信あります!
・頭金10万円より購入できます。是非ご相談下さい!
・お部屋のご見学は車で2~3件まとめて案内します!
・物件数3000件以上、新築戸建、リノベ物件も多数ご用意しております!
過去に販売していたお部屋の概要 こちらのお部屋の販売は終了いたしました
| 価格 | -万円 |
| 面積 | 52.04㎡ |
| 間取り | 2bedroom(2LDK) |
| 管理費 | 月額5,150円 修繕積立金:月額16,900円 |
| 所在階 | 5階 |
| お問い合わせ・ご内見のご予約はこちらからお気軽にどうぞ | |
ここで間取り図のご紹介です。
※間取り図は別タブで開きますので、確認しながらご覧いただくことができます。
□□□□□□□□□□□□□□□□□□□□□□□□□□□□□□□□□□□□□□□
★★★【松見坂武蔵野マンション】周辺のハザードマップをCHECK!!★★★
お部屋の記事を読む前に…!周辺のハザードマップをチェックしておきませんか!
松見坂武蔵野マンションのハザードマップは★こちらから…どうぞ★
□□□□□□□□□□□□□□□□□□□□□□□□□□□□□□□□□□□□□□□
今回ご紹介するお部屋は5階、専有面積52.04㎡の2LDK。南東・南西角部屋で全居室がバルコニーに面しているお部屋です。お一人暮らしやDINKSの方にオススメ!
では、早速行ってみましょう!
玄関から真っ直ぐ伸びた廊下は、少し濃いめのフローリングや建具を使った落ち着いた雰囲気。入って正面のニッチカウンターにはいろいろ飾ってお客様をお出迎えしましょう。
廊下左奥のドアはトイレ。INAX製の洗浄機能やトイレットペーパーなどの収納に便利な吊戸棚が付いています。
左手前のドアは洗面室。洗面化粧台の他に洗濯機スペースと浴室があって脱衣室も兼ねています。洗面化粧台は身だしなみを整えるのに役立つ三面鏡付。鏡の間の照明のおかげで影になることもありません。裏はキャビネットになっているので細々としたものもスッキリ収納可能ですよ。
浴室はマンションでは珍しい窓付き!外は共用廊下なので開けて入浴はお勧めしませんが換気には役立ちそうですね。浴室換気乾燥機や追い焚き機能などの便利機能も完備しています。
廊下右側の引き戸は約5帖の洋室1。
出入りにLDKを通る必要のないプライベート感高めのお部屋でメインベッドルームによさそうです。南西向きバルコニーに面した窓があって陽当たりも良好ですよ。収納はウォークインクローゼット!!!
こちらは約4帖の洋室2。
LDKと南西向きバルコニーとに面したお部屋です。約4帖とやや小さめですが、扉には全て引き戸を使いスペースを最大限使えるよう工夫されています。
こちらは約12帖のリビング・ダイニング・キッチン。
南東向きバルコニーに面した窓と南西向き窓の二面採光!明るいのはもちろん風通しもよさそうです。内装がシンプルなので合わせる家具も幅広くチョイスできそうですね。
キッチンはL字型のカウンタータイプ。
お部屋への油跳ねを心配する必要がなかったり、作業スペースを広くとれたり、動線が良かったり・・・開放感と使い勝手のバランスのとれたキッチンです。一番嬉しいのは食器洗浄乾燥機が付いていること!!!誰でも、お腹いっぱいで幸せな時に食器洗いなんかしたくないですよね。食後はみんな揃ってまったりしちゃいましょう!
・
以上で松見坂武蔵野マンションのご案内を終わります。
いかがでしたでしょうか??
神泉駅から徒歩6分のマンションです。
リノベーション済みという事で室内はとてもキレイですよ (っ・ω・)っ
内見のご予約やご質問などございましたらお気軽にお問い合わせくださいませ。
ご連絡お待ちしております。
□□□□□□□□□□□□□□□□□□□□□□□□□□□□□□□□□□□□□□□
★★★【松見坂武蔵野マンション】周辺のハザードマップをCHECK!!★★★
お部屋のご購入前に…!周辺のハザードマップをチェックしておきませんか!
松見坂武蔵野マンションのハザードマップは★こちらから…どうぞ★
□□□□□□□□□□□□□□□□□□□□□□□□□□□□□□□□□□□□□□□
弊社、不動産Agent 六棒株式会社では、一般仲介物件は仲介手数料20%~30%OFF!
にてお取り扱いしております!
なるべく沢山のお部屋をホームページに掲載したいと思っておりますが、時間的成約もございますので、残念ながらご紹介できるお部屋の一部しか掲載できておりません。
このホームページに掲載中のお部屋、その他サイト等で気になるお部屋、街を歩いていて気になったマンション等々ございましたら是非、弊社営業部までご相談ください!
~不動産Agent 六棒株式会社の特徴~
・一般仲介物件の仲介手数料は20%~30%OFFにてご案内中です!
・住宅ローンに自信あります!
・頭金10万円より購入できます。是非ご相談下さい!
・お部屋のご見学は車で2~3件まとめて案内します!
・物件数3000件以上、新築戸建、リノベ物件も多数ご用意しております!
過去に販売していたお部屋の概要 こちらのお部屋の販売は終了いたしました
| 価格 | -万円 |
| 面積 | 39.53㎡ |
| 間取り | 1bedroom(1LDK) |
| 管理費 | 月額3,910円 修繕積立金:月額12,800円 特別修繕積立金:月額1,800円 |
| 所在階 | 10階 |
| お問い合わせ・ご内見のご予約はこちらからお気軽にどうぞ | |
ここで間取り図のご紹介です。
※間取り図は別タブで開きますので、確認しながらご覧いただく事が出来ます。
□□□□□□□□□□□□□□□□□□□□□□□□□□□□□□□□□□□□□□□
★★★【松見坂武蔵野マンション】周辺のハザードマップをCHECK!!★★★
お部屋の記事を読む前に…!周辺のハザードマップをチェックしておきませんか!
松見坂武蔵野マンションのハザードマップは★こちらから…どうぞ★
□□□□□□□□□□□□□□□□□□□□□□□□□□□□□□□□□□□□□□□
お部屋は10階、専有面積39.53㎡の1LDK。おひとり暮らしやDINKSの方にお勧めのお部屋です。

廊下は木目パネルが貼られたとても落ち着いた雰囲気。居室に続くドアにすりガラスを使うことによって、お部屋の光が廊下に入るようになっています。シューズボックスが玄関ではなく廊下中程にあるんですね・・・多少面倒ですが、せっかく収納力のあるトールタイプなので靴はまめに片付けましょう。

入ってすぐ右側には洋室があります。
入口には引き戸を使用。デッドスペースを作らないのでお部屋のスぺースを無駄なく使えますよ。クローゼット付きで収納家具も要りません!

次は洗面室へ…
洗面室には洗面化粧台の他に、洗濯機スペース、収納、トイレ、浴室がまとまっていて脱衣所も兼ねています。洗面化粧台は三面鏡付き。収納量も多くゴチャゴチャしがちな洗面周りもスッキリと片付けられそうですね。

トイレはTOTO製の温水洗浄機能付き。トイレットペーパーをストックしておくのに便利な吊戸棚も付いています。

柔らかな色合いの浴室は寛ぎのバスタイムにピッタリ♪ 頭が空っぽになる所だけに雰囲気って大事ですよね。追い炊き機能はワンタッチでお風呂を沸かしてくれたり、冷めれば自動で温め直してくれたり。うっかり寝落ちしてしまっても風邪ひいたりはなさそうです。(風邪以前に危ないのでしないようお気を付けください)浴室換気乾燥機も付いているので、天気を気にせずお洗濯出来ますよ!


こちらはリビング・ダイニング・キッチン。
南東向きバルコニーに面した陽当たりの良いお部屋です。廊下と同じく木目パネルがアクセントとして貼られ、品の良い高級感を感じます。今は陽射しが明るいので目立ちませんが、夜になれば間接照明が優しくお部屋を照らしてくれます。雰囲気も全然違うんでしょうね。

キッチン背後には広いカウンターを設置。ある時は調理の作業スペースに、またある時はダイニングテーブルにと、フレキシブルな使い方の出来るスペースになっています。キッチン側には可動棚が付いて収納としても使用可能!

キッチンは壁付けながら、カウンターを設置することによってカウンターキッチンのような印象。建具などとコーディネイトされた木目パネルを使用し、お部屋に溶け込んだキッチンです。もちろんデザインだけでなく、食器洗浄乾燥機や浄水器一体型水栓など日々のお料理をアシストしてくれる器具も充実していますよ♬
・
以上で松見坂武蔵野マンションのご案内を終わります。
いかがでしたでしょうか??
神泉駅から徒歩6分のマンションです。
リノベーション済みという事で室内はとてもキレイですよ (っ・ω・)っ
内見のご予約やご質問などございましたらお気軽にお問い合わせくださいませ。
ご連絡お待ちしております。
□□□□□□□□□□□□□□□□□□□□□□□□□□□□□□□□□□□□□□□
★★★【松見坂武蔵野マンション】周辺のハザードマップをCHECK!!★★★
お部屋のご購入前に…!周辺のハザードマップをチェックしておきませんか!
松見坂武蔵野マンションのハザードマップは★こちらから…どうぞ★
□□□□□□□□□□□□□□□□□□□□□□□□□□□□□□□□□□□□□□□
弊社、不動産Agent 六棒株式会社では、
□リノベーションマンションはほぼ全て仲介手数料無料!
□その他一般仲介物件は仲介手数料20%~30%OFF!
にてお取り扱いしております!※弊社の「Agent Fee=仲介手数料」についてはご案内、ご面談の際に営業担当者よりご説明いたします!
なるべく沢山のお部屋をホームページに掲載したいと思っておりますが、時間的成約もございますので、残念ながらご紹介できるお部屋の一部しか掲載できておりません。
このホームページに掲載中のお部屋、その他サイト等で気になるお部屋、街を歩いていて気になったマンション等々ございましたら是非、弊社営業部までご相談ください!
~不動産Agent 六棒株式会社の特徴~
・一般仲介物件の仲介手数料は20%~30%OFFにてご案内中です!
・リノベーションマンションについてはほぼ全て仲介手数料無料です!
・住宅ローンに自信あります!
・頭金10万円より購入できます。是非ご相談下さい!
・お部屋のご見学は車で2~3件まとめて案内します!
・物件数3000件以上、新築戸建、リノベ物件も多数ご用意しております!
過去に販売していたお部屋の概要 こちらのお部屋の販売は終了いたしました
| 価格 | -万円 |
| 面積 | 39.53㎡ |
| 間取り | 1bedroom(1LDK) |
| 管理費 | 月額3,910円 修繕積立金:月額12,800円 特別修繕積立金:月額1,800円 |
| 所在階 | 2階 |
| お問い合わせ・ご内見のご予約はこちらからお気軽にどうぞ | |
ここで間取り図のご紹介です。
※間取り図は別タブで開きますので、確認しながらご覧頂くことが出来ます。

□□□□□□□□□□□□□□□□□□□□□□□□□□□□□□□□□□□□□□□
★★★【松見坂武蔵野マンション】周辺のハザードマップをCHECK!!★★★
お部屋の記事を読む前に…!周辺のハザードマップをチェックしておきませんか!
松見坂武蔵野マンションのハザードマップは★こちらから…どうぞ★
□□□□□□□□□□□□□□□□□□□□□□□□□□□□□□□□□□□□□□□
今回のお部屋は2階、間取りは1LDK、専有面積は39.53㎡。おひとり暮らしやDINKSの方にお勧めのお部屋です。間取り図で、バルコニーに家具が置かれているのが気になりますね。早速行ってみましょう!

玄関から続く廊下は木目を生かした明るい調子のフローリング。全体的に柔らかい色合いで上品な雰囲気になっています。アクセントパネルに付けられた間接照明もいい感じですね。廊下にはトールタイプのシューズボックス、玄関照明は人感センサー付き。手探りでスイッチを探したりしなくて済みますよ。

こちらは入ってすぐの洋室。
廊下に面した独立性の高いお部屋です。入口にデッドスペースを作らない引き戸を使用していたり、クローゼットが付いていたりとお部屋を最大限有効に使う工夫がされています。

洗面室には洗面化粧台、洗濯機スペース、トイレ、浴室がまとまっていて脱衣所も兼ねています。洗面化粧台台は身だしなみのチェックに便利な三面鏡付。洗面台自体に照明が付いているので影になることもありませんよ。

トイレはINAX製のシャワートイレ一体型。吊戸棚も付いているので、トイレットペーパーなどのストックなどにはこちらへどうぞ。廊下、居室、洗面室、トイレとテイストに統一感がありますね。

浴室もお馴染みの色合い。一日の終わりにホッとするにはピッタリの空間です♬
新規交換のユニットバスには、追い焚き機能や浴室換気乾燥機も完備。天気の具合を気にせずお洗濯が出来るのは有難いですよね。洗濯物を干してのお出かけ中に、雨が降ってきた時の絶望感ったら・・・(^-^;

こちらはリビング・ダイニング・キッチン。
南東向きバルコニーに面したお部屋です。ナチュラルカラーでコーディネイトされた室内はとても落ち着いた雰囲気。ふかされた天井によってダイニングキッチン部分がゾーニングされ、収まり良い空間になっています。間接照明、ダウンライト、スポットライトなど多種のライトを使用し、照明にもこだわりを感じますね。

リビング部分の扉はクローゼット。奥行があって収納力は抜群ですよ。
キッチンカウンターを兼ねたダイニングテーブルが造り付けになっています。

キッチンは壁付けタイプですが、カウンターを設置することによってカウンターキッチンのような使い方が出来るようになっています。収納はスライドキャビネットと吊戸棚。さらにカウンター下がカップボードになっているので、収納で困ることはなさそうですね。食器洗浄乾燥機や浄水一体型水栓など便利機能も充実していますよ。

最後にバルコニーのご紹介。
2人掛けのソファー が楽に置けちゃう広さ!!思った以上に奥行がありました!!これはもう「ベランピング」始めるしかありませんね(*^^*)ただし、屋根が半分しかありませんのでこのままだと雨が降ったらソファーがビチョビチョ・・・もうひと工夫が必要です!
・
以上で松見坂武蔵野マンションのご案内を終わります。
いかがでしたでしょうか??
神泉駅から徒歩6分のマンションです。
リノベーション済みという事で室内はとてもキレイですよ (っ・ω・)っ
内見のご予約やご質問などございましたらお気軽にお問い合わせくださいませ。
ご連絡お待ちしております。
□□□□□□□□□□□□□□□□□□□□□□□□□□□□□□□□□□□□□□□
★★★【松見坂武蔵野マンション】周辺のハザードマップをCHECK!!★★★
お部屋のご購入前に…!周辺のハザードマップをチェックしておきませんか!
松見坂武蔵野マンションのハザードマップは★こちらから…どうぞ★
□□□□□□□□□□□□□□□□□□□□□□□□□□□□□□□□□□□□□□□
弊社、不動産Agent 六棒株式会社では、
□リノベーションマンションはほぼ全て仲介手数料無料!
□その他一般仲介物件は仲介手数料20%~30%OFF!
にてお取り扱いしております!※弊社の「Agent Fee=仲介手数料」についてはご案内、ご面談の際に営業担当者よりご説明いたします!
なるべく沢山のお部屋をホームページに掲載したいと思っておりますが、時間的成約もございますので、残念ながらご紹介できるお部屋の一部しか掲載できておりません。
このホームページに掲載中のお部屋、その他サイト等で気になるお部屋、街を歩いていて気になったマンション等々ございましたら是非、弊社営業部までご相談ください!
~不動産Agent 六棒株式会社の特徴~
・一般仲介物件の仲介手数料は20%~30%OFFにてご案内中です!
・リノベーションマンションについてはほぼ全て仲介手数料無料です!
・住宅ローンに自信あります!
・頭金10万円より購入できます。是非ご相談下さい!
・お部屋のご見学は車で2~3件まとめて案内します!
・物件数3000件以上、新築戸建、リノベ物件も多数ご用意しております!
.
過去に販売していたお部屋の概要 このお部屋の販売は終了いたしました。
| 価格 | -万円 |
| 面積 | 39.53㎡ |
| 間取り | 2bedroom(2DK) |
| 管理費 | 月額3,910円 修繕積立金:月額12,800円 特別修繕積立金:月額3,300円 |
| 所在階 | 12階 |
| お問い合わせ・ご内見のご予約はこちらからお気軽にどうぞ | |
ここで間取り図のご紹介です。
※間取り図は別タブで開きますので、確認しながらご覧頂くことが出来ます。
・・・・・・・Before
・・・・・・・・・・・・・・・・・・↓
・・・・・・After
□□□□□□□□□□□□□□□□□□□□□□□□□□□□□□□□□□□□□□□
★★★【松見坂武蔵野マンション】周辺のハザードマップをCHECK!!★★★
お部屋の記事を読む前に…!周辺のハザードマップをチェックしておきませんか!
松見坂武蔵野マンションのハザードマップは★こちらから…どうぞ★
□□□□□□□□□□□□□□□□□□□□□□□□□□□□□□□□□□□□□□□
今回ご紹介するお部屋は12階、間取りは2DK、専有面積は39.53㎡。
お待たせしました!!リノベーションが終了しましたので今回はビフォーアフターでご紹介していきます。では早速行ってみましょう!
エレベーターで12階へ。広いエレベーターホールを通って外廊下へ進みます。外を眺めながら歩いていくとお部屋に到着です。
玄関ドア横にはテレビモニター付きインターホンが設置されていて、お部屋の中から訪問者の映像を確認する事が出来ます。応対するかを見てから決められるのはいいですね。
Before
ドアを開けるとこんな感じ。正直このまま住むのは難しそうですね。リフォームを前提にご覧頂ければと思います。シューズボックスを付けてとか、廊下をもう少し短くしてとか・・・いつも完成したお部屋をご紹介してるので、意外と楽しいものですね(^^)
After
こんな感じになりました。やっぱり新品はいいですね♬ 木目を生かした明るめのフローリングに白のクロスでナチュラルな仕上がりになっています。間取り図を見る限りでは、レイアウトなどはそれ程変わってないようですね。
シューズボックスはトールタイプ。スペースをとらない立て掛け式です。
Before
玄関入ってすぐ右側には和室があります。畳、久しぶりに見ました^^;)広さは約4.5帖。北西向きの窓と大きな収納が付いています。
After
今回写真は撮れませんでしたが綺麗な洋室になっていましたよ。お部屋の広さはクローゼットが少し小さくなった分、少し広くなって約5.2帖。
Before
廊下突き当りには約4.5帖のダイニングキッチン。その向こうに見えるのが洋室です。南東向きのバルコニーに面した窓からは、明るい光が入って来ていますね。大きな窓を生かして二部屋をつなげた1LDKなんて良さそうです。
After
こちらは約5.4帖のダイニングキッチン。1LDKにはならなかったんですね。ただし…
仕切りの扉は引込式になっていて、開ければ…
洋室とダイニングキッチンをひとつのお部屋として使うことも出来ます。ダイニングキッチンには窓が無いので日中は開けておくのがオススメ。状況に応じて違う使い方が出来るのは嬉しいですよね。
Before
After
時代の流れを感じますね。では、キッチンを詳しく見ていきましょう。
壁付けタイプのキッチンは省スペースで、残ったお部屋のスペースを広く使うことが出来ます。キッチン内が目立つので、出来れば綺麗にしておきたいですね。調理台のダークブラウンのパネルはお部屋のアクセントにもなっていますよ。
収納は調理台下のスライドキャビネットと吊戸棚。引き出しタイプは出し入れがしやすく、ぎっしり詰めても何が入っているかが確認しやすいのが特徴です。
コンロは2口、グリルも付いています。グリルはお魚焼きグリルとか呼ばれていますが、何でも調理可能な万能調理器具なんですよ。もっと活用していきましょう!
調理中は換気扇をお忘れなく!少し早めにスイッチを入れると効果的らしいですよ。TV情報ですが^^;)水栓は浄水機能付きなので、気軽に美味しいお水を使えます。
調理台横には冷蔵庫スペースも用意されています。サイズにはご注意くださいね。
Before
こちらが洋室、約6帖とまずまずの広さです。部屋幅いっぱいの大きな窓は魅力的ですね。個人的には是非リビングにしたいところです(^^)
After
こちらは約4.5帖の洋室。ご家族構成によってはリビングに出来るかもしれませんね。部屋幅いっぱいの大きな窓は健在です♬
Before
収納も奥行き、幅共に十分な広さの押入れサイズ。ウォークインクローゼットやシステム収納なんかも設置出来そうです。
After
押入れは大きなクローゼットに変身していました。間口が広くてとても使いやすそうです。奥行きもあるのでキャリーバッグやスーツケースなどの大きな物も収納可能ですよ。
Before
こちらは洗面室。洗面室としては十分な広さですが、洗濯機を置く余裕はなさそうです。別の所に置くとなると・・・う~ん難しい^^;)一からレイアウトするのって大変なんですね。プロの方とじっくり相談しながら進めましょう!
After
どういうマジックか、洗面室には洗濯機スペースがしっかりと収まっていました!!さすがプロですね(‘◇’)ゞ 洗濯機スペースには棚も付いているので、洗剤などはこちらへどうぞ。
Before
浴室もユニットバスの入る大きさはあるとは思いますが、このままだとあまり大きな浴槽は入らなそうです。
After
カラフルだった洗面室も白を基調とした清潔感のある印象に。ミラーキャビネットやスライドキャビネットなど収納も充実していて、洗面廻りの細々した物もすっきり収まりますよ。
After
昭和の香りのするタイル貼りの浴室も、木目のアクセントパネルを使った落ち着いた雰囲気に。
追い焚き機能付きで「自動」ボタン一つでお風呂を沸かす事が出来ます。そのまま保温もしてくれるので、いつでも温かいお風呂に入れますよ。
浴槽も思ってたより大きくてビックリ!ここにも魔法が?
Before
トイレは広さ十分、余裕がありますね。
After
トイレも洗浄便座付きに生まれ変わりました。INAX製のシャワートイレです。吊戸棚などはありませんが、ダブルホルダーなので緊急時にも安心です(笑)
Before
では、最後はバルコニーのご紹介。
広さは4.88㎡、南東向き。奥行きがあって数字より広く感じるバルコニーです。こちらのマンションは平成26年にサッシ・パイプ管、平成31年には外壁を綺麗にしているので、バルコニーなどの共用部分は綺麗です。お部屋の中が綺麗になれば新品同様ですね♬
After
バルコニーは変わらないと思っていましたが、給湯器が新しくなっていました。それと、今日はお天気が良く陽当りがいいところもご覧いただけて何よりです。
物干し金具も最新型ですし、サッシのガラスも防音性、遮熱性に優れた合わせガラスを使用しています。
バルコニーからの眺めも最高!都会らしい中にも開放感のある眺望が広がっています。
・
以上で松見坂武蔵野マンションのご案内を終わります。
いかがでしたでしょうか??
神泉駅から徒歩6分のマンションです。
内見のご予約やご質問などございましたらお気軽にお問い合わせくださいませ。
ご連絡お待ちしております。
□□□□□□□□□□□□□□□□□□□□□□□□□□□□□□□□□□□□□□□
★★★【松見坂武蔵野マンション】周辺のハザードマップをCHECK!!★★★
お部屋のご購入前に…!周辺のハザードマップをチェックしておきませんか!
松見坂武蔵野マンションのハザードマップは★こちらから…どうぞ★
□□□□□□□□□□□□□□□□□□□□□□□□□□□□□□□□□□□□□□□
弊社、不動産Agent 六棒株式会社では、
□リノベーションマンションはほぼ全て仲介手数料無料!
□その他一般仲介物件は仲介手数料20%~30%OFF!
にてお取り扱いしております!※弊社の「Agent Fee=仲介手数料」についてはご案内、ご面談の際に営業担当者よりご説明いたします!
なるべく沢山のお部屋をホームページに掲載したいと思っておりますが、時間的成約もございますので、残念ながらご紹介できるお部屋の一部しか掲載できておりません。
このホームページに掲載中のお部屋、その他サイト等で気になるお部屋、街を歩いていて気になったマンション等々ございましたら是非、弊社営業部までご相談ください!
~不動産Agent 六棒株式会社の特徴~
・センチュリー21加盟店です!
・一般仲介物件の仲介手数料は20%~30%OFFにてご案内中です!
・リノベーションマンションについてはほぼ全て仲介手数料無料です!
・住宅ローンに自信あります!
・頭金10万円より購入できます。是非ご相談下さい!
・お部屋のご見学は車で2~3件まとめて案内します!
・物件数3000件以上、新築戸建、リノベ物件も多数ご用意しております!
過去に販売していたお部屋の概要 このお部屋の販売は終了いたしました。
| 価格 | -万円 |
| 面積 | 39.53㎡ |
| 間取り | 1bedroom(1LDK) |
| 管理費 | 月額3,910円 修繕積立金:月額12,800円 特別修繕積立金:月額3,300円 |
| 所在階 | 7階 |
| お問い合わせ・ご内見のご予約はこちらからお気軽にどうぞ | |
ここで間取り図のご紹介です。
※間取り図は別タブで開きますので、確認しながらご覧いただく事が出来ます。
□□□□□□□□□□□□□□□□□□□□□□□□□□□□□□□□□□□□□□□
★★★【松見坂武蔵野マンション】周辺のハザードマップをCHECK!!★★★
お部屋の記事を読む前に…!周辺のハザードマップをチェックしておきませんか!
松見坂武蔵野マンションのハザードマップは★こちらから…どうぞ★
□□□□□□□□□□□□□□□□□□□□□□□□□□□□□□□□□□□□□□□
今回のお部屋は7階、間取りは2LDK、専有面積は39.53㎡。お二人、若しくはお一人暮らしの方にお勧めです。
では、早速行ってみましょう!
エレベーターで7階へ上がり、外廊下を進むと玄関に到着です。
玄関ドア横にはテレビモニター付きインターホンが設置されていて、お部屋の中から映像で訪問者を確認する事が出来ます。息を潜めてドアスコープから覗くのが、苦手な方も多いのではないでしょうか^^;)
玄関にはシューズボックスがありません。縦に長く幅があまりないので大きな物は置けませんが、何かしら必要かと思います。お一人暮らしなら出しっぱなしもアリかもしれませんね。ホールなどは無く直接お部屋になっています。
こちらは約7帖のダイニング・キッチン。濃いめのフローリングに黒の調理台、シャープでスタイリッシュな雰囲気のお部屋です。男性のひとり暮らしって感じがしますね。窓はありませんが、奥のお部屋からは明るい光が入って来ています。行ってみましょう!
洋室?と思ったんですが、1LDKとありますので、リビングとして使うイメージかと思います。約8帖という事で広さは十分! 南東向きのバルコニーに面した、外光が気持ちいいお部屋です。
引き戸も付いていますので、必要に応じて閉めて使う事も出来ますよ。
収納も付いています。間取り図にはクローゼットとありますが、現状ハンガーポールが付いていませんので物入ですね。高さがあって収納力抜群、広く開くのでとても使いやすそうです。
ダイニング・キッチンに戻って、次はキッチンを見てみましょう。
調理台は黒いスチール製。お部屋の雰囲気に合った、シンプルで無駄のないデザインです。トップはステンレスでお掃除も楽々ですよ。
収納は引き出しタイプ。ぎっしり詰めても出し入れしやすい収納です。作業スペースもしっかりとられていてお料理の効率も上がりそうですね。あまり綺麗で使うのがもったいないような気もしてしまいます(笑)
吊戸棚の扉は跳ね上げ式。水栓にしてもいちいちカッコイイですね(^^)
コンロは二つ、IHです。この調理台だったらIH一択ですよね。シンプルなフォルムにピッタリです。お料理中は換気扇をお忘れなく!
調理台の隣にはなんと洗濯機スペース!普通だと冷蔵庫がある所ですよね^^;)海外ではキッチンに洗濯機は珍しくないらしいですが、日本ではまだまだ。最近はスタイリッシュなデザインの洗濯機もありますので、ぜひデザインに拘って探してみて下さい。冷蔵庫スペースはその隣にありましたのでご安心を。
次は洗面室へ…
扉などは無く、直接洗面台へ行けます。
ユニットとかではなく造り付けの洗面台。統一感のあるデザインです。
トイレは洗浄便座付き。スペースも十分ですよ。黒が使われてないからかお部屋に比べて優しい感じ。落ち着けそうでいいですね(^^)
追い焚き機能付きユニットバスは「ふろ自動」ボタン一つでお風呂を沸かす事が出来ます。更に追い焚き機能で保温もしてくれるので、いつでも温かいお風呂に入れますよ。
こちらは約5帖の洋室。玄関横のお部屋です。ナチュラルな印象でベッドルームにぴったりですね。
北西向きの窓の外は外廊下。しっかり面格子が設置されていましたよ。北向きって暗いイメージがあるかもしれませんが、直射日光が入らないだけで、一日を通して安定した明るさをもたらしてくれるんですよ。収納はリビングと同じ物が付いていました。
それでは、最後はバルコニーのご紹介。
奥のリビングから出られます。三枚の窓の内一番右はFIX窓なので開きません。平成26年にサッシの交換もしているので、とても綺麗ですよ。
広さ4.88㎡、東南向きのバルコニー。奥行きが広いので実際の数字より広々と感じますね。手すりや物干し金具もサッシ同様綺麗になっています。
バルコニーからの様子。抜群の眺めというわけではありませんが、広い空も見えますし、まずまずの眺めだと思います。山手通りは反対側なので車の音もそれ程気にはなりませんでしたよ。
・
以上で松見坂武蔵野マンションのご案内を終わります。
いかがでしたでしょうか??
神泉駅から徒歩6分のマンションです。
リノベーション済みという事で室内はとてもキレイですよ (っ・ω・)っ
内見のご予約やご質問などございましたらお気軽にお問い合わせくださいませ。
ご連絡お待ちしております。
□□□□□□□□□□□□□□□□□□□□□□□□□□□□□□□□□□□□□□□
★★★【松見坂武蔵野マンション】周辺のハザードマップをCHECK!!★★★
お部屋のご購入前に…!周辺のハザードマップをチェックしておきませんか!
松見坂武蔵野マンションのハザードマップは★こちらから…どうぞ★
□□□□□□□□□□□□□□□□□□□□□□□□□□□□□□□□□□□□□□□
弊社、不動産Agent 六棒株式会社では、
□リノベーションマンションはほぼ全て仲介手数料無料!
□その他一般仲介物件は仲介手数料20%~30%OFF!
にてお取り扱いしております!※弊社の「Agent Fee=仲介手数料」についてはご案内、ご面談の際に営業担当者よりご説明いたします!
なるべく沢山のお部屋をホームページに掲載したいと思っておりますが、時間的成約もございますので、残念ながらご紹介できるお部屋の一部しか掲載できておりません。
このホームページに掲載中のお部屋、その他サイト等で気になるお部屋、街を歩いていて気になったマンション等々ございましたら是非、弊社営業部までご相談ください!
~不動産Agent 六棒株式会社の特徴~
・一般仲介物件の仲介手数料は20%~30%OFFにてご案内中です!
・リノベーションマンションについてはほぼ全て仲介手数料無料です!
・住宅ローンに自信あります!
・頭金10万円より購入できます。是非ご相談下さい!
・お部屋のご見学は車で2~3件まとめて案内します!
・物件数3000件以上、新築戸建、リノベ物件も多数ご用意しております!
過去に販売していたお部屋の概要 こちらのお部屋の販売は終了いたしました
| 価格 | -万円 |
| 面積 | 39.53㎡ |
| 間取り | 1bedroom(1LDK) |
| 管理費 | 月額3,910円 修繕積立金:月額12,800円 特別修繕積立金:月額3,300円 |
| 所在階 | 14F |
| お問い合わせ・ご内見のご予約はこちらからお気軽にどうぞ | |
ここで間取り図のご紹介です。
※間取り図は別タブで開きますので、確認しながらご覧いただく事が出来ます。
□□□□□□□□□□□□□□□□□□□□□□□□□□□□□□□□□□□□□□□
★★★【松見坂武蔵野マンション】周辺のハザードマップをCHECK!!★★★
お部屋の記事を読む前に…!周辺のハザードマップをチェックしておきませんか!
松見坂武蔵野マンションのハザードマップは★こちらから…どうぞ★
□□□□□□□□□□□□□□□□□□□□□□□□□□□□□□□□□□□□□□□
今回のお部屋は1LDK、39.53㎡、14階。
高層階の14階部分。南東バルコニー付き
天然木使用のフローリングのこだわりリノベーション物件です。
見どころ盛沢山ですね♬
では、早速行ってみましょう!
エレベーターで14階まで上がり、外廊下を進みます。
外にはこんな見事な眺めが広がっています。お天気がいい朝などにはテンションも上がりそうですね♪♪
玄関ドア横にはテレビモニター付きインターホンが設置されていて、お部屋の中から訪問者を確認する事が出来ます。「ハイ」と返事をする前にチェックすれば、しつこいセールスを撃退する労力も必要ありませんね。
それではお邪魔します…
中はブラウンのフローリングや建具で落ち着いた感じ。完成直後という事でとても綺麗ですね。
人感センサーは照明器具に組み込まれたタイプ。中に入っただけで自動的にライトを点けてくれますので、暗い中手探りでスイッチを探したりしなくても大丈夫ですよ。
シューズボックスはトールタイプ。天井までで収納力抜群です。
では、まずは正面のドアから…
こちらは約10.6帖のリビング・ダイニング・キッチン。バルコニーに面した大きな窓があり明るいお部屋になっています。フローリング表面には天然木を使用している為、同じ色柄がありません。また、歳月の経過によって渋みを増していい味が出てきます。
お部屋を見渡せるカウンターキッチンですが、こちら側からは目立たない様になっています。お料理する側からするとありがたいですね(笑)
ではキッチンを詳しく見ていきましょう。
調理台下は全て収納に使われています。引き出しタイプの収納は奥まで使い易くていいですよね。水栓は浄水機能付きシャワー水栓。気軽に美味しいお水を使用出来ます。
コンロ前は油跳ね防止の為、しっかりとカバーされています。
コンロは3口。片面焼きグリルも付いていて調理器具も充実。
調理中は換気扇をお忘れなく!キッチン奥には冷蔵庫スペースが用意されています。サイズにはご注意下さい。
その後ろには収納棚と洗濯機スペース。洗面室にある事が多いですが、最近増えてきた家事動線重視のポジションです。
では、いちど廊下に戻ってトイレへ…
シンプルな白一色。個人的には好みです(笑)
温水洗浄便座付き。TOTO製のウォシュレットです。
次は洗面室へ…
まずは三面鏡付きの洗面台。鏡の間にライトが付いていて影が出来づらくなっています。
収納は洗面台下と三面鏡裏のキャビネット。キャビネットは細かい物が多くなりがちな洗面周りにはピッタリですね。
水洗はハンドシャワータイプ。洗面ボウルを流したりに便利です。
次は浴室へ…
ブラウンのアクセントパネル使用の落ち着いた雰囲気の浴室です。
追い焚き機能はスイッチ一つでお風呂を沸かしてくれたり、お湯を設定温度に保ってくれたりします。いつでも温かいお風呂に入れますし、長風呂派も安心ですね。
ゆったり浸かれる1216サイズの浴槽。
浴室乾燥機能は浴室換気の他にも、お洗濯物乾燥やヒートショック予防など様々な役に立ってくれますよ。せっかくなのでフル活用したいですよね。
次のお部屋へ…
余談ですが、玄関のライトが自動的に消えていました^^;)消し忘れもなくていいですね。
こちらは約4.2帖の洋室。引き戸使用でデッドスペースも出来ませんので、お部屋のスペースを全部無駄なく使えます。大きめのベッドも余裕で置けそうですよ。
収納はクローゼット。窓の外は外廊下ですのでガラスは網入りの分厚いくもりガラス、外側には面格子も設置されていました。
それでは最後にバルコニーのご紹介…
LDKの窓から出られます。
広さは4.88㎡、奥行きがあって数字より広々と感じるバルコニーです。南東向きという事で、お洗濯物を干すなら午前中を中心にお昼過ぎまでがオススメ!
バルコニーからはご覧の通りの開放的な眺望が望めます。
手すり壁も下の方までガラスになっていますので、お部屋の中からでもこの眺めを楽しむ事が出来ますよ♬
・
以上で松見坂武蔵野マンションのご案内を終わります。
いかがでしたでしょうか??
神泉駅から徒歩6分のマンションです。
リノベーション済みという事で室内はとてもキレイですよ (っ・ω・)っ
内見のご予約やご質問などございましたらお気軽にお問い合わせくださいませ。
ご連絡お待ちしております。
弊社、不動産Agent 六棒株式会社では、
□リノベーションマンションはほぼ全て仲介手数料無料!
□その他一般仲介物件は仲介手数料20%~30%OFF!
にてお取り扱いしております!※弊社の「Agent Fee=仲介手数料」についてはご案内、ご面談の際に営業担当者よりご説明いたします!
なるべく沢山のお部屋をホームページに掲載したいと思っておりますが、時間的成約もございますので、残念ながらご紹介できるお部屋の一部しか掲載できておりません。
このホームページに掲載中のお部屋、その他サイト等で気になるお部屋、街を歩いていて気になったマンション等々ございましたら是非、弊社営業部までご相談ください!
~不動産Agent 六棒株式会社の特徴~
・一般仲介物件の仲介手数料は20%~30%OFFにてご案内中です!
・リノベーションマンションについてはほぼ全て仲介手数料無料です!
・住宅ローンに自信あります!
・頭金10万円より購入できます。是非ご相談下さい!
・お部屋のご見学は車で2~3件まとめて案内します!
・物件数3000件以上、新築戸建、リノベ物件も多数ご用意しております!
過去に販売していたお部屋の概要 このお部屋の販売は終了いたしました。
| 価格 | -万円 |
| 面積 | 39.53㎡ |
| 間取り | 1bedrooms(1LDK) |
| 管理費 | 月額3,490円 修繕積立金:月額12,800円
特別修繕積立金:月額3,200円 |
| 所在階 | 3階 |
| お問い合わせ・ご内見のご予約はこちらからお気軽にどうぞ | |
ここで間取り図をご紹介しておきます。
間取りは1LDK 広さは39.53㎡ となってます。
エレベーターで3階に上がると、目の前がお部屋となります。
□□□□□□□□□□□□□□□□□□□□□□□□□□□□□□□□□□□□□□□
★★★【松見坂武蔵野マンション】周辺のハザードマップをCHECK!!★★★
お部屋の記事を読む前に…!周辺のハザードマップをチェックしておきませんか!
松見坂武蔵野マンションのハザードマップは★こちらから…どうぞ★
□□□□□□□□□□□□□□□□□□□□□□□□□□□□□□□□□□□□□□□
カメラ付きインターフォンが付いてます。
来訪者の際はドアを開ける前に、モニターでしっかりと確認しましょう!
ドアを開けると、廊下真っ直ぐにのびています。
明るいフローリングに、濃い目の建具がアクセントになってますね。
中に入って…
玄関の中はこんな感じ…
入って右側に、シューズボックスがあります。
平置きではなく、ラックに立て掛けるタイプになりますね。
なんだか、お店の展示みたいです(^^)
では、廊下突き当りのドアからお部屋のなかへ…
リビングです。
クーラーやシーリングライトが初めから付いてます。
時期によってはクーラーの取付に何週間も待たなければならなかったりしますから、これは助かりますね(^^♪
反対側にはキッチンがあります。
オープンキッチンなので、お部屋が広く使えますね。
では、キッチンを見ていきましょう。
コンロは3口、グリルが付いてます。
3口あると、お料理も効率的に出来ますね。
グリルもお魚だけでなく、野菜やお肉などいろいろ焼いてみてください。
収納は上部とシンク、コンロの下に付いてます。
我が家では、コンロ脇の小さな引き出しが地味に役立ってます(笑)
あこがれの食洗機も完備されています。
いちど使ったらやめられないとか・・・うらやましいです^^;
水栓は浄水機能付きのハンドシャワータイプですので、背の高い鍋を洗ったりシンクを流したりに便利です。
オープンキッチンですから、お料理の時には換気扇をお忘れなく!
それでは、廊下にもどって…
リビングを出てすぐ左のドアが、洗面室になります。
収納が、鏡の裏と洗面台の下にあります。
洗面まわりはこまごました物が多いので、鏡の裏の収納が大活躍です。
歯ブラシスタンドやタオル掛けなど、痒い所に手が届く感じがイイですね(^^♪
水栓はハンドシャワータイプです。
朝のシャンプーはこちらでどうぞ。
洗面台の横には洗濯機スペースがあります。
上部には棚があるので、洗剤などが置けますね。
浴室になります。
お部屋と同じように、こちらも壁の一面が濃い色でアクセントをつけています。
(鏡面仕上げなので白い壁が映ってしまい暗く見えなかったらすみません)
追い焚き機能がついてますので、いつでも温かいお風呂に入れますよ♫
浴室乾燥機は、浴室のカビ予防や雨の日の洗濯物乾燥、寒い日のヒートショック予防などいろいろ役立ちます。どんどん使っていきましょう!
物干し竿もついています。
では、つぎへ…
洗面室のとなりは、トイレになります。
ウォシュレットを完備してます。
正確には、INAXさんなのでシャワートイレですね。
ウォシュレットはTOTOさんの商品名だそうです。
バンドエイドとかセロテープとか、一般的になっているけど商品名って結構ありますよね(;^ω^)
トイレ上部には収納があります。
トイレットペーパーだけは他の部屋にストックしておくわけにはいかないですからね(笑)
では次のお部屋へ…
玄関入ってすぐ右の引戸が、洋室になります。
窓の外は内廊下なので少し暗めですかね。
寝室ならよく眠れそうです( ˘ω˘)スヤァ
最後に、バルコニーに出てみましょう。
前が駐車場になってますので、前の建物の圧迫感はまるでありません。
ちょうど正面に小さな空き地があって、そこの緑にちょっと癒されました(笑)
ずっと、なくならないで欲しいものです(^^)
松見坂武蔵野マンション、いかがでしたでしょうか?
内見のご予約やご質問などございましたらお氣軽にお問い合わせくださいませ♪
□□□□□□□□□□□□□□□□□□□□□□□□□□□□□□□□□□□□□□□
★★★【松見坂武蔵野マンション】周辺のハザードマップをCHECK!!★★★
お部屋のご購入前に…!周辺のハザードマップをチェックしておきませんか!
松見坂武蔵野マンションのハザードマップは★こちらから…どうぞ★
□□□□□□□□□□□□□□□□□□□□□□□□□□□□□□□□□□□□□□□
弊社、不動産Agent 六棒株式会社では、
□リノベーションマンションはほぼ全て仲介手数料無料!
□その他一般仲介物件は仲介手数料20%~30%OFF!
にてお取り扱いしております!※弊社の「Agent Fee=仲介手数料」についてはご案内、ご面談の際に営業担当者よりご説明いたします!
なるべく沢山のお部屋をホームページに掲載したいと思っておりますが、時間的成約もございますので、残念ながらご紹介できるお部屋の一部しか掲載できておりません。
このホームページに掲載中のお部屋、その他サイト等で気になるお部屋、街を歩いていて気になったマンション等々ございましたら是非、弊社営業部までご相談ください!
~不動産Agent 六棒株式会社の特徴~
・センチュリー21加盟店です!
・一般仲介物件の仲介手数料は20%~30%OFFにてご案内中です!
・リノベーションマンションについてはほぼ全て仲介手数料無料です!
・住宅ローンに自信あります!
・頭金10万円より購入できます。是非ご相談下さい!
・お部屋のご見学は車で2~3件まとめて案内します!
・物件数3000件以上、新築戸建、リノベ物件も多数ご用意しております!
過去に販売していたお部屋の概要 このお部屋の販売は終了いたしました。
| 価格 | -万円 |
| 面積 | 52.04㎡ |
| 間取り | 2bedroom(2LDK) |
| 管理費 | 月額5,150円 修繕積立金:月額16,900円 特別修繕積立金:月額4,600円 |
| 所在階 | 9階 |
| お問い合わせ・ご内見のご予約はこちらからお気軽にどうぞ | |
早速ですが、間取り図をご紹介します。
※間取り図は別タブで開きますので、確認しながらご覧いただく事が出来ます。
今回のお部屋は9階、間取りは2LDK、専有面積は52.04㎡となっています。
南西の角部屋です。9階という事もあって陽当りは期待出来そうですね♪♪
では、早速行ってみましょう。
エレベーターを9階で降りて、眺めの良い外廊下を進むと…
玄関に到着です。
カメラ付きインターホンが設置されていて、お部屋のモニターで訪問者を確認する事が出来ますよ。
それではお邪魔します。
玄関ドアを開けると、白を基調とした廊下が真っ直ぐに伸びていました。ダークブラウンの建具がアクセントになって、落ち着いた雰囲気になっています。
振り返って玄関内の様子です。
人感センサーは玄関に入るだけで自動的に照明を点けてくれます。荷物がいっぱいの時などに重宝しますよ。なにより、いつでも明るい玄関が迎えてくれるのは嬉しいですよね(^^)
ダブルロックで守りもバッチリです。
シューズボックスはトールタイプと、真ん中がカウンターになった上下に分かれたタイプが一つづつ。棚板の高さは変えられるので、ブーツや長靴などでも収納可能です。
では先に進みます。
まずは正面のドアから開けてみましょう。
こちらが約11帖のリビング・ダイニング・キッチンとなります。
バルコニーに面した大きな窓から陽射しが燦々と射し込んでいて、とても明るいお部屋ですね。廊下と同じように、明るい色使いのフローリングやクロスに濃い目の建具がアクセントを加えています。
11月の14時頃の様子です。
小さい方の窓は開ける事のできないFIX窓でした。南東向きなので時間によってはこちらから陽射しが入る事もありそうです。
では、キッチンを詳しく見ていきましょう。
L字型のカウンターキッチンですね。
調理台パネルの質感がマットなのが、個人的にはgoodです。
調理台の下はほぼ収納になっています。コーナーの部分は、広く開くような扉になっていましたよ。
コンロは3口です。操作パネルを見て少しビックリしたんですが、いつの間にガスコンロってこんなにいろいろな事が出来るようになったんですか^^;)温度調節やタイマーらしき表示もありましたし…ま~中華好きの私としては高温炒めが一番ささりましたけどね(笑)
グリル使用時には換気扇をお忘れなく。
食洗器も付いていますので、洗い物はお任せして食後はのんびりしましょうね(^^)
水栓は浄水機能付きシャワー水栓です。
切り替えだけで水道水が美味しいお水に早変わり。ヘッドが伸びるのでシンクのお掃除などにも便利ですよ。
L字型の調理台は作業スペースが広くとれて、動線が短くてすむのがいい所です。
広めのキッチンカウンターで、慌ただしい朝食などはここが定位置になっちゃいそうです^^;)調理台の横には、冷蔵庫や食器棚、家電ラックなどのスペースが確保されていました。
では、となりのお部屋へ行ってみましょう。
LDKの奥のお部屋です。
こちらが約5.6帖の洋室となります。
このお部屋も窓が二面にありますね。風通しが良さそうなお部屋です。
小さい方の窓の外です。
収納としては、間口が広くて使いやすそうなクローゼットが付いていました。
では、バルコニーに出てみましょう。
奥行きがある広々としたバルコニーですね。
お洗濯物も気持ち良く干せそうです。南東向きなので午前中がお勧めですよ。
正面の眺望。開放感があって最高ですね♬
では、いちど廊下に戻って…
出てすぐのドアを開けてみます。
トイレとなります。
もちろんシャワートイレも完備していますよ。今の時代、無いと困りますよね。INAXさんいつもお世話になっています(^^)
では次へ…
となりのドアです。
洗面室となります。
収納は洗面台の下と鏡の後ろにありました。大きい物から細かい物まで上手く収まりそうですね。
水洗はハンドシャワータイプです。洗面ボウルが大きいので、寝ぐせ直しくらいなら出来ますよ。
洗面台の横には洗濯機スペースがありました。
次は、浴室を見てみます。
追い焚き機能が付いていますので、いつでも温かいお風呂に入れます。お風呂って自分のタイミングで入りたいですよね(^^)
マンションでは珍しい浴室の窓は換気などに大活躍です。
浴室乾燥機能は浴室の換気だけでなく、雨天のお洗濯物乾燥やヒートショック予防など様々な働きをしてくれます。どんどん使っていきましょう。
では、次のお部屋へ…
廊下の引き戸を開けてみます。
こちらが約5.3帖の洋室となります。
このお部屋からもバルコニーへ出る事が出来ますよ。
収納の扉を開けると…
ウォークインクローゼットになっていました。
左側は収納棚になっていて、右側はL字型のハンガーポールが設置されています。
収納棚の棚は高さ調整可能です。
クローゼットの扉は白木の風合いを生かした感じになっていて、とても手触りが良いですよ(^^)
それでは、最後に南西側のバルコニーへ出てみましょう。
二部屋にまたがる幅の広いバルコニーです。
こちらが南側の眺めです。
都会らしい景色が広がっていますね。
西側です。
こちらは見晴らしが良く、素晴らしい眺望ですね。広い空を独り占めって感じです♬
・
以上で松見坂武蔵野マンションのご案内を終わります。
いかがでしたでしょうか??
神泉駅から徒歩6分のマンションです。
リノベーション済みという事で室内はとてもキレイですよ (っ・ω・)っ
内見のご予約やご質問などございましたらお気軽にお問い合わせくださいませ。
ご連絡お待ちしております。
弊社、不動産Agent 六棒株式会社では、
□リノベーションマンションはほぼ全て仲介手数料無料!
□その他一般仲介物件は仲介手数料20%~30%OFF!
にてお取り扱いしております!※弊社の「Agent Fee=仲介手数料」についてはご案内、ご面談の際に営業担当者よりご説明いたします!
なるべく沢山のお部屋をホームページに掲載したいと思っておりますが、時間的成約もございますので、残念ながらご紹介できるお部屋の一部しか掲載できておりません。
このホームページに掲載中のお部屋、その他サイト等で気になるお部屋、街を歩いていて気になったマンション等々ございましたら是非、弊社営業部までご相談ください!
~不動産Agent 六棒株式会社の特徴~
・センチュリー21加盟店です!
・一般仲介物件の仲介手数料は20%~30%OFFにてご案内中です!
・リノベーションマンションについてはほぼ全て仲介手数料無料です!
・住宅ローンに自信あります!
・頭金10万円より購入できます。是非ご相談下さい!
・お部屋のご見学は車で2~3件まとめて案内します!
・物件数3000件以上、新築戸建、リノベ物件も多数ご用意しております!
過去に販売していたお部屋の概要 このお部屋の販売は終了いたしました。
| 価格 | -万円 |
| 面積 | 39.53㎡ |
| 間取り | 1bedroom(1LDK) |
| 管理費 | 月額3,910円 修繕積立金:月額12,800円 特別修繕積立金:月額3,300円 |
| 所在階 | 5階 |
| お問い合わせ・ご内見のご予約はこちらからお気軽にどうぞ | |
それでは、お部屋に向かいましょう。
お部屋に向かっている途中で、間取り図のご紹介です。
※クリックすると別画面で表示されますので、間取り図を確認しながら見る事が出来ます。
こちらの物件は、1LDK、39.53㎡。
ご覧頂いた通り一風変わった間取りになっているお部屋です。間取り図からは分かりづらいですがロフトも付いていますよ。土間スペース??普通のお部屋では物足りない人にオススメの物件ですね。
5階でエレベーターを降りて、外廊下を進みます。
外廊下からの風景です。開けていて気持ちいい眺めですね。
お部屋に着きました。
カメラ付きインターホンが設置されています。玄関を開ける前に来訪者を確認出来るので安心ですね。
それでは、中に入ってみましょう。

玄関を開けると、広~い玄関ではなく(笑)『土間スペース』が広がっています。
最初からとても変わった間取りにワクワクしますね♪♪

奥には、大きいラックが設置されています。
机と椅子があり事務所のような感じですね。実際フリーでお仕事をされている方の作業場とか、趣味のお部屋にピッタリだと思いますよ。プライベート空間とハッキリ分かれていてgoodです。ただし、法人の事務所使用はNGの場合がありますのでご確認下さい。
タイルもとてもお洒落ですね。
それでは、先に進んでみましょう。
廊下をあがるとすぐ右に収納スペースがあります。間取り図には『物入れ』と書いてありますが、シューズボックスとして使ってもいいですね。
廊下を進むと、約8.3帖のリビング・ダイニング・キッチンが…
リビング・ダイニング部分からはフローリングになっています。
いや~オシャレですね。テンション上がります♬
奥の階段がロフトに続いています。ロフトに上がる階段といえばハシゴに近い物が多いですが、これはちゃんと階段ですね。

ロフトの下には、低いソファなどが良さそうですね。天井が低いのが逆に落ち着きますよ(^^)

座ってみるとこんな感じ…


階段を上がってロフトを見てみましょう。
意外と広いですね。
ロフトを入れるとLDKで約11.7帖になります。
下を覗くと結構高いですね^^;)
座ると壁に頭が当たる高さなので、寝室にするか荷物を置くか…寝相の悪い方はお気を付け下さい。
キッチン近くにはカウンタースタイルのダイニングテーブルがあります。
では、キッチンを見てみましょう。
調理台の手前が冷蔵庫スペースです。
キッチンの収納は、シンク・コンロの下と吊戸棚があります。
調理台の後にはカップボードが設置されています。
食器や電化製品を置いたりと、いろいろ活躍しそうですね。
コンロは3口。グリルも付いています。
3つもあればコンロ待ちの心配もありません。
では、キッチンを後にしていちど廊下に戻ります。
こちらが洗面室、トイレとなります。
白一色で清潔感がありますね。
鏡の両サイドにポケットがるので、歯ブラシなどの洗面用具はこちらに置く事が出来そうです。
洗面台の水栓は、伸びるタイプ。洗面ボウルを流したりに便利ですよ。
洗面台の左にはトイレがあります。
温水洗浄便座も完備です。
洗面台の後ろには、洗濯機スペースがあります。
扉がついているので、来客時などは扉を閉めておきましょう。普段は湿気が籠りそうなので開けておきたいですよね。
バスルームとなります。
正面の壁が黒い光沢のある壁になっていて、まるで全面鏡のようです。
お風呂の蓋は、壁にかけて収納できるようにフックが付いています。
追い焚き機能が付いているので、いつでも温かいお風呂に入れますね。
それでは、最後にバルコニーへ出てみましょう
幅はありませんが奥行きがあるゆったりとしたバルコニーとなります。
物干し竿受けが設置されているのでお洗濯物も干せますよ。

床面にはタイルが敷いていあって、水はけが良さそうです。
目の前の建物が低いので、抜けた風景が広がっています。
この日はあいにくの曇りでしたが、建物に遮られる事なく
空がとても広く見えるので、晴れている日は綺麗な青空が見えると思いますよ♬
・
以上で松見坂武蔵野マンションのご案内を終わります。
いかがでしたでしょうか??
神泉駅から徒歩6分のマンションです。
リノベーション済みという事で室内はとてもキレイですよ (っ・ω・)っ
内見のご予約やご質問などございましたらお気軽にお問い合わせくださいませ。
ご連絡お待ちしております。
弊社、不動産Agent 六棒株式会社では、
□リノベーションマンションはほぼ全て仲介手数料無料!
□その他一般仲介物件は仲介手数料20%~30%OFF!
にてお取り扱いしております!※弊社の「Agent Fee=仲介手数料」についてはご案内、ご面談の際に営業担当者よりご説明いたします!
なるべく沢山のお部屋をホームページに掲載したいと思っておりますが、時間的成約もございますので、残念ながらご紹介できるお部屋の一部しか掲載できておりません。
このホームページに掲載中のお部屋、その他サイト等で気になるお部屋、街を歩いていて気になったマンション等々ございましたら是非、弊社営業部までご相談ください!
~不動産Agent 六棒株式会社の特徴~
・センチュリー21加盟店です!
・一般仲介物件の仲介手数料は20%~30%OFFにてご案内中です!
・リノベーションマンションについてはほぼ全て仲介手数料無料です!
・住宅ローンに自信あります!
・頭金10万円より購入できます。是非ご相談下さい!
・お部屋のご見学は車で2~3件まとめて案内します!
・物件数3000件以上、新築戸建、リノベ物件も多数ご用意しております!
過去に販売していたお部屋の概要 このお部屋の販売は終了いたしました。
| 価格 | -万円 |
| 面積 | 35.24㎡ |
| 間取り | 1bedroom(1R) |
| 管理費 | 月額:3,490円 修繕積立金:月額11,500円 特別修繕積立金:月額3,100円 |
| 所在階 | 3階 |
| お問い合わせ・ご内見のご予約はこちらからお気軽にどうぞ | |
間取りは1R、35.24㎡。シングルの方におすすめです♡
クリックすると別タブで開くことも出来ます!
お部屋は3階。玄関前の共用廊下からは開放的な眺めがご覧いただけます。
なんと角部屋です!インターホンはTVモニターがついており、来訪者の顏が確認できるので防犯面も安心です。扉を開ける前は必ずチェックしましょう。
では玄関扉をあけておじゃまします。
室内はリノベーション済みでピカピカです♡
玄関ホールは大理石貼りで高級感たっぷり。
照明が自動でつきましたが、人感センサーが設置されているので人の動きを感知して自動で消灯するようになっています。消し忘れがなく、節電効果も期待できます。
玄関横に設置されたシューズボックスはご覧のとおり収納力抜群。
何足入るんだろう??場所が余れば日用品のストックなどを仕舞っておいてもいいかも。
玄関ホール同様、廊下も大理石(!)貼りです。
高級感があるだけでなく、大理石の柄でほこりが目立ちにくく、お掃除が簡単という利点もあるようです。
それでは廊下をまっすぐ進んだ先の扉をあけてお部屋の中から見ていきましょう!
間取りがワンルームですので、この中にダイニングキッチン、ベッドスペース、リビングスペースとまとまっている感じです。
もうちょっと奥まで進んでみましょう。家具が置いてあるので実際の生活イメージがわきやすいですね。南・東の2面に窓があります。
ソファ横の2枚扉の中はクローゼットです。
横長でたくさん物が入りそう♡
東向きの窓側にはベッドが置いてあります。
実際に住むときも同じ位置にベッドを置くと陽ざしで自然と起きる習慣がつくかも!?
ベッド横の窓をあけると、鉢植えなどが置ける位のスペースが設けられています。せっかくなので、植物育ててみてはいかがでしょう??
窓の外はこんな感じで大通りです。車がビュンビュン走っていくのを眺めながら眠りにつく、なんてことも可能です。
東向きの窓の横にも収納スペースがありました。間口より奥行きがあるので以外と物は入りそうです。スティック型の掃除機とか入れる場所にしてもいいかもしれません。
入口と反対側からお部屋を見るとこんな感じです。
なんとなく全体像お分かりになりましたでしょうか??
続いてキッチンを見ていきましょう。
窓があるので換気がスムーズにできるのがうれしいところです。
これでお部屋にお料理の匂いがこもることもないでしょう!
キッチンはフローリングに馴染む木目調です。
引き出しは中の物が見やすく、物も取り出しやすいのがいいですね。
グリル、食洗機、浄水器一体型シャワー水栓とスペックもバッチグーです。
浄水機への切り替えはボタン一つでできますよ!
キッチンの向かい側にはカウンターが造作されています。
イスを置けばダイニングテーブル代わりになりますね!
後片付けも向かいがキッチンだとスムーズに進められるはず。
今度は洋室を出て廊下側にある洗面室とトイレを見ていきましょう。
レッツゴー!!
廊下を進んで手前の扉が洗面室、お隣がトイレです。
洗面室はこんな感じの縦長空間です。
脱衣スペースは余裕があり着替えがしやすそうです。
洗面室の一番奥側は洗濯機置場になっています。
窓があり自然光で明るいのが◎!ちなみに窓は開かないようです。
洗面化粧台は白で清潔感たっぷり♡
鏡の裏には細々としたアイテムを仕舞っておくのにピッタリな収納スペースがあります。
水栓はホースを伸ばすとシャワーとしても利用可能です。
寝ぐせがひどい時はこのシャワーが大活躍してくれるはずです!期待しましょう。
バスルームの扉の横には浴室換気乾燥機の操作パネルがついています。
暖房、涼風機能もついて季節を問わず快適なバスタイムが楽しめます。
バスルームは4面に木目調の壁パネルが使われており高級感があります。
横長の鏡は空間に奥行きをもたらし、広く見せてくれる効果があるそうです。ふむふむ。
ラウンドしたフォルムのバスタブはのんびりお湯に浸かるのにぴったりな感じです。追い炊きもあるのでお好みの温度でこころゆくまで温まってくださいませ。
洗面室のお隣はトイレです。
トイレにも窓がある!換気扇があっても、やっぱり空気の入れ替えしたいところですのでこれはポイント高いです。TOTOのウォシュレットもついております。
吊戸棚の中にはペーパーのストックなどを、横のカウンターには芳香剤などを置いてみてはいかがでしょう?
最後に洋室からバルコニーに出てみましょう。わくわく。
バルコニーは約4.78㎡。南向きです。
この日は陽ざしが少し弱かったのですが、パッと太陽が出れば陽ざしが期待できそうです。
気になる眺望です。眼下に敷地内の駐車場をはさんで建物が建っています。
少し距離があるので圧迫感などはありません。
大通りが近いので車の走行音は聞こえますが、個人的には気にならないレベルです。音の感じ方には個人差がございますので、気になった方は一度ご内見くださいませ。空室ですのでお気軽にどうぞ♪
松見坂武蔵野マンション、いかがでしたでしょうか?
内見のご予約やご質問などございましたらお氣軽にお問い合わせくださいませ♪
弊社、不動産Agent 六棒株式会社では、
□リノベーションマンションはほぼ全て仲介手数料無料!
□その他一般仲介物件は仲介手数料20%~30%OFF!
にてお取り扱いしております!※弊社の「Agent Fee=仲介手数料」についてはご案内、ご面談の際に営業担当者よりご説明いたします!
なるべく沢山のお部屋をホームページに掲載したいと思っておりますが、時間的成約もございますので、残念ながらご紹介できるお部屋の一部しか掲載できておりません。
このホームページに掲載中のお部屋、その他サイト等で気になるお部屋、街を歩いていて気になったマンション等々ございましたら是非、弊社営業部までご相談ください!
~不動産Agent 六棒株式会社の特徴~
・センチュリー21加盟店です!
・一般仲介物件の仲介手数料は20%~30%OFFにてご案内中です!
・リノベーションマンションについてはほぼ全て仲介手数料無料です!
・住宅ローンに自信あります!
・頭金10万円より購入できます。是非ご相談下さい!
・お部屋のご見学は車で2~3件まとめて案内します!
・物件数3000件以上、新築戸建、リノベ物件も多数ご用意しております!
過去に販売していたお部屋の概要 このお部屋の販売は終了いたしました。
| 価格 | -万円 |
| 面積 | 47.43㎡ |
| 間取り | 1bedroom(1LDK) |
| 管理費 | 月額:4,690円 修繕積立金:月額15,400円 |
| 所在階 | 3階 |
| お問い合わせ・ご内見のご予約はこちらからお気軽にどうぞ | |
ここで間取りのご紹介です。1LDK、47.43㎡。
クリックすると別タブで開きますので、よかったら間取りをみながら写真を
ご覧ください!
ご紹介するお部屋は3階です。
エレベーターで昇ってきましたが、階段移動もスムーズにできる階数です。
玄関前に到着です。
インターホンにはTVモニターがついており、事前に来訪者の顏が確認できるので防犯面も安心です。
では!はりきっておじゃまします。
室内はリノベーション済みでピカピカです(´▽`*)
玄関横の白い両開きの扉はシューズBOXです。
人の動きを感知して自動で照明が消灯する人感センサーがついており、スイッチを押す手間も省けます。節電効果もありますよ。
シューズBOXはご覧の通り、たっぷり収納できます。
お部屋で靴を管理することはなさそうです(*‘ω‘ *)
玄関をあがると廊下がまっすぐのびています。
フローリングも建具も木目調でやさしい雰囲気です゚+.゚(´▽`人)
廊下の壁面にはアクセントでこんな感じの木がついていました。
写真クリックすると大きくなるので、ゼヒじっくりとご覧くださいませ。
廊下をまっすぐ進んだ先の扉をあけて、一番気になるLDKから見ていきましょう!
LDKは約16帖の広々とした縦長空間です。
大きな開口部は南東向き。窓越しに陽ざしのあたたかさが感じられますd(´∀`*)
窓側からもLDKをご覧ください。キッチンは入口側に設置されています。
LDK内には大型のクローゼットがありました。
洋室にもあるので、こちらは掃除機や扇風機などの季節家電などを入れておく場所にしてもいいかもしれませんね。
天井にはダクトレールにスポットライトがついています。
後から照明を足したり、変えたりと変更の自由度が高いのがいいですね!
調光もできますのでお好みの明るさでお気に入りの空間にできますよ。
キッチンはLDKの入口横に壁付けになっています。
スライド収納に吊戸棚と収納スペースはたっぷりあります。
コンロは3口、グリルに浄水器一体型水栓と設備は◎!
水栓はホースを伸ばしてシャワーとしても利用可能です。
シンクのお掃除や大きなお鍋にお水を入れる際に便利ですね。
キッチン横の扉は洗面室です。
扉を横にスーッとあけて洗面室を見ていきましょう。
脱衣スペースもフローリングです。珍しいですね(*´∀`)
洗面化粧台と洗濯機置場は隣あっています。
鏡の裏、洗面ボウル下の他、上に白く長い棚が設置されているので水廻りの小物や洗剤はこのあたりに全て収納できそうです。足元に物を置かないと掃除も楽ですよ。
水栓は高さが変更できる上にホースも伸びます。
簡単な洗髪ならここで済ませられそうですねφ(・ω・ )カキカキ
洗面ボウルのお掃除や花瓶に水を入れる時にもホースを伸ばすと便利です。
洗面化粧台のお隣はバスルーム。
浴室換気乾燥機がついています。涼風、暖房機能もあり1年通して快適なバスライフを満喫できそうです。
バスルームは白基調で清潔感たっぷり(*´▽`*)
ユニットバスはうすーいピンク色です。
追い焚き機能がついているので、いつでも暖かいお湯に浸かれますよ。
これからの冷える季節には助かりますね。
今度はLDKを出て廊下側を順番に見ていきましょう。
LDKを出てすぐ左側の扉はトイレです。
TOTOのウォシュレット付きトイレです。
掃除道具やペーパーのストックは上の棚にどうぞ。
棚のアイアンの金具がさりげなく洒落ています。
トイレのお隣は洋室です。
ガチャリと扉を奥へ開けると、約5帖の洋室です。
1LDKなのでこちらはベッドルームとしてご利用されることになるかと思います(*‘ω‘ *)
クローゼットも幅の広いものがついています。
タンスなど大きな家具は用意しなくてよさそうですね。
エアコンも設置されており、引っ越したその日から快適な生活が送れそうです。
扉の横、上側にもちょっと物が置けるスペースがありました。
本とか並べておくのによさそうな雰囲気です。
最後にLDKからお待ちかねのバルコニーに出てみましょう。
どきどき。
バルコニーは約5.85㎡、南東向き。
ご覧の通り陽当りはバッチグー!!
お布団からお洗濯物まで、気持ち良く干せますね。
正面の眺望です。敷地内の駐車場を挟んで住宅やマンションが広がる風景です。
大通り沿いに面していないので思ったより静か、というのが個人的な感想です。
距離があるので人目もさほど気にせず、快適に過ごせそうです。
高い建物もないので陽ざしもよく届きますよ。
気になった方はゼヒ現地を一度ご見学くださいね♡
松見坂武蔵野マンション、いかがでしたでしょうか?
内見のご予約やご質問などございましたらお氣軽にお問い合わせくださいませ♪
過去に販売していたお部屋の概要 このお部屋の販売は終了いたしました。
| 価格 | -万円 |
| 面積 | 50.24㎡ |
| 間取り | 2bedrooms(2DK) |
| 管理費 | 月額:5,150円 修繕積立金:月額16,900円 |
| 所在階 | 3階 |
| お問い合わせ・ご内見のご予約はこちらからお気軽にどうぞ | |
間取りは2DK、52.04㎡。東南角部屋です。
クリックすると別タブで開きますよ!
お部屋は3階の角部屋。
他の居住者の方が玄関前を歩く音を気にせず過ごせそうな部屋位置です。
共用廊下からは開放感のある眺めが楽しめますよ♪
ピンポーン♪インターホンはTVモニターがついており、来訪者の顏が事前に確認できます。防犯面も安心ですね。
では玄関扉をあけてお部屋の中へおじゃまします。
室内はリノベーション済みでぴかぴかです。
玄関扉の内側が木目調でちょっとびっくりΣ(゚Д゚)
玄関横には背の高いシューズBOXがついています。
棚の高さは調節できるので背の高いブーツなども仕舞っておけます。
表扉には鏡がついているので外出前の身だしなみチェックもバッチリできます。
さらに玄関には人感センサーがついています。
人の動きを感知して自動で照明が消灯するので消し忘れがなく経済的。暗い中スイッチを手探りで探す、なんていうちょっとした生活のストレスからも解放されますね。
玄関をあがると廊下がまっすぐのびています。
等間隔についたダウンライトが廊下全体を明るく照らしてくれています。
廊下をまっすぐ進み、正面の扉をあけてダイニングキッチンから見ていきましょう!
ダイニングキッチンは約9.5帖の横長空間。
2面に窓がある明るい空間です。
新規でエアコンが1基設置されています。
「365日、空気の質の違いを実感」のシャープ製プラズマクラスターです。
窓側からもダイニングキッチンをご覧ください。
キッチンは壁付けになっています。
キッチンは吊戸棚にワークトップ下のスライド収納と収納力があります。
スライド収納は深さがあるので大きなお鍋もすっぽり入りそう♡
水栓は浄水機能付き。ホースを伸ばすとシャワーとしても利用可能です。シンクのお掃除も隅々まで簡単にできますよ。コンロは3口、グリルもついています。
キッチンの横には洗濯機置場がありました。
ロールスクリーンがついているので見た目が気になるときは降ろして隠すこともできます。
洋室は2部屋ありますが、1部屋はダイニングキッチンから行けるようになっています。2枚の可動扉をあけると・・・
約6帖の洋室です。2面に窓があり、片方は南東向きのバルコニーに面しています。
寝室にすると気持ちよく目覚められそうですね。
クローゼットもついています。
ちなみにクローゼット横の窓の外は植木鉢が置けるくらいのスペースがありました。小さな植物をここで育ててみるのもよさそうです。くれぐれも落とさないようご注意くださいませ。
ちなみに扉をあけてダイニングキッチンから見るとこんな感じです。
今度はダイニングキッチンを出て廊下側を見ていきましょう。
レッツゴー!
廊下を出て右側の扉はトイレです。
ヘリンボーン柄のアクセントクロスがおしゃれですね!
サニタリー用品は上の吊戸棚へどうぞ♪
もちろんウォシュレットもついています。
アイアン調のペーパーホルダーとタオルホルダーもさりげなくおしゃれです。
トイレのお隣は洗面室です。
玄関から近いので帰宅後の手洗い・うがいもスムーズに済ませられそうです。
洗面室。ここには洗面化粧台とバスルームがまとまっています。
洗面化粧台は鏡の裏、引き出しと収納スペースが多彩です。
鏡の間にライトがつくのでメイクや身支度もしやすいですよ!
水栓はホースを伸ばすとシャワーとしてもご利用いただけます。
シンクのお掃除時に使ったり、寝ぐせをなおしたりと色々活躍してくれそうです♪
バスルーム。表扉にタオル掛けがついています。すぐ手の届くところにタオルがあるとお風呂からあがるときに助かりますよね。扉の横には浴室換気乾燥機の操作パネルがついています。
木目調の壁パネルでナチュラルな感じのバスルーム。
乾燥機がついているのでお洗濯物が干せるようポールが設置されています。
追い焚き機能もついていますので、いつでも暖かいお湯に浸かれます♪
冷える季節は助かりますね。
洗面室の向かい側は洋室です。
こちらの洋室も6帖。
クローゼットに棚と収納スペースもしっかりあります。
梁などもなく家具の配置もしやすそうです。
ちなみにバルコニーは2面にあり、1つはこちらの洋室とダイニングキッチンをつないでいる南西向きのバルコニーです。扉は二重サッシです。
バルコニーは2つあわせて8.53㎡。1つずつ見てもお洗濯ものを干すには充分な広さかと思います。
眺望はというと、実は目の前はお隣のマンション!ちょっと窓が気になるかなぁという印象です。大通りが近いので車の走行音もそこそこします。
もう1つのバルコニーはダイニングキッチン奥の洋室に面しています。
こちらは大通りから少し離れているので二重サッシではありません。
ガラガラ~と扉をあけて出てみましょう。
こちらの方が幅が広くてお洗濯物が干しやすそうですねd(´∀`*)ネッ!
南東向きです。
正面の眺望です。目の前が開けているので開放感がありますね!
右側はマンションが建っていますが、左方向は眼下に敷地内の駐車場をはさんで建物が立ち並ぶ風景です。特に人目等は気にせず過ごせそうです。
上を見上げるとこんな感じ。空も広く見えて快適かも・・・気になったらお気軽にご内見くださいね♪
松見坂武蔵野マンション、いかがでしたでしょうか?
内見のご予約やご質問などございましたらお気軽にお問い合わせくださいませ♪
過去に販売していたお部屋の概要 このお部屋の販売は終了いたしました。
| 価格 | -万円 |
| 面積 | 47.43㎡ |
| 間取り | 2bedrooms(2LDK) |
| 管理費 | 月額4,690円 修繕積立金:月額15,400円 特別修繕積立金他:月額4,600円 |
| 所在階 | 6階 |
| お問い合わせ・ご内見のご予約はこちらからお気軽にどうぞ | |
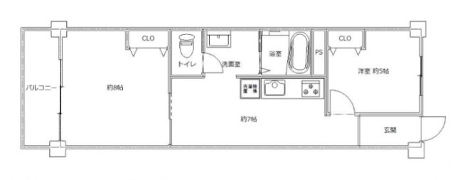
…ここで、今回ご紹介させて頂くお部屋の間取りのご紹介を(/・ω・)/
2LDK、47.43㎡の6階。です!
新規フルリノベーションされ、ぴかぴかに生まれ変わったお部屋です。
クリックして頂ければ別タブで開きますので、間取り図と見比べながら進んでいきましょう!!
本日のお部屋のフロア、3階に到着です!
お部屋までは内廊下が続いています。壁と屋根があるので、お天気が悪い時でも濡れてしまう事は無さそうですね!!
落ち着いた静かな雰囲気も好印象ですよ!!
玄関眼にはモニター付きのインターフォンが付いています。
オートロックの付いていないマンションですが、お部屋の中から廊下の様子を確認できるのは防犯の観点からも安心できます。
セールスや勧誘も顔を合わせることなくお帰り頂けますね!!
おじゃましまーす!!!
玄関入ってすぐ右手にシューズボックスがありました。
中の棚は高さの調整ができるので、背の高いブーツなども問題なく収納可能ですよ!
それでは廊下を進んで行きましょう。
突当りのドアを開けると・・・・
こちらはリビング・ダイニング・キッチンです!!
広さは約11帖!
南東向きの窓からは明るい光が入って来ています。
グレーのアクセントクロスが落ち着いた大人の雰囲気を出しています。
窓際まで来ると謎のスペースが!!
お天気のいい日はこの隙間に寝転んでお昼寝するのも気持ちよさそうですね!!
後ほどご紹介させて頂く洋室の採光窓が付いていましたよ!
次はキッチンをご紹介いたします。
開放感のあるオープンキッチンになっています。
ご家族、ご友人とお喋りしながら楽しくお料理が出来そうです!!
浄水機能付きの水栓はシャワーヘッドになっています。
シンクの隅々まで水を流すことが出来るのでお掃除もラクラクです。
コンロ周りはグリル付きの3口と十分すぎる設備が揃っています。グリルは表面をこんがり香ばしく焼き上げながら包み込むように加熱するので、旨みをぎゅっと閉じ込めながらすばやく火を通し、お肉料理も柔らかく仕上げることができます
足もとの収納は引き出しタイプです。
デッドスペースが生まれにくく、奥まで無駄なく使うことが出来るのは嬉しいですね。
フライパンなどは重ねるのではなくスタンドなどを利用して立てておく事で、見た目もスッキリしますし取り出しも簡単になります。
オープンキッチンで開放感を出すために吊戸棚はあえて設置していません。
収納場所が足りないようでしたら、食器棚をご購入下さい。
キッチンから後ろを振り返ると・・・
スライド式のドアがありますね!!
開けてみると・・・・
中は洗面室になっていました。
洗面化粧台は3面鏡になっています。
鏡を開けると収納棚になっており、歯ブラシや化粧品などの小物類を収納できます。
3面鏡はほぼ同時に顔の両側が見られるので左右のバランスが分かりやすく、メイクもしやすいですよ。
洗面化粧台のお隣には洗濯機置場もありました!
脱衣所も兼ねている洗面室なので、脱いだお洋服はそのまま洗濯機にポイ!
お部屋の中が脱いだ服で散らかることもなさそうです。
洗面台右手はお風呂です。
浴室乾燥機能が付いているので、洗濯物も浴室に干すことができます。
また、冬の一番風呂でも入浴前に浴室暖房スイッチを入れておけば、浴室が暖まりとても快適です。また、ヒートショック予防としても威力を発揮しますよ。
カビの防止にもなるので、積極的に使っていきたい機能でもあります
追い焚き機能付きのお風呂なのでせっかくの機能はなるべく使いましょう。
男性はシャワーだけで済ましがちではありますが、せめて週に1度くらいは熱いお風呂にゆっくりと浸かって疲れを癒して下さいね。
では、次のお部屋をご紹介します!
洗面室の横に位置するこちらのドア。
中は約4帖の広さがある洋室になっています。
リビングにあった採光窓はこちらのお部屋へと続いていたのです。
自然の光が入ってくるので、気持ちがいいですよ!
お部屋の窓にカーテンなどを付けてもオシャレかもしれませんね!!
窓の横にはクローゼットも付いていました。大きくはないですが、お部屋の中にお洋服を掛けられる場所があると、限られた空間でも広く使うことができますよ!
ここで、一度廊下の方に戻っていきます。
キッチンの前を通って・・・
廊下に出るとすぐ左手!
こちらはトイレですね。
TOTOのウォシュレット付きのトイレになっていますね
日本ではTOTOのトイレが厚い信頼を得ているようでして、トイレの市場シェアでは便器(衛生陶器)においても温水便座においても、TOTOは2位を大きく引き離してシェア1位を獲得しています!
次のお部屋に向かいましょう。
玄関入ってすぐのお部屋ですよ!!
こちらは約5帖の広さの洋室。
こちらのお部屋の窓は外廊下に面しています。
窓の外には金属製の格子が付いているので、防犯的な心配は必要なさそうです。
クローゼットが付いているので、お洋服も大量にしまう事が出来そうですね!
時間のかかる面倒な衣替えもあっという間に終りそうです。
最後にバルコニーのご紹介です。
南東向きのバルコニーなので、陽当たりは期待できますよ!!
うーむ・・・
悪くない眺望のハズなんですが、天気がイマイチなのが玉にキズです。
山手通りとは反対側なので、クルマの音などはほとんど気になりませんでした。
聞こえ方には個人差もあるので、内見の際はぜひ耳を澄ましてみるのをお忘れなく!
雲の多い日だったことが唯一の心残りです。
晴れている日は本当に気持ちのいい空を拝むことが出来ますよ。
では、以上で松見坂武蔵野マンションのご案内を終わります。
いかがでしたでしょうか??
神泉駅から徒歩6分、渋谷も徒歩圏内という利便性の高い立地です。
リノベーション済みという事で新しく生まれ変わったお部屋ですよヽ(´∀`)
内見のご予約やご質問などございましたらお気軽にお問い合わせくださいませ。
ご連絡お待ちしております。
過去に販売していたお部屋の概要 このお部屋の販売は終了いたしました。
| 価格 | -万円 |
| 面積 | 47.43㎡ |
| 間取り | 2bedrooms(2LDK) |
| 管理費 | 月額4,690円 修繕積立金:月額12,100円 特別修繕積立金他:月額4,200円 |
| 所在階 | 7階 |
| お問い合わせ・ご内見のご予約はこちらからお気軽にどうぞ | |
間取りのご紹介です。2LDK、47.43㎡。
7階、南東向きにつき陽当り・通風・眺望ともに良好なお部屋です。
玄関ホール。右側にはシューズBOXがつくられています。
シューズBOXが表扉の半分に縦長のミラーがついており、お洋服と合わせて靴を選んだり、お出かけ前の身だしなみチェックにとても便利。棚板がついていませんが、つく予定です。
玄関をあがると目の前に廊下がまっすぐ伸びており、片方の壁面に洋室、トイレ、正面にLDKの扉があります。手前から順番にご紹介いたします。
廊下を進んで右側にある洋室へ。
洋室約6帖。窓の外は玄関前の共用廊下です。
こちらのお部屋はクローゼットが2個設置されており、収納豊富。余計な家具を置かずに生活スペースを有効的にご利用いただけます。エアコンも設置済み。
約6帖のお隣はトイレ。ウォシュレット付きです。
上にペーパーのストックや掃除用具が置けるように棚がついています。
廊下をまっすぐ進んだ先、採光部のある扉を開けると・・・
約10帖のLDKです。キッチンスペースは奥の方にあります。
リビングダイニングスペース。壁面もウッド調で落ちついた雰囲気。
キッチンスペース。一番突き当りがガラスになっているので明るいです!(ガラス部分は開きません)他の人にはあまり見られたくないキッチンの作業スペースもリビングダイニングからは見えにくいハズ。
キッチンは上下に収納たっぷり。大きなお鍋やフライパンもスッキリ片付きそうです。
洗面室はLDK内に出入口があります。
(LDKの扉の並びに洗面室の扉があります。)
脱衣スペースを囲むようにバスルーム、洗濯機置場、洗面化粧台が設置されています。
洗濯機置場。洗剤は上の棚へどうぞ。
収納豊富な洗面化粧台。小物は鏡の裏へ、横の棚にはタオルやドライヤーなど洗面室内で使いたいアイテムはこの辺りにまとめて納まりそうです。
バスルームは追い焚き機能付き。シャワーはお好きな位置で固定できるようになっています。
2部屋ある洋室のうち、1部屋はLDKに隣接しています。
LDKに隣接した洋室は約4.5帖。南東向きの明るいお部屋です。
可動式の扉をあけてLDKと洋室をつなげるとこんな感じになります。約4.5帖の洋室はLDKの延長として使うのもよさそうです。
最後に約4.5帖の洋室からバルコニーに出てみます。
南東向き、約5.85㎡。山手通りと反対なので静かです
サンサンと降りそそぐ陽ざしでお洗濯物も気持ちよく乾くハズ。
ほどよく開放感のある眺望。空も広く見えて快適です。
過去に販売していたお部屋の概要 このお部屋の販売は終了いたしました。
| 価格 | -万円 |
| 面積 | 47.43㎡ |
| 間取り | 2bedrooms(2DK) |
| 管理費 | 月額:6,600円 修繕積立金:月額12,100円 特別修繕積立金:月額4,200円 |
| 所在階 | 9階 |
間取りのご紹介です。2DK、47.43㎡。
9階部分につき眺望良好。陽当たり、通風にも恵まれたお部屋です。
シューズBOXはトールタイプ。可動棚で高さ調節可能。
BOX横には傘などの背の高いものも置いておけるスペースがあります。
玄関から最初のお部屋は4.3帖のベッドルーム。
ベッドルームとしてももちろん、書斎などとして使うのもよさそうですね!
エアコンの先行配管済み。
クローゼットも設置されています。
こちらはサニタリールーム。
スペースを広く取ってあり、ゆったりとしています。
ブラウンのアクセントパネルで落ち着く色合いのバスルームは追焚き、浴室乾燥機の機能付きです。
お好きな位置に高さ調節可能なシャワーフックやシャンプーなどを置いておける棚も多く使い勝手が良さそうです。
ランドリースペースの上部には可動棚が設置されていて、洗剤などのストックに重宝します。
W900サイズの洗面台は鏡の中央部分にLEDライトを組み込み、背の高さに関係なくどの位置でもしっかり照らします。
三面鏡の裏側は収納スペースになっています。
シャンプードレッサータイプの洗面ボウルは大きく横幅もあるので大変使いやすいです。
廊下の突き当たりのドアはダイングキッチン。
6.7帖のダイニングキッチン。
隣のベッドルームとの開口部も広く明るいです。
引き戸を開けて約13.8帖のLDKとしてもお使いになれます。
お部屋の色合いに合わせたウッド調の飾り棚も造作されていて、オブジェのディスプレイなどの良さそうです。
奥まった位置にキッチンが設置されています。
スペースも広く、キャビネットやキッチンカウンターなども置けそうなスペースがあります。
W2100サイズのキッチンは収納も豊富です。
設備は3口ガスコンロ、グリルや蛇口一体型水栓、食洗機も付いていて機能的。
ダイニングキッチンと引き戸で仕切られたベッドルームは7.1帖。
クローゼットの横のスペースにデスクなどを置いてもいいかもしれません。
開口部が大きく、DKも明るい日差しが差し込みます。
ワイドサッシで日当たり良好!
ペアサッシなので断熱、防音効果も優れています。
南東向きのバルコニーは5.85㎡。
バルコニーからの眺望は視界を遮る建物もなく良好です。
通りと反対側なので騒音もあまり気になりません。
過去に販売していたお部屋の概要 このお部屋の販売は終了いたしました。
| 価格 | -万円 |
| 面積 | 35.24㎡ |
| 間取り | 1bedroom(1LDK) |
| 管理費 | 月額:3,490円 修繕積立金:月額9,000円 特別修繕積立金他:月額2,300円 |
| 所在階 | 5階 |
間取りのご紹介です。1LDK、35.24㎡。5階の角部屋です。
渋谷で夜遅くまで遊んでも歩いて帰ってこれますよ♪気まま&マイペースなシングルライフが似合いそうです。
室内は只今リノベーション工事中!
一足先に充実のリノベーション内容と仕様イメージをご紹介いたします。
■キッチン・・・システムキッチンAP(パナソニック)
■浴室・・・ユニットバスWH1116(TOTO)、追い焚き機能付き
■洗面所・・・洗面化粧台 (Panasonic)、洗濯水栓、防水パン
■トイレ・・・サティス(LIXIL)、ウォシュレット機能付き、手洗いセット付き
■その他・・・フローリング貼替、壁・天井クロス張替、フロアタイル貼替、建具・玄関収納交換、給湯器交換、エアコン(1基)、カラーTVモニター付インターフォン、新規照明器具取付、棚板設置、スイッチ・コンセント交換、ハウスクリーニング
※写真は仕様イメージです。
ピカピカのお部屋に生まれ変わるのが待ち遠しいですね!
工事終了前のご紹介も可能ですので、ご質問などはお気軽にお問合せくださいませ。
【内装工事終了予定:2014年8月中旬】
過去に販売していたお部屋の概要 このお部屋の販売は終了いたしました。
| 価格 | -万円 |
| 面積 | 48.49㎡ |
| 間取り | 2bedrooms(2LDK) |
| 管理費 | 月額4,800円 修繕積立金:月額12,400円特別修繕積立金:月額1,800円 |
| 所在階 | 15階 |
ここで間取りのご紹介です。(48.49㎡ 2LDK)
こちらが玄関になります。共用部廊下からの眺望もご覧の通りです。本日は曇りですが、曇っていてもこの開放感、お部屋からの眺望も楽しみです。
濃いめのブラウンの無垢材のフローリングがなんとも落ち着く風景です。左側には玄関収納があります。
トールサイズの玄関収納は、収納量もバッチリです◎
5.0帖の洋室です。窓もあり空気の入れ替えもでき、窓の近くに小さなカウンターがあります。
インテリアも良し、カゴなどを置いてオシャレに収納も良しですね。小さなスペースでも大事にマルチに活用したいですね。ポールハンガー付きクローゼットもあります。
落ち着いた雰囲気のサニタリールームです。正面に洗濯機置き場→左に浴室→右に洗面台です。
洗濯機置き場です。洗剤などの置き場は右側にある洗面台下などにオシャレなカゴなどにいれて置くのはいかかですか?
窓のある浴室です。小さな窓ですが、そこからの光と外からの空気が入ることはありがたいですね。必ず毎日入る浴室はいつも湿気の多い場所。自然換気でカビ防止にも役立ちますね。
2つのトレイには、シャンプーやボディソープを置くと便利ですね。
コンパクトで可愛らしいタイル使いはまるでホテルのようです。三面鏡になっている鏡の後ろはもちろん収納です。細々したヘアーゴムやヘアースプレーなど置けそうです。
ウォッシュボウル下は自分好みのインテリアでカゴなど活用してオシャレにスペースをうまく使えたら良いですね。
ウォシュレット付きのトイレです。鮮やかな色使いのクロスと幅のあるカウンター、なんだか本まで置いてしまいそうです。トイレットペーパーのストックなどもうまくカゴなどを活用できたら置けそうです。
12.6帖のLDKです。無垢材のウッド感が暖かく落ち着きます。バルコニーに面しているので窓からの光が入り大変明るいLDKです。
さて。。。ブラウンの扉をあけますと~
4.0帖の洋室です。開けているとよりお部屋が広々と感じます。
お子様のお昼ねなどもここでできると、キッチンでの作業もお子様の気配を察しながらでき安心ですね。マルチに活用できたら良いですね。
キッチンになります。コンロのサイドとバックのタイルがおしゃれですね。
収納力もしっかりあり、足元からある引き出し収納は大きいお鍋から乾物系などの収納に良いですね。キッチン目の前はバルコニー♪景色をみながら気持ちよく料理ができそうです。
シンクも調理スペースも広く、料理の流れがスムーズにできそうです。3口コンロでは、煮る・焼く・蒸すいっぺんにできちゃいそうです。
LDKの照明はまるでオシャレな店舗のようです♪
みてください!この広さ写真で伝わりますか?バルコニーです。(12.42㎡)
ウッドデッキがなんとも気持ちよく。小さなお子さまなら、夏にはミニプールで水遊び!滑り台なども置きたくなりますね。テーブルとイスをおいて休日はこちらで朝食!色取り取りのお花を置いても華やかですね♪水道もあり便利ですね。
眺望です。本日は天気が悪くみなさまに青い空一面をお見せできなく残念ですが、曇り空の今日の日でも、両手をあげて伸びたくなるぐらい清々しい開放感です。
是非、晴れた日をご覧になられてはいかがでしょうか。
みなさまのご内見、こころよりお待ちしております!











































































































































































































































































































































































































































































































































































































































































弊社 公式HP
六棒総合研究所
掲載予定物件
価格変更と販売終了物件
ハザードマップ検索
適合証明書.jp
Instagram