・
□□□□□□□□□□□□□□□□□□□□□□□□□□□□□□□□□□□□□□□
いつも弊社ホームページをご覧頂き誠にありがとうございます。
目黒青葉台グランドハイツはお陰様で販売を終了致しました。弊社問合せフォームにてご要望頂けましたら、当お部屋でキャンセル等が発生した場合、他のお部屋が販売になりました際にご紹介させて頂きます。
不動産Agent 六棒株式会社
TEL:03‐5413‐5336
□□□□□□□□□□□□□□□□□□□□□□□□□□□□□□□□□□□□□□□
・
こんにちは!!
本日、ご案内させて頂くのは【目黒青葉台グランドハイツ】です!!
京王井の頭線「神泉」駅徒歩6分、東急田園都市線「池尻大橋」駅徒歩10分、
JR山手線他「渋谷」駅徒歩15分の大変利便性の高い立地に佇むマンションです。
先ずはハザードマップをご確認ください!!
□□□□□□□□□□□□□□□□□□□□□□□□□□□□□□□□□□□□□□□
★★★【目黒青葉台グランドハイツ】周辺のハザードマップをCHECK!!★★★
お部屋の記事を読む前に…!周辺のハザードマップをチェックしておきませんか!
目黒青葉台グランドハイツのハザードマップは★こちらから…どうぞ★
□□□□□□□□□□□□□□□□□□□□□□□□□□□□□□□□□□□□□□□
それでは早速最寄の神泉駅のご紹介から始めましょう!!
井の頭線の渋谷駅から一駅、500メートルほどなので若者なら難なく歩ける距離にある駅です。当然?各駅停車しか停まりません。
利用者人数は一日当たり1万人ほど、井の頭線の駅の中では下から3番目という平和な駅でもあります(○´ω`○)
関東の駅100選にも選ばれているとかないとか。
実際にいけば分かるのですが、何とも言えない特長のある駅になっていますよ!!
神泉駅周辺は坂が多いイメージ。
道玄坂のすぐ近くなので当たり前なのですが(*・д・)
渋谷の近くとは思えないほど、お洒落な大人なイメージです。
お昼時はランチへ向かうサラリーマンで賑わいます。
日常のお買いものができるスーパーとしては、駅前のマルエツプチが最寄な気がします (・`ω´・ ○)
ここからマンションまでは約4分。
マンションから池尻方面に進めば、徒歩7~8分のところにはライフやドンキホーテもありますよ!!
お仕事帰りに寄るならここマルエツプチと、少し先にあるローソンですかねぇ・・・
もう少し進むと旧山手通りに出ます。
奥に見えているのは246と山手通りの交差点。まーっすぐ(徒歩10分ちょっと)進むと代官山蔦屋もありますよヽ(´∀`)代官山蔦屋に歩いて行けるなんて、素敵ですね![]()
東京トヨペットの角を鋭角に曲がって、ゆるい坂を下って行くとすぐにマンションが見えてきます。
こちらが今回ご紹介させていただく【目黒青葉台グランドハイツ】です!!
地下1階付の9階建て!!
歩道に面している部分が地下1階ということなので、階数を間違えないようにご注意ください ( `д´)b
道路に面した駐車場、マンション裏手には駐輪場があります。
どちらも利用するには申請が必要なので、先に空き状況を確認してください。
エントランスにやってきました。ステンドグラスがあしらわれている明るいエントランスです!
エントランスにはオートロックが付いています。
防犯面での第一関門!カメラ付きなので、エントランスでまず来訪者を確認できます。それを確認してから応答してオートロックを解除するかどうか決められるのは安心感があります。
とは言ったものの、防犯意識は常に持ち続けてくださいよ( ・`ω・´)
宅配ボックスがあるので夢のAmazon生活が出来ます!!
ちょっとトイレに入ってる間に、宅配の荷物を持ち帰られて再配達依頼をしないといけなくなる心配もありません!!
シャイな管理人さんに全力で拒否されたので、管理人室はスルーします。
エレベーターの裏手に管理人室がありますので、お引越し後にご確認ください♡
それではお部屋のある階に上がっていきましょう!!
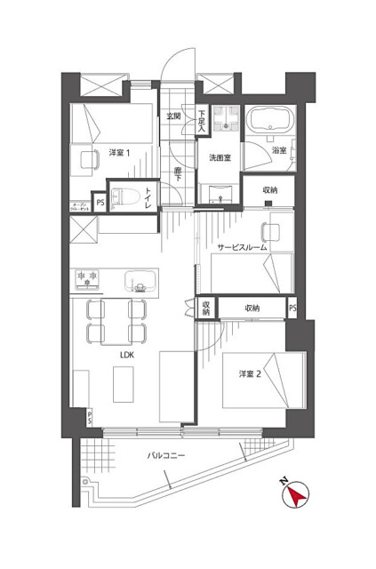
ここで間取り図のご紹介です ↓ ↓ ↓
※間取り図は別タブで開きますので、確認しながらご覧いただくことが出来ます。
今回ご紹介するお部屋は8階、専有面積54.22㎡の2SLDK。スモールファミリーからお一人暮らしの方まで幅広くお使いいただけるお部屋です。では、早速行ってみましょう!
【玄関廊下】
玄関から廊下にかけては高級感のある大理石貼り。冷たい感じになりがちな素材ですが、建具とともに暖色系でまとめることで温かみのある雰囲気に仕上がっています。照明には人感センサーが付いているのでいつでも明るい玄関が迎えてくれますよ。
【洗面室】
洗面室は洗面化粧台の他に洗濯機スペースと浴室がまとまっていて脱衣室も兼ねています。洗面化粧台は照明内蔵の三面鏡付き。鏡の間にライトが付いているので影になったりすることもありません。
【浴室】
浴室はベージュの木目パネルに囲まれた落ち着いた雰囲気。リラックスしたバスタイムで一日の疲れも洗い流せそうですね。追い焚き機能や浴室換気乾燥機などの便利機能も完備しています。
【トイレ】
トイレはTOTO製の温水洗浄機能一体型。吊り戸棚も付いていてトイレットペーパーや掃除道具の収納に便利です。
【洋室1】
洋室1は廊下に面した独立性高めのお部屋です。人が集まるLDKからは廊下を挟んでいるので、書斎にして在宅ワークなどに使うのも良さそうですね。オープンタイプのクローゼットも付いています。
【LDK】
こちらはリビング・ダイニング・キッチン。南西向きバルコニーに面したお部屋です。落ち着きのある雰囲気でとても居心地が良さそうですね。残念ながら家具はディスプレイ用なので付いては来ませんが、ご自身で選ぶ時の参考にさせてもらいましょう!
【LDK】
高さに変化をつけたリビングダイニング部分の天井には間接照明が設置され、お部屋を柔らかく照らしています。シンプルな色使いながら様々な照明による明暗のコントラストがいいアクセントになっていますね。
【キッチン】
キッチンは開放的なカウンタータイプ。お料理中でもスムースなコミュニケーションが可能です。夕食の準備をしながらお子様の話しに耳を傾けたり、友人をおもてなししながら会話に加わったり・・・そんな楽しそうな風景が目に浮かびます。
【サービスルーム】
サービスルームとは、採光などの関係で法律上「洋室」と呼べないお部屋のこと。あくまでも法律上で居室として使えることがほとんどです。こちらも、柱などの出っ張りがなく使い勝手が良さそうな洋室です。
【洋室2】
洋室2はLDKと同じ南西向きバルコニーに面した明るいお部屋です。洋室の中では一番大きくメインの寝室にオススメ。ディスプレイのようにアクセントウォールに合わせてベッドを置くとイイ感じですね♬
・
以上で目黒青葉台グランドハイツのご案内を終わります。
いかがでしたでしょうか??
神泉駅から徒歩6分のマンションです。
リノベーション済みという事で室内はとてもキレイですよ (っ・ω・)っ
内見のご予約やご質問などございましたらお気軽にお問い合わせくださいませ。
ご連絡お待ちしております。
弊社、不動産Agent 六棒株式会社では、
□リノベーションマンションはほぼ全て仲介手数料無料!
□その他一般仲介物件は仲介手数料20%~30%OFF!
にてお取り扱いしております!※弊社の「Agent Fee=仲介手数料」についてはご案内、ご面談の際に営業担当者よりご説明いたします!
なるべく沢山のお部屋をホームページに掲載したいと思っておりますが、時間的成約もございますので、残念ながらご紹介できるお部屋の一部しか掲載できておりません。
このホームページに掲載中のお部屋、その他サイト等で気になるお部屋、街を歩いていて気になったマンション等々ございましたら是非、弊社営業部までご相談ください!
~不動産Agent 六棒株式会社の特徴~
・一般仲介物件の仲介手数料は20%~30%OFFにてご案内中です!
・リノベーションマンションについてはほぼ全て仲介手数料無料です!
・住宅ローンに自信あります!
・頭金10万円より購入できます。是非ご相談下さい!
・お部屋のご見学は車で2~3件まとめて案内します!
・物件数3000件以上、新築戸建、リノベ物件も多数ご用意しております!
過去に販売していたお部屋の概要 こちらのお部屋の販売は終了いたしました
| 価格 | -万円 |
| 面積 | 54.22㎡ |
| 間取り | 2edrooms(2SLDK) |
| 管理費 | 月額10,300円 修繕積立金:月額7,230円 |
| 所在階 | 2階 |
| お問い合わせ・ご内見のご予約はこちらからお気軽にどうぞ | |
ここで間取り図のご紹介です。
※間取り図は別タブで開きますので、確認しながらご覧いただくことが出来ます。
今回ご紹介するお部屋は2階、専有面積54.22㎡の2SLDK。お一人暮らしやDINKSの方にお勧めのお部屋です。ペット可なのも嬉しいですね。
では、早速行ってみましょう!
玄関廊下は高級感のある大理石仕上げ。柔らかな色合いが建具とよく合って温かみのある雰囲気になっています。正面ドアはすりガラスになっているので、バルコニーに面したLDKからの光が廊下にまで入ってきています。夜には人感センサーが自動的に点灯してくれるので、いつでも明るい玄関が迎えてくれますよ。
こちらはリビング・ダイニング・キッチン。
南西向きバルコニーからの陽射しの似合う、ナチュラルカラーでまとめられた居心地の良さそうなお部屋です。ディスプレイのように同系色のグラデーションでまとめるのもいいですし、お好きな色をアクセントとして足していくのも良いと思います。
バルコニーへ向かってキッチン、ダイニング、リビングと並ぶオーソドックスなレイアウト。家具の配置に悩むことはなさそうです。置いてある家具はディスプレイ用なので付いては来ませんが、家具があると生活のイメージがしやすくて助かります。大きさや色などの参考にさせてもらいましょう!
バルコニー側から…
立体的な造作には裏側からライトが当てられ、より奥行きのある広がりが感じられますね。シンプルな色使いの中、照明による光と影がアクセントになっています。
キッチンは人気のカウンタータイプ。
お料理をしながらでもご家族やご友人とのコミュニケーションがとりやすいのが特徴です。生活感のあるキッチン内が、寛ぎのスペースからあまり目立たないのもいいですよね。食器洗浄乾燥機や浄水機能一体型水栓など、アシスト機能もしっかりと完備されたキッチンです。
こちらは北東側の洋室。
キッチン横の窓のないお部屋です。コンパクトながら入口に引き戸を使ってドアの開け閉めによる無駄なスペースが出来ないようにしたりと、広く使える工夫がされています。窓がないので暗く静かで眠るには最適ですよ。
廊下へ戻って…
トイレはTOTO製のウォシュレット一体型。トイレットペーパーのストックや掃除道具の収納に便利な吊戸棚も付いています。
洗面室は洗面化粧台の他に洗濯機スペースと浴室がまとまっていて脱衣所も兼ねています。洗面化粧台は三面鏡付。鏡の間に照明が付いているので鏡を開いても影になることがありません。裏はキャビネットになっていて細々したものもスッキリ収納可能です。
浴室はお部屋とトータルでコーディネイトされた木目パネル使用。優しい雰囲気でリラックスしたバスタイムを過ごせそうです。追い焚き機能&浴室換気乾燥機付き!お天気を気にすることなくお洗濯出来ますよ。
こちらはサービスルーム。
ソファーベッドや飾り棚、有孔ボードなどが造り付けになったお部屋です。書斎として在宅ワークに使うのもいいですし、オープンクローゼットも付いているのでお子様が小さければ子供部屋なんかも良さそうですね。
・
以上で目黒青葉台グランドハイツのご案内を終わります。
いかがでしたでしょうか??
神泉駅から徒歩6分のマンションです。
リノベーション済みという事で室内はとてもキレイですよ (っ・ω・)っ
内見のご予約やご質問などございましたらお気軽にお問い合わせくださいませ。
ご連絡お待ちしております。
弊社、不動産Agent 六棒株式会社では、
□リノベーションマンションはほぼ全て仲介手数料無料!
□その他一般仲介物件は仲介手数料20%~30%OFF!
にてお取り扱いしております!※弊社の「Agent Fee=仲介手数料」についてはご案内、ご面談の際に営業担当者よりご説明いたします!
なるべく沢山のお部屋をホームページに掲載したいと思っておりますが、時間的成約もございますので、残念ながらご紹介できるお部屋の一部しか掲載できておりません。
このホームページに掲載中のお部屋、その他サイト等で気になるお部屋、街を歩いていて気になったマンション等々ございましたら是非、弊社営業部までご相談ください!
~不動産Agent 六棒株式会社の特徴~
・一般仲介物件の仲介手数料は20%~30%OFFにてご案内中です!
・リノベーションマンションについてはほぼ全て仲介手数料無料です!
・住宅ローンに自信あります!
・頭金10万円より購入できます。是非ご相談下さい!
・お部屋のご見学は車で2~3件まとめて案内します!
・物件数3000件以上、新築戸建、リノベ物件も多数ご用意しております!
過去に販売していたお部屋の概要 こちらのお部屋の販売は終了いたしました
| 価格 | -万円 |
| 面積 | 60.89㎡ |
| 間取り | 2edrooms(2SLDK) |
| 管理費 | 月額11,600円 修繕積立金:月額8,120円 |
| 所在階 | 5階 |
| お問い合わせ・ご内見のご予約はこちらからお気軽にどうぞ | |
ここで間取り図のご紹介です。
※間取り図は別タブで開きますので、図面と写真を照らし合わせながらご確認いただけます。
□□□□□□□□□□□□□□□□□□□□□□□□□□□□□□□□□□□□□□□
★★★【目黒青葉台グランドハイツ】周辺のハザードマップをCHECK!!★★★
お部屋の記事を読む前に…!周辺のハザードマップをチェックしておきませんか!
目黒青葉台グランドハイツのハザードマップは★こちらから…どうぞ★
□□□□□□□□□□□□□□□□□□□□□□□□□□□□□□□□□□□□□□□
今回ご紹介するお部屋は5階、間取りは2SLDK、専有面積は60.89㎡。シングルの方からファミリーまで幅広くお使いいただけるお部屋です。では、行ってみましょう。
5階にやってきました。エレベーター前の空間にはゆとりがありますね!
共用廊下は外部廊下です。空からの明るい日差しが心地よいですね!
お部屋の玄関前までやってきました。ちょっとしたアルコーブ的なものがあるので、玄関からの出入りが直接見えにくくなっています。
インターホンはモニター付きです。エントランスに続いて玄関前にもカメラが設置されており、居住者に連れ立ってオートロックを突破してしまった訪問者がいても、玄関前で確認できるので防犯面もOK!
では早速お部屋の中にご案内しましょう♬
ピッカピカの玄関です!玄関・廊下は大理石貼りです。高級感がありますね!
玄関の照明は人感センサー付です。玄関の照明のスイッチが出入り口から手の届くところに設置されていなくても、センサーが人の動きを感知して照明をONしてくれます。両手がふさがっている際も便利ですね!消し忘れもないので省エネです。
玄関を入って左手にはシューズボックスが設置されています。かなりの容量があるので、ご家族でお住まいの方でも対応できます!
また、シューズボックスに並んで収納があります。玄関部分にこれだけの収納があるのは住まい手にとってうれしいですね!
廊下正面には間接照明が仕込まれたディスプレイスペースとその右側にリビングダイニングへの扉があります。
ディスプレイスペースがあるだけで空間に潤いがもたらされますね♡
リビングダイニングキッチンへの扉を開けてみましょう!ドア、オープン!!
明るい木目を基調にした、素敵なリビングダイニングキッチンが現れました!
リビング側からキッチンのある方向を眺めるとこんな感じです。
オープンキッチンなので、全体的に広々として見えますね!
壁面の一部には間接照明が計画されていました。ダウンライトやダクトレールもあり、夜は照明でお部屋を素敵に演出できそう![]()
ソファやテレビ台を置くスペースも確保されているので、家具のレイアウトもしやすいと思いますよ!
ダイニングスペース横には可動棚付の収納があります。掃除機や、お子様がいらっしゃるご家庭はお子様のおもちゃやランドセル・リビング学習用のグッズをいれておくのにちょうどよい位置にあると思います!
テレビ台を置けそうな場所には飾り棚が設置されています。お好きなオブジェやDVDを置いておくのにちょうど良さそうですね。
ダイニング・キッチン部分にやってきました。
続いてキッチンをご紹介しましょう!
明るい木目で統一されたフルオープンの開放的なキッチンです。
ご覧の通り、引出し収納が充実しています。引出し式だと奥にしまったものも取り出し易いですよ!
食器洗浄乾燥機が装備されており、家事を少しでも楽にする手助けをしてくれます。大活躍すること間違いなしの設備です。
コンロは3口魚焼きグリル付。コンロは温度設定が可能なので、揚げ物をする際に油の温度を一定に保つことが可能です。
レンジフードはステンレス調でカッコイイですね!!
キッチンの水栓は浄水器一体型です。ワンタッチで浄水に切り替え可能です。美味しいお水を調理にも使えてとても便利です。蛇口を伸ばせるのでシンクのお掃除も楽々。
シンクはシームレスですよ!
冷蔵庫置場とカップボードを置くスペースもシッカリと確保されています。
キッチンからリビングダイニング側をみるとこんな感じです。
お料理をしながら家族との団らんも可能なキッチンです。
キッチンの向かい側にあるガラス扉内、気になるスペースがありますね!
こちらはサービスルームです。ご家族のワークスペースとして大活躍しそうですね!!
ソファで読書をしたり、デスクでパソコン作業をしたり。このお籠り感、いい感じです。壁には有孔ボードが設置されているので、様々なものを掛けてディスプレイすることができます。
続いてリビングスペースにある引き戸を開けてみましょう♬
洋室です。バルコニーに面した掃出し窓があるのでとても明るいですね!こちらは南西向きです。
お部屋の出入り口側を見るとこんな感じです。右側に何やら扉がありますね…
扉の中はウォークインクローゼットでした!結構広いです。枕棚とハンガーパイプが設置されていますが、その下はご自身でどうにでもアレンジできます。収納家具で工夫して、使い勝手良く変身させてしまいましょう♪♪
廊下に戻り、水廻りなどなどご案内します。
廊下に出て左手にある扉を開けるとそこはトイレでした。
落ち着きのある色味で統一されたトイレ空間はつい長居してしまいそうですね…
温水洗浄暖房便座付。もはやこれがないと生きていけないくらい重要な設備ですね(笑)
吊戸棚はトイレットペーパーなどがスッキリと収納できるスリムタイプです。ニッチがあるのでフェイクグリーンを置いたり、トイレ空間を彩ってみましょう!
玄関の収納手前にある扉の中は…洗面室でした。
清潔感のある洗面化粧台が採用されています。
キャビネット下は引出し収納、三面鏡裏も収納になっています。ごちゃごちゃしてしまう小物類はこちらに仕舞えば、洗面化粧台まわりもスッキリ。
洗面化粧台の蛇口は引き出せるタイプです。シームレスな洗面ボウルでお掃除も手間なくできますね。
浴室は白に淡い木目のまるでお部屋のようなインテリア。
シャワーヘッドはスライドバーに設置されており、高さ調節が可能です。
浴槽は追い炊き機能付き。ご帰宅時間がバラバラなご家族でも、追い炊きすればいつでも温かい湯船が待っています。
浴槽はエッジがきいていますね
シンプルでいい感じです。
浴室には浴室暖房換気乾燥機付です。洗濯物が乾きにくい季節でも、これさえあれば大丈夫!数時間で完全に乾かすことができますよ!
玄関に向かって左手にある引き戸を開けてみます。
広めの戸口で出入りのしやすさはもちろんのこと、家具を入れる時も余裕の広さ。
こちらの洋室にも窓があります。窓があるだけでお部屋の明るさが違いますね。
こちらの窓、共用廊下側なので眺望は全くありませんが、採光・通風には十分ですね。
2枚の引き戸の奥には…クローゼットがありました。横幅のあるクローゼットです。これだけの収納があれば、もしかしたら衣替えせずとも大丈夫かもしれませんね!
最後にバルコニーをご案内します。
リビングダイニングに戻り、窓を開けてバルコニーに出てみましょう♪
ガラス手摺で開放感のあるバルコニーです。高所恐怖症の方はちょっと怖さを感じるでしょうか??
三角形状のバルコニーです。洗濯物干し金物は奥行きが小さくなっている部分に設置されているので、広い部分にはイスとテーブルを置いても良さそうです。
お向かいの建物からは距離があるので圧迫感はありません。晴れた日は青い空を眺められますよ![]()
・
以上で目黒青葉台グランドハイツのご案内を終わります。
いかがでしたでしょうか??
神泉駅から徒歩6分のマンションです。
リノベーション済みという事で室内はとてもキレイですよ (っ・ω・)っ
内見のご予約やご質問などございましたらお気軽にお問い合わせくださいませ。
ご連絡お待ちしております。
□□□□□□□□□□□□□□□□□□□□□□□□□□□□□□□□□□□□□□□
★★★【目黒青葉台グランドハイツ】周辺のハザードマップをCHECK!!★★★
お部屋のご購入前に…!周辺のハザードマップをチェックしておきませんか!
目黒青葉台グランドハイツのハザードマップは★こちらから…どうぞ★
□□□□□□□□□□□□□□□□□□□□□□□□□□□□□□□□□□□□□□□
弊社、不動産Agent 六棒株式会社では、
□リノベーションマンションはほぼ全て仲介手数料無料!
□その他一般仲介物件は仲介手数料20%~30%OFF!
にてお取り扱いしております!※弊社の「Agent Fee=仲介手数料」についてはご案内、ご面談の際に営業担当者よりご説明いたします!
なるべく沢山のお部屋をホームページに掲載したいと思っておりますが、時間的成約もございますので、残念ながらご紹介できるお部屋の一部しか掲載できておりません。
このホームページに掲載中のお部屋、その他サイト等で気になるお部屋、街を歩いていて気になったマンション等々ございましたら是非、弊社営業部までご相談ください!
~不動産Agent 六棒株式会社の特徴~
・一般仲介物件の仲介手数料は20%~30%OFFにてご案内中です!
・リノベーションマンションについてはほぼ全て仲介手数料無料です!
・住宅ローンに自信あります!
・頭金10万円より購入できます。是非ご相談下さい!
・お部屋のご見学は車で2~3件まとめて案内します!
・物件数3000件以上、新築戸建、リノベ物件も多数ご用意しております!
過去に販売していたお部屋の概要 このお部屋の販売は終了いたしました。
| 価格 | -万円 |
| 面積 | 60.89㎡ |
| 間取り | 2edrooms(2SLDK) |
| 管理費 | 月額11,600円 修繕積立金:月額8,120円 |
| 所在階 | 4F |
| お問い合わせ・ご内見のご予約はこちらからお気軽にどうぞ | |
ここで間取り図のご紹介です。
※間取り図は別タブで開きますので、確認しながらご覧いただく事が出来ます。
□□□□□□□□□□□□□□□□□□□□□□□□□□□□□□□□□□□□□□□
★★★【目黒青葉台グランドハイツ】周辺のハザードマップをCHECK!!★★★
お部屋の記事を読む前に…!周辺のハザードマップをチェックしておきませんか!
目黒青葉台グランドハイツのハザードマップは★こちらから…どうぞ★
□□□□□□□□□□□□□□□□□□□□□□□□□□□□□□□□□□□□□□□
今回ご紹介するお部屋は4階、間取りは2LDK、専有面積は60.89㎡。
ペット飼育可の物件です。
エレベーターを4階で降りて…
カクカクと折れ曲がった外廊下を進みます。玄関が人目に触れづらく、プライベート感があっていいですね。
タイルによく合った高級感のある玄関ドア。横にはテレビモニター付きインターホンがあり、室内モニターで訪問者を確認出来る様になっています。もう、息をひそめてドアスコープから覗く必要はありませんよ(笑)
それではお邪魔します…
玄関内から廊下にかけては大理石仕上げになっています。少し温かい色で冷たい感じがしないのがGOOD!
玄関ドアはダブルロック。エントランスのオートロックと合わせればトリプルです♬
人感センサーが付いていて、中に入っただけで照明を点けてくれます。いつでも明るい玄関に帰って来れるのっていいですよね(*‘ω‘ *)
廊下突き当りの、少し右にずれた所にLDKへのドアがありました。ドアが開いていても玄関から中が見えづらくなっているんですね(^^)では入ってみましょう。
こちらがリビング・ダイニング・キッチン。ナチュラルな雰囲気のフローリングやシンプルなクロスを使った、スッキリとした印象のお部屋ですね。好みです♡
間接照明、ダウンライト、スポットライトと様々な照明が、シンプルなお部屋にアクセントを加えています。エアコンは少しでも高い所にって事でしょうか?こういった所、嬉しいですよね。
西日が綺麗です。正に穏やかな午後(´▽`*)
モデルルーム仕様なので家具は付いてはきませんが、あると生活のイメージがし易くて助かります。いろいろ参考にもなりますしね。
次はサービスルーム。廊下から入ってすぐ左のガラス戸の向こうです。この扉ですが、ガラスではない普通の扉に変更も可能だそうですよ。小さいお子様がいたりするとちょっと心配ですよね。もちろん無償です♪♪
造り付けのデスクと棚。壁にはフックでいろいろな物が掛けられる様になっていました。趣味の部屋にしたり、書斎、勉強部屋、家事スペースなんかもいいですね。
次はキッチンへ…
ペニンシュラキッチン。後ろには冷蔵庫や家電ラック、食器棚などのスペースがとってあります。
お部屋の雰囲気に合わせた調理台です。
調理台下は引き出しタイプの収納と食洗器になっていました。食洗器、憧れます~。食器洗い当番とか決めなくていいんですよ(笑)
水栓は浄水機能付きシャワー水栓。ひと昔前までは、浄水器付いていても専用の水栓だったんですけどね。今では切替えだけでいいんですから便利な時代になりました。
コンロは3口。片面焼きグリルも付いています。ピカピカのコンロっていいですよね。汚れも落ちやすくなっているので、まめにお掃除したいものです。
お料理中は換気扇をお忘れなく!
では、次のお部屋へ…
こちらはバルコニー側の洋室。大きな窓があって明るいお部屋です。
収納はウォークインクローゼット。引き違い戸で左右どちらにも開きます。ウォークインクローゼットとしては幅が広く、とても使い勝手が良さそうです。奥行きが深いものは、洋服が詰まってくると奥へ行くのが大変なんですよね^^;)
では、廊下に戻って…トイレです。
シンプルでいいですね~。落ち着けそうです♪♪ ご自身の好みに変えていくにしても、邪魔になる所がないですものね。
温水洗浄便座付き。TOTO製のウォシュレットです。キャビネットが低い位置なのが嬉しいですね。高い吊戸棚だと足がつりそうになります^^;)
廊下には収納棚が左右に一つづつ。
リビングから見て左側は奥行きが深く、右側は幅が広くなっていました。用途によって使い分けられます。
次は洗面室へ…
こちらには洗面台、洗濯機スペース、浴室がまとまっています。
幅の広い、三面鏡付きの洗面台です。
収納は洗面台下に引き出しタイプと三面鏡裏にキャビネット。こちらも、それぞれ特徴があって使い分けがし易そうです。
水洗はハンドシャワータイプ。洗面ボウルの両脇には広いスペースがあって、ちょっと何かを置くのにも便利です。
洗濯機スペースには吊戸棚も付いていて、洗濯関係の諸々をまとめておけます。濡れた手でも開けやすい造りに優しさを感じますね(^^)
次は浴室を…
追い焚き機能が付いていますので、ご自分のタイミングでお風呂に入る事が出来ますよ。もう「冷めちゃうから早く入っちゃって!」なんて言われる心配もありません。
ゆったりと浸かれる1418サイズの浴槽です。
浴室乾燥機はただの換気扇ではありません!洗濯物を乾かしたり、ヒートショックを予防したりといろいろな役に立ってくれます。どんどん使っていきましょう!
次のお部屋へ…
玄関側の洋室です。このお部屋にも大きな窓が付いていますね。
収納は部屋幅いっぱいを使ったクローゼット。奥行きもあって収納力はバッチリです。
窓は上下二つに分かれていて、下側はFIX窓で開きません。窓の外は外廊下。面格子もしっかり設置されていました。
それでは、最後にバルコニーに出てみましょう。
LDK、バルコニー側の洋室、どちらからでも出る事が出来ます。
6.86㎡の三角形をしたバルコニー。その形おかげでバルコニーはほぼ南向きになっているんですよ(^^)狙いですかね?床面には綺麗にデッキパネルが敷かれています。
外の眺めです。
前に一つだけ高い建物がありますが、それ以外はまずまずの眺めです。今は2月の16時頃。この方角に陽が沈んでいくんですね。綺麗な夕焼けに期待しちゃいます♬
・
以上で目黒青葉台グランドハイツのご案内を終わります。
いかがでしたでしょうか??
神泉駅から徒歩6分のマンションです。
リノベーション済みという事で室内はとてもキレイですよ (っ・ω・)っ
内見のご予約やご質問などございましたらお気軽にお問い合わせくださいませ。
ご連絡お待ちしております。
□□□□□□□□□□□□□□□□□□□□□□□□□□□□□□□□□□□□□□□
★★★【目黒青葉台グランドハイツ】周辺のハザードマップをCHECK!!★★★
お部屋のご購入前に…!周辺のハザードマップをチェックしておきませんか!
目黒青葉台グランドハイツのハザードマップは★こちらから…どうぞ★
□□□□□□□□□□□□□□□□□□□□□□□□□□□□□□□□□□□□□□□
弊社、不動産Agent 六棒株式会社では、
□リノベーションマンションはほぼ全て仲介手数料無料!
□その他一般仲介物件は仲介手数料20%~30%OFF!
にてお取り扱いしております!※弊社の「Agent Fee=仲介手数料」についてはご案内、ご面談の際に営業担当者よりご説明いたします!
なるべく沢山のお部屋をホームページに掲載したいと思っておりますが、時間的成約もございますので、残念ながらご紹介できるお部屋の一部しか掲載できておりません。
このホームページに掲載中のお部屋、その他サイト等で気になるお部屋、街を歩いていて気になったマンション等々ございましたら是非、弊社営業部までご相談ください!
~不動産Agent 六棒株式会社の特徴~
・一般仲介物件の仲介手数料は20%~30%OFFにてご案内中です!
・リノベーションマンションについてはほぼ全て仲介手数料無料です!
・住宅ローンに自信あります!
・頭金10万円より購入できます。是非ご相談下さい!
・お部屋のご見学は車で2~3件まとめて案内します!
・物件数3000件以上、新築戸建、リノベ物件も多数ご用意しております!
過去に販売していたお部屋の概要 このお部屋の販売は終了いたしました。
| 価格 | -万円 |
| 面積 | 69.69㎡ |
| 間取り | 2edrooms(2LDK) |
| 管理費 | 月額13,200円 修繕積立金:月額9,290円 |
| 所在階 | 5階 |
| お問い合わせ・ご内見のご予約はこちらからお気軽にどうぞ | |
それでは!今回ご紹介させて頂くお部屋の間取りです。
69.69㎡の2LDKです!!
さっそく参りましょう -=≡ヘ(*・ω・)ノ
エレベーターを降りると外廊下が続いています。
雨や風の影響は受けてしまいますが、湿気や臭いが籠ることはありません。
特にペット可の物件は獣臭もあるので基本的に外廊下ですね(U^ω^)
玄関の前まで来ました。
モニター付きのインターフォンが付いているので、オートロックと併せてダブルのセキュリティーです。
外廊下なので泥棒も頑張れば入ってこれそうですから。用心はしっかりと!ぬかりなく!ですよ∠(`・ω・´)
ひらけごまーーーー!!!!!!
さすがにリノベーション済みという事で、玄関もピカピカですね(☆Д☆)
シューズボックスはセパレートタイプという事で中央がカウンター状になっています。
玄関にお花があると全然印象が違ってきますよ!!
第一印象でお部屋全体の雰囲気が決まる!と言っても過言では無いので、玄関はいつもオシャレにスッキリを心がけたいですね♪♪
それでは廊下を奥まで進んでいきましょう (((((((((((っ・ω・)っ
廊下の途中に収納がありますね。
棚の高さは自由に調節することが出来るので、掃除機なんかも入りそうです。
あとは犬用散歩ロープと予想します(U^ω^)
改めて廊下を進んでいきます・・・・・
なんだか眩しいドアを開けると・・・・・
これはッッッーーーーーーーー!?
予想通り、こちらはリビング・ダイニング・キッチンです。
リビング・ダイニングだけで約13.6帖の広さがあります。
リビング・ダイニングは文字で説明するよりも写真を見てもらった方が分かり易い気がするのですよね!!
という事で、軽く説明を交えながら駆け抜けていきます -=≡ヘ(*・ω・)ノ
南西は一面が窓、南東には出窓がついていますよ。
青い家具って個人的には好きなのですよね。
白い壁に青い家具ってなんだかギリシャのようなイメージです。
流石の角部屋です。
昼間なら電気をつけなくても十分な明るさがあります (☆Д☆)
ソファーに座ればこんな感じでしょうか??
カメラの都合で、外が白くなってますが肉眼だと青空が見えますよ。
照明はレール上にダウンライトが付いています。
都会のオシャレなオウチには必須のアイテムです。
位置や向きは自由に変えることが出来ますし、ライトそのものを追加、入れ替えることも可能です!
「ダクトレール 照明 おしゃれ」のように検索すると夢が広がりますよヽ(゚▽゚*)乂(*゚▽゚)ノ
次はキッチンです。
とにかく広いです。約4.1帖という表現で何となく広さが伝わるはずですよ!!
コンロ側が壁にくっついたペニンシュラキッチンというタイプです。
とーっても大きなシンクを備えた水栓、3口のグリル付きガスコンロ、食器洗浄機が付いています!!
これだけの設備があればどんなお料理でも作ることができそうですね!!
洗い物の事を気にしなくていいので、お料理に100%集中する事が出来ますよ ( ´∀`)b
こちらが収納です。
引き出しタイプになっているので、奥まで無駄なく使うことが出来ますよ。
別途、棚を置く前提でスペースとしては少な目かもしれません。
オープンキッチンという事で、お料理をしながらご家族と会話を楽しむことが出来ます。
大勢でキッチンを囲むこともできますね ヽ(´∀`)
キッチンのお隣にはお部屋があります。
入口のすぐ隣のドアなのですが、写真だと少し分かりにくいかもしれませんね・・・
こちらの方が分かり易いかもしれません (`・ω・´)
さて、こちらの洋室は約4.6帖。
東向きの窓が付いていますよ(○´ω`○)
棚とクローゼットが付いています。
棚の高さは調節ができるので、お好みで本棚にも出来ますし、観葉植物を置くこともできますね!!
なんとこの部屋にはバルコニーが付いています。
とはいっても、洗濯物を干したりできる広さはないので、基本的にはエアコンの室外機置場になると思って頂いて大丈夫かと思います( ー`дー´)
次に進みます。
リビングを出てすぐ右手のドアを開けてみましょう!!
こちらは・・・
こちらは・・・・
はい!ご覧の通りの洋室です!!
先ほどのお部屋よりも少し広い約6.2帖の広さがありますよ( ・∀・)
東側に大きな出窓が付いているので、明るいお部屋になっていますね♪♪
クローゼットと棚がついています。
先ほどのお部屋と同じものなので、説明は不要ですね(`ω´)
なんと、こちらには大きなウォークインクローゼットが付いています。
約1.4帖もあるのでかなり広いですね。
大量のお洋服を掛けることが出来るので、面倒な衣替えも一瞬で終わりそうです。
廊下を玄関まで戻ります (((((((((((っ・ω・)っ
玄関まで戻ってきました。
実は玄関の左側にも色々あったのですよ (・`ω´・ ○)
ロールスクリーンを上げると洗濯機置場が登場します。
完全に密封することの無いロールスクリーンなので、湿気が籠ることもありません。
棚もあるので、小物の置き場所にも困りませんね (・ω・)b
ドアが二つありますね・・・
まずは突当りのドアから開けましょう c (っ・ω・)っ
奥はトイレになっています。
タンクレスタイプなのでとてもスッキリ見えますね!!
ちゃんとウォシュレットが付いているのも安心できますね。
シンプルにギュッとまとまったトイレで使い勝手も良さそうですよ (・ω・)b
次はこちらです。
洗面室にはかなり大きな洗面台が付いています。
洗面ボウルも大きいので水はねの心配もほとんどなさそうです (○´ω`○)
お洒落なモザイクタイルが大人の雰囲気を出しています。
ミラー内部と足元の収納があれば洗面周りの小物はほとんど収納できそうです。
箱やカゴを利用してスッキリとまとめたいですね!!
次はお風呂です。
お風呂には浴室換気乾燥機能が付いています。
雨の日や風の日はここで洗濯物を干すことが出来るので、もう梅雨や夕立も怖くないですね ( ・`ω・´)
濃いブラウンの浴室は心が落ち着きますね。
追い焚き機能も付いているので、帰りが遅くなった深夜でも熱いお風呂に入ることが出来ますね!!
一日の疲れをしっかりと洗い流して、翌日も頑張りましょうヾ(*´∀`*)ノ
最後にバルコニーです。
南西向きのバルコニーは陽当たりもバツグン!!
眺望もご覧の通り申し分ないかと思います。
都会というだけあって交通量は多めの道路です。
タクシーはすぐにつかまりそうです( `д´)b
では、以上で目黒青葉台グランドハイツのご案内を終わります。
いかがでしたでしょうか??
渋谷も徒歩圏内という好立地のリノベーションマンションです。
ペット可の物件なのは動物好きには嬉しいですね(U^ω^)
内見のご予約やご質問などございましたらお気軽にお問い合わせくださいませ。
ご連絡お待ちしております。
弊社、不動産Agent 六棒株式会社では、
□リノベーションマンションはほぼ全て仲介手数料無料!
□その他一般仲介物件は仲介手数料20%~30%OFF!
にてお取り扱いしております!※弊社の「Agent Fee=仲介手数料」についてはご案内、ご面談の際に営業担当者よりご説明いたします!
なるべく沢山のお部屋をホームページに掲載したいと思っておりますが、時間的成約もございますので、残念ながらご紹介できるお部屋の一部しか掲載できておりません。
このホームページに掲載中のお部屋、その他サイト等で気になるお部屋、街を歩いていて気になったマンション等々ございましたら是非、弊社営業部までご相談ください!
~不動産Agent 六棒株式会社の特徴~
・一般仲介物件の仲介手数料は20%~30%OFFにてご案内中です!
・リノベーションマンションについてはほぼ全て仲介手数料無料です!
・住宅ローンに自信あります!
・頭金10万円より購入できます。是非ご相談下さい!
・お部屋のご見学は車で2~3件まとめて案内します!
・物件数3000件以上、新築戸建、リノベ物件も多数ご用意しております!










































































































































































































































































