□□□□□□□□□□□□□□□□□□□□□□□□□□□□□□□□□□□□□□□
いつも弊社ホームページをご覧頂き誠にありがとうございます。
三田 新築一戸建住宅(D号棟)はお陰様で販売を終了致しました。弊社問合せフォームにてご要望頂けましたら、当お部屋でキャンセル等が発生した場合、他のお部屋が販売になりました際にご紹介させて頂きます。
弊社では、仲介手数料無料orお値引(50%off、30%off、20%off)にて皆様のマイホーム探しのお手伝いをさせて頂きいております。三田 新築一戸建住宅(D号棟)の類似物件や、お探しのご条件等をお聞かせ頂けましたらご条件に合ったお部屋をご紹介させて頂きます。また、ご来社頂き一緒に探させて頂くことも可能ですので、是非弊社問合せフォームよりお気軽にお問合せください。
不動産Agent 六棒株式会社
TEL:03‐5413‐5336
□□□□□□□□□□□□□□□□□□□□□□□□□□□□□□□□□□□□□□□
本日は、目黒区三田 『新築一戸建て住宅』 の見学に行って参りました。
恵比寿駅東口からガーデンプレイスに向かいます。

ガーデンプレイス中央広場に『歓びのかたち』なる、とても大きなシャンデリアが
展示されていました。思わずパシャリ!
そしてモニュメント右の1F棟内のおくへ進みます。
さすがに中にはオシャレなショップがありますね。
美味しそうなワインショップが あり、とてもオシャレな飲食店がズラリ揃ってますね。
ここなら直ぐに来れて最高ですね。
さてさて、通路を抜けてガーデンプレイス裏手に出てまいりました。
そこにはお花畑(?)が……手入れが行き届いているのか冬に咲くお花…..はっ!緑があり、色とりどりのお花がありで、夏場は日影になる最高の場所では……と思いつつ先へ進みます。
インターロッキングのスロープを下り、すぐ右折、そして1つ目の路地を左折です。
すると……見えてきました。
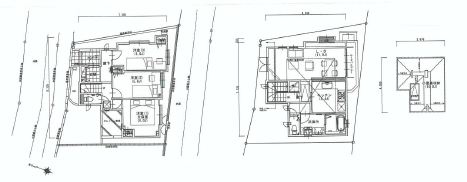
新築一戸建住宅2階建
平成25年9月築
土地面積 78.67㎡
建物面積 延べ92.73㎡(28.05坪)
間 取 り 1階46.96㎡/2階45.77㎡ (小屋根裏16.24㎡別)
外観はモダンな感じが良いですねI駐車場スペースも確保。
ん?駐車場スペースに「リュウノヒゲ(竜の髭)」と言われる植物が植栽されています。
この植物を植えた周りには、雑草が生えにくくなるそうです。
玄関先には植栽が施されてますが、自分の好きな植物を育てるのも良いですね!
玄関ドアはウッドです。そしてPCカードキー採用してます。
大容量のシューズボックスですね。かなりの靴が収容出きて、何と、締めると鏡が付いているのでお出かけ前の身だしなみチェックが出来ちゃいます!これは便利!
洋室1 6.6畳
洋室2 5.5畳
洋室3 5.9畳
洋室1を寝室で洋室2を子供部屋して洋室3をゲストルームにするとか…….
はたまたシアタールームにしちゃうとか……いろいろ考えてしまいます。
1階のウォッシュ付トイレ。
収納棚ありますのでペーパーのストックはこちらをお使いいただけます。
さて、いよいよ2階へ。
キッチンが見えてきました!
早速行きましょう!
入口から正面に見えますはコンロでした。
これだけあれば調理道具もたくさん収納できますね!
引き出しは閉じる直前で圧がかかり『バンッ』と閉まりません!指も安全です。
そして左にあるのは……
水道と調理台です。
調理台はかなり広いので、料理が大好きな方は有意義にご利用できると思います。
引き出しの一番右は食器洗浄機になってますので、面倒な食器洗いも楽々ですね。
そんなキッチンカウンターからのPhot
いかがでしょうか。
テレビの設置する場所は、左上の写真正面の位置しかないのでは!
そこなら料理しながらでも、気になる番組を見逃しません(あくまでも私の思考回路だとこんな事しか思いつきませんでした……)。
L・Dは11畳もあり、広々使えますので様々なセッティングが出来ます。
見て戴いてお分かりの通り、サッシです。
しかし、サッシの下をご注目ください。
ストッパーが有ります。左を押すと右が上がり、右を下げれば平になります。
なんだか安心です。
すみません……写真だと分りづらいのですが、真中から左右に下がっていて雨水が全く溜らない構造になっております。確かにいつまでも水溜りが有るのは建物にとって非常に良くないのでこれは有りがたいです。
続いては……
三面鏡の洗面台です。
両サイドの鏡が開き収納ボックスになっていますので片づけもバッチリですね。さらにさらに、引き出しが2段有るので楽々収納出来ちゃいます。
バスルーム
かなり豪華です!広い湯舟に奥行きのある棚(現在は汚れ防止の為、養生中です)。
鏡が端から端まで長くて色んな角度の自分が見えます。
天井には1本のLED照明が光っていて、黒の壁に反射して奥まで続いてるかの様に見えます。
ウォッシュ付トイレです。
入口左に収納棚が有るのでそこへトイレットペーパーのストックが出来ます。
2F廊下の天井には、小屋裏があり、専用のスティックで隠し階段を下げます

驚くくらいに全然重さがないです。
3段折りになっていて伸ばす時も楽々です。
階段上ると……なんか秘密基地が出来たみたいでドキドキします。
小屋裏 16.24㎡
納得の収納スペースです。これだけあればある程度の物は仕舞えます。
但し、梯子に上る際には気を付けましょう!
それでは最後まで見て頂きありがとうございました。
少しでも「ピン」と来ましたら、いつでもご連絡ください。
みなさまのご内見、こころよりお待ちしております!
































































弊社 公式HP
六棒総合研究所
掲載予定物件
価格変更と販売終了物件
ハザードマップ検索
適合証明書.jp
Facebook
Twitter
Instagram