・
□□□□□□□□□□□□□□□□□□□□□□□□□□□□□□□□□□□□□□□
いつも弊社ホームページをご覧頂き誠にありがとうございます。
中目黒マンションはお陰様で販売を終了致しました。弊社問合せフォームにてご要望頂けましたら、当お部屋でキャンセル等が発生した場合、他のお部屋が販売になりました際にご紹介させて頂きます。
不動産Agent 六棒株式会社
TEL:03‐5413‐5336
□□□□□□□□□□□□□□□□□□□□□□□□□□□□□□□□□□□□□□□
・
目黒川沿いの大規模マンション『中目黒マンション』のご紹介です!
ひとつお隣の代官山もご利用いただけます。
アクセス
東急東横線「中目黒」駅徒歩2分
東急東横線「代官山」駅徒歩7分
東急東横線、東京メトロ日比谷線が乗り入れる中目黒。
東横線で渋谷まで2駅、日比谷線で恵比寿、六本木方面などなど都内各所へのアクセスも良好です。
マンションは駅から徒歩2分。ちょうどアトラスタワーと川を挟んで反対側あたりにあります。駅から近いと出勤もおでかけもラクなのがうれしいですね。
マンションから徒歩5分圏内にはスーパー、コンビニ、薬局などがありお買い物も便利。約900mある商店街も駅の近くにあり暮らしやすい環境です。
中目黒といえば目黒川沿いの桜が有名。春には多くの見物客でにぎわいます。
今年はクリスマスイルミネーション「青の洞窟」も桜並木でやってました!ここで暮らしたら、桜もイルミネーションもお散歩がてらに見にいけます。
マンションから徒歩10分ほどの距離には四季折々の花や植物がみられる中目黒公園も。静かでのんびり過ごしたい方におすすめスポットです。この公園とその周辺一帯は広域避難場所になっているため、園内には防災機能が確保されているそうです。
中目黒マンションは総世帯数100戸の大規模マンション。
昭和40年築、地下1階付き地上10階建て。
通勤の管理人さんもいらっしゃいます。
マンションの1階にはカフェなどの店舗が入っています。
目黒川沿いにもおしゃれなカフェが点在しているので、散策するとお気に入りの1件に出会えそうです。お休みの日は代官山まで足を伸ばしてみるのもいいですね!
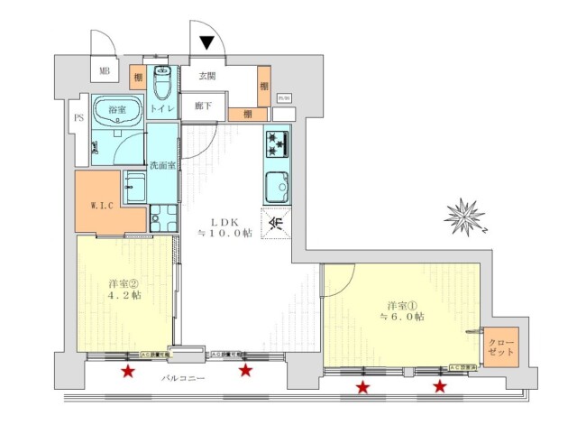
今回ご紹介するのは3階、専有面積51.50㎡の2LDK。おひとり暮らしからスモールファミリーの方まで幅広くお使いいただけるお部屋です。全室窓付き!
間取り図はコチラ ↓ ↓ ↓
※間取り図は別タブで開きますので、確認しながらご覧いただくことができます。
それでは早速行ってみましょう!
【玄関】
玄関から続く土間部分には棚が設置され、シューズインクローゼットのようになっています。キャリーバッグやスポーツ用品など、室内に持ち込むのはチョットという物の置き場にも良さそうですね。
【トイレ】
トイレは洗浄機能一体型。いろいろ飾ってインテリアを楽しめるニッチカウンターも付いています。
【LDK】
こちらは約10帖のリビング・ダイニング・キッチン。自然の木目を活かしたフローリングをベースに、ダークトーンの建具がアクセントとなったナチュラルモダンなお部屋です。ディスプレイの家具もよく合っていますね。残念ながら付いてくるわけではありませんが、参考にさせてもらいましょう!
【LDK】
【キッチン】
キッチンは壁付けタイプ。場所をとらずにお部屋を広く使えるのが特徴です。ただし、キッチン内が目立つのでなるべくキレイにしておきましょう。コンロは三口、グリル付き。
【LDK+洋室2】
こちらはLDKから約4.2帖の洋室2を見た様子。引き込み式の引き戸で仕切られているので、全開にすればLDKとつなげて使うことも可能です。ご家族構成やライフスタイルによってフレキシブルに使えるのは嬉しいですよね。洋室2にはウォークインクローゼットも付いています。
【洋室1】
こちらは約6帖の洋室1。他の部屋と同じくバルコニーに面したお部屋です。バルコニーへの全て窓には、防音性や断熱性に優れたインナーサッシ付き!
【洗面室】
洗面室には洗面化粧台の他に洗濯機スペースと浴室がまとまっていて脱衣室も兼ねています。洗面化粧台は身だしなみを整えるのに便利な三面鏡付き。裏がキャビネットになっているので、洗面周りに散らかりがちな細々したものもスッキリと片付けることができますよ。
【浴室】
1216サイズの浴室は木目パネルに囲まれた落ち着いた雰囲気。ゆったりと湯舟に浸かれば一日の疲れも洗い流せそうですね♬ 追い焚き機能や浴室換気乾燥機などの便利機能も完備。お天気を気にせずにお洗濯機を回せるのは助かります。
・
以上で中目黒マンションのご案内を終わります。
いかがでしたでしょうか??
中目黒駅から徒歩2分のマンションです。
リノベーション済みという事で室内はとてもキレイですよ (っ・ω・)っ
内見のご予約やご質問などございましたらお気軽にお問い合わせくださいませ。
ご連絡お待ちしております。
弊社、不動産Agent 六棒株式会社では、
□リノベーションマンションはほぼ全て仲介手数料無料!
□その他一般仲介物件は仲介手数料20%~30%OFF!
にてお取り扱いしております!※弊社の「Agent Fee=仲介手数料」についてはご案内、ご面談の際に営業担当者よりご説明いたします!
なるべく沢山のお部屋をホームページに掲載したいと思っておりますが、時間的成約もございますので、残念ながらご紹介できるお部屋の一部しか掲載できておりません。
このホームページに掲載中のお部屋、その他サイト等で気になるお部屋、街を歩いていて気になったマンション等々ございましたら是非、弊社営業部までご相談ください!
~不動産Agent 六棒株式会社の特徴~
・一般仲介物件の仲介手数料は20%~30%OFFにてご案内中です!
・リノベーションマンションについてはほぼ全て仲介手数料無料です!
・住宅ローンに自信あります!
・頭金10万円より購入できます。是非ご相談下さい!
・お部屋のご見学は車で2~3件まとめて案内します!
・物件数3000件以上、新築戸建、リノベ物件も多数ご用意しております!
過去に販売していたお部屋の概要 こちらのお部屋の販売は終了いたしました
| 価格 | -万円 |
| 面積 | 37.81㎡ |
| 間取り | 1bedroom(1LDK) |
| 管理費 | 月額8,300円 修繕積立金:月額8,300円 |
| 所在階 | 2階 |
| お問い合わせ・ご内見のご予約はこちらからお気軽にどうぞ | |
間取りのご紹介です。1LDK、37.81㎡。2階。
中目黒、代官山がお好きなシングルの方におすすめです。
室内は只今リノベーション工事中!
一足先に充実のリノベーション内容をご紹介いたします。
■キッチン・・・システムキッチン(Panasonic)
■浴室・・・ユニットバス(TOTO)、追い焚き機能付き、浴室換気乾燥暖房機付き
■洗面所・・・洗面化粧台 (LIXIL)、洗濯水栓、防水パン
■トイレ・・・TOTO、ウォシュレット機能付き
■その他・・・フローリング貼替、壁・天井クロス張替、フロアタイル貼替、クッションフロア張替、建具交換、給湯器交換、エアコン(1基)、新規照明器具取付、カラーTVモニター付きインターフォン、収納棚新設、スイッチ・コンセント交換、ハウスクリーニング
【内装工事終了予定:2015年2月中旬】
工事終了前のご紹介も可能ですので、ご内見のご希望・ご質問などございましたら、
下記のお問合せフォームを今すぐクリック!
お電話03-5413-5336でも承っております。































弊社 公式HP
六棒総合研究所
掲載予定物件
価格変更と販売終了物件
ハザードマップ検索
適合証明書.jp
Instagram