・
□□□□□□□□□□□□□□□□□□□□□□□□□□□□□□□□□□□□□□□
いつも弊社ホームページをご覧頂き誠にありがとうございます。
日商岩井碑文谷マンションはお陰様で販売を終了致しました。弊社問合せフォームにてご要望頂けましたら、当お部屋でキャンセル等が発生した場合、他のお部屋が販売になりました際にご紹介させて頂きます。
不動産Agent 六棒株式会社
TEL:03‐5413‐5336
□□□□□□□□□□□□□□□□□□□□□□□□□□□□□□□□□□□□□□□
・
総世帯数128戸のビックコミュニティ!日商岩井碑文谷マンションのご紹介です。
アクセス
東急東横線「都立大学」駅徒歩8分
最寄は自由が丘の1つお隣の都立大学駅。急行は停まらないものの、渋谷まで1本で行け都心方面へのアクセスも良好です。
都立大学駅周辺には商店街が形成されており、スーパー、薬局、おなじみのカフェ、100円ショップ、銀行、交番などが並んでいます。お隣の自由が丘、学芸大学に比べるとのんびりと落ち着いた印象ですが、住み心地のよさそうな雰囲気です。
マンションは碑文谷方面。駅を出たら左方向へ進み、目黒通りに出たら通り沿いを柿の木坂陸橋方面へ歩いて行きます。夜遅くの帰宅道も大通り沿いを歩いて帰れるので安心です。
柿の木坂陸橋の交差点まで来たらもうすぐ到着。道をまがり環七沿いを歩いていきます。
柿の木坂陸橋を通過してそのまま目黒通り沿いを歩くと、オオゼキやイオンなどの大型スーパーもあります。どちらもマンションから徒歩6分圏内と近いです。駅からの帰り道なら駅周辺で、休日はご近所のイオンやオオゼキでお買い物、と分けて利用できるのも便利ですね。
マンションから徒歩2分のバス停からは二子玉川・目黒・桜新町へと出ることもできます。
目黒を通過して赤羽、日比谷、東京駅まで走ってくれるバスもあるので、もしかすると電車よりも使い勝手が良いかもしれません。
こちらのマンションが日商岩井碑文谷マンションです。
昭和51年築、9階建て、総世帯数127戸のビックコミュニティ!
耐震診断実施済み、新耐震基準に適合しています。
また細則はありますが、ペットも一緒に暮らせます。
前面は環七通りなので車の通行量は多めです。
エントランスは階段を数段登った先。
オートロックはありませんが、管理は安心の住込管理。管理体制は良好です。
エントランス脇にはスロープもあるのでベビーカーやキャリーケースを持っての移動もスムーズ。
エントランスはクラシカルな雰囲気です。
管理人さんも気さくな優しい方でしたよ。
マンションの裏手に周ると駐車場、駐輪場があります。
2019年2月の時点では、クルマと自転車どちらも空きがあるようです。(内見の際に管理人さんに聞いてみましょう)
エレベーターは2基。朝や帰宅時間帯など利用時間が多い時でも待ち時間が少なく済みそうです。その他敷地内には駐車場、駐輪場、バイク置場があります。
ここで間取り図のご紹介です。
※間取り図は別タブで開きますので、確認しながらご覧いただくことができます。
今回ご紹介するお部屋は8階、専有面積47.92㎡の2DK。お一人暮らしやDINKSの方にお勧めのお部屋です。では、早速行ってみましょう!
玄関ドアを開けると明るい色合いでまとめられた廊下が伸びています。日中は突き当りのドアのスリットから光が入りますし、陽が落ちてからは人感センサーが自動的に照明を点けてくれるので、いつでも明るいお部屋が迎えてくれますよ。
玄関内には収納力のあるトールタイプのシューズボックス。棚の高さが変えられるのでブーツやヒールなどの高さのある靴でもきれいに収納可能です。扉に付いた姿見もお出かけ前に嬉しいですね。
廊下に並んだドアのひとつは洗濯機スペースになっています。中には棚が付いているので洗濯洗剤やネットなどのランドリーグッズはこちらへどうぞ。
洗面室には洗面化粧台の他にトイレと浴室がまとまっていて脱衣室も兼ねています。洗面化粧台は身だしなみを整えるのに便利な三面鏡付き。裏がキャビネットになっているので、洗面周りに散らかりがちな細々したものもスッキリと片付けることが出来ますよ。
トイレは洗浄機能一体型。トイレットペーパーや掃除道具の収納に便利な吊り戸棚も付いています。
浴室はベージュの木目パネルに囲まれた落ち着いた雰囲気。リラックスしたバスタイムで一日の疲れも洗い流せそうですね。追い焚き機能や浴室換気乾燥機などの便利機能も完備!これからの季節お天気を気にせずにお洗濯出来るのは助かります。
こちらは約7.8帖のダイニングキッチン。
南西向きのバルコニーに面したお部屋です。DKにしては広さがあるのでソファー型の寛げるダイニングセットなんかも置けそうですね。キッチンは省スペースの壁付けタイプ。キッチン内が目立つのでなるべく綺麗にしておきましょう!
こちらは、仕切りの扉を開けてダイニングキッチンと洋室1をつなげた様子です。扉は吊り下げ式なので床にレールがなく一体感抜群!溝に埃が溜まったりすることもないのでお掃除も楽そうです。ご家族構成によってはこんな使い方もよさそうですね。
扉を閉めれば約5.8帖の洋室へ戻ります。こちらのお部屋は収納豊富!窓の下も収納になっていますし・・・
ウォークインクローゼットや収納棚が設置されています。ウォークインクローゼットはコの字型にハンガーパイプが設置された大きな収納。衣類だけでなくスーツケースやシーズンオフの家電などを入れておくのにも便利です。
こちらは約4.6帖の洋室2
DKに面したお部屋です。窓はありませんが、寝室にすると思えば暗くて静かなのはかえってプラスポイントなのかもしれませんね。クローゼットはフルオープンになるタイプ。収納力ではウォークインクローゼットに敵いませんが使い勝手なら負けませんよ。
・
以上で日商岩井碑文谷マンションのご案内を終わります。
いかがでしたでしょうか??
都立大学駅から徒歩7分のマンションです。
リノベーション済みという事で室内はとてもキレイですよ (っ・ω・)っ
内見のご予約やご質問などございましたらお気軽にお問い合わせくださいませ。
ご連絡お待ちしております。
弊社、不動産Agent 六棒株式会社では、
□リノベーションマンションはほぼ全て仲介手数料無料!
□その他一般仲介物件は仲介手数料20%~30%OFF!
にてお取り扱いしております!※弊社の「Agent Fee=仲介手数料」についてはご案内、ご面談の際に営業担当者よりご説明いたします!
なるべく沢山のお部屋をホームページに掲載したいと思っておりますが、時間的成約もございますので、残念ながらご紹介できるお部屋の一部しか掲載できておりません。
このホームページに掲載中のお部屋、その他サイト等で気になるお部屋、街を歩いていて気になったマンション等々ございましたら是非、弊社営業部までご相談ください!
~不動産Agent 六棒株式会社の特徴~
・一般仲介物件の仲介手数料は20%~30%OFFにてご案内中です!
・リノベーションマンションについてはほぼ全て仲介手数料無料です!
・住宅ローンに自信あります!
・頭金10万円より購入できます。是非ご相談下さい!
・お部屋のご見学は車で2~3件まとめて案内します!
・物件数3000件以上、新築戸建、リノベ物件も多数ご用意しております!
過去に販売していたお部屋の概要 こちらのお部屋の販売は終了いたしました
| 価格 | -万円 |
| 面積 | 50.70㎡ |
| 間取り | 2bedrooms(2LDK) |
| 管理費 | 月額9.160円 修繕積立金:月額15,740円 |
| 所在階 | 2階 |
| お問い合わせ・ご内見のご予約はこちらからお気軽にどうぞ | |
こちらが今回ご紹介させて頂くお部屋の間取りです。
専有面積約50.70㎡。
バルコニーは東向きです。
エレベーターを降りるとお部屋までは、内廊下が続いています。
雨や風の影響を受けないのと、ホテルの様な静かさが魅力的です。
お部屋の前までやってきました。
玄関前にはモニター付きのインターフォンが付いているので、お部屋の中から廊下の様子を確認することが出来ます。
管理人さんがいるとはいえ、オートロックは付いていないのでインターフォンが鳴ったらまずは相手の顔を確認しましょうね!
それでは中に入っていきましょう!
玄関入ってすぐのところにはシューズボックスがあります。
中の棚板は高さを調節することが出来るので、ブーツの様な背の高い履物でも収納することが出来ます。
玄関から進むとこちらはリビング・ダイニング・キッチンです。
広さは約11.8帖。
東向きのバルコニーに面した窓が付いています。
写真は午後に撮ったので、外は陰になっていますが、午前中は明るいお部屋になりそうです。
リビングの中ほどから入ることのできるお部屋です。
こちらは約4帖の洋室です。
クローゼット付なのでお洋服等の収納場所にも困りません。
室内を広く使うことが出来るのはありがたいです。
次はキッチンです。
コンロは3口のガスコンロです。
グリルも付いているので、いろいろなお料理にも挑戦できそうですね。
水栓は浄水機能付。シャワーヘッドになっているので、シンクの隅々まで水を流すことが出来ます。洗い物などは一度に水を流すことが出来るので、効率的です。
シンク下の収納は引き出しタイプです。
奥まで無駄なく使うことが出来ますよ。カゴ等を使って細かく仕切れば見た目もスッキリしそうですね。
キッチンの後ろが洗面室になっています。
洗面室は脱衣所も兼ねています。
洗濯機置場があるので脱いだお洋服はすぐに洗濯することが出来ますね。
洗濯カゴを持ってお部屋の中を言ったり来たりしなくても良さそうです。
洗面化粧台の中はキャビネットになっています。
歯ブラシや基礎化粧品などの小物はこちらに収納しておきたいですね!
水栓はシャワーヘッドなので、大きな洗面ボウルの隅々まで水を流すことが出来ます。
ペット等のお風呂も(暴れなければ)ここで出来そうです。
次はお風呂です。
お風呂には浴室換気乾燥機能が付いてます。
入浴後の湿気もボタン一つであっという間に取り除くことが出来ますよ。
湿気はカビの原因にもなるのでなるべくすぐに取り除いておきたいものです。
木目調のパネルが落ち着いた雰囲気を作り出しています。
鏡面パネルなので汚れも付きにくくお手入れも簡単です。
追い焚き機能付きなので24時間熱いお風呂に入ることが出来ます。
お風呂にゆっくり浸かれば1日の疲れも融けだしそうですね!
身体の芯から温まれば次の日も元気100倍!全力のアンパンチを繰り出すことが出来そうです。
洗面室の隣にはトイレがあります。
ウォシュレットはリモコンタイプなので操作性も良さそうです。
吊戸棚には掃除用具や基礎化粧品等を入れることができますね。扉付きなので来客があっても安心です。
リビングに戻って次はコチラです。
こちらは約5.3帖の洋室です。
クローゼット付、大きな窓があるので明るい空間になっていますよ。
外に出てみましょう。
マンションのサッシは既に綺麗なものに変更されていました。
動きもスムーズで「ガラガラ~~~」と表記したいところですが、今回の物件は「ス~~~ッ」という感じです。
眺望はもう少し待ってくださいね。
バルコニーの面積は約8.77㎡。
何度か触れていますが、東側です。環七とは反対側で車の音も気になりませんでした。
2階と言えども眺望・陽当たりは問題なさそうです。
空も大きいので気持ちが良いですね!
すぐ下は1階のお部屋の専用庭、その先は駐輪場なので、隣のお家との距離も離れていて圧迫感もありません。
駐車場の向こうに見えるグレーの建物が碑文谷警察署です。
バス停はその裏側にありますよ。
では、以上で日商岩井碑文谷マンションのご案内を終わります。
いかがでしたでしょうか??
都立大学駅から徒歩7分のマンションです。
リノベーション済みという事で室内はとてもキレイですよ (っ・ω・)っ
内見のご予約やご質問などございましたらお気軽にお問い合わせくださいませ。
ご連絡お待ちしております。
弊社、不動産Agent 六棒株式会社では、
□リノベーションマンションはほぼ全て仲介手数料無料!
□その他一般仲介物件は仲介手数料20%~30%OFF!
にてお取り扱いしております!※弊社の「Agent Fee=仲介手数料」についてはご案内、ご面談の際に営業担当者よりご説明いたします!
なるべく沢山のお部屋をホームページに掲載したいと思っておりますが、時間的成約もございますので、残念ながらご紹介できるお部屋の一部しか掲載できておりません。
このホームページに掲載中のお部屋、その他サイト等で気になるお部屋、街を歩いていて気になったマンション等々ございましたら是非、弊社営業部までご相談ください!
~不動産Agent 六棒株式会社の特徴~
・一般仲介物件の仲介手数料は20%~30%OFFにてご案内中です!
・リノベーションマンションについてはほぼ全て仲介手数料無料です!
・住宅ローンに自信あります!
・頭金10万円より購入できます。是非ご相談下さい!
・お部屋のご見学は車で2~3件まとめて案内します!
・物件数3000件以上、新築戸建、リノベ物件も多数ご用意しております!
過去に販売していたお部屋の概要 このお部屋の販売は終了いたしました。
| 価格 | -万円 |
| 面積 | 50.70㎡ |
| 間取り | 2bedrooms(2LDK) |
| 管理費 | 月額9.160円 修繕積立金:月額15,740円 その他費用:月額1,000円 |
| 所在階 | 4階 |
| お問い合わせ・ご内見のご予約はこちらからお気軽にどうぞ | |
今回ご案内させて頂くのはこちらのお部屋です!
さっそく入りましょう!
玄関のドアを開けたところです。
正面にシューズボックスが見えますね。こちらのシューズボックスには鏡が付いているのでお出かけ前の最終チェックもしっかりできますよ(*^艸^)
玄関にはニッチと呼ばれる飾り棚もあります。玄関から入ってきて1番初めに目につく場所でもあるのでここに置く物はこだわりたいところですね!
一つ目のドアを開けるとトイレになっています。
もちろんウォシュレット付き。上部には吊戸棚が設置されているのでトイレットペーパーなどはそちらに入れておくことができますね!
先に進みましょう!!
トイレのお隣の引き戸を開けると洗面室になっています。
ミラーキャビネットとシンク下を合わせれば収納には困りませんね。シンクサイドにも余裕があるので何かと便利にお使い頂けると思います。
そしてすぐ隣にあるのは洗濯機置き場ですね。スペースの使い方に無駄がないということは、使う側の人も無駄のない動きが出来るという事でもありますよ!(`ω´)
その先はお風呂。
木目調の優しい色合いの壁には横に長いミラーが取り付けられています。
目線の高さにあるこのミラーのおかげで浴室内が実寸以上に広くゆったりと感じられますよ。
浴室乾燥機能も付いているので雨の日でも雪の日でも困りませんね!!洗濯物を干す為に外に出ないといけないのって地味に面倒ですからこの機能はありがたいですよヾ(*´∀`*)ノ
廊下を進むとキッチンが見えてきます。
グリル付きの3口コンロ、食器洗浄機、浄水機能付きの水栓など、それぞれがありがたい機能ですねヽ(´∀`)
手前に見えているカウンターは調理台としても使えますし、もちろん花などを飾ってもいいと思いますよ!!
カウンターの中は高さの調整が出来る棚になってますので、調理器具やお皿などはこちらに収納するのが良いのではないでしょうか??
このままリビングダイニングへ進みましょう。
リビングダイニングはキッチンと合せると約12帖と広々しています。
壁にはエコカラットが使われていますね。
エコカラットというのは云わば現代版の土壁です。快適な湿度を保ちつつ、ニオイや有害なホルムアルデヒドさえも低減させるという、土壁のくせになんだかハイテクでしかもオシャレな新素材ですよ!!
エコカラット側の壁には棚が見えますね。高さの調節はもちろん可能ですので、入れる物に応じて変えてください!!
こちらはダイニング横の引き戸の先にあるお部屋です。
クローゼット付の約4.1帖ということで寝室として使ってもいいですし、収納に特化したお部屋としても、引き戸を開けてしまってリビングダイニングの一部としても、とにかく自由度の高いお部屋です。
もう一つのお部屋を紹介しますね!
こちらはバルコニーに面している約5.6帖の洋室です。
こちらのお部屋に付いているクローゼットは先程のものよりも少し広めになっているので、使い勝手はこちらの方がいいような気はします。
最後にバルコニーへ出てみましょう!
バルコニーは東向きになっているのでたっぷりと朝日を浴びることが出来ると思います。
また、周辺には背の高い建物がないので4階といえどなかなか見晴らしは良いのではないでしょうか?
以上で日商岩井碑文谷マンション4階のご案内を終了いたします。
都立大学駅より徒歩7分、犬猫ペット可のお部屋でした。
目黒通り沿いにはいろんなお店が並んでいますし、徒歩圏内の碑文谷公園ではボートも乗れちゃいますよ!!
ご質問や内見のご予約などございましたらお気軽にお問い合わせくださいね!
過去に販売していたお部屋の概要 このお部屋の販売は終了いたしました。
| 価格 | -万円 |
| 面積 | 53.33㎡ |
| 間取り | 2bedrooms(2LDK) |
| 管理費 | 月額:9.630円 修繕積立金:月額15.000円 その他費用:月額1.000円 |
| 所在階 | 8階 |
| お問い合わせ・ご内見のご予約はこちらからお気軽にどうぞ | |

今回ご紹介するお部屋の間取りをご紹介です♪
2LDK、53.33㎡のお部屋です。
<リフォーム内容>
■水栓・ガスコンロ新規交換
■ユニットバス新規交換
■洗面化粧台新規交換
■トイレ(ウォシュレット機能付き)新規交換
■フローリング張替
■クロス張替
■給湯器交換
■CF交換
■TV付きモニターフォン
■ハウスクリーニング
等
それでは早速お部屋へ入って行きましょう!

玄関はこちらの茶色の玄関です♪
8Fの角部屋のお部屋ですよ(*´˘`*)♡

リビングダイニングキッチンは白でまとめられた落ち着きのある空間になっています。
お部屋が約8帖と大きいので圧迫感なくお食事が出来ますよ(*´▽`)

スライド扉を開けていくと約5帖の洋室があります!
大きな窓が付いているので外の明かりがたくさん取り込んでくれます(●´∀`)


キッチンはお料理がしやすい造りになっています!
コンロは三口あるので一度に複数のお料理がつくれます♪
流し台にはまな板の水切りが設置済みですよ((´I `*))
収納は上下に用意されているので収納に困ることはなさそうですね✿

リビングダイニングに洗濯機置場が用意されています。
少し手間はかかりますが、こちらに設置した分サニタリールームが広く使えますよ!
扉付きなので生活感は隠すことができます(●’∀’●)ノ

こちらは約6帖の洋室です!
大きなクローゼットが用意されているのでお洋服はこちらにどうぞ♪

窓を開けていくと大きなバルコニーがあります!
洗濯物はこちらに干せますよ(♡˙︶˙♡)


8階からの眺めは良好ですね!
角部屋なので2方向眺めることが出来ます(●´∀`●)
陽当たり、風通しも良好です✿

サニタリールームには三面鏡が用意されています!
洗面台まわりは物が置けるほどのスペースがあるのでコップなどを置くことが出来ます(´∀`●)
水きりが出来るので清潔に綺麗に保つ事が出来ますよ♪

バスルームはこちらです!
光沢のあるお部屋は高級感がありますね♪
ワイドミラーが使用されていることでよりお部屋を大きく見せてくれています((´I `*))

トイレは便利なウォシュレット機能付きです!
お部屋は淡いカラーで統一され、清潔感ある空間になっていますd(‘v`●)
いかがでしたでしょうか?
ご質問等ございましたらお気軽にご連絡ください!
皆様のご連絡心よりお待ちしております♪
過去に販売していたお部屋の概要 このお部屋の販売は終了いたしました。
| 価格 | -万円 |
| 面積 | 50.70㎡ |
| 間取り | 2bedrooms(2SDK) |
| 管理費 | 月額9,160円 修繕積立金:月額15,740円 トランクルーム修繕積立金:月額500円 |
| 所在階 | 1階 |
| お問い合わせ・ご内見のご予約はこちらからお気軽にどうぞ | |
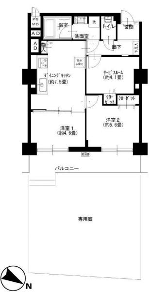
間取りのご紹介です。2SDK、専有面積は50.70㎡。
38.70㎡の専用庭がついています。
室内はリノベーション済みとなっており、お部屋に合わせた家具もついていますd(´▽`)
玄関ホール。人感センサーがついており、人の気配で自動で照明が消灯します。
夜遅く帰ってきた時は両手が荷物でふさがっている時に便利な上、消し忘れが無く経済的です。インターホンはTVモニター付き。玄関扉を開ける前はここで来訪者の確認ができます。
玄関をあがると左側にシューズBOXがあり、廊下が右方向へのびています。正面は壁なので宅急便など玄関先での対応時もお部屋の中が見られる心配はありません。
シューズBOXはたっぷり入るトールサイズ。棚の高さは調節できるのでブーツや長靴など背の高い履物もお仕舞いただけます。表扉の半分には縦長の鏡がついているのでお出かけ前の身だしなみチェックも忘れずサッとできて便利です。
シューズBOX横の壁面にはちょっとした小物が飾れるニッチになっています。お好みのインテリアを飾れば手軽に印象的な空間に♪
廊下側には水廻りの設備とサービスルームがあります。
トイレはウォシュレット付き。縦長のスリムな収納も設置されています。
トイレのお隣は洗面室。洗濯機置場、洗面化粧台、バスルームがまとまっています。
洗面化粧台と洗濯機置場はお隣同士。白で統一されており清潔感があります。キャビネットや棚など収納スペースもしっかり用意されています。
バスルームは追炊き、浴室換気乾燥機能付き。乾燥機があれば雨の日や夜のお洗濯も安心。カビの発生もグンと減ってお掃除も簡単になりますね。
洗面室の向かい側は約4.1帖のサービスルーム。
窓はありませんが、エアコンが設置できるよう配管が通してあります。
サービスルーム内にはクローゼットもついています。
廊下を進んだ奥、採光部のある扉をあけてダイニングキッチンへ。
ダイニングキッチンは約7.5帖。4人掛けのダイニングテーブルが置いてあるので実際の生活イメージもつきやすいのではないでしょうか? エアコン設置済みで引っ越したその日から快適にお過ごしいただけます。
キッチンはホワイトの木目調。お料理がはかどる3口ガスコンロ、浄水機能付き水栓、食洗機、収納スペースたっぷりとスペックは◎!設備が整っているとお料理するのも楽しみになりますね。
冷蔵庫はキッチンの左側のスペースへ。右側の扉付きの物入れはパントリーとして使ってもよさそうです。
洋室2部屋はダイニングキッチンを介していけるようになっています。
こちらの洋室は約5.6帖。開口部はほぼ東向き。
朝の目覚めがよくなりそうなお部屋です。
こちらのお部屋にはピクチャーレールとクローゼットがついています。
思い出の写真やお気に入りの絵も手軽に飾っておけますね。
もう1部屋の洋室は約4.6帖。3枚の可動式扉でダイニングキッチンと仕切れるようになっています。
壁面の一部には調湿・消臭効果のあるエコカラットが使われています。気になる生活臭やペットの臭いもこれで軽減するはず・・・!
可動式扉をあけてダイニングキッチンと約4.6帖の洋室をつなげると奥行のある空間になりました。扉をあけてLDKとして利用するのもいいですね。
最後に洋室2部屋に面したバルコニーに出てみます。
8.77㎡、ほぼ東向き。お洗濯物はもちろん、お布団など大物も干せる広さです。
バルコニーから階段を数段降りると・・・
38.70㎡の専用庭が広がっています。ガーデニングを楽しんだり、ペットと一緒に遊んだり。お庭があると生活の楽しみも増えますね♪
バルコニーの外は戸建が建ち並ぶ風景。高い建物がない分、人目は気にならなさそうです。
日商岩井碑文谷マンション、いかがでしたでしょうか?
マンションでもガーデニングが楽しみたい方にゼヒ。
お問合せはお電話03-5413-5336もしくはお問合せフォームからお気軽にどうぞ!









































































































































弊社 公式HP
六棒総合研究所
掲載予定物件
価格変更と販売終了物件
ハザードマップ検索
適合証明書.jp
Facebook
Twitter
Instagram