・
□□□□□□□□□□□□□□□□□□□□□□□□□□□□□□□□□□□□□□□
いつも弊社ホームページをご覧頂き誠にありがとうございます。
東建マンション学芸大はお陰様で販売を終了致しました。弊社問合せフォームにてご要望頂けましたら、当お部屋でキャンセル等が発生した場合、他のお部屋が販売になりました際にご紹介させて頂きます。
不動産Agent 六棒株式会社
TEL:03‐5413‐5336
□□□□□□□□□□□□□□□□□□□□□□□□□□□□□□□□□□□□□□□
・
人気の学芸大学エリアより総世帯数172戸のビックコニュニティ!
『東建マンション学芸大』のご紹介です!
ご紹介する東建マンション学芸大の最寄は東横線の学芸大学駅。複数路線が乗り入れる自由が丘&中目黒まで2駅、渋谷まで4駅と都内各所へのアクセスもよく通勤・通学も便利です♪(急行も停まります。)
改札をでると目の前には東急ストア。よる1時まで営業しているので帰りが遅くなった時のお買い物も安心です。
さらに駅前の東口商店街、西口商店街を中心に学大十字街、東急コリドール会、公園通り商栄会、本通り商店街と6つの商店街があり、駅周辺はいつもお買い物客でにぎやか。約600軒もの商店が加盟しているそうで生活も便利です。
マンションまでは東口の商店街の中を通っても行けるので駅からの帰り道でのお買い物も便利ですね。手軽に入れる飲食店も多々あり、忙しくて食事の支度が出来ない時に助かります。
住み心地のいい環境には緑や公園もかかせませんが、マンションから徒歩4分ほどのところには木々が生い茂る中央緑地公園があります。お子様の遊び場としてはもちろん、大人がのんびりした時間を過ごすのに寄ってもよさそうな雰囲気。
遊具は少な目ですが、珍しくターザンロープがありました。
見えてきました!アプローチも広々としています。
両サイドにはキレイにお手入れされている緑が続いています。
こちらが東建マンション学芸大。
昭和48年築、8階建て、総世帯数172戸の大規模マンションです。
耐震診断済みで文部科学省の構造耐震指標をクリアーしているそうです。安心。
エントランスは階段を数段あがった先。
オートロックはありませんが、管理は住込管理。人が常駐することで防犯効果も期待できます。
マンション敷地内には駐車場(月額22,000円)、駐輪場(年額2,400円)、バイク置場(月額2,200円)もございます。
マンション専用のゴミ置場も設置されていました。
いつでもゴミが捨てられるのは便利ですよね。家の中も片付きますし。
さて、建物の中へ入ってみましょう。
エントランスホールも広々としています。左手には管理人さんがいらっしゃる管理室です。正面にはエレベーターがあります。2基あるので待ち時間も短そうです。
ではエレベーターでお部屋へ!
共用廊下は内廊下タイプ。玄関前で雨や風に悩まされる心配もありません。
さすが大規模マンション、廊下もグーンと長いです。
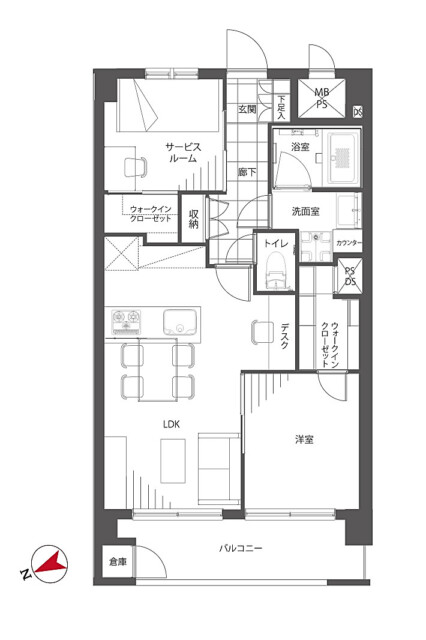
今回ご紹介するお部屋は6階、専有面積55.00㎡の2SLDK。実質3LDKの、おひとり暮らしからファミリーまで幅広くお使いいただけるお部屋です。
間取り図はコチラ ↓ ↓ ↓
※間取り図は別タブで開きますので、確認しながらご覧いただくことができます。
では行ってみましょう!
【玄関:人感センサー付き照明・シューズボックス付き】
【洗面室:三面鏡付き洗面化粧台・洗濯機スペース】
【浴室:追い焚き機能・浴室換気乾燥機付き】
【トイレ:洗浄機能一体型】
【LDK:南東向きで陽当たり良好・エアコン付き】
【LDK:ナチュラルで落ち着いた内装】
【キッチン:カウンタータイプ・食器洗浄乾燥機】
【洋室:南東向き・クローゼット付き】
【サービスルーム:洋室として利用可能】
【眺望:見晴らしのよい眺め】
・
以上で東建マンション学芸大のご案内を終わります。
いかがでしたでしょうか??
学芸大学駅から徒歩7分のマンションです。
リノベーション済みという事で室内はとてもキレイですよ (っ・ω・)っ
内見のご予約やご質問などございましたらお気軽にお問い合わせくださいませ。
ご連絡お待ちしております。
弊社、不動産Agent 六棒株式会社では、一般仲介物件は仲介手数料20%~30%OFF!
にてお取り扱いしております!
なるべく沢山のお部屋をホームページに掲載したいと思っておりますが、時間的成約もございますので、残念ながらご紹介できるお部屋の一部しか掲載できておりません。
このホームページに掲載中のお部屋、その他サイト等で気になるお部屋、街を歩いていて気になったマンション等々ございましたら是非、弊社営業部までご相談ください!
~不動産Agent 六棒株式会社の特徴~
・一般仲介物件の仲介手数料は20%~30%OFFにてご案内中です!
・住宅ローンに自信あります!
・頭金10万円より購入できます。是非ご相談下さい!
・お部屋のご見学は車で2~3件まとめて案内します!
・物件数3000件以上、新築戸建、リノベ物件も多数ご用意しております!
過去に販売していたお部屋の概要 こちらのお部屋の販売は終了いたしました
| 価格 | -万円 |
| 面積 | 50.02㎡ |
| 間取り | 1bedrooms(1SLDK) |
| 管理費 | 月額11,440円 修繕積立金:月額8,500円 組合費:月額300円 |
| 所在階 | 4階 |
| お問い合わせ・ご内見のご予約はこちらからお気軽にどうぞ | |
ここで間取り図のご紹介です。
※間取り図は別タブで開きますので、確認しながらご覧いただくことが出来ます。
今回ご紹介するお部屋は4階、専有面積は50.02㎡の1SLDK。お一人暮らしやDINKSの方におススメのお部屋です。では、早速行ってみましょう!
玄関から廊下にかけては大理石貼り!石材は冷たい印象なりがちですが、ナチュラルカラーの建具に合わせた温かみのある色合いで柔らかい雰囲気の空間になっています。シューズボックスは収納力のあるトールタイプなので、ややコンパクトな玄関に靴が溢れる心配もありませんよ。
こちらはサービスルーム。
サービスルームとは建築基準法上居室と認められないお部屋のことなんですが、あくまでも法律上なので普通に洋室として使えることがほとんどです。中にはコンセントが無かったり、エアコンが付けられなかったりということが無いわけではありませんが、こちらのお部屋は問題ありませんのでご安心ください。LDKを通る必要のないプライベート感の髙いお部屋です。
洗面室には洗面化粧台の他に洗濯機スペース、カウンター、収納棚、浴室がまとまっていて脱衣所を兼ねています。洗面化粧台は三面鏡付。裏がキャビネットになってるので、洗面周りの細々としたものもすっきりと片付きますよ。カウンターや収納棚にはボックスなどを使ってリネンなども置いておけそうです。ランドリー用品は洗濯機スペースの吊戸棚へどうぞ。
浴室は柔らかい色合いのパネルを使った優しい雰囲気。リラックスしてバスタイムを過ごせそうです。ユニットバスは追い焚き機能付きなのでお風呂の準備もボタンひとつ!いつでも温かいお風呂に入れますよ。雨の多い季節に嬉しい浴室換気乾燥機付き。
トイレはTOTO製のウォシュレット一体型。今では当たり前の洗浄便座ですが歴史は意外に古く初登場は1964年!なんと前回の東京オリンピックの年だそうです。そんな昔からあったんですね。トイレットペーパーのストックに便利な吊戸棚も付いています。
こちらはリビング・ダイニング・キッチン。
北西向きバルコニーに面したお部屋です。縦長の中にキッチン、ダイニング、リビングと並んだオーソドックスなタイプなのでレイアウトに悩むことはなさそうですね。自然な木肌を基調にコーディネイトされ、写真を見ているだけで木の香りがしてきそうな気がしませんか?
家具は見本なので付いては来ませんが、ディスプレイしてあると生活のイメージがしやすくて助かりますよね。サイズや色、素材感などの参考にさせてもらいましょう!入口近くのデスクは造り付けなのでこのまま使えますよ。
キッチンはカウンタータイプ。開放的で、お料理中でもリビングダイニングとコミュニケーションをとりやすいのが特徴です。調理台は建具と合わせた木目パネルでお部屋との統一感もバッチリ。食器洗浄乾燥機や浄水器一体型水栓などの便利機能も完備しています!
こちらLDKに隣接した洋室。
柱などの出っ張りがない綺麗な形なので家具のレイアウトもしやすく、無駄なくスペースを使えそうですね。入口が引き戸なので開け閉めのスペースを考慮する必要もありません。収納はウォークインクローゼット!!!ハンガーパイプだけでなく可動棚なども設置されバランスよく使える収納です。
・
以上で東建マンション学芸大のご案内を終わります。
いかがでしたでしょうか??
学芸大学駅から徒歩7分のマンションです。
リノベーション済みという事で室内はとてもキレイですよ (っ・ω・)っ
内見のご予約やご質問などございましたらお気軽にお問い合わせくださいませ。
ご連絡お待ちしております。
弊社、不動産Agent 六棒株式会社では、
□リノベーションマンションはほぼ全て仲介手数料無料!
□その他一般仲介物件は仲介手数料20%~30%OFF!
にてお取り扱いしております!※弊社の「Agent Fee=仲介手数料」についてはご案内、ご面談の際に営業担当者よりご説明いたします!
なるべく沢山のお部屋をホームページに掲載したいと思っておりますが、時間的成約もございますので、残念ながらご紹介できるお部屋の一部しか掲載できておりません。
このホームページに掲載中のお部屋、その他サイト等で気になるお部屋、街を歩いていて気になったマンション等々ございましたら是非、弊社営業部までご相談ください!
~不動産Agent 六棒株式会社の特徴~
・一般仲介物件の仲介手数料は20%~30%OFFにてご案内中です!
・リノベーションマンションについてはほぼ全て仲介手数料無料です!
・住宅ローンに自信あります!
・頭金10万円より購入できます。是非ご相談下さい!
・お部屋のご見学は車で2~3件まとめて案内します!
・物件数3000件以上、新築戸建、リノベ物件も多数ご用意しております!
過去に販売していたお部屋の概要 こちらのお部屋の販売は終了いたしました
| 価格 | -万円 |
| 面積 | 49.50㎡ |
| 間取り | 2bedrooms(2LDK) |
| 管理費 | 月額10,500円 修繕積立金:月額8,500円 組合費:月額300円 |
| 所在階 | 2階 |
| お問い合わせ・ご内見のご予約はこちらからお気軽にどうぞ | |
間取りは2LDK、49.50㎡。
DINKSや少人数ファミリーにおすすめです。
間取りはクリックすると別タブで開きますよ!
ご紹介するお部屋は2階。エレベーターより階段移動の方が早いかもしれません。インターホンには来訪者の顏が確認できるTVモニターがついています。安心安全です。
では玄関扉をあけて中へおじゃまします。
室内はリノベーション済みでぴかぴかです。
玄関横には収納力のあるトールサイズのシューズBOXが設置されています。
表扉の半分は鏡になっているのでお出かけ前の身だしなみチェックも忘れずできますよ。
さ・ら・に!玄関には人感センサーがついており、人の動きを感知して自動で照明が消灯します。消し忘れもなく節電効果もありますよ。
玄関をあがると廊下がまっすぐのびています。
まっすぐ進んだ正面の扉をあけてLDKから見ていきましょう。
じゃじゃん。
LDKは約11.3帖。大きな窓に面した開放感のある横長空間です。
どの位置も窓が近いのでお部屋全体が明るいのがいいですね。
家具が置いてあるので実際の生活イメージもつきやすいのではないでしょうか(*’ω’*)じっくりご覧くださいませ。
キッチンは入口横に設置されています。
キッチンはフローリングに馴染む木目調です。
ワークトップ下のスライド収納に吊戸棚と収納スペースが豊富なのもうれしいですね。
水栓は浄水機能付き、グリルもついています。
設備が整っているとお料理も楽しくなりそうですね♪
水栓はホースを伸ばすとシャワーとしてもご利用いただけます。
シンクのお掃除も隅々まで楽々できますよ。
いつでも綺麗なキッチンって気持ちがいいですよね。
今度はLDKを出て廊下側を見ていきましょう。
廊下を出てすぐ右側の扉はトイレです。
トイレはウォシュレット付き。操作ボタンが大きく分かりやすいですね。
収納は特にないので後から棚などを取り付けるのもよさそうです。
トイレのお隣は洗面室です。
玄関から近いと帰宅後の手洗い・うがいも習慣になるはず。
洗面室。全体的に白基調で清潔感たっぷり♡
脱衣スペースに余裕があり着替えがしやすそうです。
洗面化粧台は鏡の裏や引き出しなど収納が多彩です。
ゴチャゴチャしがちな洗面まわりもすっきり片づきそうですね。
水栓はホースを伸ばすとシャワーとしてもご利用いただけます。
寝ぐせをなおしたり、花瓶に水を入れたり、シンクのお掃除時に使ったりと色々便利ですよ、シャワー。
洗面化粧台のお隣が洗濯機置場になっています。
洗面化粧台との間に少しスペースがあるので洗剤を置くラックなどを置いてもいいかもしれませんね。
バスルームは洗面化粧台の向かい側にあります。
ラウンドした浴槽はゆったりとした入浴が楽しめそうですね♡
追い焚き機能もついていますので、心ゆくまであたたまってくださいね。
LDKを出て左側には洋室の扉が2つ並んでいます。
LDK側に近い洋室は約4.5帖。窓はありませんが壁面と天井が白だとお部屋の中が明るく感じられます。
こちらのお部屋にはクローゼットがついています。
もう一部屋の洋室は・・・
約5.5帖あります。窓の外は玄関前の共用廊下です。
こちらにももう1部屋の洋室と同じくらいのクローゼットがついています。
最後にLDKからバルコニーに出てみましょう。どきどき。
バルコニーは約6.90㎡、北西向き。
お洗濯物を干すには充分な広さです。
バルコニーには扉付の物入と収納棚もありました。
ちょっとしたアウトドアグッズやお子様のおもちゃなどはここに仕舞っておくとよさそうです。これは便利!
ちなみにバルコニーの手摺の外はマンションの外壁でカバーされているような形になっています。手摺にお布団を干す際に誤って下に落とす心配もありません。
正面の眺望です。外は敷地内の駐車場を挟んで低層住宅が広がる風景です。
静かです。
左右も高い建物がなく、同じような風景がつづきます。
ここでなら静かで穏やかな毎日が過ごせそうですよ。
東建マンション学芸大、いかがでしょうか?
内見のご予約やご質問などございましたらお氣軽にお問い合わせくださいませ♫
弊社、不動産Agent 六棒株式会社では、
□リノベーションマンションはほぼ全て仲介手数料無料!
□その他一般仲介物件は仲介手数料20%~30%OFF!
にてお取り扱いしております!※弊社の「Agent Fee=仲介手数料」についてはご案内、ご面談の際に営業担当者よりご説明いたします!
なるべく沢山のお部屋をホームページに掲載したいと思っておりますが、時間的成約もございますので、残念ながらご紹介できるお部屋の一部しか掲載できておりません。
このホームページに掲載中のお部屋、その他サイト等で気になるお部屋、街を歩いていて気になったマンション等々ございましたら是非、弊社営業部までご相談ください!
~不動産Agent 六棒株式会社の特徴~
・一般仲介物件の仲介手数料は20%~30%OFFにてご案内中です!
・リノベーションマンションについてはほぼ全て仲介手数料無料です!
・住宅ローンに自信あります!
・頭金10万円より購入できます。是非ご相談下さい!
・お部屋のご見学は車で2~3件まとめて案内します!
・物件数3000件以上、新築戸建、リノベ物件も多数ご用意しております!
過去に販売していたお部屋の概要 このお部屋の販売は終了いたしました。
| 価格 | -万円 |
| 面積 | 55.0㎡ |
| 間取り | 2bedrooms(2LDK) |
| 管理費 | 月額:12,540円 修繕積立金:月額9,440円 組合費:月額300円 |
| 所在階 | 1階 |
| お問い合わせ・ご内見のご予約はこちらからお気軽にどうぞ | |
間取り図は2LDK、55.0㎡。
クリックすると別タブで開くことも出来ます!ゼヒ写真と見比べながらご覧ください♪
お部屋は1階。グーンと長い廊下を廊下を歩いてやってきました。
インターホンはTVモニター付き。
事前に来訪者の顏が確認できるので防犯面も安心。ピンポーン♪が鳴ったらまず相手をチェックしましょう。
ではさっそくお部屋の中へおじゃまします!室内はリノベーション済みでピカピカです。玄関ホールは白のタイル貼りです。
玄関横の木目調の扉はシューズBOX。背の高いタイプで収納力もバッチリです。棚の高さを調節すればブーツなど背の高い履物も立てて仕舞っておけますよ。
また玄関には人感センサーがついています。人の動きを感知して自動で照明が消灯するのでスイッチを押す手間が省ける上、節電効果も期待できます。
自動で明かりがつくってホントに便利ですよ。
玄関をあがると廊下がまっすぐのびています。
フローリングはナチュラルな色合いの木目調、建具はフローリングより少し濃い色の木目調です。
廊下をまっすぐ進んだ先の扉をあけてリビングダイニングキッチンから見ていきましょう♪どきどき。
リビングダイニングキッチンは南東向きの横長空間で約13.9帖。
明るく開放感のある空間になっています。
家具が置いてあるので実際の生活イメージもつきやすいですね!
窓側からもリビングダイニングキッチンをご覧くださいませ。
キッチンは対面式なのでリビングにいる家族と会話を楽しみながらお料理ができますよ。家族とのコミュニケーションも自然と増えそうですね♡
つづいてキッチンを見てみましょう。
スライド式の収納は物が見やすく使い勝手がよさそうです。
横長リビングだと窓が近いのでお料理中の換気もスムーズにできるのがうれしいですね。
設備はというと、浄水器一体型水栓、食洗機、グリル付きと充実しています。水栓はホースを引き出してシャワーとしても利用できます。これならシンクのお掃除も隅々まで簡単にできます。
キッチン横には2部屋ある洋室のうち、1部屋の扉があります。
白い可動扉を横にススーと動かすと・・・
こちらがリビングダイニングキッチンに隣接している洋室です。
※まだ手直し工事が入るようでお部屋の中央に資材が置いてありますのであしからず。
収納はというと、オープンシェルフに加え、ウォークスルークローゼットがついています。ウォークスルーなので廊下側にあるもう1部屋の洋室へ抜けることができます。なんだかこの中、秘密基地みたいですね!え?そうでもないですか?(*’ω’*)
こちらのお部屋、外に面している窓はないものの、明かりとりの窓がついており、リビング側の明かりが感じられます。この窓のためか、個人的に閉塞感は感じませんでした。
今度はリビングダイニングキッチンを出て廊下側を見ていきましょう。
レッツゴー!!
廊下を出て左側はトイレと洗面室の扉が並んでいます。
※手前の扉がトイレです。
ウォシュレット一体型トイレで上には物が置けるよう棚が設置されています。
トイレのお隣が洗面室。玄関から近いので帰宅後の手洗い・うがいもスムーズにできますね。これが風邪予防には一番効果があるとか、ないとかφ(-ω- )カキカキ
扉を横にスライドさせて・・・洗面室です。
洗面化粧台とバスルームがここにまとまっています。
洗面化粧台は鏡の裏、引き出しなど収納が多彩です。お隣にリネン棚もあるのでタオルや着替えからゴチャつきがちな小物類まで整理整頓しながら仕舞っておけそうです。
水栓はホースを引き出すとシャワーになります。
寝ぐせがひどい時はこれでザーッと濡らして、なおしてから出かけましょう!
バスルームの扉にはタオル掛けがついており、横の液面には浴室換気乾燥機の操作パネルがついています。乾燥機があれば雨の日や夜のお洗濯も安心です。
白基調で清潔感たっぷりの明るいバスルーム♡
お洋服が干せるよう上側にはポールが設置されています。
追い焚き機能もついているので家族の帰宅時間がバラバラでも安心。ラウンド型のバスタブでのんびりとバスタイムが過ごせそうです。
ダイニングキッチンを出て廊下右側は洗濯機置場と洋室の扉が並んでいます。
洗濯機置場は扉付きなので、生活感もうまーく隠しておけます。
上に棚があり洗剤も手の届くところに置いておけますね。
洗濯機置場横の扉は洋室です。
玄関から一番近いお部屋ですね。
玄関川の洋室です。広さは約6帖。
窓の外は共用廊下です。
ウォークスルークローゼットを通ってもう1部屋の洋室へ行けますよ~。
最後にリビングからバルコニーに出てみましょう。
わくわく。
バルコニーは約6.9㎡、東南向き。
この日は小雨でしたが晴れた日は陽ざしが期待できますね!
バルコニーにはこんな収納もありました。
お子様の遊び道具やゴルフバッグなど「どこに仕舞おう?」なんてものを入れておくのに活躍してくれるハズです。
バルコニー正面の眺望です。目の前は敷地内の駐輪スペースを挟んで戸建て住宅が広がる風景です。1階なので何が見えるわけではありませんが、静かです。
左右も同じ風景が続きます。陽ざしを遮る高い建物はありませんよ♪
急ぎの時はここから外へ出たくなりますが、危ないのでやめておきましょう(´∀`*)ネッ!
東建マンション学芸大、いかがでしたでしょうか?
内見のご予約やご質問などございましたらお気軽にお問い合わせくださいませ。
ご連絡お待ちしております。
過去に販売していたお部屋の概要 このお部屋の販売は終了いたしました。
| 価格 | -万円 |
| 面積 | 49.50㎡ |
| 間取り | 1bedrooms(1SLDK) |
| 管理費 | 月額10,500円 修繕積立金:月額8,500円 組合費:月額300円 |
| 所在階 | 3階 |
| お問い合わせ・ご内見のご予約はこちらからお気軽にどうぞ | |
今回のお部屋のご紹介をさせて頂きます。

今回のリフォーム内容です☆彡
*:;:*:;:*:;:*:;:*:;:*:;:*:;:*:;:*:;:*:;:*:;:*:;:*:;:*:;:*:;:*:;:*:;:*:;:*:;:*:;:*
Panasonic リビングステーションV(1950 / 食洗機)
浴室 TOTO WTユニットバスルーム(1116 / 浴乾機)
洗面 Panasonic CLine(750)
トイレ LIXIL ベーシアシャワートイレ
床 Panasonic ジョイハードフロアA
建具 Panasonic ベリティス
照明 大光電機 LEDシリーズ
給水交換
給湯交換
追焚管新規(専有部)
給湯器(追焚機能)
全クロス張替え
アクセントクロス
ハウスクリーニング
*:;:*:;:*:;:*:;:*:;:*:;:*:;:*:;:*:;:*:;:*:;:*:;:*:;:*:;:*:;:*:;:*:;:*:;:*:;:*:;:*
それでは、お部屋はこちらです(^^♪
早速、玄関を開けてみたいとおもいます(≧◇≦)

玄関を開けると、フルリフォームされた雰囲気がビシッ!と伝わる玄関が、
お出迎えしてくれます。

こちらの売主様のインテリアコーディネーターさんは、いつもながらですが、かなり素晴らしいリフォームをしています(≧◇≦)
これは、いい戦いができるとおもいます!(笑)

玄関を入るとすぐに、シューズボックスが造作設置されています。
可動式の棚ですので調整が可能です(^O^)

落ち着いた雰囲気の玄関が、出迎えてくれます!
フローリングの色!建具の色!安心感のある色ですよね(#^^#)
水廻りのレポートの前に玄関側のベットルーム(サービスルーム)のレポートに突入したいとおもいます!

こちらは、5帖のお部屋になります!
物を置く部屋に使うのか、書斎に使うかは、あなた次第です…(笑)

4枚折戸の、大き目のクローゼットです!
たくさんの洋服が収納できそうですよ(≧◇≦)
次は水廻りのレポートに行ってきます(”◇”)ゞ

バスルームも新規交換済みで気持ちいいですよね(^-^)
もちろん追い炊き機能付き&浴室乾燥機付き&リモコンパネル付きです!

洗面所のレポートです!
新しい洗面所は、気持ちいい朝を迎えられます♪
忙しい朝でも、快適な空間を感じさせてくれますよ!

新しい防水パンは、ドラム式洗濯機を置くとカッコいいですよね(^-^)
嬉しい収納もあります(^^♪

トイレも新規交換済みです(^-^)
ウォシュレット&リモコンパネル&上部吊戸棚付きです(^○^)
トイレの「三種の神器」付です(笑)
リビング・ベットルームのレポートの前にキッチンに突撃で~す!(笑)

キッチンも新規交換リフォーム済みです!
新しいキッチンは、料理を作るのが楽しくなりますよね(*^^*)
リビングも注視しながら家事ができるのは嬉しいです!

シンクは料理をするためにありますので、ガンガン料理しましょう(笑)

三口コンロと新しいレンジフード!お魚も焼けちゃいます(^^)v
3口コンロ・全体のカラーに合わせたレンジフード、もちろん新品です(^_-)-☆

レンジフードも新品交換済みです!
掃除することを考えると…
こまめに掃除していきたいと考えてます(^o^)

キッチンが新しいと料理を作るのが趣味となり、そして特技になりそうです!
美味しい料理は、会話も笑顔も8割増しです(笑)

もちろんキッチン横には、TVモニター付インターフォンと追い炊きリモコンスイッチが付いています!
動線も便利ですよね~(≧◇≦)
リビングのレポート前に、ベットルームを見学したいとおもいます(^-^)

リビングとメインベットルームを繋がっていますので、広いLDKとしても利用できますよ(*^▽^*)

収納力はいかがでしょうか?
私の感想ですと、もう少し欲しいな~です(笑)

アクセントクロスの貼られた明るいベットルームは、
安心の快眠ができそうです!
エアコンも新規に設置されています??
おまたせしました!リビングダイニングのレポート写真です!
あまりコメントはいらないですよね?
それでは、どど~んとご紹介させて頂きますね~

LDKは12.5帖もあります!
12.5帖のLDKは、図面だと狭く見えますが、実際見ると広いですよ!

横長リビングは、窓とキッチンまでの距離が近いのがメリットです!
明るいキッチンで料理を作るのと暗いキッチンで料理を作るのは、気持ちに大きな違いがあるとおもいます!(≧◇≦)

ベットルームの3枚の引戸を閉めると、こんな雰囲気になります!
アクセントクロスとあいまみあって落ち着いた雰囲気です($・・)/~~~

横長リビングの、もう一つのメリットはダイニングテーブルとソファーセットを「ビシッ」とセッティングできるところです!

ソファーは3人掛けより大きいのを置けるリビングは、お客様をいつでも呼び入れられるお部屋だとおもいます!
最期に眺望をバルコニーを確認したいとおもいます!

給湯器も新規交換済みです!
こちらのお部屋はバルコニーにトランクルームとまではいきませんが、物置が付いております。

バルコニーの目の前は、マンションの敷地・駐車場になります!
ピッタリとした建物が建つ心配は0に近いです!

目の前の建物も、かなり離れて建っていますので、プライバシーも心配ないです!
以上「東建マンション学芸大」のレポートを終了します!(”◇”)ゞ
弊社、不動産Agent 六棒株式会社では、
□リノベーションマンションはほぼ全て仲介手数料無料!
□その他一般仲介物件は仲介手数料20%~30%OFF!
にてお取り扱いしております!※弊社の「Agent Fee=仲介手数料」についてはご案内、ご面談の際に営業担当者よりご説明いたします!
なるべく沢山のお部屋をホームページに掲載したいと思っておりますが、時間的成約もございますので、残念ながらご紹介できるお部屋の一部しか掲載できておりません。
このホームページに掲載中のお部屋、その他サイト等で気になるお部屋、街を歩いていて気になったマンション等々ございましたら是非、弊社営業部までご相談ください!
~不動産Agent 六棒株式会社の特徴~
・一般仲介物件の仲介手数料は20%~30%OFFにてご案内中です!
・リノベーションマンションについてはほぼ全て仲介手数料無料です!
・住宅ローンに自信あります!
・頭金10万円より購入できます。是非ご相談下さい!
・お部屋のご見学は車で2~3件まとめて案内します!
・物件数3000件以上、新築戸建、リノベ物件も多数ご用意しております!
過去に販売していたお部屋の概要 このお部屋の販売は終了いたしました。
| 価格 | -万円 |
| 面積 | 49.50㎡ |
| 間取り | 2bedroom(2LDK) |
| 管理費 | 月額10,500円 修繕積立金:月額8,500円 組合費:月額300円 |
| 所在階 | 1階 |
間取りのご紹介です。2LDK、専有面積は49.50㎡。
室内は以下のリノベーションをおこなっています。
【リノベーション内容】
■キッチン・・・パナソニック製システムキッチン(食洗機付)
■浴室・・・パナソニック製ユニットバス(浴室乾燥機)
■洗面・・・・パナソニック製洗面台
■トイレ・・・LIXIL製シャワートイレ
■床・・・パナソニック製フローリング
■建具・・・パナソニック製内装ドア
■照明・・・LEDダウンライト/LEDシーリングライト
■その他・・・給水/給湯/追焚管新規(専有部)、給湯器(追い焚き機能付き)、全クロス張替え、、一部アクセントクロス、ハウスクリーニング
■アフターサービス保証付
ご内見のご希望・ご質問などございましたら、お気軽にお問い合わせくださいませ♪
過去に販売していたお部屋の概要 このお部屋の販売は終了いたしました。
| 価格 | -万円 |
| 面積 | 55.60㎡ |
| 間取り | 3bedrooms(3LDK) |
| 管理費 | 月額:11,510円 修繕積立金:月額9,440円 組合費:月額300円 |
| 所在階 | 6階 |
ここで間取りのご紹介です。(3LDK 55.00㎡)
スケルトンからの内装されたお部屋は玄関のドアからピッカピカです。
左手にはカウンター付玄関収納と大きなミラーがあります。
可動式の棚になっている玄関収納は、高さのあるシューズも仕舞えそうです。
カウンター部分にはお好きなインテリアで華やかにしたいですね!
ミラーで身だしなみチェックもバッチリ、外出前の習慣になりそうです!
廊下に続いているお部屋へ進みたいと思います。
廊下左手にあるサニタリールームです。左に浴室、正面に洗濯機置き場・洗面化粧台、右にトイレとなっています。ゆとりある空間です。
追炊き機能付き(テレビ付き)浴室です。いつでも温かい湯船に浸かることができます。温かい湯船に入りながらテレビをみたり、テレビをみながら半身浴も!
入浴タイムの楽しみが広がりそうです!浴室換気乾燥機もあるので、今日のような雨の日は浴室で洗濯物もカラッと乾きそうです!
洗濯機置き場並びに~洗面化粧台です。コンパクトでスッキリとしている洗面台は、石鹸置きやフックなどの細かい部分をみるとスタイリッシュでおしゃれです。
洗面ボウル下は収納になっています!
ウォシュレット付トイレです。
廊下右手にある洋室6.0帖です。奥行きあるクローゼットは枕棚付きです。
廊下正面にある扉です。その先にみえるお部屋は~~~
リビングダイニングキッチン8.5帖です。右側にある洋室の仕切りをあけますと開放感と明るい光が!お好みのライフスタイルにあわせた使い方ができそうですね。
仕切りの扉も曇りガラスを使っているので閉めていても光を感じて過ごせそうです!
エアコンが設置されています。
システムキッチンです。ブラウンのパネルが落ち着きあるゆったりとした雰囲気を感じます。
上下にある充実した収納力~下部にある足元部分の収納はスライド式になっています。
奥までみやすく出し入れもらくらく~広々としているキッチンは使い勝手も良さそうです☆
LDKに続いている右側の洋室6.0帖です。バルコニーに面している明るいお部屋です。
エアコンが設置されているお部屋です。
左側にある洋室6.0帖です。こちらもバルコニーに面してるお部屋です。
大きなクローゼットが設置されています。ボックスや仕切りを使いながら収納してみてはいかがでしょう~いろいろ仕舞えそうです!
東南向きのバルコニーです。(6.90㎡)
正面にはある扉を開くとトランクルームになっています!
外遊びのお子様のおもちゃなどを仕舞ったりマルチに活躍してくれそうです。
屋根部分が広くあるので、少々の雨なら外に洗濯物を干しても大丈夫そうです。




























































































































































































弊社 公式HP
六棒総合研究所
掲載予定物件
価格変更と販売終了物件
ハザードマップ検索
適合証明書.jp
Facebook
Twitter
Instagram