・
□□□□□□□□□□□□□□□□□□□□□□□□□□□□□□□□□□□□□□□
いつも弊社ホームページをご覧頂き誠にありがとうございます。
タワーテラス目黒青葉台はお陰様で販売を終了致しました。弊社問合せフォームにてご要望頂けましたら、当お部屋でキャンセル等が発生した場合、他のお部屋が販売になりました際にご紹介させて頂きます。
不動産Agent 六棒株式会社
TEL:03‐5413‐5336
□□□□□□□□□□□□□□□□□□□□□□□□□□□□□□□□□□□□□□□
・
今回は京王井の頭線「神泉」駅から徒歩8分、高台にたたずむ『タワーテラス目黒青葉台』を紹介します。
渋谷駅の喧騒の中から、井の頭線で1分。「神泉」駅は道玄坂の上にあります。
閑静な住宅街・・・とはいきませんが、先程の喧騒とは違った「私鉄の駅」の雰囲気がある駅前です。
駅前にはまいばすけっととマルエツプチがあるので、お買い物に困る事はありません。
マルエツプチは深夜0時まで営業しているので、お仕事や飲み会で多少遅くなっても安心してお買いものができます☆
また、駅前には国際文化理容美容専門学校があり、オシャレな学生さん達が、神泉駅の近くにはたくさんいます☆
神泉駅から国道246号線に出ると、先程の駅前の街並みとはまた変わって、高層ビルが通り沿いに並んで建っています。
その国道246号線と旧山手通りの交差点近くにマンションがありますが、近くには「大坂上」というバス停がありました。
東急バスと小田急バスが停まり、渋谷駅はもちろんの事、大崎駅・大井町駅・二子玉川駅・祖師ヶ谷大蔵駅・三軒茶屋駅・都立大駅・田園調布駅・調布駅・・・といろいろな駅に繋がっています。
バスを使って通勤、お出かけするのも良いかもしれませんね♪
マンションのすぐ近く、246沿いにセブンイレブンがありました。近くにコンビニがあると、ちょっとしたお買いものにはとても便利です(*^^)v
そんな246号線からほど近くに建っているのが、今回ご紹介する『タワーテラス目黒青葉台』です。
旧山手通りからも近いので、代官山や中目黒もお散歩で行かれる距離です☆
平成14年12月築の新しいマンションです。 ペットの飼育は細則がありますが、2匹までOKです!
建物の中心は吹抜けになっていて、1Fには写真の様なオブジェがありました。
上を見上げると、、、屋上まで吹抜けではないですか!!なので、天井から射し込む光で中庭がとても明るいです☆
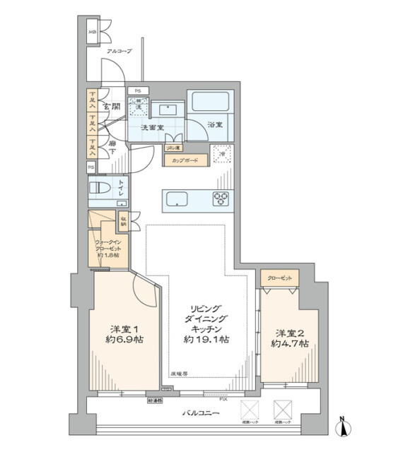
今回ご紹介するお部屋は3階、専有面積81.65㎡の3LDK。南東角部屋でバルコニーが三つも付いているファミリータイプのお部屋です。
間取り図はコチラ ↓ ↓ ↓
※間取り図は別タブで開きますので、確認しながらご覧いただくことができます。
では早速行ってみましょう!
【玄関・廊下:人感センサー付き照明・段差の小さな上り口】
【LDK:約17.7帖・南×東二面採光】
【LDK:天カセエアコン付き】
【LDK:エコカラット設置】
【キッチン:食器洗浄乾燥機・浄水機能一体型水栓】
【洗面室:三面鏡付き洗面台・洗濯機スペース・浴室】
【浴室:追い焚き機能・浴室換気乾燥機付】
【トイレ:洗浄機能一体型・手洗いカウンター・吊戸棚付き】
【バルコニー:3つのバルコニーの中でLDKに面した東向きバルコニー】
【眺望:南向きバルコニーからの緑豊かな眺め】
・
以上でタワーテラス目黒青葉台のご案内を終わります。
いかがでしたでしょうか??
神泉駅から徒歩8分のマンションです。
リノベーション済みという事で室内はとてもキレイですよ (っ・ω・)っ
内見のご予約やご質問などございましたらお気軽にお問い合わせくださいませ。
ご連絡お待ちしております。
弊社、不動産Agent 六棒株式会社では、
□リノベーションマンションはほぼ全て仲介手数料無料!
□その他一般仲介物件は仲介手数料20%~30%OFF!
にてお取り扱いしております!※弊社の「Agent Fee=仲介手数料」についてはご案内、ご面談の際に営業担当者よりご説明いたします!
なるべく沢山のお部屋をホームページに掲載したいと思っておりますが、時間的成約もございますので、残念ながらご紹介できるお部屋の一部しか掲載できておりません。
このホームページに掲載中のお部屋、その他サイト等で気になるお部屋、街を歩いていて気になったマンション等々ございましたら是非、弊社営業部までご相談ください!
~不動産Agent 六棒株式会社の特徴~
・一般仲介物件の仲介手数料は20%~30%OFFにてご案内中です!
・リノベーションマンションについてはほぼ全て仲介手数料無料です!
・住宅ローンに自信あります!
・頭金10万円より購入できます。是非ご相談下さい!
・お部屋のご見学は車で2~3件まとめて案内します!
・物件数3000件以上、新築戸建、リノベ物件も多数ご用意しております!
過去に販売していたお部屋の概要 こちらのお部屋の販売は終了いたしました
| 価格 | -万円 |
| 面積 | 70.65㎡ |
| 間取り | 2bedrooms(2LDK) |
| 管理費 | 月額11,400円 修繕積立金:月額15,900円 その他:月額1,640円 |
| 所在階 | 8階 |
| お問い合わせ・ご内見のご予約はこちらからお気軽にどうぞ | |
ここで、間取り図のご紹介 ↓ ↓ ↓
※間取り図は別タブで開きますので、確認しながらご覧いただくことが出来ます。
お部屋は8階、専有面積70.65㎡の2LDK。広さ的にはファミリータイプですが、ゆったりめのレイアウトなので、お一人暮らしやDINKSの方にオススメのお部屋です。
ではお邪魔します!
【玄関:アルコーブ付き】
【玄関廊下:人感センサー付き照明】
【LDK:約19.1帖・南向き】
【LDK:木目を多用したナチュラルな雰囲気】
【LDK:エアコン・床暖房付き】
【洋室2:約4.7帖・LDKとはガラス戸で仕切り】
【洋室1:約6.9帖・約1.8帖のウォークインクローゼット付き】
【キッチン:フルフラットのカウンターキッチン】
【キッチン:食器洗浄乾燥機・カップボード付き】
【洗面室:三面鏡付き洗面台・洗濯機スペース】
【浴室:追い焚き機能・浴室換気乾燥機付き】
【トイレ:洗浄機能一体型タンクレストイレ・手洗いカウンター付き】
【バルコニー:13.27㎡・南向き】
【眺望:高台からの開放感のある眺め】
・
以上でタワーテラス目黒青葉台のご案内を終わります。
いかがでしたでしょうか??
神泉駅から徒歩8分のマンションです。
リノベーション済みという事で室内はとてもキレイですよ (っ・ω・)っ
内見のご予約やご質問などございましたらお気軽にお問い合わせくださいませ。
ご連絡お待ちしております。
弊社、不動産Agent 六棒株式会社では、
□リノベーションマンションはほぼ全て仲介手数料無料!
□その他一般仲介物件は仲介手数料20%~30%OFF!
にてお取り扱いしております!※弊社の「Agent Fee=仲介手数料」についてはご案内、ご面談の際に営業担当者よりご説明いたします!
なるべく沢山のお部屋をホームページに掲載したいと思っておりますが、時間的成約もございますので、残念ながらご紹介できるお部屋の一部しか掲載できておりません。
このホームページに掲載中のお部屋、その他サイト等で気になるお部屋、街を歩いていて気になったマンション等々ございましたら是非、弊社営業部までご相談ください!
~不動産Agent 六棒株式会社の特徴~
・一般仲介物件の仲介手数料は20%~30%OFFにてご案内中です!
・リノベーションマンションについてはほぼ全て仲介手数料無料です!
・住宅ローンに自信あります!
・頭金10万円より購入できます。是非ご相談下さい!
・お部屋のご見学は車で2~3件まとめて案内します!
・物件数3000件以上、新築戸建、リノベ物件も多数ご用意しております!
過去に販売していたお部屋の概要 こちらのお部屋の販売は終了いたしました
| 価格 | -万円 |
| 面積 | 60.53㎡ |
| 間取り | 2bedrooms(2LDK)+納戸 |
| 管理費 | 月額9,700円 修繕積立金:月額10,500円 |
| 所在階 | 10階 |
| お問い合わせ・ご内見のご予約はこちらからお気軽にどうぞ | |
ではここで間取りの紹介です。
60.53㎡ 2LDK+納戸 高台に建つマンションの10階なので、バルコニーからの眺めはとてもGoodです(^v^)
玄関を開けると、間接照明で素敵な雰囲気の玄関、そこから延びる絨毯貼りの廊下。
期待の持てる内装です☆
玄関右側はシューズボックスです。とびら5つ分のスペースが在りますので、使いきれないくらいの容量があります^_^;
玄関には人感センサー付きライトがあるので、お家に帰ってきた時には玄関をパッと明るく照らしてくれます☆
シューズボックスの隣のドアはサニタリールームです。
広くてゆったりとした清潔な空間です☆
洗面台はカウンターがとても広いので、お出かけ準備の際にはとても便利です♪
洗面台の右側にはリネン庫があります。バスタオルやハンドタオルを収納するのに便利です!(^^)!
洗濯機置場には棚がありませんが、洗面台の収納が大きいので、洗剤や洗濯バサミ等は洗面台の収納にしまっておけば、こちらはとてもスッキリとお使いいただけます☆
バスルームは広くて追い焚き機能付きなのでいつでもゆったりとバスタイムを楽しんでいただけます。
浴室換気乾燥機付きなので、雨の日でも雪の日でも、こちらにたっぷりと洗濯物を干しておけますよ(^_-)-☆
サニタリールームの隣はトイレです。上部に吊り棚があるので清潔にお使い頂けます。
また、背面にカウンターがあるので、観葉植物などを飾っておけば、トイレ内にも彩りを加えることができます☆
トイレの向かい側には7.0帖の洋室があります。
北側の窓はポーチに面しているので、目の前を人が通るという事がなく安心です(*^^)v
南側に大きなクローゼットがあります。中で3つに分かれているので、普段使い、季節もののコートなど、フォーマルな物と用途によって分けることもできますね(*^。^*)
廊下の突き当りのドアはリビングダイニングキッチンです。13帖とゆったりサイズで、東向きにまどが付いているので、室内はとても明るく開放的です☆
また、リビングスペースには床暖房が入っているので、冬足元からポカポカと温めてくれて、エアコンいらずです♪
キッチンの床はおそうじがしやすいようにビニール製になっています。
ワークトップが広くてお料理がしやすそう♪
シンクには水切り用のラックがあります。洗い物をした後にはとても便利です!(^^)!
レンジの奥に収納棚があるので、調味料などをいっぺんに入れておけて便利です☆
もう一つのカウンターは棚板がないので、棚を設置すれば、こちらにも食材を色々置ける棚になりますね(*^。^*)
キッチン下部には引出し収納、上部には吊棚と、収納力◎でとても使いやすそうです♪
キッチンの脇のドアは納戸です。腰の位置くらいにテーブルの様に大きな天板が付いているので、上段、下段と荷物をたくさん置くことができます☆
リビングにある引戸を開けると・・・
こちらには収納スペースがないので、空けたままにしてリビング代わりに贅沢にお使いいただくのも良いかもしれませんね。
バルコニーへはリビングから出る事が出来ます。
東向きなので午前中はとてもいい陽の光が射しこんできます☆
そして、高台に建つマンションの10階から見る景色は格別♪
東京の都心でもたくさん緑があるんですね(*^。^*)
帰りは歩いて渋谷駅まで。
道玄坂の上にあるマークシティの出入り口から入れば、渋谷駅まであっという間です☆
渋谷駅にはヒカリエもできたので、またお買い物すぽっとが増えました。
お休みの日にお散歩がてら、おでかけください(^^)/
いかがでしたでしょうか。
渋谷駅にも、代官山駅にも、中目黒駅にも歩いて行けるとても良い立地で、高台の上から見る景色はとてもきもちが良いですよ♪
みなさまからのお問い合わせ、お待ちしております。








































































弊社 公式HP
六棒総合研究所
掲載予定物件
価格変更と販売終了物件
ハザードマップ検索
適合証明書.jp
Facebook
Twitter
Instagram