・
□□□□□□□□□□□□□□□□□□□□□□□□□□□□□□□□□□□□□□□
いつも弊社ホームページをご覧頂き誠にありがとうございます。
麻布コーポラスはお陰様で販売を終了致しました。弊社問合せフォームにてご要望頂けましたら、当お部屋でキャンセル等が発生した場合、他のお部屋が販売になりました際にご紹介させて頂きます。
不動産Agent 六棒株式会社
TEL:03‐5413‐5336
□□□□□□□□□□□□□□□□□□□□□□□□□□□□□□□□□□□□□□□
・
今回紹介するのは人気の高級住宅街「麻布十番」にありながら、リーズナブルなリノベーション物件『麻布コーポラス』です。
最寄りの駅はハイソでインターナショナルで、「オシャレ」な『麻布十番』駅。
都営大江戸線と東京メトロ南北線が通っていますし、バス網も充実していますので、どこにでもラクラクアクセスできる、人気の街です。
麻布十番の駅前は、オシャレな商店街になっていて、普段は昔ながらの老舗とオシャレなお店が立ち並ぶとても綺麗な商店街ですが、毎年8月には麻布十番納涼祭りが開催され、その3日間は多くの人で賑わいをみせます。
せっかくなので商店街を通ってマンションに向かいます。
途中、大きな公園がありました。桜の木があって、風に吹かれて花弁が舞い散ってとても綺麗な風景でした。
遊具も充実しているので、近所の子供たちの元気な声も聞こえてきました。
麻布十番のシンボルともいえるこの広場では、骨董市が開かれていて、お客さんが興味深げに商品を眺めていました。
休日に商店街をお散歩して、こんな新しい発見があるのも良いですね♪
商店街をマンション方面に歩いていると、スーパー「ナニワヤ」がありました。
鏡張りの建物で、一見するとスーパーに見えないので、素通り要注意です笑
こんなカフェも発見!!
お店の中に地下水をくみ上げているようです。
ゆったりと珈琲を楽しむには良いお店ですね![]()
ウォールクライミングができるお店も発見!!
親子で楽しんでいるお客さんもいましたよ(*^^)v
休日をアクティブに過ごしたい方にはオススメです。
麻布十番の魅力は、オシャレなお店だけではなく、昔ながらの老舗もあるところ。
マンションの近くには銭湯がありました。
たまには広いお風呂でのんびりというのも良いですね♪♪
マンションのすぐ近くには保育園や小学校もありますので、子育てにも最適な環境です。
また、近くにバス停もあります。都営バスの他、港区には「ちいばす」もありますので、気軽に色々な場所に出かける事が出来ます♪
そんな中に佇んでいるのが、今回紹介する「麻布コーポラス」です。
昭和44年築ですが、平成18年に大規模修繕工事を実施しています。
エレベーターでお部屋に上がります。
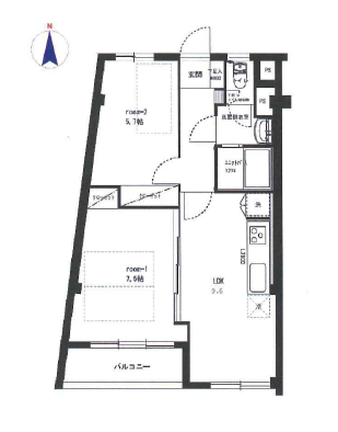
ここで間取り図のご紹介です。
※間取り図は別タブで開きますので、確認しながらご覧いただく事が出来ます。
今回のお部屋は7階、間取りは1LDK、専有面積は40.50㎡。お一人暮らしやDINKSの方にお勧めのお部屋です。奥行約1.8mというバルコニーが楽しみですね。では、早速行ってみましょう。

エレベーターで7階まで上がり明るい外廊下をお部屋へと進みます。帰りに気が付いたんですが、木目のエレベータードア、パッと見だとエレベーターに見えないですよね(^-^;

玄関ドア横にはモニター付きインターホンが設置され、玄関まで来ることなく玄関前の様子を確認することが可能。料理中など、ちょっと手が離せない時に助かります。今のカメラは昔と違ってとても綺麗ですよ。

玄関からは真っすぐ伸びた廊下はナチュラルカラーでまとめられた落ち着いた雰囲気です。最近では段差があまりない上がり口もよく見かけますが、こちらはしっかり段差があるタイプ。中と外がハッキリ分かれている気がして、個人的にはこちらの方が好みです。

シューズボックスは収納力のあるトールタイプ。靴が溢れることもなく玄関内をスッキリ保つことができます。ブーツやヒールなど高さのある靴でも綺麗に並べて収納できるよう、棚の高さを変えられるのも嬉しいですね。

玄関の照明は人感センサー付。人が近づいたのを感知して自動で照明を点けてくれるので、暗い中スイッチを探したりなんてこともありません。もっとも、ドア上に小窓があるので日中は光が入ってきます。開けることもできるので換気にも役立ちますよ。

では、お部屋の中へ…

こちらは約10.2帖のリビング・ダイニング・キッチン。
入って右側がキッチン、左側をリビングダイニングとして使うことになります。広いわけではないので、メリハリを付けたレイアウトがオススメ。家であまり食事をしない方ならリビングを充実させたりと、ライフスタイルと相談して決めていきましょう。廊下と同じ落ち着いた雰囲気の内装で、居心地の良さそうなお部屋です。

入口脇にはニッチカウンター。ひと昔前の電話台ですね。最近ならWi-Fiルーターなどになるんでしょうか。インターホンのモニターもこちらに設置されていますよ。
一番奥にはクローゼット。奥行があって意外と収納力がありそうです。衣装ケースなどで収納力アップもいいですし、衣類以外の嵩張るものを入れておくのにもよさそうですね。

キッチンは横向きの壁付けタイプ。省スペースでお部屋を広く使うことができます。横向きにすることで、キッチン内が目立つというデメリットも軽減されています。

お部屋に馴染むオフホワイトの調理台。トップや金具の黒がいいアクセントになっています。

収納はスライドキャビネットと吊戸棚。
スライドキャビネットは出し入れがしやすく、ギッシリ詰めても中の確認がしやすい優れものです。深さがいろいろあって使いやすそうですね。

コンロは2口。最近は電子レンジをアシストで使ったりするので、私的にはコンロは二つくらいで十分のような気もします。大きな窓がありますが、調理中は換気扇をお忘れなく!窓とダブルで使うと効果的ですよ。

水栓は浄水機能一体型。気軽に美味しいお水を使えます。お料理にお茶に、お米を研ぐのにだって使っちゃいましょう!ノズルが伸びるのでシンクを流したりにも便利です。
キッチン内には冷蔵庫やカップボードを置けるスペースもしっかり確保されています。

では、隣のお部屋へ…

こちらは約4.4帖の洋室。
LDKと同じ南東向きバルコニーに面したお部屋です。柱などの凸凹がないきれいな形なので、家具のレイアウトもしやすそう。

クローゼットはフルオープンになるタイプ。中が一目で確認できて、一説によれば無駄な買い物を減らしてくれるらしいですよ。

廊下へ戻って、次はトイレへ…
大きめの段差があるので足元にご注意ください!


トイレットペーパーや掃除道具を収納するに便利な吊戸棚付。天井が低めなので手が届きやすい高さで助かります。洗浄機能はINAX製のシャワートイレ。

次は洗面室へ…
洗面室には洗面化粧台の他に、洗濯機スペースと浴室がまとまっていて脱衣場も兼ねています。トイレと同じく足元注意!

洗面化粧台は身だしなみチェックに便利な三面鏡付。鏡の間に照明が仕込まれていて、鏡をどんな角度に開いても影にならずに使うことができます。LEDが発明されていろいろなことができるよになりましたね。

水栓はヘッドが引き出せるシャワー水栓。ボウルを流したり、簡単な寝ぐせ直しくらいならなんとかなりそうです。三面鏡裏はキャビネットになっているので、洗面周りに散らかる細々としたものをスッキリ片付けることができますよ。

浴室は全面木目パネル。バスタイムをリラックスして過ごすのにぴったりの雰囲気です。窓付きなのも嬉しいですね♬

追い焚き機能が付いていてボタンひとつでお風呂の準備が可能。保温もしてくれるのでいつでも温かいお風呂に入れます。シャンプーラックは水が溜まらないワイヤータイプなのでお掃除も楽々ですよ。シャワーヘッドホルダーはスライドタイプ。


浴室換気乾燥機には換気の他にも便利な機能で一年中大活躍!冬には浴室暖房、夏には涼風、梅雨なら浴室乾燥などなど。浴室乾燥は雨天だけでなく、花粉や黄砂の季節にもお勧めです!

それでは最後はバルコニーのご紹介。
LDK、洋室どちらの窓からでも出られます。よく見ると窓枠の高さが違うんですね。足元注意です!

お~っ、1.8mはやっぱり広い!!!天井が半分ないのも解放感があっていいですね。さすがにバーベキューはできないと思いますが、デッキチェアーを持ち出してビール片手に休日を過ごすなんて最高じゃないですか♬

なんとオーニング付き!!!
広げることによって暑い時期に無用な陽射しを遮ることができます。なにか文字が書いてあって・・・「LA CHAMBRE DE MAYA」フランス語で「マヤの部屋」ですかね??既成のデザイン??まさか前の居住者の方のオリジナル??ちょっと謎ですね(笑)ただ雰囲気は素敵です。

すぐ目の前は小学校。広いスペースが空いていてとても開放的です。プールが見える涼し気な眺めで、暑い季節には気持ち良さそうですね。
・
以上で麻布コーポラスのご案内を終わります。
いかがでしたでしょうか??
麻布十番駅から徒歩6分のマンションです。
リノベーション済みという事で室内はとてもキレイですよ (っ・ω・)っ
内見のご予約やご質問などございましたらお気軽にお問い合わせくださいませ。
ご連絡お待ちしております。
弊社、不動産Agent 六棒株式会社では、
□リノベーションマンションはほぼ全て仲介手数料無料!
□その他一般仲介物件は仲介手数料20%~30%OFF!
にてお取り扱いしております!※弊社の「Agent Fee=仲介手数料」についてはご案内、ご面談の際に営業担当者よりご説明いたします!
なるべく沢山のお部屋をホームページに掲載したいと思っておりますが、時間的成約もございますので、残念ながらご紹介できるお部屋の一部しか掲載できておりません。
このホームページに掲載中のお部屋、その他サイト等で気になるお部屋、街を歩いていて気になったマンション等々ございましたら是非、弊社営業部までご相談ください!
~不動産Agent 六棒株式会社の特徴~
・一般仲介物件の仲介手数料は20%~30%OFFにてご案内中です!
・リノベーションマンションについてはほぼ全て仲介手数料無料です!
・住宅ローンに自信あります!
・頭金10万円より購入できます。是非ご相談下さい!
・お部屋のご見学は車で2~3件まとめて案内します!
・物件数3000件以上、新築戸建、リノベ物件も多数ご用意しております!
過去に販売していたお部屋の概要 こちらのお部屋の販売は終了いたしました
| 価格 | -万円 |
| 面積 | 52.73㎡ |
| 間取り | 2bedrooms(2LDK) |
| 管理費 | 月額6,000円 修繕積立金:月額11,000円 |
| 所在階 | 3階 |
| お問い合わせ・ご内見のご予約はこちらからお気軽にどうぞ | |

今回ご紹介するお部屋の間取りをご紹介です♪
2LDK、52.73㎡のお部屋です。
<リフォーム内容>
■システムキッチン新規交換(Panasonic製)
(浄水器内蔵シングルレバー式混合柱)
■洗面化粧台新規交換(Panasonic製)
■ユニットバス新規交換(ハウステック製)
(追炊き付)
■トイレ新規交換(TOTO製)
■浴室暖房・換気・乾燥機新規交換(MAX製)
(24時間換気機能付き)
■エアコン2台新規交換(ダイキン製)
(1台追加可)
■床・壁・天井新規張替
■照明器具
(ダウンライト、各部屋シーリング済)
等
それでは早速お部屋を見ていきましょう!

エレベーターを降り、廊下を少し歩いて行くとお部屋があります。
玄関の扉右横にはカメラ付きインターフォンが設置されています!
オートロックはないマンションですが、インターフォンがお客さんの顔と声の認識をしてくれるので防犯対策が出来ます✿

中へ入っていくとリフォームされた綺麗なお部屋が迎えてくれます。
ホワイトとブラックでメリハリがあります。
玄関床のタイルは光沢があり、照明を反射してお部屋を明るくしてくれています(*´˘`*)

シューズボックスは天井まで大きく造られており、たくさんの靴が収納可能です!
可動式なのでお好みで幅を調節することが出来ます。高さのあるブーツなど、形を崩さずしまうことが可能です✿
扉の一部は鏡が付いており、お出かけ前のチェックができますね♪

シューズボックスお隣には、カウンターがあります。
お気に入りの写真を飾ってみたり、アロマや植栽などを飾ってみたりしてみてはいかがでしょうか?(‘v`●)

サニタリールームへやってきました。
白でまとめられ、清潔感があります♪


三面鏡は明るい照明が付いています。お肌の細かい所まで見れるのでお化粧のむら防止に効果的です!
鏡の裏は収納スペースです。もちろん洗面台下も収納スペースとして利用できます♪
電力は1200Wまで可能です✿
洗面台の蛇口周りはちょっとしたスペースがあるので、石鹸やハンドソープなどを置くことが出来ますよ♪

サニタリールームにはこちらの扉があります。
開けていくと・・・

お手洗いです!
こちらも白で統一されています。
ウォシュレット機能がついたTOTO製のトイレです♪

天井には換気扇が付いていますが、小窓が付いているので窓から換気することも可能です。

お手洗いの入口付近に可動式収納があります!
トイレットペーパーやお掃除道具などをしまうのに便利です♪


バスルームはコチラ!
浴槽は身体に優しい丸みをおびた造りです。
浴室換気乾燥機付なので雨の日で乾かせなかったお洋服などを乾かすことが出来ます(*´˘`*)
物干し竿は3つかけることが可能です♪

シャンプーやリンスなどは鏡横に用意された棚へどうぞ✿

追炊きや暖房、涼風等があり機能充実です!
四季関係なく気持の良い入浴が出来そうです♪

玄関からみて右にあるお部屋は・・・


約5.7帖の洋室です。シンプルなお部屋は家具が映えます。
廊下に面したお部屋には窓が付いており、自然の光が射しこみます。
ダイキンのエアコンが設置済みです!

クローゼットは縦横共に大きく大容量収納です♪

玄関正面の扉を開けていきましょう!

約9.6帖のリビングダイニングキッチンです。

キッチンは大きくお料理がしやすいです!
調理スペースがしっかりと取られているのでストレスなくこなせます♪

コンロは3口!フライパンでは難しい焼き魚も魚焼きグリルがあるので大丈夫です♪
流し台には水切りがあり、清潔に保つ事ができます。浄水機能がついているので美味しいお水でお料理ができますよ(^-^)

収納は上下にたっぷりと用意されています!
調味料や食器、調理器具などの収納場所には困りません♪

キッチンの隣には洗濯機置場があります。
少し手間がかかりますが、こちらにあることでサニタリールームが広く使えます。
洗濯物を干す際の動線が短いのも魅力的です!
扉付きなので生活感を隠せます✿

TVモニター付きインターフォンや非常ボタン、お風呂ボタンは扉横にあります!


リビングダイニングキッチンにあるスライド扉を開ければお部屋が大きく使えますよ♪
また、閉めていた時よりもお部屋が明るくなります♪


もちろん扉を閉めて洋室としての利用も出来ます!
約7.5帖の洋室はバルコニーに面しています。
南向きのバルコニーは自然の光を取り込んでくれます♪
こちらのお部屋にも新規エアコン設置済みです✿

収納は小さ目のクローゼットが用意されています。
バー付きなのでお洋服を掛けてしまって置くことが可能です♪


バルコニーは約4.2帖です!
高い位置に物干し竿が掛けられるので丈の長いワンピースなどもラクラク干すことが出来ます♪
いかがでしたでしょうか?
ご質問等ございましたらお気軽にご連絡ください!
皆様のご連絡心よりお待ちしております♪
過去に販売していたお部屋の概要 このお部屋の販売は終了いたしました。
| 価格 | -万円 |
| 面積 | 47.68㎡ |
| 間取り | 2bedrooms(2LDK) |
| 管理費 | 月額6,000円 修繕積立金:月額11,000円 |
| 所在階 | 5階 |
| お問い合わせ・ご内見のご予約はこちらからお気軽にどうぞ | |
では間取りと概要の紹介です。
2LDK 47.68㎡
内装は水廻りも含めて、新規リノベーション工事をしたばかりなので、とても綺麗です。
玄関を開けると、ピカピカの生まれ変わったお部屋が出迎えてくれました。
玄関左側のシューズボックスはトールサイズ。可動式の棚なので、いろいろアレンジして沢山収納できそうです。
玄関には人感センサーつきライトと非常灯が付いているので、とても安心です☆
廊下の右側にサニタリールームがあります。
こちらは全て新規に入れ替えているので、とても綺麗です。
洗面台は三面鏡の裏側が収納スペースになっていて、シンクも広々しているので、清潔にゆったりとお使い頂けます。
トイレはウォシュレット付で上部に吊り棚がありますので、床に洗剤等を置くことなく、綺麗に衛生的にお使い頂けます。
バスルームはダークブラウンのパネルを使っているので、高級感があってとても落ち着いた雰囲気です。ゆったりとしたバスタイムを楽しめそうです☆
サニタリールームの向かい側に6.0帖の洋室があります。
北側にまどがあるので、室内は明るく照らされていました。
南側にはクローゼットが付いています。
大きく開くクローゼットなので、大き目の物もしまうことができます。
このお部屋を寝室にして、普段使いの洋服をこのクローゼットに収納しておくのがいいかもしれませんね(*^。^*)
廊下の突き当りのドアの向こうにリビングダイニングキッチンが広がります。
南向きの窓から明るい陽射しが射しこんでとても広く感じました(*^^)v
リビングダイニングキッチンに入ってすぐ左にある扉に洗濯機置場がありました。
扉が付いているのでお部屋がすっきりと見えます☆
上部に棚があるので、この中もとってもキレイに整理できそうですね(^v^)
キッチンはとてもシンプルで使いやすそう!
吊り棚はありませんが、その分天井まで壁がありませんので、とても広く開放的に感じます☆
3口コンロと浄水器付水栓、キッチンの収納は3段構成になっているので、お手持ちの食器が少ない方なら、食器棚はいらないかもしれません(*^。^*)
リビングと引戸で直結しているのが5.6帖の洋室です。
南向きの窓からは明るい陽射しが射しこんで、とても過ごしやすそうなお部屋です。
北側にクローゼットが付いています。
お一人暮らし、ご夫婦のお二人暮らしであれば、先程の6.0帖を寝室にお使い頂き、こちらの部屋は、引戸を開放してリビングとしてお使い頂いてもいいかもしれませんね(^v^)
バルコニーはこのお部屋から出ることができます。
バルコニーからの眺望は、都会のど真ん中なので、それほどよくはありませんが、
南向きなので陽当たり、風通しがとてもいいバルコニーです!!
いかがでしたか?
人気の南麻布、麻布十番駅が最寄駅で、ピカピカの内装。
それでこの価格であればお買い得だと思います!!
皆さまからのお問い合わせ、お待ちしております。

















































弊社 公式HP
六棒総合研究所
掲載予定物件
価格変更と販売終了物件
ハザードマップ検索
適合証明書.jp
Facebook
Twitter
Instagram