□□□□□□□□□□□□□□□□□□□□□□□□□□□□□□□□□□□□□□□
いつも弊社ホームページをご覧頂き誠にありがとうございます。
クリスタルコート鳥居坂はお陰様で販売を終了致しました。弊社問合せフォームにてご要望頂けましたら、当お部屋でキャンセル等が発生した場合、他のお部屋が販売になりました際にご紹介させて頂きます。
弊社では、仲介手数料無料orお値引(50%off、30%off、20%off)にて皆様のマイホーム探しのお手伝いをさせて頂きいております。クリスタルコート鳥居坂の類似物件や、お探しのご条件等をお聞かせ頂けましたらご条件に合ったお部屋をご紹介させて頂きます。また、ご来社頂き一緒に探させて頂くことも可能ですので、是非弊社問合せフォームよりお気軽にお問合せください。
不動産Agent 六棒株式会社
TEL:03‐5413‐5336
□□□□□□□□□□□□□□□□□□□□□□□□□□□□□□□□□□□□□□□
アクセス
都営大江戸線・東京メトロ南北線「麻布十番」駅徒歩6分
都営大江戸線・東京メトロ日比谷線「六本木」駅徒歩7分
喧騒から離れた閑静な住宅街の中にあるこちらのマンションがクリスタルコート鳥居坂。街並みに溶け込む石積みとタイル貼りを組み合わせた外観が高級感を醸し出しています。
(平成11年築、地下1階付地上7階建て、総世帯数38戸)
24時間有人管理でセキュリティ面も安心。
ペットも一緒に暮らせます。(細則あり)
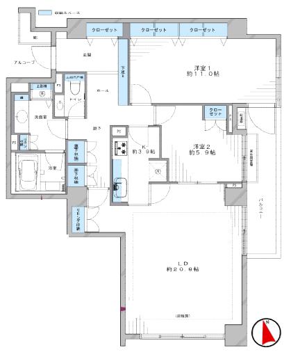
間取りのご紹介です。103.99㎡あるゆったりとした2LDK。
一流のホテルやスパ、温泉リゾートにいるような極上のひとときを味わうことのできる最上級グレードのシステムバスをはじめ、室内設備が充実。
20.8帖あるLDには床暖房もついています。
【リノベーション内容】
■キッチン・・・パナソニック製システムキッチン(食洗機)
■浴室・・・LIXIL製ユニットバス(浴室乾燥機・(ミスト)/TV)
■トイレ・・・LIXIL製タンクレスシャワートイレ
■床・・・NODA製フローリング(廊下/LD/洋室)
■建具・・・パナソニック製内装ドア
■その他・・・給湯器(追い焚き機能付き)、床暖房、塗り壁(玄関/廊下/リビング)、デザインタイル、エコカラット、全クロス張替え、ウインドフィルム、ハウスクリーニング
■アフターサービス保証付
ご内見のご希望・ご質問などございましたら、お気軽にお問い合わせくださいませ♪











弊社 公式HP
六棒総合研究所
掲載予定物件
価格変更と販売終了物件
ハザードマップ検索
適合証明書.jp
Facebook
Twitter
Instagram