□□□□□□□□□□□□□□□□□□□□□□□□□□□□□□□□□□□□□□□
仲介手数料無料でご好評頂いております不動産Agent 六棒株式会社です。
弊社ではリノベーションマンションはほぼ全て仲介手数料無料にてお取り扱いして
おります。気になるお部屋がございましたら是非お問い合わせください!
スカイプラザ赤坂は…
正規仲介手数料をお支払いの場合と比べ約640万円お得にご購入頂けます!
□□□□□□□□□□□□□□□□□□□□□□□□□□□□□□□□□□□□□□□
・
六本木&外苑&赤坂エリアがあなたの生活圏・・・!
東京ミッドタウンや赤坂サカスも歩いていけます。
リノベーションマンション『スカイプラザ赤坂』のご紹介です。
アクセス
東京メトロ銀座線・半蔵門線・都営大江戸線「青山一丁目」駅徒歩5分
東京メトロ千代田線「乃木坂」駅徒歩8分
弊社オフィスのある外苑前より一つお隣の青山一丁目からマンションへ向かってみます。
青山一丁目駅に直結して高層オフィスビル、青山ツインが建っています。低層階にはレストランや雑貨屋、コンビニなどのショップ、診療所などが入っており、何かと使う機会が多そうです。
お昼時ともなれば地下の飲食フロアは会社員でにぎわいますよ~
マンションへは青山通りを赤坂郵便局がある方へ進み、途中道を1本折れて住宅街の中をまっすぐ歩くと到着します。 道は平坦、すぐ着きます。
赤坂御用地の緑がモサモサ続いているのを横目に青山通りを歩きます。ここだけ見ると都心じゃないみたいですね。
青山通りから道を1本入り、住宅街へ。さすが赤坂、重厚&高級感のあるマンションもチラホラ。
マンション周辺は落ち着いた環境ながらも六本木や外苑エリアも徒歩圏内。
オンもオフも充実した毎日が過ごせる環境が魅力的です。
周囲は静かな住宅街。交通量も少ないようです。
スカイプラザ赤坂は昭和53年築、地下1階付き地上5階建て、総世帯数76戸。
外観は重厚感のあるレンガ色のタイル貼りです。
エントランスは階段をあがった先。
植栽もよく手入れが行き届き管理状況の良さが伺えます。
ノスタルジックな共用部。なんだかホッとする雰囲気です。
レトロだからって不便というわけではありません。ちゃんと宅配ボックスが付いています!地下にはトランクルームも。
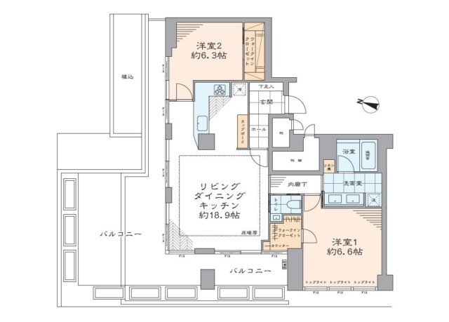
今回ご紹介するお部屋は6階。専有面積79.08㎡の2LDK。ゆったりとレイアウトされた、おひとり暮らしからスモールファミリーまで幅広くお使いいただけるお部屋です。4.68m²のトランクルーム(無償!)も付いていますよ。
間取り図はコチラ ↓ ↓ ↓
※間取り図は別タブで開きますので、確認しながらご覧いただくことが出来ます。
では早速行ってみましょう!
【玄関廊下:人感センサー付き照明】
【LDK:約18.9帖・北×西二面採光】
【LDK:ヘリンボーン柄のフローリングが印象的】
【LDK:床暖房・エアコン付き】
【キッチン:L字型・食器洗浄乾燥機・カップボード付き】
【洋室2:約6.3帖・ウォークインクローゼット付き】
【洋室1:約6.6帖・大きなトップライト・ウォークインクローゼット付き】
【洗面室:ダブルボウルの洗面化粧台・洗濯機スペース】
【浴室:ワイドミラー・浴室換気乾燥機付き】
【トイレ:洗浄機能一体型タンクレス・独立手洗い付き】
【バルコニー:36.60㎡の広々空間】
【眺望:都心ながら緑のある眺め】
・
以上でスカイプラザ赤坂のご案内を終わります。
いかがでしたでしょうか??
青山一丁目駅から徒歩5分のマンションです。
リノベーション済みという事で室内はとてもキレイですよ (っ・ω・)っ
内見のご予約やご質問などございましたらお気軽にお問い合わせくださいませ。
ご連絡お待ちしております。
弊社、不動産Agent 六棒株式会社では、
□リノベーションマンションはほぼ全て仲介手数料無料!
□その他一般仲介物件は仲介手数料20%~30%OFF!
にてお取り扱いしております!※弊社の「Agent Fee=仲介手数料」についてはご案内、ご面談の際に営業担当者よりご説明いたします!
なるべく沢山のお部屋をホームページに掲載したいと思っておりますが、時間的成約もございますので、残念ながらご紹介できるお部屋の一部しか掲載できておりません。
このホームページに掲載中のお部屋、その他サイト等で気になるお部屋、街を歩いていて気になったマンション等々ございましたら是非、弊社営業部までご相談ください!
~不動産Agent 六棒株式会社の特徴~
・一般仲介物件の仲介手数料は20%~30%OFFにてご案内中です!
・リノベーションマンションについてはほぼ全て仲介手数料無料です!
・住宅ローンに自信あります!
・頭金10万円より購入できます。是非ご相談下さい!
・お部屋のご見学は車で2~3件まとめて案内します!
・物件数3000件以上、新築戸建、リノベ物件も多数ご用意しております!
過去に販売していたお部屋の概要 こちらのお部屋の販売は終了いたしました
| 価格 | -万円 |
| 面積 | 53.41㎡ |
| 間取り | 1bedrooms(1SLDK) |
| 管理費 | 月額8,730円円 修繕積立金:月額13,280円 |
| 所在階 | 1階 |
| お問い合わせ・ご内見のご予約はこちらからお気軽にどうぞ | |
今回ご紹介するお部屋は1階、専有面積53.41㎡の1SLDK。実質2LDKで、お一人暮らしからスモールファミリーの方まで幅広くお使いいただけるお部屋です。3.06㎡のトランクルーム付き!
間取り図はコチラ ↓ ↓ ↓
※間取り図は別タブで開きますので、確認しながらご覧いただくことができます。
只今リノベーション工事中
11月中旬完成予定ですのでお楽しみに!
・
以上でスカイプラザ赤坂のご案内を終わります。
いかがでしたでしょうか??
青山一丁目駅から徒歩5分のマンションです。
リノベーション済みという事で室内はとてもキレイですよ (っ・ω・)っ
内見のご予約やご質問などございましたらお気軽にお問い合わせくださいませ。
ご連絡お待ちしております。
弊社、不動産Agent 六棒株式会社では、一般仲介物件は仲介手数料20%~30%OFF!
にてお取り扱いしております!
なるべく沢山のお部屋をホームページに掲載したいと思っておりますが、時間的成約もございますので、残念ながらご紹介できるお部屋の一部しか掲載できておりません。
このホームページに掲載中のお部屋、その他サイト等で気になるお部屋、街を歩いていて気になったマンション等々ございましたら是非、弊社営業部までご相談ください!
~不動産Agent 六棒株式会社の特徴~
・一般仲介物件の仲介手数料は20%~30%OFFにてご案内中です!
・住宅ローンに自信あります!
・頭金10万円より購入できます。是非ご相談下さい!
・お部屋のご見学は車で2~3件まとめて案内します!
・物件数3000件以上、新築戸建、リノベ物件も多数ご用意しております!
過去に販売していたお部屋の概要 こちらのお部屋の販売は終了いたしました
| 価格 | -万円 |
| 面積 | 74.91㎡ |
| 間取り | 2bedrooms(2LDK) |
| 管理費 | 月額12,050円円 修繕積立金:月額18,510円 |
| 所在階 | 1階 |
| お問い合わせ・ご内見のご予約はこちらからお気軽にどうぞ | |
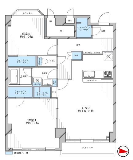
間取りのご紹介です。2LDK、74.91㎡。
ウォークインクローゼット、シューズインクロークが設置された収納豊富なお部屋です。
<リノベーション内容>
■玄関・・・人感センサー、シューズインクローク
■キッチン・・・パナソニック製システムキッチン(食器洗浄機、対面カウンター付き)
■浴室・・・LIXIL製ユニットバス(浴室換気乾燥機、壁一面タイル)
■洗面・・・パナソニック製シャワー付洗面台
■トイレ・・・LIXIL製シャワートイレ(吊戸棚)
■床・・パナソニック製フローリング(廊下/洋室/LDK)、磨きタイル(玄関)、フロアタイル(洗面/トイレ)
■建具・・・パナソニック製内装ドア
■共通・・・給水/給湯管新規(専有部)、給湯器(追い焚き機能付き)、ウォークインクローゼット(洋室1、2)、エコカラット(リビングダイニング+トイレ)、アクセントクロス(洋室1、2+ニッチ+TEL台)、分電盤、LEDダウンライト、LEDシーリングライト、スイッチパネル、全クロス張替え、ハウスクリーニング、etc・・・
白基調の明るい玄関ホール。
右手の扉の奥はシューズインクローゼット。
家族みんなの靴もすっきりとこの中に保管できる容量です。
玄関を上がると、右側方向へ廊下が伸びています。
玄関扉を開けてもお部屋の中が丸見えにならないのがうれしいですね。
廊下にはガラスの飾り棚が設置されています。パッと目を引きますね!
飾る物でずいぶんと空間の雰囲気も変わりそう(´∀`*)
手軽にイメージチェンジできます。
何を置くか考えるのもここに暮らす楽しみのひとつになりそうです。
廊下はガラス棚が設置された通路から、さらに折れて奥へと続いています。
洋室、洗面室・・・などの扉が並んでいるので手前から順番に見ていきます。
一番手前の扉は約6.0帖の洋室。
窓際のカウンター部分はちょっと物を置くのにちょうどよいスペース。
観葉植物をならべて置けばお部屋の中でもガーデンビューが楽しめそうです。
こちらの洋室には収納にウォークインクローゼットが設置されています。
左右にお洋服がかけられるようになっています。
収納が大きいと居住スペースを有効的に使えるのがうれしいですね!
廊下にも棚付きの物入れが設置されています。
こちらには日用品のストックや掃除用具など生活用品をしまっておいてはいかがでしょうか。
洋室のお隣はトイレ。
ウォシュレット機能付きです。
上の棚にはトイレットペーパーのストックをどうぞ。
トイレの隣りは洗面室。
白基調で清潔感もたっぷり(●´∀`)
洗面化粧台の横にはタオルの保管に便利なリネン庫もついています。
ドライヤーやシャンプーのストックなどのバス用品も洗面化粧台の下や引き出しにしまっておけます。
さらに鏡の裏も一面収納になっているのでハブラシなどのゴチャゴチャしがちなアイテムも整理整頓して保管できます。水廻りが片付いていると毎日気持ちよく身支度ができそうですd(´∀`)
洗面化粧台の隣りは洗濯機置場。上の棚には洗濯ネットや洗剤をどうぞ。
壁一面に上質なタイルが使用された洗練された雰囲気のバスルーム。
追い焚きと浴室換気乾燥機付きと設備も充実してます。
廊下を進んだ突き当りの採光部のある扉の奥は・・・
約15.8帖のLDK。
ゆとりある空間の中で家族や遊びにきたお友達やお客様と楽しいひとときが過ごせそう(人´∀`).☆.。.
エコカラットとダウンライトの柔らかい光が印象的な空間を演出しています。
リビング内にはTEL台も設置されています。
キッチンは開放感のあるオープンタイプ。
リビングにいる家族やお友達と会話を楽しみながら食事の支度ができますよ。
ホームパーティー、開きたくなりますね♪
キッチンは3口コンロ、ワークトップは人造大理石と見た目もスペックも◎。
食洗機もついているので後片付けもラクラク。節水・節電にも優れています。
収納はキッチングッズの出し入れがスムーズな引き出しタイプです。
LDKに隣接して洋室がつくられています。
3枚の可動式扉の向こう側へ。
LDKのお隣の洋室は約9.0帖。
広さ的に、こちらをご夫婦の寝室、約6.0帖の洋室を子供部屋として使うイメージでしょうかφ(.. )
窓から見える緑がさわやかです。
約9.0帖の洋室内にはウォークインクローゼットが2つも設置されています。
収納家具は最小限用意すればよさそうです。
1つは棚付き、1つはお洋服がかけられるポールがついていました。
3枚の可動式扉をあけてLDKと洋室をつなげると明るく開放的な大空間になりました。
つなげて使ったり、独立させて使ったりと生活シーンに合わせてフレキシブルに利用できるのも魅力的です。
最後にLDKからバルコニーへ出てみます。
東向き・約3.85㎡とややお部屋に対してコンパクトな印象でしょうか。
お洗濯物が多いときはバスルームの乾燥機が活躍してくれますね。
窓からは緑がたくさん見えて快適 (●´∀`)
バルコニーに出ればさわやかな気分になれそうです。
ゼヒ実際のお部屋もご覧になってみませんか?
ご内見のご予約・その他ご質問などお気軽にお問合せくださいませ![]()


















































































弊社 公式HP
六棒総合研究所
掲載予定物件
価格変更と販売終了物件
ハザードマップ検索
適合証明書.jp
Facebook
Twitter
Instagram