・
□□□□□□□□□□□□□□□□□□□□□□□□□□□□□□□□□□□□□□□
いつも弊社ホームページをご覧頂き誠にありがとうございます。
東京ツインパークス・レフトウイングはお陰様で販売を終了致しました。弊社問合せフォームにてご要望頂けましたら、当お部屋でキャンセル等が発生した場合、他のお部屋が販売になりました際にご紹介させて頂きます。
不動産Agent 六棒株式会社
TEL:03‐5413‐5336
□□□□□□□□□□□□□□□□□□□□□□□□□□□□□□□□□□□□□□□
・
『東京ツインパークス・レフトウイング』のご紹介です。
多駅多路線利用可能で空港へのアクセスもよく、「銀座」も徒歩圏の好立地。
JR線(山手線・京浜東北線・東海道本線・横須賀線)、東京メトロ銀座線、都営浅草線、
りんかい線「新橋」徒歩8分。
JR山手線・京浜東北線、東京モノレール「浜松町」徒歩6分。
都営大江戸線、りんかい線「汐留」徒歩3分。
・
多くの路線が乗り入れるビッグターミナル「新橋駅」からお部屋へ向かいます。
東京臨海新交通臨海線(ゆりかもめ)「新橋駅」
こちらは日テレ前。
最寄りの都営大江戸線・東京臨海新交通臨海線(ゆりかもめ)「汐留駅」
新橋駅からは、第一京浜をまたぐ位置にありますが、新橋駅→汐留駅まで
ペデストリアンデッキになっていて大変歩きやすく、信号待ちのストレスもなく
スムーズに歩くことができました。
汐留駅に隣接する商業施設「Pedi」には飲食店やカフェ、ドラッグストア、
コンビニなどが入っています。
緑の中に伸びていく緩やかなスロープを進むとあと少し。
到着です!
荘厳な雰囲気の重厚感のあるエントランス。
正面のメインロビーでレフトウイングとライトウイングを繋いでいます。
超高層のツインタワー。レフトウイングのエントランスへ向かいます。
『東京ツインパークス・レフトウイング』
2002年築、47階建て地下2階付、総戸数1000戸(ライトウイング含む)
<共用施設>
ゲストルーム・コンビニ・パーティルーム・ビューラウンジ・フィットネスジム・フロントサービス・ラウンジ・ライブラリー・ミーティングルーム・プライベートブース・ピアノスタジオ・ 集会室・ゴルフレンジ・ビリヤード・シークレットガーデンetc…
要塞のようなエントランスから中へ。
1つ目のエントランスを左へ進むと1つ目のオートロック。
こちらはメインロビー。レフトウイングとライトウイングを繋ぎます。
外観の印象とはまた違った高級ホテルのような落ち着いた雰囲気を醸し出しています。
・
2つ目のオートロックがあるエントランスホール。
右側はコンシェルジュデスク、左側へ進みます。
美術館のような長い廊下を進みエレベーターホールへ。
エレベータは8基。
上層階専用のエレベーターでお部屋へ向かいます。
エレベータ内も凝ってます…
ここで間取り図のご紹介です。
※間取り図は別タブで開きますので、確認しながらご覧いただくことが出来ます。
お部屋はなんと40階!!!専有面積75.86㎡の2LDK。ファミリーからお一人暮らしの方まで幅広くお使いいただけるお部屋です。それでは、早速行ってみましょう!
【玄関:人感センサー付き照明】
【トイレ:タンクレストイレ・手洗いカウンター付き】
【洗面室:三面鏡付き洗面化粧台】
【浴室:追い焚き機能・浴室換気乾燥機付き】
【LD:約14帖・ビルトインエアコン付き】
【LD:間接照明・床暖房付き】
【キッチン:約3.8帖・独立タイプ・カップボード・食洗器付き・IHコンロ】
【洋室1:約9.6帖・エアコン付き】
【洋室1:ウォークインクローゼット付き】
【洋室2:約5.1帖・エアコン付き】
【眺望:浜離宮恩賜庭園を望む】
・
以上で東京ツインパークス・レフトウイングのご案内を終わります。
いかがでしたでしょうか??
汐留駅から徒歩2分のマンションです。
リノベーション済みという事で室内はとてもキレイですよ (っ・ω・)っ
内見のご予約やご質問などございましたらお気軽にお問い合わせくださいませ。
ご連絡お待ちしております。
弊社、不動産Agent 六棒株式会社では、
□リノベーションマンションはほぼ全て仲介手数料無料!
□その他一般仲介物件は仲介手数料20%~30%OFF!
にてお取り扱いしております!※弊社の「Agent Fee=仲介手数料」についてはご案内、ご面談の際に営業担当者よりご説明いたします!
なるべく沢山のお部屋をホームページに掲載したいと思っておりますが、時間的成約もございますので、残念ながらご紹介できるお部屋の一部しか掲載できておりません。
このホームページに掲載中のお部屋、その他サイト等で気になるお部屋、街を歩いていて気になったマンション等々ございましたら是非、弊社営業部までご相談ください!
~不動産Agent 六棒株式会社の特徴~
・一般仲介物件の仲介手数料は20%~30%OFFにてご案内中です!
・リノベーションマンションについてはほぼ全て仲介手数料無料です!
・住宅ローンに自信あります!
・頭金10万円より購入できます。是非ご相談下さい!
・お部屋のご見学は車で2~3件まとめて案内します!
・物件数3000件以上、新築戸建、リノベ物件も多数ご用意しております!
過去に販売していたお部屋の概要 こちらのお部屋の販売は終了いたしました
| 価格 | -万円 |
| 面積 | 111.72m² |
| 間取り | 2bedroom(2SLDK) |
| 管理費 | 月額:41,300円 修繕積立金:月額34,520円 給湯暖房基本料:月額3,000円 ヒーツ修繕積立金:月額4,690円 インターネット:月額1,595円 |
| 所在階 | 39階 |
| お問い合わせ・ご内見のご予約はこちらからお気軽にどうぞ
|
|
ここで、間取り図のご紹介 ↓ ↓ ↓
※間取り図は別タブで開きますので、確認しながらご覧いただくことが出来ます。
専有面積111.72㎡の2SLDK、39階!100㎡超ながら2SLDKと全体的にゆったりとレイアウトされたお部屋です。ファミリーはもちろん、お二人で贅沢に過ごすにも良さそうですね♬39階からの眺めも楽しみです!
それではお邪魔します。
【玄関廊下:LDKからの光を取り込んだ明るい玄関ホール】
【玄関廊下:天井までのシューズボックス】
【LDK:約26.2帖・南西向きの大きな窓】
【LDK:ビルトインエアコン・床暖房付】
【LDK】
【キッチン:L字型のカウンタータイプ・食器洗浄乾燥機・オーブン付き】
【キッチン:カップボード付き】
【洋室2:約6.2帖・約1.6帖のウォークインクローゼット付き】
【洋室1:約10.3帖・廊下に面した独立性の高いお部屋】
【洋室1:約2.2帖のウォークインクローゼット付き】
【サービスルーム:約4.8帖・エアコン付きで居室としての使用も可能】
【ユーティリティルーム:約1.8帖・洗濯機スペースその他】
【トイレ:洗浄機能一体型タンクレストイレ・手洗いカウンター付き】
【洗面室:朝のラッシュ時に嬉しいダブルボウルの洗面台】
【浴室:ジェットバス・テレビ・浴室換気乾燥機付き】
【バルコニー:南西向き・2つの洋室にひとつづつ】
【眺望:東京タワーを望める眺望・条件によっては富士山も♪ 】
・
以上で東京ツインパークス・レフトウイングのご案内を終わります。
いかがでしたでしょうか??
汐留駅から徒歩2分のマンションです。
リノベーション済みという事で室内はとてもキレイですよ (っ・ω・)っ
内見のご予約やご質問などございましたらお気軽にお問い合わせくださいませ。
ご連絡お待ちしております。
弊社、不動産Agent 六棒株式会社では、
□リノベーションマンションはほぼ全て仲介手数料無料!
□その他一般仲介物件は仲介手数料20%~30%OFF!
にてお取り扱いしております!※弊社の「Agent Fee=仲介手数料」についてはご案内、ご面談の際に営業担当者よりご説明いたします!
なるべく沢山のお部屋をホームページに掲載したいと思っておりますが、時間的成約もございますので、残念ながらご紹介できるお部屋の一部しか掲載できておりません。
このホームページに掲載中のお部屋、その他サイト等で気になるお部屋、街を歩いていて気になったマンション等々ございましたら是非、弊社営業部までご相談ください!
~不動産Agent 六棒株式会社の特徴~
・一般仲介物件の仲介手数料は20%~30%OFFにてご案内中です!
・リノベーションマンションについてはほぼ全て仲介手数料無料です!
・住宅ローンに自信あります!
・頭金10万円より購入できます。是非ご相談下さい!
・お部屋のご見学は車で2~3件まとめて案内します!
・物件数3000件以上、新築戸建、リノベ物件も多数ご用意しております!
過去に販売していたお部屋の概要 こちらのお部屋の販売は終了いたしました
| 価格 | -万円 |
| 面積 | 91.86m² |
| 間取り | 2bedroom(2LDK) |
| 管理費 | 月額:30,600円 修繕積立金:月額28,380円 給湯暖房基本料:月額2,500円 ヒーツ修繕積立金:月額3,860円 インターネット:月額1,595円 |
| 所在階 | 37階 |
| お問い合わせ・ご内見のご予約はこちらからお気軽にどうぞ | |
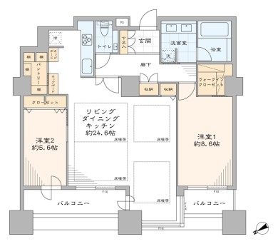
ここで間取り図のご紹介です。
※間取り図は別タブで開きますので、確認しながらご覧いただくことが出来ます。
お部屋は37階!!!専有面積91.86㎡の2LDK。約24.6帖の広々リビングを中心にしたゆったりとした造りで、ファミリーだけでなくDINKSの方などにもお勧めのお部屋です。有償にはなりますがリビングを分割して3LDK~4LDKに変更することも可能とのことですので、ご家族が多い方でも大丈夫ですよ。37階からの眺望楽しみですね♬
それでは、早速行ってみましょう!
【玄関】
【LDK:約24.6帖】
【LDK】
【キッチン】
【キッチン】
【キッチン・パントリー】
【洋室2:約5.6帖】
【洋室1:約8.6帖 ・ ウォークインクローゼット】
【トイレ】
【洗面室】
【浴室】
【眺望】
・
以上で東京ツインパークス・レフトウイングのご案内を終わります。
いかがでしたでしょうか??
汐留駅から徒歩2分のマンションです。
リノベーション済みという事で室内はとてもキレイですよ (っ・ω・)っ
内見のご予約やご質問などございましたらお気軽にお問い合わせくださいませ。
ご連絡お待ちしております。
弊社、不動産Agent 六棒株式会社では、
□リノベーションマンションはほぼ全て仲介手数料無料!
□その他一般仲介物件は仲介手数料20%~30%OFF!
にてお取り扱いしております!※弊社の「Agent Fee=仲介手数料」についてはご案内、ご面談の際に営業担当者よりご説明いたします!
なるべく沢山のお部屋をホームページに掲載したいと思っておりますが、時間的成約もございますので、残念ながらご紹介できるお部屋の一部しか掲載できておりません。
このホームページに掲載中のお部屋、その他サイト等で気になるお部屋、街を歩いていて気になったマンション等々ございましたら是非、弊社営業部までご相談ください!
~不動産Agent 六棒株式会社の特徴~
・一般仲介物件の仲介手数料は20%~30%OFFにてご案内中です!
・リノベーションマンションについてはほぼ全て仲介手数料無料です!
・住宅ローンに自信あります!
・頭金10万円より購入できます。是非ご相談下さい!
・お部屋のご見学は車で2~3件まとめて案内します!
・物件数3000件以上、新築戸建、リノベ物件も多数ご用意しております!
過去に販売していたお部屋の概要 こちらのお部屋の販売は終了いたしました
| 価格 | -万円 |
| 面積 | 91.86㎡ |
| 間取り | 2bedroom(2SLDK) |
| 管理費 | 月額:30,600円 修繕積立金:月額28,380円 給湯暖房基本料:月額2,500円 ヒーツ修繕積立金:月額3,860円 インターネット:月額1,595円 |
| 所在階 | 27階 |
| お問い合わせ・ご内見のご予約はこちらからお気軽にどうぞ | |
ここで間取り図のご紹介です。
※間取り図は別タブで開きますので、確認しながらご覧いただくことが出来ます。
今回ご紹介するお部屋は27階、専有面積91.86㎡の2SLDK。広さの割にゆったりとした造りで、ファミリーだけでなくDINKSの方などにもお勧めのお部屋です。では、早速行ってみましょう!
【玄関・廊下】
玄関から廊下にかけては高級感のある大理石貼り。冷たい感じなりがちな素材ですが、全体を暖色系でまとめることで温かみのある雰囲気に仕上がっていますね。入った時に目に付く位置にはインテリアを楽しめるようニッチカウンターが設けられています。
【廊下収納】
廊下を進むとウォークインクローゼットが!!!洋服だけでなく様々なストックやシーズンオフの家電などに幅広く使える便利な収納です。
【洗面室】
洗面室には洗面化粧台と浴室、洗濯機スペース、ドレッサーがまとまっていて脱衣室も兼ねています。なんと洗面化粧台はダブルボウル!洗面台が込み合う朝でもこれなら安心ですね。幅があるので収納もたっぷりです。
【洗面室】
ドレッサーではお化粧はもちろん座って髪を乾かすことも可能です。髪が短い私は感じたことがありませんが、長い髪を立ったまま乾かすのは結構大変なんだとか。洗濯機スペースに扉が付けられ見えないようになっているのも嬉しいですよね。
【浴室】
マンションでは珍しい大きめの窓が付いた浴室です。外は27階のバルコニーですからあまり心配はありませんが、夜お風呂に入る時にはブラインドを閉めるのを忘れないように気を付けましょう。木目パネルに囲まれた落ち着いた雰囲気でリラックスしたバスタイムを過ごせそうですね。追い焚き機能や浴室換気乾燥機、テレビなどの便利機能も完備!
【トイレ】
ゆったりサイズのトイレは手洗いカウンター付き。タンクレスやミラーなどが一層広さを際立たせていますね。カウンター下や吊り戸棚など収納も豊富で、掃除装具やトイレットペーパーのストックなどが全てトイレ内に収まりそうです。
【洋室1】
洋室1は廊下に面した独立性の高いお部屋です。二つある洋室の中では大きい方なのでメインの寝室によさそうですね。シンプルな色使いでカーテンや家具も幅広く選べますよ。
【洋室1-WIC】
こちらは洋室1のウォークインクローゼット!!!両側にハンガーパイプや棚、引き出しが設置された使い勝手のよい収納です。正面の姿見が嬉しいですね。
【LDK】
こちらはリビング・ダイニング。天井の中央部分が高くなっていて広々と感じるお部屋です。色数は少なめながら様々な照明作り出す明暗がアクセントになっていますね。エアコンはインテリアの邪魔にならないビルトインタイプです。
【LDK】
窓際のソファーベッドがいい感じ!ゴロゴロしながらスマホをいじったり、ボ~っと外を眺めたり・・・お気に入りの場所になりそうです♬
【LDK】
リビング部分にはふかし壁と組み合わせた飾り棚が設置され、いろいろ飾ってインテリアを楽しむことも出来ますよ。ただし落下防止には気を付けましょう。
【キッチン】
キッチンは引き戸で仕切られた完全な独立タイプ。生活感漂うキッチンがリビングから目に入らず、料理の臭いが広がる心配もありません。調理中に小さなお子様やペットの侵入を防げるのも有難いですよね。幅の広い調理台で作業スペースや収納もたっぷりです。食器洗浄乾燥機付き。
【サービスルーム】
こちらはサービスルーム。法律上居室と呼べないだけで実際は普通に洋室として使用することが出来ます。写真のように寝室にするのもいいですし、書斎として在宅ワークに使うにも良さそうですね。
・
以上で東京ツインパークス・レフトウイングのご案内を終わります。
いかがでしたでしょうか??
汐留駅から徒歩2分のマンションです。
リノベーション済みという事で室内はとてもキレイですよ (っ・ω・)っ
内見のご予約やご質問などございましたらお気軽にお問い合わせくださいませ。
ご連絡お待ちしております。
弊社、不動産Agent 六棒株式会社では、
□リノベーションマンションはほぼ全て仲介手数料無料!
□その他一般仲介物件は仲介手数料20%~30%OFF!
にてお取り扱いしております!※弊社の「Agent Fee=仲介手数料」についてはご案内、ご面談の際に営業担当者よりご説明いたします!
なるべく沢山のお部屋をホームページに掲載したいと思っておりますが、時間的成約もございますので、残念ながらご紹介できるお部屋の一部しか掲載できておりません。
このホームページに掲載中のお部屋、その他サイト等で気になるお部屋、街を歩いていて気になったマンション等々ございましたら是非、弊社営業部までご相談ください!
~不動産Agent 六棒株式会社の特徴~
・一般仲介物件の仲介手数料は20%~30%OFFにてご案内中です!
・リノベーションマンションについてはほぼ全て仲介手数料無料です!
・住宅ローンに自信あります!
・頭金10万円より購入できます。是非ご相談下さい!
・お部屋のご見学は車で2~3件まとめて案内します!
・物件数3000件以上、新築戸建、リノベ物件も多数ご用意しております!
過去に販売していたお部屋の概要 こちらのお部屋の販売は終了いたしました
| 価格 | -万円 |
| 面積 | 65.14m² |
| 間取り | 1bedroom(1SLDK) |
| 管理費 | 月額:21,700円 修繕積立金:月額20,130円 給湯暖房基本料:月額1,800円 ヒーツ修繕積立金:月額2,740円 インターネット:月額1,595円 |
| 所在階 | 35階 |
| お問い合わせ・ご内見のご予約はこちらからお気軽にどうぞ | |
エレベーターに乗っている間に、間取り図のご紹介をしておきます。
今回ご紹介するお部屋は35階!間取りは1SLDK、専有面積は65.14㎡。おひとり暮らしやDINKSの方にお勧めのお部屋です。それぞれの部屋が広く、ゆとりのある間取りになってますね♬
35階に到着です・・・早速行ってみましょう!

廊下はホテルのような内廊下!手すりが設置されていて、お年寄りにも優しい設計になっています。少々病院感はありますが、きっと感謝する日が来るはずです(*^^*)

玄関ホールは短めながら幅があり、ゆったりした雰囲気の空間です。正面ドアには大きなガラスが入り、奥行を感じられるのも広く感じる原因かもしれませんね。玄関には収納力抜群のシューズボックスが設置され、散らかりがちな玄関もスッキリ!

こちらは約17.9帖のリビング・ダイニング・キッチン。
バルコニーに面した大きな窓があるお部屋です。リビングダイニングだけで約14.2帖!幅も奥行きもある正方形に近い形なので、レイアウトの自由度も高くなっています。写真のようにL字型のソファーなんかも楽に置けますよ。エアコンは天カセタイプ。

洒落た木目のアクセントウォール。実は、こちらはエコカラットという機能性素材を使っています。湿度調節をしたり、嫌な匂いを吸着したりと快適な暮らしをサポートしてくれます。リビングダイニング部分には床暖房設置。エアコンのモワモワした感じが苦手な方でも安心ですね♬
キッチンは奥まったところにあり、程良い距離感を保っています。

キッチンはLIXIL製のシステムキッチン。
広い作業スペースに加え、後ろに造り付けられたカップボードがまたGOOD!手狭なところで手際よく料理をするのもカッコイイですが、出来れば広い方がお料理もはかどりますよね。お友達が来た時などに、みんなでワイワイお料理とかも楽しそうです♬
コンロはIHでお掃除も楽々。食後の食器洗いは食器洗浄乾燥機にお任せください。

こちらは約3帖のサービスルーム。
デスクが付きの書斎やホビールームなどに使えるお部屋です。窓やドアなどガラスが多く使われ、解放的でまるでLDKの一部のようですね。集中したい時は内側にブラインドやロールカーテンなどを付けると良さそうです。

こちらは約9帖の洋室。
LDKと同じバルコニーに面したお部屋です。約9帖とたっぷり広さがあり、ビッグサイズのベッドも余裕で置けますよ!入口は引き戸なのでデッドスペースもなく、家具のレイアウトも自由自在です。とは言え、クローゼット付きなので収納家具も必要ないかもしれませんね。クローゼットは間口が広くとても使いやすそうです。

こちらは洗面室。
洗面室には洗面台、トイレ、浴室がまとまっていて、脱衣所も兼ねています。三面鏡付の洗面台は上部に照明が付いていて、鏡を見る時に影になる心配もありません。洗濯機スペースの上の吊戸棚には、洗剤や洗濯ネットなどの洗濯グッズを収納可能。よく使う物を置いておける横のカウンターも嬉しいですね。

トイレはLIXIL製の洗浄便座付きトイレ。タンクレスは実にスタイリッシュですね。タンクがないのでトイレ裏側のお掃除も簡単なんですよ。いろいろ飾れるカウンターや、トイレットペーパーのストックに便利な吊戸棚付。

浴室はブラウンの木目パネルで落ち着いた雰囲気。リラックスしたバスタイムを過ごせそうですね。追い焚き機能付きユニットバスはボタン一つでお風呂を沸かすことが出来ます。そのまま保温もしてくれるので、いつでも温かいお風呂に入れますよ。浴室換気乾燥機付き。

最後にバルコニーへ…
広さは11.04㎡、北東向き。タワーマンションのバルコニーって小さいイメージがありましたが、こんなに広いところもあるんですね!幅も奥行きもたっぷりで、35階からの眺めをのんびり楽しめそうです(*^^*)

バルコニーからは浜離宮恩賜庭園の豊かな緑も望めます。高層階ならではの夜景も期待大ですね。
・
以上で東京ツインパークス・レフトウイングのご案内を終わります。
いかがでしたでしょうか??
汐留駅から徒歩2分のマンションです。
リノベーション済みという事で室内はとてもキレイですよ (っ・ω・)っ
内見のご予約やご質問などございましたらお気軽にお問い合わせくださいませ。
ご連絡お待ちしております。
弊社、不動産Agent 六棒株式会社では、
□リノベーションマンションはほぼ全て仲介手数料無料!
□その他一般仲介物件は仲介手数料20%~30%OFF!
にてお取り扱いしております!※弊社の「Agent Fee=仲介手数料」についてはご案内、ご面談の際に営業担当者よりご説明いたします!
なるべく沢山のお部屋をホームページに掲載したいと思っておりますが、時間的成約もございますので、残念ながらご紹介できるお部屋の一部しか掲載できておりません。
このホームページに掲載中のお部屋、その他サイト等で気になるお部屋、街を歩いていて気になったマンション等々ございましたら是非、弊社営業部までご相談ください!
~不動産Agent 六棒株式会社の特徴~
・一般仲介物件の仲介手数料は20%~30%OFFにてご案内中です!
・リノベーションマンションについてはほぼ全て仲介手数料無料です!
・住宅ローンに自信あります!
・頭金10万円より購入できます。是非ご相談下さい!
・お部屋のご見学は車で2~3件まとめて案内します!
・物件数3000件以上、新築戸建、リノベ物件も多数ご用意しております!
過去に販売していたお部屋の概要 このお部屋の販売は終了いたしました。
| 価格 | -万円 |
| 面積 | 89.77㎡ |
| 間取り | 2bedroom(2LDK) |
| 管理費 | 月額:29,900円 修繕積立金:27,740円給湯暖房基本料:2,400円 ヒーツ修繕積立金:3,770円 インターネット:1,595円 |
| 所在階 | 16階 |
| お問い合わせ・ご内見のご予約はこちらからお気軽にどうぞ | |
それではエレベーターで今回のお部屋16階へ
ここで間取り図とリフォーム内容のご紹介。
※クリックすると間取り図は別タブで開きます
2LDK 89.77㎡ 16階
今回のお部屋は新規内装リフォーム済みになります。
●システムキッチン新規交換
●ユニットバス新規交換
●建具新規交換
●エアコン5台新規設置
●クロス張替え
●フローリング張替え
●洗面化粧台新規交換
●ウォシュレット付タンクレストイレ新規交換
●ダウンライト新規設置
●玄関廊下大理石貼り
●洗濯パン・水栓新規交換
●ルームクリーニング等・・・
以上のようなリフォームが済んでおります。
また、今回は室内写真が少なく限られております。
順次撮影にいっていますが素敵なお部屋なので
一足先に少ない写真ですが皆さんに情報をお届けさせて頂きます!
では!お邪魔します。
玄関廊下は大理石貼りになっています。
トールタイプのシューズボックス
くねくね曲がったプライバシー性の高い廊下
突き当りにリビングがあります。
開放感ある素敵なリビング
室内のお写真で特に説明は不要でしょうか。
浜離宮向き・湾岸方面パノラマビュー。
システムキッチン
カウンターキッチンのため開放感がありますね。
後ろの棚も揃えて設置をしているので一体感があります。
壁面にはオープンラックとデスクを増設。
今回家具が置いてありますが販売価格には含まれませんのでご了承ください。
夜になるとまたがらりとリビングの雰囲気が変わりそうですね☆彡
それでは気になる水周りへ・・
洗面化粧台はツーボウルを新規設置。
忙しい朝も混雑しません。
浴室は光沢のある木目調パネル。
浴室乾燥機が設置されています。
洗面室の隣はトイレになります。
ウォシュレット付きタンクレストイレですっきりスリム。
洋室は2部屋あります。
どちらもバルコニーへ出ることが出来ます。
各クローゼットがあるのと、
もう一部屋はウォークインクローゼットがありました。
リビングからの眺望です。
さて、以上で東京ツインパークス レフトウイングのご案内を終わります。
いかがでしたでしょうか??
現在リフォームも完了しているためいつでもご見学が可能です。
汐留駅から徒歩2分のマンションです。
リフォーム済みという事で室内はとてもキレイですよ (っ・ω・)っ
内見のご予約やご質問などございましたらお気軽にお問い合わせくださいませ。
ご連絡お待ちしております
弊社、不動産Agent 六棒株式会社では、
□リノベーションマンションはほぼ全て仲介手数料無料!
□その他一般仲介物件は仲介手数料20%~30%OFF!
にてお取り扱いしております!※弊社の「Agent Fee=仲介手数料」についてはご案内、ご面談の際に営業担当者よりご説明いたします!
なるべく沢山のお部屋をホームページに掲載したいと思っておりますが、時間的成約もございますので、残念ながらご紹介できるお部屋の一部しか掲載できておりません。
このホームページに掲載中のお部屋、その他サイト等で気になるお部屋、街を歩いていて気になったマンション等々ございましたら是非、弊社営業部までご相談ください!
~不動産Agent 六棒株式会社の特徴~
・センチュリー21加盟店です!
・一般仲介物件の仲介手数料は20%~30%OFFにてご案内中です!
・住宅ローンに自信あります!
・頭金10万円より購入できます。是非ご相談下さい!
・お部屋のご見学は車で2~3件まとめて案内します!
・物件数3000件以上、新築戸建、リノベ物件も多数ご用意しております!
過去に販売していたお部屋の概要 このお部屋の販売は終了いたしました。
| 価格 | -万円 |
| 面積 | 155.87㎡ |
| 間取り | 1bedroom(1LDK) |
| 管理費 | 月額:48,500円 修繕積立金:14,550円
給湯暖房基本料:4,200円 ヒーツ修繕積立金:4,350円 インターネット:1,900円 TTPサポートシステム料:1,000円 |
| 所在階 | 40階 |
| お問い合わせ・ご内見のご予約はこちらからお気軽にどうぞ | |
40階のエレベータホール。
ダストBOXはもちろん各階に設置されています。
間取図はこちら。
南西向きの1LDK+patyroom 155.87㎡
有名インテリアデザイナーが手掛けた、オーダーメイド家具。内装付き住戸。
ご帰宅の際はこんなイメージでしょうか。
玄関ホール左側にシューズインクローゼットがあり、ハンガーポールもありますので
コートなどはこちらに。右側には一面のシューズBOX。
玄関ホールから左側がパブリックスペースになっています。
24帖のリビング。ソファーや家具等はすべてオーダーメイドでこのお部屋に合わせて特注されています。
遮る建物が一切ない南西向きの陽当りの良いリビング。
リビングからの眺望。
東京タワーはもちろん、東京の都市部が一望できます!
照明は自在にコントロール可能でカーテンはリモコン式の電動カーテン。
続いてガラスの間仕切りと腰高の戸棚で仕切られたシアタースペース。
お好きな空間にアレンジできそうです。
照明の配置がよく、夜が楽しみなお部屋です。
東京一望のバルコニーでくつろぐのもいいですね!
こちらは正面にキッチン、左側にトイレスペース。
6.4帖のキッチンには独立した作業スペースがあり、パーティーなどの大人数のお料理の際にも重宝しそうです。
長ーいI型キッチンは安心のIHキッチン。
ランドリースペースもキッチン内にあります。
2WAYキッチンの一方は7.3帖のダイニングへ。
ダイニングのバルコニー。
リビングからダイニングへはこの壁のような扉から。
いよいよベッドルームへ。
16.4帖のベッドルーム。
ベッドルームの照明も調光可能。
朝はまた違った印象の室内です。
バルコニーから明るい日差しが差し込みます。
ベッドルーム入口すぐに大きな鏡が2枚。収納になってます。
窓際にはデスクがありました。簡単な書類整理は出来そうです。
ベッドルームからカーテンで仕切られたサニタリールーム。
サニタリールームは開口部が広く、自然採光も届きます。
シンプルながら豊富な収納。
洗面台の左右の使いやすい位置に収納スペースがあり鍵!?も掛けれます…
トイレはタンクレストイレ。
ガラス戸のバスルーム。
浴槽は1822サイズ。
ベッドルームのバルコニー。
天気がいい日は富士山も望める港区の上空はいかがでしょうか。
皆様のご内見、心よりお待ちしております!

































































































































































弊社 公式HP
六棒総合研究所
掲載予定物件
価格変更と販売終了物件
ハザードマップ検索
適合証明書.jp
Instagram