・
□□□□□□□□□□□□□□□□□□□□□□□□□□□□□□□□□□□□□□□
いつも弊社ホームページをご覧頂き誠にありがとうございます。
藤和三田コープⅡはお陰様で販売を終了致しました。弊社問合せフォームにてご要望頂けましたら、当お部屋でキャンセル等が発生した場合、他のお部屋が販売になりました際にご紹介させて頂きます。
不動産Agent 六棒株式会社
TEL:03‐5413‐5336
□□□□□□□□□□□□□□□□□□□□□□□□□□□□□□□□□□□□□□□
・
JR山手線・京浜東北線『田町』駅徒歩5分。『藤和三田コープⅡ』のご紹介です!
都営浅草線・都営三田線『三田』駅徒歩3分、とJR&地下鉄4路線が
徒歩5分以内でご利用いただけます。
どこへ出るにもアクセスしやすくアクティブな生活を楽しめます。
この日は田町駅から出発。西口をでるとすぐ田町センタービルのピアタがあります。
(飲食店がたくさん入っています。つい寄り道しそうです・・・。)
マンション前の通りには薬局や飲食店など多数ありますが、24時間スーパーもあり
生活しやすそうな環境です。東京タワーも通りから見えますよ!
けっこうドーンと見えて迫力あります。
白いタイル貼りの外観の建物が、藤和三田コープⅡです。
昭和53年築、地上14階建て、総世帯数70戸。
管理は日勤管理です。
今回ご紹介するのは7階角部屋、専有面積63.96㎡の2LDK。おひとり暮らしからスモールファミリーの方まで幅広くお使いいただけるお部屋です。
間取り図はコチラ ↓ ↓ ↓
※間取り図は別タブで開きますので、確認しながらご覧いただくことが出来ます。
只今、リノベーション工事中!
【リノベーション内容】
・システムキッチン新規交換
・ユニットバス新規交換
・洗面台新規交換
・トイレ新規交換
・全フローリング新規張替
・全室クロス新規貼替
・照明器具新規設置
・人感センサー設置
・全建具新規交換・・・等
2025/7月上旬 完成予定ですのでお楽しみに!
一足お先に、眺望だけご紹介しておきます!
・
以上で藤和三田コープⅡのご案内を終わります。
いかがでしたでしょうか??
田町駅から徒歩5分のマンションです。
リノベーション済みという事で室内はとてもキレイですよ (っ・ω・)っ
内見のご予約やご質問などございましたらお気軽にお問い合わせくださいませ。
ご連絡お待ちしております。
弊社、不動産Agent 六棒株式会社では、
□リノベーションマンションはほぼ全て仲介手数料無料!
□その他一般仲介物件は仲介手数料20%~30%OFF!
にてお取り扱いしております!※弊社の「Agent Fee=仲介手数料」についてはご案内、ご面談の際に営業担当者よりご説明いたします!
なるべく沢山のお部屋をホームページに掲載したいと思っておりますが、時間的成約もございますので、残念ながらご紹介できるお部屋の一部しか掲載できておりません。
このホームページに掲載中のお部屋、その他サイト等で気になるお部屋、街を歩いていて気になったマンション等々ございましたら是非、弊社営業部までご相談ください!
~不動産Agent 六棒株式会社の特徴~
・一般仲介物件の仲介手数料は20%~30%OFFにてご案内中です!
・リノベーションマンションについてはほぼ全て仲介手数料無料です!
・住宅ローンに自信あります!
・頭金10万円より購入できます。是非ご相談下さい!
・お部屋のご見学は車で2~3件まとめて案内します!
・物件数3000件以上、新築戸建、リノベ物件も多数ご用意しております!
過去に販売していたお部屋の概要 こちらのお部屋の販売は終了いたしました
| 価格 | -万円 |
| 面積 | 51.90㎡ |
| 間取り | 1bedrooms(1LDK) |
| 管理費 | 月額13,400円 修繕積立金:月額12,194円 給湯使用料:月額7,655円 |
| 所在階 | 7階 |
| お問い合わせ・ご内見のご予約はこちらからお気軽にどうぞ | |
今回ご紹介するのは7階部分、専有面積51.90㎡の1LDK。おひとり暮らしやDINKSの方にお勧めのお部屋です。
間取り図はコチラ ↓ ↓ ↓
※間取り図は別タブで開きますので、確認しながらご覧いただくことができます。
では早速行ってみましょう!
【玄関廊下:トールタイプのシューズボックス・廊下収納】
【洗面室:三面鏡付き洗面化粧台・浴室】
【浴室:1216サイズ・浴室換気乾燥機付き】
【トイレ:洗浄機能一体型トイレ・吊戸棚付き】
【洗濯機スペース:廊下途中にアリ・照明・収納棚付き】
【LDK:約13帖・南東向き】
【LDK:家具(小物除く)・エアコン付き】
【LDK:キッチン一体型のダイニングテーブル】
【キッチン:食器洗浄乾燥機・浄水機能一体型水栓】
【洋室:約5.5帖・南東向き】
【洋室:大きなシステム収納付き】
・
以上で藤和三田コープⅡのご案内を終わります。
いかがでしたでしょうか??
田町駅から徒歩5分のマンションです。
リノベーション済みという事で室内はとてもキレイですよ (っ・ω・)っ
内見のご予約やご質問などございましたらお気軽にお問い合わせくださいませ。
ご連絡お待ちしております。
弊社、不動産Agent 六棒株式会社では、
□リノベーションマンションはほぼ全て仲介手数料無料!
□その他一般仲介物件は仲介手数料20%~30%OFF!
にてお取り扱いしております!※弊社の「Agent Fee=仲介手数料」についてはご案内、ご面談の際に営業担当者よりご説明いたします!
なるべく沢山のお部屋をホームページに掲載したいと思っておりますが、時間的成約もございますので、残念ながらご紹介できるお部屋の一部しか掲載できておりません。
このホームページに掲載中のお部屋、その他サイト等で気になるお部屋、街を歩いていて気になったマンション等々ございましたら是非、弊社営業部までご相談ください!
~不動産Agent 六棒株式会社の特徴~
・一般仲介物件の仲介手数料は20%~30%OFFにてご案内中です!
・リノベーションマンションについてはほぼ全て仲介手数料無料です!
・住宅ローンに自信あります!
・頭金10万円より購入できます。是非ご相談下さい!
・お部屋のご見学は車で2~3件まとめて案内します!
・物件数3000件以上、新築戸建、リノベ物件も多数ご用意しております!
過去に販売していたお部屋の概要 こちらのお部屋の販売は終了いたしました
| 価格 | -万円 |
| 面積 | 63.96㎡ |
| 間取り | 2bedrooms(2LDK) |
| 管理費 | 月額16,500円 修繕積立金:月額15,008円 給湯使用料:月額7,655円 |
| 所在階 | 11階 |
| お問い合わせ・ご内見のご予約はこちらからお気軽にどうぞ | |
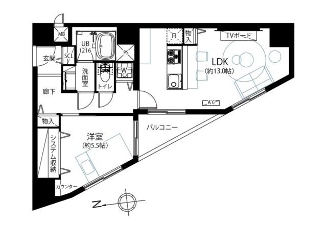
ここで間取り図のご紹介です。
※間取り図は別タブで開きますので、確認しながらご覧いただくことが出来ます。
今回ご紹介のお部屋は11階、専有面積63.96㎡の2LDK。DINKSやファミリーの方におススメのお部屋です。では、早速行ってみましょう。
白を基調にした明るい玄関。
玄関から廊下にかけては天井まで高さのあるシューズボックスや収納棚がずらりと並んでいます。豊かな収納は綺麗なお部屋作りの強い味方ですよね。
こちらは約12.7帖のリビング・ダイニング。
東向きのバルコニーに面したお部屋です。入口からバルコニーに向かって縦長のよくあるタイプのお部屋ですが、キッチンが別なのがポイント!リビングダイニングで四角いスペースを丸々使えるのでとても広々としています。
これらの家具は付いてはきませんが、ディスプレイされていると実際の生活イメージがしやすくて助かります。お部屋自体はシンプルな内装なので、ディスプレイのようにグレーや黒を多用した家具を置けばモダンな雰囲気になりますし、木目の家具を増やせばもっとナチュラルな雰囲気にもなりますよ。サイズなども合わせて参考にさせてもらいましょう!
キッチンはLDとひと続きながら少し奥まった所にあり、イメージとしては独立タイプに近いと思います。最近はカウンターキッチン押され気味ですが、生活感の出やすいキッチンをリビングから目立たなく出来たり、臭いや汚れがお部屋まで広がりづらかったり、人目を気にせずお料理に集中出来たりと、独立タイプにもいいところが沢山あるんですよ。奥には食品ストックなどに使える収納棚付き。食器洗浄乾燥機や浄水機能一体型水栓など便利な機能も充実しています。
こちらは約5帖の洋室。
東向きの窓の付いたお部屋です。二つの洋室の中では大きい方なのでメインのベッドルームにオススメ。中央の梁が気になるかもしれませんが、寝室として使うことを考えればあまり問題はないと思いますよ。大小二つのクローゼット付き。
こちらは約4.5帖の洋室。
少し小さめな分入口に引き戸を使ってデッドスペースが出来ないようにしたり、お部屋のスペースを有効に使えるような工夫がされています。クローゼットはハンガーパイプと棚が設置されたタイプ。
洗面室には洗面化粧台の他に洗濯機スペースと浴室があって脱衣所を兼ねています。洗面化粧台は身だしなみチェックに便利な三面鏡付。裏がキャビネットになっているので、洗面周りの細々としたものもスッキリと収納可能です。小さいお子様でも使いやすいミドルミラーが付いているのも嬉しいですね。ランドリー用品は洗濯機スペースの吊戸棚へどうぞ。
浴室はダークブラウンの鏡面仕上げパネルを使用。落ち着いた雰囲気でリラックスしたバスタイムを過ごせそうですね。浴室換気乾燥機が付いているのでお天気を気にすることなくお洗濯が出来ますよ。
トイレはTOTO製洗浄機能付き。吊戸棚も設置されトイレットペーパーのストックもこちらに収納可能です。毎日のトイレライフも快適ですね!
最後にバルコニーからの眺望をご紹介。
さすが11階!周りは高いビルも多いのですが負けていませんね。広い空を眺めながらちょっと一息つくのも良さそうです。
・
以上で藤和三田コープⅡのご案内を終わります。
いかがでしたでしょうか??
田町駅から徒歩5分のマンションです。
リノベーション済みという事で室内はとてもキレイですよ (っ・ω・)っ
内見のご予約やご質問などございましたらお気軽にお問い合わせくださいませ。
ご連絡お待ちしております。
弊社、不動産Agent 六棒株式会社では、
□リノベーションマンションはほぼ全て仲介手数料無料!
□その他一般仲介物件は仲介手数料20%~30%OFF!
にてお取り扱いしております!※弊社の「Agent Fee=仲介手数料」についてはご案内、ご面談の際に営業担当者よりご説明いたします!
なるべく沢山のお部屋をホームページに掲載したいと思っておりますが、時間的成約もございますので、残念ながらご紹介できるお部屋の一部しか掲載できておりません。
このホームページに掲載中のお部屋、その他サイト等で気になるお部屋、街を歩いていて気になったマンション等々ございましたら是非、弊社営業部までご相談ください!
~不動産Agent 六棒株式会社の特徴~
・一般仲介物件の仲介手数料は20%~30%OFFにてご案内中です!
・リノベーションマンションについてはほぼ全て仲介手数料無料です!
・住宅ローンに自信あります!
・頭金10万円より購入できます。是非ご相談下さい!
・お部屋のご見学は車で2~3件まとめて案内します!
・物件数3000件以上、新築戸建、リノベ物件も多数ご用意しております!
過去に販売していたお部屋の概要 こちらのお部屋の販売は終了いたしました
| 価格 | -万円 |
| 面積 | 45.35㎡ |
| 間取り | 1bedrooms(1LDK) |
| 管理費 | 月額12,800円 修繕積立金:月額11,648円 給湯使用料:月額7,655円 |
| 所在階 | 4階 |
| お問い合わせ・ご内見のご予約はこちらからお気軽にどうぞ | |
ここで間取り図のご紹介です。
※間取り図は別タブで開きますので、確認しながらご覧いただく事が出来ます。
今回のお部屋はまだ工事中!イメージ画像でのご紹介になります。
完成は2022年4月8日を予定していますのでお楽しみに!
(事情により完成が遅れることもあります)
お部屋は4階、専有面積45.35㎡の1LDK。お一人暮らしやDINKSの方にお勧めのお部屋です。では、早速行ってみましょう。

玄関の正面に居室への扉がなく戸口から室内が見えないレイアウトになっています。宅配便やフードデリバリーなど知らない人が訪ねて来る機会の多い今の時代、プライバシーに配慮された嬉しい造りと言えますね。間取り図を見ると、左側に洋室、右に進むとLDKや水回りがあるようです。シューズボックスは収納力抜群のトールタイプ!

こちらは約13.2帖のリビング・ダイニング・キッチン。
全体の形は多少凸凹していますが、上手くレイアウトされてまとまりのある居心地の良い空間になっています。梁をキッチンとのゾーニングに役立てているところとか、よく考えられていますね。キッチンにはビルドイン食器洗浄乾燥機設置予定です!

ヌックカウンターを設けることで広いリビングスペースを確保しています。カウンターは食事だけでなく、ちょっとした書き物をしたりPCデスクとして使うなど幅広く使えて便利ですよ。

こちらは約6.2帖の洋室。
台形のお部屋なので、ベッドの大きさや置場にある程度制限があるかもしれませんね。こちらは実際にリノベーション工事後に確認することをお勧めします。
・
以上で藤和三田コープⅡのご案内を終わります。
いかがでしたでしょうか??
田町駅から徒歩5分のマンションです。
内見のご予約やご質問などございましたらお気軽にお問い合わせくださいませ。
ご連絡お待ちしております。
弊社、不動産Agent 六棒株式会社では、一般仲介物件は仲介手数料20%~30%OFF!
にてお取り扱いしております!
なるべく沢山のお部屋をホームページに掲載したいと思っておりますが、時間的成約もございますので、残念ながらご紹介できるお部屋の一部しか掲載できておりません。
このホームページに掲載中のお部屋、その他サイト等で気になるお部屋、街を歩いていて気になったマンション等々ございましたら是非、弊社営業部までご相談ください!
~不動産Agent 六棒株式会社の特徴~
・一般仲介物件の仲介手数料は20%~30%OFFにてご案内中です!
・住宅ローンに自信あります!
・頭金10万円より購入できます。是非ご相談下さい!
・お部屋のご見学は車で2~3件まとめて案内します!
・物件数3000件以上、新築戸建、リノベ物件も多数ご用意しております!
過去に販売していたお部屋の概要 こちらのお部屋の販売は終了いたしました
| 価格 | -万円 |
| 面積 | 51.90㎡ |
| 間取り | 1bedrooms(1LDK) |
| 管理費 | 月額13,400円 修繕積立金:月額12,194円 給湯使用料:月額7,655円 |
| 所在階 | 9階 |
| お問い合わせ・ご内見のご予約はこちらからお気軽にどうぞ | |
ここで間取り図のご紹介です。
※間取り図は別タブで開きますので、確認しながらご覧いただく事が出来ます。
今回ご紹介するお部屋は9階、間取りは1LDK、専有面積は51.90㎡。おひとり暮らしやDINKSの方にお勧めのお部屋です。

真っ赤なエレベーターで9階まで…

玄関ドア横にはモニター付きインターホンが設置されていて、お部屋の中から訪問者を確認する事が出来ます。映像を見てから応対するかを決められるので無駄な時間をとられることもありません。

廊下が横向きに伸びていて、戸口からお部屋の中が見ないようになっています。宅配便やフードデリバリーなどで知らない人が訪ねてくることも多い時代ですから、そういった配慮も必要なのかもしれませんね。玄関ドアは内開きなので、靴をたくさん出しっぱなしにするとドアが開かなくなっちゃいますよ(^-^;

人感センサーが自動的にライトを点けてくれるので、荷物がいっぱいで両手がふさがっていても大丈夫!暗い中スイッチを探すなんてこともありません。いつでも明るい玄関が迎えてくれますよ(*´▽`*)

シューズボックスはロータイプとトールタイプがひとつづつ。可動式の棚を調節すればブーツなども収納可能です。扉に姿見が付いているのも嬉しいですね。

シューズボックス上のカウンターやニッチには、お気に入りの小物などを飾ってインテリアを楽んだり出来ますよ。正面の扉は洗濯機スペース。今はだいぶ慣れましたが、最初友人宅で扉を開けて洗濯機が出てきた時はほんとビックリしたものです(笑)

さらに左に曲がって伸びた廊下は、木目を生かしたフローリングとダークブラウンの建具で落ち着いた雰囲気。正面ドアのスリットからはお部屋の光が漏れています。

では、お部屋の中へ…

こちらは約12帖のリビング・ダイニング・キッチン。
角がひとつ切り取られたような形の台形のお部屋です。オーソドックスな縦並びのレイアウトをしようとすると、リビング部分が狭くなっているので厳しそうですね。間取り図の例のようにシンク横にダイニングを設けるか、いっそのことキッチンカウンターをダイニングテーブルとして使うのもアリかもしれませんね。

ワイドスパンのお部屋には南西・西向きの窓が並んでいます。長辺から光が入るとやはり明るいですね。エアコンも初期装備されていて、お引越し直後から快適に過ごせますよ。

造り付けのキッチンカウンターは二人なら十分の広さ。お料理を出すのも、洗い物を下げるのも簡単で良さそうです。

キッチンはコンロ部分とシンク部分が分かれたセパレートタイプ。
作業スペースが広くとれたり、移動が少なくて済んだりといろいろメリットのあるキッチンです。ただし、家電などを置く場所がキッチン内に確保しづらいので考慮が必要です。

収納力は文句なし!ギュウギュウに見えますが、いちどに開けることはありませんのでご安心ください。スライドキャビネットは出し入れが楽で中身が確認しやすい優れもの。最近のものはレールが軽くていっぱい詰めてもス~っと引き出せますよ。

食器洗浄乾燥機!!!やりたくない家事の常連、食器洗いから解放されるなんて夢のよう。食後をみんなでのんびり過ごせるのも最高ですね。水栓は浄水機能付き。切替えひとつで気軽に美味しいお水を使えます。ノズルが伸びてシンクを流したりも楽々♬

コンロは3口、グリル付。温度設定やタイマーが使える高機能タイプです。調理中は換気扇をお忘れなく。少し早めに回し始めると効果的らしいですよ!

廊下へ戻って、次のお部屋へ…

こちらは約7帖の洋室。
南と南西を向いた窓のある台形のお部屋です。約7帖とベッドルームとしては十分な広さがありますが、形と柱によって家具のサイズやレイアウトに制限がありそうです。昔は新聞紙を貼り合わせて試行錯誤を繰り返していましたが、最近はパソコン上で出来るので便利ですよね。


収納はオープンの収納棚とクローゼット。収納棚に扉が無いのは、ベッドを置くことを考えてなのかもしれませんね。クローゼットは間口の広いタイプで使い勝手が良さそうです。
・・
次はトイレへ…


温水洗浄便座はINAX製のシャワートイレ。ストックに便利な吊戸棚が付いています。奥行きは若干浅めでトイレットペーパーにジャストサイズ。梁のおかげで低めなのが使いやすくてGOODです!!

次は洗面室へ…
洗面室には洗面化粧台、浴室、リネン棚がまとまっていて、脱衣所も兼ねています。

洗面台は身だしなみを整えるのに便利な三面鏡付き。鏡の間の照明のおかげで鏡を見る時に影になることもありません。LEDのおかげでいりいろなことが出来るようになりましたね。

ヘッドが伸びる水栓は、洗面ボウルを流したりにとても便利。簡単なシャンプーならこちらでどうぞ。収納は洗面台下のスライドキャビネットと鏡裏のキャビネット。細々した物が多くなりがちな洗面周りには、豊富な収納は有り難いですね。大きな物から細かい物までスッキリ収まりそうです。

モノトーンでまとめられた浴室。

追い炊き機能はないようですが、最近の浴槽は保温機能に優れていますので、しっかり蓋をしておけば数時間で冷めてしまうことはありません。

浴室換気乾燥機は浴室の換気の他にも、雨の日には洗濯物乾燥、寒い季節には浴室暖房、暑い季節には涼風など、一年を通して大活躍です! 最近のお気に入りは「涼風」ボタン。目をつぶれば想像力次第で露天風呂気分を味わえるかも(笑)

それでは最後はバルコニーのご紹介。
LDK、洋室のどちらからでも出られます。

広さは4.02㎡、南西向き。三角形のバルコニーです。手すりには物干し金具が設置され、洗濯物も干せますよ。その際は、足元の避難ばしごに躓かないようお気を付けください。

バルコニーの正面はこんな感じ。いい眺めとは言えませんが、大規模改修中の黒いネットが外れればもう少し明るくなると思います。

青空だってこの通り!
・
以上で藤和三田コープⅡのご案内を終わります。
いかがでしたでしょうか??
田町駅から徒歩5分のマンションです。
リノベーション済みという事で室内はとてもキレイですよ (っ・ω・)っ
内見のご予約やご質問などございましたらお気軽にお問い合わせくださいませ。
ご連絡お待ちしております。
弊社、不動産Agent 六棒株式会社では、一般仲介物件は仲介手数料20%~30%OFF!
にてお取り扱いしております!
なるべく沢山のお部屋をホームページに掲載したいと思っておりますが、時間的成約もございますので、残念ながらご紹介できるお部屋の一部しか掲載できておりません。
このホームページに掲載中のお部屋、その他サイト等で気になるお部屋、街を歩いていて気になったマンション等々ございましたら是非、弊社営業部までご相談ください!
~不動産Agent 六棒株式会社の特徴~
・一般仲介物件の仲介手数料は20%~30%OFFにてご案内中です!
・住宅ローンに自信あります!
・頭金10万円より購入できます。是非ご相談下さい!
・お部屋のご見学は車で2~3件まとめて案内します!
・物件数3000件以上、新築戸建、リノベ物件も多数ご用意しております!
過去に販売していたお部屋の概要 このお部屋の販売は終了いたしました。
| 価格 | -万円 |
| 面積 | 51.90㎡ |
| 間取り | 2bedrooms(2DK) |
| 管理費 | 月額13,400円 修繕積立金:月額8,710円 |
| 所在階 | 6階 |
| お問い合わせ・ご内見のご予約はこちらからお気軽にどうぞ | |
ここで間取りのご紹介です。2DK、51.90㎡。
約23㎡あるルーフバルコニー付きのお部屋です。
お部屋は6階。真っ赤なエレベーターに乗って到着です。
玄関入ると正面にトールサイズのシューズBOXが造られています。
真ん中が一部カウンターになっているので植物や写真などもディスプレイ
できますよ。玄関もグッと華やかになりそうです。
もちろん収納量も◎。
廊下をまっすぐ進み正面トビラの奥は・・・
ダイニングキッチンです。ツルリとしたしっかり木目柄のフローリングに白いクロス、
白いキッチンとシンプルながらもセンスのいい空間です。
窓が大きいので、お料理のにおいがこもっても換気がすぐ完了しそうです。
システムキッチンは上下にしっかり収納場所が造られています。
引き出しタイプなので物の出し入れもしやすそうです。
向かって右側に冷蔵庫が置けるようになっています。
つづいて水廻りをまとめてご紹介します。
洗面室入って左手に洗面台、正面にバスルーム、右手に洗濯機置場の並びです。
トビラのデザインが変わった感じでカッコイイです。
(トイレの扉も同じデザインです。)
少しフライング気味に来てしまいました。
きっと今頃ステキな洗面台ができているはず・・・!妄想がふくらみます。
洗面台真後ろは洗濯機置場です。
歯磨きとかしながら洗濯できそうです。
シックな雰囲気のバスルーム。
バスタブも大きめ。ゆったりつかれそうです。
トイレは洗面室出て左手になります。ウォシュレット付き。
バスルームと同じくシックな感じです。
ここから洋室を2部屋ご紹介します。
こちらは約6.2畳の広さ。写真のとおり陽当りは◎!
お部屋の形が台形っぽいので家具の配置が難しいかもと思いきや。
壁一面に収納場所が造られているので、家具はあまり必要なさそうです。
可動式の間仕切りを開けます。
ガラガラガラ・・・と可動式の間仕切りを折りたたんで端に寄せると
約6畳の洋室が登場しました。エアコン付きです。
奥ゆきのある物入れ付き。掃除機とか大型の物も入れられて便利です。
ダイニングキッチンとつなげると広ーい空間になります。
生活シーンにあわせてフレキシブルにお使いいただけます。
寄せた間仕切りもコンパクトにまとまるので、あまり気になりません。
最後におまちかねのルーフバルコニーにでてみます。
実は何を隠そうこちらのマンション、ルーフバルコニーのあるお部屋は
ココだけなんです。方角は南・西。陽当りはご覧のとおりバッチリです。
まわりは建物に囲まれてしまっていますが、見上げれば間から青い空が楽しめます。
晴れた日はここでゆっくり過ごしてみたりしてはいかがでしょうか。
ガーデニングも楽しめますよ!
みなさまのご内見、心よりお待ちしております!































































弊社 公式HP
六棒総合研究所
掲載予定物件
価格変更と販売終了物件
ハザードマップ検索
適合証明書.jp
Facebook
Twitter
Instagram