・
□□□□□□□□□□□□□□□□□□□□□□□□□□□□□□□□□□□□□□□
いつも弊社ホームページをご覧頂き誠にありがとうございます。
ブロードウェイはお陰様で販売を終了致しました。弊社問合せフォームにてご要望頂けましたら、当お部屋でキャンセル等が発生した場合、他のお部屋が販売になりました際にご紹介させて頂きます。
不動産Agent 六棒株式会社
TEL:03‐5413‐5336
□□□□□□□□□□□□□□□□□□□□□□□□□□□□□□□□□□□□□□□
・
中野より総世帯数241戸の大規模マンション『ブロードウェイ』のご紹介です!
駅からアーケードの中を通ってこれるので雨の日でも傘いらずです♪
☆アクセス
JR中央本線、東京メトロ東西線「中野」駅徒歩4分
西武新宿線「新井薬師寺」駅徒歩13分
☆ライフインフォメーション
ファミリーマート・・・徒歩2分
西友・・・徒歩1分
中野ブロードウェイ・・・徒歩2分
中野サンプラザ・・・徒歩2分
まずはお約束のハザードマップをご確認ください!
□□□□□□□□□□□□□□□□□□□□□□□□□□□□□□□□□□□□□□□
★★★【ブロードウェイ】周辺のハザードマップをCHECK!!★★★
お部屋の記事を読む前に…!周辺のハザードマップをチェックしておきませんか!
ブロードウェイのハザードマップは★こちらから…どうぞ★
□□□□□□□□□□□□□□□□□□□□□□□□□□□□□□□□□□□□□□□
やっぱり中野といえば『中野サンプラザ』。よくコンサートや映画の試写会などに行ったものです。元は『全国勤労青少年会館』という勤労者福祉施設だったんですね。全然知りませんでした。どうやら2025年にかけて建替が決定したそうで、無くなってしまうのは寂しいですね。
その他、中野駅周辺には区役所、税務署、警察署、病院などがコンパクトにまとまっていて住みやすそうな街です♪♪
少し歩くと『中野セントラルパーク』がありました。調べると『中野四季の都市』(なかのしきのまち)が正式名なんですね。パークと言っても公園だけではなく、オフィスビルや大学キャンパスなどを含む再開発地域です。今後もどんどん開発が進んでいくそうですよ。
では、そろそろマンションに向かいましょうか。
駅からは、『中野サンモール』というアーケードに入ります。何とそのままマンションまではずっと屋根の下!!
商店から飲食店まで幅広いお店を揃えた、賑わいのある商店街です。
『中野サンモール』を抜け、今度は『中野ブロードウェイ』へ。『中野ブロードウェイ』、言わずと知れたサブカルチャーの聖地です。
初めて足を踏み入れましたが、独特の雰囲気ですね!アトラクションに来たみたいです。
とは言え、店揃えは意外と普通?地下には西友も入っていて、お買い物もこちらで済ませられますね。
2階へ上がると・・・なるほど、少し様子が違いますね。かの有名な『まんだらけ』など、サブカルチャー色の強いお店が軒を並べています。
ブロードウェイは昭和41年築、10階建て、総世帯数241戸の大規模マンション。
プール、会議室、貸しペットルーム等、共用施設が充実しています。
細則がありますが、ペットの飼育も可能。またエントランスはオートロック、警備員24時間常駐とセキュリティ面も安心です。
平成26年8月に大規模修繕工事実施済みとなっています。
今回は共有部分の写真がご紹介出来ませんm(__)mプールとかもあるとの事でご紹介したかったんですが…
4階までが商業施設、5階から上が住居になっています。エレベーターは分かれていて、通常は商業施設から直接住居へ行く事は出来ません。エントランスから入って専用のエレベーターで上がります。住居部分の廊下は内廊下。赤い絨毯が敷かれた、ホテルの様な雰囲気の廊下でしたよ。
ここで間取り図のご紹介です!
間取りはLDKと振り分けタイプの洋室が二つですね。LDKの横のワークスペースがイマドキっぽいですね。どんな感じでしょう?
□□□□□□□□□□□□□□□□□□□□□□□□□□□□□□□□□□□□□□□
★★★【ブロードウェイ】周辺のハザードマップをCHECK!!★★★
お部屋の記事を読む前に…!周辺のハザードマップをチェックしておきませんか!
ブロードウェイのハザードマップは★こちらから…どうぞ★
□□□□□□□□□□□□□□□□□□□□□□□□□□□□□□□□□□□□□□□
人感センサー付き照明があります。電気が自動で点いてくれるのは、とってもありがたいですね。玄関がパッと明るくなると便利なだけでなく、何となくちょっと嬉しい。
玄関を入って右側に鏡張りのシューズボックスあります。玄関の鏡、便利ですよね。
そして玄関を上がった廊下にもシューズボックスがあります。靴以外のいろいろなものを収納できそうです。奥に見える扉がリビングにつながっています。
早速開けてみましょう。白い壁です。家の中がいきなり丸見えになるタイプのお部屋ではないですね。リビングは右手側に広がっています。左壁はアクセントウォールになっています。洒落てますね。
モニター付きインターフォンが設置されています。安心です。
では、LDKを確認しましょう。
シンプルながら温かみのあるお部屋ですね。(個人の感想です。)
奥にガラス張りのワークスペースが見えます。右側にキッチンがあります。
キッチンの後ろに水回りがまとまってますね。トイレ、洗面室、浴室があります。
三面鏡の洗面化粧台。洗濯機置き場の上部には備え付けの棚が設置されています。ホームセンターで洗濯機置き場の上部スペースを利用するために置く棚を買う必要がありません。
洗面化粧台にも収納スペースがあります。しかも、観音扉タイプでなく引き扉。
奥の方に置いたものでも、取り出しやすいですね。右横にはスライドできる棚があるので何かと便利ではないでしょうか?
収納戸棚の横に見えるドアはトイレのドアですね。
では、トイレを見てみましょう。
上部に吊り戸棚がありますね。横にはちょっとしたスペース。
温水洗浄便座でウォシュレット機能が付いています。
次は浴室。水回りは全体的に白が基調で清潔感にあふれていますね。
追い炊き機能&浴室乾燥機付きの浴室です。半身浴もできるタイプの浴槽ですね。
広さもバッチリ。一日の疲れを癒すお風呂場でした。
では、キッチンの確認をしましょう。
何といってもポイントはリノベーションで設置された食洗器ではないでしょうか。
もちろん、水道も浄水機能付きの蛇口にリノベされています。
ビルトインの三口ガスコンロ。シンク下の収納だけでなく、上部には吊戸棚。
そして、先ほどの浄水器の確認。
写真が見づらいですね。すみません。。。
スッキリとしたデザインの換気扇もいいですね。キッチンの壁もちょっとした棚になっています。調味料を置いたりストック品を置いたりできます。
全体的にみると、こんな感じです。ダークブラウンでまとまっています。
そして、
このガラス扉のスペース!
これが例のワークスペースですね。
なるほどー。このようになっているのですね。
テレワーク仕様でしょうか?右側の棚は可動式です。
テレワークじゃなくても、趣味の小部屋なんかとして使えますね。
次は、洋室(2)に行ってみましょう。
洋室(2)の扉を開放して、リビングを見た感じです。扉が残るので一体感はそこまでないですかね~ 床はフラットなのでルンバ等は入ってこれますね。
右と左に二つのウォークインクローゼット!収納品で分けたり、個人別に分けたりできそうですね。大きさはどちらも同じ約1帖です。喧嘩になりません。
結構、たっぷり収納できそうです。
ちなみに、右と左はドアが違うだけで中のL字型のバーや棚などは全く同じです。
左の方が広そうに見える?そんなことはありませんよ~
こちらで、空調設備の調整をします。
セントラル空調のマンションです。ホテルのようですね。天井に空調機が見えます。
全部で3基あります。
エアコンが飛び出てこないので、部屋全体がスッキリとしていますね。
それでは、洋室(1)にも行ってみましょう。
窓が大きくて開放感があります。このお部屋にもクローゼットがあります。
左が洋室(1)の扉。右がクローゼットの扉ですよ。
クローゼットの中はいたってシンプルな普通のクローゼットです。
窓の外はバルコニーになっています。
目の前に建物がありますが、日が入ってきていますね。
通りを一本挟んでいますので、目の前にベッタリ建物があるわけではありません。
また、お互いバルコニーというわけではないので、隣の建物の人と「コンニチハ」することもなさそうです。
以上でブロードウェイのご案内を終わります。
いかがでしたでしょうか??
中野駅から徒歩4分のマンションです。
リノベーション済みという事で室内はとてもキレイですよ (っ・ω・)っ
内見のご予約やご質問などございましたらお気軽にお問い合わせくださいませ。
ご連絡お待ちしております。
□□□□□□□□□□□□□□□□□□□□□□□□□□□□□□□□□□□□□□□
★★★【ブロードウェイ】周辺のハザードマップをCHECK!!★★★
お部屋のお問い合わせ前に…!周辺のハザードマップをチェックしておきませんか!
ブロードウェイのハザードマップは★こちらから…どうぞ★
□□□□□□□□□□□□□□□□□□□□□□□□□□□□□□□□□□□□□□□
弊社、不動産Agent 六棒株式会社では、
□リノベーションマンションはほぼ全て仲介手数料無料!
□その他一般仲介物件は仲介手数料20%~30%OFF!
にてお取り扱いしております!※弊社の「Agent Fee=仲介手数料」についてはご案内、ご面談の際に営業担当者よりご説明いたします!
なるべく沢山のお部屋をホームページに掲載したいと思っておりますが、時間的成約もございますので、残念ながらご紹介できるお部屋の一部しか掲載できておりません。
このホームページに掲載中のお部屋、その他サイト等で気になるお部屋、街を歩いていて気になったマンション等々ございましたら是非、弊社営業部までご相談ください!
~不動産Agent 六棒株式会社の特徴~
・一般仲介物件の仲介手数料は20%~30%OFFにてご案内中です!
・リノベーションマンションについてはほぼ全て仲介手数料無料です!
・住宅ローンに自信あります!
・頭金10万円より購入できます。是非ご相談下さい!
・お部屋のご見学は車で2~3件まとめて案内します!
・物件数3000件以上、新築戸建、リノベ物件も多数ご用意しております!
過去に販売していたお部屋の概要 このお部屋の販売は終了いたしました。
| 価格 | -万円 |
| 面積 | 55.00㎡ |
| 間取り | 2bedroom(2LDK) |
| 管理費 | 月額27,760円 修繕積立金:月額12,910円 空調基本料:月額6,490円 給湯基本料:月額1,300円 水道基本料:月額1,057円 |
| 所在階 | 9階 |
| お問い合わせ・ご内見のご予約はこちらからお気軽にどうぞ | |
・
ここで間取り図のご紹介です。
※間取り図は別タブで開きますので、間取り図と記事や写真を照らし合わせながらご覧いただくことができます。
□□□□□□□□□□□□□□□□□□□□□□□□□□□□□□□□□□□□□□□
★★★【ブロードウェイ】周辺のハザードマップをCHECK!!★★★
お部屋の記事を読む前に…!周辺のハザードマップをチェックしておきませんか!
ブロードウェイのハザードマップは★こちらから…どうぞ★
□□□□□□□□□□□□□□□□□□□□□□□□□□□□□□□□□□□□□□□
お部屋は9階、専有面積55.00㎡、間取りは2LDK。収納豊富なのがうれしいですね。お子様が小さければファミリーでも十分な広さですが、お部屋の雰囲気的にはシングルやDINKSかなと思います。

まずは玄関から…
ドアに付いた郵便受けがクラシカルなマンションらしいですね。外廊下だとここから外気が入って寒かったり暑かったりと大変なんですが、こちらは内廊下なので問題なさそうです。シューズボックスが出っ張ることもなく玄関は広々。ただし、ドアが内開きなので靴を出しっぱなしというわけにはいきませんのでご注意を。人感センサー付でいつでも明るい玄関が迎えてくれるのは嬉しいですね♪

玄関から廊下へと同じ大理石が貼られていて高級感たっぷり!正面突き当りのニッチには照明も付いていてインテリアを楽しむにはうってつけです。ただ、これだけ広いと物を置きたくなるのが人情。日々葛藤が続きそうです(笑)
廊下はこのニッチから右へと続いていて、玄関からお部屋の中が見えづらくなっています。最近ではフードデリバリーや宅配なども増えているので、プライバシー的には二重丸ですね。

廊下突き当り右側には洗面室…
洗面台の他に洗濯機スペース、浴室、トイレがまとまっていて、脱衣所も兼ねています。三面鏡付の洗面台にはミラーキャビネットなど収納も豊富。洗面周りは細々したものが多くなりがちなので助かります。

トイレはTOTO製ウォシュレット一体型。吊戸棚にはトイレットペーパーのストックなどが出来て便利です。

浴室はベージュの木目パネルで優しい雰囲気。リラックスしたいバスルームにぴったりです♪ 浴室換気乾燥機付きなので、雨の日のお洗濯物乾燥はこちらでどうぞ!

こちらはリビング・ダイニング・キッチン。西向きのバルコニーに面した大きな窓があり、手前からキッチン、ダイニング、リビングの順に並んだ縦長のお部屋です。オーソドックスでレイアウトがしやすそうですね。ちなみに家具は付いてはこないのですが、置いてあると生活のイメージがしやすくて助かります。大きさの目安や色の参考にしちゃいましょう!

アクセントウォールなどではなく、ダウンライトやダクトレールに付けられたスポットライトの光で空間に変化をつけているんですね。空調はセントラルヒーティングなので、スタイリッシュな雰囲気を台無しにするエアコンなどを付ける必要はありません。

造り付けのデスクは、ちょっとした作業から在宅ワークまで何にでも使える便利なワークスペースです。


こちらはキッチン近くの窓のない洋室。静かで光も入らないので、書斎や寝室にぴったりです。もう一つバルコニーに面したウォークインクローゼットが付いた洋室がありますので、上手く使い分けましょう。

最後はキッチンを…
収納は調理台下のスライドキャビネット。上から出し入れが出来るので、いっぱいに詰めても奥の方が取りづらくなることもありません。こちらで足りない場合は後ろにカップボードなどを置くことも可能ですよ。
浄水器一体型水栓や食器洗浄乾燥機など嬉しい設備も充実しています。特に食洗器は嬉しいですよね♪♪ 水仕事が減ったおかげで手荒れがしなくなった!とか、家族と触れ合える時間が増えた!とか・・・手ばなせなくなった方も多いようです。
・
以上でブロードウェイのご案内を終わります。
いかがでしたでしょうか??
中野駅から徒歩4分のマンションです。
リノベーション済みという事で室内はとてもキレイですよ (っ・ω・)っ
内見のご予約やご質問などございましたらお気軽にお問い合わせくださいませ。
ご連絡お待ちしております。
□□□□□□□□□□□□□□□□□□□□□□□□□□□□□□□□□□□□□□□
★★★【ブロードウェイ】周辺のハザードマップをCHECK!!★★★
お部屋のお問い合わせ前に…!周辺のハザードマップをチェックしておきませんか!
ブロードウェイのハザードマップは★こちらから…どうぞ★
□□□□□□□□□□□□□□□□□□□□□□□□□□□□□□□□□□□□□□□
弊社、不動産Agent 六棒株式会社では、
□リノベーションマンションはほぼ全て仲介手数料無料!
□その他一般仲介物件は仲介手数料20%~30%OFF!
にてお取り扱いしております!※弊社の「Agent Fee=仲介手数料」についてはご案内、ご面談の際に営業担当者よりご説明いたします!
なるべく沢山のお部屋をホームページに掲載したいと思っておりますが、時間的成約もございますので、残念ながらご紹介できるお部屋の一部しか掲載できておりません。
このホームページに掲載中のお部屋、その他サイト等で気になるお部屋、街を歩いていて気になったマンション等々ございましたら是非、弊社営業部までご相談ください!
~不動産Agent 六棒株式会社の特徴~
・一般仲介物件の仲介手数料は20%~30%OFFにてご案内中です!
・リノベーションマンションについてはほぼ全て仲介手数料無料です!
・住宅ローンに自信あります!
・頭金10万円より購入できます。是非ご相談下さい!
・お部屋のご見学は車で2~3件まとめて案内します!
・物件数3000件以上、新築戸建、リノベ物件も多数ご用意しております!
過去に販売していたお部屋の概要 このお部屋の販売は終了いたしました。
| 価格 | -万円 |
| 面積 | 54.59㎡ |
| 間取り | 2bedroom(2LDK) |
| 管理費 | 月額28,960円 修繕積立金:月額13,510円 空調基本料:月額6,830円 給湯基本料:月額1,300円 水道基本料:月額1,057円 |
| 所在階 | 5階 |
| お問い合わせ・ご内見のご予約はこちらからお気軽にどうぞ | |
ここで間取り図のご紹介です。
※間取り図は別タブで開きますので、間取り図と記事や写真を照らし合わせながらご覧いただくことができます。
□□□□□□□□□□□□□□□□□□□□□□□□□□□□□□□□□□□□□□□
★★★【ブロードウェイ】周辺のハザードマップをCHECK!!★★★
お部屋の記事を読む前に…!周辺のハザードマップをチェックしておきませんか!
ブロードウェイのハザードマップは★こちらから…どうぞ★
□□□□□□□□□□□□□□□□□□□□□□□□□□□□□□□□□□□□□□□
お部屋は5階、専有面積54.59㎡、間取りは2LDK。約34㎡のルーフバルコニーが特徴のお部屋です。シングルまたはDINKSの方にお勧めです。
では、早速行ってみましょう!
お邪魔します♪♪

玄関を開けると大理石貼りの廊下が目に飛び込んできます。廊下の床が全て大理石貼ですとかなり高級感があります。玄関正面にはニッチがあり、お好みの飾り物をディスプレイすることが可能です。ニッチを照らすようにダウンライトが設置されているのがポイントですね!
玄関の照明は人感センサー付き。人の動きを感知して自動で照明を点灯してくれます。動きがなければ自動でOFFになるので省エネ効果もあります。

廊下を進んだ奥にはリビングダイニングキッチンがあります。東南向きのとても明るいお部屋です。この写真からもその様子が伺えるかと思います。リビングの壁の一面はアクセントウォールになっています。素敵ですね〜![]()

リビングダイニングです。中央には梁が通っているのですが、リビング空間とダイニング空間を分けるゾーニング的な役割と思えば気になりません。
天井にはダウンライトとダクトレールが設置されており、スッキリとしながらも自由度が高い照明計画となっております。

リビングスペースにはテレビ台とローテーブルがレイアウトできる、ゆとりの広さがあります。写真に写っているソファの向かいには、ちょっと一休みするのにちょうど良いデイベッドが造作されています。デイベッド脇にはこれまた造作でオープン棚がデザインされており、壁面を彩ってくれます。

デイベッド側からキッチンを眺めるとこのような風景です。明るいインテリアが素敵ですね![]()

キッチンです。吊戸棚なしのオープンキッチンです。やはりオープンキッチンは広々として見えますね!
食器洗浄乾燥機・浄水器一体型水栓完備。冷蔵庫・カップボード置場もしっかりと確保されております。

こちらはリビング脇にある引き戸から出入りする洋室です。

この洋室にはしっかりと奥行きのあるウォークインクローゼットがあります。中はシステム収納で整然としています。システム収納ですと家具調でカスタムされている印象があり、まるでドラマに出てくる有名人のクローゼットのようです。姿見も設置されていますね!造り手の気配りが伺えます![]()

さて廊下に戻りまして、洗面室をご紹介します。
まるでどこかの高級ホテルのような洗面室ですね!洗面化粧台とドレッサーを一体化して造作で作られているようです。洗面化粧台側に設置されている三面鏡の裏は全て収納となっています。洗面カウンター下は引出し収納となっております。
ドレッサー部分には照明が仕組まれたオープン棚がデザインされています。
女子の心をくすぐる空間です。

こちらのトイレは洗面室内にあります。洗面室内にあるとはいえ、扉付きの閉じられた空間なのでご安心ください。シンプルなトイレは温水洗浄暖房便座付きです。

こちらが浴室です。大理石調のパネルに囲まれた明るく清潔感のあるユニットバスですね。浴室内には浴室暖房換気乾燥機が設置されていますので、梅雨時などの洗濯物が乾きにくい季節はこちらで乾かせばカラッと仕上がります。
リビングダイニングに戻り、最後にルーフバルコニーをご紹介します。

こちらが約34㎡のルーフバルコニーです。左右を高い壁で囲まれているのでプライバシーも確保されています。正面の眺めはちょっと…ですが空を広く眺めることができます!晴れた日には空を見ながらブランチとかしてみたいですね![]()
・
以上でブロードウェイのご案内を終わります。
いかがでしたでしょうか??
中野駅から徒歩4分のマンションです。
リノベーション済みという事で室内はとてもキレイですよ (っ・ω・)っ
内見のご予約やご質問などございましたらお気軽にお問い合わせくださいませ。
ご連絡お待ちしております。
□□□□□□□□□□□□□□□□□□□□□□□□□□□□□□□□□□□□□□□
★★★【ブロードウェイ】周辺のハザードマップをCHECK!!★★★
お部屋のお問い合わせ前に…!周辺のハザードマップをチェックしておきませんか!
ブロードウェイのハザードマップは★こちらから…どうぞ★
□□□□□□□□□□□□□□□□□□□□□□□□□□□□□□□□□□□□□□□
弊社、不動産Agent 六棒株式会社では、
□リノベーションマンションはほぼ全て仲介手数料無料!
□その他一般仲介物件は仲介手数料20%~30%OFF!
にてお取り扱いしております!※弊社の「Agent Fee=仲介手数料」についてはご案内、ご面談の際に営業担当者よりご説明いたします!
なるべく沢山のお部屋をホームページに掲載したいと思っておりますが、時間的成約もございますので、残念ながらご紹介できるお部屋の一部しか掲載できておりません。
このホームページに掲載中のお部屋、その他サイト等で気になるお部屋、街を歩いていて気になったマンション等々ございましたら是非、弊社営業部までご相談ください!
~不動産Agent 六棒株式会社の特徴~
・一般仲介物件の仲介手数料は20%~30%OFFにてご案内中です!
・リノベーションマンションについてはほぼ全て仲介手数料無料です!
・住宅ローンに自信あります!
・頭金10万円より購入できます。是非ご相談下さい!
・お部屋のご見学は車で2~3件まとめて案内します!
・物件数3000件以上、新築戸建、リノベ物件も多数ご用意しております!
過去に販売していたお部屋の概要 このお部屋の販売は終了いたしました。
| 価格 | -万円 |
| 面積 | 75.40㎡ |
| 間取り | 2bedroom(2LDK+DEN) |
| 管理費 | 月額38,050円 修繕積立金:月額18,090円 空調基本料:月額9,430円 給湯基本料:月額1,300円 水道基本料:月額1,057円 |
| 所在階 | 8F |
| お問い合わせ・ご内見のご予約はこちらからお気軽にどうぞ | |
ここで間取り図のご紹介です。
※間取り図は別タブで開きますので、確認しながらご覧頂く事が出来ます。
□□□□□□□□□□□□□□□□□□□□□□□□□□□□□□□□□□□□□□□
★★★【ブロードウェイ】周辺のハザードマップをCHECK!!★★★
お部屋の記事を読む前に…!周辺のハザードマップをチェックしておきませんか!
ブロードウェイのハザードマップは★こちらから…どうぞ★
□□□□□□□□□□□□□□□□□□□□□□□□□□□□□□□□□□□□□□□
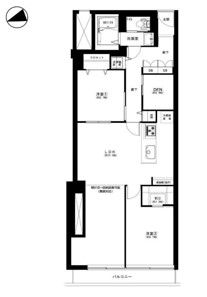
今回ご紹介するお部屋は8階、間取りは2LDK+DEN、専有面積は75.40㎡。ファミリータイプのお部屋です。無償にて3LDKへの間取り変更も可能だそうですよ!では、早速行ってみましょう。
エレベーターを8階で降りて、内廊下を進むとお部屋に到着です。赤いカーペットが敷かれまるでホテルのようですね。足音も吸収されてとても静かです。
内開きのドアを開けると正面は収納になっていて、お部屋はまだまだ廊下の先。宅配便やフードデリバリーの受け取り時に、戸口からお部屋の中が見えないようになっています。玄関から廊下にかけては人造大理石が貼られていて高級感いっぱいですよ(^^)人感センサーが自動的にライトを点けてくれるので、暗い中手探りでスイッチを探す必要はありません。荷物が多い時などには嬉しい機能ですよね。
ドアが内開きなので、玄関内に靴を散乱させておくわけにはいきません。廊下の突き当りのシューズボックスに収納しておきましょう。上がカウンターになったロータイプとトールタイプがひとつづつ。カウンターには鍵や小銭を入れるトレイを置いたり、小物や写真を飾ってインテリアを楽しんだり出来ますよ。ここは玄関正面ということでまさに「玄関の顏」。センスが問われます(笑)
廊下はクランク状に2回曲がって続いています。
途中には洗濯機スペースと収納棚がありました。洗濯機スペースには中に棚も付いていて、洗剤などを置けるようになっています。収納棚は奥行きがあり、棚の手前にはフロアモップのような長物を入れておくことも出来ますよ。
では、お部屋の中に…
こちらは約20.6帖のリビング・ダイニング・キッチン。L字型のお部屋で奥には西向きのバルコニーに面した窓があります。
家具が展示してあると生活のイメージが出来て助かります。ちなみに、家具はこのまま付いてくるそうですよ。20帖超ということでこちら側だけでも立派にLDKとして成立していますね。なので…
奥の部分を仕切って洋室に変更することも可能だそうです。間取りが2LDKから3LDKに変更になるんですね。しかも無償で!!!太っ腹です(*´▽`*)
エアコンはセントラル空調。天井にビルドインでお部屋もスッキリ。
自然の木目を生かしたオークのフローリング使用で、温かみのあるナチュラルテイストのお部屋になっていますね。奥の窓際には謎の空間??パッとは思いつきませんが、うまい使い方がありそうです。イレギュラーな物ってなんかワクワクしますよね^^;)
キッチンは人気のカウンタータイプ。コミュニケーションが取りやすく、調理中でも会話が弾むキッチンです。更に、LD側からはキッチン内が見えづらいのもメリットのひとつ。ひと目を気にせず、思う存分腕を振るえますよ(^^)では、キッチンを詳しく見ていきましょう。
調理台の下にはスライドキャビネットと食器洗浄乾燥機。引き出しタイプのスライドキャビネットは出し入れがし易く、たくさん詰めても収納物の確認がしやすい優れものです。食洗機いいですね~♪ これからの寒い季節、食器洗いから解放されるなんて夢のようです(*´▽`*)食後をみんなでのんびり過ごせるのも最高!
カウンターキッチンといえばこの眺め(^^♪
コンロは3口、グリルも付いています。グリルは魚グリルと呼ばれることもあるほど魚イメージが強いですが、実は様々なお料理に使えます。レシピもたくさんありますので、ご興味のある方は是非調べてみて下さい。
換気扇は少し前から回し始めると効果的らしいですよ。離れた位置の窓を開けておいて、窓から換気扇への空気の流れを作っておくイメージだそうです。スタイリッシュな水栓はヘッド部分が伸びて、シンクを流したりも楽々♪
調理台左には収納棚、奥には冷蔵庫のスペースがありました。
では、次のお部屋へ…
こちらは約6.7帖の洋室。LDKと同じバルコニーに面したお部屋です。グレー系のアクセントウォールでLDKとは少し違った雰囲気になっています。
収納はウォークインクローゼット!!約1.3帖もあるそうですよ。コの字型にハンガーポールが設置された広い収納です。キャリーバッグやスーツケースなどの大きな物も入りますし、衣装ケースなどで収納力をアップさせのもアリですね。
廊下へ戻って、次のお部屋へ…
こちらは約5.1帖の洋室。外に面した窓がないお部屋です。アクセントウォールはグリーン系ですね。お部屋ごとにイメージが変わります。
収納はクローゼット。間口が広くて使いやすそうなタイプです。外に面した窓はありませんが、LDKとの間に窓があります。ただ、残念ながら簡単には開かないので採光のためだけの窓のようですね。
次はDENへ…
DENって何かの略みたいですが、実は英語なんですよ。意味は「動物の巣穴」や「隠れ家」などがあり、転じて不動産用語では「書斎」や「趣味の部屋」などとして使われています。今なら在宅ワークのお部屋としてピッタリですね。
次は洗面室へ…
洗面室には洗面台の他に、浴室、トイレがまとまっていて、脱衣所も兼ねています。
洗面台は身だしなみチェックに便利な三面鏡付き。鏡の間の照明のおかげで鏡を使う時に影になることもありません。お子様でも鏡が見えるよう、低い位置にまで鏡が付いています。
収納は洗面台下と三面鏡裏のキャビネット。細々した物が多くなりがちな洗面廻りには、豊富な収納は有り難いですね。いろいろなタイプがあって、大きな物から細かい物までバランスよく収まりそうです。
水栓はハンドシャワータイプ。ノズルが伸びて隅々まで洗面ボウルを流せます。簡単なシャンプーならこちらでどうぞ。
次はトイレへ…
洗浄便座はTOTO製のウォシュレット。トイレットペーパーなどのストックに便利な吊戸棚も付いています。
明るい色でまとめられた優しい雰囲気。なんかホッとします(^^)
浴槽は追い焚き機能のないシンプルなタイプ。最近の浴槽は保温機能に優れているので結構長く温かさを保ってくれるんですよ。
浴室換気乾燥機は浴室の換気の他に、浴室暖房や雨天や花粉の季節のお洗濯物乾燥など様々な使い方があります。これからの寒い季節、ヒートショックの予防の為にも浴室暖房を使っていきましょう。
それでは最後はバルコニーのご紹介。
西側の洋室、LDKのどちらからでも出られます。
広さは4.00㎡、西向き。奥行きはありませんが、二部屋にまたがる幅の広いバルコニーです。天井には物干し金具も付いていて洗濯物も干せるようです。西向きなので、干すなら午後からがお勧めですよ。
高い建物が多いなりに空も見えるまずまずの眺め。ただ、こちらを向いたバルコニーからの目が気になるかもしれませんね^^;)
・
以上でブロードウェイのご案内を終わります。
いかがでしたでしょうか??
中野駅から徒歩4分のマンションです。
リノベーション済みという事で室内はとてもキレイですよ (っ・ω・)っ
内見のご予約やご質問などございましたらお気軽にお問い合わせくださいませ。
ご連絡お待ちしております。
□□□□□□□□□□□□□□□□□□□□□□□□□□□□□□□□□□□□□□□
★★★【ブロードウェイ】周辺のハザードマップをCHECK!!★★★
お部屋のお問い合わせ前に…!周辺のハザードマップをチェックしておきませんか!
ブロードウェイのハザードマップは★こちらから…どうぞ★
□□□□□□□□□□□□□□□□□□□□□□□□□□□□□□□□□□□□□□□
弊社、不動産Agent 六棒株式会社では、
□リノベーションマンションはほぼ全て仲介手数料無料!
□その他一般仲介物件は仲介手数料20%~30%OFF!
にてお取り扱いしております!※弊社の「Agent Fee=仲介手数料」についてはご案内、ご面談の際に営業担当者よりご説明いたします!
なるべく沢山のお部屋をホームページに掲載したいと思っておりますが、時間的成約もございますので、残念ながらご紹介できるお部屋の一部しか掲載できておりません。
このホームページに掲載中のお部屋、その他サイト等で気になるお部屋、街を歩いていて気になったマンション等々ございましたら是非、弊社営業部までご相談ください!
~不動産Agent 六棒株式会社の特徴~
・一般仲介物件の仲介手数料は20%~30%OFFにてご案内中です!
・リノベーションマンションについてはほぼ全て仲介手数料無料です!
・住宅ローンに自信あります!
・頭金10万円より購入できます。是非ご相談下さい!
・お部屋のご見学は車で2~3件まとめて案内します!
・物件数3000件以上、新築戸建、リノベ物件も多数ご用意しております!
過去に販売していたお部屋の概要 このお部屋の販売は終了いたしました。
| 価格 | -万円 |
| 面積 | 75.40㎡ |
| 間取り | 2bedroom(2LDK) |
| 管理費 | 月額38,050円 修繕積立金:月額18,090円 空調基本料:月額9,430円 給湯基本料:月額1,300円 水道基本料:月額1,057円 |
| 所在階 | 8F |
| お問い合わせ・ご内見のご予約はこちらからお気軽にどうぞ | |
ここで間取り図のご紹介。
※間取り図は別タブで開きますので、確認しながらご覧いただく事が出来ます。
□□□□□□□□□□□□□□□□□□□□□□□□□□□□□□□□□□□□□□□
★★★【ブロードウェイ】周辺のハザードマップをCHECK!!★★★
お部屋の記事を読む前に…!周辺のハザードマップをチェックしておきませんか!
ブロードウェイのハザードマップは★こちらから…どうぞ★
□□□□□□□□□□□□□□□□□□□□□□□□□□□□□□□□□□□□□□□
今回ご紹介するお部屋は5階、間取りは2LDK、専有面積は86.11㎡。
約5.4帖のウォークインクローゼット!・・・気になります♪♪
では、早速行ってみましょう!
レッドカーペットを進むと玄関に到着です。んっ?・・・開かないと思ったら、玄関ドアには珍しい内開きになっているんですね!これは玄関内を空にしておかないと、靴をブルドーザーの様に掻き寄せてしまいますね(笑)
ドアを開けると正面は壁に。戸口で荷物を受取る分には、お部屋の中が見えないわけですね。プライバシー的にGOOD(^^♪ 一歩中に入ると廊下が伸びていますが、突き当りから更に左右に続いているようです。
中に入った時に照明を点けてくれたのは人感センサー。いつでも明るい玄関が迎えてくれるって嬉しいものです♪♪ 玄関には姿見も付いていますので、お出かけ前の身だしなみチェックはこちらでどうぞ。靴を履いた状態で見られるのがいいですよね。
シューズボックスはトールタイプが二つにロータイプが一つ。棚板の高さが調整出来ますので、ブーツなどでも収納可能です。
廊下突き当りから右方向を…
なにやらガラス扉の向こうにありますね。
こちらはなんと呼んだらいいんでしょう?飾り棚?収納庫?収納棚なんですが、広くてガラス張りになっているだけで雰囲気が変わります。中にはハンガーが掛けられる様な金具も付いていましたよ。
では、お部屋の方へ…
こちらは約16.4帖のリビング・ダイニング・キッチン+約5.2帖の洋室。白と黒、メリハリのきいたシャープな印象のお部屋です。
エアコンはセントラル空調。天井にビルドインされてお部屋もスッキリしています。
仕切り戸を開けて、LDKと隣の洋室をつなげた様子。合わせて約21.7帖の広いお部屋になります。もちろん閉めても約16.4帖と十分広いLDKですが、大勢のお友達が押し寄せた時など、状況に応じて対応出来るのは心強いですよね。
リビングにはテレビボードも設置されています。
壁部分に収納されている仕切り戸を閉めると…
本来の約5.2帖の洋室に戻ります。
仕切り戸はすりガラスで、隣のお部屋の様子が何となく伝わる様になっていますね。プライバシーも守られる絶妙な見え加減です^^;)
閉めた時のリビングの様子。なんか『和』っぽい感じですね。これはこれで落ち着いた雰囲気で好みです♬
次はキッチンを…
調理台を見る前に、後ろにあるガラス扉をチェックしましょう。全部開いたりはせず二か所まで同時に開くようです。一番左は冷蔵庫スペース。ここは普段は開けっぱなしもアリですね。
真ん中左は家電ラックとゴミ箱置場。ゴミ箱置場が確保されているキッチンって驚くほど少ないんですよ。見逃しがちなポイントです。残り二か所は収納棚。引き出しが付いている段もありますね。
調理台下は食洗器と引き出しタイプの収納に。食洗器憧れます(*‘ω‘ *)もう、食器洗い当番を決めるじゃんけんもしなくていいんですね(笑)
水栓は浄水機能付きシャワー水栓。近未来的なフォルムですが、ちゃんとヘッドは伸びますよ。伸びないとシンクを流す時に困ります。
コンロは3口。片面焼きグリルも付いています。コンロのトップはツルツルで、お掃除も楽々ですよ。
カウンターキッチンですから、お料理中は換気扇をお忘れなく!
では、いちど廊下に戻って…
こちらは洗面室。洗濯機スペース、トイレ、浴室、洗面台がひとまとめになっています。
まずは洗面台。三面鏡の他に鏡がたくさん付いています。とても広くて2~3人同時に使えそうですね。朝のラッシュ時には助かります(^^)
収納は三面鏡裏のキャビネット、横に付いたキャビネット、洗面台の下と豊富。細かい物から大きめの物まで上手く納まりそうです。
水栓はハンドシャワータイプです。洗面台下の空間に椅子を置いて、ドレッサーの様に使う事も出来そうですね。
次は浴室…
ブラウンの鏡面仕上げパネルで、リラックスできる空間になっています。
浴槽は追い焚き機能のないシンプルなタイプ。最近の浴槽は保温機能に優れているので結構長く温かさを保ってくれますよ。更に、水栓には200や300など目盛りがあって出すお湯の量をセットする事が出来るようですので、忘れてお湯が溢れるなんて心配はなさそうです(^^)v
変わっているのはシャワーヘッド。何と二つもあるんですよ!一つは普通のタイプ。もう一つは外国の映画などでみる様な大きなものです。使った事はありませんが、気持ちいいのは間違いありませんよね。
足を伸ばしてのんびり浸かれる、広い浴槽。
雨の日のお洗濯物乾燥で活躍する浴室乾燥機ですが、浴室を温めてヒートショックを予防したり、風を送ってのぼせないようにしたりと他にも様々な役に立ってくれます。一度説明書を読んでみると面白いですよ。
次はトイレへ…
温水洗浄便座付き。TOTO製のウォシュレットです。
では、次のお部屋へ…
こちらは約9.7帖の洋室。洋室で9.7帖はかなり広めですね。贅沢な寝室になりそうです。私だったら広くて落ち着かないかも(笑)
長いカウンターとドレッサーが設置されていました。カウンターはテレビボードとしても使えそうですね。
気になっていたかと思います。お待たせしました。ガラス扉の向こうへ…
こちらは約5.4帖!!!のウォークインクローゼット!
5.4帖ってこっちが洋室みたいな広さですよね^^;)お部屋の中にはたくさんの棚や収納、ハンガーポール、姿見などが設置されています。クロスを梁の部分にまで貼っているのがお洒落ですね。
ガラストップの飾りケース。時計やアクセサリー用でしょうか?芸能人お宅訪問などで時々見かけますが、素敵です(^^♪
それでは、最後はルーフバルコニーのご紹介。
リビング、洋室どちらの窓からでも出る事が出来ます。
広さは不明との事ですが、いや~広いですね。こんなに広いと運動とかしたくなりますが、ルーフバルコニーという事は下にはお部屋がありますから騒音にはお気を付け下さい。
外の様子です。バルコニーが並んでいて、気になる方もいらっしゃるかもしれませんね。
左右は開いていて、建物にびっしり囲まれている訳ではないのでご安心下さい。
以上でブロードウェイのご案内を終わります。
いかがでしたでしょうか??
中野駅から徒歩4分のマンションです。
リノベーション済みという事で室内はとてもキレイですよ (っ・ω・)っ
内見のご予約やご質問などございましたらお気軽にお問い合わせくださいませ。
ご連絡お待ちしております。
□□□□□□□□□□□□□□□□□□□□□□□□□□□□□□□□□□□□□□□
★★★【ブロードウェイ】周辺のハザードマップをCHECK!!★★★
お部屋のお問い合わせ前に…!周辺のハザードマップをチェックしておきませんか!
ブロードウェイのハザードマップは★こちらから…どうぞ★
□□□□□□□□□□□□□□□□□□□□□□□□□□□□□□□□□□□□□□□
弊社、不動産Agent 六棒株式会社では、
□リノベーションマンションはほぼ全て仲介手数料無料!
□その他一般仲介物件は仲介手数料20%~30%OFF!
にてお取り扱いしております!※弊社の「Agent Fee=仲介手数料」についてはご案内、ご面談の際に営業担当者よりご説明いたします!
なるべく沢山のお部屋をホームページに掲載したいと思っておりますが、時間的成約もございますので、残念ながらご紹介できるお部屋の一部しか掲載できておりません。
このホームページに掲載中のお部屋、その他サイト等で気になるお部屋、街を歩いていて気になったマンション等々ございましたら是非、弊社営業部までご相談ください!
~不動産Agent 六棒株式会社の特徴~
・一般仲介物件の仲介手数料は20%~30%OFFにてご案内中です!
・リノベーションマンションについてはほぼ全て仲介手数料無料です!
・住宅ローンに自信あります!
・頭金10万円より購入できます。是非ご相談下さい!
・お部屋のご見学は車で2~3件まとめて案内します!
・物件数3000件以上、新築戸建、リノベ物件も多数ご用意しております!
過去に販売していたお部屋の概要 このお部屋の販売は終了いたしました。
| 価格 | -万円 |
| 面積 | 65.59㎡ |
| 間取り | 2bedrooms(2LDK) |
| 管理費 | 月額32,290円 修繕積立金:月額15,190円 空調基本料:月額7,780円 給湯基本料:月額1,300円 水道基本料:月額1,037円 |
| 所在階 | 10階 |
| お問い合わせ・ご内見のご予約はこちらからお気軽にどうぞ | |
ここで間取り図のご紹介です。
※間取り図は別タブで開きますので、確認しながらご覧いただく事が出来ます。
□□□□□□□□□□□□□□□□□□□□□□□□□□□□□□□□□□□□□□□
★★★【ブロードウェイ】周辺のハザードマップをCHECK!!★★★
お部屋の記事を読む前に…!周辺のハザードマップをチェックしておきませんか!
ブロードウェイのハザードマップは★こちらから…どうぞ★
□□□□□□□□□□□□□□□□□□□□□□□□□□□□□□□□□□□□□□□
今回ご紹介するお部屋は最上階10階、間取りは2LDK、専有面積は65.59㎡。
では、早速行ってみましょう。
絨毯張りの内廊下を進んで玄関に到着!玄関ドアでは珍しい内開きです。
ドアを開けると正面は壁になっていて右側が上り口になっていました。廊下はフローリングではなく、玄関とお揃いの素材になっています。
振り返って…玄関の左側はオープンのシューズインクローゼット。靴だけでなくベビーカーやキャリーケースなども置いておく事が出来そうです。
玄関ドアには安心のダブルロック。オートロックがありましたのでトリプルですね(^^)人感センサーは中に入っただけで自動的にライトを点けてくれますよ。もう暗闇の中、手探りでスイッチを探す必要はありません♪♪
では、廊下左のドアから…
こちらは約14.9帖のリビング・ダイニング・キッチン。手前にキッチンのある奥に長いお部屋です。このタイプは手前にダイニング、奥にリビングと使い分けがし易くていいんですよね。
残念ながら家具は付いて来ませんが、置いてあると生活のイメージがし易くて助かります。家具を選ぶ際の参考にもなりますしね。
エアコンはセントラル空調。天井にビルドインでお部屋もスッキリです。
濃いめフローリングに白のクロスのオーソドックスなお部屋に、個性的な建具がアクセントになっていますね。高級感いっぱいです(^^♪
LDKの隣の洋室とつなげてみました。合わせて約20.5帖!!広~いお部屋の出来上がりです。お友達が大勢来た時などに、フレキシブルに使えるのはいいですよね。
ちょっとした隙間にも収納が。細いですが奥行きがあって結構入りそうですよ。
壁部分に収まっている仕切り戸を閉めると…
本来の約5.4帖の洋室に戻ります。
お部屋には、間口が広くて使い易そうなクローゼットも付いていました。天井までの高さがある大きなものです。中がまたお洒落ですね。
次はキッチンを…
収納は調理台下と吊戸棚。引き出しタイプは奥の物まで取り出し易くて助かります。フライパンなどは立ててしまうといいらしいですよ。
食洗器も完備しています。洗い物はお任せして、食後はのんびりしちゃいましょう。
水栓は浄水機能付きシャワー水栓。切替えひとつでいつでも美味しいお水が出てきます。気軽にお茶やコーヒー、お料理などにも使えますね。
コンロは3口。タイマーや温度設定なども可能な高機能なものです。
グリルを使う時は、換気扇をお忘れなく!
調理台左には冷蔵庫スペース。奥には家電ラックなどのスペースがありました。冷蔵庫手前は取り出し易くていいですよね。
次のお部屋へ…
こちらは約5.6帖の洋室。バルコニーに面した窓のある、明るいお部屋です。独立性も高くて寝室にピッタリ。
このお部屋にもクローゼットが付いていました。やはり間口の広いタイプ。中が見やすいと無駄な買い物が減るそうですよ(^^)
では、いちど廊下に戻って…
こちらはトイレ。黒ですが真っ黒という訳ではなく、映り込みや光の加減でいろいろな表情を見せてくれるクロスです。なんか不思議な感じで、意外と落ち着けそう(笑)
温水洗浄便座付き。INAX製のシャワートイレです。
次は洗面室へ…
リビングのドアは緑でしたが、こっちはブルーなんですね。綺麗な色です♪♪
こちらには洗面台、洗濯機スペース、浴室がまとまっています。
三面鏡付きの洗面台。鏡の間にLEDが付いていて鏡を開いた時も影になりません。
収納は三面鏡裏のキャビネットと洗面台下の棚。キャビネットは、細かい物が多くなりがちな洗面周りの必需品です。
水洗はハンドシャワータイプ。洗面ボウルを流したりに便利ですよ。
次は浴室へ…
追い焚き機能などは付いていませんが、200とか300とか目盛りがありますので出すお湯の量をセット出来るようです。忘れて溢れさせてしまう心配はなさそうですね。
足を伸ばしてゆったり浸かれる、1620サイズの大きな浴槽。
雨の日や花粉の多い日のお洗濯物乾燥は、浴室換気乾燥機にお任せを!
それでは、最後にバルコニーへ出てみましょう。
洋室、LDKどちらからでも出られます。
広さは8.26㎡、広くて陽当りのいいバルコニーです。西向きなのでお洗濯物を干すなら午後早い時間がチャンスですよ。
バルコニーの外はこんな感じ。
すぐ近くには高い建物も無く、開放感があってまずまずの眺めですね(^^♪
・
以上でブロードウェイのご案内を終わります。
いかがでしたでしょうか??
中野駅から徒歩4分のマンションです。
リノベーション済みという事で室内はとてもキレイですよ (っ・ω・)っ
内見のご予約やご質問などございましたらお気軽にお問い合わせくださいませ。
ご連絡お待ちしております。
□□□□□□□□□□□□□□□□□□□□□□□□□□□□□□□□□□□□□□□
★★★【ブロードウェイ】周辺のハザードマップをCHECK!!★★★
お部屋のご購入前に…!周辺のハザードマップをチェックしておきませんか!
ブロードウェイのハザードマップは★こちらから…どうぞ★
□□□□□□□□□□□□□□□□□□□□□□□□□□□□□□□□□□□□□□□
弊社、不動産Agent 六棒株式会社では、
□リノベーションマンションはほぼ全て仲介手数料無料!
□その他一般仲介物件は仲介手数料20%~30%OFF!
にてお取り扱いしております!※弊社の「Agent Fee=仲介手数料」についてはご案内、ご面談の際に営業担当者よりご説明いたします!
なるべく沢山のお部屋をホームページに掲載したいと思っておりますが、時間的成約もございますので、残念ながらご紹介できるお部屋の一部しか掲載できておりません。
このホームページに掲載中のお部屋、その他サイト等で気になるお部屋、街を歩いていて気になったマンション等々ございましたら是非、弊社営業部までご相談ください!
~不動産Agent 六棒株式会社の特徴~
・一般仲介物件の仲介手数料は20%~30%OFFにてご案内中です!
・リノベーションマンションについてはほぼ全て仲介手数料無料です!
・住宅ローンに自信あります!
・頭金10万円より購入できます。是非ご相談下さい!
・お部屋のご見学は車で2~3件まとめて案内します!
・物件数3000件以上、新築戸建、リノベ物件も多数ご用意しております!
過去に販売していたお部屋の概要 このお部屋の販売は終了いたしました。
| 価格 | -万円 |
| 面積 | 65.58㎡ |
| 間取り | 1bedroom(1SLDK) |
| 管理費 | 月額31,660円 修繕積立金:月額8,340円 |
| 所在階 | 6階 |
| お問い合わせ・ご内見のご予約はこちらからお気軽にどうぞ | |
間取りのご紹介です。1SLDK、専有面積は65.58㎡。
フローリングは木のぬくもりが感じられる天然無垢材です。
室内は只今リノベーション工事中!
一足先に充実のリノベーション内容をご紹介いたします。
■全室・・・フローリング(オーク)、壁・天井クロス張替、クローゼット新設、フロアタイル張替、LEDダウンライト新設・交換、コンセント・スイッチパネル交換
■玄関・・・玄関タイル張替
■浴室・・・ユニットバス新規交換、浴室換気乾燥機新設
■キッチン・・・システムキッチン新設、食器洗い乾燥機新設、蛇口一体型浄水器新設、キッチンカウンター造作
■他・・・給湯設備交換、温水洗浄付きトイレ新規交換、人感センサー(玄関・トイレ)新設、LDKエアコン一基新設、洗面台新規交換、給排水管・ガス管交換、二重床・二重天井
【内装工事終了予定:2015年10月】
工事中のご紹介も可能です。



























































































































































































































































































弊社 公式HP
六棒総合研究所
掲載予定物件
価格変更と販売終了物件
ハザードマップ検索
適合証明書.jp
Facebook
Twitter
Instagram