□□□□□□□□□□□□□□□□□□□□□□□□□□□□□□□□□□□□□□□
いつも弊社ホームページをご覧頂き誠にありがとうございます。
東中野コーポラスはお陰様で販売を終了致しました。弊社問合せフォームにてご要望頂けましたら、当お部屋でキャンセル等が発生した場合、他のお部屋が販売になりました際にご紹介させて頂きます。
弊社では、仲介手数料無料orお値引(50%off、30%off、20%off)にて皆様のマイホーム探しのお手伝いをさせて頂きいております。東中野コーポラスの類似物件や、お探しのご条件等をお聞かせ頂けましたらご条件に合ったお部屋をご紹介させて頂きます。また、ご来社頂き一緒に探させて頂くことも可能ですので、是非弊社問合せフォームよりお気軽にお問合せください。
不動産Agent 六棒株式会社
TEL:03‐5413‐5336
□□□□□□□□□□□□□□□□□□□□□□□□□□□□□□□□□□□□□□□
中野区東中野よりリノベーションマンション『東中野コーポラス』のご紹介です!
アクセス
JR中央総武線、都営大江戸線「東中野」駅 徒歩6分
東京メトロ丸ノ内線、都営大江戸線「中野坂上」駅 徒歩10分
東中野エリアは、日本有数のターミナルでありショッピング街でもある新宿まですぐの便利な場所♪♪その一方
駅前には、『ポレポレ東中野』☆
ユニークな作品を上映し続けるミニシアターです。
駅前には『アトレヴィ東中野』が誕生し、合わせて駅前も整備が進んでいます♪♪アトレヴィ東中野には、スーパー、カフェ、書店やクリニックなども入っていて大変便利です。駅の西側には『東中野銀座通り』があります♪♪昔ながらの中華屋さん♪テイクアウトのフランス料理屋さん♪多くの飲食店が軒を連ねています。お気に入りのお店がきっと見つかるはず☆
こちらの物件のお買い物環境はと言いますと、徒歩3分ほどのところに『マルエツプチ』、アトレヴィ東中野の中に『成城石井』、駅前には現在改装中ですが『サミット』もあります(●´∀`●)
東中野コーポラスは昭和44年築、7階建て、総世帯数55戸。
平成26年12月に大規模修繕工事が実施されています。
エントランス部分にはスロープが設置されていてベビーカーでも楽に登れます◎
エントランスホールにはドアの様なものはありません、すぐにエレベーターがあります。管理形態は自主管理ですが、防犯カメラが目を光らせています♫
間取りのご紹介です。1LDK、35.64㎡。7階。
室内はリノベーション工事済!!
充実のリノベーション内容をご紹介いたします。
■キッチン・・・Panasinic リビングステーションV(1800)
■浴室・・・・・TOTO RD(1116/浴室乾燥)
■洗面・・・・・Panasonic Cライン 洗面化粧台(750)
■建具・・・・・大建 マイセレクション
■トイレ・・・・TOTO ウォシュレット一体型(ZJシリーズ)
■床・・・・・・Panasonic リフォームフロアーA
■照明・・・・・大光電気 LEDシリーズ
■エアコン・・・新規:LDK(10帖用)、洋室(6帖用)
■その他・・・・全クロス張替え、給湯器16号、ハウスクリーニング、他
それでは中を見にいきましょう -=≡ヘ(*・ω・)ノ
エレベーターを降りると外廊下が続いています。
眺望の良さが一目で分かると思います。
閑静な住宅街の中にあるマンションなので住み心地も良さそうです (○´ω`○)
玄関ドア横にはモニター付きのインターフォンが付いています。
マンションにはオートロックが付いていないのですが、これがあれば安心できます。
予期せぬ訪問者にはお部屋の中から対応してくださいね!!
流石のリノベーション済みです( ー`дー´)
白を基調とした清潔感溢れる玄関になっていますね!!
玄関入って右手にはトールタイプのシューズボックスがあります。
中の棚は自由に高さを変えることが出来るので、ブーツのような背の高い履物でも収納することが可能ですよ(´∀`*)ノ
それでは奥に進んで行きましょう (((((((((((っ・ω・)っ
ドアを開けると・・・・
なんと洗濯機置場が!!!!!?
後光が差しているのは単なるカメラの設定ミスです。
中には棚が付いているので、洗剤等の置場には困りませんね(・`ω´・ ○)
扉が付いているので、来客時には生活感を隠すこともできますよ♪♪
それでは改めまして、こちらがリビング・ダイニング・キッチンです。
広さは約10.9帖。南からの光が眩しいですね(☆Д☆)
眺望は最後にご案内させて頂くので、もう少しお付き合いくださいね (/ω・\)チラッ
次はキッチンです。
浄水機能付きの水栓、3口のグリル付きガスコンロが付いています。
水栓はシャワーヘッドになっているので、シンクのお掃除もラクラク。お鍋に水を注ぐのも楽になりますよ (*^艸^)
足元の収納は引き出しタイプです。
上から出し入れをするので、奥まで無駄なく収納することが出来ます。
フライパンなどの平たい調理器具は重ねるのではなく、ブックスタンドを使うとキレイに収納することが出来ますよ ヽ(´∀`)
傷がつかないようにプラスチック製の物を使ってくださいね!!
リビングに入ってくるときに開けたドアの陰に隠れてドアがありました・・・
洗濯機置場の横ですね。
ここです。
ドアを開けると洗面室が出てきました。
3枚の鏡が組み合わさって1枚の大きな鏡を構成しています(・`ω´・ ○)
水栓はシャワーヘッドになっています。
お掃除が捗るのはもちろん、簡単な洗髪だってできちゃいますね!!
洗面ボウルも大きな物が付いているので、水はねも少なくて済みそうです( `д´)b
収納はミラー内部と足元にあります。
歯ブラシや基礎化粧品などの小物は上、掃除用具などは足元、という感じになりそうです。
洗面台の横のドアを開けましょう!!
TOTOのウォシュレット付きのトイレです。
日本でダントツ1位のシェア率を誇っているTOTOなら、正直説明しなくても大丈夫そうですねヽ(・∀・ )ノ
敢えて言うなら、「節水が凄い」という事でしょうか??
水の量は従来の1/4で済むそうで!!これだけで凄さが伝わりますね??
吊戸棚が付いているので、トイレットペーパー等の消耗品はこちらに収納することが出来ます!!
扉があるので、中が見えないのも嬉しいですね( ゚ω^ )ゝ
続いてお風呂です。
こちらには浴室換気乾燥機能が付いているので、雨の日、風の日などはこちらで洗濯物を干すことが出来ます。
なかなか洗濯物を干せない梅雨の時期にも助かりますねヾ(*´∀`*)ノ
お風呂には追い焚き機能もあるので、24時間熱いお風呂に入ることが出来ますよ!!
お休みの日は、朝からお風呂に入り浸るのもいいかもしれませんね(´∀`*)ノ
もちろんお風呂もリノベーションによってピカピカに生まれ変わっています。
本当に本当の一番風呂を味わうことができますよ 。゜+.(o´∀`o)゜+.゜
次はこちら。
リビングにある引き戸から進みます。
こちらは約4.5帖の洋室。
既にエアコンが付いています。
石垣チックの壁紙がカワイイですね。
こちらの部屋にはクローゼットが付いているので、小物やお洋服等を収納することが出来ます。
家具を置いて部屋が狭くなることが無いのは嬉しいですね!!
やはり、南向きの窓からいい光が入ってきます。
それでは外に出てみましょう!!
どうでしょう!?
この眺望は素晴らしいと思いませんか??もちろん陽当たりも文句なしですよ( `д´)b
洗濯物もすぐに乾きそうです。
見えているのは新宿のビル群です。
歩いても30分もかからないので、終電を逃しても怖くないですよ (・`ω´・ ○)
時間があれば歩いてみても良いかもしれませんね!!
では、以上で東中野コーポラスのご案内を終わります。
いかがでしたでしょうか??
都心からほど近い、閑静な住宅街に佇むマンションです!!
リノベーション済みという事で素敵なお部屋に生まれ変わっていますよ (・ω・)b
内見のご予約やご質問などございましたらお気軽にお問い合わせくださいませ。
ご連絡お待ちしております。
弊社、不動産Agent 六棒株式会社では、
□リノベーションマンションはほぼ全て仲介手数料無料!
□その他一般仲介物件は仲介手数料20%~30%OFF!
にてお取り扱いしております!※弊社の「Agent Fee=仲介手数料」についてはご案内、ご面談の際に営業担当者よりご説明いたします!
なるべく沢山のお部屋をホームページに掲載したいと思っておりますが、時間的成約もございますので、残念ながらご紹介できるお部屋の一部しか掲載できておりません。
このホームページに掲載中のお部屋、その他サイト等で気になるお部屋、街を歩いていて気になったマンション等々ございましたら是非、弊社営業部までご相談ください!
~不動産Agent 六棒株式会社の特徴~
・一般仲介物件の仲介手数料は20%~30%OFFにてご案内中です!
・リノベーションマンションについてはほぼ全て仲介手数料無料です!
・住宅ローンに自信あります!
・頭金10万円より購入できます。是非ご相談下さい!
・お部屋のご見学は車で2~3件まとめて案内します!
・物件数3000件以上、新築戸建、リノベ物件も多数ご用意しております!
過去に販売していたお部屋の概要 このお部屋の販売は終了いたしました。
| 価格 | -万円 |
| 面積 | 50.22㎡ |
| 間取り | 2bedrooms(2LDK) |
| 管理費 | 月額:6,000円 修繕積立金:14.000 |
| 所在階 | 2階 |
| お問い合わせ・ご内見のご予約はこちらからお気軽にどうぞ | |
間取りのご紹介です。2DK、40.50㎡。5階。
室内は只今リノベーション工事中!
一足先に充実のリノベーション内容をご紹介いたします。
■キッチン・・・システムキッチン ラクエラ(クリナップ)
■浴室・・・・・ユニットバス MR-X 1116(Panasonic)、浴室換気乾燥暖房機付
追い焚き機能付
■洗面所・・・・洗面化粧台C Line(Panasonic)、洗濯水栓・防水パン
■トイレ・・・・アメージュ・ベーシアシリーズ(LIXIL)ウォシュレット機能付き
■その他・・・・フローリング張替(DAIKEN)、建具・玄関収納交換、収納棚新設、
壁・天井クロス張替、フロアタイル張替、クッションフロア張替、給湯器交換、
エアコン(1基)カラーTVモニター付きインターフォン、新規照明器具取付け、
スイッチ・コンセント交換、ハウスクリーニング 等
【内装工事終了予定:2017年7月下旬】
ご内見のご希望・ご質問などございましたら、お気軽にお問い合わせくださいませ♪
弊社、不動産Agent 六棒株式会社では、
□リノベーションマンションはほぼ全て仲介手数料無料!
□その他一般仲介物件は仲介手数料20%~30%OFF!
にてお取り扱いしております!※弊社の「Agent Fee=仲介手数料」についてはご案内、ご面談の際に営業担当者よりご説明いたします!
なるべく沢山のお部屋をホームページに掲載したいと思っておりますが、時間的成約もございますので、残念ながらご紹介できるお部屋の一部しか掲載できておりません。
このホームページに掲載中のお部屋、その他サイト等で気になるお部屋、街を歩いていて気になったマンション等々ございましたら是非、弊社営業部までご相談ください!
~不動産Agent 六棒株式会社の特徴~
・一般仲介物件の仲介手数料は20%~30%OFFにてご案内中です!
・リノベーションマンションについてはほぼ全て仲介手数料無料です!
・住宅ローンに自信あります!
・頭金10万円より購入できます。是非ご相談下さい!
・お部屋のご見学は車で2~3件まとめて案内します!
・物件数3000件以上、新築戸建、リノベ物件も多数ご用意しております!
過去に販売していたお部屋の概要 このお部屋の販売は終了いたしました。
| 価格 | -万円 | |
| 面積 | 40.50㎡ | |
| 間取り | 1bedroom(1LDK) | |
| 管理費 |
|
|
| 所在階 | 6階 | |
| お問い合わせ・ご内見のご予約はこちらからお気軽にどうぞ | ||
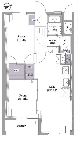
それでは間取りのご紹介です。1LDK+WIC、40.50㎡。6F。
ゆとりの1人暮らし、もしくはご夫婦でお住いになるイメージでしょうか(●´∀`)
フラット35S適合物件。
【リノベーション内容】
■キッチン・・・システムキッチン
■浴室・・・ユニットバス(TOTO)
■洗面所・・・洗面化粧台 (パナソニック)、洗濯水栓、防水パン
■トイレ・・・TOTO、ウォシュレット機能付き
■その他・・・フローリング貼替、壁・天井クロス張替、フロアタイル貼替、クッションフロア張替、建具・玄関収納交換、エアコン(1基)、カラーTVモニター付インターフォン、新規照明器具取付、収納棚新設、スイッチ・コンセント交換、ハウスクリーニング
■アフターサービス保証付き
インターフォンはTVモニター付きで、セキュリティもバッチリ♫さっそく中に入ってみましょう♪♪
扉を開けると フルリノベーションを終え綺麗に生まれ変わった玄関がお出迎え☆廊下が一直線に伸びています♪♪照明は人感センサー機能付ですので、玄関を開ければパッと照明がつきます (●´∀`)
玄関入って右手にシューズボックスです☆扉には大きな姿見があるのでお出かけ前のチェックもバッチリです(o´∀`ノ
大容量のトールサイズ!!棚が可動式になっていますので、ブーツの収納もOK♪♪家族全員分の靴もスッキリおさまると思います。
玄関入って左手に水回りを集めたパウダールームです。右手に洗面台、正面がトイレ、左手にバスルームの並びになっています♫段差が大きいのでお気を付けください
(o´∀`ノ
まずは右手、洗面台です☆ピッカピカ♪♪鏡の裏と洗面ボウルの下が収納になっております。歯ブラシから洗顔フォームまでゴチャゴチャ散らかりがちな洗面まわりの物はこちらにお仕舞いただけます♪♪
シャワーヘッドも嬉しいです♪♪
洗面台の横には、リネンの収納に便利な収納棚☆下の部分はスライド式の収納♫
パウダールームの正面、スライドドアの奥が、節水設計のウォシュレット付きのトイレです。上部には、収納棚もバッチリです♪♪
バスルームは、やさしい風合いの木調のパネル☆汚れにくくカビも付きにくい壁材が使われています。ゆっくりバスタブにつかって疲れを癒せそうです♪♪
モザイクパターンの床は『カラリ床』。水を溝から逃がしてすばやく乾燥、楽々お手入れ♪♪
廊下に戻って突き当りに扉付きの洗濯機置場があります。上の棚は、洗剤などを置くのに便利です。湿気によるカビ予防にこまめな掃除は必要ですが、扉を閉めれば見た目もスッキリとし、音も静かになりますよ(’v`*)
それでは、リビングダイニングキッチンを見ていきましょう♫約9.8帖の広さ♫お部屋の両端、西向きと東向きに窓があるので陽当りも通風も良好です(o´∀`ノフローリングには、ハードメイプルが使われステキな雰囲気(*´▽`)
エアコン設置済みで、ご入居すぐに快適な生活が出来ます☆
リビングダイニングキッチンにはクローゼットも設置されています。普段使いの物などはこちらにすべて収納できそうです♪♪急なお客様の時でも生活感を隠せてgood☆奥行きもしっかりです (●´∀`)
キッチンは、お部屋にあわせた清潔感のある白いシステムキッチンです♪♪
キッチンは上下に収納があり調理道具がたくさん入れられそうです♪
コンロは3口。シンプルな造りのキッチンなので、お手入れなどはしやすそうです☆
リビングダイニングのお隣は約4.2帖の洋室です。東向きの窓のお部屋です(*´▽`)明るさも充分です♫

お部屋には、真っ白なカウンターが設置されています♫ちょっと狭いですが、ちょっとした書斎にいかがでしょうか(o´∀`ノ
こちらのお部屋の収納は大収納。+゚ *。。+゚ *。
奥行きもしっかりで収納力バツグン☆バーも付いているので、ロングコート等の衣類の収納にも良いですね♪♪収納が大きいと生活スペースが広く使えて◎
リビングダイニングキッチンとは、スライド式ドアで隔てられているので、ライフスタイルに合わせて開けて使うこともできますね(*´▽`)開けて使えば一つのお部屋の様に使えます。ご友人を集めてパーティーなんて時には便利ですね(o´∀`ノ
それでは、最後にバルコニーに出てみます。東向きの4.86㎡♪♪お洗濯物もバッチリ乾きそうです♪♪
眺望もバッチリひらけています(o´∀`ノ視線を気にせず生活することができます♫
いかがでしたでしょうか。
新宿からほど近くのアクセスの良さ、仕事に遊びにパワフルな方におススメです
(●´∀`)
内見のご希望、ご質問などございましたら、![]()














































































































