・
□□□□□□□□□□□□□□□□□□□□□□□□□□□□□□□□□□□□□□□
いつも弊社ホームページをご覧頂き誠にありがとうございます。
大宮吉敷町スカイハイツはお陰様で販売を終了致しました。弊社問合せフォームにてご要望頂けましたら、当お部屋でキャンセル等が発生した場合、他のお部屋が販売になりました際にご紹介させて頂きます。
不動産Agent 六棒株式会社
TEL:03‐5413‐5336
□□□□□□□□□□□□□□□□□□□□□□□□□□□□□□□□□□□□□□□
・
今回ご紹介するのは・・・
【大宮吉敷町スカイハイツ】
埼玉県の中心地「さいたま新都心」と東京以北最大のターミナル駅である「大宮」の間に位置する総戸数120戸の大規模マンションです。大宮区役所も徒歩2分ほどという便利な立地。再開発が進むこのエリアですがマンション周辺にはまだのんびりとした街並みが残っています。
◆アクセス◆
JR京浜東北線・高崎線・他「さいたま新都心」駅 徒歩9分
JR京浜東北線・埼京線・他「大宮」駅 徒歩12分
徒歩12分の「大宮」駅は、東京と北日本を結ぶ多数の新幹線・在来線・私鉄が乗り入れる東京以北最大のターミナル。駅周辺には百貨店や専門店、飲食店建ち並び多くの人で賑わっています。
今回は、最寄り駅である「さいたま新都心」駅からマンションへ向かいます。
駅の歴史は浅く2000年のさいたま新都心の街開きに先立って開業したとのこと。改札前コンコースはアーチ状の屋根に覆われ、そこから広々としたペデストリアンデッキが周辺の施設へと伸びています。
ちょうど「大道芸フェスティバル」という催しをやっていて、あちらこちらで人の輪が出来ていました!気になる芸人さんもいたんですがそこは仕事中、渋々スルーすることにします。
方々に「~ガーデン」や「~ひろば」や「~タウン」などがあって、まるで遊園地みたいですね。
こちらはかの有名な「さいたまスーパーアリーナ」
スポーツイベントやコンサート、見本市会場などさまざまな用途に対応した国内最大級の多目的アリーナです。今日は「マカロニえんぴつ」のコンサートがあるとかで、開場まで4時間ちかくあるのにすでに人が集まっていました。
コクーンシティはさいたま新都心駅に隣接する商業施設。コクーン1、コクーン2、コクーン3で構成されシネマコンプレックスや飲食店、雑貨販売、専門店、家電量販店から日々のお買い物に役立つスーパーまで幅広い店舗数多く揃えています。
シネマコンプレックスのMOVIXさいたまの入ったコクーン1
ヨドバシカメラを中心としたコクーン3
イトーヨーカドーやレストランが入ったコクーン2
マンションへの途中で見つけた行列のケーキ屋さん。
「un grand pas」(アングランパ)はフランス語で“偉大なる一歩”という意味だそうです。素敵な店構えですね。
こちらは氷川神社参道。
さいたま新都心駅周辺は「新しい街」という雰囲気でしたが、この辺りから歴史を感じられるような街並みに変わっていきます。
参道を途中で左へ曲がるとマンションはもう少し。
味のあるうどん屋さんが目印です。こちらの「駕籠休み」はうどん好きの方の間では有名なお店らしく、11時前だというのにもう行列が出来ていました。マンションの目の前にはお馴染みのコンビニもあって急なお買い物にも便利!
こちらが今回ご紹介する【大宮吉敷町スカイハイツ】
~建物情報~
●昭和57年6月築
●総戸数:120戸
●鉄骨鉄筋コンクリー造地上10階建て
●管理会社による日勤管理(株式会社長谷工コミュニティ)
●所有権
●駐車場・バイク置き場:空き無し
●駐輪場:空状況要確認
●ペット飼育可(細則あり)
綺麗に植栽が植えられたアプローチがエントランスまで続いています。木漏れ日がいい感じですね。一部階段になっていますが、左側にスロープも付いていますのでベビーカーや車椅子などでも安心です。
屋根付きの駐輪場&平置き駐車場。駐車場は台数少なめなので、残念ながら今は空きがないそうです。
レンガ風タイルが貼られたレトロなエントランスホール。
オートロックはありませんが管理人室や防犯カメラが通る人に目を光らせています。
では、エレベーターでお部屋まで上がりましょう!
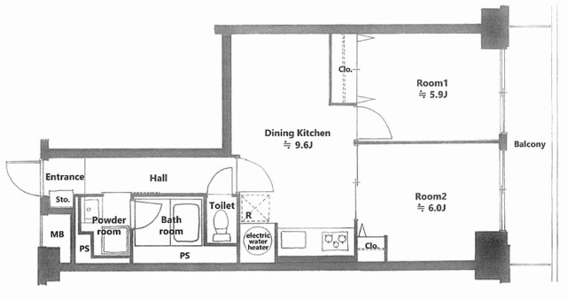
ここで間取り図のご紹介です。
※間取り図は別タブで開きますので、確認しながらご覧いただくことが出来ます。
今回ご紹介するお部屋は3階、専有面積49.13㎡の2DK。おひとり~お二人くらいでお使いいただくのがお勧めです。方位がありませんがバルコニーは南向きで陽当たり良好ですよ!
では、早速行ってみましょう!
エレベーターで3階まで上がり共用廊下をお部屋へと向かいます。廊下は開放的な外廊下タイプ。大規模マンションにありがちな真っ直ぐで長~い廊下ではなく、分かれたり曲がったりしながら続いています。
玄関脇にはテレビモニター付きインターホン。最近ではよく見かけるようになりましたがお部屋に居ながら玄関前の様子が見られて便利ですよね。お料理などでちょっと手が離せない時などにはとても助かります。
玄関から伸びる廊下はこのサイズのお部屋にしてはゆったりと広め。
木目がはっきりとしたフローリングを使った落ち着いた雰囲気です。一番の特徴は玄関と廊下がフラットなこと!最近はバリアフリーに配慮して段差を小さくする傾向にありますが段差がないのは珍しいですね。三和土に貼られたハニカムタイルもイイ感じです♬
玄関照明は人感センサー付き。
自動的にライトを点けてくれるので、暗い中手探りでスイッチを探したりする必要はありません。いつでも明るい玄関が迎えてくれるのって嬉しいですよね。廊下にはピクチャーレールが設置されているので、今は殺風景な壁も簡単に飾り付けることが出来ますよ。
シューズボックスは収納力のあるトールタイプ。棚は可動式なので、ブーツやヒールなどの背の高い靴もきれいに収めることが可能です。中の靴にカビが生えたりしないよう、濡れた靴は乾くまで下のスペースへどうぞ。
玄関入ってすぐには洗面室。
洗面化粧台の他に洗濯機スペースと浴室がまとまっていて脱衣スペースも兼ねています。洗濯機スペースの上には棚が付けられ、洗剤などのランドリーグッズをまとめておくことも出来ますよ。
水栓はノズルが伸びるハンドシャワータイプ。洗面ボウルを流すのに便利ですし、寝ぐせ直し程度なら何とかなるかも(笑)鏡の裏がキャビネットになっているので、洗面周りの細々としたものもスッキリと収まります。
浴室は清潔感のある白一色。
木目や黒もいいですがお風呂はやっぱり白ですよね。汚れが目立つのでは?と思われるかもしれませんが、目立つからこそすぐ綺麗に出来るという考え方もあると思いませんか?すぐ掃除すれば意外と簡単に落ちるものです。
次はトイレへ…
トイレはINAX製の洗浄機能一体型。今は付いていませんが、掃除道具の収納やトイレットペーパーのストックに便利な吊戸棚も付く予定です。洗面室もそうでしたがこちらも廊下との段差は0!
ではお部屋の中に…
こちらは約9.6帖のダイニングキッチン。
キッチンに場所をとらない壁付けタイプ使用することによって、ゆったりとしたダイニングスペースを確保しています。これなら、寛げるゆったりサイズのダイニングテーブルを置いてリビングの役割を兼ねることも出来そうですね。
アクセントウォールはコーディネイトの邪魔にならないブルーグレイ。
新規交換の調理台は壁の色に揃えた白をチョイス。
主張しすぎることなくお部屋との一体感も抜群です。黒のアクセントラインもちょうどいい分量ですね。タイルのように見えるキッチンの壁はツルツルのプリントパネル。本物のタイルだと目地に汚れが残ったりでお掃除も大変ですが、これならサッと拭くだけでピッカピカです♪
収納は調理台下のスライドキャビネット&吊戸棚。スライドキャビネットは引き出し式なので中が見やすくギッシリ詰めても出し入れしやすいのが特徴です。吊戸棚も使い勝手では負けていますが、あまり使わないものを入れておくには便利ですよ。
コンロは3口、グリル付き。私自身コンロ3つもいるのかな?と思っていた時期もありますが、最近ラーメンにひと手間加えることを覚えまして・・・1.面を茹でる、2.お湯を沸かす、3.乗せる野菜を炒めるなどなどあると意外と便利なものなんですね。このお部屋には窓もありませんので調理中は換気扇をお忘れなく!空気の流れを意識して、少し前から回しておくと効果的らしいですよ。キッチン横の扉は電気温水器が置かれているので普段開けることはなさそうです。
では、隣のお部屋へ…
こちらは約6帖の洋室。
南向きバルコニーに面した明るいお部屋です。リビングにするにしても寝室にするにしても十分な広さがあるうえ、入口に引き戸を使っているので扉の開け閉めによって無駄になるスペースもありません。木目と白のシンプルな色使いでカーテンや家具など幅広く選ぶことが出来そうですね。
クローゼットは梁の下に設置されているのでやや背が低くコンパクト。それでもあると嬉しい収納です。
扉を開けると洋室の明るい陽射しがDK にも入って来ます。通常扉は半分しか開きませんので、つなげて使うなら扉を外してしまうのもアリかもしれませんね。
では隣のお部屋へ…
こちらは約5.9帖の洋室。
隣と同じ南向きバルコニーに面しています。凸凹が少なめで家具のレイアウトもしやすく寝室にお勧め。大きめのベッドでも楽々です。
収納はフルオープンになるクローゼット。間口が広くて使いやすそうですね。中身を把握しやすい収納を使うと無駄な買い物を減らすことが出来るそうですよ。
それでは最後にバルコニーのご紹介。
二つの洋室のどちらからでも出ることが出来ます。
幅奥行きともに十分な南向きのバルコニーです。
手すり壁がすりガラス製で全体的に明るく、ご覧の通りの陽当たりなのでお洗濯物も気持ち良く乾きそうですね。
バルコニーからの眺め…
周辺には高いマンションも建っていますが、目の前がお隣の駐車場になっているので写真で見る以上に開放感がありますよ。
・
以上で大宮吉敷町スカイハイツのご案内を終わります。
いかがでしたでしょうか??
さいたま新都心駅から徒歩9分のマンションです。
リノベーション済みという事で室内はとてもキレイですよ (っ・ω・)っ
内見のご予約やご質問などございましたらお気軽にお問い合わせくださいませ。
ご連絡お待ちしております。
弊社、不動産Agent 六棒株式会社では、一般仲介物件は仲介手数料20%~30%OFF!
にてお取り扱いしております!
なるべく沢山のお部屋をホームページに掲載したいと思っておりますが、時間的成約もございますので、残念ながらご紹介できるお部屋の一部しか掲載できておりません。
このホームページに掲載中のお部屋、その他サイト等で気になるお部屋、街を歩いていて気になったマンション等々ございましたら是非、弊社営業部までご相談ください!
~不動産Agent 六棒株式会社の特徴~
・一般仲介物件の仲介手数料は20%~30%OFFにてご案内中です!
・住宅ローンに自信あります!
・頭金10万円より購入できます。是非ご相談下さい!
・お部屋のご見学は車で2~3件まとめて案内します!
・物件数3000件以上、新築戸建、リノベ物件も多数ご用意しております!












































































弊社 公式HP
六棒総合研究所
掲載予定物件
価格変更と販売終了物件
ハザードマップ検索
適合証明書.jp
Instagram