・
□□□□□□□□□□□□□□□□□□□□□□□□□□□□□□□□□□□□□□□
いつも弊社ホームページをご覧頂き誠にありがとうございます。
西蒲田スカイハイツはお陰様で販売を終了致しました。弊社問合せフォームにてご要望頂けましたら、当お部屋でキャンセル等が発生した場合、他のお部屋が販売になりました際にご紹介させて頂きます。
不動産Agent 六棒株式会社
TEL:03‐5413‐5336
□□□□□□□□□□□□□□□□□□□□□□□□□□□□□□□□□□□□□□□
・
蒲田駅徒歩2分。総世帯数183戸の大規模マンション『西蒲田ハイツ』のご紹介です。
場所はちょうどユザワヤの裏あたり。蒲田によく来る方ならこれで大体場所が分かるハズ!
まずはお約束のこちらをご覧ください。
□□□□□□□□□□□□□□□□□□□□□□□□□□□□□□□□□□□□□□□
★★★【西蒲田スカイハイツ】周辺のハザードマップをCHECK!!★★★
お部屋の記事を読む前に…!周辺のハザードマップをチェックしておきませんか!
西蒲田スカイハイツのハザードマップは★こちらから…どうぞ★
□□□□□□□□□□□□□□□□□□□□□□□□□□□□□□□□□□□□□□□
では早速街をご案内していきましょう!
JR京浜東北線の他、東急池上線、多摩川線が乗り入れており、都内各所へアクセス良好な蒲田。西口を出るとランニング姿で走っている子供たちの銅像発見。駅周辺にはこんな感じの銅像が多々あります。ちなみにこちらのタイトルは「明日へ走れ」。w
東口方面にもオブジェや銅像があります。上にシュッとむかっていくオブジェは「上昇気流」、子供を抱いたお母さんは「希望」というタイトルがついています。どれも気分が上向くような作品群が蒲田駅に彩りを添えています。
駅周辺には東急プラザや駅ビルのグランデュオ、ドンキホーテにアーケードなどなどが立ち並び、すこーしゴチャゴチャした印象ですがお買い物はとても便利。忙しくてあちこち買い物に行く時間がない!なんてには便利な環境です。
そして蒲田といえばラーメン屋!たくさんあります。
お好きな方は味比べで食べ歩いてみるのも面白そうです。
マンションはちょうどユザワヤ(手作りホビー材料の専門店)裏あたり。
最寄の出口を出て少しまっすぐ歩くとマクドナルドとセブンイレブンがあるのでその間の道を入っていくとすぐに着きます。すでにマクドナルドの前からマンションが少し見えています。
西蒲田スカイハイツは昭和49年築、10階建て、総世帯数183戸の大規模マンション。
1階部分にはラーメン、ネパール料理、中華などの飲食店や美容院など色々な店舗が入っています。ちょっとご飯でも食べに行こうかな、なんて時に1階に飲食店が入っていると便利ですね。
マンションまわりの道路。駅2分の近距離なだけあり、人通りも多くまだまだにぎやかな雰囲気です。
店舗と店舗の間にエントランスがあります。自動ドアで出入りもラクラク。
エントランス内部が外から見えないようにガラスには柄が入っています。
大規模マンションなだけあり、エントランスホールも広々。ポストがズラリと壁面に並んでいます。中央に管理人室があります。(管理形態は自主管理です。)
エレベーターは2基。朝の通勤ラッシュ時間帯もスムーズに移動できそうで安心。共用廊下は内廊下になっています。
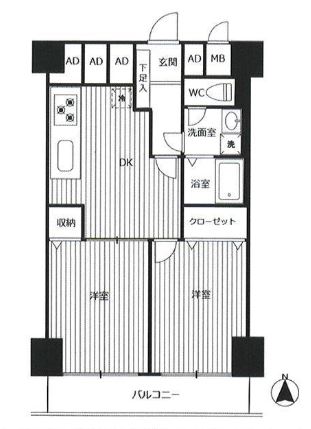
ここで間取り図のご紹介です。
※間取り図は別タブで開きますので、確認しながらご覧いただく事が出来ます。
□□□□□□□□□□□□□□□□□□□□□□□□□□□□□□□□□□□□□□□
★★★【西蒲田スカイハイツ】周辺のハザードマップをCHECK!!★★★
お部屋の記事を読む前に…!周辺のハザードマップをチェックしておきませんか!
西蒲田スカイハイツのハザードマップは★こちらから…どうぞ★
□□□□□□□□□□□□□□□□□□□□□□□□□□□□□□□□□□□□□□□
今回ご紹介するお部屋は6階、間取りは1LDK、専有面積は49.50㎡。一級建築士によるデザイナー住宅だそうですよ。楽しみですね♬ では、早速行ってみましょう。
エレベーターで6階まで。このマンションは内廊下にあるお部屋と外廊下にあるお部屋がありますが、今回のお部屋へは外廊下を進みます。
玄関ドア横にはテレビモニター付きインターホンが設置されていて、お部屋の中から訪問者を確認する事が出来ます。映像で確認してから応対するかを決められるので安心ですね。ドアスコープもありますが、ドア一枚隔てたところに相手がいると思うとちょっと怖い気がします^^;
入ってまず感じたのは、温泉を思い出させる「木の香り」。なんとフローリングには天然乾燥の杉を使用しているそうです!この匂いに包まれていると、日本人で良かったなとか思ってしまいます(笑)リラックス出来ること間違いなし♬ 廊下やホールは無く玄関から直接お部屋になっているので、気になる方は衝立や暖簾などで軽く目隠しするのもいいと思いますよ。
シューズボックスの代わりでしょうか?玄関横には棚があります。オープンなので風通しも良く湿気や臭いがこもることもなさそうですね。人感センサーが自動的にライトを点けてくれるので、荷物がいっぱいで両手がふさがっていても大丈夫!いつでも明るい玄関が迎えてくれるのも嬉しいものです(*´▽`*)
こちらは約13帖のリビング・ダイニング・キッチン。南向きのバルコニーに面した窓があるお部屋です。フローリングだけでなく建具などもにも自然の木目を生かした木材を使っていて、和の雰囲気がありますね。
天井にはダクトレールが設置されているので、照明の位置や種類などをご自身で簡単に変更することが可能。レイアウトの自由度もグッと上がります。
フローリングや建具だけでなく、スタッコ調の壁や敢えてむき出しの配線などこだわりポイント満載。壁・天井の塗装には化石珊瑚といって、湿度調節してくれる素材が使われているそうですよ。
キッチンは人気のカウンタータイプ。開放的でコミュニケーションが取りやすいキッチンです。更に、LD側からはキッチン内が見えづらいのもメリットのひとつ。ひと目を気にせず思う存分腕を振るえますよ(^^)では、キッチンを詳しく見ていきましょう。
調理台はシステムキッチンではなく造り付け。一点物って惹かれます♪
調理台後ろの棚や吊戸棚など、収納は全てオープンタイプ。見せる収納でセンスの見せ所ですね(^^)
コンロは3口、温度設定やタイマーが使える高機能タイプ。シンプルな見た目でも便利機能はちゃんと付いています。
グリル使用時には換気扇をお忘れなく!少し前から回しておくと効果的らしいですよ。
ステンレストップでお掃除も楽々♪ ステンレスってプロっぽいですよね。美味しい物が作れそうな気がしてきました(笑)
お洒落な水栓は、ヘッド部分が伸びるのでシンクを流したりに便利です。
では、隣のお部屋へ…
こちらは約4.6帖の洋室。LDKと同じバルコニーに面したお部屋です。入口が引き戸なのでデッドスペースも出来ず、お部屋のスペースを無駄なく使えますよ。
収納はウォークインクローゼット。カーテンで仕切るようになっています。ハンガーポールは設置されていませんが、壁のフックにパイプを付けることも出来たと思います。荷重限度の確認をお忘れなく。
小窓でつながっていたり仕切り戸には和紙のような素材が使われていたりと、LDKの空気を感じられるお部屋になっています。
仕切り戸を開けておけば、このようにひとつのお部屋として使うことも出来ます。寝る時や来客時だけ閉めるなんていうのもアリですよね。
では、次は洗面室へ…
洗面室には洗面台の他に、洗濯機スペース、浴室、トイレがまとまっていて、脱衣所も兼ねています。床にはお部屋と同じフローリングが使われているんですね!洗濯機スペースには棚も付いているので、洗剤などの洗濯グッズをまとめて置いておくことが出来ますよ。
洗面台も造り付け。シンプルでお洒落です。
次はトイレへ…
トイレはカーテンで仕切られています。
トイレットペーパーなどのストックに便利な棚も付いています。洗浄便座はTOTO製のウォシュレット。
次は浴室へ…
ヒノキのお風呂を期待してしまいましたが、さすがにないですね(笑)メンテナンスも大変ですから。ユニットバスはとても機能的ですよ。
ノーリツ製の追い焚き機能付きユニットバス。「ふろ自動」ボタンひとつでお風呂を沸かかすことが出来ます。そのまま保温もしてくれるのでいつでも温かいお風呂に入れますよ。お湯が冷めずに長風呂派の味方です。
浴室換気乾燥機は浴室の換気乾燥はもちろんのこと、暑い季節は涼風、寒い季節は浴室暖房、梅雨の季節は洗濯物乾燥など、一年を通して大活躍!
それでは最後はバルコニーへ出てみましょう!
どちらのお部屋の窓からでも出られます。
広さ6.05㎡、南向き。二部屋にまたがる幅の広いバルコニーです。手すりが下まで柵になっているので、足元まで明るくなっていますね。
前にはビルの外壁が並んでいていい眺めとは言えません。ただ、少し距離があるので圧迫感などはありませんし、窓が無く視線が気にならないのが救いですね。空も見えるので明るさは問題なさそうです。
・
以上で西蒲田スカイハイツのご案内を終わります。
いかがでしたでしょうか??
蒲田駅から徒歩2分のマンションです。
リノベーション済みという事で室内はとてもキレイですよ (っ・ω・)っ
内見のご予約やご質問などございましたらお気軽にお問い合わせくださいませ。
ご連絡お待ちしております。
□□□□□□□□□□□□□□□□□□□□□□□□□□□□□□□□□□□□□□□
★★★【西蒲田スカイハイツ】周辺のハザードマップをCHECK!!★★★
お部屋のお問い合わせ前に…!周辺のハザードマップをチェックしておきませんか!
西蒲田スカイハイツのハザードマップは★こちらから…どうぞ★
□□□□□□□□□□□□□□□□□□□□□□□□□□□□□□□□□□□□□□□
弊社、不動産Agent 六棒株式会社では、
□リノベーションマンションはほぼ全て仲介手数料無料!
□その他一般仲介物件は仲介手数料20%~30%OFF!
にてお取り扱いしております!※弊社の「Agent Fee=仲介手数料」についてはご案内、ご面談の際に営業担当者よりご説明いたします!
なるべく沢山のお部屋をホームページに掲載したいと思っておりますが、時間的成約もございますので、残念ながらご紹介できるお部屋の一部しか掲載できておりません。
このホームページに掲載中のお部屋、その他サイト等で気になるお部屋、街を歩いていて気になったマンション等々ございましたら是非、弊社営業部までご相談ください!
~不動産Agent 六棒株式会社の特徴~
・一般仲介物件の仲介手数料は20%~30%OFFにてご案内中です!
・リノベーションマンションについてはほぼ全て仲介手数料無料です!
・住宅ローンに自信あります!
・頭金10万円より購入できます。是非ご相談下さい!
・お部屋のご見学は車で2~3件まとめて案内します!
・物件数3000件以上、新築戸建、リノベ物件も多数ご用意しております!
過去に販売していたお部屋の概要 このお部屋の販売は終了いたしました。
| 価格 | -万円 |
| 面積 | 49.50㎡ |
| 間取り | 2bedrooms(2DK) |
| 管理費 | 月額9,900円 修繕積立金:月額990円 |
| 所在階 | 5F |
| お問い合わせ・ご内見のご予約はこちらからお気軽にどうぞ | |
ここで間取り図のご紹介です。
※間取り図は別タブで開きますので、確認しながらご覧いただく事が出来ます。
□□□□□□□□□□□□□□□□□□□□□□□□□□□□□□□□□□□□□□□
★★★【西蒲田スカイハイツ】周辺のハザードマップをCHECK!!★★★
お部屋の記事を読む前に…!周辺のハザードマップをチェックしておきませんか!
西蒲田スカイハイツのハザードマップは★こちらから…どうぞ★
□□□□□□□□□□□□□□□□□□□□□□□□□□□□□□□□□□□□□□□
今回ご紹介するお部屋は5階、間取りは2DK、専有面積は49.50㎡。
では、早速行ってみましょう。
エレベーターを5階で降りて…
静かな内廊下を進むと…
玄関に到着!
ドア横にはテレビモニター付きインターホンが設置されていて、お部屋の中から訪問者を確認する事が出来ますよ。
それではお邪魔します…
振り返って玄関の様子。
ドアの内側は白く塗られて、スッキリとした玄関になっていますね。シューズボックスの横にはちょっとした隙間があり、傘なども置けるようになっています。
中に入ると自動的に照明がON!人感センサーを探したところ天井に設置されていました。両手が塞がっている時などに重宝しますよ。ドアには安心のダブルロック(^^♪
では、お部屋の方へ…
最初のお部屋はダイニング・キッチン。
窓はありませんが、くもりガラスを通して隣のお部屋から光が入ってきています。
ダイニングテーブルを置いても余裕のある広さです。寛げるダイニングセットなんかも良いかもしれませんね。
キッチンを詳しく見ていきましょう。
調理台は壁と同じ白。壁に溶け込み、お部屋を広く見せる効果があります。
収納は調理台の下と吊戸棚。引き出しタイプは奥の方まで有効に使う事が出来て助かりますね。
水栓は浄水機能付きシャワー水栓。ヘッドが伸びるので、シンクのお掃除などにも便利ですよ。
十分な幅のある調理台。作業スペースもシンクの左右に確保されています。
コンロは3口。片面焼きグリルも付いています。グリルってあまり使わない方も多いようですが、いろいろなお料理に使えるらしいですよ。レシピもたくさん出ていますので、ご興味のある方は是非。
オープンキッチンですので、お料理中は換気扇をお忘れなく! キッチン後方には、冷蔵庫や家電ラックなどを置けるスペースもありました。
では、隣のお部屋へ…
バルコニーに面した大きな窓のある洋室です。くもりガラスからの光はここから入って来ていたんですね。
閉めてもダイニングの雰囲気を感じられる、ちょうど良い距離感。
収納はクローゼット。間口はコンパクトですが、奥行きはありますよ。
では、次のお部屋へ…
こちらにも大きな窓があります。入口はドアなので独立性があり、プライバシーを要する寝室などにピッタリですね。
シンプルで家具も合わせ易いお部屋です。
収納はBIGなクローゼット!間口が広くて使い易い上に、奥行きもあって収納力も抜群ですよ。
次は廊下に戻って、洗面室へ…
こちらにはトイレ、洗面台、洗濯機スペース、浴室がまとまっています。
まずは洗面台。木製のパネルを使ったナチュラルな印象の洗面台です。クロスの雰囲気にもよくあっていますね。
収納は鏡裏のキャビネットと洗面台下。細かい物が多くなりがちな洗面周りには、キャビネットが便利です。
では浴室へ…
追い焚き機能が付いていますので、お風呂が長い方でもお湯が冷める心配はありません。自動的に指定の温度に保ってくれますよ♪♪
浴室を換気してくれる浴室乾燥機ですが、雨天のお洗濯物乾燥やヒートショック予防などにも使えます。せっかくなので、どんどん使っていきましょう。
次はトイレへ…
洗面室とお揃いのクロス。なんか落ち着きます(*´▽`*)
最後にバルコニーのご紹介。
広さは6.05㎡、二部屋の幅がある広々バルコニーです。
外にはビルの外壁が並んでいます。ただ、距離があるので圧迫感などはありませんし、窓も無いので視線が気になる事もありません。鳥よけネットは他のお部屋には無かったので、前の方が設置した物のようです。
左右は抜けていますので、風通りもバッチリですよ(^^)v
・
以上で西蒲田スカイハイツのご案内を終わります。
いかがでしたでしょうか??
蒲田駅から徒歩2分のマンションです。
リノベーション済みという事で室内はとてもキレイですよ (っ・ω・)っ
内見のご予約やご質問などございましたらお気軽にお問い合わせくださいませ。
ご連絡お待ちしております。
□□□□□□□□□□□□□□□□□□□□□□□□□□□□□□□□□□□□□□□
★★★【西蒲田スカイハイツ】周辺のハザードマップをCHECK!!★★★
お部屋のお問い合わせ前に…!周辺のハザードマップをチェックしておきませんか!
西蒲田スカイハイツのハザードマップは★こちらから…どうぞ★
□□□□□□□□□□□□□□□□□□□□□□□□□□□□□□□□□□□□□□□
弊社、不動産Agent 六棒株式会社では、
□リノベーションマンションはほぼ全て仲介手数料無料!
□その他一般仲介物件は仲介手数料20%~30%OFF!
にてお取り扱いしております!※弊社の「Agent Fee=仲介手数料」についてはご案内、ご面談の際に営業担当者よりご説明いたします!
なるべく沢山のお部屋をホームページに掲載したいと思っておりますが、時間的成約もございますので、残念ながらご紹介できるお部屋の一部しか掲載できておりません。
このホームページに掲載中のお部屋、その他サイト等で気になるお部屋、街を歩いていて気になったマンション等々ございましたら是非、弊社営業部までご相談ください!
~不動産Agent 六棒株式会社の特徴~
・一般仲介物件の仲介手数料は20%~30%OFFにてご案内中です!
・リノベーションマンションについてはほぼ全て仲介手数料無料です!
・住宅ローンに自信あります!
・頭金10万円より購入できます。是非ご相談下さい!
・お部屋のご見学は車で2~3件まとめて案内します!
・物件数3000件以上、新築戸建、リノベ物件も多数ご用意しております!
過去に販売していたお部屋の概要 このお部屋の販売は終了いたしました。
| 価格 | -万円 |
| 面積 | 81.85㎡ |
| 間取り | 2bedrooms(2LDK) |
| 管理費 | 月額16,300円 修繕積立金:月額1,630円 |
| 所在階 | 8F |
| お問い合わせ・ご内見のご予約はこちらからお気軽にどうぞ | |
ここで間取り図のご紹介です。
※間取り図は別タブで開きますので、確認しながらご覧いただく事が出来ます。
今回ご紹介のお部屋は8階、間取りはは2LDK、専有面積は81.85㎡。個々のお部屋に余裕の広さ、贅沢な間取りのお部屋になっています。
□□□□□□□□□□□□□□□□□□□□□□□□□□□□□□□□□□□□□□□
★★★【西蒲田スカイハイツ】周辺のハザードマップをCHECK!!★★★
お部屋の記事を読む前に…!周辺のハザードマップをチェックしておきませんか!
西蒲田スカイハイツのハザードマップは★こちらから…どうぞ★
□□□□□□□□□□□□□□□□□□□□□□□□□□□□□□□□□□□□□□□
では、早速行ってみましょう!
エレベーターで8階まで上がり、開放的な外廊下を進むと玄関に到着です。
玄関ドア横にはテレビモニター付きインターホンが設置されていて、お部屋の中から訪問者を確認する事が出来ます。映像で確認してから応対するかを決められるので、しつこいセールスにつかまる事もありません。
玄関から廊下にかけては高級感のある大理石仕上げ。冷たくなりがちな大理石ですが、暖色系を使う事によって温かな雰囲気になっています。正面にドアが無く、戸口からはお部屋の中が見えづらい造りになっているのは嬉しいですね。
玄関シューズボックス脇には傘立てが置けるようなスペースがあり、玄関内をスッキリ使えそうです。
シューズボックスはトールタイプ。収納力はもちろんの事、棚の高さを変えられるのでブーツなどでも収納可能ですよ。人感センサー付きで、中に入れば自動的に照明を点けてくれます。暗い中スイッチを探す必要もありません。
では、突き当り左のドアから…
こちらは約21.2帖のリビング・ダイニング・キッチン。20帖超えてくるとさすがに広いですね。結構大きな家具なんですが、余裕を持っておく事が出来ています。
ちなみにこちらは家具付き物件。ソファーもダイニングテーブルもこのまま付いて来ますよ。統一感があってお部屋にピッタリですね。
バルコニーに面した南側には大きな窓が二つ。明る光が入ってきていてとても明るいお部屋になっています。
お部屋の真ん中には梁が通っていますが、ダイニングとリビングの真ん中なので私的にはそれ程気にはなりませんでした。入口脇にはニッチカウンター。インターホンのモニターはこちらにあります。
LDKには大きな収納が付いています。棚などが全くないフリーなスペースになっていますので、ご自身のライフスタイルによって使い方は自由ですよ!!
では、次はキッチンへ…
調理台はL字型。1650x1950サイズと広さも十分です。建具に合わせたダークブラウンのパネルを使っていて落ち着いた雰囲気ですね。
調理台下は引き出しタイプの収納と食器洗浄乾燥機。L字型の角の部分も、左右に大きく開く扉で無駄なく使う事が出来ます。食洗機、憧れますよね。みんな揃って食後をのんびり過ごせそう♬
コンロは三口。グリル付きで調理器具も充実。
カウンターキッチンですので、お料理中は換気扇をお忘れなく!調理中は分からなくても、時間が経ってから気になりますからね^^;)
水栓は浄水機能付きシャワー水栓。切替えひとつで気軽に美味しいお水を使う事が出来ます。ノズルが伸びてシンクのお掃除も楽々ですよ。
キッチン奥には冷蔵庫スペースや家電ラック、食器棚などを置くスペースも広くとられていました。調理している後ろに置くわけではないので、大きなものでも邪魔になる心配は全くありません。
では、次のお部屋へ…ダイニング横のお部屋です。
こちらは約6.3帖の洋室。バルコニーに面した大きな窓のある明るいお部屋です。フローリングやクロス、建具などはLDKと同じ。
収納はクローゼットと収納棚。クローゼットは間口が大きく開くタイプで、とても使いやすそうです。
では、次のお部屋へ…リビングの奥のお部屋です。
こちらは約7.4帖のお部屋。入るとすぐ前に収納の扉があり、右側にお部屋が広がっています。内開きのドアのデッドスペースを収納の幅が上手く消していますね。南と西の二面採光。明るいのはもちろんの事、風通しも抜群のお部屋になっています。
反対から見るとドアの位置関係が分かりやすいですね。広さ的にはベッド二つも余裕で置ける広さがあります。
西の窓の外は開放的な眺め。午後の陽射しも期待出来ますね。
収納はウォークインクローゼット。左右にハンガーポールが設置されています。多少床に物を置いても使いづらくなる事もなさそうです。
廊下に戻って、次は洗面室へ…
こちらには洗面台、洗濯機スペース、浴室、トイレがまとまっています。
まずは三面鏡付きの洗面台。照明付きで、鏡を使う時に影になる事もありません。
収納は洗面台下と三面鏡裏のキャビネット。キャビネットは、細かい物が多くなりがちな洗面周りにはあると嬉しい収納ですね。
水洗はハンドシャワータイプ。洗面ボウルが広めなので寝ぐせくらいなら直せそう(^^)
洗濯機スペースは吊戸棚付き。すぐ手の届く所に、洗剤や洗濯ネットなどのお洗濯グッズが置いておけて助かります。
浴室は木目のパネル使用の落ち着いた雰囲気。リラックスタイムにはピッタリですね♬
追い焚き機能付きで、スイッチ一つでお風呂を沸かす事が出来ます。保温機能を使えばいつでも温かいお風呂に入れますよ。
ゆったり浸かれる1416サイズの浴槽。段差は足を乗せたり、半身浴に使ったりと便利そう。
浴室乾燥機能は浴室の換気やお洗濯物乾燥、浴室暖房など様々な働きをしてくれます。中には涼風なんてボタンもありますので、これからの暑い季節にも活躍出来そうですね。残念ながら冷房機能はありませんが、濡れた体には結構涼しく感じますよ。
次はトイレへ…
吊戸棚と温水洗浄便座付き。温水洗浄便座はINAX製のシャワートイレです。
それでは最後はバルコニーのご紹介を…
広さは12.10㎡。南向き。三部屋にまたがったとても幅の広いバルコニーです。向こう端まではかなりあって走る事も出来そうですね。(ほんとに走ってはダメですよ(笑))
長さを生かして物干し金具も二か所に設置されていますので、お洗濯物も大量に干せますよ。この辺はハトが多いようですが、手摺には鳥よけのワイヤーが貼られていましたので安心です。
南側には広い空が広がっています。前のビルも高いんですが、さすが8階ですね(^^)
・
以上で西蒲田スカイハイツのご案内を終わります。
いかがでしたでしょうか??
蒲田駅から徒歩2分のマンションです。
リノベーション済みという事で室内はとてもキレイですよ (っ・ω・)っ
内見のご予約やご質問などございましたらお気軽にお問い合わせくださいませ。
ご連絡お待ちしております。
□□□□□□□□□□□□□□□□□□□□□□□□□□□□□□□□□□□□□□□
★★★【西蒲田スカイハイツ】周辺のハザードマップをCHECK!!★★★
お部屋のお問い合わせ前に…!周辺のハザードマップをチェックしておきませんか!
西蒲田スカイハイツのハザードマップは★こちらから…どうぞ★
□□□□□□□□□□□□□□□□□□□□□□□□□□□□□□□□□□□□□□□
弊社、不動産Agent 六棒株式会社では、
□リノベーションマンションはほぼ全て仲介手数料無料!
□その他一般仲介物件は仲介手数料20%~30%OFF!
にてお取り扱いしております!※弊社の「Agent Fee=仲介手数料」についてはご案内、ご面談の際に営業担当者よりご説明いたします!
なるべく沢山のお部屋をホームページに掲載したいと思っておりますが、時間的成約もございますので、残念ながらご紹介できるお部屋の一部しか掲載できておりません。
このホームページに掲載中のお部屋、その他サイト等で気になるお部屋、街を歩いていて気になったマンション等々ございましたら是非、弊社営業部までご相談ください!
~不動産Agent 六棒株式会社の特徴~
・一般仲介物件の仲介手数料は20%~30%OFFにてご案内中です!
・リノベーションマンションについてはほぼ全て仲介手数料無料です!
・住宅ローンに自信あります!
・頭金10万円より購入できます。是非ご相談下さい!
・お部屋のご見学は車で2~3件まとめて案内します!
・物件数3000件以上、新築戸建、リノベ物件も多数ご用意しております!
過去に販売していたお部屋の概要 このお部屋の販売は終了いたしました。
| 価格 | -万円 |
| 面積 | 48.60㎡ |
| 間取り | 2bedrooms(2LDK) |
| 管理費 | 月額9,600円 修繕積立金:月額960円 |
| 所在階 | 3階 |
| お問い合わせ・ご内見のご予約はこちらからお気軽にどうぞ | |
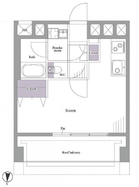
ここで間取り図のご紹介です。
※間取り図は別タブで開きますので、確認しながらご覧いただく事が出来ます。
□□□□□□□□□□□□□□□□□□□□□□□□□□□□□□□□□□□□□□□
★★★【西蒲田スカイハイツ】周辺のハザードマップをCHECK!!★★★
お部屋の記事を読む前に…!周辺のハザードマップをチェックしておきませんか!
西蒲田スカイハイツのハザードマップは★こちらから…どうぞ★
□□□□□□□□□□□□□□□□□□□□□□□□□□□□□□□□□□□□□□□
今回ご紹介するお部屋は3階、間取りは2LDK、専有面積は48.60㎡。
では、早速行ってみましょう。
エレベーターを3階で降りて内廊下を進みます。静かで天候などの影響を受けないのがいいですよね。
玄関ドアにはカメラ付きインターホンが設置されていて、お部屋のモニターで訪問者を確認する事が出来ますよ。それではお邪魔します。
廊下は短め。木目の建具を使用した落ち着いた雰囲気です。
中に入った時に照明を点けてくれたのは人感センサー。いつでも明るい玄関が迎えてくれるのは嬉しいものです(^^)♪
玄関両側には収納棚とトールタイプのシューズボックスが。両方共棚の高さが変えられますので、ご自身のニーズに合わせて調整可能です。
先ずは、突き当りのドアから…
こちらはリビング・ダイニング・キッチン。手前からキッチン、ダイニング、リビングと並んだオーソドックスなタイプです。なんだかんだ言っても、これが使い易かったりするんですよね(^^)
白がベースのナチュラルなお部屋です。
フローリングも、スリッパを履くのがもったいないような足触りの良い仕上げになっています。電話台などにも使えるニッチカウンター。下は収納になっていました。
こちらから見るとキッチンの中はほとんど見えません。お料理中はちょっと嬉しかったりしますね(笑)
お部屋雰囲気に合わせた木目パネルの調理台。
調理台の下は食洗機と収納になっていました。食洗機は楽なだけではなく、手洗いでは不可能な高温で洗う事によって殺菌などの効果もあるんですよ。
コンロは3口。片面焼きグリルも付いています。三つのコンロでお料理の効率も上がりそうですね。
キッチンの奥には冷蔵庫や家電ラックなどのスペースもありました。
では、次のお部屋へ…
バルコニー側の洋室です。窓からの光が明るいですね。
引き戸を使用。デッドスペースもありませんので、お部屋の広さを無駄なく使う事が出来ます。
収納はクローゼット。間口が広くて中をひと目でチェック出来ますよ。
では、隣の洋室へ…
こちらは窓の無いお部屋ですね。シンプルで家具を合わせ易そうです。
隣とほぼ同じ大きさの、引き違い戸のクローゼット。半分づつ開きます。
入口の引き違い戸は扉二枚分が開きますので、開けて使う事も出来そうです。
一度廊下に戻って、次はトイレへ…
温水洗浄便座付き(^^♪ INAX製のシャワートイレです。
次は洗面室へ…
こちらには洗濯機スペース、浴室、洗面台がまとまっています。
まずは洗面台。
収納は洗面台下と横に付いたキャビネット。大きな物も細かい物も上手いこと納まりそうですね。
水洗はハンドシャワータイプ。洗面ボウルを流したりにも便利ですよ。
洗濯機スペースの上には吊戸棚も付いていて、お洗濯グッズをまとめて置けるようになっています。
次は浴室へ…
追い焚き機能が付いていて、お湯が冷めても自動的に温め直してくれます。長風呂派には心強い味方ですね(^^)
浴室乾燥機をただの換気扇だと思ったら大間違い!お洗濯物乾燥やヒートショック予防などいろいろな働きをしてくれるんですよ。
それでは、最後にバルコニーに出てみましょう。
二部屋にまたがる5.94㎡のバルコニー。足元まで柵になっていて開放感があります。
バルコニーの前は建物に囲まれた空間に。これはこれで静かで良いかもしれませんね。日が当たった壁からの光が、意外と明るいですよ。
・
以上で西蒲田スカイハイツのご案内を終わります。
いかがでしたでしょうか??
蒲田駅から徒歩2分のマンションです。
リノベーション済みという事で室内はとてもキレイですよ (っ・ω・)っ
内見のご予約やご質問などございましたらお気軽にお問い合わせくださいませ。
ご連絡お待ちしております。
□□□□□□□□□□□□□□□□□□□□□□□□□□□□□□□□□□□□□□□
★★★【西蒲田スカイハイツ】周辺のハザードマップをCHECK!!★★★
お部屋のご購入前に…!周辺のハザードマップをチェックしておきませんか!
西蒲田スカイハイツのハザードマップは★こちらから…どうぞ★
□□□□□□□□□□□□□□□□□□□□□□□□□□□□□□□□□□□□□□□
弊社、不動産Agent 六棒株式会社では、一般仲介物件は仲介手数料20%~30%OFF!にてお取り扱いしております!
なるべく沢山のお部屋をホームページに掲載したいと思っておりますが、時間的成約もございますので、残念ながらご紹介できるお部屋の一部しか掲載できておりません。
このホームページに掲載中のお部屋、その他サイト等で気になるお部屋、街を歩いていて気になったマンション等々ございましたら是非、弊社営業部までご相談ください!
~不動産Agent 六棒株式会社の特徴~
・一般仲介物件の仲介手数料は20%~30%OFFにてご案内中です!
・住宅ローンに自信あります!
・頭金10万円より購入できます。是非ご相談下さい!
・お部屋のご見学は車で2~3件まとめて案内します!
・物件数3000件以上、新築戸建、リノベ物件も多数ご用意しております!
過去に販売していたお部屋の概要 このお部屋の販売は終了いたしました。
| 価格 | -万円 |
| 面積 | 45.36㎡ |
| 間取り | 2bedrooms(2DK) |
| 管理費 | 月額9,000円 修繕積立金:月額900円 |
| 所在階 | 3階 |
| お問い合わせ・ご内見のご予約はこちらからお気軽にどうぞ | |

こちらが今回ご紹介するお部屋になります。
2部屋に面するバルコニー付きの2DKです。


玄関を入って左手にシューズボックスがあります。
姿見付きで収納豊富なハイタイプです。棚板の高さが変えられるので、冬物のブーツやレインブーツなども収納可能です。

廊下には収納棚を設置。
掃除機などのお掃除グッズやストック類の収納にもぴったりです。

ダイニングキッチンに続くドアです。


ナチュラルな木目が優しい印象のダイニングキッチン。



システムキッチンは新規交換。
浄水機能付きシャワー水栓、お手入れのしやすいガラストップコンロなど機能も充実しています。
シンクの左手には壁をくり抜いた収納スペースになっています。
食器水切ラックなど置くのも良いかもしれませんね☆



ダイニングキッチンから続く洋室約5.1帖。
北側バルコニーに面した明るい室内です。
スライドドアを開放すると一続きになったフローリングで空間が広々と感じます。




バルコニーに面した洋室約5.8帖。
明るい陽射しが部屋の隅々まで照らします。
収納豊富なワイドクローゼット完備。


ダイニングキッチンから続く洗面所。
白とベージュの色合いが清潔感を感じさせます。

洗濯機置場には洗剤など置ける収納棚を設置。
三面鏡タイプの洗面台はミラー裏と洗面台下と合わせて収納スペースも多く、洗面グッズやメイク用品、ストック類まですっきり片付きます。



1日の疲れを癒すバスルーム。
浴室乾燥機、追い焚き機能付きバス、24時間換気、エアインシャワーなど充実の機能でリラックス空間を演出。



快適に使用できるウォシュレット付きトイレ。
吊戸棚完備で隠しておきたいお掃除グッズやストック類の収納が出来、足元周りを広々使用できます。
カウンターに雑貨などを飾ればお洒落なインテリアコーナーに☆


2部屋から出入り可能なワイドバルコニー。
周辺にはビルが立ち並んでいます。
北向きのバルコニーは直射日光が当たらない為、暑い日は格好のやすらぎの場所になります。
多沿線利用可能な「蒲田」駅徒歩2分の好立地。
駅前の利便性が日々の暮らしを快適に支えます。
充実の設備と落ち着きのある室内装「西蒲田スカイハイツ」・・・皆様のお越しをお待ちしております。
内見のご予約やご質問などございましたらお気軽にお問い合わせくださいませ。
弊社、不動産Agent 六棒株式会社では、
□リノベーションマンションはほぼ全て仲介手数料無料!
□その他一般仲介物件は仲介手数料20%~30%OFF!
にてお取り扱いしております!※弊社の「Agent Fee=仲介手数料」についてはご案内、ご面談の際に営業担当者よりご説明いたします!
なるべく沢山のお部屋をホームページに掲載したいと思っておりますが、時間的成約もございますので、残念ながらご紹介できるお部屋の一部しか掲載できておりません。
このホームページに掲載中のお部屋、その他サイト等で気になるお部屋、街を歩いていて気になったマンション等々ございましたら是非、弊社営業部までご相談ください!
~不動産Agent 六棒株式会社の特徴~
・一般仲介物件の仲介手数料は20%~30%OFFにてご案内中です!
・リノベーションマンションについてはほぼ全て仲介手数料無料です!
・住宅ローンに自信あります!
・頭金10万円より購入できます。是非ご相談下さい!
・お部屋のご見学は車で2~3件まとめて案内します!
・物件数3000件以上、新築戸建、リノベ物件も多数ご用意しております!
過去に販売していたお部屋の概要 このお部屋の販売は終了いたしました。
| 価格 | -万円 |
| 面積 | 29.70㎡ |
| 間取り | 1bedrooms(1R) |
| 管理費 | 月額5,800円 修繕積立金:月額580円 |
| 所在階 | 5階 |
| お問い合わせ・ご内見のご予約はこちらからお気軽にどうぞ | |
こちらが今回ご紹介させて頂くお部屋です。
ワンルームなのでささっと行きましょう!!
それではヾ(*´∀`*)ノ
先ずは玄関からです。
当然ですね!!玄関から入らないのは、サンタクロースかアメリカのヒーローだけですよ!!
中はフルリフォーム済みなのでピッカピカになっています(☆Д☆)
玄関左手にあるシューズクローゼットは姿見も兼ねています。
お出かけ前のコーディネートチェックはここでねぇと!! ・・・とにかく、ワンルームのお部屋の割にはしっかりしたシューズクローゼットです。靴をたくさん持っているオシャレさんでも不満に感じることは無さそうですよ!!
そのまま奥のお部屋まで進みましょう!!
ワンルームと聞くと狭いお部屋にキッチンが付いているイメージですが、いかがでしょう??
思った以上にゆったり、広々していると思いませんか??
お部屋の入口にはTVモニター付きのインターフォンが付いています。オートロックの付いていないマンションですが、これがあれば安心ですね!!
お部屋にある収納にも姿見が付いていますね。
改めてスタンドミラーを置かなくてもいいので省スペースでもありますよ(´∀`)
窓の外は後ほどご案内しますね~(○´ω`○)
つぎはーーーー・・・
つぎはーーーー・・・
次はキッチンを!!!
キッチンの水栓はリフォームによって新規交換がされています。
やっぱり新しいものは気持ちがいいですね!!
コンロは2口のグリル付きガスコンロが付いています。一人暮らしだと毎日好きな物が食べられるというのも利点ですよね!!グリルがあればピザも焼けちゃいますし!個人的には断然、サンマですが!!
お次はトイレです。
さりげなくウォシュレット付きですね!!有ってほしい機能がキチンと有る、というのはありがたいことです。゜+.(o´∀`o)゜+.゜
上部には棚が付いているので、トイレットペーパーのストックなど、消耗品はこちらへ。
お次は洗面室ですね。
洗面台の隣には洗濯機置場が並んでいますよ。
洗面化粧台も防水パンも新規交換済みです。
洗面室からはお風呂へ!!
お風呂には追い焚き機能が付いていますので、朝風呂でも深夜のお風呂でも、お好きな時にアツアツのお風呂に入ることができますよ!!
最後にバルコニーです。
ルーフバルコニーという事で頭上まで空が広がっていますよ!!
北向きではありますが、とても明るいのではないでしょうか(☆Д☆)
では、以上で西蒲田スカイハイツのご紹介を終わります。
いかがでしたでしょうか?
蒲田駅から徒歩2分、ワンルームのお部屋でした!!
内装リフォーム済みなので室内もピカピカですよ( ´∀`)b
内見のご予約やご質問などございましたらお気軽にお問い合わせくださいませ。
ご連絡お待ちしています!!
弊社、不動産Agent 六棒株式会社では、
□リノベーションマンションはほぼ全て仲介手数料無料!
□その他一般仲介物件は仲介手数料20%~30%OFF!
にてお取り扱いしております!※弊社の「Agent Fee=仲介手数料」についてはご案内、ご面談の際に営業担当者よりご説明いたします!
なるべく沢山のお部屋をホームページに掲載したいと思っておりますが、時間的成約もございますので、残念ながらご紹介できるお部屋の一部しか掲載できておりません。
このホームページに掲載中のお部屋、その他サイト等で気になるお部屋、街を歩いていて気になったマンション等々ございましたら是非、弊社営業部までご相談ください!
~不動産Agent 六棒株式会社の特徴~
・一般仲介物件の仲介手数料は20%~30%OFFにてご案内中です!
・リノベーションマンションについてはほぼ全て仲介手数料無料です!
・住宅ローンに自信あります!
・頭金10万円より購入できます。是非ご相談下さい!
・お部屋のご見学は車で2~3件まとめて案内します!
・物件数3000件以上、新築戸建、リノベ物件も多数ご用意しております!
過去に販売していたお部屋の概要 このお部屋の販売は終了いたしました。
| 価格 | -万円 |
| 面積 | 49.5㎡ |
| 間取り | 2bedrooms(2LDK) |
| 管理費 | 月額9,900円 修繕積立金:月額990円 |
| 所在階 | 4階 |
| お問い合わせ・ご内見のご予約はこちらからお気軽にどうぞ | |
室内は新規内装リノベーション済み。お部屋に合わせた家具もついています。
ご紹介するお部屋のインターホンは来訪者の顔が確認できるTVモニター付き。安心安全な暮らしをサポートしてくれます。
白基調の明るい玄関ホール。壁面のタイルもステキですね。
玄関をあがると目の前に廊下がまっすぐのびており、右側にトイレと洗面室、左側に収納、正面にLDKの扉があります。順番にご紹介いたします。
廊下のすぐ左側はトールサイズのシューズBOX。1、2人分の靴ならスッキリこの中に納まるのではないでしょうか。表扉の半分には縦長の鏡がついているのでお出かけ前の身だしなみチェックもサッとおこなえます。
シューズBOXの隣は棚付きの物入れ。日用品のストックなどの保管場所によさそうです。
廊下を進んですぐ右側はトイレ。ウォシュレットと吊戸棚がついています。
上にペーパーのストックや掃除用具などを入れておけば足元もスッキリ。
トイレのお隣は洗面室。バスルーム、洗濯機置場、洗面化粧台が入っています。
鏡の裏、引き出しなど収納豊富な洗面化粧台。蛇口はひっぱるとシャワーになるので花瓶の水入れやお掃除も簡単に行えます。
バスルームは追い焚きと浴室換気乾燥機能付き。
雨の日や花粉の時期、夜のお洗濯も乾かせる場所があると安心です。
廊下をまっすぐ進んだ先、採光部のある扉の奥はLDK。
LDKは約10.0帖。
白っぽいフローリングに白いクロスの明るい空間です。
壁面には調湿・消臭効果のあるエコカラットが使われています。
いつの間にか出てくる生活臭もこれできっと軽減するはず・・・!
キッチンはLDKの扉をあけて左側にあります。上にダウンライトがついているのでキッチン側も明るいです。
浄水機能付き水栓に3口コンロ、上下に収納たっぷりとキッチンは設備充実。大きなお鍋やフライパンもすっぽり入りそうです。ちなみにLDK内には窓がないのでお料理の際は換気扇をオンにするのをお忘れなく・・・。
2部屋ある洋室はLDK内から行けるようになっています。
まずは1枚扉の方の洋室へ。
洋室約6.0帖。こちらの方がもう1部屋の洋室よりも広いので主寝室になるイメージでしょうか。壁面の一部にはシックな色合いのカラークロスが貼られており、落ち着いた雰囲気です。
枕棚付きのクローゼットが設置されています。
3枚の可動式扉の奥の洋室は約4.0帖。こちらも壁面の一部にカラークロスが貼られています。
洋室の扉をあけてLDKとつなげるとこんな感じになります。
約4.0帖の洋室は収納がないのでLDKの延長として利用するのもいいかも・・。生活シーンにあわせてつなげて使ったり、独立させて使ったりとフレキシブルなレイアウトをお楽しみいただけます。
最後に洋室2部屋に面したバルコニーに出てみます。
約6.05㎡、南向き。
目の前は建物がたっており、眺望はこんな感じです。
隙間から見える青空がなんだか新鮮です。
西蒲田スカイハイツ、いかがでしたでしょうか?
眺望はあまりこだわらないけども、大規模マンションやとにかくエキチカで便利な所がいい!という方におすすめです。
お問合せは今すぐお電話03-5413-5336もしくはページ一番下の↓「内覧・資金相談会予約」からお気軽にどうぞ!








































































































































































































































































































































弊社 公式HP
六棒総合研究所
掲載予定物件
価格変更と販売終了物件
ハザードマップ検索
適合証明書.jp
Facebook
Twitter
Instagram