□□□□□□□□□□□□□□□□□□□□□□□□□□□□□□□□□□□□□□□
いつも弊社ホームページをご覧頂き誠にありがとうございます。
大森ハイツはお陰様で販売を終了致しました。弊社問合せフォームにてご要望頂けましたら、当お部屋でキャンセル等が発生した場合、他のお部屋が販売になりました際にご紹介させて頂きます。
不動産Agent 六棒株式会社
TEL:03‐5413‐5336
□□□□□□□□□□□□□□□□□□□□□□□□□□□□□□□□□□□□□□□
・
本日は京浜急行本線「大森海岸」駅より徒歩2分リノベーションマンション
大森ハイツ のお部屋をご案内致します!
JR「大森」駅に到着~。
京浜東北線で品川まで2駅、その他新橋、有楽町、東京駅へも1本で行け都内各所へのも移動も便利!!横浜も1本で行けるので神奈川方面のアクセスも快適です(*’▽’)
ここで…
□□□□□□□□□□□□□□□□□□□□□□□□□□□□□□□□□□□□□□□
★★★【大森ハイツ】周辺のハザードマップをCHECK!!★★★
お部屋の記事を読む前に…!周辺のハザードマップをチェックしておきませんか!
大森ハイツのハザードマップは★こちらから…どうぞ★
□□□□□□□□□□□□□□□□□□□□□□□□□□□□□□□□□□□□□□□
では街のご案内に戻りましょう!
大森には駅ビルのアトレ、イトーヨーカ堂、西友、銀行などお買い物や暮らしに必要な施設が揃っており、住環境も◎。イトーヨーカ堂の中にあるフードコートがなかなか広くて軽く食事をとるのにオススメです。
大森駅周辺は少しゴチャゴチャしていますが、マンションから徒歩7分ほどの距離には緑豊かなしながわ区民公園があります。しながわ水族館も入っているのでお休みの日にお出かけしてみてはいかがでしょうか?イルカショーも楽しめます(´∀`o)
そしてマンションから徒歩11分ほどのところにはアスレチックや釣りができるデッキがある平和の森公園も!アスレチック、どうやら調べたら結構本格的らしく45種類もあるとか。お子様と一緒にチャレンジすれば運動不足も解消できそうです。
まだまだご近所に遊び場があります。徒歩13分のところにはボウリング、天然温泉、シネマ、ドンキホーテなどなどが入った商業施設「平和島ビッグファン」。そのお隣はボートレース平和島!大人も子供も1日中遊べるところがこんなに近所にあるなんて・・・うらやましいです。お休みの日が待ち遠しくなりますね✧
大井競馬場。。
広いですねぇ。。。
ボートレース平和島!!
エンジン音が素晴らしいですよ!!
そろそろマンションへ行きましょうか!
大森ハイツは昭和53年築、14階建て、総世帯数344戸の大規模マンション。
平成11年に大規模修繕工事が実施されています。
マンションの前は第一京浜。交通量は少し多めです。
エントランス近くに大森駅と大森海岸駅の案内表示が出ていました。
エントランス。
横にスロープがあるのでキャリーケースやベビーカーでの移動もスムーズにできます。
エレベーターは3基あるので、朝のラッシュ時でも、
エレベーター待ちでイライラすることも少なくて済むかも!?
かなり大規模なマンションです。総戸数344戸ですって!!
ちょっとした町ですね(゚A゚;)
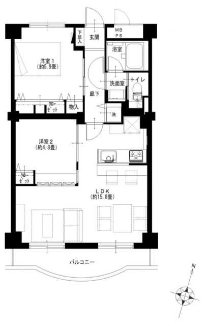
今回ご紹介するお部屋は9階、専有面積57.90㎡の3LDK。南向きファミリータイプのお部屋です。では、早速行ってみましょう。
間取り図はコチラ ↓ ↓ ↓
※間取り図は別タブで開きますので、確認しながらご覧いただくことができます。
【玄関廊下:人感センサー付き照明・廊下に洗濯機スペース】
【洗面室:三面鏡付き洗面台】
【浴室:追い焚き機能・浴室換気乾燥機付き】
【トイレ:洗浄機能一体型】
【LDK:約13.3帖・南向き】
【LDK:コーディネートしやすいシンプルな内装】
【キッチン:カウンターを設置することでカウンターキッチンのよう】
【洋室2:約5.3帖・南向き・クローゼット付き】
【洋室1:廊下に面した独立したお部屋・クローゼット付き】
・
以上で大森ハイツのご案内を終わります。
いかがでしたでしょうか??
大森海岸駅から徒歩2分のマンションです。
リノベーション済みという事で室内はとてもキレイですよ (っ・ω・)っ
内見のご予約やご質問などございましたらお気軽にお問い合わせくださいませ。
ご連絡お待ちしております。
弊社、不動産Agent 六棒株式会社では、
□リノベーションマンションはほぼ全て仲介手数料無料!
□その他一般仲介物件は仲介手数料20%~30%OFF!
にてお取り扱いしております!※弊社の「Agent Fee=仲介手数料」についてはご案内、ご面談の際に営業担当者よりご説明いたします!
なるべく沢山のお部屋をホームページに掲載したいと思っておりますが、時間的成約もございますので、残念ながらご紹介できるお部屋の一部しか掲載できておりません。
このホームページに掲載中のお部屋、その他サイト等で気になるお部屋、街を歩いていて気になったマンション等々ございましたら是非、弊社営業部までご相談ください!
~不動産Agent 六棒株式会社の特徴~
・一般仲介物件の仲介手数料は20%~30%OFFにてご案内中です!
・リノベーションマンションについてはほぼ全て仲介手数料無料です!
・住宅ローンに自信あります!
・頭金10万円より購入できます。是非ご相談下さい!
・お部屋のご見学は車で2~3件まとめて案内します!
・物件数3000件以上、新築戸建、リノベ物件も多数ご用意しております!
過去に販売していたお部屋の概要 こちらのお部屋の販売は終了いたしました
| 価格 | -万円 |
| 面積 | 57.90㎡ |
| 間取り | 2bedrooms(2LDK) |
| 管理費 | 月額5,200円 修繕積立金:月額17,800円 |
| 所在階 | 9階 |
| お問い合わせ・ご内見のご予約はこちらからお気軽にどうぞ | |
今回ご紹介するお部屋は9階、間取り2LDK、専有面積57.90㎡。お一人暮らしからスモールファミリーの方まで幅広くお使いいただけるお部屋です。では、早速行ってみましょう。
間取り図はコチラ ↓ ↓ ↓
※間取り図は別タブで開きますので、確認しながらご覧いただく事が出来ます。
□□□□□□□□□□□□□□□□□□□□□□□□□□□□□□□□□□□□□□□
★★★【大森ハイツ】周辺のハザードマップをCHECK!!★★★
お部屋の記事を読む前に…!周辺のハザードマップをチェックしておきませんか!
大森ハイツのハザードマップは★こちらから…どうぞ★
□□□□□□□□□□□□□□□□□□□□□□□□□□□□□□□□□□□□□□□
【共用廊下】
344戸のビッグコミュニティだけあって長~い共用廊下!
マリンブルーの玄関ドアは海が近いこの立地にピッタリですよね☆彡
【玄関廊下】
フットライトが足元を照らす明るい玄関。
さすがリノベ物件!ピッカピカですよ♬
【玄関廊下】
玄関の照明には人感センサーが付いているので帰宅が遅くなっても安心です。
いつでも明るい玄関が迎えてくれるのって嬉しいですよね^^
【玄関】
シューズボックスは収納力のあるトールタイプ。
棚の高さが変えられるのでブーツなど高さのある靴でもスッキリ収納可能です。扉に付けられた姿見はお出かけ前の最終チェックに便利◎
【廊下収納】
廊下には奥行きが異なる収納棚が二つ!
奥行きが違うので上手く使い分けましょう^^
収納は多すぎて困ることはないですからね!
【LDK】
では、いよいよお部屋の中へ・・・わくわく
【LDK】
こちらは約12.8帖のリビング・ダイニング・キッチン。
南向きのバルコニーに面した明るいお部屋です。天井にも木目を使った温かい雰囲気。黒の縁取りがいいアクセントになっています!
【LDK】
キッチンを少し引っ込んだ所に置くことによって、広びろとしたリビングダイニングを確保しています。
【LDK】
リビングにも収納がついています。
見えてもokなものは左側へ。見せたくないものは右側へ。使い分け大事ですよね。
【LDK】
LDKにあるモニターで玄関の来客の応対が可能。
【キッチン】
LDとの一体感が人気のカウンターキッチン!✨
調理中でも家族やゲストの顔を見ながら会話を楽しめるため、調理中に孤立感を感じることもありません~!
【キッチン】
収納は出し入れがしやすいスライドキャビネット。収納したものがひと目で確認できるのも嬉しいですね。食器洗浄乾燥機付き(^^♪
キッチンからの眺めはこんな感じ(↑写真右側 )
【キッチン】
調理台と揃いのカップボード付き。
収納、家電置場、作業スペースとして心強いです。ゴミ箱が置けそうなスペースもポイント高いですよね^^
【洋室2】
こちらは約4.8帖の洋室2。
LDKと隣接したお部屋です。入口が引き戸なので開け閉めの為のデッドスペースができることもなく、無駄なくお部屋を使えますよ。
【洋室2】
間口が広くて使いやすそうなクローゼットが二つ☆彡姿見付き!
【洋室2】
外につながる窓はないもののLDKに面した内窓から外光も入ります。
この窓があるだけで、お部屋に圧迫感がなくなるような気がします^^
いちど廊下に戻って・・・
【洋室1】
こちらは約6.2帖の洋室1。
廊下に面した独立性の高いお部屋でメインのベッドルームにオススメです。
【洋室1】
収納はコの字にハンガーパイプが設置されたウォークインクローゼット◎
幅が広いので長いものでも入れておけますよ。
【洗面室】
洗面室には洗面化粧台、洗濯機スペース、浴室がまとまっています。
入口に少し段差があるので要注意⚠
【洗面室】
洗面化粧台はシャープなフォルムをダークトーンでまとめたモダンな印象。
カッコイイです✨
【洗面室】
シンク下、収納棚、キャビネットなど収納場所も豊富です。
洗濯洗剤などの洗濯関係のものは洗濯機スペース上部の吊り戸棚へどうぞ。
【浴室】
木目と黒を使用したお部屋との統一感のある浴室です。
浴槽内部にベンチのような段差を設けたタイプです。くつろぎやすく、小さなお子さん、お年寄りの方も安心して入浴できそうですね(^^♪
【浴室】
追い焚き機能付きなので長風呂しても大丈夫!
毎日のお風呂時間が楽しみになっちゃいそうです^^
【浴室】
浴室換気乾燥機は、換気、ヒートショック予防に効果的な浴室暖房、暑い季節に活躍する涼風ボタンなど、いろいろな場面で役立ってくれること間違いナシ♬
【トイレ】
トイレには手洗い場付き。
ハンドソープなんかもも置けて衛生的です。
【トイレ】
もちろん洗浄機能付き!!
トイレットペーパーのストックに便利な吊り戸棚も付いています^^
【バルコニー】
広さ7.22㎡、南向きの陽当たり良好なバルコニー☀
お洗濯物も気持ち良く乾きそうです。
【眺望】
東側に見える水面は平和島競艇場。
好きな方にはたまりませんね♬
・
以上で大森ハイツのご案内を終わります。
いかがでしたでしょうか??
大森海岸駅から徒歩2分のマンションです。
リノベーション済みという事で室内はとてもキレイですよ (っ・ω・)っ
内見のご予約やご質問などございましたらお気軽にお問い合わせくださいませ。
ご連絡お待ちしております。
□□□□□□□□□□□□□□□□□□□□□□□□□□□□□□□□□□□□□□□
★★★【大森ハイツ】周辺のハザードマップをCHECK!!★★★
お部屋のご購入前に…!周辺のハザードマップをチェックしておきませんか!
大森ハイツのハザードマップは★こちらから…どうぞ★
□□□□□□□□□□□□□□□□□□□□□□□□□□□□□□□□□□□□□□□
弊社、不動産Agent 六棒株式会社では、
□リノベーションマンションはほぼ全て仲介手数料無料!
□その他一般仲介物件は仲介手数料20%~30%OFF!
にてお取り扱いしております!※弊社の「Agent Fee=仲介手数料」についてはご案内、ご面談の際に営業担当者よりご説明いたします!
なるべく沢山のお部屋をホームページに掲載したいと思っておりますが、時間的成約もございますので、残念ながらご紹介できるお部屋の一部しか掲載できておりません。
このホームページに掲載中のお部屋、その他サイト等で気になるお部屋、街を歩いていて気になったマンション等々ございましたら是非、弊社営業部までご相談ください!
~不動産Agent 六棒株式会社の特徴~
・一般仲介物件の仲介手数料は20%~30%OFFにてご案内中です!
・リノベーションマンションについてはほぼ全て仲介手数料無料です!
・住宅ローンに自信あります!
・頭金10万円より購入できます。是非ご相談下さい!
・お部屋のご見学は車で2~3件まとめて案内します!
・物件数3000件以上、新築戸建、リノベ物件も多数ご用意しております!
過去に販売していたお部屋の概要 こちらのお部屋の販売は終了いたしました
| 価格 | -万円 |
| 面積 | 57.90㎡ |
| 間取り | 2bedrooms(2LDK) |
| 管理費 | 月額5,200円 修繕積立金:月額17,800円 |
| 所在階 | 7階 |
| お問い合わせ・ご内見のご予約はこちらからお気軽にどうぞ | |
ここで間取り図のご紹介です。
※間取り図は別タブで開きますので、確認しながらご覧いただく事が出来ます。
□□□□□□□□□□□□□□□□□□□□□□□□□□□□□□□□□□□□□□□
★★★【大森ハイツ】周辺のハザードマップをCHECK!!★★★
お部屋の記事を読む前に…!周辺のハザードマップをチェックしておきませんか!
大森ハイツのハザードマップは★こちらから…どうぞ★
□□□□□□□□□□□□□□□□□□□□□□□□□□□□□□□□□□□□□□□
今回のお部屋は7階、間取りは2LDK、専有面積は57.90㎡。ゆとりのお一人暮らしからファミリーまで幅広くお使いいただけるお部屋です。では、早速行ってみましょう。
エレベーターを7階で降りて、見晴らしのよい外廊下をお部屋へ向かいます。大規模マンションだけあって廊下も長いですね!
玄関ドア横にはモニター付きインターホンが設置されていて、お部屋の中から訪問者を確認する事が出来ます。映像を見てから応対するかを決められるので安心ですよ。
濃いめのフローリングに真っ白な壁天井で空間を広く見せています。黒の金具がアクセントになっていますね。リノベーション完成直後なのでとても綺麗です。
玄関ドアにはダブルロック!開けづらいのは勿論、狙われづらくなる効果もあるらしいですよ。姿見はお出掛け前に重宝しそうですね。
シューズボックスはトールタイプ。収納力は抜群!可動式の棚を調節すればブーツなどでも立てたまま収納可能です。人感センサーが自動的にライトを点けてくれるので、夜暗い中手探りでスイッチを探す必要はもうありません。消し忘れも防げて一石二鳥♬
では、お部屋の中へ…
こちらは約15.8帖のリビング・ダイニング・キッチン。南東向きのバルコニーに面した、ワイドスパンのお部屋です。二つ並んだ大きな窓でとても明るいですね! ナチュラルで力の抜けた居心地の良い空間です。
キッチンはL字型の腕の部分にあって、独立タイプに近い感じ。リビング・ダイニングで四角いスペースを使えるのでかなり広々とした印象です。キッチンカウンターがあってダイニングのようにセットされていますが、食事に重点を置いている方ならもっと大きなダイニングテーブルを置くことも可能ですよ。その際カウンターは飾り棚のように使ってもいいですね♪
キッチンは人気のカウンタータイプ。開放的でコミュニケーションが取りやすいキッチンです。更に、こちら側からはキッチン内が見えづらいのもメリットのひとつ。ひと目を気にせず思う存分腕を振るえますよ! では、キッチンを詳しく見ていきましょう。
調理台下は全てスライドキャビネット。引き出しタイプのスライドキャビネットは開口部が大きく、大きな物でも楽に出し入れ可能です。ぎっしり詰めてしまっても、中身の確認がしやすいのもいいですよね。
コンロは3口。タイマーや温度設定が可能な高機能タイプです。IHだけかと思ったらガスコンロでもこんな事が出来るようになっていたんですね^^;)世の中どんどん進歩しています。
コンロの下にはグリル付き。「魚焼きグリル」と呼ばれるくらい魚イメージが強いですが、野菜でも肉でも何でも焼けるんですよ。使う時は換気扇をお忘れなく!
作業スペースも確保された幅広い調理台。コンロ前にはパネルがあって油跳ねを防いでいるので、思い切り鍋を振るえますよ。
調理台後ろには冷蔵庫や家電ラックが置けるスペースもあります。奥のグレーのボードには磁石が付くようになっていて、ご家族の連絡ボードなどに使うことも出来ますよ。これなら、冷蔵庫みたいに開けるたびにバラバラ落ちたりする心配もありませんね^^;)
では、次のお部屋へ…
実は、LDKに入った時から気になっていました(笑)
こちらは約4.8帖の洋室。多数の窓で隣接したLDKとつながったお部屋です。ベッドルームとしてはもちろん、ご家族構成によってはDENとしても使うことが出来そうですね。テレワークにピッタリ!
外からの光で明るく照らされたデスクに座れば、LDKにいるご家族の様子もよく見えますよ。カーテンレールも付いているので、全集中したい時はカーテンを閉めましょう。ただ、ここならカーテンよりブラインドの方が似合う気もしますが…
廊下へ戻ってすぐの所には洗濯機スペース。上部には棚も付いているので、洗剤などのお洗濯グッズはこちらへまとめて置きましょう。ちなみに乾燥機付きの洗濯機は入れることが出来ないそうです。
では、次のお部屋へ…
こちらは約5.9帖の洋室。北側に窓のあるお部屋です。北向きといっても外は先程歩いて来た外廊下。日射しは期待出来ないまでも光は入ってくるので意外と明るいですよ。
入口が引き戸なのでデッドスペースも出来ず、お部屋のスペースを無駄なく使う事が出来ます。大きなベッドでも十分に置ける広さがありますよ。
収納は物入と間口が広くて使いやすそうなクローゼット。物入はハンガーポールや棚が付いていないフリーな収納です。大きな物をそのまま入れてもいいですし、必要に応じていろいろアレンジ出来るのがいい所ですね。クローゼットは棚も設置されたマルチタイプになっています。
次は洗面室へ…
洗面室には洗面台の他に、浴室、トイレがまとまっていて、脱衣所も兼ねています。
洗面台は身だしなみチェックに便利な三面鏡付き。上部に付いた照明のおかげで、鏡を見る時に影になることもありません。
収納は三面鏡裏のキャビネットと洗面台下。細々した物が多くなりがちな洗面廻りには豊富な収納が有り難いですね。様々なタイプがあって、大きな物から細かい物までバランスよく収まりそうです。
ビルドインの水栓はヘッドを伸ばすことが出来て、洗面ボウルを流したりに便利です。
次はトイレへ…
トイレットペーパーのストックや小物が置けるカウンターが付いています。洗浄便座はINAX製のシャワートイレ。
浴室は木目パネルで落ち着いた雰囲気。リラックス出来て疲れも洗い流せそうです♬
リンナイ製の追い焚き機能付きユニットバス。「自動」ボタンひとつでお風呂を沸かすことが出来ます。ご家族でお風呂の時間が揃わなくても、そのまま保温もしてくれるのでいつでも温かいお風呂に入れますよ。
浴室換気乾燥機は浴室の換気乾燥はもちろんのこと、暑い季節は涼風、寒い季節は浴室暖房、梅雨の季節は洗濯物乾燥など、一年を通して大活躍!これからなら浴室暖房の出番ですね。
それでは最後はバルコニーのご紹介。
LDKのどちらの窓からでも出られます。
広さは7.22㎡、南東向き。真ん中がアーチ状に膨らんだバルコニーは、数字以上に広く感じます。手すりが下まで柵で開放的なのも広く感じる一因でしょうか。天井には物干し金具が付いてお洗濯物も干せるようになっています。陽当り良好なので気持ち良く乾きそう♬
バルコニーから見えるのは、なんと平和島のボートレース場!!!残念ながら今日はレースが行われていませんでしたが、お好きな方ならたまらないロケーションですね(笑)
・
以上で大森ハイツのご案内を終わります。
いかがでしたでしょうか??
大森海岸駅から徒歩2分のマンションです。
リノベーション済みという事で室内はとてもキレイですよ (っ・ω・)っ
内見のご予約やご質問などございましたらお気軽にお問い合わせくださいませ。
ご連絡お待ちしております。
□□□□□□□□□□□□□□□□□□□□□□□□□□□□□□□□□□□□□□□
★★★【大森ハイツ】周辺のハザードマップをCHECK!!★★★
お部屋のご購入前に…!周辺のハザードマップをチェックしておきませんか!
大森ハイツのハザードマップは★こちらから…どうぞ★
□□□□□□□□□□□□□□□□□□□□□□□□□□□□□□□□□□□□□□□
弊社、不動産Agent 六棒株式会社では、
□リノベーションマンションはほぼ全て仲介手数料無料!
□その他一般仲介物件は仲介手数料20%~30%OFF!
にてお取り扱いしております!※弊社の「Agent Fee=仲介手数料」についてはご案内、ご面談の際に営業担当者よりご説明いたします!
なるべく沢山のお部屋をホームページに掲載したいと思っておりますが、時間的成約もございますので、残念ながらご紹介できるお部屋の一部しか掲載できておりません。
このホームページに掲載中のお部屋、その他サイト等で気になるお部屋、街を歩いていて気になったマンション等々ございましたら是非、弊社営業部までご相談ください!
~不動産Agent 六棒株式会社の特徴~
・一般仲介物件の仲介手数料は20%~30%OFFにてご案内中です!
・リノベーションマンションについてはほぼ全て仲介手数料無料です!
・住宅ローンに自信あります!
・頭金10万円より購入できます。是非ご相談下さい!
・お部屋のご見学は車で2~3件まとめて案内します!
・物件数3000件以上、新築戸建、リノベ物件も多数ご用意しております!
過去に販売していたお部屋の概要 このお部屋の販売は終了いたしました。
| 価格 | -万円 |
| 面積 | 57.90㎡ |
| 間取り | 3bedrooms(3LDK) |
| 管理費 | 月額5,200円 修繕積立金:月額17,800円 |
| 所在階 | 11F |
| お問い合わせ・ご内見のご予約はこちらからお気軽にどうぞ | |
ここで間取り図とリフォーム内容のご紹介。
※クリックすると間取り図は別タブで開きます
3LDK 57.90 ㎡(壁芯) 11階
- 総戸数344戸大規模マンション
- 2駅2路線利用可 『大森海岸』駅徒歩2分
- 南東向き・11階部分 陽当り・眺望良好
- 住宅ローン控除適応物件
今回のお部屋は新規内装リフォーム済みになります。
令和2年2月末完了
●フローリング新規貼替
●給水管・給湯管新規交換(専有部)
●建具・玄関収納等新規交換
●Panasonic製 洗面化粧台新規交換
●TOTO製 洗浄便座付トイレ新規交換
●TOTO製 追焚機能付ユニットバス新規交換
●LIXIL製 システムキッチン新規交換
●TVモニタ付きインターホン新規交換
●照明器具新規設置
●壁・天井クロス新規貼替
●給湯器新規交換
以上のようなリフォームが済んでおります。
また、今回は室内写真が少なく限られております。
順次撮影にいっていますが素敵なお部屋なので
一足先に少ない写真ですが皆さんに情報をお届けさせて頂きます!
では!お邪魔します。
玄関にはTVモニタ付きインターホンが設置されています。
扉を開ける前に来訪者の確認を☆彡
玄関をはいって正面にトールタイプのシューズボックスがあります。
少しゆとりのある玄関。ダブルロックでセキュリティも充実です◎
ちょっとくねっとした玄関廊下。
照明は人感センサー付き、正面に見えるのはリビング
右手の引き戸は洗面室へ行けます。
先にリビングからご紹介していきますね!
玄関廊下から感じましたが陽当りがとてもいいですね!
11階高層階の南(南南東)向きになります。
約12帖の明るいリビングです。
ナチュラルな色のフローリングなのでお手持ちの家具でも
わりとどんな色でもあわせそうですね。
リビングからは洋室二部屋へ行けます。
が、先にキッチン見ていきましょう
間接照明と自然光でキッチンも明るいですね!!
天井の梁もおしゃれに感じる配置
吊戸棚をなくしてリビングとの一体感が◎
3口ガスコンログリル付きでワークトップは白で大理石張り
下の収納はスライド式で奥もみやすいですよ☆彡
後ろには冷蔵庫や食器棚も置けるスペースがあります。
玄関廊下へ戻って・・先ほど見えた洗面室へ
入って左手に室内洗濯機置き場、正面に洗面化粧台があります。
三面鏡の中には収納があり、基礎化粧品などが入れられますね☆彡
下には引き戸と開き戸両方あるので用途にあわせて収納が可能
工夫が必要ないって素敵ですね!
右手が浴室ですね。
木目調パネルで落ち着いた浴室
ワイドミラーで奥行きも◎
浴室乾燥機に追い焚き機能もついて機能も充実です!
梅雨の時期も洗濯物に頭を悩ませる必要がないですね
洗面室からトイレへもいけます。
水周りが全てまとまっているんですね!
トイレには収納などがないので自分で好きな空間にしてみては☆彡
そろそろ洋室見ていきましょう!
いっきに行きますよ!
まず玄関廊下側のこちらのお部屋、約4.4帖
開口部は共有廊下側で北北西向きになります
先行配管が通ってますね。クローゼットもあります
そしてリビングに戻ります。
キッチンの横にあったふたつの扉・・
奥の廊下側からご紹介です。
洋室約3.6帖のお部屋
こちらにもクローゼットがあります。
引き戸なので普段開けて子供部屋や家事部屋、書斎、普通に寝室としても使ってもいいですね。
ライフスタイルにあわせてお使いください☆彡
最後のお部屋がこちら約5.2帖のバルコニーに面したお部屋
こちらはリビングとつながっているので南東向きですね
クローゼットも広く、主寝室向きでしょうか。
では、バルコニーにも出てみましょう♪
11階眺望良好ですね!
写真から陽当りの良さ、風通しの良さが伝わってきます。
いかがでしたでしょうか??
今回はいつもより室内写真が少なく伝わりにくいかと思います。
たくさんの物件をお伝えできるように順次撮影にいっております!
現在リノベーションも完了しているためいつでもご見学が可能です。
京浜急行線『大森海岸』駅徒歩2分
京浜東北線『大森』駅徒歩10分のマンションです。
リノベーション済みという事で室内はとてもキレイですよ (っ・ω・)っ
内見のご予約やご質問などございましたらお気軽にお問い合わせくださいませ。
ご連絡お待ちしております。
弊社、不動産Agent 六棒株式会社では、
□リノベーションマンションはほぼ全て仲介手数料無料!
□その他一般仲介物件は仲介手数料20%~30%OFF!
にてお取り扱いしております!※弊社の「Agent Fee=仲介手数料」についてはご案内、ご面談の際に営業担当者よりご説明いたします!
なるべく沢山のお部屋をホームページに掲載したいと思っておりますが、時間的成約もございますので、残念ながらご紹介できるお部屋の一部しか掲載できておりません。
このホームページに掲載中のお部屋、その他サイト等で気になるお部屋、街を歩いていて気になったマンション等々ございましたら是非、弊社営業部までご相談ください!
~不動産Agent 六棒株式会社の特徴~
・一般仲介物件の仲介手数料は20%~30%OFFにてご案内中です!
・リノベーションマンションについてはほぼ全て仲介手数料無料です!
・住宅ローンに自信あります!
・頭金10万円より購入できます。是非ご相談下さい!
・お部屋のご見学は車で2~3件まとめて案内します!
・物件数3000件以上、新築戸建、リノベ物件も多数ご用意しております!
過去に販売していたお部屋の概要 このお部屋の販売は終了いたしました。
| 価格 | -万円 |
| 面積 | 58.02㎡ |
| 間取り | 3bedrooms(3LDK) |
| 管理費 | 月額5,200円 修繕積立金:月額17,800円 |
| 所在階 | 11階 |
| お問い合わせ・ご内見のご予約はこちらからお気軽にどうぞ | |
ここで間取り図のご紹介です。
※間取り図は別タブで開きますので、確認しながらご覧いただく事が出来ます。
□□□□□□□□□□□□□□□□□□□□□□□□□□□□□□□□□□□□□□□
★★★【大森ハイツ】周辺のハザードマップをCHECK!!★★★
お部屋の記事を読む前に…!周辺のハザードマップをチェックしておきませんか!
大森ハイツのハザードマップは★こちらから…どうぞ★
□□□□□□□□□□□□□□□□□□□□□□□□□□□□□□□□□□□□□□□
今回のお部屋は11階、間取りは3LDK+wic、専有面積は58.02㎡となります。
では、早速行ってみましょう。
エレベーターを11階で降りて…
明るい外廊下を進むと…
玄関に到着です。
カメラ付きインターホンが設置されていて、お部屋のモニターで訪問者を確認する事が出来ます。玄関まで来る必要がないのがいいですね。
それではお邪魔します。
真っ直ぐに伸びた廊下は突き当りが壁になっていて、玄関からはお部屋の中の様子が見えづらくなっています。今は宅配便やフードデリバリーなど、玄関口に知らない人が訪ねて来る事が多いですからね。
振り返って玄関内の様子です。
ドアは安心のダブルロック。面倒ですがしっかり鍵をかけましょう。
玄関に入った時に照明を点けてくれたのは、人感センサーです。いつでも明るい玄関が迎えてくれるのは嬉しいですよね♬
シューズボックスはトールタイプ。棚板の高さが調整出来るので、ブーツなどの背の高い靴でも収納可能ですよ。
クランク状の廊下を進むと更にドアが並んでいました。まずは、すりガラスの入った引き戸から開けてみましょう。
こちらが、約10.9帖のLDK+約4.6帖の洋室になります。奥の白く飛んでしまっている所が洋室です。このお部屋自体には窓は有りませんが、洋室の窓から入る光が明るく照らして
いますよ。
入ってすぐの壁にはモニターがありました。玄関前の様子がここに映るんですね。どこからも近い便利な場所です。
シンプルな色使いで、置く家具によっていろいろな雰囲気に出来そうですね。
エアコンが初めから付いていて、新生活を快適に始められます(^^)
広いカウンターは食卓としても使えますね。
LDKと洋室の仕切り戸を閉めると…
独立した洋室として使用する事も出来ます。
LDK側から…
扉がすりガラスになっているので、閉めても柔らかな光が入ってきますね♬
では、今度はキッチンを見ていきましょう。後ろにも広いスペースがある広々としたキッチンです。
コンロは3口。操作パネルを見るとタイマーや温度設定などが出来るようです…ガスコンロもここまで来ましたか^^;)
お料理中は換気扇をお忘れなく。グリル使用時は絶対ですよ(^^)
水栓は浄水機能付きシャワー水栓です。
切り替えれば水道水が美味しいお水に早変わり。ヘッドが伸びるのでシンクのお掃除などにも便利です。
調理台の後ろには冷蔵庫や家電ラックなどのスペース、更に扉付の洗濯機スペースがありました。キッチンに洗濯機・・・違和感がある方もいらっしゃるかもしれませんが、ネット上には使い勝手の良さなどを絶賛している記事もありましたよ。
では、次のお部屋へ…
キッチン横のドアです。
こちらが約5.5帖の洋室となります。
バルコニーに通じる大きな窓があり、明るいお部屋になっていますね。
クローゼットは間口が広いタイプ。中がひと目で確認出来て使いやすいそうです。
では、いちど廊下に戻って…
出てすぐ左のドアはトイレになります。廊下よりかなり高くなっていますので、足元にご注意下さい。
ウォシュレットを完備。吊戸棚も付いていてトイレ関係のストックも収納可能です。
隣のドアは洗面室。洗面室のドアは大きく開くようになっていますので、普段は開けておくと帰宅時に手を洗ったりに便利そうです。
三面鏡の付いた、落ち着いた雰囲気の洗面台です。
収納は洗面台下とミラーキャビネット、横の棚になります。細々した物が多くなりがちな洗面周りには、小分けになったミラーキャビネットの様な収納が重宝しますよね。
水洗はハンドシャワータイプ。洗面ボウルを流したり、寝ぐせを直したり(笑)
次は浴室へ…
明るい色使いの浴室です。全体を照らす二つのライトがいいですね。
追い焚き機能が付いていますので、長風呂しても大丈夫。
足を伸ばしてゆったり浸かれる広々とした浴槽です。
浴室乾燥機能は浴室のカビ予防だけでなく、雨天のお洗濯物乾燥やヒートショック予防など様々な働きをしてくれます。どんどん使っていきましょう。
次は、洗面室前のドアを開けてみます。
こちらが約4.3帖の洋室となります。
窓の外は外廊下になっています。二重サッシや面格子が設置されていて、防音や防犯にも配慮されていますよ。
収納は扉の無いウォークインクローゼット。L字型にハンガーポールが設置されています。扉が無いと中が丸見えですので綺麗にしておかなければなりませんが、風通しが良かったり、中身が確認しやすかったりというメリットもありますよ。
ウォークインクローゼット内にはドアがあり、廊下に通じていました。ここからお部屋に入る事も出来るんですね(^^)
それでは、最後にバルコニーへ出てみましょう!
真ん中が膨らんだバルコニーは、6.72㎡という数字以上に広く感じます。
お天気が良ければ陽当り良好ですので、お洗濯物も気持ち良く乾きそうです。西向きなので午後がお勧めですよ。
バルコニーへは少し段差があるのでお気を付け下さい。
外は11階からの開放的な眺めになっています。
前は広い道路で交通量も多めですが、バルコニーへの窓も二重サッシになっているので安心ですよ。道路の向こうに見えるのは、最寄り駅の『大森海岸駅』。お部屋から駅のホームが見えるって凄くないですか(^^)
・
・
以上で大森ハイツのご案内を終わります。
いかがでしたでしょうか??
大森海岸駅から徒歩2分のマンションです。
リノベーション済みという事で室内はとてもキレイですよ (っ・ω・)っ
内見のご予約やご質問などございましたらお気軽にお問い合わせくださいませ。
ご連絡お待ちしております。
□□□□□□□□□□□□□□□□□□□□□□□□□□□□□□□□□□□□□□□
★★★【大森ハイツ】周辺のハザードマップをCHECK!!★★★
お部屋のご購入前に…!周辺のハザードマップをチェックしておきませんか!
大森ハイツのハザードマップは★こちらから…どうぞ★
□□□□□□□□□□□□□□□□□□□□□□□□□□□□□□□□□□□□□□□
弊社、不動産Agent 六棒株式会社では、
□リノベーションマンションはほぼ全て仲介手数料無料!
□その他一般仲介物件は仲介手数料20%~30%OFF!
にてお取り扱いしております!※弊社の「Agent Fee=仲介手数料」についてはご案内、ご面談の際に営業担当者よりご説明いたします!
なるべく沢山のお部屋をホームページに掲載したいと思っておりますが、時間的成約もございますので、残念ながらご紹介できるお部屋の一部しか掲載できておりません。
このホームページに掲載中のお部屋、その他サイト等で気になるお部屋、街を歩いていて気になったマンション等々ございましたら是非、弊社営業部までご相談ください!
~不動産Agent 六棒株式会社の特徴~
・一般仲介物件の仲介手数料は20%~30%OFFにてご案内中です!
・リノベーションマンションについてはほぼ全て仲介手数料無料です!
・住宅ローンに自信あります!
・頭金10万円より購入できます。是非ご相談下さい!
・お部屋のご見学は車で2~3件まとめて案内します!
・物件数3000件以上、新築戸建、リノベ物件も多数ご用意しております!
過去に販売していたお部屋の概要 このお部屋の販売は終了いたしました。
| 価格 | -万円 |
| 面積 | 58.02㎡ |
| 間取り | 2bedrooms(2LDK) |
| 管理費 | 月額5,200円 修繕積立金:月額17,800円 |
| 所在階 | 13階 |
| お問い合わせ・ご内見のご予約はこちらからお気軽にどうぞ | |
さて!今回ご紹介のお部屋のフロア、13階に到着です(‘◇’)ゞ
う…高いっっ(@_@)!!
ずらーっとお部屋が並ぶ外廊下は、明るく開放感がありますね(*^▽^*)
こちらが今回ご紹介させて頂くお部屋の間取りです。
2LDK、58.02㎡。13階。ですよ~(/・ω・)/ ↓ ↓
~~~~~~~~~~~~~~~~~~~~~~~~~~~~~~~~~~~~~~~~~~~~~~~~~~~~~~~~
・システムキッチン新規交換 ・ユニットバス新規交換
・建具新規交換 ・エアコン新規設置
・クロス張替 ・フローリング張替
・TVモニター付きインターフォン新規交換
・洗面化粧台新規交換 ・ウォシュレット一体型トイレ新規交換
・照明器具一部設置 ・玄関廊下大理石貼り
・給湯器新規交換 ・洗濯パン、水栓新規交換
・ルームクリーニング 他
~~~~~~~~~~~~~~~~~~~~~~~~~~~~~~~~~~~~~~~~~~~~~~~~~~~~~~~~
こちら今回のお部屋玄関前になります。
カメラ付きのインターホンがついているので、セキュリティ面も安心!
いらないセールスなどともサヨナラできちゃいます☆
さっそく、中に入ってみましょう!
ぴーんぽーん!おじゃましまーす-=≡ヘ(*・ω・)ノ
おおお!!
大理石貼りでぴかぴかなんだか高級感のある、
おしゃれな玄関がお出迎えヽ(゚▽゚*)乂(*゚▽゚)ノ
玄関入ってすぐ左手には…シューズボックスが!
シューズボックスを浮かせ、下から照明で照らされることで、
玄関を広く魅せる効果がありますね♬
天井までの高さがあり、棚の高さも自由に変えられるので、収納力もばっちりです!(^^)
また、玄関の照明は、人感センサー付きなんです♬
真っ暗な中帰宅した時や荷物が多い時でも、自動で照明がついてくれるのは
ありがたいです (○´ω`○)
うっかり消し忘れなどもなくなるので、電気代の節電にもつながりますよ♪
ではでは玄関を上がり…(((((((((っ・ω・)っ
突き当りのリビングから見ていきましょう!
ドアをあけると、キッチン・リビング・ダイニングが広がります(*^^*)
天井埋込型の照明により、天井が高くお部屋が広々とみえますよ♬
バルコニーに繋がる大きな窓からの採光もばっちりです♡!
モデルルーム仕様になっているので、イメージがわきやすいっ(*゚▽゚)ノ♪
ダイニングテーブルとソファー両方おいてものびのびスペースがあり、
団欒の場としてもぴったりに違いありません(*´ω`)
ソファーの上あたりと、ダイニングテーブル・キッチンあたりに
ダクトレールが設置されており、スポットライトの照明が取り付けられます(^^)/
続いて…キッチンをご紹介していきます(/・ω・)/
グリル付きの3口ガスコンロです (´∀`*)~♪
同時並行でいろいろなお料理をつくることができそうですね( ゚ω^ )♪
しっかり広さのあるシンクはお料理や洗い物がはかどります(゚▽゚*)!
蛇口はびよーんと伸びるシャワーヘッドになっているので、
お鍋などに水を注ぐ際も、お掃除も楽々♪
しかも!浄水器付ですよー!?
もう!お料理用にお水をかってこなくていいんですって( ゚Д゚)!!
そしてー…ビルドイン型の食洗器もついています!!
後片付けまでが料理、とは言いますが…
お料理は好きだけど洗い物が面倒で…なーんて私みたいな方!いますよね!?←
これで家事が一つ楽になっちゃいます(*’▽’)!!
収納スペースもこの通り、ばっちりー!!
奥までがばっとひらく引き出しは、大きいお鍋や重たいフライパンを
出し入れするのにも楽々、ですねヽ(゚▽゚*)
キッチンに立つと左手にみえるなんだかお洒落なスペース…っっ
淡い木目調のデスクと棚、天井のダクトレール設置の照明で照らされた
素敵なこの場所は、ワークスペースとしても活躍してくれそうですね(*´ω`)!!
そしてーっっ…!!
こーんなに広い収納スペースがあるんです!!
なんだかもう、ちょっとした秘密基地みたいー!!!( ゚∀゚)アハハ
棚の高さは自由に調節できますし、
写真見ずらいかもしれませんが…ハンガーラックも取り付けられるようになっています♬
ここでっ一度廊下に戻っていきます~(((((((っ・ω・)っ
こちらのドアは…?
トイレです☆
シンプルで無駄がなく、清潔感があります(*‘∀‘)
TOTO製の洗浄便座付トイレ!新規交換済みです♬
扉付の吊り棚がついているので、トイレットペーパーのストックや
サニタリー用品などそっと収納しておけますね(*‘∀‘)ノ
その奥の扉はっっ
洗濯機置場。
ドア付きなのは、来客時や使わない時にさっと閉じて
かくしておけるのが嬉しいところ(^^)/
玄関のところまで戻ってきました~!
洗面室みていきましょーう♬
大きな鏡は嬉しい三面鏡!
明るい照明で、毎朝の身支度もはかどりそうな洗面台!
水栓は、びよーんとのびる、シャワーヘッドタイプ!!
簡単な洗髪もできますし、洗面台のお掃除も楽々です(*‘∀‘)
鏡の後ろや洗面台下と収納スペースの多さも言うことなし◎
モノが多く、ごちゃごちゃしがちな洗面周りですが、
隠れる場所にさっと収納しちゃいましょーう ( ゚ω^ )ゝ
つづきまして~
お風呂行ってみまーす(*・ω・)ノ
落ち着いた色合いの木目調の壁が素敵(*´▽`*)
一日の疲れを癒せそうなお風呂です♡
お風呂は、嬉しい乾燥機&暖房&涼風機能付き!!
洗濯物の外干しは難しい季節でも、これなら、
お部屋の中がいつもジメジメで室内干しの匂いに…
なーんてことも回避できそうです~( (*^艸^)!
浴槽は、追炊き機能が付いているので、いつでも暖かいお風呂につかって
身体を休められますね(*´ω`)♡
ではっ続いて洋室のお部屋みていきましょーう♬
2部屋あるので…まずはこちらからっ(/・ω・)/
外廊下に面した東向きの窓から光も差し込みます。
落ち着いた印象をうけるお部屋なので、寝室としての使い方もアリですね(*^^*)
お部屋にはクローゼットもございます♬
ハンガーラックは二面にあるので、お洋服もたくさん収納できそうです(/・ω・)/
つづいて…こちらのお部屋☆
ま…眩しい!!と感じるくらい明るいですよ♡
こちらのお部屋の窓も、バルコニーへと続いています(*´▽`*)
こちらの洋室のクローゼットは横に広い―!!
これだけの広さがあれば、衣替えもいらないかも!?
ぜーんぶ収納して、お部屋は広々使えそうですね(*´▽`*)
最後に、バルコニーのご紹介をさせて頂きます(*’ω’*)ノ
お!
バルコニーへの窓は二重サッシになっています!
防音性もよく、結露対策にもなる優れものです(*´ω`*)
撮影日はあいにくのお天気になってしまいましたが…
視界が開けているので、お天気の良い日には陽当りも良く、
眺めももっとクリアですよー(; ・`д・´)!!
目の前は大きな道路で、車がびゅんびゅん走っておりますが…
二重サッシのおかげか、騒音はほとんど気になりませんでした(/・ω・)/
お!!あれは!!
大森海岸駅~!!
この、エキチカ感をとてもかんじられますね(*´▽`*)
さて、【大森ハイツ 13階】のお部屋はいかがでしたでしょうか?
他にも詳細が知りたい!!実際に見学をしたい!!などありましたら
仲介手数料最大無料の当社
六棒株式会社まで
お電話ください(^-^*)/
TEL 03-5413-5336
お気軽にお問い合わせください。
スタッフ一同お待ちしております。
弊社、不動産Agent 六棒株式会社では、
□リノベーションマンションはほぼ全て仲介手数料無料!
□その他一般仲介物件は仲介手数料20%~30%OFF!
にてお取り扱いしております!※弊社の「Agent Fee=仲介手数料」についてはご案内、ご面談の際に営業担当者よりご説明いたします!
なるべく沢山のお部屋をホームページに掲載したいと思っておりますが、時間的成約もございますので、残念ながらご紹介できるお部屋の一部しか掲載できておりません。
このホームページに掲載中のお部屋、その他サイト等で気になるお部屋、街を歩いていて気になったマンション等々ございましたら是非、弊社営業部までご相談ください!
~不動産Agent 六棒株式会社の特徴~
・一般仲介物件の仲介手数料は20%~30%OFFにてご案内中です!
・リノベーションマンションについてはほぼ全て仲介手数料無料です!
・住宅ローンに自信あります!
・頭金10万円より購入できます。是非ご相談下さい!
・お部屋のご見学は車で2~3件まとめて案内します!
・物件数3000件以上、新築戸建、リノベ物件も多数ご用意しております!
過去に販売していたお部屋の概要 このお部屋の販売は終了いたしました。
| 価格 | -万円 |
| 面積 | 57.90㎡ |
| 間取り | 3bedrooms(3LDK) |
| 管理費 | 月額5,200円 修繕積立金:月額17,800円 |
| 所在階 | 2階 |
| お問い合わせ・ご内見のご予約はこちらからお気軽にどうぞ | |
さて今回のお部屋は2階になります。
間取り図はこちら↓
3LDK、57.90㎡。ファミリーにもおススメできるお部屋ですよ~(/・ω・)/
クリックすると別タブで開くことも可能です。
ぜひ間取り図とお部屋比較しながら見ていただければと思います!
ずらーっとお部屋が並ぶ外廊下は、明るく開放感がありますね(*^▽^*)
マンションの真ん中部分は吹き抜けのようにみえますね!
グリーンも綺麗に整備され、気持ちがいいです!!
こちら今回のお部屋玄関前になります。
カメラ付きのインターホンがついているので、セキュリティ面も安心!
いらないセールスなどともサヨナラできちゃいます☆
さっそく、中に入ってみましょう!
ぴーんぽーん!おじゃましまーす-=≡ヘ(*・ω・)ノ
おおお!!
玄関タイルがピカピカ!なんだか高級感のある、
おしゃれな玄関がお出迎えヽ(゚▽゚*)乂(*゚▽゚)ノ
玄関入ってすぐ左手には…シューズボックスが!
天井までの高さがあり、棚の高さも自由に変えられるので、収納力もばっちりです!(^^)
ではでは玄関を上がり…(((((((((っ・ω・)っ
突き当りのリビングから見ていきましょう!
ドアをあけると、キッチン・リビング・ダイニングが広がります(*^^*)
10.5帖の広さのあるお部屋っ
ご家族との団欒の場としてぴったりの、南向きで明るいリビングです(*´▽`*)
こちらの壁はよーくみると、アクセントクロスになっていますよー!
さりげないおしゃれ、ですね(」゚□゚)」!?
お隣の洋室との間の仕切り扉は、ビルドインタイプなので、このように、あけておくことで一間続きの広々リビング・ダイニングの一部のように魅せることもできます(*’ω’*)!
こちらの4.2帖と、10.5帖のリビング…併せて14.7帖になっちゃいます(*´▽`*)♡
普段は…来客時は…なーんて、使い分けをするのも楽々です!
しきりをしめてみるとこーんな感じ!
バルコニーにつながる大きな南向きの窓からひかりが差し込み、
閉めてもとっても明るいお部屋になっています(*’ω’*)!
お部屋にはクローゼットもございます♬
お洋服もたくさん収納できそうです(/・ω・)/
続いて…キッチンをご紹介していきます(^^)/
しっかり広さのあるシンクはお料理や洗い物がはかどります(゚▽゚*)!
蛇口はびよーんと伸びるシャワーヘッドになっているので、
お鍋などに水を注ぐ際も、お掃除も楽々♪
しかも!浄水器付ですよー!?
もう!お料理用にお水をかってこなくていいんですって( ゚Д゚)!!
グリル付きの3口ガスコンロとお隣にはビルドイン型の食洗器も!!
これを使いこなせばお料理上手に( *´艸`)!?
収納スペースもこの通り、ばっちりー!!
奥までがばっとひらく引き出しは、大きいお鍋や重たいフライパンを
出し入れするのにも楽々、ですねヽ(゚▽゚*)
ではでは続いて、こちらの洋室も見ていきますね~(*‘ω‘ *)ノ
4.0帖の広さの洋室。
は一番小さいサイズのお部屋となりますが、
家具類の設置などにも悩まなくて済みそうな間取が嬉しいお部屋☆
子供部屋や、趣味のお部屋としての使い方なんかもいいかもしれません(*´ω`*)
お部屋にはクローゼットもあるので、収納棚などを置かずに済み
お部屋自体を目いっぱい広々使えそう♬
ではでは一度廊下の方に戻っていきます~ (((((((((っ・ω・)っ
一番手前のドアは…トイレ!
特徴的なブラウンで格子柄の壁紙がおしゃれ!!
壁紙をくろーずあーっぷ☆彡
照明も素敵ですよね(^^
TOTO製の洗浄便座も新規交換済みです♬
ではでは奥へ進み…玄関のそばのこちらのドアは…?
入って正面に洗濯機置場がちらりー!
洗面室みていきましょーう♬
大きな鏡は嬉しい三面鏡!
水栓は、びよーんとのびる、シャワーヘッドタイプ!!
簡単な洗髪もできますし、洗面台のお掃除も楽々です(*‘∀‘)
鏡の後ろや洗面台下と収納スペースの多さも言うことなし◎
モノが多く、ごちゃごちゃしがちな洗面周りですが、
隠れる場所にさっと収納しちゃいましょーう ( ゚ω^ )ゝ
つづきまして~
お風呂行ってみまーす(*・ω・)ノ
落ち着いた色合いの木目調で光沢のある壁が素敵(*´▽`*)
一日の疲れを癒せそうなお風呂です♡
お風呂は、嬉しい乾燥機&暖房&涼風機能付き!!
洗濯物の外干しは難しい季節でも、これなら、
お部屋の中がいつもジメジメで室内干しの匂いに…
なーんてことも回避できそうです~( (*^艸^)!
浴槽は、追炊き機能が付いているので、いつでも暖かいお風呂につかって
身体を休められますね(*´ω`)♡
お風呂をあとにして…
ではっ!
続いて洋室のお部屋みていきましょーう♬
3部屋め、最後のお部屋ですっ(/・ω・)/
外廊下に面した窓のあるこちらの洋室のお部屋は6.1帖!
3部屋の中で一番広いお部屋です(=゚ω゚)ノ
ダブルベッドも置けそうな広さがありますし、落ち着いた印象のお部屋なので…
主寝室としての利用をぜひぜひオススメしたいお部屋です(*‘ω‘ *)
こちらのお部屋にもばっちりクローゼットがありますよー!
他の2部屋と比べてちょっと大きめのクローゼットなので、
頑張ればお二人分のお洋服もかけられる…!?
その場合、衣替えはマスト、でしょうかっっ(‘◇’)ゞ
最後に、バルコニーのご紹介をさせて頂きます(*’ω’*)ノ
お!
バルコニーへの窓は二重サッシになっています!
防音性もよく、結露対策にもなる優れものです(*´ω`*)
撮影日はあいにくのお天気になってしまいましたが…
南向きで、視界が開けているので、
お天気の良い日には陽当りも良さそうですよー(*´▽`*)
目の前の道路は車通りも少なく、落ち着いた生活ができそうですよー♬
さて、【大森ハイツ】はいかがでしたでしょうか?
他にも詳細が知りたい!!実際に見学をしたい!!などありましたら
仲介手数料最大無料の当社
六棒株式会社まで
お電話ください(^-^*)/
TEL 03-5413-5336
お気軽にお問い合わせください。
スタッフ一同お待ちしております。
弊社、不動産Agent 六棒株式会社では、
□リノベーションマンションはほぼ全て仲介手数料無料!
□その他一般仲介物件は仲介手数料20%~30%OFF!
にてお取り扱いしております!※弊社の「Agent Fee=仲介手数料」についてはご案内、ご面談の際に営業担当者よりご説明いたします!
なるべく沢山のお部屋をホームページに掲載したいと思っておりますが、時間的成約もございますので、残念ながらご紹介できるお部屋の一部しか掲載できておりません。
このホームページに掲載中のお部屋、その他サイト等で気になるお部屋、街を歩いていて気になったマンション等々ございましたら是非、弊社営業部までご相談ください!
~不動産Agent 六棒株式会社の特徴~
・一般仲介物件の仲介手数料は20%~30%OFFにてご案内中です!
・リノベーションマンションについてはほぼ全て仲介手数料無料です!
・住宅ローンに自信あります!
・頭金10万円より購入できます。是非ご相談下さい!
・お部屋のご見学は車で2~3件まとめて案内します!
・物件数3000件以上、新築戸建、リノベ物件も多数ご用意しております!
過去に販売していたお部屋の概要 このお部屋の販売は終了いたしました。
| 価格 | -万円 |
| 面積 | 47.23㎡ |
| 間取り | 2bedrooms(2LDK) |
| 管理費 | 月額4,400円 修繕積立金:月額16,600円 |
| 所在階 | 12階 |
| お問い合わせ・ご内見のご予約はこちらからお気軽にどうぞ | |
クリックすると別タブで開くことも可能です。
間取り図とお部屋比較すると見やすいですよ
では、営業部小倉が【大森ハイツ 12階】
お部屋一緒にご案内させて頂きます(o*。_。)oペコッ

こちら今回のお部屋玄関前になります!
しっかりした造りの玄関ですね(((uдu*)ゥンゥン
ダブルロック、TVモニタ付きインターフォンでセキュリティ充実(”◇”)ゞ
では♡早速お部屋いってみましょう
お邪魔しまーす┏○ペコ
トールタイプのシューズボックスが二つ並んでいます。
お洒落な方は靴がとにかく多いですよねΣ(゚Д゚)
そんな方も安心して収納出来ますよ♡
小学校の体育館の壁がこんな穴のあいたものでした。。
さて、なぜここに( ^ω^)・・・?
正解!!こちら名称は有孔ボードと言います。
壁収納が出来ちゃうんですよ((ノェ`*)っ))タシタシ
ネットで検索してみてくださいφ(`д´)メモメモ…
これであなたもお洒落上級者( ´∀`)bグッ
では♡早速お部屋いってみましょう
お邪魔しまーす┏○ペコ
南向きのバルコニー!
日当たり良好◎明るいリビングですね\(^o^)/
カウンターが長~く続いています。
飾り棚や見せる収納に使えますね(((uдu*)ゥンゥン
キッチン横は洋室があります。
スライド式の扉なので普段開け放しても使えますね(((uдu*)ゥンゥン
クローゼットも少し小さめですがついています!
奥行があるので背の低い棚も置けそうです(*´・ω・)(・ω・`*)ネー
閉めるとこんな感じです|ω・`)ちら
キッチンが良く見えますね( ´艸`)♡
人気のカウンターキッチン
3口ガスコンログリル付きのシステムキッチンです!
嬉しい食洗機付き♡
今まで洗い物に使っていた時間を家族団らんに((ノェ`*)っ))タシタシ
浄水器機能一体型で美味しいお水が飲めますよ\(^o^)/
下部収納はスライド式です
何が良いって色々入れても奥が見やすい事ですね!
私よく奥に入れ過ぎて存在忘れます。。
重いものなんかも出し入れがしやすく( ´∀`)bグッ
キッチンの裏は洗濯置場が隠されています\( ´・ω・`)┐しゅたっ
普段は閉めおけるのでプライバシーも守れます◎
続いてトイレですε=(ノ゚Д゚)ノ ∥WC∥
嬉しい機能が!!!!
ウオシュレット機能付き(〃▽〃)ポッ
寒い冬もあったか便座ですよ♡
棚もありますφ(`д´)メモメモ…
開き戸タイプなので人目にもつきません\(´°v°)/んぴッ
続いて洗面所へ ε=(。ノ・ω・)ノ
なんと水栓がびよよよよよ~~~~ん
シャワーヘッドになっていますよ( ´艸`)
隅々までお掃除することが出来るので清潔に保つことが出来ます!
収納面も鏡裏と下にも入れられ◎
下は仕切りなど特にないタイプなので
ラックなどを入れれば引き出せて出し入れも楽になりますよ(((uдu*)ゥンゥン
浴室は浴室乾燥機付き!!!
雨が続いてもこれから冬にかけてどんどん乾かない日々が続きます。。
ですがこれがれば気にせずお洗濯まわせます( ´∀`)bグッ
またこれからの時期に多いヒートショック防止に暖房もつけられます?
お子様なども湯舟でじっとしてること滅多にないですよね(^▽^;)
そんな時にとっても便利です☆色々試しに使ってみてください!!
木目調の高級感ある癒し空間(n*´ω`*n)
1日の疲れを洗い流してください♡
最後にリビング横のバルコニーが続いている洋室になります。
12階で眺望も日当たりもよいですねー(/・ω・)/
収納は広々Σ(゚Д゚)
かなり入りますよ (*^艸^)
さてお部屋いかがでしたか?
最後に!南向き日当たり良好、
バルコニーへいってみましょう♪
(((((((((((っ・ω・)っ
平和島のボートレースが見えます|ω・`)ちら
青い海、青い空、白い船!!!
良い眺めですね~
ちょうど走っているのが見えましたoo(^O^*=*^O^)o ワクワク
他にも詳細が知りたい!!実際に見学をしたい!!などありましたら
仲介手数料最大無料の当社
六棒株式会社まで
お電話ください(^-^*)/
TEL 03-5413-5336
お気軽にお問い合わせください。
スタッフ一同お待ちしております。
弊社、不動産Agent 六棒株式会社では、
□リノベーションマンションはほぼ全て仲介手数料無料!
□その他一般仲介物件は仲介手数料20%~30%OFF!
にてお取り扱いしております!※弊社の「Agent Fee=仲介手数料」についてはご案内、ご面談の際に営業担当者よりご説明いたします!
なるべく沢山のお部屋をホームページに掲載したいと思っておりますが、時間的成約もございますので、残念ながらご紹介できるお部屋の一部しか掲載できておりません。
このホームページに掲載中のお部屋、その他サイト等で気になるお部屋、街を歩いていて気になったマンション等々ございましたら是非、弊社営業部までご相談ください!
~不動産Agent 六棒株式会社の特徴~
・一般仲介物件の仲介手数料は20%~30%OFFにてご案内中です!
・リノベーションマンションについてはほぼ全て仲介手数料無料です!
・住宅ローンに自信あります!
・頭金10万円より購入できます。是非ご相談下さい!
・お部屋のご見学は車で2~3件まとめて案内します!
・物件数3000件以上、新築戸建、リノベ物件も多数ご用意しております!
過去に販売していたお部屋の概要 このお部屋の販売は終了いたしました。
| 価格 | -万円 |
| 面積 | 58.02㎡ |
| 間取り | 3bedrooms(3LDK) |
| 管理費 | 月額5,200円 修繕積立金:月額17,800円 |
| 所在階 | 5階 |
| お問い合わせ・ご内見のご予約はこちらからお気軽にどうぞ | |
月額5,200円 修繕積立金:月額17,800円月額5,200円 修繕積立金:月額17,800円
こちらが今回ご案内させて頂くお部屋の間取りです。
さっそく参りましょう!!
玄関までは外廊下が続いています。
玄関の外にはカメラ付きのインターフォンがあります。
オートロックが無くても、お部屋にいながら外の様子を確認できるのは防犯的にも安心できますね (・`ω´・ ○)
それでは中に入っていきましょう(´∀`)
玄関左手にはシューズボックスがありますよ。姿見を兼ねているのでお出かけ前のコーディネートチェックはバッチリですね!!
廊下を進みます。
突当りまで行くとリビングへのドアがありますよ!!
こちらがリビング・ダイニング・キッチンです!
奥の洋室とはスライド式のドアで仕切られているのですが、写真はドアを開放した状態で撮影しています。空間が広くなると気持ちいいのですよ??
奥の洋室に進みます。
窓は西向きなので午後には明るい陽ざしが入ってきそうですよ!!
もちろんスライド式のドアを閉めれば1つのお部屋としても機能します。
状況に応じて自由に使っていきたいですね( ´∀`)b
こちらはキッチンです。
壁に面したⅠ型のクローズドキッチンです。
大きなシンクが付いた水栓、3口のグリル付きガスコンロがありますね!!
グリルが付いているのは嬉しいですよ!高火力であっという間に焼きあがるグリルは、トーストからお肉までおらゆるメニューに対応できます。オススメはローストビーフです!!作り方は・・・・長くなるのでご自身でお調べくださいo(*>Д<)ゝ
収納も、吊戸棚にキッチンカウンターの引き出しとたっぷりあります。
腰より低い位置の収納は引き出しタイプの方が楽でいいですよ!
毎回しゃがむ必要もないですし、簡単に奥まで手が届くので重い調理器具でも楽に取り出せます(・ω・)b
それでは廊下に戻りましょう。
次はトイレです。
シンプルなトイレですね。
とはいいつつも、ちゃんとウォシュレットが付いているのは流石です(`ω´)
実際には、このくらいシンプルなトイレの方が落ち着いて良いと思いますよ!!
大きな鏡が付いていて、黒い大理石の床がドーンと広がっているようなハリウッド映画に出てくる感じのトイレでは落ち着いて長居できませんものね(*ノД`*)
さて、次の扉は・・・・
洗面室ですね!
洗面化粧台と洗濯機置場があります。
水栓はビルドインタイプです。汚れが溜まりにくく掃除もしやすいという、どうして昔からこの形じゃなかったのか不思議に思うくらい便利ですよ!!
シャワーヘッドになっているので、簡単な洗髪もできますし大きな洗面ボウルの隅々まで水を流すことができます(*・д・)
大きなミラーの内部は収納になっています。
歯ブラシや基礎化粧品などの小物はこちらに入れておく事ができますね!
中には電源も付いているのでアイロンやドライヤーもここで使うことができます(´∀`)
洗面台の下の収納には掃除用品などの消耗品のストックが入りそうですね。洗濯洗剤も一緒にしまってもよさそうです!!
こちらはお風呂です。
木目調の壁に縦長タイプのミラーが付いていますよ。
ベーシックな縦長のミラーは全身を映すことができますし掃除も簡単なので、個人的には横長のオシャレ風ミラーよりもおすすめです。
追い焚き機能が付いているので、朝風呂でも深夜でも好きな時にたっぷりのお湯に浸かることができますよ!!
大きな浴槽で一日の疲れを洗い流しましょう。゜+.(o´∀`o)゜+.゜
玄関まで戻ってきましたね。
こちらにもお部屋があるのです!!
外の廊下に面している窓が付いていますが、金属製の格子と2重サッシで遮音も防犯もバッチリです!!
クローゼットが付いています。姿見付きのクローゼットです。
ハンガーポールがあるのでお洋服を掛けることができますね。ハンガーラック等を置かなくてもいいのでお部屋を広く使うことができますよ (っ´∀`c)
さて、最後のお部屋をご案内するのですが、このドアどこにあったか覚えてますか??
キッチンの近くにあったのですが、覚えてなくても大丈夫です!!
とにかく進みましょうヾ(*≧∀≦)ノ゙
こちらのお部屋はバルコニーに面しています。
2重サッシになっているので車の音はそんなに気にならないですよ (っ´∀`c)
壁一面にクローゼットの雰囲気が漂っていますね・・・
そうですね!!クローゼットですね!!
かなり大きな物なので、大量のお洋服を掛けることができると思います!!
上部は棚になっているのでお洋服以外にも、季節ものの家電や雑貨を入れることができますよヽ(´∀`)
とうとう最後ですね。こちらがバルコニー、西向きです。
目の前の第一京浜の向こうに見えるのが「大森海岸駅」ですよ。
距離的には徒歩1分ですが、もう少しかかるかもしれませんね( ̄∀ ̄*)
では、以上で大森ハイツのご案内を終わります。
いかがでしたでしょうか??
「大森海岸駅」の目の前にあるマンションでした!
大規模マンションで管理人さんも良い人でしたよヾ(*´∀`*)ノ
ご質問や内見のご予約などございましたらお気軽にお問い合わせくださいませ!!
ご連絡お待ちしております!!
弊社、不動産Agent 六棒株式会社では、
□リノベーションマンションはほぼ全て仲介手数料無料!
□その他一般仲介物件は仲介手数料20%~30%OFF!
にてお取り扱いしております!※弊社の「Agent Fee=仲介手数料」についてはご案内、ご面談の際に営業担当者よりご説明いたします!
なるべく沢山のお部屋をホームページに掲載したいと思っておりますが、時間的成約もございますので、残念ながらご紹介できるお部屋の一部しか掲載できておりません。
このホームページに掲載中のお部屋、その他サイト等で気になるお部屋、街を歩いていて気になったマンション等々ございましたら是非、弊社営業部までご相談ください!
~不動産Agent 六棒株式会社の特徴~
・一般仲介物件の仲介手数料は20%~30%OFFにてご案内中です!
・リノベーションマンションについてはほぼ全て仲介手数料無料です!
・住宅ローンに自信あります!
・頭金10万円より購入できます。是非ご相談下さい!
・お部屋のご見学は車で2~3件まとめて案内します!
・物件数3000件以上、新築戸建、リノベ物件も多数ご用意しております!
過去に販売していたお部屋の概要 このお部屋の販売は終了いたしました。
| 価格 | -万円 |
| 面積 | 58.02㎡ |
| 間取り | 3bedrooms(3LDK) |
| 管理費 | 月額5,200円 修繕積立金:月額17,800円 |
| 所在階 | 2階 |
| お問い合わせ・ご内見のご予約はこちらからお気軽にどうぞ | |
今回ご紹介するお部屋になります。
東向きワイドバルコニー付きの3LDKです。


大理石調の高級感のある玄関。
大容量のシューズボックスはフットライトの付いたフロートタイプ。空間に広がりをもたせ、天井までのトールサイズでも圧迫感を感じさせません。

廊下を抜けてLDKへ・・・。



東向きに開いた窓から明るい光が降り注ぐLDK。
淡くナチュラルな木目のフローリングと白の壁が室内を広々と見せてくれます。
角度や位置を変えられるダクトレールを使用したスポットライトが、ワンランク上の空間演出を可能にします。

室内を見渡せ、お料理中の会話も弾む対面式キッチン。



室内の雰囲気に合ったナチュラルな木目調のシステムキッチン。
シンク内のお掃除にも便利なハンドシャワー水栓。
お手入れが簡単な受皿のないフラットトップ天板。



キッチン横の洋室約4帖。
お料理中も見守れるのでキッズルームなどに使用するのもおすすめです。



リビングから続く洋室約5.2帖。
バルコニーに面した明るいお部屋です。
収納もたっぷりのワイドクローゼット完備。



廊下から続く洋室約4.5帖。
外廊下に面した窓がありお部屋の隅々まで陽射しが差し込みます。


優しい木目の色あいが落ち着きのあるサニタリースペース。


新規交換でとても綺麗な洗面化粧台。
三面鏡タイプの収納豊富な洗面台は便利なハンドシャワー水栓です。

洗濯機置場には吊戸棚を設置。
洗剤やリネン類などの収納に便利です。



浴室換気乾燥機付きのバスルーム。
艶のある木目のパネルがホテルライクで高級感があります。
ゆったりとした寛ぎの時間が過ごせるリラックス空間です。


トイレは白で統一され清潔感があります。
かくしておきたいお掃除グッズやストック類の収納などに便利です。

バルコニーに面する窓は、防犯・防音対策に優れ、冷暖房効果もアップする「二重サッシ」。



2部屋から出入り出来るワイドバルコニーです。
ボートレース平和島が目の前!迫力あるレースが展開されています!
東向きに面しているため、毎日朝日を浴びてフレッシュな1日をスタート出来ますね。
「大森海岸」駅徒歩2分で通勤通学にも便利な住環境。
休日には海で気分転換も出来ます。
河川沿いの緑や風を感じる「大森ハイツ」。皆様のお越しを心よりお待ちしております。
ご質問や内見のご予約などございましたらお気軽にお問い合わせくださいませ!!
ご連絡お待ちしております!!
弊社、不動産Agent 六棒株式会社では、
□リノベーションマンションはほぼ全て仲介手数料無料!
□その他一般仲介物件は仲介手数料20%~30%OFF!
にてお取り扱いしております!※弊社の「Agent Fee=仲介手数料」についてはご案内、ご面談の際に営業担当者よりご説明いたします!
なるべく沢山のお部屋をホームページに掲載したいと思っておりますが、時間的成約もございますので、残念ながらご紹介できるお部屋の一部しか掲載できておりません。
このホームページに掲載中のお部屋、その他サイト等で気になるお部屋、街を歩いていて気になったマンション等々ございましたら是非、弊社営業部までご相談ください!
~不動産Agent 六棒株式会社の特徴~
・一般仲介物件の仲介手数料は20%~30%OFFにてご案内中です!
・リノベーションマンションについてはほぼ全て仲介手数料無料です!
・住宅ローンに自信あります!
・頭金10万円より購入できます。是非ご相談下さい!
・お部屋のご見学は車で2~3件まとめて案内します!
・物件数3000件以上、新築戸建、リノベ物件も多数ご用意しております!
過去に販売していたお部屋の概要 このお部屋の販売は終了いたしました。
| 価格 | -万円 |
| 面積 | 58.02㎡ |
| 間取り | 2bedrooms(2LDK) |
| 管理費 | 月額5,200円 修繕積立金:月額15,800円 |
| 所在階 | 6階 |
| お問い合わせ・ご内見のご予約はこちらからお気軽にどうぞ | |
間取りのご紹介です。2LDK、58.02㎡。6階。
眺望も良好です!
室内は只今リノベーション工事中!
一足先に充実のリノベーション内容をご紹介いたします。
■新規交換・・・システムキッチン(蛇口一体型浄水器・食器洗い乾燥機)
ユニットバス(追い焚き、浴室乾燥機付き)/洗面化粧台/トイレ(ウォシュレット付き)
コンセント・スイッチパネル/給湯設備
■新規貼替・・・全室フローリング/壁・天井クロス/フロアタイル/玄関タイル
■新規設置・・・クローゼット/ダウンライト/玄関人感センサー/TVモニター付きインターフォン
■ハウスクリーニング
【内装工事終了予定:12月】
フローリングに木の王様と呼ばれる天然無垢チーク材を使用。木のヌクモリが感じられるお部屋になる予定です。
工事終了前のご紹介も可能ですので、ご質問などはお気軽にお問合せくださいませ![]()



























































































































































































































































































































































































































































































































弊社 公式HP
六棒総合研究所
掲載予定物件
価格変更と販売終了物件
ハザードマップ検索
適合証明書.jp
Instagram