□□□□□□□□□□□□□□□□□□□□□□□□□□□□□□□□□□□□□□□
いつも弊社ホームページをご覧頂き誠にありがとうございます。
アルファスシティ大島はお陰様で販売を終了致しました。弊社問合せフォームにてご要望頂けましたら、当お部屋でキャンセル等が発生した場合、他のお部屋が販売になりました際にご紹介させて頂きます。
不動産Agent 六棒株式会社
TEL:03‐5413‐5336
□□□□□□□□□□□□□□□□□□□□□□□□□□□□□□□□□□□□□□□
みなさん、東大島駅って使ったことありますか??
だいたいどこにあるか知ってても使ったことが無い方が多いのではと思います。
大島の知人に東大島のイメージを聞いてみたところ、「ジョナサンとミスド?」という回答が得られました。
生粋の都民でもそのくらいの認識です。。。。(´°(エ)°`)
という事で!!!
今日は皆さんに東大島の魅了を余すところなく紹介しつつマンションまで向かっていきたいと思います ヾ(*´∀`*)ノ
□□□□□□□□□□□□□□□□□□□□□□□□□□□□□□□□□□□□□□□
★★★【アルファスシティ大島】周辺のハザードマップをCHECK!!★★★
お部屋の記事を読む前に…!周辺のハザードマップをチェックしておきませんか!
アルファスシティ大島のハザードマップは★こちらから…どうぞ★
□□□□□□□□□□□□□□□□□□□□□□□□□□□□□□□□□□□□□□□
ハザードマップもご確認いただきましたので、早速街をご案内しましょう!
先ずはこちらが東大島駅!!
平日と言えどもお昼時でこの静けさ!!なんていうか平和です!!
都心に近いと便利ですが、人の多さもそれだけで疲れてしまいます (`・ω・´)
このくらい落ち着ける雰囲気もアリなのではないでしょうか???
駅前には大きな公園が。
土地に余裕のある江東区ならではの風景です。
この日は天気が良かったからか、バスケットコートで若者たちが汗を流していました
ザ・青春ストライクって感じですね!!(*ノД`*)
こちらは中川舟番所。
江戸幕府が通船を対象として設けた関所です。
中川関所ともいうそうですよ。
1661年に深川船改番所がここに移って成立。一般の関所と同じく「入鉄砲に出女」を取り締まったそうですが、その辺はあまり厳しくなかったようです。
川船による江戸への諸物資出入りの把握にあったので、通過荷物の検査は厳重にしていました。
海の浦賀番所と並んで江戸を中心とする幕府の経済統制機関として、幕末まで重要な役割を果たしたという事です。
うーん、なんか難しいっすね( ゚ω゚ )
旧中川ではおじいさんたちがハゼ釣りを楽しんでいました。
大島もそんな余裕のある老後を過ごしたいものですねぇ。。。c (っ・ω・)っ
こちらは小名木川。
江東区の端から端まで流れている河川というか、水路です。
江戸時代は江戸への入口として多くの船が行き交っていたことでしょう (`ω´)
こちらは荒川です。
さすが1級河川!!その大きさも目をみはるものがあります。
そういえば、10年位前?荒川にアザラシ来てましたよね??
あのアザラシはその後元気にしているのでしょうか???(U^ω^)
東大島駅からマンションまでは基本的に住宅地が続いているので、お買い物ではこちらのライフかヨークマートを利用することが多いかと思います。
南に15分程歩けばイオンスタイル南砂や・・・
南砂町ショッピングセンター SUNAMO(スナモ)!!!
“いつでも何でも揃っている””心くすぐる日常がある”をテーマとした大型複合商業施設です。8つの大型店と約100の専門店が入っています。
【ちり紙からロケットまで何でも揃う】という噂もありますよ!!(真偽は不明です)
それではマンションへと向かいましょう。
駅前を通っている都道477号線を南下して・・・・・ (((((((((((っ・ω・)っ
良き所で右折します。
良き所というのは、あまりいい目印が無かったという事ですよ!!
強いて言うなら「ガソリンスタンドを越えて次のファミマを通り過ぎた信号」です。
分かりづらいので良き所という表現にさせてもらいますねー
昔ながらの商店街までくれば後はもうすぐです。
銭湯も健在でしたよヽ(゚▽゚*)乂(*゚▽゚)ノ
家の近所に銭湯があるっていいですよね!!
家のお風呂も良いですけど、たまにはデッカイお風呂でドドーン!!とくつろぎたいものですね。
水辺が近い街あるある「猫が多い」です。
アルファスシティ大島では猫の飼育はできませんが、近所に野生動物がいると動物好きの方でも幾分かは満足できますよね・・・・(U^ω^)
さて、見えてきました!!
こちらが今回ご紹介させて頂くマンション!!
アルファスシティ大島です!!
総戸数457戸の超ビッグコミュニティ、24時間有人管理体制!!!
もはや1つの町ですね!!
入口横にはパーキングが。
駐車場ではなくパーキングです。この微妙なニュアンスの違いが伝わりますでしょうか!?
駐車場は場所によって月額15000~22000円です。空き状況は随時変わりますので、内見の際にでもお尋ねくださいね ヽ(・∀・ )ノ
他にも自転車置き場やバイク置き場も完備していますよ(どちらも有料です)
それでは!!
いざ!!アルファス!!!
なんと巨大なエントランスなのでしょう(ビフォーアフター風に)
銀座の百貨店のエントランスのような高級感があります(☆Д☆)
24時間いてくれる管理人さんや・・・・
もちろん宅配ボックスも!!
中庭には集会所のような施設もありました ( ̄∀ ̄*)
他にもキッズルームやバンケットフォーラム(大会議室)リーディングルーム等々充実の共用施設です。
さりげなく自動販売機があるのも大きなマンションの特権ですね!!
ではではエレベーターでお部屋のあるフロアへと向かいましょう!!
ここで間取り図のご紹介です。
※間取り図は別タブで開きますので、確認しながらご覧いただく事が出来ます。
□□□□□□□□□□□□□□□□□□□□□□□□□□□□□□□□□□□□□□□
★★★【アルファスシティ大島】周辺のハザードマップをCHECK!!★★★
お部屋の記事を読む前に…!周辺のハザードマップをチェックしておきませんか!
アルファスシティ大島のハザードマップは★こちらから…どうぞ★
□□□□□□□□□□□□□□□□□□□□□□□□□□□□□□□□□□□□□□□
今回のお部屋は2SLDK+WIC、89.08㎡、9階。
フラット35s利用可能!
最新の設備仕様へ一新する新規内装リノベーション物件!見どころ盛沢山ですね♬
では、早速行ってみましょう!
・・・とこちらは現在リノベーション中のお部屋で
令和2年2月頃完成予定のお部屋になります。
★室内写真準備中★
内装工事中でも見学は可能です!お気軽にお問い合わせ下さい ♪
アルファスシティ大島の物件概要
| 住所 | 江東区東砂1-1-1 |
| アクセス | 都営新宿線「大島」駅 徒歩16分 |
| 構造 | 鉄筋コンクリート造地上14階建て2階部分 |
| 築年月 | 平成8年4月 |
| 総戸数 | 457戸 |
★只今、販売中のお部屋の概要
| 面積 | 89.08㎡ |
| 間取り | 2bedrooms(2SLDK+WIC) |
| 管理費 | 月額13,400円 修繕積立金:月額11,500円 |
| 所在階 | 9F |
| お問い合わせ・ご内見のご予約はこちらからお気軽にどうぞ | |
都営新宿線 大島駅から徒歩16分のマンションです。
リノベーション中という事で完成が楽しみですね (っ・ω・)っ
内見のご予約やご質問などございましたらお気軽にお問い合わせくださいませ。
ご連絡お待ちしております。
□□□□□□□□□□□□□□□□□□□□□□□□□□□□□□□□□□□□□□□
★★★【アルファスシティ大島】周辺のハザードマップをCHECK!!★★★
お部屋のご購入前に…!周辺のハザードマップをチェックしておきませんか!
アルファスシティ大島のハザードマップは★こちらから…どうぞ★
□□□□□□□□□□□□□□□□□□□□□□□□□□□□□□□□□□□□□□□
弊社、不動産Agent 六棒株式会社では、
□リノベーションマンションはほぼ全て仲介手数料無料!
□その他一般仲介物件は仲介手数料20%~30%OFF!
にてお取り扱いしております!※弊社の「Agent Fee=仲介手数料」についてはご案内、ご面談の際に営業担当者よりご説明いたします!
なるべく沢山のお部屋をホームページに掲載したいと思っておりますが、時間的成約もございますので、残念ながらご紹介できるお部屋の一部しか掲載できておりません。
このホームページに掲載中のお部屋、その他サイト等で気になるお部屋、街を歩いていて気になったマンション等々ございましたら是非、弊社営業部までご相談ください!
~不動産Agent 六棒株式会社の特徴~
・一般仲介物件の仲介手数料は20%~30%OFFにてご案内中です!
・リノベーションマンションについてはほぼ全て仲介手数料無料です!
・住宅ローンに自信あります!
・頭金10万円より購入できます。是非ご相談下さい!
・お部屋のご見学は車で2~3件まとめて案内します!
・物件数3000件以上、新築戸建、リノベ物件も多数ご用意しております!
過去に販売していたお部屋の概要 このお部屋の販売は終了いたしました。
| 価格 | -万円 |
| 面積 | 74.42㎡ |
| 間取り | 3bedrooms(3LDK) |
| 管理費 | 月額9,700円 修繕積立金:月額11,200円 |
| 所在階 | 6階 |
| お問い合わせ・ご内見のご予約はこちらからお気軽にどうぞ | |
こちらが今回ご紹介させて頂くお部屋の間取りです。
クリックすると別タブで開くことも可能なので、ぜひ間取り図とお部屋比較しながら見ていただければと思います!
エレベーターからお部屋までは外廊下を歩いて行きます。
ホテルのような内廊下と違って、雨の日は濡れてしまうかもしれませんが、臭いや湿気が籠らないので個人的には内廊下よりもお勧めです。
柵から先がお部屋の専有部、ポーチです。
自分の場所!ではありますが共用廊下から見える場所でもありますのでスッキリ、綺麗に保ちたいものですね!!
お部屋の前まできました。
玄関前にはカメラ付きのインターフォンが付いているので、お部屋の中から廊下の様子を確認することができます。
玄関入って右手ににはシューズボックスが設置されています。
中の棚が自由に調節可能なので背の高いブーツなども型崩れなく収納できますよ。
セパレートタイプなので、中央はカウンターとして使用することが出来ます。
それでは廊下を奥まで進んでいきましょう。
突当りのドアを開けると・・・
リビング・ダイニング・キッチンです!
LDKは約14.3帖の広さです。
窓からの光がお部屋を明るく照らしてくれています。
続いてはキッチンです。
キッチンには浄水器能付きの水栓、3口のグリル付きガスコンロが付いています。
水栓はシャワーヘッドになっているので、シンクの隅々まで水を流すことができますし、大きなお鍋などに水を注ぐ際にも、容器を傾ける必要が無いので地味に助かります。
コンロ系はグリルが付いていれば個人的には満足です!!
足もとの収納は引き出しタイプです。
デッドスペースが生まれにくく、奥まで無駄なく使用することが出来るので散らかりがちなキッチン回りもすっきりと綺麗に保つことが出来るのではないでしょうか??
仕切り等を上手に使って、急な来客でもあわてることの無いキッチンにしましょう。
吊戸棚も付いているので、キッチン回りの小物の収納場所には困りそうにありませんね!!
次はキッチンのお隣のこちら。
こちらは洗面室ですね!
ピカピカの洗面台が付いています。
水栓はビルドインタイプになっているので、洗面ボウル付近の空間を広く使うことが出来ます。
通常の水栓と違い根本に汚れが溜まりにくいのでお手入れも簡単になりますよ。
脱衣所も兼ねている場所ということで、洗濯機置場もありますよ。脱いだお洋服をすぐに洗濯することが出来るので、お部屋の中が洗濯物で散らかる事も無くなりそうです。
次はお風呂です。
濃いブラウンの壁が特徴的な浴室です。
落ち着いた雰囲気が漂っています。
もちろん追い焚き機能もついています。
いつでも熱いお風呂に入ることが出来るのは風呂好きにはたまりませんね!
お休みの日は一日中お風呂で過ごしたくなる人もいるのではないでしょうか??
それでは廊下を進んでいきましょう。
次の扉を開けるとトイレになっていました。
タンクレスタイプなので空間が広く見えますね。
もちろんウォシュレット機能付きです。
吊戸棚もあるので、トイレットペーパー等の消耗品はこちらに収納することが出来ますよ。
トイレのお向かいのドアを開けると・・・
こちらは納戸となっています。
約2.2帖もの広さがあるので季節ものの家電や雑貨などはこちらにまとめておきましょう。
納戸からは・・・
洋室へと出ることもできます。
約6.4帖のこちらのお部屋。
外の廊下に面した窓が付いています。
納戸から入ってきましたが、もちろん廊下からも入ることができますよ。
廊下を挟んで反対側には・・・
もう一つ洋室がありました。
約5.1帖の洋室です。
こちらは子供部屋としてお使い頂くのが良さそうですね。
大容量のウォークインクローゼット付です。
かなりの収納力があるので、お部屋の中に収納用の家具を置かなくても良さそうですね。
スペースを広く使うことが出来るので、収納付きのお部屋はありがたいです。
それではリビングへと戻りましょう。
最後のお部屋となりました。
こちらは約6.0帖の洋室です。
バルコニーに面した窓が付いているので、とても明るいお部屋になっています。
クローゼットも付いているので、お洋服などはこちらに掛けておくことが出来ますよ!!
バルコニーへ出てみましょう!!
サッシも新しいですね。
2部屋にまたがるワイドバルコニーです。
洗濯物を干してもまだ余裕がありそうですよ!
西向きではありますが、空の広さはご覧の通り!!
マンションの駐車場を挟んで建物もありますが6階ともなると圧迫感を感じる事もありません。
駐車場なので、クルマの音が気になることもなさそうです。
では、以上でアルファスシティ大島のご案内を終わります。
いかがでしたでしょうか??
大島駅から徒歩16分のマンションです。
リノベーション済みという事で室内はとてもキレイですよ (っ・ω・)っ
内見のご予約やご質問などございましたらお気軽にお問い合わせくださいませ。
ご連絡お待ちしております。
弊社、不動産Agent 六棒株式会社では、
□リノベーションマンションはほぼ全て仲介手数料無料!
□その他一般仲介物件は仲介手数料20%~30%OFF!
にてお取り扱いしております!※弊社の「Agent Fee=仲介手数料」についてはご案内、ご面談の際に営業担当者よりご説明いたします!
なるべく沢山のお部屋をホームページに掲載したいと思っておりますが、時間的成約もございますので、残念ながらご紹介できるお部屋の一部しか掲載できておりません。
このホームページに掲載中のお部屋、その他サイト等で気になるお部屋、街を歩いていて気になったマンション等々ございましたら是非、弊社営業部までご相談ください!
~不動産Agent 六棒株式会社の特徴~
・一般仲介物件の仲介手数料は20%~30%OFFにてご案内中です!
・リノベーションマンションについてはほぼ全て仲介手数料無料です!
・住宅ローンに自信あります!
・頭金10万円より購入できます。是非ご相談下さい!
・お部屋のご見学は車で2~3件まとめて案内します!
・物件数3000件以上、新築戸建、リノベ物件も多数ご用意しております!
過去に販売していたお部屋の概要 このお部屋の販売は終了いたしました。
| 価格 | -万円 |
| 面積 | 74.42㎡ |
| 間取り | 3bedrooms(3LDK) |
| 管理費 | 月額9,700円 修繕積立金:月額11,200円 |
| 所在階 | 3階 |
| お問い合わせ・ご内見のご予約はこちらからお気軽にどうぞ | |
こちらが今回ご紹介させて頂くお部屋の間取りです。
74.42㎡の3LDKです。
クリックして頂ければ別タブで開きますので、間取り図と見比べながら進んでいくのもありですよ!
それではさっそくお家にいってみましょう!!
エレベーターを降りてお部屋までは外廊下が続いています。
ホテルのような高級感のある内廊下も魅力的ではありますが、なんといっても臭いや湿気の籠らない外廊下には代えがたい魅力があります。
こちらが今回ご紹介させて頂くお部屋の間取りです。
玄関前にはポーチが付いています。
小さなお子様がいるご家庭ならベビーカーなどを一時駐車することも出来そうですね。
他の住人の方も見える所なので、綺麗に使いたいところです。
それではお部屋の中に入っていきましょう!!
ピンポーン!!おじゃましまーす!!
さすがリノベーション済みのお部屋ですね!!
ドアを開けた瞬間からピカピカです!!
玄関には姿見の付いたシューズボックスが付いているので、お出かけ前は玄関でコーディネートの最終チェックをすることができますよ。
中の棚は高さを調節することが出来るので、ブーツなどの背の高い履物でも収納することができます。
照明には人感センサーがついているので、玄関ドアを開ければパッと空間が明るくなります。暗闇の中、手探りでスイッチを探す手間ともオサラバです。
お家の第一印象が決まる玄関ですので、整理整頓を心がけたいです。
それでは玄関を後にして、廊下を進んでいきましょう。
突当りまで進んでいきますよ!!
廊下突き当りのドアを開けると、こちらはリビング・ダイニング・キッチンです。
広さは約14.2帖。
東向きの窓から明るい光が入ってきますよ。
フローリング・クロスも張替えられているので気持のいい空間になっています。
家族のだんらんの場所にピッタリですね!
リビングのお隣には・・・
和室になっていました!
約6.0帖の和室はリビングとスライド式のドアで仕切られています。
開けていればリビングの一部として、閉じていれば1つのお部屋としても使用することが出来るので状況に応じて使い分けていきたいですね。
畳の香りってそれだけでリラックス効果があると思いませんか??
最近は畳の無い物件も増えてきましたが、やっぱりあるのと無いのとでは大違いです。
押入れもついていますよ!
ドラえもんごっこをすることができます。
大人になっても、童心にかえってみることは重要だと思いますよ!
次はキッチンを見てみましょう!!
キッチンはリビングから独立したつくりになっています。
お料理の香りが他のお部屋に移る事もなさそうです。
水栓は浄水機能付きです。シャワーヘッドになっているので、大きなシンクの隅々まで水を流すことが出来ます。
コンロはグリル付きの3口ガスコンロ。食器洗浄機も付いているので、面倒なお食事後の洗い物もボタン一つで済ますことが出来ますよ!手洗いでは扱えないくらいの高温のお湯を使って洗うので、思っている以上に綺麗に洗ってくれますよ。
足もとの収納は引き出しタイプになっています。
デッドスペースが生まれにくく、奥まで無駄なく使うことが出来るので見た目以上の収納力を誇ります。
吊戸棚もあるので、キッチン回りの備品もすっかり収納することが出来そうです。
キッチンの奥にも出入口があるので、そちらから出てみましょう。
玄関からリビングへ向かう廊下へ出てきました。
それではリビングから廊下を順にすすんでいきましょう!!
先ずはこちら。
左手には大きな収納スペースが。
奥行は無いので日常的に使う雑貨や小物を収納するのが良いかもしれませんね。
収納の正面にはこちらのドア。
こちらは洗面室です。
洗面化粧台は新規交換済み。
3面鏡タイプなのでメイク時に左右のバランスを同時に確認することが出来ます。メイクはバランスが大事です。左右同じ位置に、同じ濃さでチークがあるかを確かめるためには、同時に左右をチェックできなければいけないのです。
水栓はシャワーヘッドになっています。
洗面ボウルの隅々まで水を流すことが出来ますし、簡単な洗髪ならわざわざお風呂まで行く必要もありませんよ。
ミラーの内部は収納スペースになっているので、歯ブラシや基礎化粧品などはこちらに収納しておきましょう。
後ろを振り返ると洗濯機置場になっています。
脱所も兼ねている場所なので、脱いだ洋服はすぐに洗濯することが出来そうです。
サイドには棚も付いているので洗剤など洗濯グッズの置き場所にも困りませんね!
次はお風呂です。
浴室には換気乾燥機能が付いているので、入浴後の湿気はすぐに取り除くことが出来ます。湿気は各建材の劣化・カビの原因にもなるので、入浴後はなるべく使いたい機能ですね。個人的には最低でも24時間換気はONにしておきたいところです。
鏡面仕上げのパネルが使われているので、高級感がありますね。
光が反射するので、空間を実寸以上に広く見せてくれる効果もあるそうですよ!
もちろん追い焚き機能付きです。
深夜の帰宅でも、熱いお風呂に入れると心も体もリフレッシュすることが出来そうです。
お休みの日は朝からお風呂に入るのもプチ贅沢な気分を味わうのも良さそうです。
浴室には照明切り替えスイッチというものが付いています。
その日の気分に合わせて暖色と白色に2種類の光を選ぶことが出来ますよ!
次はこちら。
トイレです。
TOTOのウォシュレット機能付きのトイレです。
トイレといえばTOTOと言われるほど、トイレを扱うメーカーの中でもTOTOは、一番人気の高いメーカーになります。製品によっては、価格が安いほど人気が高いという事も多いですが、トイレ市場では、より高級なメーカーであるTOTOが圧倒的な人気を誇っています。
廊下を挟んでトイレの正面にも収納スペースを発見しました。
リビングの入口に合った収納よりも奥行があるので、掃除機のような家電も収納することが出来そうですね!棚板も高さを調節可能なので、大抵のものは入れてしまうことが出来そうです。
次はこちら
玄関前のお部屋です。
こちらの洋室は約5.0帖の広さです。
出窓が付いているので、窓際は小さいながらもカウンター状になっています。
クローゼットも付いています。
お部屋の中に収納用の家具をか無くても良いので、空間を広く使うことができますよ!
次は反対側のこちら。
約8.1帖の洋室になっています。
これ位の広さがあれば主寝室としての使用も問題なさそうです。
クローッゼット付きです。
ハンガーポール付きで、かなりの量のお洋服を掛けることが出来そうです。
時間のかかる面倒な衣替えもあっという間に終りそうですよ!
それではリビングに戻ってきて、最後にバルコニーを見てみましょう!
リビング・和室の2部屋分の広さがあるワイドバルコニーです。
洗濯物を干してもまだ余裕のある広さがありますね。
正面には隣の建物が建っていますが、陽当りには問題なさそうです。
間の前はマンションの駐車場なので、交通量も気にする必要はありません。
とても閑静な雰囲気です。
では、以上でアルファスシティ大島のご案内を終わります。
いかがでしたでしょうか??
大島駅から徒歩16分のマンションです。
リノベーション済みという事で室内はとてもキレイですよ (っ・ω・)っ
内見のご予約やご質問などございましたらお気軽にお問い合わせくださいませ。
ご連絡お待ちしております。
弊社、不動産Agent 六棒株式会社では、
□リノベーションマンションはほぼ全て仲介手数料無料!
□その他一般仲介物件は仲介手数料20%~30%OFF!
にてお取り扱いしております!※弊社の「Agent Fee=仲介手数料」についてはご案内、ご面談の際に営業担当者よりご説明いたします!
なるべく沢山のお部屋をホームページに掲載したいと思っておりますが、時間的成約もございますので、残念ながらご紹介できるお部屋の一部しか掲載できておりません。
このホームページに掲載中のお部屋、その他サイト等で気になるお部屋、街を歩いていて気になったマンション等々ございましたら是非、弊社営業部までご相談ください!
~不動産Agent 六棒株式会社の特徴~
・一般仲介物件の仲介手数料は20%~30%OFFにてご案内中です!
・リノベーションマンションについてはほぼ全て仲介手数料無料です!
・住宅ローンに自信あります!
・頭金10万円より購入できます。是非ご相談下さい!
・お部屋のご見学は車で2~3件まとめて案内します!
・物件数3000件以上、新築戸建、リノベ物件も多数ご用意しております!
過去に販売していたお部屋の概要 このお部屋の販売は終了いたしました。
| 価格 | -万円 |
| 面積 | 88.75㎡ |
| 間取り | 3bedrooms(3LDK) |
| 管理費 | 月額:11,500円 修繕積立金:月額13,300円 |
| 所在階 | 2階 |
| お問い合わせ・ご内見のご予約はこちらからお気軽にどうぞ | |
ここからは営業部:大島がご案内させて頂きます。
こちらが今回ご紹介させて頂くお部屋の間取りです。
クリックして頂ければ別タブで開きますので、間取り図と見比べながら進んでいくのもアリですよ!!
それではお部屋に参りましょう!!
エレベーターを降りるとお部屋までは外廊下が続いています。
嫌な湿気や空気が籠らないので、気持ちよく過ごすことが出来ますよ!!
高級感のある内廊下も捨てがたいですが、個人的には外廊下をオススメします。
各お部屋の前にはポーチが付いています。
小さなお子様がいるご家庭ならベビーカーなどを一時駐車することも出来そうですね。
他の住人の方も見える所なので、なるべく綺麗に使いたいところです。
玄関横のインターフォンはカメラ付きです。
それでは中へ入っていきましょう!!
おじゃましまーっす!!
リフォーム済みの物件なので、玄関からピカピカです。
玄関入ってすぐ右手にあるシューズボックスはセパレートタイプです。
中央をカウンターとして使うことが出来るので、鍵や帽子などはこちらに置いても良いかもしれません。
お花や絵などを飾る場合は、お部屋の第一印象を決める場所でもあるのでなるべくセンスの良いモノを選びたいですね!
それでは奥まで進んでいきましょう!!
何やら扉がたくさん見えますが、まずは廊下突き当りのスリットの入ったドアを開けてみます。

こちらはリビング・ダイニングです。
広さは約16.0帖、南向きの窓からは明るい光が入って来ています。

左側の窓は出窓になっているので、窓際にお花などを飾っても良いかもしれませんね!
次はキッチンを見てみましょう!!
3口のグリル付きのガスコンロ、大きなシンクを備えた水栓があります。
ガスコンロのグリルの一番の特長は、「直火」と「対流熱」のW加熱を同時にできること。「直火」で食材の表面をこんがり香ばしく焼き上げながら、300~400℃にもなるグリル庫内の「対流熱」が包み込むように加熱するので、お肉料理も柔らかく仕上げることができます。
収納スペースもご覧の通り。
足もとの収納は引き出しタイプになっているので、デッドスペースが生まれにくく、奥まで無駄なく使うことが出来ます。
取り出しも屈まなくていいのでとても楽にできますよ!
スペースも広めにとってあるので、食器棚等を置いてもまだ余裕がありそうです。
それではキッチンから出ていきましょう。
リビングと反対側からも出ることが出来るので、そちらから。
右側が玄関突当りのドアですよ!
それでは改めて、リビングから玄関方面へ向かっていきましょう!!
先ず左手には大きな収納があります。
かなりの容量があるので、生活雑貨などはほとんどこちらに収納してしまうことが出来そうです。
次はこちら。
ドアを開けてみると、中は洗面室になっていました。
洗面室は脱衣所も兼ねています。
洗濯機置場があるので、脱いだ洋服はすぐに洗うことが出来ますよ!
ビルドインタイプの棚もあるので、洗剤などの置き場所にも困りません。
洗面化粧台は3面鏡タイプです。
3面鏡はほぼ同時に顔の両側が見られるので左右のバランスが分かりやすく、メイクがしやすいですよ。
水栓はシャワーヘッドになっているので、大きな洗面ボウルの隅々まで水を流すことができます。お掃除にも役立ちます。
次はお風呂です。
白で統一された、清潔感のある浴室です。
大きな浴槽にタップリのお湯を入れれば、気持ちのいい入浴タイムを過ごすことが出来そうです。
追炊きもできるので、お休みの日は朝からお風呂を楽しんでも良いかもしれませんね!!
次はこちらです。
トイレはウォシュレット機能付き。
リモコンタイプなので操作性も良さそうですね!
トイレを出て廊下の反対側には小さな収納がありました。
収納が細かくたくさんあるのは、家をスッキリ保つポイントです。
棚板は外す事が出来るので、掃除機等を収納することも可能です。
次はこちら。
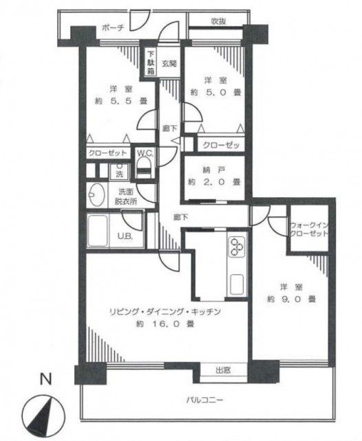
こちらは西側の約5.5帖の洋室です。
こちらのお部屋は収納付きです。
ハンガーポールも付いているので、お洋服もたくさんかけておく事が出来ますよ!!
廊下を挟んで反対側です。
こちらの洋室は約5.0帖の広さです。
3つある洋室の中で一番小さいお部屋ではありますが、それでもこれだけの広さがあるのはありがたいです。
もちろんクローゼットが付いています。
十字に仕切りが付いているので、衣装ケース等を上にあげておくこともできそうです。
それではまた廊下をリビング方面へ戻りましょう!
右側がキッチンです。
左側のドアを開けてみましょう!!
はい!!
廊下を挟んでキッチンの正面は納戸になっています。
「納戸の室温は今何℃??」みたいなジョークもここならいくら言っても白い目で見られる事はありませんよ!!
それでは最後のお部屋を見てみましょう!!
こちらの洋室は約9.0帖の広さがあります。
大きな窓が付いているので、明るいお部屋になっていますよ!
こちらのお部屋にはウォークインクローゼットが付いています。
ハンガーポールも2本付いているので、大量にお洋服を収納することが出来そうです。
時間のかかる面倒な衣替えもあっという間に終りそうですね!!
最後にバルコニーへ出てみましょう!!
リビングと9.0帖の洋室、2部屋分の幅があるワイドバルコニーです。
洗濯物を干してもまだ余裕がありそうですね!!
正面のマンションとは距離が離れているので、陽当たりには影響ありません。
南向きのバルコニーなので、晴れていればとても明るい光が差し込んできますよ!!
目の前の道路は交通量少な目。通るのはほとんどが自転車なので、交通音は気になりませんよ!!
では、以上でアルファスシティ大島のご案内を終わります。
いかがでしたでしょうか??
大島駅から徒歩16分のマンションです。
リノベーション済みという事で室内はとてもキレイですよ (っ・ω・)っ
内見のご予約やご質問などございましたらお気軽にお問い合わせくださいませ。
ご連絡お待ちしております。
過去に販売していたお部屋の概要 このお部屋の販売は終了いたしました。
| 価格 | -万円 | |
| 面積 |
|
|
| 間取り | 3bedrooms(3LDK) | |
| 管理費 | 月額10,000円 修繕積立金:月額11,500円 | |
| 所在階 | 7階 | |
| お問い合わせ・ご内見のご予約はこちらからお気軽にどうぞ | ||
こちらが今回ご案内させて頂くお部屋の間取りです (ノ∀`○)
クリックして頂ければ別タブで開きますので、間取り図を見ながら進んで行きましょう!!
エレベーターを降りるとお部屋までは外廊下が続いています。
台風の日などは大変なことになりますが、湿気や臭いが籠らないので個人的にはオススメです。
高級感のある内廊下もたくさん良い点はあるんですけどね!!
柵から先がお部屋の専有部です( ー`дー´)
自分の場所!ではありますが共用廊下から見える場所でもありますのでスッキリ、綺麗に保ちたいものですね!!
玄関の外にはカメラ付きのインターフォンが付いています。
エントランスにオートロック付いていますが、ここまでのビッグコミュニティ―ともなると何が何やらとなる可能性もあります。
たまに訪問先の部屋番号を間違える人もいますし、まずはお部屋の中から確認してくださいね(っ´∀`c)
シューズボックスには姿見が付いています。
お出かけ前のコーディネートチェックはバッチリですね!!
中の棚は高さの調節ができるのでブーツなどの背の高い履物でも収納可能ですよ(・ω・)b
玄関照明には人感センサーが付いているのでドアを開ければ勝手に明るくなりますよ!
お買い物帰りで両手が塞がってる時には大助かり、もちろん人がいない時は自動でオフになるので経済的でもありますね(☆Д☆)
スッキリ、シンプルな玄関でした!!
それでは玄関を後にして先へと進みましょう!
-=≡ヘ(*・ω・)ノ-=≡ヘ(*・ω・)ノ
-=≡ヘ(*・ω・)ノ-=≡ヘ(*・ω・)ノ-=≡ヘ(*・ω・)ノ-=≡ヘ(*・ω・)ノ
廊下の突き当たりにあるこちらのドアを開けてみます!!
こちらは・・・・ ザワザワ ザワザワ
リビング・ダイニング・キッチンですッッッ!!!
広さは約15.8帖!!タップリ余裕のある空間ですね!!
窓も大きいので晴れていれば自然光だけで十分にお部屋が明るくなります
お部屋の外に青空が広がっているのはやはり気持ちがいいですね
リビングのカウンターはダウンライトで照らされています。
観葉植物や絵画、洋書などなどオシャンティーなものを飾ってセンスの良さを見せつけましょう!!
ダイニングテーブル。
テーブルは窓際に寄せて、キッチンカウンター前にハイチェアーを置いてBAR風にする妄想が最近のマイブームです。。。
ソファーの後ろに何やらドアが・・・
ドドン!!
こちらはリビングの隣の洋室です。
広さは約5.5帖。
リビングとはスライド式のドアで仕切られています。
大人数の来客があった際などは開けた状態にしておけば、仲間はずれ感も多少はやわらぎそう (*’д`*)
ウォークインクローゼットが付いていますね・・・
1帖前後の広さは有るのでしょうか?
とりあえず中で寝れる位の広さはありました!!
こちらの洋室からは廊下へも出ることができます (・`ω´・ ○)
このような感じです。
位置関係は写真で伝わりますよね!!?
次はキッチンに行きましょう!!
浄水器付きの水栓はシャワーヘッド、他には3口のグリル付きガスコンロや食器洗浄機などの設備が付いています。
グリルがあればお魚、お肉はもちろん、ピザやグラタン、パンも焼けてしまいますよ!!
使いこなせばお料理のレパートリーもグググッ!と増えますね!!
まぁ、寒い時期は秋刀魚のヘビーローテーションで大満足なのですけどね!!
足元の収納は引き出しタイプになっています(・ω・)b
奥まで無駄なく使用することが出来るのでデッドスペースが生まれにくくなっていますよ。
フライパンなどはスタンドを使って立てて置くことで、取り出しも簡単です!!
何より腰に優しいのがうれしいデス!!
キッチンからはご覧のような景色です。
お料理中でもご家族との会話が楽しめそうですね!!
家族の団欒はキッチンが中心になりますよ 。゜+.(o´∀`o)゜+.゜
ではキッチンを後にして、
廊下へ!!
一つ目のドアを開けてみましょう。
こちらは洗面室すね!!
洗面室には洗濯機置場もあります (`ω´)
脱衣所を兼ねているスペースなので、抜いだお洋服をすぐに洗濯することが出来ますよ!!
棚も付いているので洗濯小物の収納場所にも困りません!!
高さの調節が可能な棚が付いています。
タオル等を置く際はカゴ等を使ってスッキリととめたいですね!!
水栓はビルドインタイプです。汚れが溜まりにくいのでお手入れもカンタン、シャワーヘッドにもなっていますよ (・`ω´・ ○)
洗髪もできますし、洗面ボウルの隅々まで水を流すことができるのでお掃除も捗ります。
ミラーの内部はキャビネットになっているのでハブラシや基礎化粧品などの小物を収納することができますよ。
足元の収納は掃除用具等を入れても良さそうですね ( `д´)b
引き出しも付いているので、散らかりがちな洗面周りもすっきりと保てそうです。
次はお風呂。
浴室には換気乾燥機能が付いているので、雨の日はこちらで洗濯物を干すことが出来ます。
地涌の時期などには大助かりですねヾ(゚ ▽゚*)
カビの抑制にもなるので、なるべく毎日使いたい機能でもあります。
木目を活かした濃いブラウンの浴室は大人の落ち着きがあります ( ・`ω・´)
追い焚き機能が付いているので、いつでも熱いお風呂に入ることができます。
大きなミラーで浴室も広く見えますし、一日の疲れを取り、リラックスする所としてはもってこいの場に成りそうですヽ(゚▽゚*)乂(*゚▽゚)ノ
廊下に戻ります。
こちらは先ほどの洋室ですね。。。
次はこちら!!
TOTOのウォシュレット付きのトイレですね!!
繊細かつしっかり洗ってくれるTOTOのウォシュレットの性能の高さは口コミサイトなどでも評価が高いです。
おしり洗浄を使うとき決死の覚悟で構えているにも関わらず、水が出たとき「うわっ、キタ━━━━(゚∀゚)━━━━!! 」とおしりを浮かしてしまった経験はあるでしょうか??
TOTOならたとえ洗浄力を「強」にしていても、出てきた水にびっくりすることはほとんどありません。
毎回の洗浄前に一度管内に水を通してノズルを洗ってくれる機能も嬉しいですね(´∀`)
廊下には収納も付いています。
棚の高さを変えることが出来るので、掃除機なども入れることが出来ますよ
ここの収納は全体の中心に位置していますので、普段よく使うものを入れるのがいいかもしれません( ー`дー´)
次はこちら。
こちらの洋室は約6.2帖の広さがあります。
主寝室ってかんじですね~
これだけの広さがあればダブルベッドも置くことが出来ますよ (○´ω`○)
お部屋の角にはウォークインクローゼットが付いています。
タンスなどを置かなくてもいいので、お部屋の中が広く使えそうですね!!?
これは嬉しいですo(*>Д<)ゝ
こちらは最期にご紹介させて頂くお部屋。
3つの洋室の中では一番小さい、といっても約5.3帖の広さがあります。
こちらにもウォークインクローゼットが付いています。
大量のお洋服を掛けることが出来るので、面倒な衣替えもあっという間に終りそうですね!!
ではリビングに戻って、
バルコニーです。
すでに暖かな雰囲気が出ていますね (´∀`*)ノ
眺望、陽当たりは説明しなくても良いですよね??
もう見たまま、さすが南向きのバルコニーです (☆Д☆)
このくらいの方向、ずっと先に羽田空港があります。
風向き、天気などによっては飛行機が見えるかもしれませんね!!
では、以上でアルファスシティ大島のご案内を終わります。
いかがでしたでしょうか??
駅からは少し距離のある立地ですが、充実した共用施設が特徴のマンションです。
リフォーム済みという事で室内はとてもキレイですよ (っ・ω・)っ
内見のご予約やご質問などございましたらお気軽にお問い合わせくださいませ。
ご連絡お待ちしております。
弊社、不動産Agent 六棒株式会社では、
□リノベーションマンションはほぼ全て仲介手数料無料!
□その他一般仲介物件は仲介手数料20%~30%OFF!
にてお取り扱いしております!※弊社の「Agent Fee=仲介手数料」についてはご案内、ご面談の際に営業担当者よりご説明いたします!
なるべく沢山のお部屋をホームページに掲載したいと思っておりますが、時間的成約もございますので、残念ながらご紹介できるお部屋の一部しか掲載できておりません。
このホームページに掲載中のお部屋、その他サイト等で気になるお部屋、街を歩いていて気になったマンション等々ございましたら是非、弊社営業部までご相談ください!
~不動産Agent 六棒株式会社の特徴~
・一般仲介物件の仲介手数料は20%~30%OFFにてご案内中です!
・リノベーションマンションについてはほぼ全て仲介手数料無料です!
・住宅ローンに自信あります!
・頭金10万円より購入できます。是非ご相談下さい!
・お部屋のご見学は車で2~3件まとめて案内します!
・物件数3000件以上、新築戸建、リノベ物件も多数ご用意しております!










































































































































































































































































































































弊社 公式HP
六棒総合研究所
掲載予定物件
価格変更と販売終了物件
ハザードマップ検索
適合証明書.jp
Instagram