□□□□□□□□□□□□□□□□□□□□□□□□□□□□□□□□□□□□□□□
いつも弊社ホームページをご覧頂き誠にありがとうございます。
エンゼルハイム高井戸はお陰様で販売を終了致しました。弊社問合せフォームにてご要望頂けましたら、当お部屋でキャンセル等が発生した場合、他のお部屋が販売になりました際にご紹介させて頂きます。
弊社では、仲介手数料無料orお値引(50%off、30%off、20%off)にて皆様のマイホーム探しのお手伝いをさせて頂きいております。エンゼルハイム高井戸の類似物件や、お探しのご条件等をお聞かせ頂けましたらご条件に合ったお部屋をご紹介させて頂きます。また、ご来社頂き一緒に探させて頂くことも可能ですので、是非弊社問合せフォームよりお気軽にお問合せください。
不動産Agent 六棒株式会社
TEL:03‐5413‐5336
□□□□□□□□□□□□□□□□□□□□□□□□□□□□□□□□□□□□□□□
今回は京王井の頭線「高井戸」駅から徒歩6分の『エンゼルハイム高井戸』を紹介します。
京王井の頭線「高井戸」駅は渋谷駅まで約20分、人気の吉祥寺駅までは約10分というアクセスの良さが魅力的です☆
駅前には環八通りが南北に走っており、首都高・中央自動車道の高井戸インターも近いので、カーユーザーの方にとってもとても便利な場所です(^o^)
駅前にはスーパーが2軒あります。駅ビルの高架下には「キッチンコート(京王ストア)」、駅から少し北に歩くと「オオゼキ」。キッチンコートは夜11時半まで、オオゼキは夜9時までの営業でなので、ゆっくりとお買いものできます。
残業帰り、飲み会帰りのダンナ様に「牛乳と卵と、、、」とお使いを頼む事もできますね(*^^)v
オオゼキの隣にはスーパー銭湯「美しの湯」があります。
深夜0時まで営業しているので、たまにはお仕事帰りに一人でゆっくりと、お休みの日にご家族でワイワイと大きなお風呂を楽しむのも良いですね(*^。^*)
美しの湯の隣には高井戸小学校があります。こちらが学区内の小学校です。
マンションからは環八通りを真直ぐ。学校までほとんど歩道を歩けるので、とても安心です(^v^)
マンションの近く(環八通りの向かい側)には「区立ゆうゆう上高井戸館」と「医学中央雑誌図書館」があります。医学中央雑誌図書館は専門書が並ぶ図書館なので、あまりお使いになる機会がないかもしれませんが、ゆうゆう上高井戸館は60歳以上の方達の趣味を楽しむ場所として、お使いになれるので、将来お使いになる事があるかもしれませんね(^o^)
少し南に行くと、家電量販店の「ヤマダ電機」があります。歩ける距離にあるので、ご入居してからはお世話になりそうです☆
また、環八通り沿いには飲食店やコンビニが多く出店しています。
ガスト、フォルクスといったファミリーレストランや、マンションの隣にはすき家があって、ご家族で気軽に外食を楽しんでいただけます☆
マンションは環八通りに面していて、人通りも多い場所なので「真っ暗な夜道」を歩く事なく駅からマンションまで歩く事が出来ます☆
白いタイル貼りの建物は昭和58年12月築。新耐震基準に適合しています♪
エントランスは環八通りに面しています。エントランスから入り、エレベーターを上がってお部屋に行くことも、エントランス右側の外階段を上って行くこともできます(^^)/
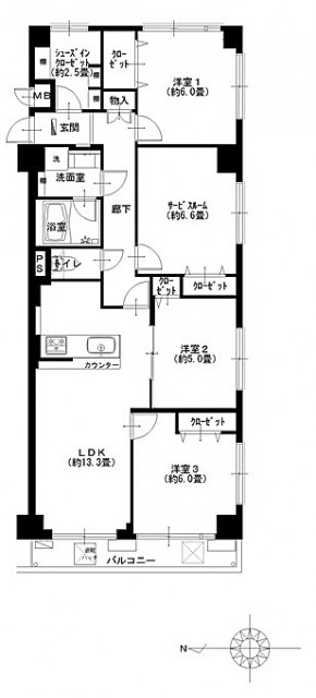
では間取りの紹介です。
84.96㎡ 3SLDKの広いお部屋です。
室内は平成27年4月にリノベーション工事を終えたばかりなので、とても綺麗です。
リノベーション内容は以下の通りです。
■給湯器交換
■システムキッチン交換
■ユニットバス交換
■洗面台交換
■トイレ交換
■全室クロス張り替え
■全フローリング張り替え
■全建具交換
■フロアタイル張り替え
■下足入れ交換
■洗濯水栓器具交換
■防水パン交換
■スイッチパネル交換
■ダウンライト設置
■照明器具取り付け
■インターフォン交換
■エコカラット設置
■玄関人感センサー取り付け
■ハウスクリーニング
玄関を開けると、縦に長い玄関ホールが広がります。真新しいクロスが真っ白でとてもまぶしく感じました☆
玄関左側にはシューズインクローゼットがあります。約2.5帖の室内には棚がたくさん♪
靴をたくさん持っている方なら、シーズンオフの靴も含めてたっぷり収納できますし、靴だけではなく、ゴルフバッグや旅行バッグ等々、大きな物まで置いておけるゆったりとしたクローゼットです☆
玄関右側にはニッチがあります。お気に入りの絵や写真を飾っておけば、ステキな玄関ホールになりますね♪
廊下にあがって、左側に物入れがあります。
棚板が可動式なので、ご家族でお使いになる物を収納しておくととても便利です(*^^)v
物入の隣のドアは6.0帖の洋室です。東側・南側に窓があるので、室内はとても明るく開放感がありました(^v^)
北側にはクローゼットがあります。とても奥行きがあるクローゼットで、ハンガーパイプが前後に2本あるので、春夏物・秋冬物をシーズンごとに前後入れ替えが出来て収納しやすいクローゼットです。
廊下を進むと、右側にサニタリールームがありました。とても明るく清潔な室内です☆
洗面台はシンクの両側がカウンターになっているので、歯ブラシ、タオル、コンタクトレンズ等々いっぺんに置けて、お出かけ準備がラクラクです♪
洗濯機置場は洗面台の隣にあります。上部に棚はありませんが、隣に大きな棚がありますので、
バスルーム用品と一緒に洗濯用品もこの棚にスッキリと収納できますよ(*^。^*)
バスルームはアイボリーのパネルが落ち着いた雰囲気を演出しているゆったりとした造りなので、のんびりとバスタイムを楽しんでいただく事が出来ます(^o^)
浴室換気乾燥機付なので、雨の日のお洗濯も安心してできますし、涼風・暖房機能もあるので、暑い日・寒い日のバスタイムも快適です☆
サニタリールームの隣にはトイレがあります。
上部に吊り棚が設置されているので、トイレットペーパー等を床に置かずに清潔にお使い頂けます(^o^)
トイレの向かい側のドアは6.6帖のサービスルームです。「サービスルーム」とされていますが、エアコンの設置もできますし、何より他の3部屋よりも広いというのが魅力的☆
窓は南側にありますので、室内は明るく照らされています☆
北側にはピクチャーレールが付けられていますので、ステキな絵を飾って“自分色”のお部屋を作ってください(^_-)-☆
西側にはクローゼットも設置されています。左右に大きく扉が開きますので、たくさん洋服を収納できてお部屋の中はスッキリお使い頂けます(^o^)
廊下の突き当りには13.3帖のゆったりリビングダイニングキッチンが広がります。
リビングダイニングキッチンの北側の壁は全面エコカラットになっています。
空気清浄器やエアコンを使わずとも、この壁が室内の湿気や生活臭を吸い取ってくれるので、まさに「エコ」です♪
キッチンはリビングダイニングキッチンスペースの東側。カウンター部分が天井まで抜けているので、キッチンからリビングダイニングが良く見えて、とても開放的です☆
北側の壁にも細長いカウンターがあるので、アレンジ次第で、飾り棚にも収納スペースにもお使い頂けます(^o^)
ワークトップとシンクが広く、お料理がしやすいキッチンです。シンクには浄水器つき水栓、コンロは3口なので、更にお料理がはかどりますね♪
お片付けにはとても便利な食器洗浄機をお使いください(^_-)-☆
キッチン下部の収納スペースには調理器具を入れて頂いて、東側の壁に食器棚を置けば、キッチン内はとてもスッキリ☆
キッチンの南側に引戸があります。引戸を開けると5.0帖の洋室が広がります。こちらも南向きの窓があるので、とても明るいです☆
引戸を開けたままにしておけば、お子様のプレイルームとしてお使い頂けます。お料理しながらでもお子様を見ておくことができるので、安心です♪
クローゼットはおもちゃ入れにお使いください(^_-)-☆
南側、西側に窓があるので、午前も午後もとても明るいお部屋です☆
東側にクローゼットがあります。大きく扉が開きますので、たっぷり収納できて、洋服を探すのもラクラク(^^)/
バルコニーへはリビングダイニングからも洋室からも出ることができますので、とても広く開放的です。フェンスはすりガラスなので、外からこちら側が見えず安心です(^v^)
バルコニーからは周辺の住宅街と大きな青い空が見えました(#^.^#)
周辺には緑が多く、とても気持ちのいい景色でした☆
環八通り沿いとは言え、バルコニーは反対側を向いているので、とても静かです。
全居室が南向きの窓なので、ご家族みなさんのお部屋がとても明るく開放的☆
お部屋が明るいと、ご家族みなさん明るく楽しく過ごせます♪
皆さまからのお問い合わせ、お待ちしております。




















































