・
□□□□□□□□□□□□□□□□□□□□□□□□□□□□□□□□□□□□□□□
いつも弊社ホームページをご覧頂き誠にありがとうございます。
カーサ和泉はお陰様で販売を終了致しました。弊社問合せフォームにてご要望頂けましたら、当お部屋でキャンセル等が発生した場合、他のお部屋が販売になりました際にご紹介させて頂きます。
不動産Agent 六棒株式会社
TEL:03‐5413‐5336
□□□□□□□□□□□□□□□□□□□□□□□□□□□□□□□□□□□□□□□
・
東京メトロ丸ノ内方南支線『方南町』駅から徒歩4分のリノベーションマンション『カーサ和泉』のご紹介です!
『方南町』駅は東京メトロ丸ノ内方南支線の終着駅。新宿駅から中野坂上駅での乗り換えを入れても15分程度というアクセスの良さです♫
駅は、方南通りと環七通りが交わる『方南町交差点』に位置します。地上に出てみると周辺にはどこか懐かしい商店街が広がっています(´∀`*)
こちらの物件のお買い物環境はと言いますと、徒歩1分のところにスーパーの「サミット」、「セブンイレブン」、徒歩2分にドラッグストアと充実のラインナップ♫駅の反対側にはホームセンターもありますよ(o´∀`ノ
カーサ和泉は昭和47年築、8階建て、総世帯数75戸。
大通りより少し道を入ったところにあるので静かな住環境です。
平成22年に大規模修繕工事実施済み。
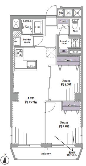
ここで間取り図のご紹介です。
※間取り図は別タブで開きますので、確認しながらご覧いただく事が出来ます。
お部屋は5階、専有面積53.46㎡の1SLDK。多目的に使えるサービスルームやDENの付いたお部屋です。収納が豊富なのも嬉しいですね。お一人暮らしからファミリーまで幅広くお使いいただけると思います。
では、早速行ってみましょう!

こちらはリビング・ダイニング・キッチン。
南西二面採光で陽当たり、通風共に良好なお部屋です。バルコニーに向かってキッチン、ダイニング、リビングと並んだオーソドックスなタイプ。レイアウトもしやすそうですね。

アースカラーでまとめられた室内は落ち着きのある上品な雰囲気。家具もお部屋の雰囲気にぴったりですね。残念ながらこの家具は見本なので付いてはきませんが、飾ってくれると生活のイメージがしやすくて助かります。是非、参考にさせてもらいましょう!

バルコニー側から..

キッチンは開放的なカウンターキッチン。
お料理しながらでもリビングダイニングとのコミュニケーションがとりやすい人気のタイプです。夕食の準備をしながらお子様と今日一日あったことをお話したり、おつまみを作りながらお友達と盛り上がったり・・・♬ システムキッチンには、食器洗浄乾燥機や浄水機能一体型など便利機能も充実していますよ。

こちらは洋室。LDKと同じ南向きバルコニーに面したお部屋です。LDと洋室部分が少し前に出ている関係でこちらのお部屋も二面採光!朝日を浴びて気持ちよく目覚められそうですね(*^^*)入口にはデッドスペースを作らない引き戸を使用したり、ウォークインクローゼットが付いていたりと、お部屋を目いっぱい使えるように工夫されています。

洗面室には洗面化粧台、浴室、洗濯機スペースがひとまとめになっていて、脱衣所も兼ねています。洗面化粧台は三面鏡付。裏はキャビネットになっていて、洗面周りに散らかりがちな細々としたものをスッキリ片付けることが出来ます。

浴室はベージュのパネルの優しい雰囲気で、寛ぎのバスタイムにはピッタリ♬ 浴室換気乾燥機付きなので、お天気を気にすることなく洗濯することも出来ますよ!

トイレはTOTO製の温水洗浄機能付き。最近では当たり前になった洗浄機能ですが、歴史は意外と古く、初登場はなんと前回の東京オリンピックが開催された1964年。当時はまだ和式も多かったので、こんなに普及するとは思わなかったでしょうね(^^)トイレットペーパーのストックに便利な吊戸棚付。

こちらはDEN。
デスクや棚が造り付けになった、書斎やホビールームとして使えるお部屋です。DENってなんの略なのかな?と調べたられっきとした英語なんですね!動物などの巣穴や隠れ家とかの意味だそうです。最近増えているテレワークも、こんなお部屋があれば便利ですね。
・
以上でカーサ和泉のご案内を終わります。
いかがでしたでしょうか??
方南町駅から徒歩1分のマンションです。
リノベーション済みという事で室内はとてもキレイですよ (っ・ω・)っ
内見のご予約やご質問などございましたらお気軽にお問い合わせくださいませ。
ご連絡お待ちしております。
弊社、不動産Agent 六棒株式会社では、
□リノベーションマンションはほぼ全て仲介手数料無料!
□その他一般仲介物件は仲介手数料20%~30%OFF!
にてお取り扱いしております!※弊社の「Agent Fee=仲介手数料」についてはご案内、ご面談の際に営業担当者よりご説明いたします!
なるべく沢山のお部屋をホームページに掲載したいと思っておりますが、時間的成約もございますので、残念ながらご紹介できるお部屋の一部しか掲載できておりません。
このホームページに掲載中のお部屋、その他サイト等で気になるお部屋、街を歩いていて気になったマンション等々ございましたら是非、弊社営業部までご相談ください!
~不動産Agent 六棒株式会社の特徴~
・一般仲介物件の仲介手数料は20%~30%OFFにてご案内中です!
・リノベーションマンションについてはほぼ全て仲介手数料無料です!
・住宅ローンに自信あります!
・頭金10万円より購入できます。是非ご相談下さい!
・お部屋のご見学は車で2~3件まとめて案内します!
・物件数3000件以上、新築戸建、リノベ物件も多数ご用意しております!
★その他、現在販売中のお部屋の概要
| 価格 | 3980万円 |
| 面積 | 51.57㎡ |
| 間取り | 2bedrooms(2LDK) |
| 管理費 | 月額9,100円 修繕積立金:月額9,100円 |
| 所在階 | 2階 |
| お問い合わせ・ご内見のご予約はこちらからお気軽にどうぞ | |
ここで間取り図のご紹介です。
※間取り図は別タブで開きますので、確認しながらご覧いただく事が出来ます。
お部屋は2階、専有面積51.57㎡の2LDK。収納豊富な、お一人暮らしからファミリーまで幅広くお使いいただけるお部屋です。では、早速行ってみましょう。

玄関から廊下にかけては高級感のある大理石貼り!冷たい感じにならない暖色なのがいいですね。廊下の幅も広くてゆとりのある雰囲気です。

こちらは玄関横の洋室。
廊下に面した独立性の高いお部屋です。入口にデッドスペースを作らない引き戸を使用したり、クローゼットを付けて収納家具の必要をなくしたりと、お部屋のスペースを最大限に使えるようになっています。

洗面室には洗面化粧台の他に洗濯機スペースや浴室もまとまっていて、脱衣所も兼ねています。洗面台は身だしなみを整えるのに便利な三面鏡付き。上部の照明のおかげで鏡を見る時に影になることもありません。三面鏡裏のキャビネットをはじめ、サイドの棚、洗面台下のスライドキャビネットなど収納も豊富。洗面周りの細々したものをスッキリ片付けることが出来そうです。

浴室はナチュラルな木目調パネルで温かみのある雰囲気。一日の疲れもすっかり癒されそうですね。追い焚き機能、浴室換気乾燥機などの便利機能もしっかり備えています。

トイレはTOTO製の温水洗浄機能付き。トイレットペーパーなどのストックに便利な棚やカウンターも付いています。

こちらはリビング・ダイニング・キッチン。
南向きバルコニーに面したお部屋です。カウンターキッチン、ダイニング、リビングと並んだオーソドックスなタイプで、レイアウトもしやすそうですね。ダウンライトやスポットライト、間接照明など様々な照明が、シンプルな色使いのお部屋のいいアクセントになっています。


家具付きではありませんが、飾ってもらうと生活のイメージがしやすくて助かります。大きさや色、質感などいろいろ参考にさせてもらいましょう!

ダイニング横にはソファーマットレスが造り付けになっています。ゴロゴロしながらマンガを読んだり出来る、リビングとは別のお気に入りになるかもしれませんね(笑)

キッチンは人気のカウンタータイプ。コンロ前の衝立もガラス製にして解放感にこだわっています。お料理を作りながらでもご家族やご友人との会話を楽しめるっていいですよね。食器洗浄乾燥機や浄水機能一体型水栓など、お料理をサポートしてくれる便利アイテムも充実していますよ♬
・
以上でカーサ和泉のご案内を終わります。
いかがでしたでしょうか??
方南町駅から徒歩1分のマンションです。
リノベーション済みという事で室内はとてもキレイですよ (っ・ω・)っ
内見のご予約やご質問などございましたらお気軽にお問い合わせくださいませ。
ご連絡お待ちしております。
弊社、不動産Agent 六棒株式会社では、
□リノベーションマンションはほぼ全て仲介手数料無料!
□その他一般仲介物件は仲介手数料20%~30%OFF!
にてお取り扱いしております!※弊社の「Agent Fee=仲介手数料」についてはご案内、ご面談の際に営業担当者よりご説明いたします!
なるべく沢山のお部屋をホームページに掲載したいと思っておりますが、時間的成約もございますので、残念ながらご紹介できるお部屋の一部しか掲載できておりません。
このホームページに掲載中のお部屋、その他サイト等で気になるお部屋、街を歩いていて気になったマンション等々ございましたら是非、弊社営業部までご相談ください!
~不動産Agent 六棒株式会社の特徴~
・一般仲介物件の仲介手数料は20%~30%OFFにてご案内中です!
・リノベーションマンションについてはほぼ全て仲介手数料無料です!
・住宅ローンに自信あります!
・頭金10万円より購入できます。是非ご相談下さい!
・お部屋のご見学は車で2~3件まとめて案内します!
・物件数3000件以上、新築戸建、リノベ物件も多数ご用意しております!
過去に販売していたお部屋の概要 こちらのお部屋の販売は終了いたしました
| 価格 | -万円 |
| 面積 | 51.57㎡ |
| 間取り | 2bedrooms(2LDK) |
| 管理費 | 月額9,100円 修繕積立金:月額9,100円 |
| 所在階 | 3階 |
| お問い合わせ・ご内見のご予約はこちらからお気軽にどうぞ | |
間取りのご紹介です。2LDK、51.57㎡。
南向きにつき陽当り・通風良好なお部屋です。
室内は只今リノベーション工事中!
一足先に充実のリノベーション内容をご紹介いたします。
■フローリング、天井・壁、クロス
■洗面所、トイレ、CF
■システムキッチン(浄水機能付き、食洗機)
■ユニットバス、洗面化粧台、ウォシュレット
■給湯器
■建具、下足入れ、網戸
■コスモスイッチ、照明器具、エコカラット、クリーニング、他
【内装工事終了予定:2015年10月下旬】
工事中のご紹介も可能です。
ご内見のご希望・ご質問などございましたら、お気軽にお問い合わせくださいませ♪
過去に販売していたお部屋の概要 このお部屋の販売は終了いたしました。
| 価格 | -万円 |
| 面積 | 53.46㎡ |
| 間取り | 2bedrooms(2LDK) |
| 管理費 | 月額:9,100円 修繕積立金:月額9,100円 |
| 所在階 | 3階 |
間取りのご紹介です。2LDK、53.46㎡。
南向きにつき陽当り良好です☀
室内は只今リノベーション工事中!
一足先に充実のリノベーション内容をご紹介いたします。
■キッチン・・・システムキッチン(パナソニック)
■浴室・・・ユニットバス(パナソニック)、追い焚き機能付き、浴室換気乾燥暖房機付き
■洗面所・・・洗面化粧台 、洗濯水栓、防水パン
■トイレ・・・LIXIL、ウォシュレット付き
■その他・・・フローリング貼替、建具交換、壁・天井クロス貼替、フロアタイル貼替、クッションフロア貼替、給湯器交換、エアコン(1基)、カラーTVモニター付きインターホン、新規照明器具取付、収納棚新設、スイッチ・コンセント交換、ハウスクリーニング
■アフターサービス保証付き
【内装工事終了予定:2015年9月下旬】
ご内見のご希望・ご質問などございましたら、お気軽にお問い合わせくださいませ♪


















弊社 公式HP
六棒総合研究所
掲載予定物件
価格変更と販売終了物件
ハザードマップ検索
適合証明書.jp
Facebook
Twitter
Instagram