2020 ・
□□□□□□□□□□□□□□□□□□□□□□□□□□□□□□□□□□□□□□□
いつも弊社ホームページをご覧頂き誠にありがとうございます。
シャンボール荻窪はお陰様で販売を終了致しました。弊社問合せフォームにてご要望頂けましたら、当お部屋でキャンセル等が発生した場合、他のお部屋が販売になりました際にご紹介させて頂きます。
不動産Agent 六棒株式会社
TEL:03‐5413‐5336
□□□□□□□□□□□□□□□□□□□□□□□□□□□□□□□□□□□□□□□
・
JR中央線、東京メトロ丸ノ内線「荻窪」駅より徒歩6分。
リノベーションマンションシャンボール荻窪のお部屋をご案内致します!
大正から昭和初期にかけて東京近郊の別荘地として
『西の鎌倉、東の荻窪』と称され、与謝野晶子・鉄幹夫妻、井伏鱒二、
太宰治、棟方志功などの作家、文化人が居を構えた文化の街 荻窪。
開発が進んだ現在でも、閑静な住宅街が広がり住み心地が良い、人気のエリアです。
また、駅前にはデパート、大型スーパーや多くの飲食店が軒を連ね、
ショッピングも充実!利便性もとってもよいんです(o´∀`ノ
荻窪駅北口には、ルミネがあります。ルミネの中には、飲酒店、衣料品店、書店などなどのお店が軒を連ね充実しています!
そして屋上には屋上庭園&会員制の屋上菜園があります☆
とても気持ちがよいですよ♪♪
『ちょっと駅まで畑仕事に』なんていうのも面白いかも(●’∀’●)ノ
キレイな芝生の庭園なので、小さいお子様にもおススメです♪♪
TSUTAYAがあったり、カラオケ、ビリヤード、漫画喫茶、そして温泉と
娯楽施設も駅前になんでも揃っているイメージ!
休日も遠くにお出かけしないままで遊べちゃいそう(*’▽’)
荻窪駅北口一帯は、懐かしい雰囲気を残す街ですよ~☆
街を散策すれば、タイムスリップしたかのような風景で出くわすかも(*´˘`*)♡
散策のしがいがある街って、大好きです!!
日常のお買い物環境もしっかりチェックしていきますよー!
何よりうれしいのは…駅直結の位置に、24時間営業のスーパー『西友』が!!
帰りが遅い日でもお買い物して帰れるのは嬉しいですね♬
また、『ドン・キホーテ』やドラックストアもあるのでバッチリですね(/・ω・)/

さて、駅から、青梅街道を進み、環八通りを左折してすぐのところに
マンションはあります。
こちらが今回ご紹介させていただく『シャンボール荻窪』です♪
写真中央あたりにうつる、白い外観、11階建ての建物ですよー!!
昭和45年築、地上11階建て、環八通り沿いに建つ総世帯数75戸のマンションです。
耐震適合マンション
学区:桃井第一小学校、天沼中学校
エントランスは、一本道を入ったところ。
日勤の管理人さんがしっかりお掃除して下さっていてエントランスホールも綺麗ですよ(^^)/
では、こちらのエレベーターでお部屋へ向かいます(=゚ω゚)ノ
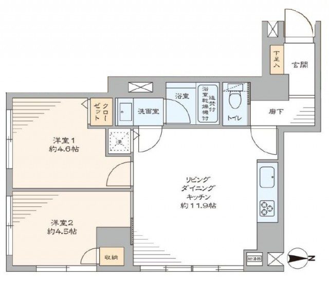
ここで間取り図のご紹介です。
今回ご紹介のお部屋は8階、間取りは1LDK、専有面積は35.64㎡。お一人暮らしの方にお勧めです。
では、早速行ってみましょう!
エレベーターで8階まで上がり、外廊下を進むと…
玄関に到着です。ドア横にはテレビモニター付きインターホンが設置されて、お部屋の中から訪問者を確認する事が出来ます。手が離せない時に、玄関まで来なくてもいいのがいいですよね。
廊下はブラウン多めの落ち着いた雰囲気。建具は鏡面仕上げで高級感もあります。上り口が少し高めですが、座って靴を履いたりには便利ですよ。
玄関ドアは安心のダブルロック!!
玄関壁面にはフックが付けてあり、コートやちょっとした物を掛けておく事が出来ます。ここなら、忘れそうな物を下げておけば忘れる事も無さそうですよね。使わない時は畳んでおけるので邪魔になる事もありません。
玄関内にはシューズボックスがありませんでしたが、廊下一番手前にはシューズインクローゼットが設置されています。棚の高さも変えられてブーツなどの背の高いでも収納可能。手前のスペースには靴以外の尺のある物も入れておけます。
隣の白い扉は洗濯機スペース。棚があり中に洗濯グッズを入れておけます。照明付きなのも嬉しいですね。
廊下反対側には姿見付きの収納棚。お出かけ前の身だしなみチェックはこちらでどうぞ。
その隣のドアは洗面室。少し段差がありますのでお気を付け下さい。
洗面台は三面鏡付き。白一色で清潔感がありますね。三面鏡の間にライトが設置されていて、鏡を見る時に影になったりもしませんよ。
収納は三面鏡裏のキャビネットと洗面台下。色々なタイプの収納があって、大きな物から細かい物まで上手く納まりそうです。
水洗はハンドシャワータイプ。広めの洗面ボウルを生かして、寝ぐせくらいは直せそうですよ(^^)
トイレはタンクレスでスッキリ。その分広く使えます。
もちろん温水洗浄便座付き。INAX製のシャワートイレです。
浴室も白を基調とした明るい空間になっています。いいリフレッシュタイムを過ごせそう♬
追い焚き機能付きでスイッチ一つでお風呂を沸かす事が出来ます。保温もしてくれますので、いつでも温かいお風呂に入れますよ。
ゆったり浸かれる1116サイズの浴槽。
浴室乾燥機はただの換気扇ではありません。お洗濯物乾燥や浴室暖房など様々な機能を持っています。
では、廊下突き当りのドアを…
こちらは約7.7帖のリビング・ダイニング・キッチン+約5.3帖の洋室。洋室の仕切り戸を開け、ひとつながりのお部屋にした様子です。ワンルームの様な使い方で、お一人暮らしなら普段はこんな感じになると思います。
LDKは約7.7帖。ダイニングテーブルとリビングセットを置くには少し狭いかもしれません。兼用にするのが良さそうですね。
壁にはレンガ風のアクセントパネル。ちなみに、家具付きの物件ですので置いてある家具はみんなこのまま使えますよ。(小物は除く)
仕切り戸を閉めれば…
約5.3帖の洋室になります。バルコニーに面した大きな窓の付いた明るいお部屋、大きめのベッドでも余裕で入ります。
木目を生かしたフローリングがLDKから続いていて、ナチュラルな雰囲気。収納はお部屋の幅いっぱいを使った大きなクローゼットが付いています。間口が広くてとても使いやすそうですね。
扉を閉めた時のLDK。仕切りの扉は、閉めても窓からの光が届くように半透明になっています。透明じゃないのでプライバシーが必要になっても大丈夫♪♪
次はキッチンを…
収納は吊戸棚と調理台下。調理台下の引き出しタイプの収納は奥の方まで出し入れが楽で助かります。逆に吊戸棚はあまり使わない物を入れておく事が多くなりそう。土鍋や蒸籠が入っているイメージですね(笑)
水栓は浄水機能付きシャワー水栓。切替えひとつで気軽に美味しいお水を使う事が出来ます。ヘッドが伸びてシンクのお掃除などにも便利ですよ。
コンロは二口、グリルも付いています。今は電子レンジなどを使ったレシピも多く、組み合わせれば何でも作れそうですね。
調理台横には冷蔵庫や家電ラックのスペースも確保されていましたよ。あと、お料理中は換気扇をお忘れなく! 匂いって後から気になりますからね^^;)
それでは最後はバルコニーのご紹介。窓は二重サッシになっていて防音対策もバッチリです。ちなみに小さい窓はFIX窓で開きません。
広さ4.40㎡。南向きのバルコニーです。
物干し金具が付いています。南向きでお洗濯物も気持ち良く乾きそうですね。床には段差がありますのでお気を付け下さい。
開放的で気持ちいい眺めですね。さすが8階!下を環八が走っていますので音はしますが、お部屋の中は二重サッシのおかげで静かでしたよ(^^)
・
以上でシャンボール荻窪のご案内を終わります。
いかがでしたでしょうか??
荻窪駅から徒歩6分のマンションです。
リノベーション済みという事で室内はとてもキレイですよ (っ・ω・)っ
内見のご予約やご質問などございましたらお気軽にお問い合わせくださいませ。
ご連絡お待ちしております。
弊社、不動産Agent 六棒株式会社では、
□リノベーションマンションはほぼ全て仲介手数料無料!
□その他一般仲介物件は仲介手数料20%~30%OFF!
にてお取り扱いしております!※弊社の「Agent Fee=仲介手数料」についてはご案内、ご面談の際に営業担当者よりご説明いたします!
なるべく沢山のお部屋をホームページに掲載したいと思っておりますが、時間的成約もございますので、残念ながらご紹介できるお部屋の一部しか掲載できておりません。
このホームページに掲載中のお部屋、その他サイト等で気になるお部屋、街を歩いていて気になったマンション等々ございましたら是非、弊社営業部までご相談ください!
~不動産Agent 六棒株式会社の特徴~
・一般仲介物件の仲介手数料は20%~30%OFFにてご案内中です!
・リノベーションマンションについてはほぼ全て仲介手数料無料です!
・住宅ローンに自信あります!
・頭金10万円より購入できます。是非ご相談下さい!
・お部屋のご見学は車で2~3件まとめて案内します!
・物件数3000件以上、新築戸建、リノベ物件も多数ご用意しております!
過去に販売していたお部屋の概要 このお部屋の販売は終了いたしました。
| 価格 | -万円 |
| 面積 | 48.33㎡ |
| 間取り | 2bedrooms(2LDK) |
| 管理費 | 月額8,000円 修繕積立金:月額9,000円 |
| 所在階 | 2F |
| お問い合わせ・ご内見のご予約はこちらからお気軽にどうぞ
|
|
今回のお部屋の間取りご紹介です。
2LDK、48.33㎡。
とってもお洒落なリノベーションが施され、生まれ変わったお部屋です。
クリックすると別タブで開くことも可能です。
ぜひ間取り図とお部屋比較しながら見ていただければと思います! ↓ ↓
~~~~~~~~~~~~~~~~~~~~~~~~~~~~~~~~~~~~~~~~~~~~
当物件のリノベーション内容をご紹介いたします!
・フローリング新規張替 ・壁、天井クロス張替
・給水管、給湯管新規交換 ・建具、玄関収納新規交換
・照明器具新規設置 ・エアコン一基新規設置
・洗面化粧台新規交換 ・洗浄便座付トイレ新規交換
・追炊き機能付ユニットバス新規交換 ・システムキッチン新規交換
・モニター付きインターフォン新規交換 ・ハウスクリーニング 他
~~~~~~~~~~~~~~~~~~~~~~~~~~~~~~~~~~~~~~~~~~~~
既に内装工事は完了しておりますので、内見はいつでも可能です!
エレベーターを降りるとお部屋までは内廊下が続いています。
廊下の途中には大きな窓が付いているので、内廊下にありがちな閉塞感を感じることもなさそうです。
さて、お部屋の中に入る前に。
玄関前にはカメラ付きのインターフォンが付いています。
お部屋の中から廊下の様子を確認することが出来るので、防犯的にも安心できそうです!
治安の悪い地域ではありませんが、防犯意識は常に持っておきましょうね!!
それでは中に入ってみましょう!
玄関ドアを開けると、室内の照明が自動的に点灯しました。
玄関照明には人感センサーが付いているので、両手が塞がっての帰宅でも問題なさそうです。
トールタイプのシューズボックスは中の棚の高さを調節することが出来ます。
ブーツのような背の高い履物でも収納することが可能です!
奥へと進んでいきましょう!!
レンガ調の壁がシャレオツな雰囲気です。
扉を開けた向こうは、リビング・ダイニング・キッチンです!
LDKの広さは約11.9帖。
天井に埋め込まれているダウンライトにはBluetooth対応のスピーカーが内蔵されているらしいのですが・・・ さすがに写真ではお伝えすることが出来ませんね!!
写真に写っているエアコンは付いているので、引っ越し作業は快適な環境ですることが出来そうです。
窓は東向きです。
朝は気持ちのいい光が入ってきそうですよ!!
廊下から続いているレンガ調の壁がモダンな雰囲気を出しています。
次はキッチンを見ていきましょう!!
広いシンクを携えた水廻り。水栓は浄水機能付のシャワーヘッドになっているので、シンクの隅々まで水を流すことが出来ます。お掃除、洗い物と大活躍してくれそうな予感です!
コンロはグリルの付いた3口ガスコンロ!!
3口あれば大抵のメニューは作ることが出来そうですね!グリルもあるので鬼に金棒!!
このキッチンで一番初めに作られるお料理は何になるのでしょうか!?
シンク下の収納は引き出しタイプ。デッドスペースが生まれにくく、奥まで無駄なく使うことが出来ますよ。引き出しタイプが主婦層からの熱い支持を得ているのも納得できると思います。
それでは一度、玄関方面へ戻りましょう。
廊下の突当りにはトイレがありました。
LIXIL製のウォシュレット付きトイレです。リクシルのトイレは丸みを帯びたデザインがカワイイので個人的には一番のお気に入りです。
吊戸棚もついているのでトイレットペーパー等の消耗品やお掃除グッズなどはこちらにしまっておくことが出来ます。
またまたリビングに戻って・・・・
コチラのドアを開けてみましょう!! ・・・・どこのドアか分からない方は少し戻って間取り図をチェックしてくださいねー
左側の白いドアを開けると洗濯機置場になっていました。
扉が付いているので来客時でも洗濯機が丸見えになったりはしませんよ!!
常に扉を閉めているとカビの原因になったりもするので、適度に換気はしてあげて下さいね!
こちらは洗面室です。
大きな三面鏡の付いた洗面化粧台が付いています。
背後のモザイクタイルも何だかオシャレですね!
ミラーの中はキャビネットになっているので、歯ブラシや基礎化粧品などの小物はこちらに収納することが出来ますよ!
水栓はシャワーヘッドになっているので、ここで洗髪することも可能です。
洗面台の正面にはお風呂です。
浴室には換気乾燥機能が付いています。
入浴後の湿気を取り除くことで、カビの発生を抑えることが出来ますし、もちろん雨の日は洗濯物を干すことも可能です。
冬場は事前に浴室を温めておく事でヒートショックの予防にも効果があります。
追炊き機能も付いています。
1日中熱いお風呂に入ることが出来るのは、お風呂好きにはたまりませんね!
お休みの日は朝からお風呂を楽しみたいところです。
つづいては洋室を2つご紹介いたします。
左側の引き戸、右側の開き戸、どっちからいきましょうか??
もう決めてあるんですけどね!!
右からですー!!
コチラの洋室は約4.6帖の広さがあります。
南側の窓から明るい光が入って来ていますよ!!
クローゼットも付いているので、お洋服などの収納場所にも困りません!
2つ目のお部屋です。
コチラのお部屋は約4.5帖の洋室です。
角のお部屋という事で、南と東の2面採光、明るいお部屋です。
写真では少し分かりづらいでのですが、窓際に洗濯物干しのポールが付いています。
南側の窓の外に物干し竿掛けが付いていますが、室内干しか外干しかは気分によって選択して良さそうです。洗濯だけに!!(とても面白いところです)
東側の窓を開けるとこんな感じです。
環八沿いのマンションなので目の前の交通量は多めだと思います。
が、窓は二重サッシになっているので、クルマの音などは余り気になりませんでした。耳の具合は人によって違うかと思いますので、内見の際にはぜひお部屋の中で耳を澄ましてみてください。
以上で【シャンボール荻窪】のご紹介を終わります。
他にも詳細が知りたい!!実際に見学をしたい!!などありましたら
仲介手数料最大無料の当社
六棒株式会社まで
お電話ください(^-^*)/
TEL 03-5413-5336
お気軽にお問い合わせください。
スタッフ一同お待ちしております。
弊社、不動産Agent 六棒株式会社では、
□リノベーションマンションはほぼ全て仲介手数料無料!
□その他一般仲介物件は仲介手数料20%~30%OFF!
にてお取り扱いしております!※弊社の「Agent Fee=仲介手数料」についてはご案内、ご面談の際に営業担当者よりご説明いたします!
なるべく沢山のお部屋をホームページに掲載したいと思っておりますが、時間的成約もございますので、残念ながらご紹介できるお部屋の一部しか掲載できておりません。
このホームページに掲載中のお部屋、その他サイト等で気になるお部屋、街を歩いていて気になったマンション等々ございましたら是非、弊社営業部までご相談ください!
~不動産Agent 六棒株式会社の特徴~
・一般仲介物件の仲介手数料は20%~30%OFFにてご案内中です!
・リノベーションマンションについてはほぼ全て仲介手数料無料です!
・住宅ローンに自信あります!
・頭金10万円より購入できます。是非ご相談下さい!
・お部屋のご見学は車で2~3件まとめて案内します!
・物件数3000件以上、新築戸建、リノベ物件も多数ご用意しております!
過去に販売していたお部屋の概要 このお部屋の販売は終了いたしました。
| 価格 | -万円 |
| 面積 | 42.12㎡ |
| 間取り | 2bedrooms(2DK) |
| 管理費 | 月額9,000円 修繕積立金:月額8,000円 |
| 所在階 | 6階 |
| お問い合わせ・ご内見のご予約はこちらからお気軽にどうぞ | |
それでは、間取りのご紹介です。2DK、42.12㎡。
ゆとりの1人暮らし、もしくはご夫婦でお住いになるイメージでしょうか(●´∀`)
こちらの物件はなんとっ!!
厳選した家具・家電・日用雑貨など一般的な生活必需品が全て揃っている物件です(´∀`●)
はじめから用意されているので、新しい生活をスムーズにスタートさせることができます。全ての家具・家電・日用雑貨を含んだ価格なんです(*´˘`*)♡
玄関を開けると、生まれ変わったばかりのキレイなお部屋が出迎えてくれました☆玄関はちょっと狭めでしょうか。
玄関の右側にはトールサイズのシューズボックスがあります。可動式の棚でブーツの収納もOK♪♪扉には大きな姿見があるのでお出かけ前のチェックもバッチリです♪
玄関正面のドアを開けて、ダイニングキッチンを見ていきましょう♪♪
ダイニングキッチンは、約8.2帖。窓は、北向きのキッチンの窓があります。改めまして、家具家電付きなのでこちらのテーブル・イスも付いてきますよ(o´∀`ノ

フローリングは、白の木目で清潔感があります。インターフォンはTVモニター付きで、セキュリティもバッチリ♫
キッチンは、お部屋のフローリングと色調を合わせたホワイトキャビネットのシステムキッチンです。
キッチンは上下に収納があり調理道具がたくさん入れられそうです♪
3つ口コンロはお料理好きの方には嬉しいですね♪シンクは大きめで使い勝手◎
ダイニングキッチンの東側に水回りが集められています。段差が少しありますのでお気を付けください。
サニタリールーム入って左手にバスルーム。ブラックの大理石調のパネルを使いシャープな印象のバスルーム☆ゆっくり大きなバスタブにつかって疲れを癒せそうです♪もちろん追いだき機能付きです♪♪
窓も設置されていて、日の高いうちにお風呂に入りたくなっちゃいます(*´˘`*)♡
縦長ミラーとその横には棚も付いているので小物を置くスペースもあります☆追い焚きと浴室乾燥機能が付いています。雨の日でも安心してお洗濯ができますよ(*´∀`*)
正面にはコンパクトサイズの洗面台。新規交換済みでピカピカです。

鏡の裏に収納スペースがありますので、歯ブラシから洗顔フォームまでゴチャゴチャ散らかりがちな洗面まわりの物もスッキリお仕舞いただけます♪♪シャワーヘッドも嬉しいですね♫シャワーヘッドは、シャンプーに便利ですが、お掃除にも便利ですよ
(●´∀`)
洗面台のお隣に洗濯機置場があります。
棚等は設置されていませんので、後から棚を設置したり、突っ張り棒で収納を作ったりと工夫したいですね(*´∀`*)
一度ダイニングキッチンに戻って、南側にある2つの洋室を見ていきます。まずは東側の約4.7帖の洋室です。南向きの窓で明るさ充分☆こちらのベットももちろん付いてきますよ♪♪
間口は狭めですが、奥行きがしっかりで収納力バツグン☆バーも付いているので、ロングコート等の衣類の収納にも良いですね♪♪
こちらは、西側の約3.4帖の洋室です。もちろんこちらも南向き♪♪

こちらのお部屋はダイニングキッチンとは、スライド式ドアで隔てられているので、開けて使えば一つのお部屋の様に使うこともできます(*´▽`)
最後にバルコニーへ出てみます。5.20㎡の南向きのバルコニー☆2つの洋室から出ることができます。お洗濯物がよく乾きそうです♫
眺望は、バッチリ!!というほどではありませんが、お隣とは距離がありますので大丈夫(´∀`*)
いかがでしたでしょうか。
東側に環八通りがありますが、お部屋は南向きなので騒音はそんなに気になりませんでした。
是非、現地でご確認いただきたいと思います。
内見のご希望、ご質問などございましたら、![]()




























































































































































