□□□□□□□□□□□□□□□□□□□□□□□□□□□□□□□□□□□□□□□
いつも弊社ホームページをご覧頂き誠にありがとうございます。
永福町パーク・ホームズはお陰様で販売を終了致しました。弊社問合せフォームにてご要望頂けましたら、当お部屋でキャンセル等が発生した場合、他のお部屋が販売になりました際にご紹介させて頂きます。
弊社では、仲介手数料無料orお値引(50%off、30%off、20%off)にて皆様のマイホーム探しのお手伝いをさせて頂きいております。永福町パーク・ホームズの類似物件や、お探しのご条件等をお聞かせ頂けましたらご条件に合ったお部屋をご紹介させて頂きます。また、ご来社頂き一緒に探させて頂くことも可能ですので、是非弊社問合せフォームよりお気軽にお問合せください。
不動産Agent 六棒株式会社
TEL:03‐5413‐5336
□□□□□□□□□□□□□□□□□□□□□□□□□□□□□□□□□□□□□□□
今回は京王井の頭線「永福町」駅から徒歩7分の『永福町パーク・ホームズ』を紹介します。
「永福町」駅は井の頭線の急行が停まる駅で、渋谷まで7分、吉祥寺まで8分というアクセスの良さ☆隣が明大前なので、明大前で乗り換えれば、新宿へも約15分というとても便利な場所です。
駅には「京王リトナード永福町」という商業施設があり、書店やお菓子屋さん、ベーカリー等々、色々なショップが入っています。1Fにはスーパー「キッチンコート」が入っていて夜11時半まで営業しているので、お仕事帰りでも、ちょっと飲んで帰って来ても、まだまだお買いものができて便利です☆
この京王リトナード永福町の屋上には屋上庭園「ふくにわ」があります。
芝生の広場にはベンチがいくつも置かれているので、お買い物へ来たついでに、ちょっと屋上で一休み、なんて贅沢な過ごし方ですね♪
マンションへ向かう途中にもスーパー「三浦屋」がありました。
他では買えない様なこだわりの食材などが置いてありますので、駅前のスーパーと合わせてご活用ください(^o^)
マンションのすぐ近くには神田川が流れています。近くに川が流れていると、とても気持ちが良いですね(^v^)
すぐ隣はヤマトの配送センター。センターが近くにあると、不在票が入っていた時に実は便利☆
センターに荷物があれば、その場で受け取る事ができますよ☆
永福町駅から井の頭通りを歩いた、のどかな風景の中に建っているのが、『永福町パーク・ホームズ』です。
階段を上がったところにエントランスがありますので、エントランスホールは2階の位置にあります。スロープは駐車場脇についていて、裏からエントランスホールに入ることができます。
1Fには宅配ボックスがありました。ネットショッピングをよくされる方にはとても便利です♪
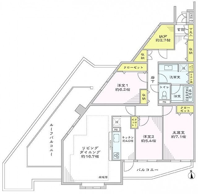
ではここで間取りの紹介です。
102.03㎡ 3LDK ルーフバルコニー(17.50㎡)がついた、とてもゆったりとしたお部屋です。
平成27年4月にリノベーション工事を終えたばかりなので、とても綺麗な室内です。
ペットの飼育は細則がありますが可能です(*^^)v
玄関を開けると、壁のクロスとフローリングのコントラストがまぶしい、綺麗なお部屋が出迎えてくれました(^v^)
玄関左側にはシューズボックスがあります。
扉3つ分でトールサイズのシューズボックスなので、お持ちの靴をたくさんしまっておくことができます☆
玄関には人感センサーつきライトがあります。お部屋を真っ暗にしていても、いつも玄関はパッと明るくなってくれます☆
シューズボックスの隣には収納棚があります。中は2列にの棚になっていて、それぞれ自由に棚板を移動できるので、大きい物から小さい物までいろいろとアレンジして入れることができます。
廊下を進むと右側には2.7帖の納戸がありました。北西向きの窓がついているので、納戸といえども、とても明るいです☆
こちらには大きなバッグや季節ごとに使う物(クリスマスツリーや大きなビニールのプール等)を入れておくと良いですね(^v^)
洋服をたくさんお持ちの方なら衣裳部屋、自転車が趣味の方なら自転車置場など、用途に合わせていろいろお使い頂けます!(^^)!
廊下にはまた大きめの収納スペースがありました。
アレンジによって、普段お使いになるような掃除機等の物を入れておいたり、ご家族みなさんのコートなどを入れるクローゼットとしてもお使い頂けそうです(^^)/
廊下を更に進むと、左側にサニタリールームがあります。室内はとても広くゆとりの空間になっています。
洗面台はカウンターがとても大きく、お出かけ前の準備をご家族そろってできる位のスペースがあります笑
鏡の裏側が収納スペースになっています。鏡はなんと6面鏡\(◎o◎)/
洗面台の隣に洗濯機置場があります。上部には可動式の棚がありますので、手の届く位置に調整して有効にお使いください☆
その隣には大きなリネン庫があります。棚が可動式なので、バスタオルやハンドタオル、お掃除道具など色々とたっぷり収納できます。
バスルームは高級感のある木目調のパネルで、落ち着いた雰囲気。
ゆったり足を伸ばせるバスタブで、のんびりとバスタイムをお楽しみください(*^。^*)
浴室には換気乾燥機が設置されています。
これからやってくる雨の季節や台風の季節でも安心してお洗濯物を乾かして頂けます☆
サニタリールームの隣にはトイレがあります。上部に吊り棚があるので、トイレ内はいつも清潔にお使い頂けそうですね(*^。^*)
サニタリールームの正面に6.2帖の洋室があります。北西向きの窓があり、室内はとても明るく開放的です。
クローゼットはお部屋の北側にあります。扉が大きく左右にスライドして開くので、お持ちの服をたくさん入れておくことができます☆
廊下に出ると、6.2帖のお部屋の隣に大きな収納棚があります。こちらも2列に分かれて棚板が可動式なので、背の高い物まで収納する事ができて、とても便利です☆
廊下の突き当り左側のドアは7.1帖の洋室です。こちらは南向きの窓がありますので、まぶしい光がお部屋の中に射しこんでいました☆
お部屋の北側にクローゼットがあります。こちらのクローゼットも左右に大きく開くので、中を見やすく、取り出しやすく、とても便利なクローゼットです。
その隣が5.4帖の洋室です。こちらにも南向きの窓がありますので、室内は明るくフローリングがピカピカ光っています☆
廊下の突き当り右側を開けるとリビングダイニングキッチンですが、手前にキッチンがあります。
キッチンは4.3帖あるので、ゆったりとお使頂けます!(^^)!
さらに、南側にドア(お勝手口)があってバルコニーに出ることができます。
こちらのバルコニーへは7.1帖、5.4帖のお部屋からも出る事が出来ます。
南向きのバルコニーなので、陽の光が直接させてきて、とても気持ち良かったですよ♪
キッチンには浄水器付水栓と3口コンロ、それに食器洗浄機まで付いているので、ご飯の支度も、お片付けもとてもはかどりそう☆
キッチンの収納力もバッチリ☆キッチン下部には引出し収納、上部には吊り棚があります。
キッチン内に食器棚を置くスペースは充分にありますので、新しい調理器具や食材のストックを入れておけますね(^^)/
キッチンの奥には16.7帖のリビングダイニングが広がります。
こちらには床暖房が入っていますので、冬には足元からポカポカ温かくなりますよ☆
南向きの出窓からは陽の光が射し込んで来ています。
出窓からは井の頭線が走る姿が良く見えます(^v^)
リビングからは17.50㎡のルーフバルコニーに出る事ができます。
ルーフバルコニーは南向き~北西向きなので、陽の光が降り注ぐとても気持ちのいい場所です(^o^)
こちらにはスロップシンクが付いているので、ルーブバルコニーでプランターを並べてガーデニングをするのもいいですね(^^)/
ルーフバルコニーからは同じマンションの高層部が見えます。この部分は上がないので、3階が最上階です☆
ルーフバルコニーからは広い空とその中を入る井の頭線が良く見えました。
外に出ると電車の音が聞こえてきますが、室内ではあまり気にならない程度なので、静かです♪
いかがでしたか?
京王井の頭線「永福町」駅から井の頭線を明大前方向に7分なので、明大前駅までも8分程度で、ご利用いただけます☆
室内は収納がたっぷりありますので、室内に物を置かずにスッキリと、ゆったりお使いください♪
皆さまからのお問い合わせお待ちしております。

























































弊社 公式HP
六棒総合研究所
掲載予定物件
価格変更と販売終了物件
ハザードマップ検索
適合証明書.jp
Facebook
Twitter
Instagram