・
□□□□□□□□□□□□□□□□□□□□□□□□□□□□□□□□□□□□□□□
いつも弊社ホームページをご覧頂き誠にありがとうございます。
ファミリータウン東陽はお陰様で販売を終了致しました。弊社問合せフォームにてご要望頂けましたら、当お部屋でキャンセル等が発生した場合、他のお部屋が販売になりました際にご紹介させて頂きます。
不動産Agent 六棒株式会社
TEL:03‐5413‐5336
□□□□□□□□□□□□□□□□□□□□□□□□□□□□□□□□□□□□□□□
・
本日は東京メトロ東西線「東陽」駅より徒歩5分リノベーションマンション
ファミリータウン東陽 をご案内致します!
設計施工は竹中工務店×鹿島建設!総戸数777戸の大規模マンションですよ (っ´∀`c)
ご案内の前に、まずはこちらをチェック!!
□□□□□□□□□□□□□□□□□□□□□□□□□□□□□□□□□□□□□□□
★★★【ファミリータウン東陽】周辺のハザードマップをCHECK!!★★★
お部屋の記事を読む前に…!周辺のハザードマップをチェックしておきませんか!
ファミリータウン東陽のハザードマップは★こちらから…どうぞ★
□□□□□□□□□□□□□□□□□□□□□□□□□□□□□□□□□□□□□□□
一応、言っておきますが、、、、
東西線は朝夕のラッシュ時の混雑率が東京で一番です。
JRを含めても堂々の1位という事なので、もしかすると日本一かもしれませんね・・・
職場が近いのであれば、自転車通勤も選択肢に入れておきましょうね( ・`ω・´)
ざっと散策した印象だと、あまり飲めるお店は無い感じですね・・・
駅の周辺にチラホラ見かける程度でした。
ベッドタウンなのであまり飲み歩く人もいないのでしょうけどo(*>Д<)ゝ
永代通りをまっすぐ進めば日本橋へとたどり着けます。
5キロ弱なので自転車だと20分前後くらいでしょうか??
健康のために歩いても1時間くらいですよ!!
土地柄というかなんというか、とにかく水の多い地域です。
町域の北辺を仙台堀川、南辺を汐浜運河、東辺を大横川および大横南川支川と接しています。また町域北部を横十間川が東西に流れていて、横十間川には親水公園が設置されています。
数分も歩けば運河に出くわします (っ・ω・)っ
東陽町は江東区の行政の中心でもあります。
江東区役所、東陽図書館、江東運転免許試験場などなど・・・
そのほか、大型スーパーやホームセンターなど、生活に必要な物は駅周辺でだいたい揃いそうですね (○´ω`○)
こちらのパチンコ屋さん・・・・・・じゃなくて、東陽四丁目の信号を南に進めばマンションまではすぐですよ!!
突当りまで、まーーーーっすぐ進みます。
するとだんだん見えてきます・・・・
はい!!到着しました!!
と言っても分かりづらいですよね!!
ファミリータウン東陽は北と南にA~N棟の合計14棟からなる超大規模マンションです。777戸ともなると本当にちょっとした「タウン」といってもいいくらいですね!
あまりに広くて棟によって住所も違っているのでお気を付けください。
敷地内は本当に緑が多いですよ。
マイナスイオンを浴びれば気分もスッキリですね。
管理規約による制限がありますが、ペットの飼育も可能との事。
敷地内広いのでお散歩コースにもなりますよ。
中庭部分は公園になっています。
大人になった今も、人目さえなければこういう所で遊んでみたい気持ちってありますよね??中庭の樹木の管理も行き届いていますよ。
敷地内には駐車場、駐輪場もありますよ。
空き状況は変動するのでご内見の際に営業マンに確認してみてくださいね!
ゴミ置き場は敷地内に何か所かあります。
粗大ゴミ専用の置場もありました。
エントランスは数か所についています。
オートロックはありませんが、24時間管理人さんがいてくれるので安心です。
こちらはエントランスホール。広々とゆったりしています。
昭和築とは思えないほどキレイですね。
集合ポストがここにありました。
またエントランスホールには掲示板があり、管理組合や自治会、町会などからの案内が貼られていました。コニュニティもしっかりしています(´▽`*)
所々にエレベーターがあります。
お部屋の最寄りのエレベーターを使いましょう。
今回ご紹介するお部屋はE棟7階、専有面積71.58㎡の3LDK。収納も豊富なファミリータイプのお部屋です。
間取り図はコチラ ↓ ↓ ↓
※間取り図は別タブで開きますので、確認しながらご覧いただくことができます。
写真準備中
しばらくお待ちください
一足先に眺望のご紹介!
・
以上でファミリータウン東陽のご案内を終わります。
いかがでしたでしょうか??
東陽町駅から徒歩5分のマンションです。
リノベーション済みという事で室内はとてもキレイですよ (っ・ω・)っ
内見のご予約やご質問などございましたらお気軽にお問い合わせくださいませ。
ご連絡お待ちしております。
弊社、不動産Agent 六棒株式会社では、
□リノベーションマンションはほぼ全て仲介手数料無料!
□その他一般仲介物件は仲介手数料20%~30%OFF!
にてお取り扱いしております!※弊社の「Agent Fee=仲介手数料」についてはご案内、ご面談の際に営業担当者よりご説明いたします!
なるべく沢山のお部屋をホームページに掲載したいと思っておりますが、時間的成約もございますので、残念ながらご紹介できるお部屋の一部しか掲載できておりません。
このホームページに掲載中のお部屋、その他サイト等で気になるお部屋、街を歩いていて気になったマンション等々ございましたら是非、弊社営業部までご相談ください!
~不動産Agent 六棒株式会社の特徴~
・一般仲介物件の仲介手数料は20%~30%OFFにてご案内中です!
・リノベーションマンションについてはほぼ全て仲介手数料無料です!
・住宅ローンに自信あります!
・頭金10万円より購入できます。是非ご相談下さい!
・お部屋のご見学は車で2~3件まとめて案内します!
・物件数3000件以上、新築戸建、リノベ物件も多数ご用意しております!
過去に販売していたお部屋の概要 こちらのお部屋の販売は終了いたしました
| 価格 | -万円 |
| 面積 | 74.90㎡ |
| 間取り | 3bedrooms(3LDK) |
| 管理費 | 月額:9,000円 修繕積立金:月額18,620円 自治会費:月額500円 |
| 所在階 | A棟2階 |
| お問い合わせ・ご内見のご予約はこちらからお気軽にどうぞ | |
ここで間取り図のご紹介です。
※間取り図は別タブで開きますので、確認しながらご覧頂くことが出来ます。
□□□□□□□□□□□□□□□□□□□□□□□□□□□□□□□□□□□□□□□
★★★【ファミリータウン東陽】周辺のハザードマップをCHECK!!★★★
お部屋の記事を読む前に…!周辺のハザードマップをチェックしておきませんか!
ファミリータウン東陽のハザードマップは★こちらから…どうぞ★
□□□□□□□□□□□□□□□□□□□□□□□□□□□□□□□□□□□□□□□
今回ご紹介のお部屋はA棟2階、専有面積74.90㎡の3LDK。2面にバルコニーが付いたファミリータイプのお部屋です。
【玄関廊下】
白を基調にした玄関はシューズボックスの足元に設置されたフットライトに優しく照らされています。廊下はなんと絨毯張り!最近はフローリングが幅を利かせていますが昔はよく見かけたものです。温かみがあっていいものですね。
【玄関廊下・納戸】
廊下は横向きに伸びていて戸口から室内の様子が見えづらくなっています。宅配便やフードデリバリーなど知らない人が訪ねて来る機会が増えているのでこれは有難いですね。廊下には大きな物を収納するのに便利な納戸も付いています。
【LDK】
こちらは約16.7帖のリビング・ダイニング・キッチン。南向きバルコニーに面した明るいお部屋です。全体がL字型をしていて短い腕の部分に約3.7帖のキッチンが、、、カウンターキッチンのような開放感はありませんが生活感のあるキッチンが目立たないというのもメリハリがきいていていい感じですね。
【LDK】
置いてある家具はディスプレイ用なので付いては来ませんが、サイズ感やテイストの参考にさせてもらいましょう!ちなみに、絨毯on絨毯になっているのはたぶん絨毯が傷まないように保護するためだと思います。
【キッチン】
仕切られているわけではありませんが個室感のあるキッチンです。お料理好きの方なら集中出来ていいかもしれませんね。もちろん床はお掃除がしやすいようパネルが敷かれています。絨毯だったらドキドキして思いっきり鍋を振るえないと思いませんか(笑)食器洗浄乾燥機などの便利機能も充実しています。
【洋室1】
こちらは約6.2帖の洋室1。LDKの隣にある南向きバルコニーに面したお部屋です。柱などの出っ張りが全くなく家具を置いたりする時に無駄なくスペースを使えそうです。収納は壁一面の大きなクローゼット!
【洋室2・洋室3】
いちど廊下へ戻って・・・廊下の突き当りには洋室が二つ並んでいます。
左側が約5.8帖の洋室2。右側が約4.7帖の洋室3。どちらも北向きの窓があるお部屋です。一般的に北向きって暗いイメージありますが意外と明るいんですよね。
【洗面室・トイレ】
洗面室には洗面化粧台の他にトイレと浴室がまとまっていて脱衣室も兼ねています。洗面化粧台は身だしなみを整えるのに便利な三面鏡付き。裏がキャビネットになっているので、洗面周りに散らかりがちな細々したものもスッキリと片付けることが出来ますよ。
トイレは洗浄機能一体型でトイレットペーパーなどの収納に便利な吊り戸棚も付いています。
【浴室】
浴室は白にダークブラウンのアクセントパネルを使用した落ち着いた雰囲気。リラックスしたバスタイムで一日の疲れも洗い流せそうですね♬ ご家族で入浴時間がバラバラになってしまっても、追い焚き機能が付いているのでみんなが温かいお風呂に入れます。
【眺望】
バルコニーからは汐浜運河を望む自然豊かな眺めが望めます。水のある風景っていいですよね。陽射しや波などでキラキラと表情を変えてずっと眺めていても飽きることがありません。
・
以上でファミリータウン東陽のご案内を終わります。
いかがでしたでしょうか??
東陽町駅から徒歩5分のマンションです。
リノベーション済みという事で室内はとてもキレイですよ (っ・ω・)っ
内見のご予約やご質問などございましたらお気軽にお問い合わせくださいませ。
ご連絡お待ちしております。
□□□□□□□□□□□□□□□□□□□□□□□□□□□□□□□□□□□□□□□
★★★【ファミリータウン東陽】周辺のハザードマップをCHECK!!★★★
お部屋のご購入前に…!周辺のハザードマップをチェックしておきませんか!
ファミリータウン東陽のハザードマップは★こちらから…どうぞ★
□□□□□□□□□□□□□□□□□□□□□□□□□□□□□□□□□□□□□□□
弊社、不動産Agent 六棒株式会社では、
□リノベーションマンションはほぼ全て仲介手数料無料!
□その他一般仲介物件は仲介手数料20%~30%OFF!
にてお取り扱いしております!※弊社の「Agent Fee=仲介手数料」についてはご案内、ご面談の際に営業担当者よりご説明いたします!
なるべく沢山のお部屋をホームページに掲載したいと思っておりますが、時間的成約もございますので、残念ながらご紹介できるお部屋の一部しか掲載できておりません。
このホームページに掲載中のお部屋、その他サイト等で気になるお部屋、街を歩いていて気になったマンション等々ございましたら是非、弊社営業部までご相談ください!
~不動産Agent 六棒株式会社の特徴~
・一般仲介物件の仲介手数料は20%~30%OFFにてご案内中です!
・リノベーションマンションについてはほぼ全て仲介手数料無料です!
・住宅ローンに自信あります!
・頭金10万円より購入できます。是非ご相談下さい!
・お部屋のご見学は車で2~3件まとめて案内します!
・物件数3000件以上、新築戸建、リノベ物件も多数ご用意しております!
過去に販売していたお部屋の概要 こちらのお部屋の販売は終了いたしました
| 価格 | -万円 |
| 面積 | 61.72㎡ |
| 間取り | 3bedrooms(3LDK) |
| 管理費 | 月額:6,490円 修繕積立金:月額15,350円 自治会費:月額500円 |
| 所在階 | J棟4階 |
| お問い合わせ・ご内見のご予約はこちらからお気軽にどうぞ | |
ここで間取り図のご紹介です。
※間取り図は別タブで開きますので、確認しながらご覧頂く事が出来ます。
□□□□□□□□□□□□□□□□□□□□□□□□□□□□□□□□□□□□□□□
★★★【ファミリータウン東陽】周辺のハザードマップをCHECK!!★★★
お部屋の記事を読む前に…!周辺のハザードマップをチェックしておきませんか!
ファミリータウン東陽のハザードマップは★こちらから…どうぞ★
□□□□□□□□□□□□□□□□□□□□□□□□□□□□□□□□□□□□□□□
今回ご紹介のお部屋は、J棟4階、間取りは3LDK、専有面積は61.72㎡。ペット可のファミリータイプのお部屋です。
では参りましょう。
エレベーターで4階へ上がります。
今回のお部屋のあるJ棟は正面に見える5階建ての建物。エレベーターはありませんので、隣の棟のエレベーターから廊下を進みます。
玄関ドア横にはテレビモニター付きインターホンが設置されていて、お部屋の中から訪問者を確認する事が出来ます。返事をする前にチェックすれば、しつこいセールスに悩まされる事もありません。
中に入ると、落ち着いた雰囲気の廊下が伸びていました。床は絨毯敷で高級感たっぷりですね。
振り返って玄関の様子です。ドアには安心のダブルロック。面倒でも両方ロックしましょう(^^)
人感センサーは中に入っただけで自動的にライトを点けてくれます。真っ暗な中、手探りでスイッチを探すなんて事ももうなくなりますね。消し忘れも防げて一石二鳥! 履いて帰って来た靴はすぐにしまわない方がいいんだそうで、シューズボックスの下のスペースに置いておけば玄関が散らかる事もありませんね。
シューズボックスはトールタイプが二つ。収納力抜群です。
まずは、正面のドアから…
こちらは約12帖のリビング・ダイニング・キッチン。縦長で手前からカウンターキッチン、ダイニング、リビングの並びのオーソドックスなタイプのお部屋です。結局このタイプが使い易かったりするんですよね。
こちらからはキッチン内はほとんど見えません。料理を作る側からすると心強いですよね(笑)
次はキッチンを…
もちろん、キッチンの床は絨毯ではなくお掃除のし易い素材になっています。
調理台下には食洗機と引き出しタイプの収納。食洗機に洗い物をお任せすれば、食後はみんなでのんびり過ごせますね♬
水栓は浄水機能付きシャワー水栓。切替え一つで出てくるので、気軽に美味しいお水を使えますね。ヘッドが伸びるのでシンクのお掃除などにも便利です。
3口コンロはお掃除楽々のIH。グリルも付いています。
絨毯は匂いも付きやすいので、調理中は換気扇をお忘れなく! 調理台後方には冷蔵庫をはじめ、家電ラックや食器棚などが置けるスペースもとってありました。
では、隣のお部屋へ…
こちらは約5.7帖の洋室。リビング隣の、バルコニーに面した明るいお部屋です。
収納は間口が広くて使い易そうなクローゼット。中が確認しやすい収納を使うと、無駄な買い物を減らす効果があるそうですよ(^^)
このお部屋の仕切り扉は引込式になっていて、開けた時にもスッキリ。
ご覧の様に、洋室をリビングの一部として使う事が出来ます。合わせて17.7帖。ちょっと多めの来客があった時などにも便利です。フレキシブルな使い方が出来るのは嬉しいですね。
では、次のお部屋へ…
こちらは約4.7帖の洋室。窓の無いお部屋ですね。眠る時に明るいのが苦手な方にはベッドルームにお勧めします。他の洋室に比べると少し小さいですが、引き戸使用でデッドスペースも出来ませんのでお部屋を無駄なく使えますよ。
収納はクローゼット。やや小さめです。
では、いちど廊下に戻ります。廊下はLDKより一段高くなっていますので、足元にはお気を付け下さい。
次はトイレへ…
トイレは更に高くなっています。
格子模様のアクセントウォール。光の当たる角度で見え方が変わって綺麗です。
温水洗浄便座付き。TOTO製のウォシュレットです。
次のお部屋へ…
こちらは約5.7帖の洋室。バルコニーがあるのかな?と思うくらい大きな窓がありますが…
実は外は外廊下になっていました。面格子が設置してあるので安心とはいえ、夜間は上部の通気窓を使いましょう。
収納はクローゼット。バルコニー側のお部屋と同サイズですね。
では、次は洗面室へ…
お馴染みの段差です。
まずは洗面台から。三面鏡付きで寝ぐせの発見も楽々ですよ。
収納は三面鏡裏のキャビネットと洗面台下。細かい物が多くなりがちな洗面周りには、やっぱりキャビネットですよね。
水洗はハンドシャワータイプ。発見した寝ぐせを直しましょう(笑)洗面ボウルはお掃除のし易い継ぎ目のないタイプです。
洗面台横の扉を開けてビックリ、温水器です。何回見ても慣れないですね^^;)滅多に開ける事は無さそうです。反対隣には洗濯機スペース。
次は浴室へ…
追い焚き機能はスイッチ一つでお風呂を沸かしてくれたり、設定温度にお湯を保ってくれたりと、何かと便利な機能です。
浴室乾燥機能は浴室の換気の他にも、お洗濯物乾燥やヒートショック予防など様々な働きをしてくれます。特にお洗濯物乾燥に関しては雨天だけでなく、花粉や黄砂などを避けるためにで使用する事も多くなっているとか。
それでは最後はバルコニーのご紹介。
洋室、LDK、どちらの窓からでも出る事が出来ます。
広さは7.95㎡、西向きのバルコニー。二部屋にまたがる幅に加え、奥行きが広くて実際の数字よりも広く感じます。
物干し金具は必要に応じてセットするタイプで、普段は邪魔にならない様になっています。西向きですので、お洗濯は午後がお勧めですね。
外の眺めはご覧の通り!気持ちのいい風景が広がっています。暖かくなればさらに緑が増えて癒されそうですね♬
・
以上でファミリータウン東陽のご案内を終わります。
いかがでしたでしょうか??
東陽町駅から徒歩5分のマンションです。
リノベーション済みという事で室内はとてもキレイですよ (っ・ω・)っ
内見のご予約やご質問などございましたらお気軽にお問い合わせくださいませ。
ご連絡お待ちしております。
□□□□□□□□□□□□□□□□□□□□□□□□□□□□□□□□□□□□□□□
★★★【ファミリータウン東陽】周辺のハザードマップをCHECK!!★★★
お部屋のご購入前に…!周辺のハザードマップをチェックしておきませんか!
ファミリータウン東陽のハザードマップは★こちらから…どうぞ★
□□□□□□□□□□□□□□□□□□□□□□□□□□□□□□□□□□□□□□□
弊社、不動産Agent 六棒株式会社では、
□リノベーションマンションはほぼ全て仲介手数料無料!
□その他一般仲介物件は仲介手数料20%~30%OFF!
にてお取り扱いしております!※弊社の「Agent Fee=仲介手数料」についてはご案内、ご面談の際に営業担当者よりご説明いたします!
なるべく沢山のお部屋をホームページに掲載したいと思っておりますが、時間的成約もございますので、残念ながらご紹介できるお部屋の一部しか掲載できておりません。
このホームページに掲載中のお部屋、その他サイト等で気になるお部屋、街を歩いていて気になったマンション等々ございましたら是非、弊社営業部までご相談ください!
~不動産Agent 六棒株式会社の特徴~
・センチュリー21加盟店です!
・一般仲介物件の仲介手数料は20%~30%OFFにてご案内中です!
・リノベーションマンションについてはほぼ全て仲介手数料無料です!
・住宅ローンに自信あります!
・頭金10万円より購入できます。是非ご相談下さい!
・お部屋のご見学は車で2~3件まとめて案内します!
・物件数3000件以上、新築戸建、リノベ物件も多数ご用意しております!
過去に販売していたお部屋の概要 このお部屋の販売は終了いたしました。
| 価格 | -万円 |
| 面積 | 71.58㎡ |
| 間取り | 3bedrooms(3LDK) |
| 管理費 | 月額:7,530円 修繕積立金:月額17,800円 自治会費:月額500円 |
| 所在階 | L棟11F |
| お問い合わせ・ご内見のご予約はこちらからお気軽にどうぞ | |
間取りのご紹介です。3LDK、71.58㎡。
L号棟の最上階。室内リフォーム済みです。
間取りはクリックすると別タブで開きますよ!
エレベーターで最上階まであがってきました。
お部屋の前は開放感のある外廊下です。
共用廊下からはグッドビューが楽しめます。
スカイツリーもちょっと見えました(*´▽`*)なんかうれしい。
お部屋のインターホンはTVモニターがついています。
来訪者の顏が事前に確認できるので防犯面も安心です。
玄関扉をあけておじゃまします。
玄関ホールは縦長空間でゆとりがありますね!
玄関横にはシューズBOXが設置されています。
普段履く靴はここに仕舞って、入りきらない靴はお部屋で管理するのがよさそうです。
シューズBOX横には傘立てや杖を置いておくのによさそうなちょっとしたスペースもありました。
さらに玄関には人感センサーがついています。
人の動きを感知して自動で照明が消灯するので、スイッチを押す手間が省ける上に節電効果もありますd(´∀`*)イイ!
玄関をあがると廊下がまっすぐ伸びています。
絨毯敷きでフカフカですよ~(´▽`人)
廊下をまっすぐ進んだ先の扉をあけて気になるLDKから見ていきましょう!
リビングダイニングは約10.5帖の縦長空間。(絨毯敷きです。)
南向きの大きな窓からは陽ざしの暖かさが感じられます。
窓側からもリビングダイングをご覧ください。
リビングの扉の並びにキッチンの入口があります。
これなら遊びに来たお友達にキッチン内を見られる心配はありません。
キッチン。こちらはフロアがタイルになっています。
水はねなどのお掃除もさっと拭けばキレイに♪
システムキッチンはパナソニック製。
物の出し入れがしやすいスライド収納に吊戸棚と収納豊富です。
コンロは3口、グリルに浄水機能付き水栓と設備も◎!
調理スペースも広くてお料理がしやすそうです。
水栓はホースを伸ばしてシャワーとしてもご利用いただけます。
つづいてリビングダイニング横の和室を見てみましょう。
和室は約6.1帖。こちらも南向きの窓に面しています。
陽ざしがお部屋の奥まで射しこんでいますね(*´∀`)ワァ-
和室といえば押入れですよね。もちろんあります。
中は一部しか写真では見えていませんが、横につながっているので大きな物も入りますよ。
和室の扉をあけてリビングから見るとこんな感じになります。
ごはん食べたら畳でゴロンとしたくなっちゃいますね(*´ 艸`)フフ
今度はリビングダイニングを出て廊下側を見ていきましょう。
(玄関ホールの電気は自動で消えていますね。さすが人感センサー)
廊下を出てすぐ左側の扉は洗面室です。
洗面室はL字型にフロアが伸びており、広さにゆとりがあります。
トイレ、洗濯機置場、洗面化粧台、バスルームがまとまっています。
洗面室を入って右側にあるのはトイレです。
トイレはTOTOの温水洗浄機能付きです。
トイレクイックルなどの掃除道具は上の吊戸棚の中へどうぞ。
おしりだって、洗ってほしい。
という名コピーがありましたね。
洗面化粧台は鏡の裏、引き出しなど収納スペースが豊富です♡
ゴチャゴチャしがちな水廻りですがスッキリ片付いた状態をキープできそうです。
洗濯機置場はお風呂に隣接しています。
脱いだ衣服はそのまま洗濯機に入れられるので楽ですね。
バスルームは浴室換気乾燥機がついています。
冷える季節は暖房を入れておけばヒートショックも防げますよ!
ユニットバスはパナソニック製。
鏡がついた壁面側は木目調の壁パネルが使われています。
追い焚き機能もついているので、家族の帰宅時間がバラバラでもいつでも暖かいお湯に浸かれるのもうれしいですね(*´∀`)
洗面室のお隣の扉の中は給湯器が入っていました。
普段はあけることはなさそうですφ(・ω・ )カキカキ
廊下をさらに玄関の方へ進むと洋室の扉が向かい合っています。
右側の扉の洋室から見てみましょう。
広さは約6.1帖。和室かこちらの洋室が主寝室になるイメージでしょうか(*´▽`*)
もちろん洋室も絨毯敷きです。
クローゼットも物がたくさん仕舞えそうですね。
もう1部屋の洋室は・・・
約4.3帖です。少し細長い縦長の空間です。
こちらもクローゼットがついています。
最後に和室とリビングをつなぐバルコニーに出てみましょう。
どきどき。
バルコニーは約8.52㎡とゆとりの広さ!
南向きで陽当りはバッチグーですd(´∀`*)
お布団からお洗濯物まで気持ちよく干せますね。
正面の眺望です。
ファミリータウン東陽の他の棟が正面に見えますが距離があるので人目は気になりません。太陽がまぶしい!!
左右はほどよく抜けた開放感のある眺めが楽しめます。爽快な気分です。
眼下は敷地内の緑がよく見えます。紅葉がキレイですね!
四季の移ろいを身近に感じながら生活が送れそうです(´▽`人)
ファミリータウン東陽L号棟、いかがでしたでしょうか?
内見のご予約やご質問などございましたらお氣軽にお問い合わせくださいませ♪
弊社、不動産Agent 六棒株式会社では、
□リノベーションマンションはほぼ全て仲介手数料無料!
□その他一般仲介物件は仲介手数料20%~30%OFF!
にてお取り扱いしております!※弊社の「Agent Fee=仲介手数料」についてはご案内、ご面談の際に営業担当者よりご説明いたします!
なるべく沢山のお部屋をホームページに掲載したいと思っておりますが、時間的成約もございますので、残念ながらご紹介できるお部屋の一部しか掲載できておりません。
このホームページに掲載中のお部屋、その他サイト等で気になるお部屋、街を歩いていて気になったマンション等々ございましたら是非、弊社営業部までご相談ください!
~不動産Agent 六棒株式会社の特徴~
・センチュリー21加盟店です!
・一般仲介物件の仲介手数料は20%~30%OFFにてご案内中です!
・リノベーションマンションについてはほぼ全て仲介手数料無料です!
・住宅ローンに自信あります!
・頭金10万円より購入できます。是非ご相談下さい!
・お部屋のご見学は車で2~3件まとめて案内します!
・物件数3000件以上、新築戸建、リノベ物件も多数ご用意しております!
過去に販売していたお部屋の概要 このお部屋の販売は終了いたしました。
| 価格 | -万円 |
| 面積 | 74.90㎡ |
| 間取り | 3bedrooms(3LDK) |
| 管理費 | 月額:7,880円 修繕積立金:月額18,620円 |
| 所在階 | A棟3階 |
| お問い合わせ・ご内見のご予約はこちらからお気軽にどうぞ | |
間取りは3LDK、74.9㎡。
2面にバルコニーのある風通しのいいお部屋です。
間取りはクリックすると別タブで開きますよ!
ご紹介するお部屋は3階なのですが、こちらにはエレベーターがないようです(*’ω’*)
階段であがります。
玄関前の共用廊下です。
2部屋が向かい合わせになっています。(このフロアに他の住戸はありません。)
お部屋のインターホンはTVモニター付き。
事前に来訪者の顏が確認できるので防犯面も安心です(*´∀`)
玄関扉をあけておじゃまします。
玄関ホールは縦長でゆとりのある広さです。
靴の脱ぎ履きもしやすそうです(*´∀`)b
玄関横にはシューズBOXが設置されています。
普段履く靴はここに仕舞って、入りきらない靴は他で管理するのがよさそうです。
玄関には人感センサーがついています。
人の動きを感知して自動で照明が消灯するので、スイッチを押す手間が省ける上に節電効果も期待できますよ。
玄関をあがると絨毯敷きの廊下が左右に伸びています。
廊下を左奥まで進んで、気になるLDKから見ていきましょう!
please come in(●´∀`)ノ
リビングダイニングは約12.6帖の縦長空間。(絨毯敷きです。)
南、西の2面に窓のある明るい空間です゚(´▽`人)ステキ
陽ざしがお部屋の奥までよく射しこんでいますね!
この日はすごく寒かったのですが、お部屋の中は暖房なしでもほんわか暖かい感じがしました。
南の窓側からもリビングダイニングをご覧ください。
キッチンは入口横に独立してスペースがあります。
キッチンは約3.7帖。
フロアはタイル敷きなので、汚れてもサッとお掃除ができますよ。
キッチンはパナソニック製。
引き出し収納に吊戸棚と収納スペースはたっぷりあります♡
お料理好きな奥様にはうれしいですね。
グリルに浄水機能付き水栓と設備も◎。調理スペースもゆったりしています。
水栓はホースを伸ばすとシャワーになるので、シンクも簡単に隅々までお掃除できますよd(´∀`*)
リビングダイニングには隣接して和室があります。
白い扉を横にススーッと開けると・・・
約6帖の和室です。
こちらも窓は南向きで明るい空間となっています。
押入れは収納力があるので、お布団以外にも色々仕舞っておけそうです。
ちなみにエアコンは「にくいねぇ、三菱」でおなじみの三菱霧ヶ峰です。
和室の扉をあけてリビング側とつなげるとこんな感じになります。
絨毯と畳ならどちらでも床に座ってのんびりできますね.ヽ(´∀`*)ノ
今度はリビングを出て廊下側を見ていきましょう!
廊下を出てすぐ左側の扉はトイレです。
TOTOの温水洗浄機能付きトイレです。
トイレクイックルなどの掃除道具は上の吊戸棚へどうぞ。
ボタンひとつで操作が可能なんて・・・時代は進みましたね( ˘ω˘)
トイレのひとつお隣の扉は洗面室です。
洗面室は洗濯機置場、バスルーム、洗面化粧台がまとまっています。
入口は少し段差があるので注意してくださいね。
洗面化粧台はLIXIL製。
鏡の裏や引き出しなど収納スペースも多彩で洗面グッズの整理整頓もしやすそうです。
水栓はホースを伸ばすとシャワーとしても利用可能です。
寝ぐせも簡単になおせて便利です(*´∀`)
洗濯機置場はバスルームのお隣。
脱いだ衣類がそのまま洗濯機に入れやすいですね。
バスルームは浴室換気乾燥機付きです。
冷える季節は暖房機能を使えばヒートショックも防げますよ。
ユニットバスはパナソニック製。
木目調の壁パネルもステキです♡
追い焚き機能もついているので、家族の帰宅時間がバラバラでもいつでも暖かいお湯に浸かれますよ。
洗面室の向かい側は大きな収納スペースになっています。
掃除機やゴルフバッグなど大きな物もすっぽり仕舞っておけますね。
洗面室のお隣のこちらの扉の中は給湯器です。
普段はあけることはあまりなさそうですφ(・ω・ )カキカキ
廊下をさらに玄関側へ進むと2部屋ある洋室の扉が隣り合っています。
中を見てみましょう。
こちらは約5.5帖の洋室です。
北側のバルコニーに面しています。(バルコニーは北と南の2面にあります。)
洋室ももちろん絨毯敷きですよーー。
クローゼットもついています。
もう1部屋の洋室は・・・
約5.2帖です。
どちらも広さがあるので寝室として使えますねd(´∀`*)ネッ!
クローゼットもついています。
洋室2部屋をつなぐ北側のバルコニーに出てみましょう。
どきどき。
陽ざしは期待できませんが、広さはあります。
植物を育ててお部屋から緑ビューを楽しむのもいいかも(*’ω’*)
眺望はというと他の棟に囲まれている感じです。
すこーし距離が近いかな、といった感想です。
正面、左右同じ感じの眺めが続きますφ(・ω・ )カキカキ
最後に和室とリビングダイニングをつなぐ南側のバルコニーに出てみましょう!
陽当りはご覧の通りバッチグー!お洗濯物からお布団まで気持ちよく干せますね。
ちなみに各バルコニーの広さは分かりませんが2つ合わせると16.25㎡です。
南側バルコニーの正面眺望です。
汐浜運河を挟んでマンションが立ち並ぶ風景です。開放感のある気持ちのいい眺めです
d(´∀`*)
左右も同じ眺めが続きます。陽ざしもよく届きますよ(*´∀`)
気候のいい日は運河沿いをお散歩したくなりますね!
ファミリータウン東陽A号棟、いかがでしたでしょうか?
内見のご予約やご質問などございましたらお氣軽にお問い合わせくださいませ♪
弊社、不動産Agent 六棒株式会社では、
□リノベーションマンションはほぼ全て仲介手数料無料!
□その他一般仲介物件は仲介手数料20%~30%OFF!
にてお取り扱いしております!※弊社の「Agent Fee=仲介手数料」についてはご案内、ご面談の際に営業担当者よりご説明いたします!
なるべく沢山のお部屋をホームページに掲載したいと思っておりますが、時間的成約もございますので、残念ながらご紹介できるお部屋の一部しか掲載できておりません。
このホームページに掲載中のお部屋、その他サイト等で気になるお部屋、街を歩いていて気になったマンション等々ございましたら是非、弊社営業部までご相談ください!
~不動産Agent 六棒株式会社の特徴~
・センチュリー21加盟店です!
・一般仲介物件の仲介手数料は20%~30%OFFにてご案内中です!
・リノベーションマンションについてはほぼ全て仲介手数料無料です!
・住宅ローンに自信あります!
・頭金10万円より購入できます。是非ご相談下さい!
・お部屋のご見学は車で2~3件まとめて案内します!
・物件数3000件以上、新築戸建、リノベ物件も多数ご用意しております!
過去に販売していたお部屋の概要 このお部屋の販売は終了いたしました。
| 価格 | -万円 |
| 面積 | 76.2㎡ |
| 間取り | 3bedrooms(3LDK) |
| 管理費 | 月額:8,010円 修繕積立金:月額18,950円 自治会費:月額500円 |
| 所在階 | I棟2F |
| お問い合わせ・ご内見のご予約はこちらからお気軽にどうぞ | |
間取りは3LDK、76.2㎡。I棟の2階です。
室内フルリフォーム済。
間取りはクリックすると別タブで開きますよ!
ご紹介するお部屋は2階。
階段でもすぐ上がれますが、エレベーターも使えますよ。
共用廊下をグイグイ進んでお部屋の前に到着です。
角部屋でなんとポーチがあります!プライベート感がいい感じです。
インターホンはTVモニターがついているので、事前に来訪者の顏が確認できて安心です。
玄関扉をあけてお部屋の中へ入ってみましょう。
玄関ホールは白基調の明るい空間になっています(*´∀`)b
玄関横には白いシューズBOXが設置されています。
収納部分をバラバラに撮ってしまったので分かりにくいですが、収納力は◎!
カウンター部分はお好みのインテリアを飾ってみてはいかがでしょう??
玄関をあがると絨毯敷きの廊下がまっすぐ伸びています。
廊下をまっすぐ進んで気になるLDKから見ていきましょう!
please come in(●´∀`)ノ
リビングダイニングは約11.4帖の縦長空間。
南向きの窓越しにあたたかな陽ざしが感じられます゚+.゚(´▽`人)゚+.゚ィィ!!
エアコンも新規で設置されていますよ。
パナソニックのエオリアです。
南側からもリビングダイニングをご覧ください。
西側にも窓がありました。風通しがよくていいですね。
リビングダイニングの入口に並んでキッチンがあります。
キッチンは約3.8帖とゆとりがあります。
窓があるので自然換気ができるのがうれしいポイントです。
キッチンは白。手元が明るくていいですね!
汚れが目立つのですぐ気づいてお掃除する習慣もつきそうです(´▽`*)
収納スペースもたっぷりありますよ♡
グリルに3口コンロ、浄水機能付き水栓と設備も◎。
水栓はホースを伸ばすとシャワーになるので、シンクも簡単に隅々までお掃除できます。
3部屋ある洋室のうち1部屋はリビングダイニングに隣接しています。
3枚の可動扉をあけると・・・約6.0帖の洋室があらわれました。
こちらもリビングと同じ絨毯敷きです。
クローゼットもたっぷり入りそうです。
可動扉をあけてリビングダイニングと洋室をつなげると広々とした空間になりました。つなげて使ったり、独立させて使ったりとフレキシブルに使えるのがいいですね!
今度はリビングダイニングを出て廊下側を見ていきましょう。
入口に少し段差があるので足元に気を付けてくださいね。
廊下を出てすぐ右側の扉は洗面室です。
洗面室は縦長空間です。
こちらも入口に少し段差があるので足元にお気をつけくださいませ(*’ω’*)
洗面室を入ってすぐ左側には洗面化粧台があります。
鏡の裏や引き出しなど収納も多彩です。水廻りのゴチャゴチャもすっきり片付きそう♡
水栓はホースを伸ばすとシャワーになります。
寝ぐせも簡単になおせますよd(´∀`*)ネッ!
洗面化粧台の向かい側はトイレです。
TOTOの温水洗浄機能付きトイレです。
サニタリー用品は上の棚へ置いておけば足元もすっきり。お掃除も楽ですね。
洗面室の一番奥には洗濯機置場がありました。
上に棚があるのですぐ手の届くところに洗剤も置いておけます。
おっと。洗濯機置場手前に扉があります。
何かと思ったのですが、実は物入でした。中を見てみましょう。
おお!!可動棚付きの物入です。
タオルなどはもちろん、着替えやシャンプーや洗剤のストックなどまとめてこの中に仕舞っておけそうで頼もしいです+.゚(*´∀`)b゚+.゚イィ
洗面化粧台のお隣がバスルーム。
浴室換気乾燥機がついています。
冷える季節は暖房をつけておくヒートショックも防げますよ。
木目調の壁パネルがステキですね♡1日の疲れもゆっくりおとせそうです。
追い焚き機能もあるので、家族の帰宅時間がバラバラでもいつでも暖かいお湯に浸かれます(*´∀`)
洗面室のお隣の扉の中は給湯器でした。
普段はあまり開けることはなさそうです(*’ω’*)
廊下を更に玄関方向へ進むと洋室2部屋の扉が向かい合っています。
写真右側の洋室から見てみましょう。
こちらの洋室は約5.5帖。
壁面一面がクローゼットになっています。
大きな収納家具は用意する必要なさそうです.ヽ(´∀`*)ノ
もう1部屋の洋室は約5.6帖。
戸の洋室も5帖以上とゆとりがありますね。
こちらもクローゼットも収納力があります。
最後にリビングダイニングとお隣の洋室をつなぐバルコニーに出てみましょう。
わくわく。
バルコニーは約12.31㎡。南向きです。
ゆとりがあり、お洗濯物からお布団までまとめて干せそうですね。
正面の眺望です。まわりは他の棟が建っています。
距離があるので人目はさほど気にならないかな、という印象ですφ(・ω・ )メモメモ
左右も同じ感じの風景です。周囲の建物は陽ざしに影響はなさそうです(´∀`)
ファミリータウン東陽I号棟、いかがでしたでしょうか?
内見のご予約やご質問などございましたらお氣軽にお問い合わせくださいませ♪
弊社、不動産Agent 六棒株式会社では、
□リノベーションマンションはほぼ全て仲介手数料無料!
□その他一般仲介物件は仲介手数料20%~30%OFF!
にてお取り扱いしております!※弊社の「Agent Fee=仲介手数料」についてはご案内、ご面談の際に営業担当者よりご説明いたします!
なるべく沢山のお部屋をホームページに掲載したいと思っておりますが、時間的成約もございますので、残念ながらご紹介できるお部屋の一部しか掲載できておりません。
このホームページに掲載中のお部屋、その他サイト等で気になるお部屋、街を歩いていて気になったマンション等々ございましたら是非、弊社営業部までご相談ください!
~不動産Agent 六棒株式会社の特徴~
・センチュリー21加盟店です!
・一般仲介物件の仲介手数料は20%~30%OFFにてご案内中です!
・リノベーションマンションについてはほぼ全て仲介手数料無料です!
・住宅ローンに自信あります!
・頭金10万円より購入できます。是非ご相談下さい!
・お部屋のご見学は車で2~3件まとめて案内します!
・物件数3000件以上、新築戸建、リノベ物件も多数ご用意しております!
過去に販売していたお部屋の概要 このお部屋の販売は終了いたしました。
| 価格 | -万円 |
| 面積 | 71.58㎡ |
| 間取り | 3bedrooms(3LDK) |
| 管理費 | 月額:7,530円 修繕積立金:月額17,800円 自治会費:月額500円 |
| 所在階 | H棟6階 |
| お問い合わせ・ご内見のご予約はこちらからお気軽にどうぞ | |
ここで間取りのご紹介です。
71.58㎡、3LDK。リノベーション済みのピカピカのお部屋です(´▽`*)
今回ご紹介するお部屋はH棟の6階。
ちょっと迷子になりかけましたが、なんとかたどり着けました。
玄関前です。共用廊下は外廊下。
ここからは同マンションの他の棟がみえます。
距離があるので開放感がありますよ。人目も気にせず暮らせそうです。
マンション自体にオートロックはありませんが、お部屋にはTVモニター付きインターホンが設置されています。玄関を開ける前にはこちらで来訪者の顏が確認できるので防犯面も安心です。
では玄関を入ってみましょう。
玄関ホールは白基調の明るい空間になっています。
ゆとりがあるので靴の脱ぎ履きもしやすそうです。
玄関には人感センサーがついており、人の動きを感知して自動で照明が消灯するようになっています。暗い中でもスイッチを探して押す手間が省ける上、節電効果もあります。
玄関の横には天井まで高さのあるシューズBOXが設置されています。
収納力はもちろんのこと、棚の高さが変えられるのでブーツや長靴など背の高い履物も仕舞っておけて便利です。
シューズBOX下のライトで足元が明るいのもうれしいですね(*´▽`*)
玄関をあがるとフカフカの絨毯敷きの廊下がまっすぐ伸びています。
廊下をまっす進んだ先の扉をあけて、先にリビングダイニング・キッチンをご紹介いたします。
リビングダイニングキッチンは約15.7帖。
東向きのゆったりとした縦長空間です。
奥へもうちょっと進んで・・・
こちらがリビングダイニングスペース。廊下と同じ柄のフカフカ絨毯敷きですよ!
東向きなので朝は気持ちのいい陽ざしが入りそうですね☀
リビング内には可動棚付きの収納スペースも設けられています。
日用品などのストックや掃除道具を入れておいたりと色々活躍しそうです。
窓側からもリビングダイニングご覧ください。
縦長空間なので家具の配置もしやすそうですね!
次にキッチンを見ていきましょう。
キッチンスペースは絨毯からツルツルの木目調の床になっています。
お料理の時に水や汚れがとんでもサッと吹けばきれいになりますよ(o’∀`o)
オープンタイプのキッチンはリビングにいる家族と会話を楽しみながらお料理ができるのがいいですね!
ビルトイン食洗器に浄水器付き水栓、物の出し入れがしやすい引き出し収納などキッチンは設備◎。蛇口はのびるのでシンクのお掃除や野菜を洗ったりする時にとても便利です。
リビングダイニングには3枚の可動扉で仕切られて隣接する洋室があります。
可動扉をあけた先は約6.0帖の洋室。
こちらも絨毯敷きです。柱の梁もないので家具の配置もしやすそうです。
こちらの洋室にはウォークインクローゼットがあります。
コの字型に枕棚+お洋服をかけるポールがついており、収納力は◎!
収納が大きいと居住スペースが広く使えるのがうれしいですね。
可動扉をあけてリビングダイニングと洋室をつなげると一体感のある広々とした空間になりました。扉は壁の向こうへ引き込めるので開けたままでもスッキリ見ますよ。
家族構成や生活シーンに合わせてフレキシブルにご利用くださいませ。
リビングダイニングキッチンの入口方向へ戻ってきて・・・このあたりに並んでいる扉を見ていきましょう。
入口を入ってすぐ右側にある白い扉は何かというと、給湯器が入っています。
普段は開けることはないかと思います(-ω- )
キッチンスペース横の木目調の扉は・・・
こちらは洗面室になっていました。縦長空間です。
キッチンと水廻りが近いと家事もまとめてこなしやすそうですね!
洗面室を入ってすぐ左側の扉はトイレです。
ウォシュレットと掃除道具やトイレットペーパーのストックを入れておくのに便利な吊戸棚がついています。
洗面室を入ってすぐ右側は洗面化粧台。
木目調でカッコイイですね!
洗面化粧台は鏡の裏、洗面ボウル下など収納スペースが豊富。
生活感のでがちな小物類も見えないところへスッキリ仕舞っておけますよ。
蛇口はシャワーにもなるので寝ぐせ直しも、洗面ボウルのお掃除も簡単におこなえます。コンセントの差口もあるので、ドライヤーも使えますよ。
ここで朝の身だしなみはバシッと済ませられそうですね。
洗面室の一番奥は洗濯機置場になっています。
上に棚があるので手の届くところに洗剤類を置いておけますよ。
タオル掛けがついているのも何気にうれしいです(*´▽`*)
洗濯機置場の少し手間の壁面には可動棚付きの収納がつくられていました。
タオルやシャンプーのストックなどを仕舞っておくのにちょうどいいですね。
つづいてバスルーム。
木目調のパネルで落ち着いた雰囲気です。癒される。
ちなみにユニットバスはLIXL製。浴室換気乾燥暖房機や追い焚き機能もついて設備は充実しています。これからの季節はヒートショックや寒さ対策に暖房機能が活躍しそうです。
廊下へ戻ってきて、こちら側にある洋室2部屋をご紹介します。
LDKの扉向かって右側の扉の洋室は・・・
約6.0帖。窓の外は玄関前の共用廊下なのであまり開けることはなさそうです。
窓にカーテンレールがついているので、お好みのカーテンをつけて見てくださいね。
こちらのお部屋には大型のクローゼットとエアコンがついています。
大きなタンスなどは買わなくてもこの中に手持ちのお洋服は収まるのではないでしょうか!?
LDKの扉向かって左側の扉の洋室は・・・
約4.7帖の広さ。
壁の向こうにシューズBOXが作られている分、少しお部屋の形は凹凸があります。
こちらも窓の外は玄関前の共用廊下です。
こちらのお部屋にはエアコンはありませんが、配管が通してあるのでエアコンも設置できますよ。収納も大型のクローゼットがついているので、大きな家具等は置かなくて済みそうです。書斎や思い切って荷物置場にしてもいいかも・・・(*´ω`)
窓際はちょっとしたカウンターになっているので、小さな観葉植物を置いたりして楽しむのもいいですね(o´∀`o)
最後にリビングへ戻って・・・
リビングダイニングとお隣の約6.0帖の洋室に面しているバルコニーに出てみます。
バルコニーは約8.52㎡。東向き。
お洗濯物は午前中に干すと陽ざしがバッチリあたるはず!
広さもあるのでたっぷり干せますよ。
バルコニーからの眺望です。正面は中庭の緑を挟んで同じマンションの他の棟が建っています。距離があるので圧迫感はありません。
風通しがいいです!
左右も同じ感じです。こう見るとホントに大きなマンションですね( ゚ ω ゚ )
眼下には中庭の緑が広がっています。
ちょっと紅葉しているみたいですね。四季の移ろいを身近に感じながら穏やかな暮らしができそうです(o’∀`o)
ファミリータウン東陽町H棟、いかがでしたでしょうか?
収納豊富、設備充実のピカピカのお部屋です。
内見のご予約やご質問などございましたらお気軽にお問い合わせくださいませ。
ご連絡お待ちしております。
弊社、不動産Agent 六棒株式会社では、
□リノベーションマンションはほぼ全て仲介手数料無料!
□その他一般仲介物件は仲介手数料20%~30%OFF!
にてお取り扱いしております!※弊社の「Agent Fee=仲介手数料」についてはご案内、ご面談の際に営業担当者よりご説明いたします!
なるべく沢山のお部屋をホームページに掲載したいと思っておりますが、時間的成約もございますので、残念ながらご紹介できるお部屋の一部しか掲載できておりません。
このホームページに掲載中のお部屋、その他サイト等で気になるお部屋、街を歩いていて気になったマンション等々ございましたら是非、弊社営業部までご相談ください!
~不動産Agent 六棒株式会社の特徴~
・センチュリー21加盟店です!
・一般仲介物件の仲介手数料は20%~30%OFFにてご案内中です!
・リノベーションマンションについてはほぼ全て仲介手数料無料です!
・住宅ローンに自信あります!
・頭金10万円より購入できます。是非ご相談下さい!
・お部屋のご見学は車で2~3件まとめて案内します!
・物件数3000件以上、新築戸建、リノベ物件も多数ご用意しております!
過去に販売していたお部屋の概要 このお部屋の販売は終了いたしました。
| 価格 | -万円 |
| 面積 | 71.58㎡ |
| 間取り | 3bedrooms(3LDK) |
| 管理費 | 月額:7,530円 修繕積立金:月額17,800円 |
| 所在階 | F棟11階 |
| お問い合わせ・ご内見のご予約はこちらからお気軽にどうぞ | |
ここからは営業部:大島がご案内します!!
こちらが今回ご紹介させて頂くお部屋の間取りです。
クリックして頂ければ別タブで開きますので、間取り図と見比べながら進んでいくのも良いと思いますよ!!
それではお部屋へと向かいましょう!!
今回のお部屋はF棟の11階!!
上層階なので外廊下からの眺めも良いですね!
内廊下と違い、外廊下は外気と空気の入れ替わりがあるので、嫌な臭いや湿気が籠ることもありません!
景色も楽しめますし、個人的には好きですよ!
お部屋の前までやってきました。
玄関先にはカメラ付きのインターフォンが付いています。
マンションにオートロックは付いていないので、インターフォンがなったらまずはお部屋の中から廊下の様子を確認しましょうね!
直接顔を合わせないので、セールスなどをお断りする際にも罪悪感はそこまで感じませんよ。
玄関ドアを開けると、濃いブラウンの木目調で統一された大人の雰囲気の玄関になっています。
リノベーション済みなので、お部屋の中は新築のような輝き!!
先のお部屋も早く見たいですね!!
玄関には大きなシューズボックスが付いています。
中の棚は高さを自由変えることが出来るので、ブーツ等の背の高い履き物でも問題なく収納することが出来ますよ!!
大容量なので、足元にこだわるオシャレさんでも問題なさそうです!
玄関にはの照明には人感センサーも付いています。
ドアを開ければ玄関がパッと明るくなるので、深夜の買い物帰りでもノーストレスです!
暗闇の中手探りでスイッチを探す苦労も無くなりますよ!
本物件はカーペット敷きになっています。
冬でも裸足で歩けるのは気持ちがいいですよ!!
ペットにも優しいカーペットなのでワンちゃんも大喜びしてくれそうです!!
それでは廊下を突当りまで進んでみましょう!!
スリットの入ったドアを開けると・・・
こちらはリビング・ダイニング・キッチンです!!
広さは約15.6帖。
南向きの窓からは明るい光が入って来ていますよ!!
もちろんリビングもカーペット敷きになっています。
リビングの横には・・・
洋室が繋がっています。
約6.5帖の洋室はリビングとスライド式のドアで仕切られています。
開けていればリビングの一部として、閉じれば一つの洋室として使用することが出来るので、状況に応じて使い分けていきましょう!
大きなクローゼットも付いています。
収納力も優れているので、お部屋の中に収納家具を置く必要もなさそうですね!
結果、スペースを広く使う事のできるクローゼットはとてもありがたいです。
次はキッチンを見ていきましょう。
浄水機能付きの水栓はシャワーヘッドになっています。シンクの隅々まで水を流すことが出来るので、洗い物やお掃除に大活躍してくれますよ!
コンロは3口のグリル付きガスコンロ。秋刀魚の時期はグリルの恩恵を毎日感じることが出来ますね!大根おろしにスダチを絞って・・・ あー、お腹がすいてきました!!
食器洗浄機もあります。お食事後の御皿洗いもボタン一つで乾燥まで終わらせてくれる優れものです。食器洗浄機はここ数年でかなり進化しているので、昔のタイプのモノしか使ったことが無い人は、是非その凄さを体感して下さい!!
収納スペースとしては、シンク下の引き出し、背後の吊戸棚とふんだんに用意されています。吊戸棚の下には食器棚を置くことのできるスペースもあるので、収納に関しては十分すぎるキッチンになっています。
正面に吊戸棚が無いので、視界も開けています。
キッチンは孤立しがちなスペースですが、これならお料理中にご家族とのコミュニケーションもとれそうです。
キッチンから横を見るとドアが見えますね・・・
開けてみましょう!!
はい!
という事で、中は洗面室になっていました。
大きな3面鏡のついた洗面化粧台ですね!3面鏡はほぼ同時に顔の両側が見られるので左右のバランスが分かりやすく、メイクがしやすいのが特徴です。
水栓はシャワーヘッドになっているので、簡単な洗髪ならわざわざお風呂まで行く必要もなさそうです。もちろんお掃除も随分楽になりますよ!
鏡を開けると中はキャビネットになっていて、歯ブラシや基礎化粧品などの小物類を収納できます。
水廻りは散らかりがちではありますが、なるべくスッキリとした状態を保ちたいですね!
洗面台の正面にあるドアを開けると中はトイレです。
トイレは手洗い一体型です。
モチのロンでウォシュレット機能付きですよ!!
棚板も設置してあるので、トイレットペーパー等の消耗品はこちらに置くことが出来ます。カゴ等を使ってスッキリと見せたいですね!
奥に進むと洗濯機置場。そのお隣のドアを開けると、大容量のリネン庫になっています。
次はお風呂です。
浴室には換気乾燥機能が付いています。
湿気は各部を劣化させる原因となるので、入浴後の湿気はなるべく早く取り除きたいところです。可能であれば換気は24時間オンにしておきたいくらいです。
もちろん浴室で洗濯物を干すこともできるので、梅雨の時期などはかなりお世話になりそうな予感です。洗濯機から近いのも嬉しいですね!
光沢のある濃い木目調のパネルが印象的な浴室です。
お風呂ももちろん新規交換済みなので、ピカピカですよ!!
追炊き機能がついているので、1日中アツアツの風呂に入ることが出来ますよ!
仕事で帰りが遅くなっても、熱いお湯に肩まで浸かれば、次の日も頑張れるような気がしてきます。
あと2日頑張れば休日です。がんばれ!!
それでは廊下に戻って・・・
洋室を順に見ていきましょう!
先ずは右側のこちら。
こちらの洋室は約6.2帖の広さがあります。
窓は北向きですが、十分な光が入って来ています。
クローゼット付なので、お洋服もたくさん収納することが出来そうですね!!
これだけの容量があれば、時間のかかる衣替えもあっという間に終りそうです。
次は反対側の洋室です。
こちらの洋室は約4.4帖。
先ほどのお部屋よりは少し小さ目です。
しっかりとクローゼットが付いているので、収納に関しても問題なさそうですよ!
最後にバルコニーへ出てみましょう!
2部屋にまたがるワイドバルコニーです。
十分な広さがあるので、洗濯物を干してもまだ余裕がありそうですね!
南向きということで晴れていれば、気持ちのいい光が入ってきそうです。空も広いですね!!
見おろすと中庭の公園になっていました。
緑が多いのも好印象です!!
では、以上でファミリータウン東陽のご案内を終わります。
いかがでしたでしょうか??
東陽町駅から徒歩5分のマンションです。
リノベーション済みという事で室内はとてもキレイですよ (っ・ω・)っ
内見のご予約やご質問などございましたらお気軽にお問い合わせくださいませ。
ご連絡お待ちしております。
弊社、不動産Agent 六棒株式会社では、
□リノベーションマンションはほぼ全て仲介手数料無料!
□その他一般仲介物件は仲介手数料20%~30%OFF!
にてお取り扱いしております!※弊社の「Agent Fee=仲介手数料」についてはご案内、ご面談の際に営業担当者よりご説明いたします!
なるべく沢山のお部屋をホームページに掲載したいと思っておりますが、時間的成約もございますので、残念ながらご紹介できるお部屋の一部しか掲載できておりません。
このホームページに掲載中のお部屋、その他サイト等で気になるお部屋、街を歩いていて気になったマンション等々ございましたら是非、弊社営業部までご相談ください!
~不動産Agent 六棒株式会社の特徴~
・センチュリー21加盟店です!
・一般仲介物件の仲介手数料は20%~30%OFFにてご案内中です!
・リノベーションマンションについてはほぼ全て仲介手数料無料です!
・住宅ローンに自信あります!
・頭金10万円より購入できます。是非ご相談下さい!
・お部屋のご見学は車で2~3件まとめて案内します!
・物件数3000件以上、新築戸建、リノベ物件も多数ご用意しております!
過去に販売していたお部屋の概要 このお部屋の販売は終了いたしました。
| 価格 | -万円 |
| 面積 | 70.87㎡ |
| 間取り | 3bedrooms(3LDK) |
| 管理費 | 月額:7,450円 修繕積立金:月額17,620円 |
| 所在階 | 11階 |
| お問い合わせ・ご内見のご予約はこちらからお気軽にどうぞ | |
こちらが今回ご紹介させて頂くお部屋の間取りです。
3LDK、70.87㎡、専用庭付きです!!
当物件のリノベーション内容をご紹介いたします!
・システムキッチン新規交換 ・洗面化粧台新規交換
・ユニットバス新規交換 ・ウォシュレット付トイレ新規交換
・照明器具新規交換 ・建具新規交換
・カーテンレール交換 ・クロス張替
・カーペット張替 ・フロアタイル張替
・電気温水器新規設置 ・エアコン新規設置
・網戸張替 ・ハウスクリーニング 他
今回は1階のお部屋なので廊下を歩いて行きます
玄関の前まで来ました。
モニター付きのインターフォンが付いているので、防犯面でも安心です。
煩わしいセールス、勧誘なども顔を合わせることなくお帰り頂けます。
さすがにリフォーム済みという事で、玄関もピカピカですね!
シューズボックスはショートという事で上部がカウンター状になっています。
第一印象でお部屋全体の雰囲気が決まる!と言っても過言では無いので、玄関はいつもオシャレにスッキリを心がけたいですね♪♪
それでは奥へと進んでいきましょう!!
まずはリビング・ダイニング・キッチンから。
約14.2帖もの広さがありますよ!!
そういえば、こちらのお部屋あ基本的にカーペットが敷いてあります。
玄関からずっとカーペットの上を歩いてきましたけど、ふわふわで気持ちいいです
リビング・ダイニングはほとんど説明することも無さそうなので少しの間、写真をご覧ください~
こちらはお隣の約6.0帖の洋室です。
リビングとはスライド式のドアで仕切られているので、開けていればリビングの一部としても使用することが出来ます。
写真は開けた状態で撮っていますよ
大きなクローゼットも付いています。
もちろんスライド式のドアを閉めれば一つのお部屋としても使うことが出来ます。
状況に応じて使い分けていきたいですね
次はキッチンです。
キッチンカウンター前面は天板が出ているので、ハイチェアー等を置けばお洒落なバースペースとしても使うことができます
ダウンライトが照らしてくれているので、なんだかムーディーです。。。
キッチン含め水廻りはタイル貼りになっています。
まぁ、当然と言えば当然ですね!!
水栓は浄水機能付きになっています。日本の水道水は飲むことができるとは言いますが、やはり独特の臭いがありますので。わざわざ別途お水を買ってこなくていいのはとても助かります
コンロも3口あると同時進行で複数のお料理を進めることができるので時間の短縮にもつながりますね
脚元の収納は引き出しタイプになっています。
奥まで無駄なく使うことが出来るのでデッドスペースが生まれにくく、取り出しも簡単です。
キッチンの隣を見ると・・・
こちらは洗面室です。
水栓はビルドインタイプです。汚れが溜まりにくいのでお手入れもカンタン、シャワーヘッドにもなっているので洗髪もできますし、洗面ボウルの隅々まで水を流すことができるのでお掃除も捗ります。
ミラーの内部はキャビネットになっているのでハブラシや基礎化粧品などの小物を収納することができます。
足元の収納は掃除用具等を入れても良さそうですね
引き出しも付いているので、散らかりがちな洗面周りもすっきりと保てそうです。
洗面台の正面は・・・
TOTOのウォシュレット付きのトイレですね!!
繊細かつしっかり洗ってくれるTOTOのウォシュレットの性能の高さは口コミサイトなどでも評価が高いです。
おしり洗浄を使うとき決死の覚悟で構えているにも関わらず、水が出たとき「キタ━━━━(゚∀゚)━━━━!! 」と思わずおしりを浮かしてしまった経験はあるでしょうか??
TOTOならたとえ洗浄力を「強」にしていても、出てきた水にびっくりすることはほとんどありません。
毎回の洗浄前に一度管内に水を通してノズルを洗ってくれる機能も嬉しいですね
奥には洗濯機置場が。
洗面室は脱衣所も兼ねているので、ここで脱いだお洋服はすぐに洗濯することが出来ますね!
リネン庫としても使うことが出来る棚はかなり奥行があります。箱などをうまく使って無駄なスペースを作らないようにしましょう!!
次はお風呂です。
追い焚き機能が付いているので、広々した浴室でタップリのお湯に浸かってリフレッシュしたいですね
その日の疲れはその日のうちに洗い流してしまいましょう!!
木目を活かしたブラウンの壁が落ち着いた雰囲気です。
リラックスの場としては良い環境なのではないでしょうか??
廊下へ戻りましょう。
こちらの洋室は約4.8帖の広さがあります。
クローゼット付なのでお洋服の収納にも困りませんね!
次は玄関に戻ってこちらのお部屋。
こちらは約4.0帖の洋室です。
こちらにもクローゼットが付いています。
収納用の家具でお部屋の中が狭くならないのは助かります。
それでは最後に満を持してバルコニーへ。
ガラガラ―
絶景を期待しましたか??
残念ながら1階のお部屋なのでご覧の通りです。
でもそのかわりに・・・・
なんと専用庭付きです!!!
ちょっとしたサバンナみたいになっちゃっていますが、これはこれで手入れのしがいがあるというものです。
水栓もついていますね。
お花でいっぱいのお庭にしたいですね!!
ペット可の物件なので、ワンちゃんも大喜び!!
犬が苦手な人もいるので、ちゃんとルールは守ってくださいね!!
では、以上でファミリータウン東陽のご案内を終わります。
いかがでしたでしょうか??
東陽町駅徒歩5分、リノベーション済みという事で内装もピカピカですよ。
内見のご予約やご質問などございましたらお気軽にお問い合わせくださいませ。
ご連絡お待ちしております。
弊社、不動産Agent 六棒株式会社では、
□リノベーションマンションはほぼ全て仲介手数料無料!
□その他一般仲介物件は仲介手数料20%~30%OFF!
にてお取り扱いしております!※弊社の「Agent Fee=仲介手数料」についてはご案内、ご面談の際に営業担当者よりご説明いたします!
なるべく沢山のお部屋をホームページに掲載したいと思っておりますが、時間的成約もございますので、残念ながらご紹介できるお部屋の一部しか掲載できておりません。
このホームページに掲載中のお部屋、その他サイト等で気になるお部屋、街を歩いていて気になったマンション等々ございましたら是非、弊社営業部までご相談ください!
~不動産Agent 六棒株式会社の特徴~
・センチュリー21加盟店です!
・一般仲介物件の仲介手数料は20%~30%OFFにてご案内中です!
・リノベーションマンションについてはほぼ全て仲介手数料無料です!
・住宅ローンに自信あります!
・頭金10万円より購入できます。是非ご相談下さい!
・お部屋のご見学は車で2~3件まとめて案内します!
・物件数3000件以上、新築戸建、リノベ物件も多数ご用意しております!
過去に販売していたお部屋の概要 このお部屋の販売は終了いたしました。
| 価格 | -万円 |
| 面積 | 71.00㎡ |
| 間取り | 3bedrooms(3LDK) |
| 管理費 | 管理費:月額7,470円 修繕積立金:月額17,650円 |
| 所在階 | 2階 |
| お問い合わせ・ご内見のご予約はこちらからお気軽にどうぞ | |
こちらが今回ご紹介させて頂くお部屋の間取り図です。
クリックして頂ければ別タブで開きますので、ここからは間取り図と見比べながら進んで行きましょう
2階のお部屋なので、階段の方が早そうな気もしますが、せっかくなのでエレベーターを使いました。
エレベーターを降りるとお部屋までは外廊下が続いています。
台風の日などは大変なことになりますが、湿気や臭いが籠らないので個人的にはオススメです。
高級感のある内廊下もたくさん良い点はあるんですけどね!!
玄関先にはモニター付きのインターフォンが付いています。
お部屋の中にいながら廊下の様子を確認できるので防犯面でも安心できますね。
セールスや勧誘などは顔を合わせることなくお帰り頂けるので、罪悪感も感じることはありませんよ!
それでは中に入っていきましょう。
リフォーム済みの室内なので生まれ変わったようにピカピカですね。
シューズボックスはセパレートタイプなのでカウンターとしても使うことが出来ます。
玄関は全体の第一印象が決まる大切なトコロなのでセンスの良いモノでお洒落に飾りたいですね!!
こちらの物件は基本的にカーペットが敷いてあります。
ホテルのような高級感!
冬に裸足で廊下を歩いても冷たく感じることもありませんよ!!
そのまま奥へと進んでいきましょう!
こちらはリビング・ダイニングですね!
広さは約10.4帖。もちろんカーペット敷きになっていますよ!!
さすがに10帖を越えてくると広く感じますね。
余計なものが付いていないシンプルな造りなので、全体的にスッキリとしてみえます。
お隣のお部屋を見てみましょう。
こちらは約6.0帖の和室になっています。
正方形でフチが無いという特徴で有名な琉球風畳が敷いてあります。
純和風!な作りよりも、モダンな雰囲気の琉球畳風の方がしっくりきます。
リビングから見える和室が違和感なく、LDKの雰囲気にうまく調和します。
手軽に交換することが出来るので、樹脂製や和紙製など、材質や色にこだわることも出来ますよ。
もちろん引き戸を閉めれば1つのお部屋としても機能します。
状況に応じて臨機応変に使い分けていきましょう!
次はこちら。
キッチンです。
大きなシンクの付いた水栓、3口のグリル付きガスコンロが付いています。
グリルの一番の特長は、「直火」と「対流熱」のW加熱を同時にできること。「直火」で食材の表面をこんがり香ばしく焼き上げながら、300~400℃にもなるグリル庫内の「対流熱」が包み込むように加熱するので、旨みをぎゅっと閉じ込めながらすばやく火を通し、お肉料理も柔らかく仕上げることができるのです。
収納もご覧の通りタップリと用意されています。
吊戸棚も付いているので、キッチン回りの物は残らず収納してしまうことが出来そうです。
箱やカゴ等を利用してスッキリとまとめたいですね!
それでは廊下に戻りましょう。
リビングから廊下にでてすぐのアコーディオンドアを開けると・・・
洗面室になっていました
洗面台の水栓はシャワーヘッドになっています。
洗面ボウルの隅々まで水を流すことが出来るので、お掃除もラクラク。簡単な洗髪程度ならここで出来ちゃうのも嬉しいですよね!
洗面台の正面は・・・
予想通りのトイレでした!!
TOTOのウォシュレット付きですね。
口コミサイトなどを覗いてみると「来客時にトイレのメーカーがTOTOじゃないのは少し気が引ける」という意見もあるくらい、日本の消費者からTOTOのトイレは厚い信頼を得ているようです。
突当りは洗濯機置き場になっています。
洗面室は脱衣所も兼ねているので、脱いだお洋服をすぐに洗濯することが出来ますよ!!
リネン庫も付いているので洗濯グッズの置き場所にも困りません。
それではお風呂をみていきましょう!!
シンプルなお風呂ですね。
正直に表現すると、シンプルすぎる気もしてきます。
せめて追い焚き機能くらいは付いていて欲しい気が。。。
最近のお風呂は保温性もいいので、あまり気にしない人は問題ないかもしれませんね。
廊下の途中には電気温水器が付いています。
深夜の安い電気を使ってお湯を温めるので経済的、断水時には中のお水を使う事もできるので、万が一の時には助かりますよ!
お部屋を2つご紹介いたしましょう。
先ずはこちら。
西側のお部屋は約6.1帖の広さがあります。
北側の窓に面しています。
直接太陽の光は入ってきませんが、なかなかに明るいお部屋になっていますね。
クローゼットも付いているので、お洋服も大量に収納することが出来ます。
そういえば、全体的に廊下と他の部分に段差があります。
躓かないように気を付けてくださいね!!
こちらは東側の洋室です。
約4.3帖と先ほどのお部屋よりかは狭めな印象です。
子供部屋にしたり書斎にしたりと自由度の高いお部屋だと思います。
クローゼットがあるので、収納用の家具でお部屋が狭くなることもなさそうですよ!
それでは最後に!!
バルコニーへ出てみましょう!!
南向きのバルコニーです。
目の前に見えるのは「ファミリータウン東陽」の中庭?の部分です。
公園と表現した方がいいかもしれませんね。
この日も子供たちが元気に走り回っていました。
元気が一番ですよね!!
撮影は夕方だったので西日になってしまってますけども。
南向きなので陽当たりも良さそうです。
では、以上でファミリータウン東陽のご案内を終わります。
いかがでしたでしょうか??
東陽町駅徒歩5分、陽当たり良好なお部屋です。
内見のご予約やご質問などございましたらお気軽にお問い合わせくださいませ。
ご連絡お待ちしております。
弊社、不動産Agent 六棒株式会社では、
□リノベーションマンションはほぼ全て仲介手数料無料!
□その他一般仲介物件は仲介手数料20%~30%OFF!
にてお取り扱いしております!※弊社の「Agent Fee=仲介手数料」についてはご案内、ご面談の際に営業担当者よりご説明いたします!
なるべく沢山のお部屋をホームページに掲載したいと思っておりますが、時間的成約もございますので、残念ながらご紹介できるお部屋の一部しか掲載できておりません。
このホームページに掲載中のお部屋、その他サイト等で気になるお部屋、街を歩いていて気になったマンション等々ございましたら是非、弊社営業部までご相談ください!
~不動産Agent 六棒株式会社の特徴~
・センチュリー21加盟店です!
・一般仲介物件の仲介手数料は20%~30%OFFにてご案内中です!
・リノベーションマンションについてはほぼ全て仲介手数料無料です!
・住宅ローンに自信あります!
・頭金10万円より購入できます。是非ご相談下さい!
・お部屋のご見学は車で2~3件まとめて案内します!
・物件数3000件以上、新築戸建、リノベ物件も多数ご用意しております!
過去に販売していたお部屋の概要 このお部屋の販売は終了いたしました。
| 価格 | -万円 |
| 面積 | 71.00㎡ |
| 間取り | 3bedrooms(3LDK) |
| 管理費 | 月額:7,470円 修繕積立金:月額17,650円 |
| 所在階 | 1階 |
| お問い合わせ・ご内見のご予約はこちらからお気軽にどうぞ | |
クリックすると別タブで開くので間取り図を見ながら進んで行ってくださいね!!
棟によってはエントランスが違うので間違わないようにしてくださいね!!
今回は駅から歩いて一番最寄りのエントランスですよc (っ・ω・)っ
今回は1階のお部屋なので廊下を歩いて行きます (((((((((((っ・ω・)っ (((((((((((っ・ω・)っ
到着です。
玄関の前は柵でしきられたスペースになっていますヽ(・∀・ )ノ
一応、このお部屋の敷地内のようですが、まわりの迷惑にならないように整理整頓を心がけてくださいね!!
なかなかの広さがあります( ・`ω・´)
自転車2台くらいならとめられそうな雰囲気です。
玄関前にはモニター付きのインターフォンが付いています!
お部屋の中から廊下の様子が確認できるので、防犯面でも安心です。
治安の悪い地域でもないですが、用心はしすぎても無駄にはなりません∠(`・ω・´)
ぴんぽーん!!
それではお部屋に入りましょう!!
玄関はリフォーム済みという事でピッカピカです。
一歩目から綺麗な室内だと気持ちがいいですね!!
玄関には大きなシューズボックスが付いています!!
中の棚は自由に高さを変えることが出来るので、ブーツなどの背の高い履物でも問題なく収納出来ます。
シューズボックスには姿見も付いているのでお出かけ前のコーディネートチェックもバッチリです ( ゚ω^ )ゝ
玄関には人感センサー付きの照明が付いています。
真夜中に暗闇の中でスイッチを手探りで探さなくても良いですし、何より自動でオンオフをしてくれるので経済的です!!切り忘れることもありませんね!!
シンプルながらも落ち着いた雰囲気の玄関です(○´ω`○)
それでは先へ進みましょう!!
ドアがたくさんありますが、どこから行くのが良いでしょうか??
まぁ、もう決めてるんですけどね ( ̄∀ ̄*)
もちろん迷わず直進です!!!
ひらけゴマ―!!!
こちらはリビング・ダイニング。
約10.4帖の広さがありますよ!!
写真を見てもらうのが一番分かりやすそうなので、特に説明はしないですよ~♪♪
そういえば全く触れていなかったですが、玄関からはカーペットが続いています。
ペット可のお部屋なので動物にも優しいですね(U^ω^)
隣には何やら畳っぽいものが見えますね・・・・
約6帖の和室です。
マンションではあまり見ない、ちゃんとした畳のお部屋です。
襖を閉めれば一つのお部屋として機能しますよ( ´∀`)b
畳の匂いって病みつきになりますよねぇ・・・
和室じゃなくて洋室だとよかったのに・・・・という方は一応、ご相談くださいね!!
障子!押入れ!!
これだけでテンションが上がってきますね(゚▽゚*)乂(*゚▽゚)ノ
次はキッチンです。
リビングとは別のスペースとなっているので、お料理にも集中できそうですね( ー`дー´)
入口に暖簾のようなものを付ければ、香りの強いお料理の際でも他のお部屋は無事だと思います!!
食器棚や冷蔵庫を置いても余裕のあるスペースです。
広いので何人かで協力し合ってのお料理もできそうですねヽ(゚▽゚*)乂(*゚▽゚)ノ
水栓は浄水機能付きです。
シャワーヘッドになっているので、シンク内のお掃除もラクラク。お鍋などに水を注ぐのも楽ですよ( ´∀`)b
3口のグリル付きガスコンロもあるので、大抵のお料理は作れそうですね!!
グリルがあれば毎日美味しいサンマが食べれられそうです!!
収納スペースは十分すぎるほど。
食器棚を新設する必要も無いくらいですね・・・ ( ・`ω・´)
足元の収納は引き出しタイプなので、奥まで無駄なく使うことができますよ!!
上から取り出し下できるので腰への負担も少なくなりますよ!!
それでは廊下に戻りましょう(((((((((((っ・ω・)っ (((((((((((っ・ω・)っ
こちらは洗面室です。
大きなミラーの付いた洗面化粧台です
水栓はシャワーヘッドになっているので、こちらで簡単な洗髪をすることが出来ます。
ミラーには曇り止め加工がなされていますよ c (っ・ω・)っ
洗面室も収納たっぷりです。
ミラー内部は歯ブラシや基礎化粧品などの小物類。
足元の棚はリネン庫として活躍しそうです!!
カゴ等を使ってスッキリと使いたいですね ヽ(´∀`)
洗面台の隣はトイレになっています。
繊細かつしっかり洗ってくれるTOTOのウォシュレットの性能の高さは口コミサイトなどでも評価が高いです。
おしり洗浄を使うとき「来るぞ、来るぞ」と万全の姿勢で構えているにも関わらず水が出たとき思わずおしりを浮かしてしまった経験はないでしょうか??
TOTOならたとえ洗浄力を「強」にしていても、出てきた水にびっくりすることはほとんどありません (・`ω´・ ○)
洗濯機置場もありますね!!
脱衣所も兼ねているので、脱いだお洋服をすぐに洗うことが出来ますよ!!
脱いだらすぐに洗濯機に入れる癖をつけておきましょうc (っ・ω・)っ
次はお風呂です。
浴室換気乾燥機能が付いているので、ここで洗濯物を干すこともできますよ!!
天気に左右されることもないので、梅雨の時期などは大助かりです。゜+.(o´∀`o)゜+.゜
追炊きで常にお風呂を熱い状態に保つことが出来ます。
ピカピカのお風呂でゆったりとお湯に浸かれば、明日への気力も湧いてきそうですね!!
床に使われている素材の表面には規則正しく溝が掘られています。
翌朝には乾くので、スッキリと爽やか。ブラシの通りも良いので掃除も捗りますよ!!
廊下の途中には電気温水器が。
深夜の安い電気を使ってお湯を沸かすので経済的、災害などで断水した際には中の水を使う事もできますよ!!
残すドアも2つですね・・・
まずはこちらから!!
こちらは約4.7帖の洋室です。
ローゼット付なので、お洋服の収納場所にも困りませんね。
寝室としては充分な広さがあるのでは無いでしょうか??
子供部屋としても使えそうですね!!
最後のお部屋は玄関すぐのこちらの洋室。
広さは約6.1帖。
大きな窓が付いているので明るいお部屋となっています (☆Д☆)
もちろんクローゼット付きです。
扉付きのビルドインタイプなのでお部屋の中が狭くなることもありませんよ!!
収納の無いお部屋だとどうしても家具の分で場所を取りますからね( ・`ω・´)
それではカーペットの廊下を通ってバルコニーへと向かいましょう (((((((((((っ・ω・)っ
東向きのバルコニーは窓際の2部屋にまたがっていますヽ(・∀・ )ノ
柵の半分にパネルがはまっているので洗濯物も人目を気にしなくていいですね!!
そして1階の部屋の特権!!専用庭です!!
これはペットも喜びそうですね!!(U^ω^)
マンション前に植わっている木も色付いてきています(○´ω`○)
この日は曇りでしたが、晴れていればまた見え方も違ってきそうですね!!
水道も付いているので花壇を作ることもできそうですよ!!
では、以上でファミリータウン東陽のご案内を終わります。
いかがでしたでしょうか??
東陽町駅から徒歩5分のマンションです。
リノベーション済みという事で室内はとてもキレイですよ (っ・ω・)っ
内見のご予約やご質問などございましたらお気軽にお問い合わせくださいませ。
ご連絡お待ちしております。
過去に販売していたお部屋の概要 このお部屋の販売は終了いたしました。
| 価格 | -万円 |
| 面積 | 70.87㎡ |
| 間取り | 3bedrooms(3LDK) |
| 管理費 | 月額7,450円 修繕積立金:月額17,620円 自治会費:月額500円 |
| 所在階 | 11階 |
| お問い合わせ・ご内見のご予約はこちらからお気軽にどうぞ | |


11階の外廊下です。
開放感のある眺望が広がります。

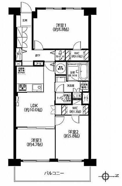
こちらが今回ご紹介させて頂くお部屋の間取りです。
リノベーション済みの3LDK、70.87㎡ですよ(`・ω・´)

明るく広々とした玄関。
靴の脱ぎ履きや荷物を置くのに便利なベンチを設置しました。


天井までの高さのシューズボックスが二か所も付いています。
家族全員の靴類を収納しても余るくらいの嬉しい大容量サイズ!


廊下突き当りにはカウンターとマルチ収納を設置。
ダウンライトの光かカウンターを優しく照らします。
雑貨類や写真などを飾り、通る度に目を愉しませるオリジナル溢れるインテリアコーナーを作るのも素敵ですね。




開放感のあるLDK約10帖。
リビングダイニングの壁面には「エコカラット」を使用。季節をとわず快適な湿度を保ち、気になるニオイや有害な物質も低減します。
ダウンライトが壁面を照らし、まるで絵画を飾ってあるような室内のアクセントになっています。


電話機や無線LANを置けるカウンターを新規設置。
雑貨や植物を飾れば素敵なインテリアコーナーに☆


LDK奥の洋室約4.7帖。
東向きバルコニー面につき日当たり良好のお部屋です。
スライドドアを全て開ければ開放感のある広々LDKになります。



室内の建具と統一感のあるナチュラルな木目調のシステムキッチン。
上部開放の対面式キッチンにつき室内が広々と開放感があります。
機能的な設備仕様でお料理の時間も楽しくなりますね。



白を基調とした洗面所。
ワイドなミラーが嬉しい三面鏡タイプの洗面台は、シンクのお掃除にも便利なハンドシャワー付き水栓。
収納も豊富で洗面グッズからメイク用品まで様々な物を収納する事が出来ます。

洗濯機置場にも収納棚を設置しました。
可愛いボトルの洗剤など並べればお洗濯も楽しく出来ますね!

タオルやストック類の収納に便利なリネン庫。
散らかりがちな洗面スペースもすっきり片付きます。


LDK

リラックス出来るトイレは快適に使用出来るウォシュレット付き。
年間に約12000円もお得になる環境に優しい節約型トイレです。



艶のある木目調のこげ茶と白のコントラストがホテルライクなバスルーム。
空気を含ませて、水の一粒一粒を大粒化した「エアインシャワー」完備。
従来 のシャワーと比べ約35%節水しながら、水に空気を含んで いるので疲れた体と心を癒すように包み込みます。

廊下にはマルチクローゼットを設置。
ゲストの上着を預かったり、季節外の衣類をしまったりマルチに使用出来ます。




廊下からつながる約8.8帖の洋室は、2面採光のとても明るい室内。
淡いグレーのアクセントクロスが上品な雰囲気です。
約1帖の広々ウォークインクローゼット設置。



バルコニー面の洋室約5.8帖。
東側の明るい陽射しが室内を照らします。
ウォークインクローゼットは約1.3帖の大容量タイプ。衣類や小物類まですっきり片付きますね。



2部屋に面した明るいワイドバルコニー。
11階高層階からの大きな開放感と彼方まで見渡せる眺望が広がります。
眼下には東京湾に繋がる運河が流れています。
日々の暮らしを快適に彩る充実の設備。スタイリッシュで洗練された室内は各所に収納を設置して、居住スペースを広々と使用出来るようにしました。
空と風と緑に包まれる心潤す東京リバービュー「ファミリータウン東陽」。
皆様のお越しをお待ちしております。
内見のご予約やご質問などございましたらお気軽にお問い合わせくださいませ。
弊社、不動産Agent 六棒株式会社では、
□リノベーションマンションはほぼ全て仲介手数料無料!
□その他一般仲介物件は仲介手数料20%~30%OFF!
にてお取り扱いしております!※弊社の「Agent Fee=仲介手数料」についてはご案内、ご面談の際に営業担当者よりご説明いたします!
なるべく沢山のお部屋をホームページに掲載したいと思っておりますが、時間的成約もございますので、残念ながらご紹介できるお部屋の一部しか掲載できておりません。
このホームページに掲載中のお部屋、その他サイト等で気になるお部屋、街を歩いていて気になったマンション等々ございましたら是非、弊社営業部までご相談ください!
~不動産Agent 六棒株式会社の特徴~
・センチュリー21加盟店です!
・一般仲介物件の仲介手数料は20%~30%OFFにてご案内中です!
・リノベーションマンションについてはほぼ全て仲介手数料無料です!
・住宅ローンに自信あります!
・頭金10万円より購入できます。是非ご相談下さい!
・お部屋のご見学は車で2~3件まとめて案内します!
・物件数3000件以上、新築戸建、リノベ物件も多数ご用意しております!

































































































































































































































































































































































































































































































































































































































































弊社 公式HP
六棒総合研究所
掲載予定物件
価格変更と販売終了物件
ハザードマップ検索
適合証明書.jp
Instagram