・
□□□□□□□□□□□□□□□□□□□□□□□□□□□□□□□□□□□□□□□
いつも弊社ホームページをご覧頂き誠にありがとうございます。
高円寺ダイヤモンドマンションはお陰様で販売を終了致しました。弊社問合せフォームにてご要望頂けましたら、当お部屋でキャンセル等が発生した場合、他のお部屋が販売になりました際にご紹介させて頂きます。
不動産Agent 六棒株式会社
TEL:03‐5413‐5336
□□□□□□□□□□□□□□□□□□□□□□□□□□□□□□□□□□□□□□□
・
★アクセス
東京メトロ丸ノ内線「新高円寺」駅徒歩3分
JR中央・総武線「高円寺」駅徒歩8分
東京メトロ丸ノ内線「東高円寺」駅徒歩9分
★ライフインフォメーション
ローソンストア100・・・徒歩2分
まいばすけっと・・・徒歩2分
新高円寺駅前クリニック・・・徒歩4分
トモズ・・・徒歩5分
杉並区役所・・・徒歩5分
新高円寺駅前郵便局・・・徒歩3分
蚕糸の森公園・・・徒歩6分
区立高円寺図書館・・・徒歩7分
今回は東京メトロ丸ノ内線「新高円寺」駅から徒歩3分のマンション『高円寺ダイヤモンドマンション』を紹介します。
「新高円寺」駅は、東京メトロ丸ノ内線で新宿駅から約10分、大手町駅から30分とアクセスが良く、お仕事に電車を使われる方もとても便利です!!
駅前には青梅街道が東西に走り、車も人もたくさん通っていて賑やかです♪♪
駅を出てすぐの所に「新高円寺ツインビル」が建っています。
聖路加や赤坂などのツインタワーは知っていましたが、まさか新高円寺駅にもツインタワーがあるとは。。
中はオフィスやマンションになっているようです。
そのツインビルにはスーパー「クイーンズ伊勢丹」が入っています。
夜11時まで営業しているので、お仕事帰りにもお買い物をゆっくりしていただく事が出来ます。
また郵便局の出張所もビル内にあります。
駅前から北に向かって「高円寺ルック商店街」が延びています。
商店街の中には、雑貨屋さん、ドラッグストア、書店、郵便局、床屋さん、美容院、整体屋さん、居酒屋さん、コンビニ、パン屋さん・・・そして高円寺らしい古着屋さんやアクセサリー屋さん、タトゥー屋さんや水タバコを体験できるお店まで、本当に様々なお店が並んでいます。
あっち向いてこっち向いてうろうろしながら歩いていると、高円寺駅まで行けますよ(*^。^*)
青梅街道沿いにはドラッグストア「tomo’s」とスーパー「いなげや」があります。
このいなげやも夜11時まで営業しているので、駅前のクイーンズ伊勢丹と合わせてご利用ください☆
いなげやの路地を入って、五日市街道に向かって歩いていると、かっぱ公園がありました。
たしか高円寺の方にもかっぱの銅像があったはず。。。
この辺はかっぱに所縁があるのかもしれませんね。
ご興味のある方は、お休みの日にかっぱ探索をしてみてください笑
それではマンションへと向かいましょう!
青梅街道を東へ向かっていきます。
セブンイレブンが見えるとマンションまではもうすぐです。
徒歩3分の好立地なので、あっという間の到着となります。
新高円寺駅から徒歩3分。総世帯数117戸の大規模マンションが高円寺ダイヤモンドマンションです。エントランスは安心のオートロック。
徒歩5分圏内にスーパー、ドラッグストア、コンビニ、郵便局などがあり生活利便性も良好です。
マンションの1階は駐車場になっています。
あまり数は無いらしいので、すでにお車をお持ちの方は要確認です。
エントランスは青梅街道沿い。
綺麗に手入れされていますね。
オートロックも付いています。
ちょっと調子が悪いそうで(住人の方が言ってました)開けるのに少しコツがいるとの事。
住んでいる人にしか分からないという、ある意味、最強のセキュリティかもしれません。
因みに私1人では開けられませんでした。(先ほどの住人の方に手伝ってもらいました)
エントランスもキレイに掃除が行き届いていますね。
大規模マンションですがエレベーターも2基あるので、朝の混雑は比較的軽そうです。
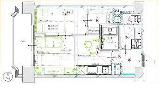
こちらが、今回ご紹介するお部屋の間取り図 ↓ ↓ ↓
※間取り図は別タブで開きますので、確認しながらご覧いただくことが出来ます。
お部屋は9階、専有面積47.07㎡の1LDK1+DEN。おひとり暮らしの方にお勧めのお部屋です。では、早速行ってみましょう!
【玄関ホール:シューズボックス・収納・洗濯機スペース有】
【トイレ:温水洗浄機能一体型・吊り戸棚付き】
【洗面室:三面鏡付き】
【浴室:追い焚き機能・浴室換気乾燥機付き】
【LDK:約9帖・南向きバルコニー付き】
【キッチン:食器洗浄乾燥機付き】
【洋室:約4帖・ウォークインクローゼット付き】
【DEN:約3帖・南向き窓】
【眺望】
・
以上で高円寺ダイヤモンドマンションのご案内を終わります。
いかがでしたでしょうか??
新高円寺駅から徒歩3分のマンションです。
リノベーション済みという事で室内はとてもキレイですよ (っ・ω・)っ
内見のご予約やご質問などございましたらお気軽にお問い合わせくださいませ。
ご連絡お待ちしております。
弊社、不動産Agent 六棒株式会社では、一般仲介物件は仲介手数料20%~30%OFF!
にてお取り扱いしております!
なるべく沢山のお部屋をホームページに掲載したいと思っておりますが、時間的成約もございますので、残念ながらご紹介できるお部屋の一部しか掲載できておりません。
このホームページに掲載中のお部屋、その他サイト等で気になるお部屋、街を歩いていて気になったマンション等々ございましたら是非、弊社営業部までご相談ください!
~不動産Agent 六棒株式会社の特徴~
・一般仲介物件の仲介手数料は20%~30%OFFにてご案内中です!
・住宅ローンに自信あります!
・頭金10万円より購入できます。是非ご相談下さい!
・お部屋のご見学は車で2~3件まとめて案内します!
・物件数3000件以上、新築戸建、リノベ物件も多数ご用意しております!
過去に販売していたお部屋の概要 こちらのお部屋の販売は終了いたしました
| 価格 | -万円 |
| 面積 | 29.37㎡ |
| 間取り | 1bedroom(1LDK) |
| 管理費 | 月額7050円 修繕積立金:月額14,100円 |
| 所在階 | 3階 |
| お問い合わせ・ご内見のご予約はこちらからお気軽にどうぞ | |
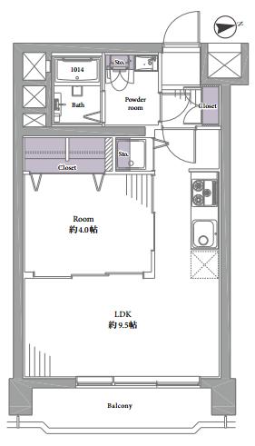
こちらが今回、ご紹介させて頂くお部屋の間取りです。
専有面積29.37㎡の1LDK!!
リノベーションによって新しく生まれ変わったお部屋です!
エレベーターをおりるとお部屋までは内廊下になっています。
雨や風の影響を受けないのはありがたいですよね。
車の音なども入ってこないのでホテルの様な落ち着いた雰囲気を味わうことが出来ます。
玄関前にはモニター付きのインターフォンが付いています。
お部屋の中にいながら廊下の様子を確認できるので、防犯面でも心強いです。
エントランスにオートロックが付いているとはいえ、用心はしすぎるという事はありませんからね!インターフォンがなったらまずは相手の顔を確認してくださいね!
それでは中に入って行きましょう!
さすがリノベーション済みのお部屋!玄関からピカピカですね!!
入ってすぐ左手にはシューズボックスがあります。1LDKの割には大きな物なので、靴をたくさん持っているお洒落さんにも嬉しいですね。棚の高さは自由に調節することが出来るので、背の高い履物でも問題なく収納することができますよ。
それでは先へと進んで行きましょう。
玄関突き当たりのこちらのドアを開けると・・・
はい!
こちらはリビング・ダイニング・キッチンです。
照明がダウンライトになっていて、スッキリとした印象です。
ダウンライトはレール上に取り付けてあるので、向きや角度は自由に調節することが出来ます。
お隣は洋室になっています。
こちらにもダウンライトがついていますね。
LDと洋室はスライド式のドアで仕切られているので、リビングの一部として使うのか、寝室としてドアは閉じておくのか。。。。状況に応じて使い分けましょう!
ウォークインクローゼットも付いています。
これだけの容量があればお部屋の中に収納用の家具を置く必要もなさそうですね。
お部屋の中を広く使うことが出来るので、これは嬉しいです!
次はキッチンです。
コンロは2口ですが、グリル付き。「2口はちょっと。。。やっぱり3口ないと。。。」という人こそ、家のコンロを3口同時に稼働させたことがなかったりするものです。
水栓は浄水機能付き。シャワーヘッドになっているので、シンクの隅々まで水を流すことができます。洗い物の際には大活躍してくれることと思います。
シンク下と吊戸棚で収納スペースもたくさんあります。
これだけのスペースがあればキッチン周りの小物などは全て収納してしまえそうですね!
それでは玄関へ戻って・・・
こちらのドアを開けてみましょう。
中は洗面室になっていました!
シンプルな洗面化粧台が付いています。いろいろ付いた多機能な洗面台も良いですが、このくらい無駄を省いた洗面化粧台の方が案外使い勝手が良かったりするものですよね?ミラーサイドにキャビネットが付いていたり、シャワーヘッドの水栓が付いていたりと物足りなく感じることは無いと思います。
洗面化粧台の隣には洗濯機置場も付いています。
洗面室は脱衣所も兼ねているので、脱いだお洋服はすぐに洗濯することが出来ますよ。
テキトーな所で脱いだ靴下がそのまま放置されることも無くなる!かもしれませんね!
次はお風呂です。
お風呂には浴室換気乾燥機能が付いています。
その名の通り、浴室を乾燥させる機能なのですが、これを使えばカビの発生を抑えることができたり、浴室で洗濯物が干せたり、入浴前に浴室を暖めてヒートショックを防いだりとなかなか優秀なやつです。
最低でも換気扇は24時間まわしておきたいところです。
追炊き機能も付いています。
1日中時間を気にせずアツアツのお風呂に入ることが出来るので、残業も気にせず深夜まで出来ますね!たとえ朝帰りになってしまったとしてもお風呂は暖かく迎えてくれる事でしょう!
洗面室を挟んでお風呂とは反対側です。
こちらはトイレですね!
TOTOのウォシュレット機能付きのトイレです。
リモコンタイプなので操作性も良さそうですね!
TOTOのトイレは汚れに強く、節水性に優れ、お手入れもカンタン!という高性能なトイレです。トイレですら日々進化していると思えば、私ももっと頑張らないとと感じますね!!
最後にバルコニーを見てみましょう。
がらがら~~
緑の床のバルコニーですね。
何故緑なのかというと、空襲に備えて上空から発見されにくくなるように!!ではないのですよ。
屋外用の防水塗料のシリーズに緑のものがあってたまたまそれを使っているだけで御座います。深い意味は(たぶん)ありません。
西向きのバルコニーですが、眺望・陽当たりはよくありません。
まぁ、都市部のマンションだとよくある感じではあります。
陽当りと眺望は絶対!!っていう人は町田にでも住んでいればいいのですよ!!
アクセスの良さ=通勤時間の短縮=人生の有効活用!!です!!
では、以上で高円寺ダイヤモンドマンションのご案内を終わります。
いかがでしたでしょうか??
新高円寺駅から徒歩3分のマンションです。
リノベーション済みという事で室内はとてもキレイですよ !
内見のご予約やご質問などございましたらお気軽にお問い合わせくださいませ。
ご連絡お待ちしております。
弊社、不動産Agent 六棒株式会社では、
□リノベーションマンションはほぼ全て仲介手数料無料!
□その他一般仲介物件は仲介手数料20%~30%OFF!
にてお取り扱いしております!※弊社の「Agent Fee=仲介手数料」についてはご案内、ご面談の際に営業担当者よりご説明いたします!
なるべく沢山のお部屋をホームページに掲載したいと思っておりますが、時間的成約もございますので、残念ながらご紹介できるお部屋の一部しか掲載できておりません。
このホームページに掲載中のお部屋、その他サイト等で気になるお部屋、街を歩いていて気になったマンション等々ございましたら是非、弊社営業部までご相談ください!
~不動産Agent 六棒株式会社の特徴~
・一般仲介物件の仲介手数料は20%~30%OFFにてご案内中です!
・リノベーションマンションについてはほぼ全て仲介手数料無料です!
・住宅ローンに自信あります!
・頭金10万円より購入できます。是非ご相談下さい!
・お部屋のご見学は車で2~3件まとめて案内します!
・物件数3000件以上、新築戸建、リノベ物件も多数ご用意しております!
過去に販売していたお部屋の概要 このお部屋の販売は終了いたしました。
| 価格 | -万円 | |
| 面積 |
|
|
| 間取り | 1bedroom(1LDK) | |
| 管理費 | 月額7,150円 修繕積立金:月額7,138円 | |
| 所在階 | 3階 | |
| お問い合わせ・ご内見のご予約はこちらからお気軽にどうぞ | ||
間取りのご紹介です。1LDK、37.13㎡(バルコニー含む)。
陽当たり・眺望良好なお部屋です。
シングルの方におすすめです。
室内は只今リノベーション工事中!
一足先に充実のリノベーション内容をご紹介いたします。
■キッチン・・・システムキッチン(パナソニック)
■浴室・・・ユニットバス(TOTO)、追い焚き機能付き
■洗面所・・・洗面化粧台 、洗濯水栓、防水パン
■トイレ・・・LIXIL、ウォシュレット付き
■その他・・・フローリング貼替、建具・玄関収納交換、壁・天井クロス貼替、フロアタイル貼替、クッションフロア貼替、給湯器新規設置、エアコン(1基)、新規照明器具取付、収納棚新設、ハウスクリーニング
■アフターサービス保証付き
【内装工事終了予定:2015年8月中旬】
工事中のご紹介も可能です。
ご内見のご希望・ご質問などございましたら、お気軽にお問い合わせくださいませ♪
過去に販売していたお部屋の概要 このお部屋の販売は終了いたしました。
| 価格 | -万円 |
| 面積 | 47.97㎡ |
| 間取り | 2bedrooms(2DK) |
| 管理費 | 月額:11,705円 修繕積立金:月額11,653円 |
| 所在階 | 11階 |
間取りのご紹介です。2DK、47.97㎡。
最上階、南向きにつき陽当たり・眺望ともに恵まれたお部屋です。
室内は只今リノベーション工事中!
一足先に充実のリノベーション内容をご紹介いたします。
■キッチン・・・システムキッチン(パナソニック)
■浴室・・・ユニットバス(TOTO)、追い焚き機能付き、浴室換気乾燥暖房機付き
■洗面所・・・洗面化粧台 、洗濯水栓、防水パン
■トイレ・・・LIXIL、ウォシュレット機能付き
■その他・・・フローリング貼替、壁・天井クロス貼替、フロアタイル貼替、クッションフロア張替、建具・玄関収納交換、給湯器交換、エアコン(1基)、新規照明器具取付、ウォークインクローゼット新設、スイッチ・コンセント交換、ハウスクリーニング
■アフターサービス保証付き
【内装工事終了予定:2015年6月下旬】
工事中のご紹介も可能です。
ご内見のご希望・ご質問などございましたら、お気軽にお問い合わせくださいませ♪

















































































弊社 公式HP
六棒総合研究所
掲載予定物件
価格変更と販売終了物件
ハザードマップ検索
適合証明書.jp
Facebook
Twitter
Instagram