□□□□□□□□□□□□□□□□□□□□□□□□□□□□□□□□□□□□□□□
いつも弊社ホームページをご覧頂き誠にありがとうございます。
日興パレス西荻窪はお陰様で販売を終了致しました。弊社問合せフォームにてご要望頂けましたら、当お部屋でキャンセル等が発生した場合、他のお部屋が販売になりました際にご紹介させて頂きます。
弊社では、仲介手数料無料orお値引(50%off、30%off、20%off)にて皆様のマイホーム探しのお手伝いをさせて頂きいております。日興パレス西荻窪の類似物件や、お探しのご条件等をお聞かせ頂けましたらご条件に合ったお部屋をご紹介させて頂きます。また、ご来社頂き一緒に探させて頂くことも可能ですので、是非弊社問合せフォームよりお気軽にお問合せください。
不動産Agent 六棒株式会社
TEL:03‐5413‐5336
□□□□□□□□□□□□□□□□□□□□□□□□□□□□□□□□□□□□□□□
本日はJR中央線・中央総武線 「西荻窪」駅 より徒歩13分 リノベーションマンション 日興パレス西荻窪 4Fのお部屋をご案内致します!
本日は、杉並区桃井よりリノベーションマンション『日興パレス西荻窪』のご紹介です。
アクセス
JR中央線・中央総武線 「西荻窪」駅 徒歩13分
『西荻窪』と聞いて、みなさんはなにを連想されますか???
サブカルチャー?飲み屋や喫茶店? アンティークショップ?西荻窪には様々な魅力があり、一言では言い表せない『西荻感』があります☆
西荻窪駅南口には、飲み屋や飲食店が軒を連ねる柳小路があります。エスニックなお店も多く、雰囲気が良いです♪♪きっとお気に入りのお店が見つかるはず(●’∀’●)ノ
南口の仲通街は、アーケードになっている商店街♫美味しそうなハンバーガーショップなどの飲食店や、文房具屋さんなどの昔ながらのお店が軒を連ねています。アーケードに吊るされているピンクの象☆これも一つの『西荻感』(笑)
南口方面には、アンティークショップが集まっています。お休みの日に散策してみるのも楽しみです(o´∀`ノ
マンションから徒歩約11分のところには、『善福寺公園』☆善福寺池を中心に、遊具・遊歩道が整備され、市民の憩いの場となっています(o´∀`ノ湧水量も多く、近辺には武蔵野の雑木林を思わせる木々も多くあり、野鳥や草花も豊富で、都内でも数少ない自然豊かな公園です(´∀`*)
お買い物環境もバッチリです♫駅前に24時間営業の『西友』、徒歩6分でスーパーマーケット『サミット』&家電量販店『コジマ』、徒歩6分で『クインズ伊勢丹』&『ユニクロ』です。
こちらが今回ご紹介させていただく『日興パレス西荻窪』です♪♪昭和60年築、9階建て、総世帯数31戸。青梅街道沿いに建つマンション☆平成25年5月に大規模修繕工事実施済みです。
前面道路は青梅街道ですので、交通量は多めです。マンション1Fには、歯科医院が入っています。
マンションのエントランスは、道を一本入ったところにあります♪♪階段はありませんので、車イスやベビーカーでの移動もスムーズ☆
エントランスホールは明るい雰囲気♪♪管理体制は、巡回管理です。
エントランスホール奥のこちらのエレベーターでお部屋へと向かいます♪♪
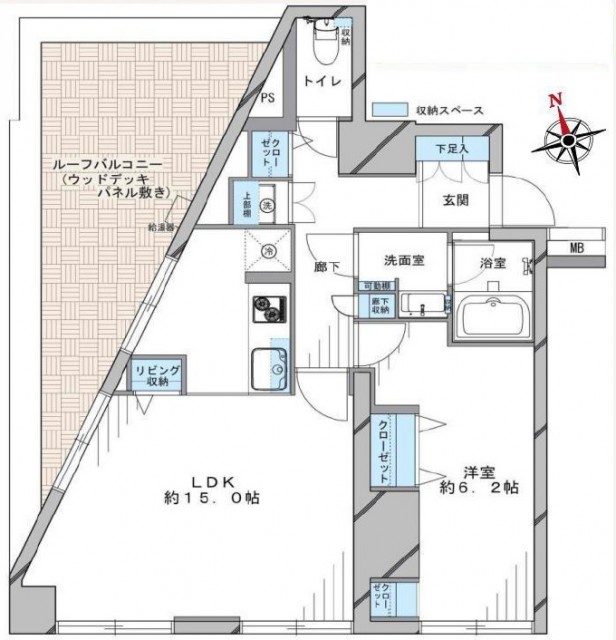
こちらが今回ご紹介させて頂くお部屋の間取り図です。
クリックして頂ければ別タブで開きますので、ここからは間取り図と見比べながら進んで行きましょう。
エレベーターを降りるとお部屋までは内廊下です。
雨や風の影響をうけないという事、外の音が聞こえない静かな雰囲気、などのメリットがありますよ。
玄関前にはモニター付きのインターフォンが付いています。
オートロックの付いていないマンションですが、お部屋の中から廊下の様子を確認できるのは防犯的にも心強いです。
面倒なセールスや勧誘などはお部屋の中からお断りしましょう!
それでは中に入って行きましょう。
お邪魔しまーーーーーっす!!
さすがリノベーション済みの室内です!!
ピカピカで気持ちがいいですよ!
大容量・トールタイプのシューズボックスにはご家族全員の分の履物が余裕を持って収まりそうですね
玄関照明には人感センサーが付いています。
人と明るさに反応し、自動的に点灯・消灯する人感センサ機能は必要な時だけ点灯するので経済的で、つけ忘れや消し忘れの心配もありません。また、スイッチ操作が不要なので、荷物で手がいっぱいの時などもパッと点灯して便利。防犯にも役立ちます。
いろいろドアが付いていますが、まずはリビングを見てみたいですよね!!?
廊下の突き当たりまで進んで行きますよー!!
黒いドアを開けると・・・・
こちらはリビング・ダイニング・キッチンです。
広さは約15.0帖と十分な広さ、大きなソファやテーブルも気兼ねすることなく置けそうです。
南向きの窓からは明るい光が差し込んできます!!
太陽からの自然な光でお部屋が温まるとなんだか眠くなっちゃいますよねー・・・
さすがに15帖もあるとお部屋としても広く感じられますよ!!
しっかり収納も付いています。
部屋自体は広くても、収納用の家具を置くとなんだかんだで狭くなってしまいますものね。
ビルドインタイプの収納があればお部屋を狭くすることもありませんよ!!
次はキッチンを見てみましょう!!
水栓は浄水機能付きになっています。日本の水道水は飲むことができるとは言いますが、やはり独特の臭いがありますので。わざわざ別途お水を買ってこなくていいのはとても助かります 。
コンロも3口あると同時進行で複数のお料理を進めることができるので時間の短縮にもつながりますね。
そしてさらに食器洗浄機が付いています。寝ている間に洗い物から乾燥までボタン一つで働いてくれる食器洗浄機はあるのと無いのとでは大違いですよ。
お洒落なキッチンにはお洒落な料理が似合いますよ!
なんだかさりげなくエスニック料理が流行っているみたいなので、思い切って挑戦してみるのも良いかもしれませんね!!
スパイスなんかにもこだわってみても面白そうです!!
収納スペースについては細かな説明をするよりも、写真を見て頂いた方が早いかと思います。
足もとの収納は引き出しタイプなので、奥まで無駄なく使うことが出来ますよ!!100円均一などで売っている箱等を上手く利用してスッキリとしたキッチンを維持してきたいですね。
壁に面したクローズドキッチンではありますが、リビングからの距離も近いので、キッチンで料理や洗い物をしている間でも、テレビを見たり、子どもやご家族の様子を見ながら作業をすることができ、疎外感や子どもが危ないことしてないかなどの不安感を感じることもなさそうです。
それでは次は廊下に戻って・・・・
手前のドアを開けてみましょう!!
こちらは寝室ですね。
約6.2帖の広さがあるこちらの洋室は縦に長い形をしています。
窓が付いているので、明るいお部屋になっていますね。
収納スペースは2か所付いています。
良く見るハンガーパイプの付いたクローゼットと、壁側にはロールカーテンが付いていますね。
収納部が目につかない事で、室内がスッキリして見えるかと思います。
廊下に戻って次のドアを開けると収納スペースでした。
中の棚は高さの調節が出来るので、掃除機などの大型の家電も収納することができますよ。
全体の真ん中に位置している収納なので、使用頻度の高いものを優先して入れていきたいですね!!
さてさて、お次は・・・
こちらは洗面室です。
洗面化粧台には大きなミラーが付いています。内部が収納になっている3面鏡タイプではないですが、その分視認性に優れた造りになっています。
洗面ボウルのサイドにあるドライスペースもしっかりと確保されているので、ちょっとした小物の仮置きがしたいお化粧時などに重宝します。ドライスペースも意外となかったり狭くて使えなかったりする物件が多いので、他にも物件を見られるのであればぜひチェック項目に追加して置いてください。
次はお風呂です。
こちらもピカピカの浴室です。
浴室換気乾燥機能が付いているので、雨の日はこちらで洗濯物を干すことが出来ます。
梅雨の時期や夕立の怖い夏場などには本当に大活躍してくれることと思います。
また入浴前に浴室を温めておく事もできるので、真冬の一番風呂も苦じゃありませんよ!!
浴室には照明切り替えスイッチが付いています。
ボタン一つで清潔感のある白色光と、温かみのある電球色の光に切り替えることが出来るので、その日の気分に合わせて照明を選ぶことができますよ!!
追い焚き機能が付いているので、いつでも熱いお風呂に入ることが出来ますよ。
仕事でへとへとに疲れていても、熱いお風呂にゆったり浸かれば一日の疲れも吹き飛びます。
その他に、洗濯機置場とクローゼットが廊下についています。
玄関の正面に位置しているので、外から帰ってきたらすぐに靴下を洗濯機に入れましょう!!
外の汚れを室内に持込まないようにするためにも、このひと手間が大切なのですよ。
そして、
もうドアを開けちゃいましたが、次はトイレです。
LIXILのウォシュレット付きのトイレですね。
個人的にはLIXILのトイレは丸みを帯びたカワイイデザイン(トイレの話しですよ!)なので大手メーカーの中では一番のお気に入りです。
もちろん機能の面でも他社さんの物とも遜色ないですよ!!
吊戸棚が付いているので、トイレットペーパー等の消耗品はこちらに入れておく事ができますよ。
扉があれば人目につかないので多少雑に扱っても大丈夫・・・・かもしれませんね!!
最後にバルコニーです。
ルーフバルコニーになっているので屋根が無い分、陽当たりにも恵まれています。
ウッドデッキパネルで何だかお洒落な雰囲気も出ていますね!!
ひらけている側は北側になります。
良い感じの青空が広がっていますよ!!
では、以上で日興パレス西荻窪のご案内を終わります。
いかがでしたでしょうか??
西荻窪駅徒歩13分、駅からは少し離れますが、十分徒歩圏内で閑静な住環境です。
内見のご予約やご質問などございましたらお気軽にお問い合わせくださいませ。
ご連絡お待ちしております。
弊社、不動産Agent 六棒株式会社では、
□リノベーションマンションはほぼ全て仲介手数料無料!
□その他一般仲介物件は仲介手数料20%~30%OFF!
にてお取り扱いしております!※弊社の「Agent Fee=仲介手数料」についてはご案内、ご面談の際に営業担当者よりご説明いたします!
なるべく沢山のお部屋をホームページに掲載したいと思っておりますが、時間的成約もございますので、残念ながらご紹介できるお部屋の一部しか掲載できておりません。
このホームページに掲載中のお部屋、その他サイト等で気になるお部屋、街を歩いていて気になったマンション等々ございましたら是非、弊社営業部までご相談ください!
~不動産Agent 六棒株式会社の特徴~
・一般仲介物件の仲介手数料は20%~30%OFFにてご案内中です!
・リノベーションマンションについてはほぼ全て仲介手数料無料です!
・住宅ローンに自信あります!
・頭金10万円より購入できます。是非ご相談下さい!
・お部屋のご見学は車で2~3件まとめて案内します!
・物件数3000件以上、新築戸建、リノベ物件も多数ご用意しております!
過去に販売していたお部屋の概要 このお部屋の販売は終了いたしました。
| 価格 | -万円 |
| 面積 | 34.79㎡ |
| 間取り | 1bedroom(1DK) |
| 管理費 | 月額15,900円 修繕積立金:月額7,400円 |
| 所在階 | 3階 |
| お問い合わせ・ご内見のご予約はこちらからお気軽にどうぞ | |
それでは間取りのご紹介です。1DK、34.79㎡。3階。
ゆとりの1人暮らし、もしくはご夫婦でお住いになるイメージでしょうか(●´∀`)
事務所としての利用も可能です。(条件あり)フラット35S適合物件。
【リノベーション内容】
■キッチン・・・システムキッチン(Panasonic)
■浴室・・・ユニットバス(TOTO)、浴室換気乾燥暖房機付き
■洗面所・・・洗面化粧台 (LIXIL)、洗濯水栓、防水パン
■トイレ・・・TOTO
■その他・・・フローリング貼替、壁・天井クロス張替、フロアタイル貼替、クッションフロア張替、建具・玄関収納交換、給湯器交換、エアコン(1基)、新規照明器具取付、カラーTVモニター付きインターフォン、収納棚新設、スイッチ・コンセント交換、ハウスクリーニング
インターフォンはTVモニター付きですので安心です。さっそく中に入ってみましょう♪♪
扉を開けると フルリノベーションを終え綺麗に生まれ変わった玄関がお出迎え☆ピッカピカです(´∀`*)このギャップがたまりません。照明は人感センサー機能付ですので、玄関を開ければパッと照明がつきます (●´∀`)

玄関入って正面にはトールサイズのシューズボックスがあります。嬉しい大容量♪♪棚は可動式になっていて靴のサイズにあわせて調節できます。ブーツの収納もOK♪♪
シューズボックスのお隣には、可動式の棚の収納があります。もちろん収納として使ってもよいですが、玄関から見えるところにありますので、インテリアや植物などを飾ったりとディスプレイを楽しんでみても良いですね♪♪
廊下右手には、ウォークインクローゼットがあります。玄関から近いのでコートなどのアウターの置場にもよさそうです。掃除機や日用品のストックなど生活感のにじみがちなアイテムもこの中に仕舞っておけばスッキリとした空間の中で快適な毎日が送れそうです。
ダイニングキッチンは、約7帖のお部屋。こちらから、パウダールームと奥の洋室に出入りすることができます☆キッチン横に南南西向きの窓があり、光が差し込むお部屋です。フローリングには、ハードメイプルが使われステキな雰囲気(*´▽`)
エアコン設置済みで、ご入居すぐに快適な生活が出来ます(o´∀`ノ
キッチンは、白の清潔感のあるコンパクトなシステムキッチンです。
キッチンは上下に収納があり調理道具がたくさん入れられそうです♪
ワークスペースが狭いのですが、シンプルな造りのキッチンなので、お手入れなどはしやすそうです!
キッチン北側には、水回りを一箇所に集めたパウダールーム♪♪少し段差があるのでお気を付けください。
入って左手に真っ白な一枚鏡の洗面台♪♪歯ブラシなどのこまごました物を置いておくスペースがありませんので、後から棚を付けたりと工夫したいところです。
お隣はうれしいウォシュレット付きのトイレです。上部には、扉付の収納棚があるので、ストック品の収納も完璧です♪♪トイレと洗面室とは、扉が設置されていません。
バスルームは、優しい木調のパネル☆ゆっくり大きなバスタブにつかって疲れを癒せそうです♪♪追い焚き機能付きでいつでも暖かいお風呂に入れます。
水切れがよく、すばやく乾燥するカラリ床は楽々お手入れ♪♪浴室乾燥機能が付いています。雨の日でも安心してお洗濯ができますよ(*´∀`*)

バスルームの向かいが洗濯機置場。上部には、収納棚があるので、ストック品の収納も完璧です♪♪
ダイニングキッチンの奥は、約4.1帖の洋室☆ベッドルームになるお部屋でしょうか。南南西向きの窓のお部屋で明るさ充分(o´∀`ノ
青梅街道に面しているお部屋ですので、サッシは二重サッシです。それでもやはり音はしますかね。音の感じ方は個人差がございますのでご内見の際にご確認くださいませ。

お部屋北側のスライドドアはウォークインクローゼット。上部には棚があったり、バーがあったり♪♪大きなものから小さなものまでたっぷり収納できちゃいます☆
それでは、最後にバルコニーに出てみます。南南西向きのバルコニーです。ちょっと狭いですが、工夫してお洗濯物を干したいです(´∀`*)
バルコニーは青梅街道に面しています♫光がいっぱいのバルコニーです。
いかがでしたでしょうか。
魅力的な街、西荻窪☆一度住んだら離れられなくなりそうです(o´∀`ノ
内見のご希望、ご質問などございましたら、![]()



















































































































弊社 公式HP
六棒総合研究所
掲載予定物件
価格変更と販売終了物件
ハザードマップ検索
適合証明書.jp
Facebook
Twitter
Instagram