□□□□□□□□□□□□□□□□□□□□□□□□□□□□□□□□□□□□□□□
いつも弊社ホームページをご覧頂き誠にありがとうございます。
日商岩井第2方南町マンションはお陰様で販売を終了致しました。弊社問合せフォームにてご要望頂けましたら、当お部屋でキャンセル等が発生した場合、他のお部屋が販売になりました際にご紹介させて頂きます。
弊社では、仲介手数料無料orお値引(50%off、30%off、20%off)にて皆様のマイホーム探しのお手伝いをさせて頂きいております。日商岩井第2方南町マンションの類似物件や、お探しのご条件等をお聞かせ頂けましたらご条件に合ったお部屋をご紹介させて頂きます。また、ご来社頂き一緒に探させて頂くことも可能ですので、是非弊社問合せフォームよりお気軽にお問合せください。
不動産Agent 六棒株式会社
TEL:03‐5413‐5336
□□□□□□□□□□□□□□□□□□□□□□□□□□□□□□□□□□□□□□□
今回は東京メトロ丸ノ内線方南支線の終点駅「方南町」駅から徒歩5分のマンション『日商岩井第2方南町マンション』を紹介します。
東京メトロ丸ノ内線方南支線「方南町」駅は、方南支線の終点で、「中野坂上」駅で支線に乗り換えても、「新宿」駅から約10分ちょっとというアクセスの良い駅です☆
駅前の方南通り沿いには大きなスーパー「サミット」があります。営業時間は深夜0時までなので、お仕事の帰りにもゆっくりとお買いものが出来るのが嬉しいですね☆
駅前は方南通りと環七通りの交差点になっていますが、その交差点近くにはドラッグストア「マツモトキヨシ」があります。
スーパーだけでは揃わない医薬品や雑貨類もたくさん置いてありますので、お買い物にはとても便利です♪
また、方南通り沿いは道の両側がアーケードの商店街になっていて、昔ながらの専門店だけでなく銀行や飲食店が立ち並んでいるので、何をするにもとても便利な街です(*^。^*)
マンションへは環七通りを北に真直ぐ向かいますが、その途中にはスーパー「まいばすけっと」がありました。こちらも働く方達の強い味方、深夜0時までの営業です(^^)/
サミットほど大きくはありませんが、生鮮食料品から調味料・冷食まで揃っているので、ちょっとしたお買いものなら、こちらで十分かもしれませんね(^v^)
少し歩くと善福寺川がありました。少し下流で神田川に合流するこの川はキレイに整備されているので、運動不足解消のためのランニングコースにはオススメですよ♪♪
川を渡るとすぐに見えてくるのが『日商岩井第2方南町マンション』です。建物までの敷地は駐車場になっていて、手前には来客用の駐車スペースもあります。お客様を招待した時にはとても便利ですね(^v^)
大きな建物ですが、エントランスは割とシンプルで少し小さめです。
中に入るとエレベーターホールが広がります☆
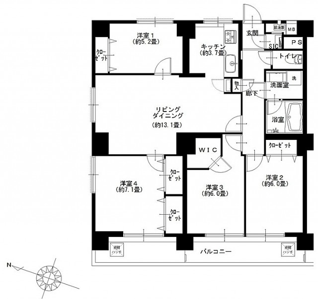
では間取りの紹介です。
ゆったりサイズの91.20㎡ 4LDKでシューズインクローゼット、ウォークインクローゼットが付いています。
室内は平成27年5月にリノベーション工事が終了したばかりなので、とても綺麗です☆
ペットの飼育は規約がありますが可能です(*^^)v
玄関を開けると、ピカピカのフローリングに真新しいクロスやドアがまぶしいお部屋がひろがりました。
玄関右側には人感センサー付きライトとニッチがあります。
ニッチはダウンライトでがついていて、オシャレな雰囲気を演出してるので、お気に入りの写真や絵を飾ると、玄関ホールがとても華やかになります☆
玄関左側にはシューズインクローゼットがあります。奥行きがありますので、靴だけでなく、ゴルフバッグや旅行バッグなども収納しておけます(^v^)
廊下に上がってすぐ左側にはトイレがあります。
トイレには吊り棚がありますので、室内を清潔にお使い頂けます☆
トイレの隣はサニタリールームです。こちらは設備もフロアタイルも入れ替えられているので、とても綺麗で清潔です☆
洗面台はシンクの両側がカウンターになっているので、いろいろ置けてとても便利♪
三面鏡の裏側が収納スペースになっているので、お化粧道具からドライヤーまでいろいろと収納できそうです(^o^)
洗面台の隣には洗濯機置場があります。こちらには棚がありませんので、上部に収納用の棚を設置してみてはいかがですか??
バスルームはゆったりしたサイズなので、毎日のんびりとバスタイムを楽しむことが出来そうですよ(#^.^#)
浴室換気乾燥機がついていますので、これからの梅雨の季節や台風の季節でも、いつでもお洗濯物を乾かせてとても便利です♪
サニタリールームの正面の扉は廊下の収納棚です。棚板が可動式なので、色々なサイズの物を収納することが出来て、とても便利です(*^^)v
サニタリールームの隣には6.0帖の洋室があります。西側に窓があるので、室内は午後になるととても明るくなります☆
東側にはクローゼットがあります。扉が大きく開くので、中の物が見やすく取出しやすくなっています。
こちらのお部屋にあるデスクやラックの他、他のお部屋にある家具や備品全てそのままおつかいいただけます!!
6.0帖の洋室の隣は、おなじく6.0帖の洋室です。こちらも西側に窓がありますので、室内はとても明るく開放的です☆
お部屋の南側にはピクチャーレールが付いているので、お気に入りの絵を飾ることが出来て、ステキなお部屋になりそうです(#^.^#)
このお部屋にはウォークインクローゼットが付いています。ドアを開けると、枕棚、ハンガーパイプがL字になっていて、大容量です◎
洋服だけでなく大きな物もしまっておけそうなスペースです(^o^)
6.0帖の洋室の隣のドアは13.1帖のリビングダイニングに繋がります。
隣にあるキッチンと合わせれば、17帖近い広さなので、とてもゆったりお過ごしいただけます(^o^)
ドアを開けてすぐ右側、キッチンの隣にはガラスの棚が設置されています。
収納用にも使えますが、写真の様に観葉植物などを置いて、ステキな空間にしてください☆
ドアのすぐ上にはエアコンが設置されていますので、ご入居されたその日から、快適にお過ごしいただけます☆
リビングの東側の壁はエコカラットになっています。
エアコンの除湿等を使わずに、この壁が湿気や生活臭を吸い取ってくれるので、文字通り「エコ」な壁です♪
リビングダイニングの南東側がキッチンスペースになっています。
システムキッチンは新規に入れ替えられているので、とても綺麗で清潔です☆
大きいシンクには浄水器付水栓があるので、食器だけでなく食材を洗う際にもとても安心です♪
また3口コンロがありますので、一度にいくつかのお料理をすることが出来て、とても重宝しそうです(^o^)
食器洗浄機は奥様達の強い味方☆お片付けをしてくれている間にご家族の団らんを楽しむことが出来ますね(^v^)
収納スペースもたっぷりあります☆もちろん食器棚を置くスペースも用意されているので、キッチン収納には調理器具や食材を入れておきましょう!!
キッチンスペースには採光・換気用の窓があり、その下がカウンターになっているので、工夫次第で調味料などをしまっておけるスペースにも、観葉植物を置いてキッチン内を爽やかに見せることもできます(^^)/
リビングダイニングの東側には5.2帖の洋室があります。
東向きの窓がありますので、室内は明るく照らされています☆
北側にはクローゼットがあります。左右に大きくとびらが開きますので、たっぷり収納できて取り出す時もラクラク、使い勝手の良いクローゼットです。
リビングダイニングの西側には7.1帖の洋室があります。
北側、西側が窓になっているので、明るく開放的な室内です☆
南側には2つのクローゼットがあります。どちらも奥行きのある大きなクローゼットなので、ご夫婦お二人の洋服をお一人ずつクローゼットを使って収納できるので、とても使いやすそうです(^v^)
バルコニーへは3つの洋室から出ることが出来ます。
西向きですが、とても広いバルコニーなので、開放的で気持ちいいですよ♪
目の前に別の大きな建物がありますので、眺望が良いというわけではありませんが、とても気持ちのいい風が吹いていました。
いかがでしたか?
方南町駅から徒歩5分なので、新宿駅からも約20分でご自宅まで帰る事が出来てとても便利♪
90㎡超え、4LDKなので、ファミリーの方達にはオススメです♪
皆さまからのお問い合わせ、お待ちしております。


























































弊社 公式HP
六棒総合研究所
掲載予定物件
価格変更と販売終了物件
ハザードマップ検索
適合証明書.jp
Facebook
Twitter
Instagram