・
□□□□□□□□□□□□□□□□□□□□□□□□□□□□□□□□□□□□□□□
いつも弊社ホームページをご覧頂き誠にありがとうございます。
ノワール荻窪はお陰様で販売を終了致しました。弊社問合せフォームにてご要望頂けましたら、当お部屋でキャンセル等が発生した場合、他のお部屋が販売になりました際にご紹介させて頂きます。
不動産Agent 六棒株式会社
TEL:03‐5413‐5336
□□□□□□□□□□□□□□□□□□□□□□□□□□□□□□□□□□□□□□□
・
杉並区荻窪よりリノベーションマンション「ノワール荻窪」のご紹介です!
アクセス
JR中央線・東京メトロ丸ノ内線「荻窪」駅 徒歩17分
京王井の頭線「高井戸」駅 徒歩16分
荻窪は、大正から昭和初期にかけて東京近郊の別荘地として『西の鎌倉、東の荻窪』と称され、与謝野晶子・鉄幹夫妻、井伏鱒二、太宰治、棟方志功などの作家、文化人が居を構えた文化の街です。駅前にはデパート、大型スーパーや多くの飲食店が軒を連ね、ショッピングも充実な利便性にも優れている街です(o´∀`ノ
懐かしい雰囲気を残す街☆街を散策すれば、タイムスリップしたかのような風景で出くわすかも(*´˘`*)♡休日の散策が楽しみです♪♪
荻窪では、住宅街の中にステキな公園が隠れています。こちらは、『大田黒公園』です。入場無料の回遊式日本庭園で音楽評論家の大田黒元雄氏の屋敷跡地につくられた公園です。紅葉の季節にはライトアップをしているそうなので是非是非足を運んでみてください♪♪大きな公園ではありませんが、本当に素敵な公園です。
マンションすぐ近くのところにもあります「松渓公園」。お伺いした際には、銀杏が色づき黄金色の世界でした。+゚ *。。+゚ *。
こちらが今回ご紹介させていただく『ノワール荻窪』です♪♪平成4年築、地下1階付地上4階建て、総世帯数18戸の外観タイル貼りマンションです☆
住宅ローン控除適応物件。【フラット35】S適合証明取得可能。
こちらはエントランス前の前面道路。写真からもわかりますように『通学路』です。交通量も控えめです。
マンションの向かいにステキな喫茶店を発見です!!『お子様連れご遠慮ください』といった張り紙がありました。のんびりとした大人の空間でしょうか。
マンションの1Fは店舗が入っています。現在は歯医者さんです。
エントランスは、綺麗に掃除されていました。管理人さんは巡回です。オートロックがありますし、宅配BOXもありますし、完璧な設備です♪♪宅配ボックスで留守中の荷物の受け取りがスムーズに出来るのは嬉しいポイントです。
エントランスホール奥のエレベーターでお部屋へと向かいます♪♪
今回ご紹介するお部屋は3階、専有面積45.72㎡の1SLDK。おひとり暮らしやDINKSの方にお勧めのお部屋です。
間取り図はコチラ ↓ ↓ ↓
※間取り図は別タブで開きますので、確認しながらご覧いただくことができます。
只今リノベーション工事中
7月中旬完成予定ですのでお楽しみに!
【リノベーション内容(予定)】
・
以上でノワール荻窪のご案内を終わります。
いかがでしたでしょうか??
荻窪駅から徒歩17分のマンションです。
リノベーション済みという事で室内はとてもキレイですよ (っ・ω・)っ
内見のご予約やご質問などございましたらお気軽にお問い合わせくださいませ。
ご連絡お待ちしております。
弊社、不動産Agent 六棒株式会社では、一般仲介物件は仲介手数料20%~30%OFF!
にてお取り扱いしております!
なるべく沢山のお部屋をホームページに掲載したいと思っておりますが、時間的成約もございますので、残念ながらご紹介できるお部屋の一部しか掲載できておりません。
このホームページに掲載中のお部屋、その他サイト等で気になるお部屋、街を歩いていて気になったマンション等々ございましたら是非、弊社営業部までご相談ください!
~不動産Agent 六棒株式会社の特徴~
・一般仲介物件の仲介手数料は20%~30%OFFにてご案内中です!
・住宅ローンに自信あります!
・頭金10万円より購入できます。是非ご相談下さい!
・お部屋のご見学は車で2~3件まとめて案内します!
・物件数3000件以上、新築戸建、リノベ物件も多数ご用意しております!
過去に販売していたお部屋の概要 こちらのお部屋の販売は終了いたしました
| 価格 | -万円 |
| 面積 | 55.81㎡ |
| 間取り | 2bedrooms(2LDK) |
| 管理費 | 月額12,200円 修繕積立金:月額6,000円 |
| 所在階 | 3階 |
| お問い合わせ・ご内見のご予約はこちらからお気軽にどうぞ | |
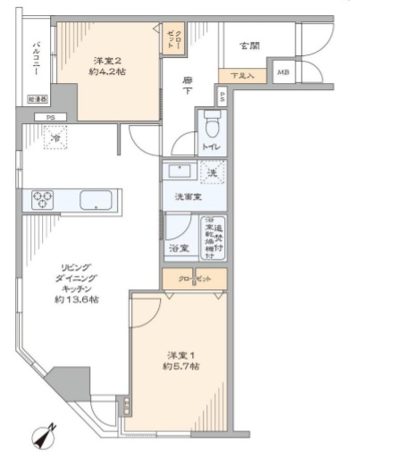
今回ご紹介するお部屋の間取りです♪
2LDK、55.81㎡、南西の角部屋で光がいっぱいのお部屋です。ペットも一緒に暮らせます♪♪
内廊下なので騒音は問題ありません。雨の日も安心ですよ♪
扉を開けると、真っ白!ピッカピカ!綺麗にリノベーションされると新築とまったく変わりありません。玄関照明は人感センサーになっているので節電はもちろん夜間のお帰りの際も便利です。
玄関左手にあるホワイトの光沢のシューズボックスは大容量!!通常の1.5倍のサイズでしょうか。フットライトの付いたシューズボックスはフロートタイプで床から少し浮いているので1番下の段も取り出しやすくなっていますね♡
玄関から左に廊下は伸びていきます。スリットガラスから光が差し込んでいるドアの向こうがリビングダイニングキッチンです。
それでは早速リビングダイニングキッチンを見ていきます♪♪
リビングダイニングキッチンは、約13.6帖。南西の角に位置し、本当に明るい空間です。フローリングもステキな雰囲気です(*´▽`)
コーナーサッシが使われているので、開口部が沢山♪♪明るいお部屋は、解放感があり広々感じますよ。+゚ *。。+゚ *。
エアコンが付いているので、ご入居すぐに快適な生活が出来ますねっ☆エアコン奥のガラスのドアから狭いですが出られるようになっています。
キッチンは、人気のカウンターが設置されています。
キッチンはリビングにいる人とコミュニケーションがとれる対面式です。カウンターは調味料を置いたり、出来たお料理の配膳に利用したりと使い方は様々です♪
さすがの角部屋。キッチンにも窓がついています♪♪3口コンロに人造大理石トップとなっています。
対面式ですので上部の収納はありませんが、シンク下の収納は、スライド式なのでキッチングッズの収納も楽々 (●´∀`)配管を気にせず収納できるので大容量。最大限広げても充分スペースがありますので食器棚等の設置もバッチリです♫
それでは、洋室を見ていきます。まずは、リビングダイニングお隣の洋室。ベッドルームになるお部屋でしょうか。南東向きの開口部で明るさ充分です。こちらのお部屋にもエアコン設置済みです。
クローゼットも設置されているので荷物が部屋に溢れる心配もありません♪♪
2つめの洋室は、玄関近く、約4.2帖の洋室です。
少し狭めですが、開口部もありますし問題なさそうです。こちらのお部屋にもエアコンあり!!計3基の設置です。
クローゼットもあり収納もOK♪奥行きもしっかりです♪♪
水廻りへ♪♪洗面室は、キッチン横のスライドドアから。洗面室の出入り口には少しですが、段差があります。
入って左手に洗面台があります。真っ白な洗面ボウルで清潔感のある洗面台は、大きな鏡が魅力的☆鏡の裏に収納スペースのありますので、歯ブラシから洗顔フォームまでゴチャゴチャ散らかりがちな洗面ま
洗濯機置場の上部には吊戸棚が設置されています。洗剤等の収納はお任せください。
バスルームは、シックな木目調のパネルが使われています。ミラー横のポケットにシャンプーボトルなどの小物をしまえば見た目も使い勝手もバッチリ◎追い炊き機能付きです。
浴室換気乾燥機も設置されています。その名の通り浴室の換気・乾燥はもちろんのこと、衣類乾燥モードで洗濯物を乾かしたり、暖房モードで入浴前に室内を暖めたりと様々にお使いいただけます。
最後にバルコニーです。バルコニーは、2.12㎡♪♪狭いです。。お洗濯物は、浴室乾燥機が強い味方になりそうです。
眺望バッチリ!!とはいきませんが、道路に面しているので、お隣とは十分な距離があります。
いかがでしたでしょうか。
内見のご希望、ご質問などございましたら、![]()

































































