・
□□□□□□□□□□□□□□□□□□□□□□□□□□□□□□□□□□□□□□□
いつも弊社ホームページをご覧頂き誠にありがとうございます。
桜上水山森マンションはお陰様で販売を終了致しました。弊社問合せフォームにてご要望頂けましたら、当お部屋でキャンセル等が発生した場合、他のお部屋が販売になりました際にご紹介させて頂きます。
不動産Agent 六棒株式会社
TEL:03‐5413‐5336
□□□□□□□□□□□□□□□□□□□□□□□□□□□□□□□□□□□□□□□
・
杉並区下高井戸よりリノベーションマンション『桜上水山森マンション』のご紹介です。駅からの道のりにはスーパー、ドラッグストア、郵便局、飲食店などがあり暮らしやすい環境です。
アクセス
京王線「桜上水」駅徒歩6分
京王線「下高井戸」駅徒歩10分
□□□□□□□□□□□□□□□□□□□□□□□□□□□□□□□□□□□□□□□
★★★【桜上水山森マンション】周辺のハザードマップをCHECK!!★★★
お部屋の記事を読む前に…!周辺のハザードマップをチェックしておきませんか!
桜上水山森マンションのハザードマップは★こちらから…どうぞ★
□□□□□□□□□□□□□□□□□□□□□□□□□□□□□□□□□□□□□□□
ハザードマップをご確認いただきましたので、街をご案内していきましょう!
京王線は新宿から八王子を結ぶ鉄道路線。桜上水から2駅先の明大前までは電車で約3分、新宿までは約11分と都心へのアクセスも申し分無し(*´˘`*)♡落ち着いた住宅街が広がるベットタウンです♪♪
桜上水駅の駅前には商店街も広がっています。スーパー、ドラッグストア、飲食店にクリニックと必要なお店は揃っています(o´∀`ノ
桜上水駅から商店街を北に進むと、甲州街道♪♪甲州街道を渡って、右折すると今回ご紹介させていただくマンションです。
マンションの北側には神田川♪♪井の頭池に源を発し、隅田川に合流する神田川。かつては『神田上水』を取水し、東京を築き上げた立役者です (●´∀`)
神田川沿いには公園がたくさん♫こちらは『塚山公園』☆
緑が溢れるステキな公園の中には、お茶室や竪穴式住居跡も(笑)昭和7年頃から土器や石器が出土し、その後多くの竪穴式住居跡が発見されました。縄文時代からの由緒正しい住宅街です (●´∀`)
こちらが今回ご紹介させていただく『桜上水山森マンション』♫昭和47年築、地上11階建て、総世帯数68戸。甲州街道沿いに建つマンションです。

こちらがマンションのエントランス♫甲州街道沿いの歩道から入ることができます。

1Fエントランス横には駐車場があります♫嬉しいことに現在空有りです(´∀`●)(月額21,000~25,000円)
エントランスホールは、綺麗に管理されている印象♫日勤の管理人さんもいらっしゃって管理体制は良好。
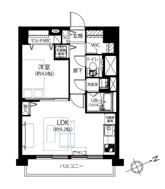
それではここで、間取り図のご紹介!
※間取り図は別タブで開きますので、確認しながらご覧いただくことが出来ます。
今回のお部屋は10階、専有面積38.88㎡の1LDK。お一人暮らしの方にお勧めのお部屋です。それではお邪魔します!
□□□□□□□□□□□□□□□□□□□□□□□□□□□□□□□□□□□□□□□
★★★【桜上水山森マンション】周辺のハザードマップをCHECK!!★★★
お部屋の記事を読む前に…!周辺のハザードマップをチェックしておきませんか!
桜上水山森マンションのハザードマップは★こちらから…どうぞ★
□□□□□□□□□□□□□□□□□□□□□□□□□□□□□□□□□□□□□□□
【玄関:人感センサー付き照明】
【ウォークインクローゼット】
【洗濯機スペース・洗浄機能一体型トイレ】
【洗面室】
【浴室:追い焚き機能・浴室換気乾燥機付き】
【LDK:南東向き】
【LDK:家具付き】
【LDK:約9.2帖】
【キッチン:壁付けタイプ・食洗機付き】
【洋室:約4.6帖】
【眺望良好】
・
以上で桜上水山森マンションのご案内を終わります。
いかがでしたでしょうか??
桜上水駅から徒歩6分のマンションです。
リノベーション済みという事で室内はとてもキレイですよ (っ・ω・)っ
内見のご予約やご質問などございましたらお気軽にお問い合わせくださいませ。
ご連絡お待ちしております。
□□□□□□□□□□□□□□□□□□□□□□□□□□□□□□□□□□□□□□□
★★★【桜上水山森マンション】周辺のハザードマップをCHECK!!★★★
お問い合わせ前に…!周辺のハザードマップをチェックしておきませんか!
桜上水山森マンションのハザードマップは★こちらから…どうぞ★
□□□□□□□□□□□□□□□□□□□□□□□□□□□□□□□□□□□□□□□
弊社、不動産Agent 六棒株式会社では、
□リノベーションマンションはほぼ全て仲介手数料無料!
□その他一般仲介物件は仲介手数料20%~30%OFF!
にてお取り扱いしております!※弊社の「Agent Fee=仲介手数料」についてはご案内、ご面談の際に営業担当者よりご説明いたします!
なるべく沢山のお部屋をホームページに掲載したいと思っておりますが、時間的成約もございますので、残念ながらご紹介できるお部屋の一部しか掲載できておりません。
このホームページに掲載中のお部屋、その他サイト等で気になるお部屋、街を歩いていて気になったマンション等々ございましたら是非、弊社営業部までご相談ください!
~不動産Agent 六棒株式会社の特徴~
・一般仲介物件の仲介手数料は20%~30%OFFにてご案内中です!
・リノベーションマンションについてはほぼ全て仲介手数料無料です!
・住宅ローンに自信あります!
・頭金10万円より購入できます。是非ご相談下さい!
・お部屋のご見学は車で2~3件まとめて案内します!
・物件数3000件以上、新築戸建、リノベ物件も多数ご用意しております!
過去に販売していたお部屋の概要 こちらのお部屋の販売は終了いたしました
| 価格 | -万円 |
| 面積 | 50.22㎡ |
| 間取り | 1bedroom(1LDK) |
| 管理費 | 月額10,880円 修繕積立金:月額14,060円 |
| 所在階 | 11階 |
| お問い合わせ・ご内見のご予約はこちらからお気軽にどうぞ | |
コチラが今回ご紹介させて頂くお部屋の間取りです。
見ての通り、バルコニーにお部屋がくっついていると言っても過言ではない物件です。(実際、バルコニーの方がお部屋より広いです)
専有面積は50.22㎡。1LDK、最上階・角部屋となっております。
□□□□□□□□□□□□□□□□□□□□□□□□□□□□□□□□□□□□□□□
★★★【桜上水山森マンション】周辺のハザードマップをCHECK!!★★★
お部屋の記事を読む前に…!周辺のハザードマップをチェックしておきませんか!
桜上水山森マンションのハザードマップは★こちらから…どうぞ★
□□□□□□□□□□□□□□□□□□□□□□□□□□□□□□□□□□□□□□□
エレベーターを降りるとお部屋は目の前です。
戸数も多くないので、ひっそりとした雰囲気が漂っています。
玄関前にはモニター付きのインターフォンが付いています。
お部屋の中にいながら廊下の様子を確認することが出来るので、防犯的にも安心できますね。
最近はやりのN〇Kなんかはドアを開けずにお帰り頂けます。
玄関ドアを開けるとリノベーション済の室内が登場します。
フルリノベなのでここから先は新築と言ってもいいくらいの綺麗さです。
照明には人感センサーが付いているので、ドアを開ければ室内が自動で明るくなります。
扉に姿見の付いたシューズボックスは棚板の高さを調節することが出来ます。背の高いブーツのような履物でも問題なく収納することが出来ますよ!
玄関から廊下にかけては90度直角に曲がっています。
宅急便のお兄さんにお部屋の奥まで見せてしまう事も無くなりますよ!
それでは廊下の突当り、スリットの入ったドアを開けてみましょう!!
こちらはリビング・ダイング・キッチンです。
広さは約13帖。マンションの角に位置しているお部屋なので2面に窓が付いています。撮影に来た日は曇りだったのですが、晴れていれば明るい空間になりそうです。
照明は埋め込みタイプとレールに取り付けられている2種類のダウンライトが使われています。
埋め込みタイプは天井に余計な凹凸を作らないので空間がスッキリとするうえ、埃も溜まりにくいのでお手入れも簡単です。
リビングからはバルコニーへと出ることもできます。
インナーサッシが付いていますね。
首都高沿いのマンションではありますが、インナーサッシのおかげで車の音はほとんど聞こえません。私の耳が悪いだけの可能性もゼロではないので、内見の際には耳を澄ませてみるのをお忘れなく!
バルコニーには鳥除けネットが取り付けてあります。
かなり丈夫そうなので、ダチョウくらい大きな鳥でも撃退できそうですよ!!!
東向きのバルコニーという事で、新宿・渋谷方面を一望できます。
他にも紹介しないといけないバルコニーがあるので、こちらはこのくらいにしておきますね!
次はキッチンを見ていきましょう!
水栓は浄水機能付き。シンクの隅々まで水を流せるシャワーヘッドになっているので、洗い物の際などには大活躍してくれると思います!
コンロは3口のグリル付きガスコンロです。両面焼きのグリルが付いているので、お肉もお魚も美味しくこんがり焼きあげることが可能です。
これだけの設備があれば大抵のお料理は作れちゃいそうですね!
収納は引き出しタイプです。
上から出し入れすることが出来るので、どこに何があるかもひと目で確認することが出来きますよ。キッチン周りで遭難する調味料も激減しそうな予感です。
それでは廊下へと戻って他をみていきましょう!!
廊下に出てすぐ左手には収納スペースがありました。
棚の高さは調節できるので、掃除機のような大き目の物でも収納することが出来ます。
奥行もあるので、意外とたくさん入りそうな予感です。
右側に3つドアがならんでいますが、まずは一番奥から見ていきます。
コチラは洗面室です。
洗濯機置き場も見えますね。洗面室は脱衣所も兼ねているので、脱いだお洋服はすぐに洗濯することが出来そうです。
洗面化粧台には大きな三面鏡が付いています。
顔を左右から写すことができるのでメイクもしやすいですよ。水栓は埋め込み式のシャワーヘッドです。根元に水垢が溜まりませんし、グイッと引き延ばせば軽いシャンプー程度なら問題なしです!
コチラは突当りのお風呂です。
全て新品なので、新築マンションと同じお風呂ともいえますね。
浴室換気乾燥機能付きです。
入浴後の湿気を取り除いてカビの発生を抑制することはもちろん、雨の日は浴室で洗濯物を干すことも可能です。暖房機能を使えば冬のヒートショックにおびえる毎日ともオサラバです!!
追炊き機能付きなので、24時間いつでも熱いお湯に浸かることができますよ。
どんなに疲れた一日でも最後にお風呂でゆっくりできれば、元気100倍!次の日も、24時間戦えますか!!
それではお風呂を出て・・・
洗濯機置き場の前の窓を開けると何だか外に出れそうな雰囲気でした。
正直、ウチのバルコニーではないのですが、ここに来るには洗濯機置場前の窓から出るしかないので、実質うちのバルコニーです。
これだけの広さのバルコニーなのに誰も使わないのは勿体ないですもんね!!?
杉並区を西~北にわたって一望できます。
晴れていればもっといい写真が撮れたのですけど、贅沢は言えませんね!
それでは廊下に戻って残りのドアを開けてみましょう。
中はトイレになっていました。
TOTOのウォシュレット機能付きのトイレです。
今更TOTOがいかに素晴らしいトイレメーカーか説明する必要もないかと思います。ということで説明は省略させていただきます。(本当に知らないという人はご自身でおしらべください!!)
ウォシュレットはリモコンタイプなので操作性も良さそうですね。
便座の横に操作パネルが付いてるタイプって機能も少ない印象ですしね!
次はリビング手前のお部屋です。
こちらは約6.5帖の洋室です。
エアコンが設置済みなので、引越しの初日から涼しいお部屋で作業が出来ますよ!
クローゼットも付いているので、お部屋の中に余計な家具を置く必要もありません。
空間を広く使うことができるのはありがたいですね!
それでは今回のメインイベント!!
正式なルーフバルコニーのご紹介です!!!!
ルーフバルコニーへは洋室からでることが出来ます。
ドドン!!
どどどん!!
どどどどどどどどんん!!!!!!!
ということでまぎれもない広々ルーフバルコニーです。
これだけの広さがあれば1年に1回しか洗濯をしなかったとしても、干す場所に困ることは無さそうですよ!!
たぶんしちゃダメだとは思うのですが、バーベキューとかしたくなっちゃいますね。。。
以上で桜上水山森マンションのご案内を終わります。
いかがでしたでしょうか??
桜上水駅から徒歩6分のマンションです。
リノベーション済みという事で室内はとてもキレイですよ!
内見のご予約やご質問などございましたらお気軽にお問い合わせくださいませ。
ご連絡お待ちしております。
□□□□□□□□□□□□□□□□□□□□□□□□□□□□□□□□□□□□□□□
★★★【桜上水山森マンション】周辺のハザードマップをCHECK!!★★★
お問い合わせ前に…!周辺のハザードマップをチェックしておきませんか!
桜上水山森マンションのハザードマップは★こちらから…どうぞ★
□□□□□□□□□□□□□□□□□□□□□□□□□□□□□□□□□□□□□□□
弊社、不動産Agent 六棒株式会社では、
一般仲介物件は仲介手数料20%~30%OFF!にてお取り扱いしております!
なるべく沢山のお部屋をホームページに掲載したいと思っておりますが、時間的成約もございますので、残念ながらご紹介できるお部屋の一部しか掲載できておりません。
このホームページに掲載中のお部屋、その他サイト等で気になるお部屋、街を歩いていて気になったマンション等々ございましたら是非、弊社営業部までご相談ください!
~不動産Agent 六棒株式会社の特徴~
・一般仲介物件の仲介手数料は20%~30%OFFにてご案内中です!
・住宅ローンに自信あります!
・頭金10万円より購入できます。是非ご相談下さい!
・お部屋のご見学は車で2~3件まとめて案内します!
・物件数3000件以上、新築戸建、リノベ物件も多数ご用意しております!
過去に販売していたお部屋の概要 このお部屋の販売は終了いたしました。
| 価格 | -万円 |
| 面積 | 42.12㎡ |
| 間取り | 1bedroom(1LDK) |
| 管理費 | 月額9,930円 修繕積立金:月額11,800円 |
| 所在階 | 9階 |
| お問い合わせ・ご内見のご予約はこちらからお気軽にどうぞ | |
こちらが今回ご紹介させて頂くお部屋です。
間取り図はクリックすると別タブで開きますよ。
それではお部屋へ参りましょう!
エレベーターを降りるとお部屋までは内廊下です。
雨や風の影響を受けることもありませんし、静かな雰囲気が漂っています。
掃除も行き届いているので、管理体制のよさがうかがえます。
それではお部屋へ入っていきましょう!
玄関に入ってすぐ右手にはシューズインクローゼットがあります。
中はかなりの広さがあります。高さの調節が可能な棚も付いているので、靴以外にもいろいろな物を収納することが出来そうです。
玄関の照明には人感センサーが付いています。
ドアを開ければ玄関がパッと明るくなるので、帰宅時に両手が塞がっていても問題ありません。暗闇の中、手探りでスイッチを探すストレスからも解放されます。
もちろん切り忘れることもありませんね。
おしゃんてぃーな棚が!!
実は玄関・廊下の床は大理石貼りになっています。こちらもおしゃんてぃーですね!
棚の左側には収納があります。
こちらの棚も中の棚板は高さの調節が可能ですよ。
それでは奥へ進みましょう!!
こちらはリビング・ダイニング・キッチンです。
南東向きのバルコニーに面した窓が付いています。
見本の家具が置いてあると、実際の生活のイメージが付きやすいですね!
写真映えもするので、私としてもありがたいです!!!
埋め込み式のダウンライトが多く使われているので、天井に余計な凹凸が出来ず、空間がスッキリ見えますね!
埃も溜まりにくいのでお手入れも簡単ですよ!
次はキッチンを見ていきましょう!
3口のグリル付きのガスコンロが付いてます。グリルはオーブンの様な使い方が出来るので、グラタンやピザなども焼くことができます。火力が強いので焦がさないように注意してくださいね!
水栓は浄水機能内蔵型です。シャワーヘッドなのでシンクの隅々まで水を流すことが出来ます。大きなお鍋等を洗う際などにはとても便利です!
食器洗浄機も付いています。
お皿を並べてスイッチを押せば乾燥まで終わらせてくれる食器乾燥機は家事の時間短縮の立役者です。手洗いでは使えない高温のお湯で洗ってくれるので、思っている以上に綺麗になりますよ!
カウンター下の収納は引き出しタイプです。
デッドスペースが生まれにくく奥まで無駄なく使うことが出来ますよ。いちいち屈まなくても上から出し入れできるので、重い物でも問題なさそうです。
オープンキッチンなのでお料理中でもリビングを見渡すことが出来ます。
お料理中は孤立してしまいがちではありますが、これなら疎外感を感じることもありませんね!
キッチンから右手を見ると、引き戸が見えます。
中は洗面室になっていました。
洗面化粧台は3面鏡タイプです。顔を左右から見ることが出来るので、お化粧もしやすそうです。内部はキャビネットになっているので、歯ブラシや基礎化粧品などはこちらに収納してしまいましょう!
水栓はシャワーヘッドなので洗面ボウルの隅々まで水を流すことが出来ます。お掃除等はとっても楽になりそうです。
洗面室の床材にはボロンという建材が使われています。
ボロンとは、スウェーデンで生まれたビニル製の織物床シートで、塩化ビニルを編み込んだカーペットのようなフロアタイルです。
カーペットや天然のサイザルのような質感でありながら、アレルギーの主因となるダニや埃を通常のお掃除でほぼ取り除くことができる環境に優しい商材です。
それではお風呂を見ていきましょう!
お風呂には浴室換気乾燥機能が付いています。
浴室の湿気はカビを発生させる原因ともなるので、入浴後はすぐに湿気を取り除いておく事が望ましいです。
他にも浴室で洗濯物を干したり、暖房機能で入浴前に浴室を暖めておいたりと意外と使用頻度の高い機能となりそうです。
窓が付いているので、換気性も良さそうですね!
日中は窓を開けて空気の入れ替えをしても良いかもしれません。
追い焚き機能も付いています。
24時間、いつでもアツアツのお風呂に入ることが出来るのでお休みの日は朝から何度でもお風呂を楽しむことが出来ますね。
しっかりと疲れをとって翌週に備えたいものです。
さて、お風呂の次はトイレに行ってみましょう。
トイレはリビングから廊下へ出て、すぐ左側にあります。
TOTOのウォシュレット機能付きのトイレです。
リモコンタイプなので操作性も良さそうですね。
吊戸棚も付いていて収納性も問題ありません。
またリビングに戻ってきました。
こちらはリビングのお隣の洋室です。
THE寝室!って感じですね!
窓からの光も入ってくるので、気持ちのいい目覚めが期待できそうです。
大容量のウォークインクローゼットが付いています。
かなりの容量があるので、大量のお洋服を掛けることが出来ますよ。時間のかかる面倒な衣替えもあっという間に終りそうです。
最後にバルコニーへ出てみます。
窓は二重サッシになっています。
近くに首都高が通っていますが、二重サッシのおかげで随分と車の音は軽減されています。聞こえ方には個人差もあるので、内見の際は耳を澄ませてみることを忘れないでくださいね!!
バルコニーは南東向きです。
広さは約5.0㎡。
撮影した日は曇りでしたが、眺望・陽当たりについては問題無さそうです。
晴れていれば気持ちのいい青空が広がっていそうですね!!
下にバイク屋さんが見えました。
思わず!盗んだバイクで走り出したくなっちゃいますね!
では、以上で桜上水山森マンションのご案内を終わります。
いかがでしたでしょうか??
桜上水駅から徒歩6分のマンションです。
リノベーション済みという事で室内はとてもキレイですよ (っ・ω・)っ
内見のご予約やご質問などございましたらお気軽にお問い合わせくださいませ。
ご連絡お待ちしております。
過去に販売していたお部屋の概要 このお部屋の販売は終了いたしました。
| 価格 | -万円 |
| 面積 | 43.74㎡ |
| 間取り | 1bedroom(1LDK) |
| 管理費 | 月額10,250円 修繕積立金:月額12,240円 |
| 所在階 | 2階 |
| お問い合わせ・ご内見のご予約はこちらからお気軽にどうぞ | |
間取りのご紹介です。1LDK、43.74㎡。
WIC、SIC設置で収納力◎。
フローリングは木の温かみが感じられる天然無垢材です。
お部屋の位置は甲州街道から一番奥で、全開口部は甲州街道に面していません。
室内は平成27年3月にリノベーション工事を終えたばかりなので、とても綺麗です。
リノベーション内容は以下の通りです。
■新規交換・・・システムキッチン(一体型浄水器・食器洗い乾燥機)/
ユニットバス(追い焚き、浴室乾燥機付き)/洗面化粧台/トイレ(ウォシュレット付き)
コンセント/スイッチパネル/給湯設備
■新規張り替え・・・無垢材フローリング
■新規設置・・・玄関人感センサー/浴室乾燥機/ダウンライト/TVモニター付きインターホン
■新規施行・・・壁・天井クロス/フロアタイル/クローゼット
共用廊下は雨の日も安心の内廊下です。
玄関を開けると、木のぬくもりを全身で感じられる様な室内が広がっていました(^o^)
玄関左側には大容量のシューズインクローゼットがあります。
棚はL字になっているので、しまってある靴がとても見やすく、使い勝手が良さそうです(*^^)v
廊下の左側にサニタリールームがあります。北側に大きな窓が付いているので、室内はとても明るいです☆でもこれだと脱衣所としてはお使い頂けないので、目隠し用のカーテンに取り替える事をオススメします(*^^)v
サニタリールームに入ってすぐ左側に洗濯機置場があります。
扉付なのでスッキリと見せることができます☆
中には棚が無いので収納用の棚を取り付けて、中もスッキリさせましょう(^v^)
洗面台はボウルが丸くてかわいいデザイン☆右側には可動式の棚が取り付けられているので、洗面台周りもスッキリとさせることができます☆
洗面台の隣にはリネン庫があります。扉を開けると、トールサイズで棚板が動かせるので、バスタオルやハンドタオル、お掃除道具までいろいろとたっぷり収納できそうです♪
バスルームのパネルも木目調で、本当の木ではありませんが、どことなく温もりを感じさせてくれるデザインです(^v^)
毎日のバスタイムも楽しくなりますね(#^.^#)
また、バスルームには浴室換気乾燥機が設置されていますので、これからの雨の季節でもお洗濯物を干すことができて便利です(^o^)
サニタリールームの隣にはトイレがあります。
上部に吊り棚があり、トイレットペーパー等を室内にそのまま置かなくていいのでとても清潔にお使い頂けます☆
またトイレの照明にも人感センサーが使われているので、ドアを開けるとパッと明るくなってとっても便利☆
廊下には収納棚があります。棚板は可動式なので、掃除機だってラクラク収納できますよ(*^^)v
廊下収納の正面には5.0帖の洋室があります。東側に窓があるので、気持ちのいい朝日でお目覚めください(#^.^#)
北側にウォークインクローゼットがあります。棚板とハンガーパイプがL字に設置されているので、たくさん収納できますし、どこに何がしまわれているかも一目で分かるので、とっても便利です♪
廊下の突き当りにはリビングダイニングキッチンが広がっています。
南側と東側に窓があるので、室内はとても明るく、自然の木の色が優しく、とても寛げるお部屋です(^v^)
また、このリビングダイニングキッチンにはエアコンが設置されているので、ご入居当日から快適にお過ごしいただけます(*^^)v
キッチンは新規に入れ替えられているので、とても綺麗で清潔です☆
全体のバランスが保たれる、木目調のデザインもとてもGoodです♪
浄水器付の水栓と大きなシンク、3口コンロもあって、お料理がしやすそう☆
お片付けには食器洗浄機が設置されているので、手間がかからずとっても便利です(*^^)v
キッチン下部には引出し収納、上部には吊り棚があるので、調理器具や食器がラクラク収納できます。
リビングからバルコニーに出ることができます。窓が二重サッシになっているので、室内にいれば、甲州街道を通る車の音はほとんど聞こえません(^o^)
バルコニーにウッドタイルが置かれていました。という事は、このバルコニーはウッドタイルで敷き詰められるという事でしょうか・・・(#^.^#)
バルコニーは南向きなので、明るい陽の光が射しこんでいました☆
バルコニーから右手に甲州街道があり、目の前は路地になっているので、車の通りが少なく、穏やかな景色が広がります。目の前の建物が低いので、青い空を見る事ができました☆
いかがでしょうか。
桜上水駅から徒歩6分という好立地で、木のぬくもりをたくさん感じられるお部屋です。
皆さまからのお問い合わせ、お待ちしております。
過去に販売していたお部屋の概要 このお部屋の販売は終了いたしました。
| 価格 | -万円 |
| 面積 | 38.88㎡ |
| 間取り | 1bedroom(1LDK) |
| 管理費 | 月額:9,280円 修繕積立金:月額10,880円 |
| 所在階 | 6階 |
| お問い合わせ・ご内見のご予約はこちらからお気軽にどうぞ | |
それでは間取りのご紹介です。1LDK、38.88㎡。6階。
ゆとりの1人暮らし、もしくはご夫婦でお住いになるイメージでしょうか(●´∀`)
こちらの物件は、家具付きの販売となる物件です!!家具の方もチェックしてみてくださいね。
【リノベーション内容】
■フローリング、天井・壁、クロス
■洗面所、トイレ、CF
■システムキッチン
■ユニットバス、洗面化粧台、ウォシュレット
■給湯器
■建具、下足入れ、網戸
■コスモスイッチ、照明器具、クリーニング、他
玄関を開けると、 フルリノベーションを終え綺麗に生まれ変わった玄関がお出迎えです☆廊下が一直線に続きます。玄関照明は人感センサーになっているので節電はもちろん夜間のお帰りの際も便利です。
玄関入って左手にシューズボックスが設置されています。トールサイズで大容量☆可動式の棚なので、靴のサイズに合わせてご自由にアレンジしてください。
廊下右手に水回りを集めたサニタリールームがあります。水回りが集まっているとお掃除もはかどります (●´∀`)右手にバスルーム、正面に洗面台、左手にトイレの並びになっています。
バスルームは、落ち着いた木目調のパネルを使いシャープな印象のバスルーム☆ゆっくり大きなバスタブにつかって疲れを癒せそうです♪もちろん追いだき機能付きです♪♪
シャンプーなどのボトルもキレイに並べて置ける棚があり、清潔感のある空間を保てますね◎モザイクパターンの床は、すばやく乾燥、楽々お手入れ♪♪浴室乾燥機能が付いているので、雨の日でも安心してお洗濯ができますね(*´∀`*)
洗面台は、新規交換済みの清潔感のある真っ白な洗面台。新しく交換したばかりなのでピカピカです☆
三面鏡の裏はたくさんポケットのついた収納になっていて、細かいもので溢れがちな洗面周りがスッキリ片付いて便利です♪シャワーヘッドも嬉しいです♪♪
スライド式ドアの奥はウォシュレット付きのトイレ。
上部には、扉付の収納棚があるので、ストック品の収納も完璧です♪♪ただ、収納棚が迫り出しているので少し圧迫感が。
廊下突き当りには扉付き洗濯機置場があります。上の棚は、洗剤などを置くのに便利です。湿気によるカビ予防にこまめな掃除は必要ですが、扉を閉めれば見た目もスッキリとし、音も静かになりますよ(’v`*)
それではリビングダイニングキッチンを見ていきましょう♫
リビングダイニングキッチンは、約10.7帖。落ち着いた風合いのフローリングが素敵なお部屋♪♪南東向きの窓から光が沢山差し込みます(*´▽`)改めまして、こちらの物件は、家具付きの販売なのでダイニングセットもソファもテーブル含まれています
(*´˘`*)♡
お部屋奥の壁には、エコカラットで装飾が施されています。
エコカラットは、見た目が洗練されているだけでなく、ホルムアルデヒトを吸着してくれたり生活臭を軽減したり、調湿機能があったりと、ものすごい実力を持っています。ライトも設置されていてステキな雰囲気です♪♪
お部屋には、スペースを利用してカウンターが設置されています。お気に入りの絵や写真、観葉植物で楽しい空間を演出できそうですよ♪下には収納もあって嬉しいです♫
リビングダイニングキッチンにはエアコン設置済みで、ご入居すぐに快適な生活が出来ます☆
キッチンは壁付きのシステムキッチン。カラーはあずき色。
壁付キッチンは収納も上下にあり、作業スペースもきちんと確保されているので料理もスムーズに出来そう♪

3つ口コンロはお料理好きの方には嬉しいですね♪人造大理石のワークトップ&シンクは大きめです(o´∀`ノ
コンロ、シンクの奥にスペースがありますので、調味料やキッチングッズをたくさん置けそうです。
リビングから出入りすることができる洋室を見ていきましょう♫
約5.6帖の洋室♫こちらのお部屋も南東向きの窓で光がいっぱい。+゚ *。。+゚ *。
グレーのクロスでスタイリッシュな雰囲気です(●’∀’●)ノ
こちらのお部屋には大型のクローゼットが設置されています♪
奥行きもしっかりで収納力バツグン☆バーも付いているので、ロングコート等の衣類の収納にも良いですね♪♪収納が大きいと生活スペースが広く使えて◎
リビングダイニングキッチンとは、スライド式ドアで隔てられているので、ライフスタイルに合わせて開けて使うこともできますね♫
こちらの物件の窓にはインナーサッシが設置され、二重サッシになっています♪♪防音対策の他に、結露防止・断熱効果と嬉しい設備です。
最後にバルコニーへ出てみます。南東向きのバルコニー☆明るさ充分でお洗濯物がよく乾きそうです♫
眺望は開けていてバッチリです(o´∀`ノ一面気持ちの良い青空でした♪♪遠くには、新宿副都心も望めます(*´˘`*)♡これは夜景が毎晩楽しみですね 。
お部屋の南側には甲州街道が走っています。下の5階の高さの所には、首都高も。二重サッシで騒音対策はなされていますが、やはり少し音はします。
いかがでしたでしょうか。
南東向きの陽当りの良いお部屋♪♪家具・エアコン付きですぐに快適な生活がスタートできます(´∀`●)
内見のご希望、ご質問などございましたら、



























































































































































































