□□□□□□□□□□□□□□□□□□□□□□□□□□□□□□□□□□□□□□□
いつも弊社ホームページをご覧頂き誠にありがとうございます。
藤和シティコープ杉並善福寺はお陰様で販売を終了致しました。弊社問合せフォームにてご要望頂けましたら、当お部屋でキャンセル等が発生した場合、他のお部屋が販売になりました際にご紹介させて頂きます。
弊社では、仲介手数料無料orお値引(50%off、30%off、20%off)にて皆様のマイホーム探しのお手伝いをさせて頂きいております。藤和シティコープ杉並善福寺の類似物件や、お探しのご条件等をお聞かせ頂けましたらご条件に合ったお部屋をご紹介させて頂きます。また、ご来社頂き一緒に探させて頂くことも可能ですので、是非弊社問合せフォームよりお気軽にお問合せください。
不動産Agent 六棒株式会社
TEL:03‐5413‐5336
□□□□□□□□□□□□□□□□□□□□□□□□□□□□□□□□□□□□□□□
杉並区善福寺よりリノベーションマンション『藤和シティコープ杉並善福寺』のご紹介です!駅から少々距離がありますが、周辺はスーパー、大型家電量販店、公園、公共施設などがあり整った生活環境です。
☆アクセス
JR中央・総武線「西荻窪」駅徒歩16分
JR中央・総武線・東京メトロ丸ノ内線「荻窪」駅よりバス10分、「井草八幡宮」バス停徒歩1分
☆ライフインフォメーション
サイットストア・・・約180m
コジマ・ビッグカメラ・・・約180m
デイリーヤマザキ・・・約58m
善福寺公園・・・約700m
杉並今川四郵便局・・・約150m
藤和シティコープ杉並善福寺は平成7年築、8階建て、総世帯数42戸。
近隣には井草八幡宮や善福寺公園があり緑豊かな環境です。
エントランスはオートロックなので防犯面も安心。
通勤の管理人さんもいます。
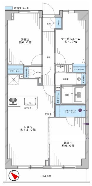
間取りのご紹介です。2SLDK、63.69㎡。
最上階・南西向きの明るいお部屋です。
眺望も良好!遠くまでよく見えますね。
室内は只今リノベーション工事中!
一足先に充実のリノベーション内容と完成イメージパースをご紹介いたします。
■キッチン・・・LIXIL製システムキッチン(食洗機)
■浴室・・・パナソニック製ユニットバス(浴室乾燥機)
■洗面・・・・パナソニック製洗面台
■トイレ・・・LIXIL製シャワートイレ
■床・・・パナソニック製フローリング
■建具・・・パナソニック製内装ドア
■照明・・・LEDダウンライト/LEDシーリングライト
■その他・・・全クロス張替え、ハウスクリーニング
■アフターサービス保証付
【内装工事終了予定:2015年7月下旬】
LDKの完成イメージです。家具の配置がしやすい縦長空間。キッチンはリビングにいる家族と会話を楽しみながらお料理ができる対面式です。
LDKに隣接する洋室の引き戸をあければより広々とした空間として利用することも可能。ウォークインクローゼットをはじめ、リビング収納、クローゼット、吊戸棚など各所に多彩な収納スペースが設けられてます。スッキリ片付いたお部屋で快適な生活が送れそうです。
工事終了前のご紹介も可能ですので、ご内見のご希望・ご質問などございましたら、
下記のお問合せフォームを今すぐクリック!
お電話03-5413-5336でも承っております。









