□□□□□□□□□□□□□□□□□□□□□□□□□□□□□□□□□□□□□□□
いつも弊社ホームページをご覧頂き誠にありがとうございます。
馬事公苑前ハイムはお陰様で販売を終了致しました。弊社問合せフォームにてご要望頂けましたら、当お部屋でキャンセル等が発生した場合、他のお部屋が販売になりました際にご紹介させて頂きます。
不動産Agent 六棒株式会社
TEL:03‐5413‐5336
□□□□□□□□□□□□□□□□□□□□□□□□□□□□□□□□□□□□□□□
リノベーションマンション馬事公苑前ハイムのご紹介です!
東急田園都市線「用賀」駅 徒歩18分、小田急線「千歳船橋」駅 徒歩18分
□□□□□□□□□□□□□□□□□□□□□□□□□□□□□□□□□□□□□□□
★★★【馬事公苑前ハイム】周辺のハザードマップをCHECK!!★★★
お部屋の記事を読む前に…!周辺のハザードマップをチェックしておきませんか!
馬事公苑前ハイムのハザードマップは★こちらから…どうぞ★
□□□□□□□□□□□□□□□□□□□□□□□□□□□□□□□□□□□□□□□
ハザードマップもご確認いただきましたので、次は街の紹介です!
閑静な住宅街という印象のある世田谷区、環境の良さで群を抜くのが用賀駅周辺の一帯
整然とした街並、大きな公園、美術館、農園までもが揃っています。
駅周辺には毎日の生活に助かるお店が建ち並んでいます。
スーパー『オーケーストア』、ドラッグストア、100円ショップ、ファーストフード、銀行、郵便局などなどお買い物はバッチリです(´∀`*)
マンションから徒歩7分のところには『まいばすけっと』もありますよ!
駅からの道のりは、ほぼ一本道トコトコ(((((*´・ω・)
用賀中町通りは、人通りが多い道なので帰りが遅くなっても安心です!
用賀駅から馬事公苑までは歩道に埋め込まれたお馬さんが案内してくれます。
初めて遊びに来るお友達も難なくおうちまでたどり着くことができる、、はず!!
こちらはマンション南側お隣の広大な公園、『馬事公苑』です。
小さな保育園児や親子連れを多くみかけました。
土曜日・日曜日は、小さなお子様を対象に「ポニー体験乗馬」を行っているそうです。「ふれあい広場」は芝生なのでピクニックスポット!
馬事公苑についてのご案内

と、ご覧の通り現在なんと馬事公苑は施設整備の為一旦休園に、、、
再開は2022年予定!2020年の東京オリンピック・パラリンピックでは
生まれ変わった姿で馬術競技が開催される予定です。
それまでの辛抱。・゚(゜´Д`゜)゚・。
マンション北側の最寄り駅は、小田急線『千歳船橋』駅。
用賀駅からと同じ徒歩約15分なのでどちらを利用してもいいですね。
千歳船橋駅周辺にもスーパーやドラッグストアなどがしっかりと揃っています。
千歳船橋駅からマンションへ向かう道の両脇には桜の木が植えられています。
桜の季節には素晴らしい景色になるんですよ。

こちらが『馬事公苑前ハイム』です。(鹿島建設施工)
昭和43年築、11階建て、2棟からなる総世帯数253戸のビッグコミュニティ。
平成22年10月大規模修繕工事実施済みです。

案内図がありましたのでパシャリ!北棟と南棟の2つの建物間に駐車場と公園です。
駐車場。
敷地内には緑が沢山(´∀`*)
すべり台にブランコもある公園もあって、嬉しい環境です
馬事公苑前ハイムの管理室です。
全部委託:日勤(住商建物株式会社)
お隣は24時間ゴミ出し可能な共用のゴミステーションがありました。

北棟、南棟にそれぞれ2基のエレベーターが設置されています。
奥行もかなり広い◎待ち時間が短くなるのは嬉しいですね。
ここで間取り図のご紹介です。
※間取り図は別タブで開きますので、確認しながらご覧頂くことが出来ます。
□□□□□□□□□□□□□□□□□□□□□□□□□□□□□□□□□□□□□□□
★★★【馬事公苑前ハイム】周辺のハザードマップをCHECK!!★★★
お部屋の記事を読む前に…!周辺のハザードマップをチェックしておきませんか!
馬事公苑前ハイムのハザードマップは★こちらから…どうぞ★
□□□□□□□□□□□□□□□□□□□□□□□□□□□□□□□□□□□□□□□
今回ご紹介のお部屋は5階、間取りは3LDK、専有面積は145.12㎡!!洋室は全て約9帖、LDKはなんと約36帖という余裕のお部屋です。更に角部屋ですからテンションも上がるってものです。
では、早速行ってみましょう!
お部屋は5階ですが、玄関が4階にありますのでエレベーターは4階で降ります。40X、50Xと玄関が並んでる様はなんだか不思議な感じ^^;)眺めの良い外廊下を進んで行くと玄関に到着です。
鮮やかなブルーの玄関ドア。横にはテレビモニター付きインターホンが設置されていて、お部屋の中から訪問者を確認する事が出来ます。映像でチェックしてから応対するかを決められるので、セールスなどに時間を取られる事もありません。
玄関ドアは内開き。玄関が広くないとなかなか内開きは出来ないですよね。開けた先は玄関ホールと階段になっていました。真っ白なクロスとダークブラウンのフローリングで高級感のある雰囲気です。
横に広い玄関は上り口も広くなっていて、荷物が多い時や小さなお子様連れの時などにほんと助かります。更にドアには安心のダブルロック設置!!
人感センサーは自動的に照明を点けてくれますので、暗い中スイッチを探したりする事ももうありません。それに、いつでも明るい玄関が迎えてくれるっていいものですよね♬ シューズボックスはトールタイプ。一部抜けた所はカウンターになっていて、観葉植物やお花、写真、コイントレイなどいろいろ置く事が出来ます。「玄関は家の顏」って言いますから綺麗に飾ってあげたいものですね。
階段もフローリングですが、滑り止めが付いているので足元も安心♪♪ 階段は右に折れて上っていきます。
こちらが二階のホール。扉が4枚ならんでいます。ちょっとした部屋くらいの広さがあってもったいない気もしますが、145㎡超ともなればこの位の贅沢も許されるんですね(^^)
では、いよいよお部屋の方へ…
お~!!
約36帖のリビング・ダイニング・キッチンです。正確に言えば「の一部」ですけど。
こちらが全貌です。36帖!なかなかこの広さはお目にかかれませんよね。普段は狭いスペースをどう使うかばかり考えているのでので、この広さを前にするとレイアウトのイメージが全く沸いて来ません(笑)
LDKの一部は全くテイストの違うお部屋になっていました。床もフローリングではなくパネルのようなものが貼られています。揃えてフローリングにした方が広さを感じられていいのかなとは思いますが、独立したお部屋として使うイメージなのかもしれませんね。
部屋幅いっぱいに大きな窓があり明るいお部屋です。角部屋ならではの二面採光で風通しも抜群ですよ。
フローリングでない方を詳しく…
グレーのヘリンボーン柄のアクセントウォールがスタイリッシュですね。個人的にはやはり独立した別のお部屋にした方がいいような気がします。
天井には物干し金具が下がっていました。エアコンなどと組み合わせるとお部屋が乾燥するのも防げて一石二鳥ですよ。もちろん使わない時は簡単に外れますのでご安心を。
ダークブラウンの扉の奥は収納になっていました。4枚扉で半分づつ開きます。
左側はハンガーポールなどを付ければクローゼットとしても使えそうですね。右側は寝具などを入れたり、衣装ケースなどを置いたり押入れのような使い方になりそう。
フローリングの部分。こちらだけだとナチュラルな雰囲気です。
では、今度はキッチンを見ていきましょう。お部屋に合わせた木目パネルの調理台です。
調理台の下は全て収納になっていました。これで足りない場合は、調理台後ろの広いスペースに食器棚などを置く事も出来ますよ。コンセントも付いていますので、冷蔵庫や家電ラックなどもこちらへどうぞ。
水栓は浄水機能付きシャワー水栓。切替え一つでで気軽に美味しいお水を使う事が出来ます。ノズルが伸びてシンクのお掃除も楽々ですよ。
この眺めがカウンターキッチン最大のメリットですよね♪♪
コンロは三口。コンロ前には油跳ねなど防ぐガラス板が設置されています。油の粒子はかなり飛ぶので天井まで設置されてて安心ですね。眺めを遮らないガラスなのもGood!!
調理中は換気扇をお忘れなく!グリル使用時に忘れたりしたら大惨事ですよ(笑)換気扇は調理の少し前から回しておくと効果的。どこかの窓を開けておくのもいいらしいですね。
調理台奥の窓際には棚が付いています。食品ストックや調理器具など、目立たない所なので何でも置いておけますね。窓は二重サッシ。外には開けた景色が広がっています。
では、次は洗面室へ…
洗面室へのドアは高さが175cm位と多少低くなっています。背の高い方はお気を付け下さい。
個性的な水玉模様の床になった洗面室。こちらには洗面台、洗濯機スペース、トイレ、浴室がまとまっています。
まずは洗面台。ユニットの洗面台ではなく造作の洗面台です。洗面ボウルの両脇には広いスペースもあって、良く使う物を置いたり、メガネや時計などをちょっと置いたりと使い勝手が良さそう。戸棚がありませんので洗面台の下も上手く使いたいところです。
次はトイレへ…
真っ白なトイレに床の水玉がいい感じです。
もちろん温水洗浄便座付き。TOTO製のウォシュレットです。ニッチカウンター付でトイレットペーパーのストックや消臭剤などを置く事が出来ますよ。
洗面室が脱衣所を兼ねている事が多いですが、こちらには専用の脱衣所が付いています。十分な広さがありますのでランドリーBOXなども置けそうですね。
浴室は木目のアクセントパネルを使った落ち着いた雰囲気・・・と言いたい所ですが、浴槽がなんとピンク!!個人的には白の方が好みです^^;)
追い焚き機能は付いていませんが、今の浴槽は保温機能に優れていますのですぐにお湯が冷めたりなんて心配はありませんよ。
浴室換気乾燥機は浴室の換気の他に、お洗濯物乾燥や浴室暖房など様々な使い方があります。中には「涼風」なんてボタンもありますので、これからの暑い季節にも活躍してくれそう。残念ながら冷房機能はありませんが、濡れた体には十分涼しく感じますよ。

では、ホールに戻って三つの洋室を順番に見ていきましょう。
三部屋共広さは約9帖と同じ、お部屋の雰囲気も同じになっていますので、収納の大きさや窓の向きなどが選ぶ時の決め手になりそうです。
まずは、LDKの隣、西側の洋室から…
西向きの窓がひとつあるお部屋です。間取り図では内開きのドアになっていますが、外開きですのでお部屋のスペースを無駄なく使う事が出来ますよ。LDKとは違ってダークブラウンのフローリングでシャープな印象です。
9帖はやはり広いですね。ベッドを二つ置いてもまだ余裕があり、デスクやドレッサーなどを置く事も出来る広さです。
西向きの窓の外は開放的。午後は陽当りも良さそうですね。クローゼットは幅はありませんが奥行きのあるタイプです。
次は北西角の洋室です。
北向きに窓がひとつあるお部屋です。お部屋の真ん中に梁が通っていますね。ただ、リビングなどと違って立って歩く事の少ない寝室だと、それ程気にならないと思います。
こちらの窓の外も合格(^^)クローゼットは幅が広く、間口が広くて使いやすそうなタイプです。
三つ目は北東側の洋室です。
北側と東側に窓のある二面採光のお部屋です。採光、通風共に良好ですよ。
・・・と思ったんですが、東側の窓は非常時の避難用との事。『常時の開放は禁止』とありました^^;)外は隣のお部屋のバルコニーになっていて、そこから非常階段に出る事が出来るようです。北側の窓の外は◎!
三つ全ての洋室にエアコンが設置されていました。快適に新生活をスタート出来るのは嬉しいですよね。
このお部屋の収納は特大サイズ!ハンガーポールが二本も設置されています。スーツケースなどの嵩張る物も難なく収納可能ですし、衣装ケースや棚などを置いて収納力をアップさせるのもアリですね。
それでは最後にバルコニーのご紹介。こう見ると一つのバルコニーのようですが、右と左の窓の外は別々のバルコニーになっていて行き来は出来ません。
という訳で、まずは左側の窓から出てみましょう。こちら側の窓は二重サッシになっています。
右側より少し小さめですが、手すりが下まで柵になっていて開放的なバルコニーですね。
次は右側から…
こちらの窓は二重サッシではありませんが、分厚い合わせガラスになっていました。二重サッシと同じようにに防音はもちろんの事、遮熱や防犯など様々なメリットがあります。
こちらが右側のバルコニー。先程と比べるとかなり広い印象です。やはり奥行きがあるとゆったり感じますね。上部には物干し金具が付いていて、お洗濯物も干せるようになっています。ほぼ南向きなので一日中お洗濯チャンスですよ!
バルコニーの外には見事な眺望が広がっています。緑もたっぷりで癒されますね。騒音も無くとても静かですよ♬
・
以上で馬事公苑前ハイムのご案内を終わります。
いかがでしたでしょうか??
用賀駅から徒歩18分のマンションです。
リノベーション済みという事で室内はとてもキレイですよ (っ・ω・)っ
内見のご予約やご質問などございましたらお気軽にお問い合わせくださいませ。
ご連絡お待ちしております。
□□□□□□□□□□□□□□□□□□□□□□□□□□□□□□□□□□□□□□□
★★★【馬事公苑前ハイム】周辺のハザードマップをCHECK!!★★★
お部屋のご購入前に…!周辺のハザードマップをチェックしておきませんか!
馬事公苑前ハイムのハザードマップは★こちらから…どうぞ★
□□□□□□□□□□□□□□□□□□□□□□□□□□□□□□□□□□□□□□□
弊社、不動産Agent 六棒株式会社では、
□リノベーションマンションはほぼ全て仲介手数料無料!
□その他一般仲介物件は仲介手数料20%~30%OFF!
にてお取り扱いしております!※弊社の「Agent Fee=仲介手数料」についてはご案内、ご面談の際に営業担当者よりご説明いたします!
なるべく沢山のお部屋をホームページに掲載したいと思っておりますが、時間的成約もございますので、残念ながらご紹介できるお部屋の一部しか掲載できておりません。
このホームページに掲載中のお部屋、その他サイト等で気になるお部屋、街を歩いていて気になったマンション等々ございましたら是非、弊社営業部までご相談ください!
~不動産Agent 六棒株式会社の特徴~
・一般仲介物件の仲介手数料は20%~30%OFFにてご案内中です!
・リノベーションマンションについてはほぼ全て仲介手数料無料です!
・住宅ローンに自信あります!
・頭金10万円より購入できます。是非ご相談下さい!
・お部屋のご見学は車で2~3件まとめて案内します!
・物件数3000件以上、新築戸建、リノベ物件も多数ご用意しております!
過去に販売していたお部屋の概要 このお部屋の販売は終了いたしました。
| 価格 | -万円 |
| 面積 | 92.86㎡ |
| 間取り | 3bedrooms(3LDK) |
| 管理費 | 月額:15,910円 修繕積立金:月額31,040円 |
| 所在階 | 8・9F |
| お問い合わせ・ご内見のご予約はこちらからお気軽にどうぞ | |
※間取り図は別タブで開きますので、確認しながらご覧いただく事が出来ます。
□□□□□□□□□□□□□□□□□□□□□□□□□□□□□□□□□□□□□□□
★★★【馬事公苑前ハイム】周辺のハザードマップをCHECK!!★★★
お部屋の記事を読む前に…!周辺のハザードマップをチェックしておきませんか!
馬事公苑前ハイムのハザードマップは★こちらから…どうぞ★
□□□□□□□□□□□□□□□□□□□□□□□□□□□□□□□□□□□□□□□
今回ご紹介するお部屋は9階、間取りは3LDK、専有面積は92.86㎡。メゾネット、ファミリータイプのお部屋です。平置き駐車場の専用使用権(無料)も付いていますよ!
では…
お部屋自体は9階ですが、玄関が8階にありますのでエレベーターは8階で降ります。
明るい外廊下を進みます。外には…
どうですか、この開放感!こんな景色を眺めながら出勤出来れば、少しは憂鬱な気分もましになりそうです(^^)
玄関ドアにはテレビモニター付きインターホンが設置が設置されていて、お部屋の中から訪問者を確認する事が出来ます。お部屋は上の階ですから、これはありがたいですね。
中に入ると、普通は廊下がある所には階段がありました。ふかふかの絨毯が敷き詰められていて気持ち良さそうです。
振り返って玄関の様子です。姿見はお出掛け前の身だしなみチェックに重宝しそうですね。玄関ドアには安心のダブルロック。しっかり鍵を掛けましょう!
人感センサーは中に入っただけでライトを点けてくれますので、両手が塞がっていても大丈夫。消し忘れの心配もなく一石二鳥ですね。
階段を上がりきると、廊下が左右に伸びていました。
まずは左の突き当りのドアから…
こちらは約16.4帖のリビング・ダイニング・キッチン。縦に長く、手前からキッチン、ダイニング、リビングの並びのオーソドックスなタイプです。結局このタイプが使い易いんですよね。奥の窓から眩しい光が射し込んでいて明るいお部屋です。
このマンションはセントラルヒーティングになっていて、建物全体で暖房をしています。天井には間接照明。シーリングライトで明るいお部屋もいいですが、寛ぎのリビングには柔らかな光の間接照明が似合います。必要に応じてスタンドなどをプラスすればアクセントも付きますしね♪♪
リビングからだとキッチン内はほぼ見えません。お料理中は心強いですね(笑)
では、次はキッチンを…
調理台下は食洗機と引き出しタイプの収納になっていました。食洗機があれば、食後はみんな揃ってのんびり過ごせますね♬
水栓は浄水機能付きシャワー水栓。気軽に美味しいお水を使う事が出来ます。今は縛られていてお見せ出来ませんが、ヘッドが伸びるのでシンクのお掃除などにも便利ですよ。
三口コンロに片面焼きグリルと調理器具も充実しています。
お料理した時の匂いって、後になって気になったりしますよね。ちょっとした調理でも換気扇をお忘れなく! 調理台後ろには広いスペースがあり、冷蔵庫や家電ラック、食器棚などが置けるようになっていました。
では隣のお部屋へ…
こちらは約7.8帖の洋室。バルコニーに面した窓のある明るいお部屋です。フローリング以外は白というシンプルな色使い。カーテンや家具に、どんな色を持って来ても合わせる事が出来そうですね。
収納は間口が広くて使い易そうなクローゼット。奥行きもあって収納力も十分です。
次は洗面室へ…
こちらには洗面台、洗濯機スペース、トイレ、浴室がまとまっています。
まずは洗面台。ユニットではなく造作の洗面台ですね。味があっていい感じです♪♪
次はトイレへ…
もちろん温水洗浄便座付き。INAX製のシャワートイレです。
次は浴室へ…
ブラウンのアクセントパネルを使用した落ち着いた雰囲気の浴室です。
追い焚き機能などはないシンプルな浴槽です。ただ、今の浴槽は保温機能に優れていますので、しっかり蓋を閉めれば結構長い時間温かさを保てるらしいですよ。
浴室乾燥機は浴室の換気の他に、お洗濯物の乾燥やヒートショック予防など様々な役に立ってくれます。せっかくなので、どんどん使っていきましょう。
最後は洗濯機スペース。上には棚があり、すぐ手の届く所に洗剤などを置いておけるのがいいですね。
では、廊下に戻って…
すぐ右の扉は収納棚。奥行きが深く棚の前にも広いスペースがあるので、背の高い物もそのまま入れておけますよ。掃除機やモップなんかいかがですか?
では、階段上がって右側の廊下へ…
こちらは約8帖の洋室。洋室の中では一番広いお部屋です。ベッドを二つ置いてもまだまだ余裕があり、メインの寝室に良さそうですね。
クローゼットはこちらも間口の広いタイプ。先程のお部屋のものより少し大きめです。中が見やすい収納は、無駄な買い物を減らす効果があるらしいですよ(^^)
では、バルコニーへ出てみましょう。窓が少し高いので出る時はお気を付け下さい。
こちらが北北西側のバルコニー。幅も奥行きもある広いバルコニーですね。ここから仕切りを破っていくと、非常階段に出られるようですよ。
9階からの見事な眺望が望めます。
では、隣のお部屋へ…
こちらは約6.9帖の洋室。
こちらの窓も先程のバルコニーに面しています。ただ、窓がより高くなっていますのでここからは出るのはお勧め出来ません。もちろん非常時は別ですよ!
このお部屋の収納はウォークインクローゼット。L字型にハンガーポールが設置されています。
それでは、最後にバルコニーのご紹介…
リビング、洋室どちらからでも出られます。
南南東向きの二部屋にまたがる幅の広いバルコニー。リビング前は奥行きが広く、一段と広々としています。陽当りも良好ですので、お洗濯物も気持ち良く乾きそうですね。
バルコニーからは開放的な眺めが広がっています。正面に建つのは南棟ですね。だいぶ距離があるので全然気になりません。左方向の馬事公苑ではオリンピックに向けて工事の真っ最中。オリンピック本番では、流石に競技の様子は見えないと思いますが雰囲気は感じられそうです。なんかワクワクしますね♬
・
以上で馬事公苑前ハイムのご案内を終わります。
いかがでしたでしょうか??
用賀駅から徒歩18分のマンションです。
リノベーション済みという事で室内はとてもキレイですよ (っ・ω・)っ
内見のご予約やご質問などございましたらお気軽にお問い合わせくださいませ。
ご連絡お待ちしております。
□□□□□□□□□□□□□□□□□□□□□□□□□□□□□□□□□□□□□□□
★★★【馬事公苑前ハイム】周辺のハザードマップをCHECK!!★★★
お部屋のご購入前に…!周辺のハザードマップをチェックしておきませんか!
馬事公苑前ハイムのハザードマップは★こちらから…どうぞ★
□□□□□□□□□□□□□□□□□□□□□□□□□□□□□□□□□□□□□□□
弊社、不動産Agent 六棒株式会社では、一般仲介物件は仲介手数料20%~30%OFF!にてお取り扱いしております!
なるべく沢山のお部屋をホームページに掲載したいと思っておりますが、時間的成約もございますので、残念ながらご紹介できるお部屋の一部しか掲載できておりません。
このホームページに掲載中のお部屋、その他サイト等で気になるお部屋、街を歩いていて気になったマンション等々ございましたら是非、弊社営業部までご相談ください!
~不動産Agent 六棒株式会社の特徴~
・一般仲介物件の仲介手数料は20%~30%OFFにてご案内中です!
・住宅ローンに自信あります!
・頭金10万円より購入できます。是非ご相談下さい!
・お部屋のご見学は車で2~3件まとめて案内します!
・物件数3000件以上、新築戸建、リノベ物件も多数ご用意しております!
過去に販売していたお部屋の概要 このお部屋の販売は終了いたしました。
| 価格 | -万円 |
| 面積 | 97.32㎡ |
| 間取り | 4bedrooms(4LDK) |
| 管理費 | 月額:17,660円 修繕積立金:34,460円 |
| 所在階 | 8階 |
| お問い合わせ・ご内見のご予約はこちらからお気軽にどうぞ | |

共用廊下は風通しの良い外廊下です。
間取り図は4SLDK、97.32㎡。
リノベーション済でピカピカ♪ファミリーにおすすめです。
間取りはクリックすると別タブで開くことも出来ます!
□□□□□□□□□□□□□□□□□□□□□□□□□□□□□□□□□□□□□□□
★★★【馬事公苑前ハイム】周辺のハザードマップをCHECK!!★★★
お部屋の記事を読む前に…!周辺のハザードマップをチェックしておきませんか!
馬事公苑前ハイムのハザードマップは★こちらから…どうぞ★
□□□□□□□□□□□□□□□□□□□□□□□□□□□□□□□□□□□□□□□
お部屋は8階の角部屋。(三方角部屋!)
こちらのお部屋前の共用廊下にはついたてが付いているので、雨の影響を受けづらいのがうれしいですね。廊下もさほど雨で汚れることはないのではないでしょうか(‘ω’)
インターホンは来訪者の顏が確認できるTVモニター付きで防犯面も安心。玄関扉はダブルロックキーでピッキング対策もバッチリです。
ピンポーン♪を押しておじゃまします。
玄関ホールはご覧の通り、ゆったりとした空間になっています。窓があるので自然換気ができるのもうれしいところです。また、玄関には人感センサーがついており、人の動きを感知して自動で照明が消灯します。消し忘れがなく、節電効果も期待できますよ。
玄関をあがるとまっすぐ廊下がのびています。長いですね!
インテリアなどを置くと映えそうなカウンターも造作されています。
カウンターから奥側へまだまだ廊下は続きます。
廊下側の扉も気になりますが、先に気になるリビングダイニングキッチンを見ていきましょう。採光部のある扉の先です。
じゃじゃん。
リビングダイニングキッチンは約15.1帖とゆとりのある空間になっています。
お部屋に設置されている家具もついてきますので、新生活もスムーズに始められそうですよ!
ちょうどお部屋の中心に梁がありますが、ここでリビングスペース、ダイニングキッチンと分かれる感じでしょうか(*‘ω‘ *)ダイニング側に窓があるので外の景色を眺めつつ食事が楽しめますね♪
リビング側にはマルチカウンターが造作されています。テレビ端子が近くにあるのでドーンと大型のTVを置いてもいいかも!
食後に家族みんなで映画鑑賞♪なんて生活が送れそうです。
ちなみにマルチカウンターのある壁面にはエコカラットという壁材が使用されています。見た目がおしゃれですが、調湿、消臭効果もある優れものなんです。
ソファ側から入口方向を見るとこんな感じ。
照明はダウンライト、スポットライト、シーリングファンと多彩。くるくる回るシーリングファンはお部屋の空気を循環させるので暖房や冷蔵の効率が上がるという効果も期待できます。
リビング内にはデスク代わりに使えるカウンターもありますよ!
つづいてキッチンを見ていきましょう。
横に窓があるので換気がスムーズにできますね。
キッチンはタカラスタンダードのものです。
吊戸棚にスライド式のキャビネットと収納スペースもたっぷり♡
ワークトップはしっとりした質感が魅力の人造大理石です。
コンロは3口、グリルあり、食洗機あり、浄水器内蔵ハンドシャワー水栓と設備も充実しています。これはお料理が楽しくなりそうな予感♫
水栓のホースを伸ばせばシンクのお掃除も隅々まで簡単にできますよ。
正面には調味料を置くのによさそうなカウンター、窓際には小さな棚もあります。ラップやなどすぐ使うアイテムはこのあたりに置いておくとよさそうですね。
こちらがキッチン横の窓からの景色です。
スパーンと抜けていて爽快な眺めです!!
4部屋ある洋室のうち2部屋はリビングを介していけるようになっています。
リビング横の3枚の可動扉奥の洋室を見てみましょう。
ガラガラ~と扉を横にスライドさせまして・・・
リビング横の洋室は約7.1帖。4部屋ある洋室の中で一番広いお部屋になります。
南、西の2面に窓があり晴れた日はたっぷりの陽ざしが入りそうです(*’▽’)
洋室はリビングダイニングキッチンとつなげて使うこともできます。
お正月など人がたくさん集まる時などに便利ですね!
もう1部屋の洋室はデスクを挟んで右側の扉です。
こちらの洋室は約6.5帖。南向きで陽当りに恵まれたお部屋です。
壁面の一面には落ちついた色合いのカラークロスが使われています。
約1.2帖あるウォークインクローゼットがあるので片付けもサクサク進みそうです。
デスクを挟んで左側の扉は洗面室になります。
こちらが洗面室。バスルーム、トイレ、洗面化粧台がここにまとまっています。
洗面化粧台はパナソニック製。鏡の裏は収納になっています。
横に長いので2人並んでの身支度も可能です。これで朝の洗面台の争奪戦も回避できるはず。
水栓は引き出せるのでお掃除に便利。寝ぐせがひどい時はこれでザッと濡らしてパパッとなおしてしまいましょう。
洗面化粧台横にはリネン棚があります。
タオルや着替えはここへ置いておけますね。
棚の高さは調節可能です。
洗面室一番奥の扉はトイレです。
トイレはLIXILのものです。シャープなフォルムでお掃除も楽々♪
もちろん、ウォシュレットついています。
サニタリー用品などを仕舞っておくのに便利は吊戸棚も設置されています。
洗面化粧台の向かい側がバスルームです。
扉の横には浴室換気乾燥機の操作パネルがついています。お洗濯物が多い日や雨の日に乾かせる場所があるとホント助かりますよね~。
バスルームは4面に木目調の壁パネルが使われ高級感たっぷり゚+.゚(´▽`人)゚+.゚ィィ!!
広さにゆとりがあるのでお子様と一緒にバスタイム!なんて楽しみもできそうです。
ラウンド型のバスタブでのんびりと湯船に浸れる幸せ。
そういうのいいですよね( ˘ω˘)
リビングダイニングキッチンを出て、今度は廊下側を見ていきましょう。
レッツゴー!!
廊下を出て右側の扉は納戸です。
なんと納戸は約2.1帖!大人が横になって寝れる位の広さがあります。扇風機などの季節家電や日用品のストック、お父さんのゴルフ用品などなど、まとめてここに仕舞っておけそうです。
納戸の向かい側は洋室です。
こちらの洋室は約6.2帖。西向きの大きな窓がついています。
こちらのお部屋は壁一面の大きなクローゼットがあります。棚もあり整理整頓もしやすそう(*´▽`*)収納が大きいと居住スペースを有効的に使えるのがうれしいところです。インテリアを飾っておくのにピッタリなカウンターも造作されています。
洋室を出て玄関側へ進むと扉がまた一つ。
こちらは洗濯機置場でした。洗剤は上の棚へどうぞ♪使わない時は閉めておけば生活感も隠せます。
そういえば玄関ホールにシューズBOXがなかったな・・・と思われた方!シューズBOXは廊下の中央あたりにあります。多少玄関と距離がありますが、慣れればきっと何とも思わないのでしょう。住めば都です。
さらに玄関方向へ廊下を戻りまして・・・
玄関ホールに一番近いこちらの扉は洋室です。
こちらの洋室は約6.9帖。西・北の2面に窓があります。
どの洋室も6帖以上とゆとりがあるのがいいですね(´∀`)
こちらのお部屋には約1.1帖のウォークインクローゼットがついています。
お洋服からカバンまで色々仕舞っておけますよ♪
そして西側の窓際にはデスクと収納棚が造作されています。
窓からの景色も◎!静かでこれは勉強や読書に集中できそうです。私もこういうデスクが欲しい!
最後にリビング横の約7.1帖の洋室からバルコニーに出てみましょう。
どきどき。ちなみにお隣の約6.5帖の洋室からも出られます。
バルコニーはタイル敷きで約9.19㎡、南向き。
晴れた日はお布団からお洗濯物まで色々干したくなりますね!
(あいにくこの日は曇天でした。)
正面の眺望です。ちょうど向かいに見える白い建物が馬事公苑前ハイムの南棟になります。大分距離があるので人目は気になりません。
左右の眺めです。開放感たっぷりで気持ちいいですね~
晴れると富士山も見えるみたいですよ!ゼヒ現地を実際にご見学頂ければ幸いです。
馬事公苑前ハイム北棟8階、いかがでしたでしょうか?
内見のご予約やご質問などございましたらお気軽にお問い合わせくださいませ。
ご連絡お待ちしております。
□□□□□□□□□□□□□□□□□□□□□□□□□□□□□□□□□□□□□□□
★★★【馬事公苑前ハイム】周辺のハザードマップをCHECK!!★★★
お部屋のご購入前に…!周辺のハザードマップをチェックしておきませんか!
馬事公苑前ハイムのハザードマップは★こちらから…どうぞ★
□□□□□□□□□□□□□□□□□□□□□□□□□□□□□□□□□□□□□□□
弊社、不動産Agent 六棒株式会社では、
□リノベーションマンションはほぼ全て仲介手数料無料!
□その他一般仲介物件は仲介手数料20%~30%OFF!
にてお取り扱いしております!※弊社の「Agent Fee=仲介手数料」についてはご案内、ご面談の際に営業担当者よりご説明いたします!
なるべく沢山のお部屋をホームページに掲載したいと思っておりますが、時間的成約もございますので、残念ながらご紹介できるお部屋の一部しか掲載できておりません。
このホームページに掲載中のお部屋、その他サイト等で気になるお部屋、街を歩いていて気になったマンション等々ございましたら是非、弊社営業部までご相談ください!
~不動産Agent 六棒株式会社の特徴~
・一般仲介物件の仲介手数料は20%~30%OFFにてご案内中です!
・リノベーションマンションについてはほぼ全て仲介手数料無料です!
・住宅ローンに自信あります!
・頭金10万円より購入できます。是非ご相談下さい!
・お部屋のご見学は車で2~3件まとめて案内します!
・物件数3000件以上、新築戸建、リノベ物件も多数ご用意しております!
過去に販売していたお部屋の概要 このお部屋の販売は終了いたしました。
| 価格 | -万円 |
| 面積 | 86.11㎡ |
| 間取り | 3bedrooms(3LDK) |
| 管理費 | 月額:14,670円 修繕積立金:28,610円 |
| 所在階 | 10・11階 |
| お問い合わせ・ご内見のご予約はこちらからお気軽にどうぞ | |
ではまず間取り図のご紹介をいたします。
間取り図は別タブで開きますのでご覧になりながらご案内いたします。
お部屋は11階、間取りは3LDK、専有面積は86.11㎡となります。
玄関入口が10階にあり、お部屋は11階がメインです。
エレベーターを10階で降り廊下を進むと、玄関に到着しました。
玄関ドアは、カメラ付きインターホンとダブルロックがしっかり守ってくれています。
玄関の中の様子です。
入って右側にはシューズボックスがありました。
奥行きが棚よりあるので、長い物なども収納可能です。
棚自体も高さ調整可能ですからブーツなども問題ありませんよ。
人感センサーはライトの消し忘れをなくして、節電に一役買ってくれます。
暗いお部屋に帰るのも嫌ですしね^^;
では、階段を昇って行きましょう!
階段は途中で右に折れて続いていますね。
少し急ですが、手摺や滑り止めが付いているので安心です♪
階段を昇りきると三枚の扉が並んでいました。
まずは左のスリットガラスの入ったドアからいきましょう・・・と言ったところで、段差につまづいてしまいました。皆さんもお気を付け下さいね(;^ω^)
では、気を取り直して行ってみましょう!
こちらが約15.5帖のリビング・ダイニング・キッチンとなります。
自然の木肌に近いカラーのフローリング、境のない真っ白な壁と天井が、明るく柔らかな雰囲気を出しています。選ぶ家具やカーテンなどで、お部屋のイメージを幅広く選ぶことが出来そうです。
入ってすぐの所に、ライティングされた飾り棚がありました。
写真やお花や置物など、何を置こうか迷ってしまいますね♪
リビング中央にDENがありました。
パパやママの勉強机ですね(^^)
DENって何かの略語かと思っていたのですが、英語なんですね。間取り図にDENと書いてあったら書斎や小さな多目的に使うスペースのことをいうようですが、もともとは動物の巣穴とか隠れ家なんて意味らしいです。
壁のアクセントになっているこちらは、ただの飾りじゃありません。エコカラットといって、お部屋の湿度を調整したり匂いを吸収したりしてくれる優れものなんですよ。日本家屋の砂壁のようなものですね。
リビングよりキッチン方向を…
ということで今度はキッチンを見てみましょう。
鏡面仕上げでピカピカのキッチンです。
汚れが落ちやすく、お掃除もラクラクですよ。
片面焼きグリルとコンロが3口付いてます。
グリルはお魚のイメージが強いですが様々な使い道があります。お肉やお野菜、トーストなどもふっくら焼けるとか♪
収納は調理台の下と上部にありました。シンクの下もすっきりしていますね。
水栓は浄水機能付きシャワー水栓ですので、お料理など美味しいお水で作れますよ。
食洗機、嬉しいですね。
食後はみんなでゆったりしましょう♬
オープンキッチンですので、お料理中は換気扇をお忘れなく!
お料理しながらご家族を・・・いろいろ想像してしまいますね(^^)
では次のお部屋に行ってみましょう。
リビングにあるドアを…
こちらが約6.3帖の洋室となります。
リビングの隣ですが、つなげて使うことの無い独立性の高いお部屋になっていますね。
壁にある白い箱は、セントラルヒーティングです。建物ごと暖房するんですね。
ウォークインクローゼットが付いていました。
大きい物も置けて便利です。
では、今度はキッチン近くの引き戸を開けてみます。
洗面室ですね。
収納は洗面台下と、右側面にある棚タイプの物になります。
扉が無いので綺麗にしておきたいところですね。
水栓はハンドシャワータイプですので、シャンプーとかも可能です。
洗濯機スペースの上部も棚タイプの収納です。
個人的には棚の下に付いているハンガー掛けのパイプが嬉しいですね♪
浴室となります。
追い炊き機能とかは無く、保温性の高い浴槽を使用しているようですね。
浴室換気乾燥機は、浴室のカビ予防、雨の日のお洗濯物の乾燥、ヒートショックの予防など様々な役に立ちます。どんどん使っていきましょう。
次は、洗面室内の浴室隣の引き戸を開けてみます。
トイレです。
上部に収納があります。
もちろんウォシュレットも完備していますよ。
TOTOさんいつもお世話になってます(^^)
それでは一度、廊下に戻ります。
3枚のドアの真ん中を開けると…
こちらが約7.7帖の洋室となります。
正面窓の向こうは北西側のバルコニーのはずなので、あとで行ってみましょう。
入口ドア近辺に収納が固まってありますね。
収納棚とウォークインクローゼットでした。
見せるもの、隠すもの、使い分けて収納しないといけませんね。
では北西のバルコニーに出てみましょう。
少し高さがあるので気を付けてくださいね。
仕切りを破って行く所で確認は出来ませんでしたが、左に見える構造物は災害時の避難階段みたいです。
さすが11階の眺めが広がってますね。
では次のお部屋へ…
階段上がって右側のドアです。
こちらが約6.7帖の洋室となります。
こちらもバルコニーに面していますが、窓が高いので普通は出入りはしない感じだと思います。もちろん非常時には乗り越えましょう。
このお部屋も収納は収納棚とウォークインクローゼットですね。
全体的に見せる収納が多い印象です。
棚は高さ調整が可能となってますので、いろいろ工夫してみましょう。
それでは最後に、南東側のバルコニーに出てみます。
半分が広めで壁、半分は狭めで柵になってます。
広い方でお洗濯物が干せるようですね。
正面には南棟(1号棟)が建っていますが、距離がありますので全く気にならないと思います。
下を見ると、中庭が広がっています。
緑が目に入ると安らぎますね♬
やっぱり11階です、素晴らしい眺望ですね♬
この日はあいにくのお天気でしたが、晴れていれば空が綺麗だと思いますよ(^^)
では、以上で馬事公苑前ハイムのご案内を終わります。
いかがでしたでしょうか??
千歳船橋駅から徒歩15分のマンションです。
リノベーション済みという事で室内はとてもキレイですよ (っ・ω・)っ
内見のご予約やご質問などございましたらお気軽にお問い合わせくださいませ。
ご連絡お待ちしております。
弊社、不動産Agent 六棒株式会社では、
□リノベーションマンションはほぼ全て仲介手数料無料!
□その他一般仲介物件は仲介手数料20%~30%OFF!
にてお取り扱いしております!※弊社の「Agent Fee=仲介手数料」についてはご案内、ご面談の際に営業担当者よりご説明いたします!
なるべく沢山のお部屋をホームページに掲載したいと思っておりますが、時間的成約もございますので、残念ながらご紹介できるお部屋の一部しか掲載できておりません。
このホームページに掲載中のお部屋、その他サイト等で気になるお部屋、街を歩いていて気になったマンション等々ございましたら是非、弊社営業部までご相談ください!
~不動産Agent 六棒株式会社の特徴~
・一般仲介物件の仲介手数料は20%~30%OFFにてご案内中です!
・リノベーションマンションについてはほぼ全て仲介手数料無料です!
・住宅ローンに自信あります!
・頭金10万円より購入できます。是非ご相談下さい!
・お部屋のご見学は車で2~3件まとめて案内します!
・物件数3000件以上、新築戸建、リノベ物件も多数ご用意しております!
過去に販売していたお部屋の概要 このお部屋の販売は終了いたしました。
| 価格 | -万円 |
| 面積 | 145.12㎡ |
| 間取り | 3bedrooms(3LDK) |
| 管理費 | 月額:25,090円 修繕積立金:48,960円 |
| 所在階 | 4,5階 |
| お問い合わせ・ご内見のご予約はこちらからお気軽にどうぞ | |
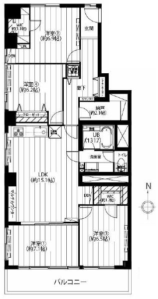
今回は未リフォームのお部屋となります。
まず間取り図をご紹介いたします。
間取り図は別タブで開きますのでご覧になりながらご案内いたします。
お部屋は4階(玄関)と5階、間取りは3DK、専有面積は145.12㎡となります。
4階の玄関から入って、お部屋は5階がメインです。
LDKが36帖ってなかなかないですよね。楽しみです♬
4階でエレベーターを降りて、見晴らしのいい外廊下を進むとお部屋に到着しました。
玄関ドアはダブルロックに守られてます。
玄関に入ると階段が伸びています。
右にはいっぱい入りそうなシューズボックスがありました。
階段は途中で右に曲がって続きます。
階段を上がりきるとこんな感じの廊下になってます。
短くて広いので廊下というかホールみたいですね。
3つのドアは各洋室に続いています。
もう一つはドアがついておらず、そのままリビング・ダイニング・キッチンに続いています。
お~・・・学校の教室みたいですね。さすが36帖です(^^)
バルコニーに面した窓が片側の壁に並んでいて明るいお部屋です。
これだけ広いと、どう区切るかに頭を悩ませそうですね(;^ω^)
奥には収納がありましたが、これもまた大きいです。
オープンキッチンですね。
キッチン自体は少し大き目の普通のシステムキッチンですが、後ろのスペースがまた規格外です。カウンターも普通の食卓位広さがあるので、大勢でワイワイしながらお料理が出来そうです♬
巨大カウンターの下は収納棚になってました。
広くないですか?(笑)
こちらが洗面室なんですが…
実は今ライトが全然ついておらず、真っ暗なのでここまでしか撮れませんでした。
スミマセン^^;
こちらが西側約9帖の洋室です。
西側に窓が一つありますね。
こちらが北西側約9帖の洋室です。
北西側に窓が一つあります。
こちらが北側約9帖の洋室です。
北東側と北西側に窓が二つあります。
レトロな感じの壁紙ですね。
かなり大きなクローゼットがありました。大きさ的にはウォークインでもいい感じです。
では最後にバルコニーへ出てみましょう。
5階ながら緑が多いのと高い建物がないことで、眺望は最高ですね♬
では、以上で馬事公苑前ハイムのご紹介を終わります。
いかがでしたでしょうか??
千歳船橋駅から徒歩15分のマンションです。
内見のご予約やご質問などございましたらお気軽にお問い合わせくださいませ。
ご連絡お待ちしております。
弊社、不動産Agent 六棒株式会社では、
□リノベーションマンションはほぼ全て仲介手数料無料!
□その他一般仲介物件は仲介手数料20%~30%OFF!
にてお取り扱いしております!※弊社の「Agent Fee=仲介手数料」についてはご案内、ご面談の際に営業担当者よりご説明いたします!
なるべく沢山のお部屋をホームページに掲載したいと思っておりますが、時間的成約もございますので、残念ながらご紹介できるお部屋の一部しか掲載できておりません。
このホームページに掲載中のお部屋、その他サイト等で気になるお部屋、街を歩いていて気になったマンション等々ございましたら是非、弊社営業部までご相談ください!
~不動産Agent 六棒株式会社の特徴~
・一般仲介物件の仲介手数料は20%~30%OFFにてご案内中です!
・リノベーションマンションについてはほぼ全て仲介手数料無料です!
・住宅ローンに自信あります!
・頭金10万円より購入できます。是非ご相談下さい!
・お部屋のご見学は車で2~3件まとめて案内します!
・物件数3000件以上、新築戸建、リノベ物件も多数ご用意しております!
過去に販売していたお部屋の概要 このお部屋の販売は終了いたしました。
| 価格 | -万円 |
| 面積 | 86.11㎡ |
| 間取り | 3bedrooms(3LDK) |
| 管理費 | 月額:14,470円 修繕積立金:月額28,230円 その他費用:月額9,640円 |
| 所在階 | 南棟5階 |
| お問い合わせ・ご内見のご予約はこちらからお気軽にどうぞ | |
間取りは3LDK、86.11㎡。
2面にバルコニーのある風通しの良いお部屋です。
クリックすると別タブで開きますよ!
間取りをご覧いただけると分かりますがお部屋の中に階段があります。ということで、玄関は4階部分にあります。
玄関前の共用廊下からの眺望がなかなかよかったです。
ピンポーン♪インターホンはTVモニター付き。来訪者の顏が確認できるので防犯面も安心です。
ではブルーの玄関扉をあけてお部屋の中へおじゃまします♪
室内はリノベーション済みでぴかぴかです。玄関には人感センサーがついており、人の動きを感知して自動で照明が消灯します。スイッチをつける手間が省け、節電効果もありますよ。
玄関横にはカウンター部分があるシューズBOXが設置されています。
普段履く靴はここで管理してブーツやサンダルなどのシーズン物はお部屋で管理するのがよさそうですね。
玄関をあがると目の前は廊下。そうです、お部屋は5階になるので階段をあがっていきます。戸建てみたいでちょっと楽しいです。
階段を上まであがると・・・
廊下が横にのびています。
階段をあがって左側にある扉をあけてLDKから見ていきましょう。
じゃじゃん。
LDKは約13.5帖の縦長空間。南東向きの窓からは陽ざしの暖かさが感じられます。
家具が置いてあるので実際の生活イメージもつきやすいのではないでしょうか?壁面のカラークロスも落ち着いた色合いでステキです。
窓側からもLDKをご覧くださいませ。
キッチンは入口側にあります。対面式なのでリビングにいる家族と会話を楽しみながらお料理ができます。家族同士のコミュニケーションも自然と増えそうです。
キッチンはフローリングに馴染む木目調。
冷蔵庫は一番奥に置けるようになっています。
収納はスライド式。中が見やすく出し入れもしやすいですよ♪
水栓は浄水機能付き。ホースを伸ばすとシャワーとしても利用可能です。シンクのお掃除も隅々まで簡単にできて便利!グリルもついています。
3部屋ある洋室のうち1部屋はLDKに隣接しています。
3枚の可動扉をあけると・・・
約7.1帖とゆとりのある洋室です。
陽ざしがよく入るので日中は電気つけなくても快適に過ごせそうです。
壁面のクロスはよーく見ると柄がはいっています。
さりげない、おしゃれ♡
可動扉をあけてLDKと洋室をつなげると約20.0帖の広々とした空間としてもご利用いただけます。生活シーンに合わせてフレキシブルに空間を使えるのがうれしいですね♫
つづいて洗面室を見ていきましょう。
入口はキッチン横にあります。
扉を横にスライドさせて・・・洗面室です。入口に少し段差があるのでご注意くださいませ。この中に洗面化粧台、洗濯機置場、トイレ、バスルームがまとまっています。キッチンと近いので家事もまとめてこなしやすそうです。
洗面化粧台は鏡の裏、引き出しなど収納スペースが豊富です。
ゴチャゴチャしがちな水廻りもスッキリ片付いた状態がキープできそうですね。
水栓はホースを伸ばすとシャワーとしてもご利用いただけます。
寝ぐせがすごいけどお風呂に入っている時間がないなんて時はこれでささっと寝ぐせをやっつけてくださいませ。
洗面化粧台のお隣は洗濯機置場。
洗剤類は上の吊戸棚へどうぞ♪
洗面室の一番奥はトイレです。
トイレはウォシュレット付き。
上に吊戸棚があるのでサニタリー用品や掃除道具などはここに入れておくと足元もスッキリ。掃除もしやすそうです。
洗面化粧台の向かい側はバスルームです。
扉の横には浴室換気乾燥機の操作パネルがあります。
バスルームの壁パネルも木目調。
ホワイト、ブラウン、ブラックでまとめられた落ち着いた空間になっています。
バスタブはラウンドしたフォルムでゆったりと浸かれそう♡
1日の疲れもさっぱりとれそうですね。
今度はLDKを出て廊下側にある洋室を見ていきましょう。
洋室2部屋の扉は隣り合っています。
写真左側の扉をあけると・・・
約7.9帖の広さ。3部屋ある洋室の中で一番広いお部屋になります。
クローゼットも収納力がありそうです。
もう1部屋の洋室は・・・
約6.3帖あります。洋室は3部屋とも6帖以上とゆとりがありますね。
クローゼットの中の白い台のようなものが気になるところですが・・・うまく工夫してたくさん仕舞いたいところです。(あの白い台は中は開きません。)
廊下側の洋室2部屋の窓の外はバルコニーになっています。
少し出るのが大変ですが窓から出てみましょう。
バルコニーは2つあり、合計で15.72㎡あります。こちらは北西向きのバルコニー。広さはありますが、陽ざしはあまり期待できないかも、といった印象です。
正面の眺望です。向こう側に見えるのは北棟です。
距離があるので人目などは気になりません。
抜けて見える箇所もあり、眺望はなかなよいのではないでしょうか!!
今度はリビング側のバルコニーに出てみましょう。
扉は二重サッシになっています。
防音・断熱・結露対策に効果テキメンです。
こちらは南西向き。お洗濯ものを干すならこちら側の方が乾きそうですね☀
正面の眺望です。本当に東京かなーと思うほどのどかな風景です。
馬事公苑の緑が目に入っていいですねぇ。
左右もほどよく抜けた開放感のある眺めが楽しめます。
2022年にリニューアルする馬事公苑の桜もここから楽しめるかな?( *´艸`)
馬事公苑前ハイム1号棟、いかがでしたでしょうか?
内見のご予約やご質問などございましたらお気軽にお問い合わせくださいませ♪
弊社、不動産Agent 六棒株式会社では、
□リノベーションマンションはほぼ全て仲介手数料無料!
□その他一般仲介物件は仲介手数料20%~30%OFF!
にてお取り扱いしております!※弊社の「Agent Fee=仲介手数料」についてはご案内、ご面談の際に営業担当者よりご説明いたします!
なるべく沢山のお部屋をホームページに掲載したいと思っておりますが、時間的成約もございますので、残念ながらご紹介できるお部屋の一部しか掲載できておりません。
このホームページに掲載中のお部屋、その他サイト等で気になるお部屋、街を歩いていて気になったマンション等々ございましたら是非、弊社営業部までご相談ください!
~不動産Agent 六棒株式会社の特徴~
・一般仲介物件の仲介手数料は20%~30%OFFにてご案内中です!
・リノベーションマンションについてはほぼ全て仲介手数料無料です!
・住宅ローンに自信あります!
・頭金10万円より購入できます。是非ご相談下さい!
・お部屋のご見学は車で2~3件まとめて案内します!
・物件数3000件以上、新築戸建、リノベ物件も多数ご用意しております!
過去に販売していたお部屋の概要 このお部屋の販売は終了いたしました。
| 価格 | -万円 |
| 面積 | 77.69㎡ |
| 間取り | 2bedrooms(2LDK) |
| 管理費 | 月額:13,620円 修繕積立金:月額26,570円 |
| 所在階 | 南棟 6階 |
| お問い合わせ・ご内見のご予約はこちらからお気軽にどうぞ | |
さて今回のお部屋は6階になります。
間取り図はこちら↓ (図面と現況が異なる場合は現況を優先します。)

クリックすると別タブで開くことも可能です。
間取り図とお部屋比較すると見やすいですよ
では、営業部小倉が【馬事公苑前 南棟6階】
お部屋一緒にご案内させて頂きます(o*。_。)oペコッ
広い玄関には靴を履く際に腰掛けられる折りたたみベンチ、
姿見付きのトールタイプのシューズボックスがあります。
靴の多いお洒落さんでも安心の大容量です♡
ベンチの隣には玄関収納があります。
高さ調節が可能な棚板でどんなものだって収納出来ちゃいます(`・ω・´)b
収納棚の横の開き戸は、、、、
じゃじゃじゃじゃーん
納戸です!
あえてのスペースを作ることでゴルフバックやスーツケース
趣味のボードや自転車などなんでも収納出来ちゃいますね♡
収納下手な私もこれ欲しい~~~!!!o(^o^)o
ではわき目もふらずリビングへ一直線~~~!!!
ε=┏(・ω・)┛
開口部南東向きのバルコニーです!
ここから陽当りの良さが伝わってきますねー
急な悪天候でも対応できる室内物干し竿完備(`・ω・´)b
エアコンも新規設置済みで快適な生活をおくれます♡
リビングは約16.3帖と広々♡
フローリングは1枚板の天然無垢材を使用!
使えば使う程味が出てきますよo(^o^)o ワクワク
リビングの隣は洋室があります
キョロ ((o(・x・ )o( ・x・)o)) キョロ
約6帖のお部屋です。
バルコニーが繋がっていますよ|ω・`)ちら
収納ももちろん完備!
子供部屋などにしてもいいですね(((uдu*)ゥンゥン
リビングに戻りキッチン見ていきましょうε=┏(・ω・)┛
光沢のあるシステムキッチン
もちろん3口ガスコンログリル付き!
オープンキッチンで食器が山積みだとカッコ悪いですよねΣ(゚Д゚;≡;゚д゚)
そんなときあると便利な食洗機♡ビルドイン\( ´・ω・`)┐しゅたっ
収納は出し入れのしやすい引き戸タイプで重い物もらくらく収納♡
奥が見やすいですキョロ ((o(・x・ )o( ・x・)o)) キョロ
リビング内に洗面所があります!
冬の寒いときなど寒い玄関廊下に出なくてすみますね (*^艸^)
木の温もりを感じる洗面所
ホテルライクなシンプルでオシャレな洗面所ですね♡
奥にはウォシュレット機能付きトイレε=(ノ゚Д゚)ノ ∥WC∥
滑らかなフォルムが美しいリクシル製品です(^^♪
続いて浴室は嬉しい浴室乾燥機完備!
梅雨にも負けません!!
追い炊き機能完備で帰宅がバラバラなご家庭でも◎
節水、節電にもなるとか?φ(`д´)メモメモ…
玄関廊下に戻りますよ
ε=┏(・ω・)┛
洋室約8帖の振り分けタイプのお部屋行ってみましょう!!
|ω・`)ちら
開口部は共有廊下側、北西向きのお部屋です。
アクセントクロスが効いたお洒落で落ち着いたお部屋♡
収納はもちろん!ウォークインクローゼット(WIC)
ふたつに分かれているので用途にわけたりも(`・ω・´)b
さてお部屋いかがでしたか?
最後に!南東向き日当たり良好、眺望みてきましょう
(((((((((((っ・ω・)っ
馬事公苑が広がる緑豊かな眺望♡
秋の紅葉も期待できる眺望ですよ♡

さて、【馬事公苑前ハイム 南棟6階】はいかがでしたでしょうか?
◆平成22年10月大規模修繕工事実施済み
◆敷地内に専用使用権付きの駐車場あり
L月額使用料金なし!無料
◆敷地内に公園あり
L子育て環境◎
◆倉庫付きで荷物の多い方も安心
L無償
◆スケルトンから!新規内装リノベーション済み
L住んでからも安心のアフターサービス保証付き
他にも詳細が知りたい!!実際に見学をしたい!!などありましたら
仲介手数料最大無料の当社
お電話ください(^-^*)/
TEL 03-5413-5336
お気軽にお問い合わせください。
スタッフ一同お待ちしております。
過去に販売していたお部屋の概要 このお部屋の販売は終了いたしました。
| 価格 | -万円 |
| 面積 | 84.16㎡ |
| 間取り | 3bedrooms(3LDK) |
| 管理費 | 月額:14,200円 修繕積立金:月額27,700円 その他組合費、給湯料等あり |
| 所在階 | 北棟3階 |
| お問い合わせ・ご内見のご予約はこちらからお気軽にどうぞ
|
|
間取りは3LDK、76.48㎡。
東南向きで陽当り良好なお部屋です。
クリックすると別タブで開きますよ!
お部屋は北棟の3階部分。階段移動も苦にならない階数です。
共用廊下からの眺めも開けていていいですね!
ピンポーン♫インターホンはTVモニター付き。
玄関扉を開ける前は訪問者の顏をしっかりチェックしてくださいませ。
ではブルーの玄関扉をあけてお部屋の中へおじゃまします!
室内はリノベーション済みでぴかぴかです。
玄関ホール横には縦に細長いシューズBOXがついています。
普段履く靴はここに入れて、入りきらない靴はお部屋で管理するのがよさそうです。
玄関には人の動きを感知して自動で照明が消灯する人感センサーがついています。暗い中スイッチを手探りで探すなんていうちょっとした生活のストレスからも解放されるのがうれしいところ。節電効果もあります。
玄関をあがると廊下がまっすぐのびています。
そろりそろりと廊下を進み、正面の扉をあけてLDKを見ていきましょう!
ささ、どうぞお入りください。
LDKは約16.0帖の縦長空間。
南向きの窓越しにあたたかな陽ざしが感じられます。
家具が置いてあるので実際の生活イメージもつきやすいですね!
エアコンは「にくいねぇ、三菱」でおなじみの三菱霧ヶ峰が新規で設置されています。
窓側からもLDKをご覧くださいませ。
シンプルな内装はどんなテイストの家具を置いてもしっくり馴染みそうです。
つづいてキッチンを見ていきましょう!
キッチンは対面式なのでリビングにいる家族と会話を楽しみながらお料理ができますよ♪自然と家族同士のコミュニケーションも増えそうです。
壁面のクロスもカッコイイですね。
吊戸棚に大きな引き出しと収納スペースは豊富で多彩です。
引き出しはファイルBOXなどを使うと色々なものが綺麗に収納できるみたいですよ(ネット情報)。
水栓は浄水機能付き。さらにホースを伸ばすとシャワーとしても利用可能です。
大きなお鍋に水を入れるのもこれなら楽ですね♪
3部屋ある洋室のうち1部屋はLDKに隣接しています。
3枚の可動扉をあけると・・・
約5.9帖の洋室です。陽ざしがお部屋の半分くらいまで射しこんでいます☀
暖房入れてなくてもあったかいです。
クローゼットもたくさん仕舞えそう!
洋室の可動扉をあけてLDKと洋室をつなげて利用することもできます。
生活シーンにあわせてフレキシブルに空間が使えるのがうれしいですね♪
キッチン横のこちらの扉は洗面室です。
扉を横にスライドさせまして・・・
洗面化粧台、洗濯機置場、トイレ、バスルームと水廻りの設備がここにまとまっています。キッチンと近いので家事もまとめてこなしやすそうです。
洗面化粧台はホワイトで清潔感たっぷり♡
鏡の裏や引き出しなどス収納スペースも豊富です。
ゴチャつきがちなエリアなので収納が多いのはうれしいですね。
水栓はホースを伸ばすとシャワーとしてもご利用いただけます。
シンクのお掃除も隅々まで簡単にできて便利です。
花瓶に水を入れる時にもホースを伸ばすと楽ですよ。
洗面化粧台のお隣は洗濯機置場になっています。
洗剤は洗面化粧台の下のエリアに入れておくとよさそうです。
洗面室の一番奥はトイレです。
トイレはウォシュレット付き。
収納スペースは特にないので後から棚などをご自身でつけてもよさそうです。DIYがお好きな方は腕がなりますね!
ウォシュレットの操作ボタンも大きく見やすいです。
洗面室を入って左側がバスルームです。
表扉の横には浴室換気乾燥機の操作パネルがついています。
バスルームは淡い色あいの壁パネルで明るい空間になっています。
ラウンドしたバスタブは肩までゆったり浸かれそう♡
今度はLDKを出て廊下側を見ていきましょう!
廊下を出て右側の観音開きの扉は収納です。
可動棚なので入れるものに合わせて高さは調節できます。
日用品のストックを入れる場所にちょうどいいかも。
収納の隣は洋室です。
こちらの広さは約6.0帖。3部屋ある洋室の中で一番広いお部屋になります。
クローゼットも収納力ありますよ!
約6.0帖の洋室の向かい側の扉も洋室です。
広さは約5.7帖。窓の外は玄関前の共用廊下です。
クローゼットもあり収納力も問題ありません。
最後にLDKからバルコニーに出てみましょう。
明るいバルコニーってわくわくしますね!
バルコニーは約7㎡、ほぼ南向き。
お洗濯物もお布団も気持ちよく干せますね。
正面の眺望です。敷地内の緑を挟んで向こう側に南棟が建っています。
距離があるので開放感があります。
左右はほどよく抜けたいい眺めが楽しめます。
空も広く見渡せて快適な毎日が送れそうです(*´▽`*)
馬事公苑前ハイム、いかがでしたでしょうか?
内見のご予約やご質問などございましたらお気軽にお問い合わせくださいませ♪
弊社、不動産Agent 六棒株式会社では、
□リノベーションマンションはほぼ全て仲介手数料無料!
□その他一般仲介物件は仲介手数料20%~30%OFF!
にてお取り扱いしております!※弊社の「Agent Fee=仲介手数料」についてはご案内、ご面談の際に営業担当者よりご説明いたします!
なるべく沢山のお部屋をホームページに掲載したいと思っておりますが、時間的成約もございますので、残念ながらご紹介できるお部屋の一部しか掲載できておりません。
このホームページに掲載中のお部屋、その他サイト等で気になるお部屋、街を歩いていて気になったマンション等々ございましたら是非、弊社営業部までご相談ください!
~不動産Agent 六棒株式会社の特徴~
・一般仲介物件の仲介手数料は20%~30%OFFにてご案内中です!
・リノベーションマンションについてはほぼ全て仲介手数料無料です!
・住宅ローンに自信あります!
・頭金10万円より購入できます。是非ご相談下さい!
・お部屋のご見学は車で2~3件まとめて案内します!
・物件数3000件以上、新築戸建、リノベ物件も多数ご用意しております!
過去に販売していたお部屋の概要 このお部屋の販売は終了いたしました。
| 価格 | -万円 |
| 面積 | 77.58㎡ |
| 間取り | 3bedrooms(3LDK) |
| 管理費 | 月額:13,420円 修繕積立金:月額26,190円 組合費:月額350円 |
| 所在階 | 南棟1階 |
| お問い合わせ・ご内見のご予約はこちらからお気軽にどうぞ | |
こちらが今回ご紹介させて頂くお部屋の間取りです。
クリックして頂ければ別タブで広くことが出来ますので、パソコンからご覧の方は是非見比べながら進んで行ってください!
今回のお部屋は1階という事なので、エレベーターは使いません。
風通しの良い廊下をお部屋迄進んでいきます。
お部屋の前にはモニター付きのインターフォンが付いています。
お部屋の中から廊下の様子を確認することが出来るので、防犯面でも安心できますね!!
治安の悪いエリアではありませんが、チャイムが鳴ったらまずは相手の顔を確認する癖をつけておきましょうね!
それでは中に入っていきましょう!
上り框(”カマチ”です。玄関の段差の事ですよ!)は少し高めに作ってあります。
日本家屋の古き良き土間を連想します。
おばあちゃんの家もこんな感じだったなぁ。。。
玄関入って左手には大きなシューズボックスが付いています。
中の棚は高さを自由に変えることが出来るので、ブーツ等の背の高い履物でも問題なく収納することが出来ますよ!
人感センサー付きの証明がついているので、ドアを開ければパッと玄関が明るくなります。
玄関が綺麗だと何だか安心できますね!
ここの先のお部屋も期待できそうです。
廊下の突き当たりのドアを開けると・・・・
こちらはリビング・ダイニング・キッチンです。
広さは約14.6帖です。
家具・照明付きの物件なので、写真に写っているソファーやテーブル、シーリングファンなどはそのままお引渡しになります。
ソファーの後ろの壁にはエコカラットが使われています。
見た目のオシャレさもさることながら、湿気や臭いを吸収してくれる凄い素材です。
照明には埋め込み式のダウンライトが使われているので、天井に余計な凹凸が生まれにくく空間をスッキリと感じることが出来ます。
お隣の洋室を見てみましょう!!
こちらの洋室は約6.3帖の洋室です。
リビングとはスライド式のドアで仕切られているので、写真の様に開けていればリビングの一部としても使用することが出来ます。
もちろんスライド式のドアを閉めれば、1つの独立した洋室としても使うことが出来ます。状況に応じて使い分けていきましょう。
大容量、約1.5帖もの広さがあるウォークイン・クローゼット付です。
大きな収納スペースがあるとお部屋の中に収納家具を置かなくても良いので、スペースを広く使うことが出来ますね!!
つぎはキッチンです。
十分な広さのあるキッチンですね。
冷蔵庫や食器棚を置いてもまだ余裕がありそうです。
3口のグリル付きガスコンロ、浄水機能付きの水栓はシャワーヘッドになっています。
水栓がシャワーヘッドだと大きなシンクの隅々まで水を流すことが出来るので、洗い物やお掃除にと大活躍してくれます。
食器洗浄機も付いていました。
面倒なお食事後の洗い物もボタン一つで終わらせてくれるのはとても助かります。
寝ている間に乾燥までしてくれますよ!!
最近の機械は本当に進歩しましたね!!
収納スペースもご覧の通りです。
全体的に大きな区切りになっているので、箱やカゴなどを利用して、スッキリと使っていきたいですね!
キッチンからお隣を見ると・・・・
こちらは洗面室です!
大きなミラーの付いた洗面化粧台が付いています。
つなぎ目の無い1枚もののミラーは視認性もバツグン!曇り止め加工もしてあるので、冬場でも安心です。
洗面台も水栓はシャワーヘッドになっています。
洗面ボウルの隅々まで水を流すことが出来ますし、簡単な洗髪程度ならお風呂まで行く必要もなさそうですよ!
脱衣所も兼ねている場所ということで洗濯機置場も併設されています。
脱いだお洋服はどんどん洗濯機に投げ込んでいくことで、お部屋も散らかりにくくなりますよ。
突当りはトイレになっています。
TOTOのウォシュレット機能付きのトイレです。
トイレといえばTOTOと言われるほど、トイレを扱うメーカーの中でもTOTOは、一番人気の高いメーカーになります。
吊戸棚も付いているので、トイレットペーパー等の消耗品や掃除用具などはこちらに収納しておきましょう!
次はお風呂をご案内致しましょう!!
鏡面仕上げのパネルが高級感を出している浴室です。
自分が写らないように写真を撮るのはとっても難しかったです。
お風呂には浴室換気乾燥機能が付いているので、入浴後の湿気を取り除くことができます。
カビが発生するとお部屋全体の寿命を縮める事にもつながるので、なるべく毎日24時間使っておきたい機能ですね!
暖房機能もあるので、真冬の一番風呂も辛くありませんよ!
それではお風呂から出て、廊下を手前から順に見ていきましょう!
廊下の中ほどにはマルチ・ウォークインクローゼットが付いています。
奥行もあり、ハンガーポールや棚も付いているので、季節ものの家電やかさばるコートなども収納することが出来ますよ!
自由に使う事の出来る収納が一つあるだけで、お部屋全体がスッキリするものですよ!
さて、玄関前まで戻ってきて、左手のドアを開けてみましょう!
こちらの洋室は約5.7帖の広さがあります。
外の廊下に面したまどが付いているので、自然の光で明るいお部屋です。
窓の外には金属製の格子が付いているので、防犯面での心配も必要なさそうです。
他のお部屋にも、ちょこちょこ出てくるコレ。上の写真の下の方に写っているコレです。
こちらは暖房になりまして、馬事公苑前ハイムはセントラルヒーティングシステムが使われていて、冬場はここから暖かい空気が出てくる仕組みです。
エアコンが無いお部屋でもポカポカですよ!!
こちらの洋室にもウォークインクローゼット付です。
ハンガーポールがL字に付いているので、大量のお洋服を掛けることが出来そうです。
時間のかかる面倒な衣替えもアッという間に終わりそうですね!!
次は廊下を挟んで反対側のお部屋です。
こちらは約4.6帖の洋室です。
少し小さ目のお部屋なので、一人用の寝室か書斎、子供部屋としてお使い頂くのが良いかもしれませんね!
クローゼット付なので、寝室として使っても全く問題ありませんよ!!
最後に外へ出てみましょう!!
サッシもキレイなものに変えられているので、動きもスムーズです。
うーん!気持ちいい!!
バルコニー!と言いたいところですが、1階という事で専用庭付きのウッドデッキです。
広いお庭があるのは気持がいいですね!!
ペット可のマンションなので、ワンちゃんも大喜びしてくれること間違いなしです!
周りは緑が多く落ち着いた雰囲気ですよ。
馬事公苑が完成するのが楽しみです。
では、以上で馬事公苑前ハイムのご案内を終わります。
いかがでしたでしょうか??
用賀駅から徒歩18分のマンションです。
リノベーション済みという事で室内はとてもキレイですよ (っ・ω・)っ
内見のご予約やご質問などございましたらお気軽にお問い合わせくださいませ。
ご連絡お待ちしております。
過去に販売していたお部屋の概要 このお部屋の販売は終了いたしました。
| 価格 | -万円 |
| 面積 | 84.16㎡ |
| 間取り | 3bedrooms(3LDK) |
| 管理費 | 月額:14,200円 修繕積立金:月額27,700円 組合費:月額350円 |
| 所在階 | 2階 |
| お問い合わせ・ご内見のご予約はこちらからお気軽にどうぞ | |
間取りのご紹介です。3LDK、84.16㎡。
床暖房がついたゆったりサイズのお部屋です。
デザイナーズ・リノヴェーションでおしゃれですよ!
玄関前。マンション自体にオートロックはありませんが、お部屋にはTVモニター付きインターホンが設置されています。来訪者の顏も事前に確認できるので安心。
さっそく中へ入りましょう。白基調の玄関ホールはゆったりした広さ。
家族みんなでのお出かけ時もスムーズに出入りができそうです。
人感センサーがついているので、人の動きを感知して自動で照明が消灯します。節電効果があって便利。
玄関をあがると廊下がまっすぐのびています。
玄関ホールと廊下の段差が低いのも小さなお子様がいるご家庭にはうれしいですね。
廊下側から順番に見ていきましょう。
廊下を進んですぐ左側の扉はシューズBOX。
トールサイズで収納力もグー!
シューズBOXのお隣の扉は約7.0帖の洋室。
アクセントクロスもステキです。
収納に大型のクローゼットがついています。
クローゼット内にはシマシマ柄のクロスが使われています。
見えないところまでこっています!
向かいの洋室も約7.0帖。こちらも同じアクセントクロスが使用されています。
クローゼットも大型で同じく中はシマシマ柄のクロスが使われています。かわいいー。
廊下には大きなものがすっぽり入る収納がつくられていました。
掃除機や日用品など生活感のでがちなアイテムもすっきり片づけておけそうです。
廊下をまっすぐ進んだ先の扉をあけて・・・
約17帖のLDKへ!南向きの明るいお部屋は家族のくつろぎの場にぴったり☀
家具が置いてあるので実際の生活のイメージもつきやすいですね。
キッチンは壁面に馴染むホワイト調。
3口コンロに浄水機能付き水栓、食洗器付きと設備は充実。
お料理好きな方もきっとご満足いただけるはずッ。
窓側からもご覧ください。壁面にはピクチャーレールが設置されているので写真のように絵を簡単に飾ることができます。
リビングスペースの一部には床暖房がついており、冬は足元からあたたかくお過ごしいただけます。
LDK内から洗面室と和室へいけるようになっています。
洗面室。洗面化粧台、洗濯機置場、トイレ、バスルームがまとまっています。お掃除もまとめてこなしやすそうですね。
洗面化粧台は鏡の裏、引き出しと収納スペースたっぷり。
洗面ボウルが深めで使いやすそうです。
洗面化粧台のお隣は洗濯機置場。
バスルーム。あざやかなグリーンのパネルで気分が明るくなりますね!
浴室換気乾燥機能で雨の日や夜のお洗濯も安心。
バスタブもゆったりしたサイズです。
そしてバスルームにはなんとテレビが!!
好きな番組を見ながらゆっくりお湯につかる・・・なんて最高の贅沢ではないでしょうか(*´▽`*)
LDKに隣接している和室は約6帖。
和室といえどもクロスや天井の感じがスタイリッシュでステキです。
そして目を引くのがこの畳の桜!
可愛すぎてテンション上がりました。今はこんなデザインの物があるんですね~🌸
畳のお部屋があると洗濯物を畳む時など床で作業する時に便利ですよね。
そして和室には収納力のあるウォークインクローゼットがついています。写真だとわかりにくいのですが、中はかなり広くて大人が一人横になれるくらいの幅があります。
和室の扉をあけてリビングとつなげるとこんな感じになります。
最後にLDKと和室に面したバルコニーに出てみます。
約6.87㎡、南向き。お洗濯物もたっぷり干せる広さかと思います。
眺望。この日は曇天でしたが高い建物が近くにないので晴れた日はたっぷりの日差しが届きそうです☀
内見のご予約やご質問などございましたらお気軽にお問い合わせくださいませ。
ご連絡お待ちしております。
過去に販売していたお部屋の概要 このお部屋の販売は終了いたしました。
| 価格 | -万円 |
| 面積 | 70.35㎡ |
| 間取り | 2bedrooms(2LDK) |
| 管理費 | 月額:12,370円 修繕積立金:月額24,140円 組合費:月額350円 |
| 所在階 | 7階 |
| お問い合わせ・ご内見のご予約はこちらからお気軽にどうぞ | |

7階はエレベーターが停まらない為、階段でフロアに移動します。

今回ご紹介するお部屋です。
南向きバルコニーに面した2LDK。


窓から明るい光が差し込む玄関。
玄関を入って右手にシューズボックスがあります。
窓を開ければこもりがちな玄関の匂いも逃がしてくれます。


艶やかに輝く廊下。
デッドスペースを活かした収納造りが嬉しいですね。
飾り棚ににはお気に入りの絵や雑貨・お花などを飾って暮らしに彩を☆


南向きの陽射しが室内を照らす広々15.9帖のLDK。
天井は塗装仕上げで明るく開放感を感じます。
ライトブラウンとホワイトを基調としたナチュラルモダンな雰囲気を醸し出しています。


遊び心のあるトップライト☆
室内をお洒落で個性的なスペースにしています。

上部フルオープンで開放感のあるキッチン。
ダイニングと距離が近く、会話も弾む一体感のある空間です。



こげ茶の木目調のスタイリッシュなシステムキッチン。
使い勝手の良い設備をぎゅっと纏めました。
キッチン側のカウンターや壁の一部はお洒落なタイル張り。
細かい箇所まで工夫を凝らした仕上げが嬉しいです。



バルコニーに面した洋室7.5帖。
明るい陽射しが白い壁や天井をを照らします。
クローゼットは大人二人分の衣類が十分収納出来そうな広さです。



廊下に面した5.8帖の洋室。
北側に窓があり、お部屋の隅々まで光が差し込みます。
天然木のフローリングが優しい雰囲気のお部屋です。

キッチンの横のスライドドアを開けるとパウダースペースがあります。



個性あふれるパウダースペース。
オリジナル洗面化粧台はモザイクタイルで仕上げ、ウッデイモダンで洗練された仕様。
ワイドサイズの三面鏡は収納力もたっぷり。


統一感のある木とアイアン調の内装が落ち着きのある空間を作っています。
オープン棚には相性の良い藤のかごなどを使った収納はいかがでしょう☆



上品で洗練された印象のホテルライクなバスルーム。
窓があるため換気も出来、カビの発生も防ぎます。
ゆったりと寛げる至福のバスタイム・・・お気に入りの入浴剤を揃えて1日の疲れを癒しましょう。



南向き2部屋から出入り可能なワイドバルコニー。
7階の通風と日当たりの良さで洗濯物も良く乾きます。
眺望良好で遠くまで落ち着きのある住宅街の街並みを見渡せます。
「世田谷区用賀」の閑静な住宅地で叶える穏やかな新生活。
陽光降り注ぐ明るい室内は、天然無垢にモダンなアイテムを合わせセンスの良い上質な空間に仕上げました。
洗練された内装にフルリフォームした「馬事公苑前ハイム 710号室」・・・7階からの緑と風を感じてみませんか。皆様のお越しをお待ちしております。
内見のご予約やご質問などございましたらお気軽にお問い合わせくださいませ。
弊社、不動産Agent 六棒株式会社では、
□リノベーションマンションはほぼ全て仲介手数料無料!
□その他一般仲介物件は仲介手数料20%~30%OFF!
にてお取り扱いしております!※弊社の「Agent Fee=仲介手数料」についてはご案内、ご面談の際に営業担当者よりご説明いたします!
なるべく沢山のお部屋をホームページに掲載したいと思っておりますが、時間的成約もございますので、残念ながらご紹介できるお部屋の一部しか掲載できておりません。
このホームページに掲載中のお部屋、その他サイト等で気になるお部屋、街を歩いていて気になったマンション等々ございましたら是非、弊社営業部までご相談ください!
~不動産Agent 六棒株式会社の特徴~
・一般仲介物件の仲介手数料は20%~30%OFFにてご案内中です!
・リノベーションマンションについてはほぼ全て仲介手数料無料です!
・住宅ローンに自信あります!
・頭金10万円より購入できます。是非ご相談下さい!
・お部屋のご見学は車で2~3件まとめて案内します!
・物件数3000件以上、新築戸建、リノベ物件も多数ご用意しております!
過去に販売していたお部屋の概要 このお部屋の販売は終了いたしました。
| 価格 | -万円 |
| 面積 | 71.11㎡ |
| 間取り | 2bedrooms(2LDK) |
| 管理費 | 月額:12,760円 修繕積立金:月額24,900円 |
| 所在階 | 10階 |
| お問い合わせ・ご内見のご予約はこちらからお気軽にどうぞ | |

10階にもなるとさすがに素晴らしい景色ですね!!三鷹、上北沢方面の西東京が一望できます。雨の強い日は少し濡れてしまうかもしれませんが、この展望は外廊下ならではです( ´∀`)b

今回、ご紹介させて頂くお部屋がこちらです!!
白い壁にブルーのドア(pq*´∀゚)
ギリシャはサントリーニ島を思い浮かべる人もいるとかいないとか、、、
はい、
それではさっそく、入ってみましょう!!



玄関を入ると少し先にシューズボックスと姿見があります。写真だと少し遠く感じるかもしれませんが実際はそこまで気にはなりませんよ ( ゜∀゜)
手前のボックスは上下に分かれているので、ちょっとしたお花やアクセサリーなどの小物を置いたりなどいろんなことに使えそうですねdd(´∀`@))
姿見の中ももちろんシューズボックスになっていますので足元にこだわるオシャレさんでも靴をしまうスペースには困りませんね。
それでは次に玄関を入って左手、↑の写真だと右側にあるお部屋をご紹介します!!

ここは7.5畳のベッドルームです!!
窓の向こうは共用の廊下になっていますが、しっかりと金属製の柵が取り付けられているので防犯的にも安心できますね!!
窓の下にあるのはヒーターです。大きなヒーターなのでお部屋も暖かく快適な越冬ができそうですよ ヽ(•ө•)ノ


そして後ろを向けばウォークインクローゼットです。ここまで広いものだと何でもしまえそうですよね!面倒な衣替えもラクラクです!!

姿見の隣にあるのは物置です。なかなかの広さがあるので、海外旅行用のキャリーケースやゴルフバッグ、買い溜めした消耗品などを保管しておくのにちょうどいいかもですよ♪♪
さて、いよいよメインのLDKをご紹介です !! ( ・`ω・´)

ちょうど、玄関突当りのドアを開けるとこうなります。
手前に対面式のシステムキッチン、奥に家族が多くの時間を過ごすリビングダイニングがあります。
まずはキッチンから見ていきましょう!!


グリル付きの三口コンロです!
調理スペースも広いので複数のお料理が同時進行でお作りいただけるのはもちろん、2人での共同作業も難なく捗りますね ヽ(゚▽゚*)乂(*゚▽゚)ノ
お水は浄水器一体型ですので調理用にミネラルウォーターを買う必要はありません!!
カウンター横にはドアフォンのモニターがあります。チャイムが鳴っても玄関まですぐに行く必要もありません!!

撮影した日はかなり良い天気だったんですよー
バルコニーは最後にご案内するのでもう少しお待ちくださいね(○ゝ▽・○)

こちらはリビングダイニングの隣に位置するベッドルームです!こちらのベッドルームにも大きなヒーターが備えられていますよ♪♪
そしてもちろんウォークインクローゼットもこの通り!

こちらも広々と使い勝手の良さそうですね (っ´∀`c)
ちなみにクローゼットのドアはスライドして寄せておくこともできるので、他の収納を組み合わせば新しいお部屋の使い方ができるかもしれませんよ!
お次はサニタリールーム、お風呂などをご紹介します!!

ここはキッチン横のドアを抜けたところですね。洗面台の隣に洗濯機置き場、お手洗いと続きますよ (*´∀`*)
洗面台は両サイドのスペースを広くとってあるので洗顔やクレンジング、化粧水など、毎日使う物を綺麗にたくさん置いておくことができます!!トイレのドアは撮影用に開けてますけど普段はちゃんと閉まってますからね!!

ここの洗面台の収納力は侮ることはできませんよ。゜+.(o´∀`o)゜+.゜
トイレットペーパー、洗剤、シャンプー、ハブラシなんでもここにまとめてしまっておくことができますね!!
鏡の中にも電源が2つあるので毎朝ドライヤー戦争がおこることもありません!!

トイレはこちら。白で統一され、シンプルな作りとなっています。
もちろんウォシュレット一体型となっていて、さりげなくタンクの上にもボタンが並んでいます、、、
こういうボタンって何故か意味もなく押したくなっちゃうんですよね。(*`艸´)
お次はお風呂!!

白い湯船!落ち着いた木目調の壁!1日の疲れを癒すにはもってこいの場所になりますね。
風呂は命の洗濯と言いますし、このスペースって生活の中でも意外と重要なポイントになると思うんですよね!! (・`ω´・ ○)
ゆったりした空間で明日への活力を養ってみてはいかがでしょうか??

ついに最後ですね!!バルコニーですよ!!
正面に1号棟が建ってますけども、ご覧の通りまったく展望を損ないませんね!!?
百聞は一見にしかず!!この眺めの良さを少しでも感じてください!!


いい眺めですね (○´ω`○)
下の写真はバルコニーに出て左手方向なのですが、左奥に渋谷のセルリアンタワーが、、見えないですねぇ、、o(*>Д<)ゝ 肉眼だと新宿、渋谷、恵比寿辺りが遠くに見えるんですが、そこは直接ご自身でお確かめください!!
以上です!!
都内感覚では駅から少し遠いかもしれませんが、毎朝10分少しのウォーキングと思えば別に気にするほどでもありませんよ。
その分、閑静な落ち着いた雰囲気のある地域だと思いますので自分の時間をゆっくり過ごしたい大人な方にお勧めです。
弊社、不動産Agent 六棒株式会社では、
□リノベーションマンションはほぼ全て仲介手数料無料!
□その他一般仲介物件は仲介手数料20%~30%OFF!
にてお取り扱いしております!※弊社の「Agent Fee=仲介手数料」についてはご案内、ご面談の際に営業担当者よりご説明いたします!
なるべく沢山のお部屋をホームページに掲載したいと思っておりますが、時間的成約もございますので、残念ながらご紹介できるお部屋の一部しか掲載できておりません。
このホームページに掲載中のお部屋、その他サイト等で気になるお部屋、街を歩いていて気になったマンション等々ございましたら是非、弊社営業部までご相談ください!
~不動産Agent 六棒株式会社の特徴~
・一般仲介物件の仲介手数料は20%~30%OFFにてご案内中です!
・リノベーションマンションについてはほぼ全て仲介手数料無料です!
・住宅ローンに自信あります!
・頭金10万円より購入できます。是非ご相談下さい!
・お部屋のご見学は車で2~3件まとめて案内します!
・物件数3000件以上、新築戸建、リノベ物件も多数ご用意しております!
過去に販売していたお部屋の概要 このお部屋の販売は終了いたしました。
| 価格 | -万円 |
| 面積 | 99.61㎡ |
| 間取り | 3bedrooms(3LDK) |
| 管理費 | 月額:16,690円 修繕積立金:月額32,560円 組合費:月額350円 |
| 所在階 | 4・5階 |
| お問い合わせ・ご内見のご予約はこちらからお気軽にどうぞ | |
こちらが今回ご案内させて頂くお部屋の間取りです。
4階にある玄関から階段を上るとお部屋になっています。
それでは参りましょうヾ(*≧∀≦)ノ゙
今回ご案内するお部屋は南側にある1号棟にあります。
エレベーターからは外廊下を進んでいきましょう!!
風が抜けると暑い日でも気持よく感じることができますね(´∀`)
玄関先にはカメラ付きのインターフォンが付いていますね!
防犯的にもありがたいですし、玄関から先は階段になっているので上り下りも最小限に留めておけますね!!
玄関のドアはお洒落なブルーになっています。ちょっとしたカワイイ要素は嫌いじゃないですよ(っ´∀`c)
それでは中に入ってみましょう!!
すぐに階段を駆け上がりたくなってしまいますが、まずは玄関をご紹介しますね!!
入って右手にシューズボックスがあります。中の棚は高さの調節も可能ですよ( ・∀・)
足元の間接照明が空間を広く見せてくれています。
しっかりと電源も付いています。
お掃除にはもちろん!ですが、年末にはアレを置くことができますね・・・・??
クリスマスツリーですよ!!!玄関にクリスマスツリーがピカピカしているお家ってなんだか羨ましく思いませんでした??
それでは先に進みましょう!!
階段は途中で右に曲がっていますが、見上げるとこれはタペストリーっていうんでしたっけ?? とにかく!!オシャレな布がかかっています。
なんだかセレブな雰囲気が漂っていますね(`ω´)
階段を上り切ると・・・・・
オープンデンスペースという空間になっています。
が!
とりあえずここは通り過ぎて、先ずはリビング・ダイニングへ行きましょう!!
階段を上ってすぐ左手に曲がるとリビング・ダイニング・キッチンへの入口があります!!
ではでは!!
こちらがリビング・ダイニングです!!
はっきり言ってかなり気合が入ってますよ
ここだけでも全部説明していくと全然終わらない気がするので、多くは語りませんが!
お子様の勉強机や読書スペースになりそうな本棚付きのデスク、壁・天井には間接照明などなど!!
本当にここでは語りつくせないので実際に見に来てくださいね( ・`ω・´)
個人的にお気に入りの「天使の輪っかライト」!!
勝手につけた名前なので正式名称は存じ上げませんが、とってもカワイイです(☆Д☆)
次はキッチンをご案内致しましょう!!
キッチンも盛りだくさんなので全部はご紹介しきれないかもしれません・・・
ペニンシュラキッチンですね。
コンロが壁のすぐ隣にあるので、臭いがお部屋に広がりにくく換気扇の力を最大限に引き出すことができます。
背後の食器棚も後ほどご紹介しますね!
浄水器一体型の水栓、3口のグリル付きガスコンロ、食器洗浄機がついています。
シンクもかなりの広さなのでお魚を捌くのも簡単そうですねヽ(´∀`)
さて、背後の食器棚ですね!!
ご覧の通りグラスハンガーが付いています!!オシャレなバル、カフェ、バーなんかでよく見るグラスハンガーが付いていますよ!!
これはあれですね、友人を招いてさりげなく自慢したいですね。
馬つながりでアメリカ西部のオーパスワンは・・・・ 少し贅沢ですか( ̄∀ ̄*)
収納は写真の他にもふんだんに用意されています。
全部載せたいのですが、長さの関係で割愛させていただきます(*’д`*)
キッチンの隣の扉を開けてみましょう!!
遠くに見えるのは・・・
洗面化粧台です!
大きな四角い洗面ボウル、シャワーヘッドとなっている水栓、ミラーキャビネットとこちらも贅沢なほどの機能が揃っていますね!!
収納として右手の空きスペースに棚も設置されているので、洗面周りで物の置き場所に困ることは無さそうです ( ・`ω・´)
先に進みましょう!!
こちらは浴室です!
アイボリーを基調としている優しい雰囲気の浴室には、乾燥機能が付いています。
雨の日はこちらで洗濯物を干すことができるので、天気の心配をせずに洗濯ができますね!!やまない雨も怖くないですよ (っ´∀`c)
広々とした浴槽につかれば1日の疲れも吹き飛びそうですね!!
横長のミラーが浴室を広く見せてくれるのでリラックス効果も倍増しますよ!!
さて、浴室を出て入口へ向かうと、入ってくるときには意識してなかった棚、その向かいには洗濯機置場もありますね。
水廻りの家事が1か所で済むのはとてもありがたいですよ!!
扉付きの洗濯機置場は湿気が籠りやすいので適度に換気してくださいね!!
それでは、リビングを出て階段の方へと向かいましょう。
リビングを出てすぐ右手にある扉を開ければ収納が出てきます。
棚の高さは自由に調節ができるので小物から掃除機までなんでも入りそうですね!!
収納の向かいにはトイレが!
LIXILのウォシュレット付きのトイレです。背後には棚も付いているので消耗品などはこちらに置けますね!箱等を利用してお洒落にスッキリとまとめたいですね (・`ω´・ ○)
さて、玄関から階段を上ってきた所「オープン・デン・スペース」という場所です。
「デン」とは居室としては認可されない小さなスペースだそうで、要は書斎ですかね?
通常は小さな個室であることが多いのですが、「オープン」という事で、家族の皆が使用できる空間になっています。
こちらが左側。
階段の上もご覧の通りですね。
ご夫婦で使い分けるのもいいかもしれませんね(○´ω`○)
どんどん進みましょう!!
オープンデンスペースを過ぎると、正面に飾り棚、左右にドアが見えますね・・・
左のドアから行きましょう!!!
北向きの窓が付いている洋室です!
ウォークインクローゼットが付いています!!
大容量ですよ!!衣替えの必要もなさそうなくらいお洋服を掛けることができそうですよ!!
こちらは右側のお部屋です!!
窓の近くにはウォークインクローゼット、
奥には高さの調節ができる棚のついたクローゼットがあります。
もう一つお部屋があるのでそちらもご紹介しますね!!
一度リビングにもどって、ソファーと机の間に入口があります。
こちらのお部屋は南向きの窓が付いています。天気のいい日は良い陽ざしが入ってきそうですよ!!
ウォークインクローゼットも付いているので寝室としては完璧ですね!!
最後になりました!!バルコニーです!!
南向きのバルコニーなので陽当たりはもちろんの事、目の前は馬事公苑になっているので緑もバッチリです。マイナスイオンの中で生活できますね!!
以上で、馬事公苑前ハイムのご案内を終わります。
いかがでしたでしょうか??
正直な所、写真と文章だけでは1/3も伝えきれないくらいなので、このお部屋に関しては本当に内見して頂くことをお勧めします!!
とっても綺麗なお部屋ですよ!!
内見のご予約やご質問などございましたらお気軽にお問い合わせくださいませ!!
ご連絡お待ちしております!!
過去に販売していたお部屋の概要 このお部屋の販売は終了いたしました。
| 価格 | -万円 |
| 面積 | 86.11㎡ |
| 間取り | 3bedrooms(3LDK) |
| 管理費 | 月額:14,260円 修繕積立金:月額27,860円 組合費:月額350円 |
| 所在階 | 4・5F |
| お問い合わせ・ご内見のご予約はこちらからお気軽にどうぞ | |
それでは、間取りのご紹介です♪♪
3LDK、86.11㎡。4・5階。ファミリーにおススメの間取りです(●´∀`)
こちらの物件は、家具付きの販売となる物件です!!家具の方もチェックしてみてくださいね。
ペットも一緒に暮らせます(o´∀`ノ
※その他徴収料金があります。
給湯料7,620円(税込)+実費(900円/㎥)
水道料1,460円(税抜)+実費
下水道料560円(税抜)+実費
暖房料20,630円(税込)(冬季11月~4月のみ)
4階でエレベーターを降りると、開放的な外廊下♪♪
こちらのドアが今回ご紹介させていただくお部屋です。
さっそくお部屋の中へ。リノベーションを終え、生まれ変わった玄関がお出迎え☆4Fに玄関、5Fにお部屋があります。インターフォンはTVモニター付き。来訪者の顔もバッチリ確認できます。
人感センサーがついているので、人が通ればパッと照明がつきます。消し忘れもなく経済的です。
玄関の右手にはシューズボックスがあります。可動式の棚なので、靴のサイズに合わせてご自由にアレンジしてください☆ブーツの収納もOK(´∀`*)
階段を上っていきます♪♪階段部分の天井が少し低くなっています。
階段をのぼると、ドアが3つ!まずは、左手のリビングダイニングキッチンへ♪♪
リビングダイニングキッチンは、手前にキッチンスペース、奥にリビングダイニングとなっています(o´∀`ノ
入ってすぐ左手にカウンターが設置されています。ステキなインテリアを飾って華やいだ雰囲気に♪♪
リビングダイニングキッチンは、約15.1帖。南東向きの窓のお部屋です。陽当りの良いゆったりしたリビングダイニングは、家族の集まるお部屋にぴったりです。
リビングダイニングの壁はエコカラットで装飾がされています♪♪
エコカラットは、見た目が洗練されているだけでなく、ホルムアルデヒトを吸着してくれたり生活臭を軽減したり、調湿機能があったりと、ものすごい実力を持っています。
リビングダイニングには2つの暖房器、エアコンも設置され快適に過ごすことができそうです(´∀`●)
改めまして、こちらの物件は、家具付きの販売なのでソファもテーブルもダイニングセット含まれています(*´˘`*)♡
壁にはカウンターが設置されています♪♪スペースを最大限に活かす工夫が良いですね♪♪
キッチンは、優しいホワイトの木調システムキッチンです。リビングにいる人とコミュニケーションがとれる対面式です。お料理の最中もリビングダイニングを見渡せることができるのは安心です(*´▽`)
キッチンスペースもゆったりと。
上下にきちんと収納スペースがあるので小物やストック品をまとめてしまっておけますよ。
3つ口コンロはお料理好きの方には嬉しいですね♪シンクは大きめで使い勝手◎
食器洗浄機付きなので、家事の負担も軽減♫
それでは洋室を3つご紹介します。まず1つめは、リビングダイニングお隣の約6.7帖の洋室です。こちらも南東向きの窓のお部屋です。暖房器も設置済み。
こちらのお部屋には、システムWICが設置されています。
可動式の棚や、ハンガー用のバー、はたまた枕棚と色々なタイプの収納が用意されています♪♪
残り2つの洋室は廊下の反対側。こちらは約7.6帖の洋室です。リノベーションが終わったばかりで、少し荷物が残っていますが、もちろん綺麗に撤去されます(笑)北西向きの窓があります。
可動式の大きな棚があります。収納は、多ければ多いほど◎
こちらのお部屋の収納は、嬉しいウォークインクローゼットです(*´˘`*)♡入口は小さいですが、中は広めです。広さは約1.1帖で、奥行きもしっかりした収納です。バーも付いていてお洋服がたくさんかけられそうですね(´∀`●)
3つめの洋室、約6帖。北西向きの窓が有ります。ベッドも充分入ります。
こちらのお部屋にもしっかりクローゼット。バーも付いているので、ロングコート等の衣類の収納にも良いですね♪♪
北側2つのお部屋から北側のバルコニーに出ることができます。大きなめサイズのバルコニーです。ただ、出入りする際、段差が高いのでちょっと大変です。
それでは水回りのご紹介です。キッチンのお隣にスライドドアの洗面室です。少し段差がありますのでお気を付けください。右手にバスルーム、正面にトイレ、左手奥に洗濯機置場、左手手前に洗面台の並びになっています。
洗面台は、新規交換済み♪♪一枚鏡がステキな印象(o´∀`ノ洗面ボウルもしっかり大きめ。
お隣の洗濯機置場。洗濯機置場横に可動式棚があります。まとめられていますが、棚は沢山あります♪♪
正面は、ウォシュレット付きのトイレです。上部に扉付の収納があるので、ストック品の収納や消臭剤を置くスペースとして利用してみて下さい♥♡
バスルームは、優しい木調のパネル☆ゆっくり大きなバスタブにつかって疲れを癒せそうです♪♪
ミラー横にシャンプーなどのボトルもキレイに並べて置ける棚があり、清潔感のある空間を保てます(o´∀`ノモザイクパターンの床は、水はけが良く、すばやく乾燥します。
乾燥・涼風・暖房・換気と機能は充実♪♪快適なバスタイムを過ごせそう(o´∀`ノお洗濯物も干せませので、雨の日でも安心してお洗濯ができますよ(*´∀`*)
それでは、最後に南側のバルコニーへ出てみます。南東向きのバルコニーで日差しがさんさんと降り注ぎます☆お洗濯物もバッチリ乾かすことができます♫
眺望はバッチリ♫緑が広がり申し分のない眺望です!!
いかがでしたでしょうか。
駅からは少し歩きますが、その分緑豊かなエリアです♪♪
内見のご希望、ご質問などございましたら、
過去に販売していたお部屋の概要 このお部屋の販売は終了いたしました。
| 価格 | -万円 |
| 面積 | 86.11㎡ |
| 間取り | 3bedrooms(3LDK) |
| 管理費 | 月額:14,280円 修繕積立金:月額27,860円 組合費:月額350円 |
| 所在階 | 2・3階 |
| お問い合わせ・ご内見のご予約はこちらからお気軽にどうぞ | |
間取りのご紹介です。3LDK、専有面積は86.11㎡。
南東向きにつき陽当り良好なお部屋です。
室内はリノベーション済み。
※暖房費:月額20,630円(冬季11~4月)、給湯器:月額7,620円(実費)
水道料:月額1,460円(消費税+実費)、下水道料:月額560円(実費)がかかります。
玄関ホールは白基調。明るく清潔感のある雰囲気です。
人感センサーがついているので、人の動きを察知して自動で照明が点灯・消灯するのもうれしいこところ♪TVモニター付きインターホンで防犯面も安心です。
玄関横に設置されたシューズBOXはたっぷり仕舞えるトールサイズ。
玄関まわりもスッキリ片付いた状態をキープできそうです。
玄関をあがると目の前は階段。生活スペースは階段を上がった先にあります。これなら宅急便など玄関先での対応時もお部屋の中が見られずプライバシーが守られますね。
ちなみにカーペット敷きでフカフカです。
階段を上がると廊下が左右にのびています。
ここから先はフローリングです。
階段をあがり右手側にある洋室2部屋から順番に見ていきましょう。
こちらの洋室は約6.0帖。棚がついたクローゼットが設けられています。
約6.0帖の洋室のお隣は約7.5帖の洋室。
大型のクローゼットが設けられているので居住スペースは有効的に利用できそうです。
階段をあがって左側方向へ。採光部のある扉の先はLDKになっています。
LDKは約13.6帖。家具の配置がしやすい縦長空間です。
白いクロスと木目調のフローリングの空間は置く家具も選ばなさそうですね♪
エアコンも設置済み。
窓側からもご覧ください。
キッチンはリビングにいる家族と会話を楽しみながらお料理ができる対面式です。
キッチンは浄水機能付き水栓、3口ガスコンロ、衝撃に強く割れにくい人造大理石トップとスペック◎!スライド収納もキッチングッズの出し入れがしやすく使い勝手がよさそうです。
お料理しながらお洗濯など家事もまとめてこなしやすそうです。
洗面室。洗面化粧台、洗濯機置場、トイレ、バスルームと水廻りの設備はここ1ヵ所にまとまっています。出入口に段差がないので出入りもスムーズ。
洗面化粧台と洗濯機置場はお隣同士。洗面化粧台の鏡の裏、引き出し、洗濯機置場上の吊戸棚など小物の収納スペースも豊富にあります。
ゴチャゴチャ散らかりがちな小物類もすっきり収納できそうですね。
トイレはウォシュレット付き。
ペーパーのストックを仕舞っておくのに便利な吊戸棚も設置されています。
バスルームは浴室換気乾燥機能付き。
雨の日や花粉の時期のお洗濯も乾燥機があれば安心です。ランドリーポールも設置されていますよ。
3部屋ある洋室のうち2部屋は廊下側にありましたが、残りの1部屋はLDKに隣接しています。
LDKに隣接した洋室は約7.4帖。南東向きのバルコニーに面した明るいお部屋です。
どのお部屋も収納が大きめなのがうれしいですね。
最後にLDKと約7.4帖の洋室に面したバルコニーに出てみます。
南東向きで陽当たり◎。お洗濯物も気持ちよく乾かせます。
バルコニーの外は桜並木の向こうに馬事公苑の緑が広がる風景。
静かで快適な毎日が過ごせそうです。
ご内見のご希望・ご質問などございましたら、お気軽にお問い合わせくださいませ♪
過去に販売していたお部屋の概要 このお部屋の販売は終了いたしました。
| 価格 | -万円 |
| 面積 | 69.16㎡ |
| 間取り | 2bedrooms(2LDK) |
| 管理費 | 月額:11,870円 修繕積立金:月額23,150円 組合費:月額350円 |
| 所在階 | 4階 |
| お問い合わせ・ご内見のご予約はこちらからお気軽にどうぞ | |
間取りのご紹介です。2LDK、専有面積は69.16㎡。
2号棟の4階、南向き、リノベーション済みのお部屋です。
駐車場使用権が無償でついています。
※暖房費月額17,130円+実費(冬期11月~4月)、給湯基本料:月額7,620円+実費、水道料:月額1,460円+実費、下水道料:月額560円+実費がかかります。
室内写真も近日掲載予定です。
ご内覧のご希望、ご質問等ございましたらお気軽にお問い合わせください♪
過去に販売していたお部屋の概要(1号棟) このお部屋の販売は終了いたしました。
| 価格 | -万円 |
| 面積 | 69.16㎡ |
| 間取り | 2bedrooms(2LDK) |
| 管理費 | 月額:11,870円 修繕積立金:月額23,150円 |
| 所在階 | 2階 |
間取りのご紹介です。2LDK、69.16㎡。
室内はリノベーション済みです。
※管理費・修繕積立金・組合費の他に徴収料金があります。
給湯料7,620円+実費(900円/㎡)
水道料1,460円+実費
下水道料560円+実費
暖房料17,130円(冬季11月~4月のみ)
ではリノベーション工事を終えて綺麗になったお部屋をご案内いたします。
玄関を開けると、木のぬくもりを感じられる落ち着いた雰囲気の廊下が延びています。
玄関すぐ右のシューズボックスはトールサイズで、棚は可動式なので、アレンジ次第でお持ちの靴をたくさんスッキリ収納できます☆
玄関には人感センサー付きライトがありますので、夜暗い部屋に帰って来ても、足元をしっかり照らしてくれます(*^。^*)
廊下に上がって右側のドアは4.7帖の洋室です。
北側に窓がありますので、室内に明るい陽射しが入って来ていました。
南側にはウォークインクローゼットがあります。両サイドにハンガーラックが付いていますので、冬物だって夏物だって、一度にたくさん掛けられます。
廊下にはトールサイズの収納棚があります。
棚は可動式なので、大きな物から小さな物までご家族共有の物を沢山しまっておけそうです!(^^)!
突き当りのドアを開けると、16帖のリビングダイニングキッチンが広がります。
南側が一面大きな窓になっていて、明るい陽射しが射し込んでくるので、とても開放的でさらに広く感じられます☆
キッチンは作業台が広く、収納もタップリ(*^。^*)
カウンターの木がアクセントになっていて、とってもオシャレなキッチンです☆
広いシンクに浄水器付水栓、3口のコンロ、広めの作業台でお料理がとってもはかどりそう♪
ご飯の後のお片付けも、食器洗浄機が強い味方になってくれます(^v^)
収納スペースも充実しています!!下部には大きな引出しがあり、上部にも吊り棚があるので、上図に収納できれば食器棚は必要ないかもしれません☆
新しいフライパンが欲しくなるかも!?笑
リビングダイニングは縦に長く広いので、写真の様にダイニングスペースとリビングスペースをしっかりと分けられて、ゆったりお使い頂けます。
リビングスペースにはカウンターがありました。
お気に入りのご家族の写真、観葉植物、ちょっとした小物、色々な物を飾って、素敵なカウンタースペースを作ってください(*^。^*)
キッチンすぐの引戸はサニタリールームに繋がります。こちらも木の温もりを感じられる素敵な室内でした☆
洗面台は木の天板に四角く可愛らしいシンクが付いていてとてもオシャレ☆
鏡の裏側が収納スペースになっていますが、開けると扉がかなりせり出してくるので、ぶつからない様に注意してください^_^;
洗濯機置場には棚が付いていませんので、上部に棚を作って、収納スペースを確保するとスッキリとお使い頂けると思います。
トイレには収納用の吊戸棚が付いています。
お掃除道具からトイレットペーパーのストックまで、綺麗に収納して清潔におつかいください(^v^)
バスルームはバスタブが広く、ゆったりしたバスタイムを楽しんでいただけそう☆
浴室換気乾燥機が付いていますので、雨の季節や花粉の季節、外に干したくない物まで、浴室でしっかりと干す事ができます(^_-)-☆
リビングからもう一つのお部屋に入ることができます。
6.0帖の洋室は南側が窓になっているので、とても明るく開放的☆
北側には二つの扉がありました。開けてみると・・・
二つのウォークインクローゼットになっています。
左側のクローゼットはシンプルな「箱」タイプなので、大き目の物を収納する物置としてもお使いいただけます。
右側はハンガーラックと上部に棚が付いているので、大容量の衣裳部屋としてお使いください☆
用途によって二つのクローゼットが分かれているのは使いやすくて便利ですね♪
リビング、洋室どちらからもバルコニーに出ることができます。
南向きのバルコニーは日当りがとてもよく、窓を開けておけば、リビングや洋室で陽の光を浴びながらのんびり読書ができますね(^_-)-☆
バルコニーからは馬事公苑の緑を楽しむことができます。抜けるような青空と、たくさんの緑に囲まれてとても素敵な景色です☆
季節によって、バルコニーからの景色が変わって、自然を感じることができ、室内も木のぬくもりを感じることができる馬事公苑前ハイム、一度体感してみてはいかがでしょうか。
皆さまからのお問い合わせ、お待ちしております。
過去に販売していたお部屋の概要 このお部屋の販売は終了いたしました。
| 価格 | -万円 |
| 面積 | 86.11㎡ |
| 間取り | 3bedrooms(3LDK) |
| 管理費 | 月額:14,670円 修繕積立金:月額28,610円 組合費:月額350円 |
| 所在階 | 6・7階 |
それでは間取りのご紹介です。3LDK、86.11㎡。
南向きにつき陽当り・眺望・通風良好!
敷地内駐車場&トランクルーム無償権利付きです。
こちらの物件は、家具付きの販売となる物件です!!家具の方もチェックしてみてくださいね。
※その他徴収料金があります。
給湯料7,620円+実費(900円/㎡)
水道料1,460円+実費
下水道料560円+実費
暖房料20,630円(冬季11月~4月のみ)
【リノベーション内容】
■フローリング、天井・壁、クロス
■洗面所、トイレ、CF
■システムキッチン
■ユニットバス、洗面化粧台、ウォシュレット
■給湯器
■建具、下足入れ、網戸
■コスモスイッチ、照明器具、クリーニング、他

こちらの扉が、今回ご紹介させていただくお部屋です☆さっそくお部屋の中へ。リノベーションを終え、生まれ変わった玄関がお出迎え☆6Fに玄関、7Fにお部屋があります。
玄関の左手にはシューズボックスがあります。可動式の棚なので、靴のサイズに合わせてご自由にアレンジしてください☆ブーツの収納もOK(´∀`*)
階段を上っていきます♪♪階段部分の天井が低くなっています。175cm弱だと思います。頭上注意です。
階段をあがると、左手に洋室が2つ、正面にウォークインクローゼット、右手にリビングダイニングキッチンです。
まずは正面のウォークインクローゼット。広さは約1帖♪♪上部に棚や、バーも付いていて使い勝手が良さそうな収納です。
階段あがって左手にある2つの洋室を見ていきましょう♪♪こちらは約5.5帖の洋室。北向きの窓のお部屋です。子ども部屋にぴったりのお部屋でしょうか。暖房器も設置されています。
こちらのお部屋には、大きめサイズのクローゼット。バーも付いているので、ロングコート等の衣類の収納にも良いですね♪♪
こちらは、お隣2つめの洋室。広さは、約6.5帖のお部屋です。ベットルームにもぴったりですね(´∀`*)こちらのお部屋にも暖房器も設置されています。
こちらのお部屋の収納は、嬉しいウォークインクローゼットです(*´˘`*)♡入口は小さいですが、中は広めです。
広さは約1.3帖で、奥行きもしっかりした収納です。バーも付いていてお洋服がたくさんかけられそうですね(´∀`●)

こちらのお部屋から北側のバルコニーに出てみます。大きなめサイズのバルコニーです。ただ、出入りする際、段差が高いのでちょっと大変です。
それでは洋室と反対側のリビングダイニングキッチンを見ていきましょう♪♪
リビングダイニングキッチンは、約14.5帖の大きめサイズ♪♪開口部は南向きです。陽当りの良いゆったりしたリビングダイニングは、家族の集まるお部屋にぴったりです。
リビングダイニングの西側の壁はエコカラットで装飾がされています♪♪
エコカラットは、見た目が洗練されているだけでなく、ホルムアルデヒトを吸着してくれたり生活臭を軽減したり、調湿機能があったりと、ものすごい実力を持っています。
リビングダイニングには2つの暖房器、エアコンも設置され快適に過ごすことができそうです(´∀`●)
東側の壁にはカウンターが設置されています♪♪スペースを最大限に活かす工夫が良いですね♪♪
改めまして、こちらの物件は、家具付きの販売なのでソファもテーブルもダイニングセット含まれています(*´˘`*)♡
キッチンは、ホワイトで統一されたシステムキッチンです。リビングにいる人とコミュニケーションがとれる対面式です。お料理の最中もリビングダイニングを見渡せることができるのは安心です(*´▽`)
対面式ですので上部の収納はありませんが、棚を置くスペースはありますので工夫しましょう♪♪
3つ口コンロはお料理好きの方には嬉しいですね♪シンクは大きめで使い勝手◎
キッチン上部には複数のライトをレール上の好きな場所に取付けできるライディングレールが設置されています。
キッチンのお隣はスライドドアのサニタリールームです。少し段差がありますのでお気を付けください。左手にバスルーム、正面にトイレ、右手奥に洗濯機置場、右手手前に洗面台の並びになっています。
バスルームは、優しい木調のパネル☆ゆっくり大きなバスタブにつかって疲れを癒せそうです♪♪追い焚き機能付きでいつでも暖かいお風呂に入れます。

ワインドなミラーが素敵です。モザイクパターンの床は、水はけが良く、すばやく乾燥します。
ミラー横にシャンプーなどのボトルもキレイに並べて置ける棚があり、清潔感のある空間を保てます(o´∀`ノ
乾燥・涼風・暖房・換気と機能は充実♪♪快適なバスタイムを過ごせそう(o´∀`ノお洗濯物も干せませので、雨の日でも安心してお洗濯ができますよ(*´∀`*)
バスルームの隣には可動式棚の収納がありリネン類の収納はバッチリです☆
正面は、ウォシュレット付きのトイレです。上部に扉付の収納があるので、ストック品の収納や消臭剤を置くスペースとして利用してみて下さい♥♡
洗濯機置場には棚等は設置されていませんので、後から棚を設置したり、突っ張り棒で収納を作ったりと工夫したいですね(*´∀`*)
右手は、真っ白で清潔感のある洗面台。新規交換済みです。
鏡の裏に収納スペースがありますので、ハブラシから洗顔フォームまでゴチャゴチャ散らかりがちな洗面まわりの物もスッキリお仕舞いただけます♪♪シャワーヘッドも嬉しいですね♫シャワーヘッドは、シャンプーに便利ですが、お掃除にも便利ですよ
(●´∀`)
一度リビングダイニングに戻ってお隣の洋室を見ていきます。
リビングダイニングから出入りする約7帖の洋室。南向きの窓からの日差しで、明るさ充分(●´∀`)
クローゼットもあり収納もOK♪奥行きもしっかりです♪♪
それでは、最後に南側のバルコニーへ出てみます。南向きのバルコニーで日差しがさんさんと降り注ぎます☆お洗濯物もバッチリ乾かすことができます♫
眺望はバッチリ♫南側は馬事公苑がひろがっていますのでぬけています(o´∀`ノ緑が広がり申し分のない眺望です!!
いかがでしたでしょうか。
駅からは少し歩きますが、その分緑豊かなエリアです♪♪
内見のご希望、ご質問などございましたら、
過去に販売していたお部屋の概要(2号棟) このお部屋の販売は終了いたしました。
| 価格 | -万円 |
| 面積 | 99.61㎡ |
| 間取り | 4bedrooms(4LDK) |
| 管理費 | 月額:16,770円 修繕積立金:月額32,710円 組合費:月額350円 暖房費(11月~4月):24,480円 |
| 所在階 | 7階 |
間取りのご紹介です。4LDK、99.61㎡。家族が多い方にオススメの間取りです。
南向きで陽当たり・風通しに恵まれたお部屋です。
充実のリノベーション内容をご紹介いたします。
■フローリング
■天井・壁・クロス
■洗面所・トイレ CF
■システムキッチン、ユニットバス、洗面化粧台、ウォシュレット
■建具、下足入れ、コスモスイッチ、照明器具、クリーニング、etc・・・
ゆったりとした玄関ホールです。戸建感覚を味わえる階段が目の前に~
お部屋の中の様子もみえなくプライバシーも守られますね!
7階のお部屋のご紹介ですが、エレベーターでは6階で降ります。
7階へはお部屋から上がりたいと思います。
玄関入って左手にはトールサイズの玄関収納が設置されています。棚は可動式になっているので高さのある靴でもスッポリおさまりそうです。
では、さっそく階段を上がってみたいと思います~
2階到着!廊下を進み左手にあるお部屋から見学したいと思います~
廊下左手正面にある洋室7.6帖です。お部屋にはクローゼット+可動棚の収納が設置されています。奥行きもありキャリーケースも仕舞えそうです。広々としたお部屋をよりめいいっぱい活用できそうです!窓は2重サッシなので音を気にすることがなさそうです!
窓の外は、バルコニーになっています。
続いて洋室6.6帖のお部屋です。こちらにも嬉しい収納~ウォークインクローゼットが設置されています。安心の2重サッシの窓の外はこちらもバルコニーです。
廊下正面にある収納ウォークインクローゼットです!ゴルフバックや掃除機などかさばる大きなものが置けそうです~ポールハンガーも設置されているので、帰宅の際すぐに脱いだコートもかけられそうですね。家族のクローゼットとしても活用できそうです!
廊下右手へ。スリットガラスの扉~LDKへの入口です。
リビングダイニングキッチン11.9帖です。濃いめのブラウンのフローリングが落ち着いた温かい雰囲気に感じさせてくれています。ニッチカウンター背面もアクセントはブラウン、インテリアも楽しめお部屋作りもしやすそうです~
LDKに続いている洋室6.6帖です。端から端まで光射し込む窓ガラス、バルコニーに面している明るいお部屋です。
続いている洋室の仕切りを開けますとより開放感ある一つの空間に~
光もたっぷり~家族でゴロゴロしたくなりますね♪
LDKを通ってお部屋へ~バルコニーに面している洋室7.2帖です。お子様のお部屋にいかがでしょう~
清潔感あるホワイトなシステムキッチンです。広々としたシンク~大きなボウルを置いて野菜をジャブジャブ洗えそうです。コンロは3口!メインのハンバーグを焼きながらスープもコトコト♪
我が家のお手伝いさん食器洗浄機付き!家事の時間も減りますね~家族の会話が増えそうです!
サニタリールームです。左から浴室→トイレ→洗濯機置き場→洗面化粧台→リネン庫とまとまっている水廻り~使い勝手良さそうです。
バスルームです。ブラウンのアクセントパネルがリラックスムードを演出~♪
ワイドにあるミラーは浴室内を広々と感じさせてくれています。
浴室換気乾燥完備なので、梅雨のお天気だって気にせず洗濯物も乾かせそうです!
ウォシュレット付トイレです。上部には吊戸棚も設置されていますのでトイレットペーパーのストックも置けますね!
洗濯機置き場です。こちらにも上部には吊戸棚が設置されていますので、洗剤や洗濯ネットなど細々したものもまとめられ閉めてしまえば目隠しもバッチリ!
洗面化粧台です。ミラー両サイドには化粧水や歯ブラシなどが置けそうです~
おしゃれな洗面ボウルは蛇口がサイドに!下部にはお掃除道具などが仕舞えそうです。
可動棚のリネン庫です。かさばるタオルなどが仕舞っておけると入浴後など便利ですね!
2つの洋室に続いている南向きのバルコニーです。
洗濯物が風に揺られお部屋にまで柔軟材のいい香りが入ってきそうです~
7階からの眺望です。モリモリとある緑たっぷりの景色です。開放感いっぱいの青空からはパワーを貰えてる気分になる清々しさです!
大切なペットと暮らせます。(契約書の提出が必要)
緑豊富な世田谷エリア「馬事公苑前ハイム 2号棟」いかがでしたか~
是非一度現地をご覧いただければと思います。
みなさまのご内見、心よりお待ちしております。
過去に販売していたお部屋の概要 このお部屋の販売は終了いたしました。
| 価格 | -万円 |
| 面積 | 70.35㎡ |
| 間取り | 2bedrooms(2LDK) |
| 管理費 | 月額12,060円 修繕積立金:月額23,530円 組合費:月額350円 |
| 所在階 | 5階 |
間取りのご紹介です。70.35㎡ 2LDK
白基調の明るい玄関ホール。廊下が横に伸びているので、玄関からお部屋の中が見えずらくプライバシーも守られます。
玄関を入るとすぐ右側にシューズBOXが設置されています。 上はカウンターになっているので、お気に入りのインテリアや写真を飾ったりして楽しめますよ。
廊下を進み、1つ目の扉を開けると・・・
約6.2畳の洋室です。
大きなクローゼットが設置されているので、生活スペースを有効的に使えますよ。
廊下には棚のついた収納も設置されており、玄関のシューズボックスに入らない靴はこちらで管理するのがよさそうです。掃除用具や日用品のストックも入れておけそうです。
廊下をまっすぐ進んだ突き当り正面の扉の奥はリビングダイニングキッチン。
こちらはキッチンスペース。リビングにいる家族と会話を楽しみながらお料理ができるオープンタイプです。コンロの前だけ壁になっているので、油ハネがリビングまでいかないのも嬉しいですね。
キッチン横には洗面室の入口もありあす。お料理をしながら、お洗濯やお風呂の準備と、家事の動線もよさそうです。バスルーム、トイレ、洗面化粧台、洗濯機置場と水廻りの設備は一か所にまとまっています。
洗面台は3面鏡で、裏は一面収納スペース。ゴチャゴチャ物が散らかりがちな洗面まわりのハブラシや小物類もスッキリ収納いただけます。
洗面化粧台のすぐ隣に洗濯機置場。
上には収納棚もあるので、洗濯に使うネットや洗剤も手の届くところに置いておけますよ。
トイレはウォシュレット付き。上には収納棚がつくられています。
トイレットペーパーのストックもトイレ内に置いておけますね。
バスルームは浴室換気乾燥機能付き。雨が降った日でもこちらでお洗濯物が乾かせます。
浴室の水栓は、時間設定しておくと、お湯を出しっぱなしでも勝手に止めてくれる有りがたい水栓です。うっかり忘れてしまってもこれなら安心です。
リビングダイニングキッチンは約16.2畳。
家具もゆとりをもって配置できそうです。
リビングからバルコニーへ出てみます。
約7.92㎡、南東向き。
バルコニーからの眺望ですが、今日はうっすら雲があるので遠くまで見渡せませんが、雲がない日には遠くまで見渡せそうです!
リビングに隣接して約7.4畳の洋室があり、こちらからもバルコニーに出ることができます。
壁一面がクローゼットになっているので、収納も豊富です
ご内見のご希望、その他ご質問などもお気軽にお問合せください![]()
|
過去に販売していたお部屋の概要 このお部屋の販売は終了いたしました。 |
| 価格 | -万円 |
| 面積 | 77.58㎡ |
| 間取り | 3bedrooms(3LDK) |
| 管理費 | 月額:13,110円 修繕積立金:月額25,580円 |
| 所在階 | 1階 |
間取りのご紹介です。3LDK、77.58㎡。
ウッドデッキ&芝で仕上げた広々約32㎡の専用庭付き!
さらに無償で駐車場専用使用権もついています。
<リノベーション内容>
■フローリング
■天井・壁・クロス
■洗面所・トイレ CF
■システムキッチン、ユニットバス、洗面化粧台、ウォシュレット
■建具、下足入れ、網戸、コスモスイッチ、照明器具、クリーニング、etc・・・
7月初旬にリノベーション工事を終えたばかりのピカピカのお部屋を(ダイジェストで)見ていきましょう!
玄関を開けると、右側に大きな大きなシューズボックスがありました。ご家族の靴をまとめて入れられて、玄関スッキリです☆
続いて、5.8帖の洋室です!北側(外の廊下側)に窓があり、南側には、、、
約1帖のウォークインクローゼット!!棚がL字になっているので、機能的に荷物を収納できそうですよ(*^^)v
他に廊下にもウォークインクローゼットがあるという嬉しい収納スペースです!!
廊下の突き当りには14.2帖のリビングです!
エアコンが付いているので、ご入居から快適生活が送れそうですね~☆
キッチンスペースも広々☆作業台も広く取っているので、お料理がはかどりそう!(^^)!
キッチンに向けられたダウンライトがオシャレさを演出していますね~(*^。^*)
キッチンのすぐ近くにはサニタリールームがあります。
洗面台・トイレ・洗濯機置場・バスルームが一つになっているので、家事の動線が考えられた構造です☆
洗面台の右側、洗濯機置場の上部、トイレの上部には収納スペースがありますので、それぞれストックや掃除道具を収納しておけるので、便利ですね~(^v^)
再びリビングに戻って、リビングの東側にスライドドアで仕切られた6.3帖の洋室があります♪
奥行きのある大きめクローゼットが嬉しいお部屋です☆
もし部屋数に余裕があるなら、 スライドドアを開けたままにして20帖のリビングダイニングを作っても良いかもしれませんね(#^.^#)
リビングと6.3帖の洋室どちらからも専用のお庭に出られます☆その手前にはウッドデッキがあるので、写真のようにテーブルと椅子を置いて素敵な休日を過ごせそうですね♪
お庭は芝生が植えられていて、ゴロゴロしたくなります笑
お子様と、ペットと一緒に楽しく遊べるお庭があるってとっても嬉しいですよね~(*^^)v
いかがでしたか?専用のお庭でお友達を呼んで楽しい休日を過ごしてください!!
皆さまからのお問い合わせ、内見の御予約、心よりお待ちしております。
過去に販売していたお部屋の概要 このお部屋の販売は終了いたしました。
| 価格 | -万円 |
| 面積 | 77.69㎡ |
| 間取り | 3bedrooms(3LDK) |
| 管理費 | 月額:13,500円 修繕積立金:月額26,340円 |
| 所在階 | 6階 |
間取りをご紹介します。3LDK、77.69㎡。
廊下へ上がるとすぐ横に収納スペースがあります。
上はカウンターなので、お気に入りのインテリアなどを飾ってステキな玄関を演出できますよ。
目の前には廊下がまっすぐ伸びています。
カウンターの隣には約1.5帖の納戸が用意されています。
掃除機や使わない季節家電、ゴルフバッグや日用品のストックまで大きなものや目につくところに置いておきたくない物までスッポリしまえそうです。
靴は玄関を上がりすぐ左側のシューズインクローゼットへ収納できます。
廊下にはさらにウォークインクローゼットもあるので、自宅の荷物のみならず、遊びに来たお友達やお客様のコートや上着もここで預かれて便利です。
廊下には約6.5畳の洋室の入口もあります。
こちらにも約1.3畳のウォークインクローゼットがつくられています。収納が大きいと生活スペースが有効に使えるのがうれしいですね。
廊下をまっすぐ進んだ正面の扉の奥は約10.2畳のリビングダイニングキッチン。
エアコンも設置済みなので引っ越したその日から快適にお過ごしいただけます。
キッチンはオープンタイプ。リビングにいる家族と会話を楽しみながらお料理をしたい方にピッタリです。 カウンターがついているので、できたお料理を並べておけば家族が運んでくれるかも・・・。
リビング内にはカウンターや飾り棚もつくられており、手軽にステキな空間を演出できるようになっています。何を置こうか考えるのも楽しみのひとつになりそうです。
こちらはリビングに隣接した約6.0畳の洋室。
境の引き戸を開けてリビングとつなげると約16.2畳の広々とした空間になります。
独立させて利用したり、お友達が遊びに来た時はつなげて広々とした空間でおもてなしをしたりと生活シーンに合わせてフレキシブルにご利用いただけるのがいいですね!
リビング内のキッチン横には洗面室の入口もあり、お料理をしながら、お洗濯やお風呂の支度、と家事の動線もよさそう。タオルや着替えを置くのに便利なリネン庫もつくられています。
リネン庫と洗面化粧台の間に洗濯機置場があります。
バスルームは浴室乾燥機能と追い焚き機能付き。いつでも快適なバスタイムがお過ごしいただけます。
トイレはウォシュレットもついています。
リビングからはさらに約7.3畳のお部屋の入口もつくられています。リビングインのお部屋は家族と自然にコミュニケーションをとる機会が増えそうですね。
南向きの窓からはサンサンと陽が差し込みます♪
最後に約6.0畳と約7.3畳の洋室、どちらからもでられるバルコニーへ出てみます。
約7.92㎡、南向き。洗濯も気持ちよく乾きそうです。
スコーンと抜けた清々しい眺めがご覧いただけます。この眺めを見ながらお洗濯、なんて家事をするのも楽しくなりそうです♪
ご内見のご希望、その他ご質問などもお気軽にお問合せください![]()
過去に販売していたお部屋の概要(11F ) このお部屋の販売は終了いたしました。
| 価格 | -万円 |
| 面積 | 70.35㎡ |
| 間取り | 2bedrooms(2LDK) |
| 管理費 | 月額:12,450円 修繕積立金:月額24,290円 |
| 所在階 | 11階 |
間取りのご紹介です。70.35㎡ 2LDK
玄関扉を開けると、右にカウンターと小窓、左側に廊下が伸びています。
カウンター部分はちょうどよいディスプレイスペース。写真や植物、ポプリなどお好みの物を飾ってコーナー作りが楽しめますよ。
玄関へ上ると、右にシューズBOXが設置されています。
天井まで高さがあるので、収納力も◎。
廊下には調湿作用のあるエコカラットが使われており、見た目もオシャレです。
廊下の手前の扉から見ていきます。
こちらは約5.6畳の洋室。
落ち着いた色合いのカラークロスが使用されています。
間取りを見ると分かるのですが、 シューズBOXの分、壁がポコッと出ています・・・お部屋には約0.7畳のウォークインクローゼットがあるので荷物はこちらに片付ければ余計な収納家具は置かなくてすむかも・・・。お洋服もたくさんかけておけます♪
廊下へ出て次の扉を開けると、またまたウォークインクローゼット。
掃除機や使わない季節家電、日用品のストックまで生活感のにじみがちな物もスッキリ片付けておけます。お洋服がかけられるので、遊びに来たお友達のコートもここで預かっておけますよ。
廊下を突き当り、正面の扉の奥はリビングダイニングキッチン。
こちらはキッチンスペース。
オープンタイプなので、リビングにいる家族と会話を楽しみながらお料理の支度ができます。
ワークトップ下の収納には大きなお鍋やフライパンもすっぽり収まりそうです。
リビングダイニングキッチンは約15.6畳とゆったりした空間。
すでに家具が配置してあるので、実際の生活イメージもつきやすいかと思います。ちなみに置いてある家具はもらえます。
キッチン横には洗面室の入口もあります。
洗面化粧台、トイレ、洗濯機置場、バスルームと水廻りの設備が一か所にまとまっておりお掃除もラクラク。お料理しながら、お洗濯と家事の動線もいいですよ。
洗面化粧台の横にはリネン棚もあり、手の届くところにタオルが保管しておけます。
洗濯パンは洗面台のお隣り。上には収納棚が設置されています。
トイレはウォシュレット付き。棚もつくられているので、トイレットペーパーのストックもスッキリお仕舞いだだけます。
リビングからバルコニへ出てみます。約7.92㎡。南向きで陽当たり・風通しともに良好です。
眺望はさすがに最上階の11階だけあり、グーッと遠くまで見渡せます♪
リビングに隣接して約6.5畳の洋室がつくられており、こちらからもバルコニーへ出ることができます。
システム収納がつくられているのでお片付けもはかどりそう!本やCDなんかも棚に並べておけば見やすくていいかも・・・!
ご内見のご希望、その他ご質問などもお気軽にお問合せください![]()
過去に販売していたお部屋の概要(2F ) このお部屋の販売は終了いたしました。
| 価格 | -万円 |
| 面積 | 74.20㎡ |
| 間取り | 3bedrooms(3LDK) |
| 管理費 | 月額:13,030円 修繕積立金:月額25,430円 |
| 所在階 | 2階 |

ここで間取りのご紹介です。(3LDK 74.20㎡)
ドアをあけますと優しい薄いベージュのフローリングがみえました。左側にはカウンター付きの玄関収納があります。
玄関をあけてすぐ目にするカウンターには写真など飾りたくなります。お好みのインテリアが楽しめますね。
玄関収納もワイドにあり、お子様でも靴の出し入れがしやすい高さです。
玄関左側にある6.0帖の洋室です。玄関収納部分が出っ張っている場所が逆にお部屋のインテリアとして楽しめそうです♪
白を基調とした清潔感あるお部屋です。クローゼットも充分なサイズです。
玄関左側にある4.5帖の洋室です。こちらも白を基調としたお部屋です。ポールハンガー付きクローゼットもありお子様のお部屋に良いですね。
LDKに入る前の廊下にある扉付き収納です。
生活に必要なストック置き場等に良いかもしれません。
バルコニーに面している13帖の明るいLDKです。
嬉しい食洗器付き、ワイドで動きやすく調理できそうなキッチンです。
鮮やかな赤系のキッチンがオシャレです。シンクと同じぐらいの調理スペースは、いろいろな調理器具を出しても使いやすそうです。
これだけゆとりあるキッチンに食洗器まであると、荒い物がたまっても安心ですね。冬場のお湯での荒い物は手あれの心配もありますが解消させちゃいます!
全てにゆとりがあり料理をする流れもスムーズに!
こんなキッチンに立てたらレシピもバンバン浮かんじゃいそうです!
キッチン収納も横幅も奥行きもたっぷりとあります!ホットプレートや土鍋、高さのあるお鍋までもバッチリです。
サニタリールームです。左が浴室、正面がトイレ、右側が洗面台・洗濯機置き場になります。
浴室になります。2段のトレイがありこちらにはシャンプーやボディーソープなど置くと便利ですね。一日の疲れをとる大事な空間です。
ウォシュレット付きトイレです。操作は正面左側に付いています。収納棚はありませんが、後付でお好みのレースカーテンなどで目隠しをして収納場所を確保するのも良いですね。
洗濯機置き場と並んで洗面台があります。
真っ白な洗面台は清潔感あり、ウォッシュボウルの面積もいっぱいにあり使い勝手が良さそうです。
洗面台下の部分にある収納はお隣にある洗濯機置き場で必要な洗濯洗剤などの収納に良いですね。上の部分にはミラー両サイドにトレイが2段づつあり細々した歯ブラシやヘアースプレー、ブラシなどが置けそうです。
LDKのお隣にある、こちらもバルコニーに面している6.0帖の洋室です。南向きのバルコニーから太陽の光が白いクロスに反射しより明るいお部屋です。壁一面を使っているクローゼットになっています。収納量◎
南向きのバルコニーです。(7㎡)お花を飾ってガーデニングも蛇口があるとお世話もしやすいですね。今日の空をみるとお洗濯もすぐに乾いてくれそうです。
眺望です。2階なので抜ける見晴らしとまではいきませんが、沢山の緑豊かな木々を目の前で感じられ、近くに建物はありますがスペースも充分にあり圧迫感は感じませんでした。青い空と緑が清々しい気持ちにさせてくれます。
みなさまのご内見、こころよりお待ちしております!



































































































































































































































































































































































































































































































































































































































































































































































































































































































































































































































































































弊社 公式HP
六棒総合研究所
掲載予定物件
価格変更と販売終了物件
ハザードマップ検索
適合証明書.jp
Facebook
Twitter
Instagram