・
□□□□□□□□□□□□□□□□□□□□□□□□□□□□□□□□□□□□□□□
いつも弊社ホームページをご覧頂き誠にありがとうございます。
キャッスル世田谷はお陰様で販売を終了致しました。弊社問合せフォームにてご要望頂けましたら、当お部屋でキャンセル等が発生した場合、他のお部屋が販売になりました際にご紹介させて頂きます。
不動産Agent 六棒株式会社
TEL:03‐5413‐5336
□□□□□□□□□□□□□□□□□□□□□□□□□□□□□□□□□□□□□□□
・
渋谷から2駅お隣の三軒茶屋から『キャッスル世田谷』のご紹介です!
三軒茶屋はキャロットタワーなどの新しい建物と昔ながらの古い建物が混在する魅力的な雰囲気♫散策しがいがありそうです (●´∀`)
ご案内の前に、まずはこちらをご覧ください!
□□□□□□□□□□□□□□□□□□□□□□□□□□□□□□□□□□□□□□□
★★★【キャッスル世田谷】周辺のハザードマップをCHECK!!★★★
お部屋の記事を読む前に…!周辺のハザードマップをチェックしておきませんか!
キャッスル世田谷のハザードマップは★こちらから…どうぞ★
□□□□□□□□□□□□□□□□□□□□□□□□□□□□□□□□□□□□□□□
三軒茶屋の地名の由来は、江戸時代の中頃、社寺参詣ブームで賑わった大山道と登戸道の分岐付近に信楽、角屋、田中屋の三軒の茶屋が並んでいたことに由来します。今でも玉川通りと世田谷通りの分岐点ですね♪♪世田谷区の中でも繁華性が高い商業地の一つであると同時に、吉祥寺や自由が丘同様「住みたい町」などのランキングに名を連ねる人気の街です(o´∀`ノ
三軒茶屋駅周辺には、さんちゃのランドマークのキャロットタワーや多くの飲食店がありにぎやか。キャロットタワー26Fの無料展望ロビーからは、富士山も綺麗に見えるそうです (●´∀`)また、区役所の出張所等の公共機関も充実のエリアです。
『すずらん通り』、『三茶3番街』、『エコー仲見世』などの名前が付けられた細い通りがいくつもあり、飲食店や店舗が密集しています。通ってみましたが、穴場なお店とかありそうな雰囲気・・・。夜になったら人もたくさん訪れるそうです(´∀`)
駅周辺には、スーパーやディスカウントショップもありますので、お買い物はばっちりです(*´▽`)マンション最寄りのスーパーマーケットは、徒歩5分のところにあります『フーディアム三軒茶屋店』です。
今回ご紹介させていただくマンションは、南口方面。南口の賑やかな商店街をズンズン進んで行きましょう♫お食事も、お買い物もバッチリな商店街です。
商店街を抜けた先、マンションの周辺は官舎や社宅、都営アパート等が多く静かな住宅街です。

大きめの公園も多く、緑豊かなエリアです。図書館も近くにありますよ(o´∀`ノ
こちらが今回ご紹介させていただく『キャッスル世田谷』♫昭和45年築、7階建て、総世帯数59戸のマンションです。
マンションの周りは駐車場になっています。(月額28,000円)
空き状況はご内見の際にご確認くださいませ。
また敷地内にはマンション専用のゴミ集積所と駐輪場、バイク置場もございます。
こちらがマンションのエントランス♪♪エントランス前の階段は横にスロープがありベビーカーでも楽に登れます◎安心のオートロックで、セキュリティもバッチリです。
オートロックを抜けた先にエントランスホール。少し暗めの印象ですが、日勤の管理人さんもいらっしゃって管理体制は良好です。
ここで間取り図のご紹介です。
※間取り図は別タブで開きますので、確認しながらご覧いただく事が出来ます。
□□□□□□□□□□□□□□□□□□□□□□□□□□□□□□□□□□□□□□□
★★★【キャッスル世田谷】周辺のハザードマップをCHECK!!★★★
お部屋の記事を読む前に…!周辺のハザードマップをチェックしておきませんか!
キャッスル世田谷のハザードマップは★こちらから…どうぞ★
□□□□□□□□□□□□□□□□□□□□□□□□□□□□□□□□□□□□□□□
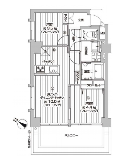
今回のお部屋は1階、間取りは1LDK、専有面積は37.98㎡となります。
玄関横にはテレビモニター付きインターホンが設置されていて、お部屋の中から訪問者を確認する事が出来ます。「ハイ」と言う前にチェックする習慣を付けましょう。
それではお邪魔します…
玄関を入るとホールなどは無く、そのままお部屋になっています。気になる方は衝立などを置くといいかもしれませんね。
右側に見えるのはオープンなウォークインクローゼット。左にはハンガーポール、奥には収納棚が設置されています。広いスペースになっているので洋服や靴だけではなく、自転車やキャリーバッグなども置いておけそうですよ。人感センサー付きでいつでも明るい玄関が迎えてくれます。
振り返って玄関の様子。
ドアには安心のダブルロック。玄関脇に設置されたベンチは、ブーツを履く時に座ったり、靴紐を結んだり、ちょっと荷物を置いたりと、なにかと便利ですよ(^^)
それではお部屋を見ていきましょう。
こちらは約10.3帖のリビング・ダイニング・キッチン。陽当りの良い窓際に、広いリビングスペースをとれる形になっています。
波の様に見える壁の模様は、よく見ると小さな鳥?がたくさん飛んでいるんですね。遊び心いっぱいです(^^)
今度はキッチンへ…
収納は調理台下と吊戸棚。引き出しタイプで奥の方まで無駄なく使えます。出し入れしづらい吊戸棚と上手く使い分けましょう。
三口コンロに片面焼きグリルと調理器具も充実!
オープンキッチンですので、調理中は換気扇をお忘れなく!
水栓は浄水機能付きシャワー水栓。気軽に美味しいお水を使えます。今は縛られているのでお見せ出来ませんが、ヘッドがシャワーの様に伸びてシンクのお掃除などにも便利ですよ。
では、隣のお部屋へ…
こちらは約4.2帖の洋室。LDKと同じバルコニーに面した明るいお部屋です。フローリング以外は真っ白なので、カーテンや家具を選ぶ際の、色のチョイスの幅が広がりそうですね。
収納は間口が広くて使い易そうなクローゼット。奥行きも十分で収納力抜群です。
仕切り扉は引込になっていますので、全開にした時もスッキリ!洋室をリビングの一部として使う事も可能です。
いい雰囲気ですね(*´▽`*)
玄関から正面に見えた扉を開けると、洗濯機スペースになっていました。
洗濯機スペースの隣は洗面室…
洗面台と浴室があります。
三面鏡付きの洗面台。
収納は洗面台下と三面鏡裏のキャビネット。洗面周りは細かい物が多くなりがちなので、キャビネットは助かります。
水洗はハンドシャワータイプ。洗面ボウルを流したり、寝ぐせを直したりも出来そうですね。
次は浴室へ…
追い焚き機能が付いていますので、お風呂はいつでも温かいまま。長風呂派には嬉しい機能です♪♪ 水道代の節約にもなって一石二鳥!
浴室乾燥機は浴室の換気の他に、お洗濯物乾燥やヒートショック予防など様々な働きをしてくれます。せっかくなので、どんどん使っていきましょう。
次はトイレへ…
アクセントウォールがお洒落ですね。もちろん温水洗浄便座付き。INAX製のシャワートイレです。
それでは最後にバルコニーのご紹介を…
洋室、リビングのどちらの窓からでも出る事が出来ます。
広さは8.50㎡、南東向きのバルコニー。外周をグルリと花壇が囲んでいます。一階ならではですね。
このお部屋の花壇は今の所こんな感じですが、他のお部屋の中には立派な松や椿の花が綺麗に咲いている所もありましたよ。園芸がお好きな方はもちろんの事、そうでない方もこの機会に始められてはいかがですか。
正面の建物は3階建て。距離もあるので陽当りにはあまり影響なさそうです。交通量は少なめでとても静かでしたよ。
・
以上でキャッスル世田谷のご案内を終わります。
いかがでしたでしょうか??
三軒茶屋駅から徒歩7分のマンションです。
リノベーション済みという事で室内はとてもキレイですよ (っ・ω・)っ
内見のご予約やご質問などございましたらお気軽にお問い合わせくださいませ。
ご連絡お待ちしております。
□□□□□□□□□□□□□□□□□□□□□□□□□□□□□□□□□□□□□□□
★★★【キャッスル世田谷】周辺のハザードマップをCHECK!!★★★
お部屋のご購入前に…!周辺のハザードマップをチェックしておきませんか!
キャッスル世田谷のハザードマップは★こちらから…どうぞ★
□□□□□□□□□□□□□□□□□□□□□□□□□□□□□□□□□□□□□□□
弊社、不動産Agent 六棒株式会社では、
□リノベーションマンションはほぼ全て仲介手数料無料!
□その他一般仲介物件は仲介手数料20%~30%OFF!
にてお取り扱いしております!※弊社の「Agent Fee=仲介手数料」についてはご案内、ご面談の際に営業担当者よりご説明いたします!
なるべく沢山のお部屋をホームページに掲載したいと思っておりますが、時間的成約もございますので、残念ながらご紹介できるお部屋の一部しか掲載できておりません。
このホームページに掲載中のお部屋、その他サイト等で気になるお部屋、街を歩いていて気になったマンション等々ございましたら是非、弊社営業部までご相談ください!
~不動産Agent 六棒株式会社の特徴~
・一般仲介物件の仲介手数料は20%~30%OFFにてご案内中です!
・リノベーションマンションについてはほぼ全て仲介手数料無料です!
・住宅ローンに自信あります!
・頭金10万円より購入できます。是非ご相談下さい!
・お部屋のご見学は車で2~3件まとめて案内します!
・物件数3000件以上、新築戸建、リノベ物件も多数ご用意しております!
過去に販売していたお部屋の概要 このお部屋の販売は終了いたしました。
| 価格 | -万円 |
| 面積 | 41.39㎡ |
| 間取り | 1bedroom(1LDK) |
| 管理費 | 月額11,800円 修繕積立金:月額10,000円 |
| 所在階 | 5F |
| お問い合わせ・ご内見のご予約はこちらからお気軽にどうぞ | |
共用廊下は内廊下タイプ。玄関前で雨や風の影響を受ける心配がなく、プライバシーも守られます。
1LDK、41.39㎡。リノベーション済みでピカピカです。
間取りはクリックすると別タブで開くのでゼヒ写真と見比べながらご覧ください♪
お部屋は5階。お隣の玄関扉との間には壁あり、プライバシーに配慮された造りになっています。インターホンはTVモニター付きで来訪者の顏が確認できるので安心。ダブルロックキーでピッキング対策もバッチリです。
それでは玄関扉をあけて中へおじゃまします。
真正面はシューズボックスが設置されています。
シューズボックスのカウンター部分にお気に入りのインテリアなどを飾れば玄関空間も違った雰囲気になりそうですね!ゼヒお好みの空間に仕上げてみてくださいね。
また玄関照明には人感センサーがついており、人の動きを感知して自動で照明がします。両手が荷物でふさがっている時に、この便利さ実感していただけるかと思います。
玄関をあがると廊下がまっすぐのびています。
廊下を奥まで進み、ネイビーの扉をあけて最初にリビングダイニングキッチンを見ていきましょう!
ガチャ。
リビングダイニグキッチンは約12.0帖の横長空間です。
南西方向はほぼ一面窓という明るく開放感のある空間です。
リビングにはBluetooth付きのダウンライト(パナソニック製)が設置されており、天井からサウンドが降り注ぐそうです。なんだかおしゃれ~で最先端な感じがします。
もう1つ気になるのがこちらのクロスの柄。私には鳥が飛んでいくように見えましたが、実は眺める位置で見えるものが変わる!という壁紙だそうです。面白いのでゼヒご内見の際にはチェックしてみてくださいね。
リビング内には収納力のあるクローゼットがあります。
洋室にもあるので、ここには日用品のストックや掃除器などを仕舞っておいてもいいかも。
窓側からもリビングダイニングキッチンをご覧ください。
キッチンは対面式。向かいが明るい窓だと朝から気持ちよくお料理できそうですね♪
スライド収納は幅も深さもあり、フライパンやお鍋もすっぽり仕舞えそう。
奥まで見やすく使い勝手がよさそうです。
グリル、浄水器一体型シャワー水栓と設備も◎です。
大きなお鍋にお水を入れる時にはホースを伸ばすと便利ですよ。
今度はリビングダイニングキッチンを出て廊下側を見ていきましょう。
レッツゴー!!
廊下を出てすぐ右側の扉は洗面室です。
洗面室内には洗面化粧台、洗濯機置場、バスルームがまとまっています。
モノトーンカラーで落ち着いた雰囲気です。
洗面化粧台は鏡の裏、引き出し等収納スペースが豊富です。
ゴチャゴチャしがちな小物類も整理しながら仕舞えそう♡
水栓はホースを引き出すとシャワーとしても利用可能です。
寝ぐせなおしやシンクのお掃除時に活躍しますよ!
洗濯機はバスルーム手前に設置できます。
脱いだ衣類はそのまま洗濯機に入れやすいですね。
バスルームの扉の横には浴室換気乾燥機の操作パネルがついています。
これで雨の日や花粉の時期のお洗濯も安心。
カビの発生もおさえられます。
バスルームは木目調の壁パネルが使われています。
ナチュラルな雰囲気がいいですね♡癒されます。
ラウンド型のバスタブもゆったりと浸かれそうでグー。追い炊きがありますから、何度でも沸かして温まってくださいね。
トイレは洗面室のお隣です。
玄関から近いですね。
トイレはTOTOのウォシュレット付き。
おしりだって洗ってほしい、んです!!
後ろに棚があるので掃除道具、ペーパーのストック等々はこちらへどうぞ。
ちなみに棚板も設置できます。
トイレの斜め向かいは洋室です。
洋室は約4.5帖。エアコンが設置されており、引っ越したその日から快適な生活が送れます。これで暑くて&寒くて寝られない、なんてことはないはず。
うん、クローゼット収納力あります!お洋服はここでまとめて管理できそうですね。
最後にリビングダイニングキッチンからバルコニーに出てみましょう。
窓ガラスの下半分は柄が入っており、外から中が見えにくいようになっています。
バルコニーは約8.76㎡、南西向き。
花置場があるのでゼヒ植物を育ててみてはいかがでしょう?お部屋から植物ビューもいいものですよ、きっと(´∀`)
気になる眺望です。まずは正面をドドーン。
ほどよく抜けたナイスビュー。高い建物は近くにないので晴れた日は陽ざしがたっぷり届きそうです。
左右もほどよく抜けた開放感のある眺めです。
三茶の静かな住宅街で快適な生活が送れそうです。
キャッスル世田谷、いかがでしょうか?
内見のご予約やご質問などございましたらお気軽にお問い合わせくださいませ。
ご連絡お待ちしております。
弊社、不動産Agent 六棒株式会社では、
□リノベーションマンションはほぼ全て仲介手数料無料!
□その他一般仲介物件は仲介手数料20%~30%OFF!
にてお取り扱いしております!※弊社の「Agent Fee=仲介手数料」についてはご案内、ご面談の際に営業担当者よりご説明いたします!
なるべく沢山のお部屋をホームページに掲載したいと思っておりますが、時間的成約もございますので、残念ながらご紹介できるお部屋の一部しか掲載できておりません。
このホームページに掲載中のお部屋、その他サイト等で気になるお部屋、街を歩いていて気になったマンション等々ございましたら是非、弊社営業部までご相談ください!
~不動産Agent 六棒株式会社の特徴~
・一般仲介物件の仲介手数料は20%~30%OFFにてご案内中です!
・リノベーションマンションについてはほぼ全て仲介手数料無料です!
・住宅ローンに自信あります!
・頭金10万円より購入できます。是非ご相談下さい!
・お部屋のご見学は車で2~3件まとめて案内します!
・物件数3000件以上、新築戸建、リノベ物件も多数ご用意しております!
過去に販売していたお部屋の概要 このお部屋の販売は終了いたしました。
| 価格 | -万円 |
| 面積 | 41.38㎡ |
| 間取り | 2bedrooms(2LDK) |
| 管理費 | 月額11,600円 修繕積立金:月額10,000円 |
| 所在階 | 1階 |
| お問い合わせ・ご内見のご予約はこちらからお気軽にどうぞ | |
ゆとりの1人暮らし、もしくはご夫婦でお住いになるイメージでしょうか(●´∀`)
インターフォンはTVモニター付き。知らない人は追い払えちゃいます(●’∀’●)
扉を開けると、ナチュラルな木調の優しい雰囲気♪♪人感センサーがついているので、人が通ればパッと電気がつきます。消し忘れもなく経済的です。

玄関正面にトールサイズのシューズボックス☆フロートタイプのシューズボックスは靴の出し入れもしやすく、空間をスッキリ感じさせてくれます。シューズボックスは棚の高さを変えることが出来るのでブーツなど大きな物もしまっておけます♫
廊下は玄関からの左手に伸びています。
まずは廊下左手のトイレです。嬉しいウォシュレット付き☆フチの無い設計でお手入れもらくらくです。上部に収納も設置されていてストック品の収納もバッチリです
(´∀`*)
お隣には水回りを集めた洗面室&バスルーム。
真っ白大きめサイズの洗面台です。新規交換済みでピッカピカ♪♪鏡の裏に収納スペースがありますので、歯ブラシから洗顔フォームまでゴチャゴチャ散らかりがちな洗面まわりの物もスッキリお仕舞いただけます♪♪
洗面台の蛇口はひっぱるとシャワーになるのでお掃除もラクラクおこなえます。
洗面台のお隣が洗濯機置場。
棚等は設置されていませんので、後から棚を設置したり、突っ張り棒で収納を作ったりと工夫したいですね(*´∀`*)
お隣は、バスルームです。バスルームは、清潔感のある配色でリラックスできる空間です。ゆっくり大きなバスタブにつかって疲れを癒せそうです♪♪
滑りにくく、乾きやすい床♫コーナーに目地が無く、スミまできちっとお掃除できます。5.5時間で低下温度は2.5℃以内という保温浴槽が設置されています(o´∀`ノ
廊下の右手には、約3.5帖の洋室です。北西向きの窓がついています。狭いお部屋ですので、ベッドを入れるのは少し厳しいと思います。贅沢に書斎として使ってみてはいかがでしょうか(*´˘`*)♡
それでは、リビングダイニングキッチンを見ていきましょう♫
扉を開けると、明るいお部屋が広がります♫
まずは、入ってすぐ右手のキッチンです。キッチンはリビングにいる人とコミュニケーションがとれる対面式です。お料理中も寂しい思いはさせません(笑)ホワイトの木調のキャビネットでお部屋との統一感もバッチリ♪♪
対面式ですが、上部にも収納♫シンク下の収納は、スライド式なのでキッチングッズの収納も楽々 (●´∀`)配管を気にせず収納できるので大容量。
3つ口コンロはお料理好きの方には嬉しいですね♪シンクは大きめでバッチリです。

キッチンには、ライティングレールも設置されています(´∀`*)
リビングダイニングキッチンは約10帖☆北西向き&南西向きの二面採光のお部屋です。ナチュラルな色調のフローリングステキなお部屋です(●’∀’●)ノ
リビングダイニングキッチンには、カウンターが設置されています♫電話機置場にしても良いですし、お気に入りのインテリアを飾ってみても良いですね♫
リビングのお隣には、約4.4帖の洋室です。こちらのお部屋にもしっかり南西向きの窓が付いていて明るいお部屋♪♪
奥側の壁には、グレーのクロスが使われていてスタイリッシュな雰囲気です。
こちらのお部屋には大型のクローゼットが設置されています♪
奥行きもしっかりで収納力バツグン☆バーも付いているので、ロングコート等の衣類の収納にも良いですね♪♪収納が大きいと生活スペースが広く使えて◎
それでは、最後にバルコニーへ出てみます。南西向きのバルコニー☆8.76㎡♫明るさ、広さともにバッチリです。お洗濯物もしっかり乾きそうです♫
1Fですので、眺望はバッチリとはいきませんが、大丈夫そうです♪♪
いかがでしたでしょうか。
人気の『さんちゃ』♪♪緑も多く、住みやすい環境で充実した生活を送れると思います。
内見のご希望、ご質問などございましたら、![]()
































































































































































