□□□□□□□□□□□□□□□□□□□□□□□□□□□□□□□□□□□□□□□
いつも弊社ホームページをご覧頂き誠にありがとうございます。
セザール第二上北沢はお陰様で販売を終了致しました。弊社問合せフォームにてご要望頂けましたら、当お部屋でキャンセル等が発生した場合、他のお部屋が販売になりました際にご紹介させて頂きます。
弊社では、仲介手数料無料orお値引(50%off、30%off、20%off)にて皆様のマイホーム探しのお手伝いをさせて頂きいております。セザール第二上北沢の類似物件や、お探しのご条件等をお聞かせ頂けましたらご条件に合ったお部屋をご紹介させて頂きます。また、ご来社頂き一緒に探させて頂くことも可能ですので、是非弊社問合せフォームよりお気軽にお問合せください。
不動産Agent 六棒株式会社
TEL:03‐5413‐5336
□□□□□□□□□□□□□□□□□□□□□□□□□□□□□□□□□□□□□□□
世田谷区八幡山よりリノベーションマンション『セザール第二上北沢』のご紹介です。
京王線「上北沢」駅は、新宿駅まで約20分、明大前駅で井の頭線に乗り換えて渋谷駅まで約20分というアクセスの良さが魅力♪
都心にも近い場所にありますが、上北沢駅の周辺は住宅街で、人通りもそこまで多くない、閑静な住宅街が広がります。
駅前にはスーパー「サミット」があります。
朝10時から夜11時まで営業しているので、少し帰りが遅くなっても安心してお買いものをしていただけます。
駅から少し距離がありますが、途中には緑が充実しているので、お散歩気分であるけばあっという間です☆
上北沢駅から隣の八幡山駅にかけて、「東京都医学総合研究所」と「都立松沢病院」の広大な敷地が広がっています。
こちらは松沢病院。精神科の専門病院として有名です。
その敷地の一画に「将軍池公園」という公園がありました。
公園といっても遊具等はありませんが、おおきな広場と大きな池がある公園です。
公園内には「将軍池」と「加藤山」という築山があります。
この池と築山は、松沢病院の屋外治療の一環として、加藤普佐次郎という医師と多くの患者によって作られたのだそうです。
加藤山はこの加藤医師から、そして将軍池はこの作業に参加した患者の自称「将軍」葦原金次郎から名前を取ったそうです。
大正15年に完成した山と池は約100年経った今でもその姿のまま、地元の人達に愛されています。
また少し歩いていくと、世田谷区上北沢地区会館があります。この周辺の地区の方達の憩いの場、交流の場になっていて、お料理教室や様々なイベントが行われています。
マンションの近くにはスーパー「パワーラークス」があります。
マンションからは2~3分の位置にあり、夜9時まで営業していますので、普段のお買い物はこちらが便利です♪
また、マンションの目の前には希望丘東公園があります。遊具も充実していて、緑もたくさんあるので、お子様のいらっしゃる方にはとてもいい遊び場になると思います☆
園内には東屋もあるので、夏場には嬉しいですね♪
公園の目の前にあるのが『セザール第二上北沢』です。
平成3年築の4階建て、ブラウンのタイル貼りが特徴のマンションです☆
エントランスはオートロックなので、とても安心です(^v^)
エントランスの左側に駐輪場がありますが、そちらからも出入りができるようになっています。

エントランスから中に入ると、敷地内は吹抜けになっていて、陽の光が降り注いでいました☆
このマンションにはエレベーターがないので、階段を使って上がってください。

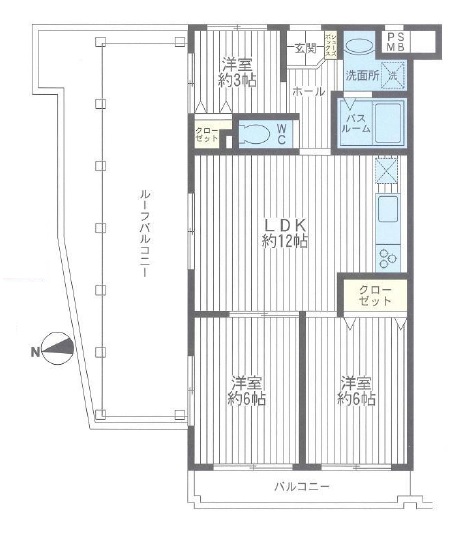
今回ご紹介するお部屋の間取りをご紹介します♪
3LDK、54.59㎡のお部屋です。
それでは早速お部屋へ入っていきましょう!


ピンクのあかるい壁に茶色いドアのお部屋です!
カメラ付インターフォン付きですので安心ですね☆

扉を開けると、明るい玄関がお出迎えしてくれます!

シューズボックスは玄関左にあります!
縦に長い造りで沢山靴がしまえますよ✿

玄関入って右のお部屋は少し小さ目の3帖のお部屋です!
廊下に面していますが不透明ガラスの窓に柵が設置されているので安心です(*´˘`*)♡

収納の扉を開いてみると、奥に広い造りになっていました!
たくさん物がしまえそうです(●´∀`)
収納ボックスなど設置すれば綺麗に収納できちゃいますね♪

向かい側のお部屋はサニタリールームです!

三面鏡は大きな照明が付いていて使いやすいです!
鏡裏にはたっぷり収納が出来るのでハブラシやワックスなど置けますよ(´∀`●)

お隣には洗濯機置場が!
着ていたお洋服など手間なく洗濯機へ入れられます☆

お次はバスルームです。
白と茶色のお部屋はシックでお洒落な空間になっています(o^-^o)

鏡横には棚が用意されているのでシャンプー、リンスなどが置けます✿
二段用意されているので洗顔石鹸なども置けちゃいますね♪

トイレは収納が無いのでトイレットペーパーなどの補充に工夫が必要です。
こちら、ウォシュレット機能付きです!


扉を開け中へ入っていくとリビングダイニングキッチンがあります。
奥行きのある広々としたお部屋になっています☆ミ


キッチンはモダンな造り!
調理時間短縮には嬉しい三口コンロ付きです(^-^)

上下収納になっているのでしっかりしまえて生活感が隠せます☆

リビングダイニングから左の扉に入っていくと洋室があります。
こちらのお部屋はエアコン付きです((´I `*))


収納スペースがしっかり造られているので洋服がたくさんしまえますよ♪

右の扉を開けていくと・・・

こちらも6帖の洋室となっています!
二面バルコニーに面しているので沢山陽の光を取り込めます(*´v`*)ノ

広々としたルーフバルコニーがありますよ☆ミ


まわりは住宅街となっていますd(‘v`●)
いかがでしたでしょうか?
閑静な住宅街で新生活を送って見ませんか?♪
皆様のご内見心よりお待ちしております!
過去に販売していたお部屋の概要 このお部屋の販売は終了いたしました。
| 価格 | -万円 |
| 面積 | 52.08㎡ |
| 間取り | 3bedrooms(3LDK) |
| 管理費 | 月額12,510円 修繕積立金:月額12,696円 |
| 所在階 | 3階 |
| お問い合わせ・ご内見のご予約はこちらからお気軽にどうぞ | |
間取りのご紹介です。3LDK、52.08㎡。 南・東・西の三方角部屋です。
内装は平成27年4月にリノベーション工事を終えたばかりなので、とても綺麗です☆
リノベーション内容は以下の通りです。
■フローリング、天井・壁、クロス
■洗面所、トイレ、CF
■システムキッチン(浄水器能付き)
■ユニットバス、洗面化粧台、ウォシュレット
■給湯器
■建具、下足入れ、網戸
■コスモスイッチ、照明器具、クリーニング、他
玄関を開けると、綺麗になってピカピカな室内が広がりました。
玄関左側にはシューズインクローゼットがあります。奥行きのある室内は靴だけでなく、大きな物までしまえるスペースがあります。
廊下に上がってすぐ左側がトイレです。トイレ内にはカウンターと吊り棚がありますので、床に物を置かずに清潔にお使い頂けます☆
トイレの隣にサニタリールームがあります。新規に入れ替えられているので、とても綺麗で清潔です。
洗面台には大きな一枚の鏡が取り付けられています。洗面台の左側にはリネン庫がありますので、洗面台周りの小物からバスタオルまでいろいろと収納できます☆
洗面台の隣には洗濯機置場があります。上部に収納棚がありますので、洗濯機周りの物はスッキリと収納できます(^^)/
バスルームも新規に入れ替えられていますので、とても綺麗で清潔感があります。
ベージュのパネルが落ち着いた雰囲気を演出して、バスタイムが楽しみです♪
浴室換気乾燥機が付いていますので、雨の日でも雪の日でも安心してお洗濯をしていただけます。また、涼風・暖房機能も付いていますので、真夏の暑い日や真冬の寒い日でも快適にバスタイムを楽しんでいただけます♪
サニタリールームの向かい側に4.3帖の洋室があります。
南側と西側に窓がありますので、とても明るいお部屋です☆
南側は出窓になっていますので、お気に入りの小物や写真を飾っておけば、お部屋に彩りを加えられます(*^^)v
東側にはクローゼットがあります。奥行きがあるクローゼットで、室内とフラットになっているので、大きな重い物もラクラク収納できますよ(^v^)
こちらは南側に出窓があるので、室内は明るく照らされています。
こちらのクローゼットも奥行きタップリ!!
棚板が上段にあるので、上手に使えばたっぷり収納できそうです(^v^)
廊下の突き当りには8.0帖のリビングダイニングキッチンがあります。
東側に大きな窓がありますので、室内はごらんの通り、とても明るいです☆
キッチンは新規に入れ替えられていてとても綺麗です。
浄水器付の水栓がシンクに付いています。いつでも浄水された水を使えるので、特にお子様のいらっしゃるご家庭は安心です♪
3口コンロなので、一度にいろいろお料理できてとても便利です(*^^)v
キッチンには収納がたくさん!!キッチン下部には調理器具を、上部には食器を入れれば、ダイニングは広々お使い頂けます(*^。^*)
キッチンの隣にはカウンターがあります。電子レンジや炊飯器を置くもよし、調理台としてお使い頂くもよし、カウンター下のスペースもゴミ箱を置くもよし、棚を作って食材庫にするもよし、いろいろとアレンジできそうです☆
リビングダイニングキッチンにある引戸を開けると、4.8帖の洋室が広がります。
南側と東側に窓があるので、とても明るく開放的なお部屋です(^v^)
写真の様に、リビングとしてお使いいただく事も出来ます(^o^)
こちらのお部屋にもクローゼットがあります。リビングとしてお使いいただくのなら、ご家族みなさんでお使いになるものをこちらに収納すると便利ですね♪
バルコニーは東向きなので、午前中にとても気持ちのいい陽の光が射してきます☆
バルコニーから外を見ると、先程の公園が目の前に見えました。
お子さんが公園に遊びに行っても、バルコニーから見ることができるので、安心ですね♪
いかがでしたか。
駅からは少し離れていますが、その分、閑静な住宅街の中で静かな暮らしができますし、緑もたくさんあって気持ちがいいです☆
バス便も充実しているので、バスを使えばラクラクどこにでもいけますよ(*^。^*)
「子供を静かな環境でのびのび育てたい」という方にはおススメです♪
みなさまからのお問い合わせ、お待ちしております。















































弊社 公式HP
六棒総合研究所
掲載予定物件
価格変更と販売終了物件
ハザードマップ検索
適合証明書.jp
Facebook
Twitter
Instagram