□□□□□□□□□□□□□□□□□□□□□□□□□□□□□□□□□□□□□□□
いつも弊社ホームページをご覧頂き誠にありがとうございます。
クレール桜新町はお陰様で販売を終了致しました。弊社問合せフォームにてご要望頂けましたら、当お部屋でキャンセル等が発生した場合、他のお部屋が販売になりました際にご紹介させて頂きます。
弊社では、仲介手数料無料orお値引(50%off、30%off、20%off)にて皆様のマイホーム探しのお手伝いをさせて頂きいております。クレール桜新町の類似物件や、お探しのご条件等をお聞かせ頂けましたらご条件に合ったお部屋をご紹介させて頂きます。また、ご来社頂き一緒に探させて頂くことも可能ですので、是非弊社問合せフォームよりお気軽にお問合せください。
不動産Agent 六棒株式会社
TEL:03‐5413‐5336
□□□□□□□□□□□□□□□□□□□□□□□□□□□□□□□□□□□□□□□
今回は東急田園都市線「桜新町」駅から徒歩9分のマンション『クレール桜新町』を紹介します。
桜新町駅は、東急田園都市線で渋谷駅から約10分、人気の二子玉川駅までは約5分と、ショッピングなどのお出かけにはとてもいい場所です。
駅周辺には住宅地が広がり、芸能人も多数桜新町に住んでいます。
有名なのは水前寺清子さん♪毎年開かれるさくら祭りのステージで元気な歌声を披露してくれています♪♪
桜新町と言えば、誰しも知っている「サザエさん」の街。駅前にはサザエさんをはじめとした、磯野家・フグ田家ファミリーが銅像になっていて、桜新町に来る人たちを歓迎しています☆
駅前の通りには八重桜の街路樹があり、今は青々とした葉っぱが生い茂り、歩道に日影を落としてくれています。春はピンク一色になって、とても綺麗ですよ(^o^)
また、駅前の通りには飲食店、クリニック等々がたくさんの木を連ねています。
通り沿いにはスーパー「ピーコック」がありますので、お仕事帰り、駅からの帰り道にお使いください。営業時間は22時50分までなので、安心してお買いものができます(^^)/
駅前の通りと玉川通りの中間位には「新町児童館」があります。
遊戯室の他に図書室・音楽室等もあり、音楽室ではギターやベースを持ち込んでバンドの練習もできるようになっていました。
マンションに向かうため、「サザエさん通り」を玉川通りに向かって歩いていきます。
サザエさん通りには、サザエさん公式カフェの「リアン・ドゥ・サザエさん」があります。
とてもオシャレなカフェで、中ではサザエさんや波平さん、タマの形をした大判焼きがあったり、サザエさんのラテアートをしてくれたり、マグカップなどのサザエさんグッズがあったり、とても楽しいカフェです☆
サザエさん通りにもたくさんの飲食店がお店を出していますが、その他にもドラッグストア「ココカラファイン」や「セイジョー」があり、スーパー「マルダイ」もあります。
マルダイは月曜日~土曜日は夜11時まで営業しているので、帰り道に寄れる頼もしいスーパーですね♪
サザエさん通りを歩き、玉川通りに出る場所にセブンイレブンがあります。2階は保育園になっているので、小さなお子様を保育園に通わせるなら、こういった出勤途中の場所にあるのは嬉しいですね(*^。^*)
玉川通りを少し渋谷方面に向かったところにあるのが、今回紹介する『クレール桜新町』です。
昭和57年築、3階建ての低層マンションで、周囲もマンション内もとても静かで落ち着いた雰囲気です。
エントランスはオートロックになっているので安心です☆
エントランスホールは天井がガラス張りになっているのでとても気持ちのいい陽の光が入って来ていました。
マンションンの中庭には駐車場があります。紹介するお部屋は、この平置き駐車場の専用使用権付き (月額8000円)です。カーユーザーの方にはとても嬉しい特典ですね♪
それでは、間取りのご紹介です♪♪
2LDK 65.66㎡。新耐震基準のお部屋です。
お部屋へは外廊下を進みます♪♪開放的な雰囲気です (●´∀`)
こちらがご紹介させていただくお部屋です。インターフォンはTVモニター付き。オートロックなので知らない人は入って来れないですけどね!
玄関ドアを開けると、ホワイトを基調とした清潔感のある落ち着いた玄関です
(●´∀`)これはお部屋も期待できますね♬照明は人感センサー機能付ですので、玄関を開ければパッと照明がつきます。
玄関突き当りには、光沢のあるホワイトの大きなシューズボックス♪♪
ご覧の通り、収納力◎です!!フロートタイプのシューズボックスは靴の出し入れもしやすく、空間をスッキリ感じさせてくれます。可動式の棚なので、靴のサイズに合わせてご自由にアレンジしてください。
シューズボックスの上はカウンターになっていますので、お気に入りのインテリアや写真などを飾ってステキな空間に♪♪
それでは奥へと進みましょう♫廊下もカーペット敷きになっています (●´∀`)高級感を感じますね!
さりげない気遣いですが、ドア内側の鍵に蓄光が仕込んであります。
就寝前の鍵のチェックも一目で分かりますね。オートロックとはいえ、可能な用心はしておきましょう!
玄関から進むとすぐ右手に約4.3帖の洋室があります。
広さはそこまでないのですけどベッドルームとしては充分ですね!
収納に関してもクローゼットがついているのでコートなどはここに掛けておくことができますよ。
先に進みましょう!
廊下から入れる独立したトイレです。嬉しいウォシュレット付になります。上部に扉付の収納があるので、ストック品の収納や消臭剤を置くスペースとして利用してみて下さい。
シンプルなトイレは落ち着きますね。 (っ´∀`c)
トイレの横はこのようにちょっとした収納場所となっています。
高さの調節が可能なので掃除機などの掃除用具などをしまっておくにはちょうどいいかもしれません。
洗面室も廊下から。右手に洗濯機置場、正面に洗面台、左手にバスルームの並びになっています。
こちらが洗濯機置場。防水パンももちろんピカピカですよ!
洗面台も新しいものに取り換えられています。シンクの両サイドが広くとられているのでハンドソープを置いたり、小物の仮置きなどに使えますよ!
三面鏡の裏に収納スペースがありますので、歯ブラシから洗顔フォームまでゴチャゴチャ散らかりがちな洗面まわりの物もスッキリ ( ´∀`)b
もちろんシンク下にも収納はあるので物の置き場所にはこまりませんね!
バスルームは、優しい風合いの木目調のパネル☆バスタブも大きめです。
1日の疲れを癒すお風呂にはこだわりたいところですね!
身体を洗うだけの場所ではなく重要なリフレッシュの場として考えて頂きたいですよ!!
追い炊き機能はもちろん、浴室乾燥機能が付いていますので雨の日でも安心してお洗濯ができますよ(*´∀`*)
廊下突き当りのお部屋のスリットガラスから廊下に光が差し込んでいます。ドアの向こうは、リビングダイニング!明るいリビングの期待が広がります。
その前に!左手に引き戸があるのでそちらを開けてみましょう!!
キッチンです!
3口のグリル付きのガスコンロ、浄水機能付きの水栓等の設備となっています。
広くて使いやすいキッチンだと思いますよ!!
このキッチンで一番最初に作られるのはどんなお料理になるのでしょう?
引越しして、バタバタした中でだとあまり手の込んだものではなさそうですね(`ω´)
左サイドには高さの調節ができる棚、上部には吊戸棚が付いているので収納に関しては不自由しないですね!!
キッチンの右側には、、、、
リビングダイニングが!!
そうです、廊下から直接でもリビングには行くことができるのですが、このようにキッチンを経由しても大丈夫なのです。
お買い物帰りにキッチンへ直行できるという新設設計ですよ!
これだけの広さがあればテーブルの他にソファーを置いても余裕がありそうです
大きな窓があるとお部屋の雰囲気がとても明るくなりますよ!
最後のお部屋になりました。
こちらはリビングの隣に位置している約6.7帖の洋室です。
お部屋西側に大きなクローゼットがありますが、クローゼットの中に窓が有るんですよ♪♪窓から光がたくさん入ってきていたので、開けて使いたいぐらいです。
もちろん容量的には申し分なしなのですが、何とかこの窓を活かしたレイアウトを考えたいものですね、、、
パッと思いつくのは小さな机を置いて「隠し書斎」とするとかくらいですかね( ー`дー´)
窓の外は共用部の吹き抜けになってるので本当に完全なクローゼットとしてしまうのはもったいないです!
最後にバルコニーに出てみます。
バルコニーは東向きです。
周辺に高い建物がありませんので、お昼までは直接光が当たると思います。
夏の暑い日の事を考えるとそちらの方がいいのかもしれませんね(゚A゚;)
では、以上でクレール桜新町のご案内を終わります。
駅から徒歩9分ですし、お車もあれば国道246号線が目の前なのでお買い物も楽かと思います。
閑静な住宅街でとても住みやすいマンションなのではないでしょうか?
内見のご予約やご質問などございましたら、お気軽にお問い合わせくださいませ♪
弊社、不動産Agent 六棒株式会社では、
□リノベーションマンションはほぼ全て仲介手数料無料!
□その他一般仲介物件は仲介手数料20%~30%OFF!
にてお取り扱いしております!※弊社の「Agent Fee=仲介手数料」についてはご案内、ご面談の際に営業担当者よりご説明いたします!
なるべく沢山のお部屋をホームページに掲載したいと思っておりますが、時間的成約もございますので、残念ながらご紹介できるお部屋の一部しか掲載できておりません。
このホームページに掲載中のお部屋、その他サイト等で気になるお部屋、街を歩いていて気になったマンション等々ございましたら是非、弊社営業部までご相談ください!
~不動産Agent 六棒株式会社の特徴~
・一般仲介物件の仲介手数料は20%~30%OFFにてご案内中です!
・リノベーションマンションについてはほぼ全て仲介手数料無料です!
・住宅ローンに自信あります!
・頭金10万円より購入できます。是非ご相談下さい!
・お部屋のご見学は車で2~3件まとめて案内します!
・物件数3000件以上、新築戸建、リノベ物件も多数ご用意しております!
過去に販売していたお部屋の概要 このお部屋の販売は終了いたしました。
| 価格 | -万円 |
| 面積 | 69.00㎡ |
| 間取り | 3bedroom(3LDK) |
| 管理費 | 月額15,570円 修繕積立金:月額17,340円 |
| 所在階 | 2階 |
| お問い合わせ・ご内見のご予約はこちらからお気軽にどうぞ | |
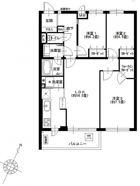
では間取りの紹介です。
69.00㎡ 3LDK+WIC この建物にはエレベーターがないので、2階まで階段で行きましょう♪
室内は平成27年4月にリノベーション工事を終えてとても綺麗に生まれ変わっています☆
玄関を開けると、とても落ち着いた雰囲気のキレイな室内が広がります。
廊下には真新しいじゅうたんが敷かれていました☆
シューズボックスの扉には全身を映せる鏡があります。扉3つ分の収納スペースがあるので、ご家族みなさんの靴がたくさん入ります(*^。^*)
玄関には人感センサー付き照明があるので、外から帰ってきた時にはパッと明るく足元を照らしてくれます♪p
また廊下にはダウンライト付きのニッチがあります。
絵や写真、観葉植物など、お好みに合わせてステキなスペースを作ってみてください(^_-)-☆
廊下には収納棚が設置されています。細長い収納棚なので、アレンジ次第で背の高い物も入れておくことが出来そうです(^v^)
トイレには吊り棚があります。トイレットペーパーのストックや、お掃除道具等、トイレ用品うぃ綺麗に整頓しておけます(^o^)
トイレの隣にはサニタリールームがあります。
新規に交換したものばかりなので、とても綺麗で清潔感を感じました。
洗面台のシンク両側にはカウンターが付いていてとても広くお使いいただけます。お出かけ前の準備の際に歯磨きの順番待ちをしなくてもよさそうですね笑
バスルームはアイボリーのパネルで統一感のある、ナチュラルで素敵なデザイン。
ゆったりとしたバスタイムを楽しんでいただく事が出来そうです。
浴室換気乾燥機が付いているので、雨の日も風の日も楽々お洗濯できますよ☆
サニタリールーム正面のドアは4.2帖の洋室があります。北側に窓がありますので、室内はとても明るいです☆
南側にはクローゼットがあります。扉が大きく開くので洋服がたくさん掛けられて、とても見やすく取出し安いです(^o^)
廊下の突き当りには14.5帖のリビングダイニングキッチンが広がっています。
南向きの大きな窓があって、室内はとても明るく広く感じます☆
東側の壁はエコカラットになっています。エアコンの除湿などを使わずに、エコカラットが室内の湿気、生活臭を吸い取ってくれるので、まさにエコな壁です(*^。^*)
キッチンは絨毯ではなく、大理石のフロアタイルになっているので、掃除もしやすくとても綺麗です☆
キッチンの入り口に洗濯機置場があります。「置場」というより「洗濯室」になっていて、室内には棚もあるので、洗濯用品を色々と収納できそうです。
そとからはスッキリ見えるのもうれしいですね♪
キッチンの奥にはバルコニーへ出られるドア(お勝手口)があるので、キッチン内はとても明るく清潔感を感じます☆
設備も充実です!!3口コンロ、浄水器付水栓に広々ワークトップ。
お片付けには食器洗浄機も設置されているので、奥様ラクチンですね(*^。^*)
キッチン下部と吊り棚があるので、キッチンの収納力は◎!!
調理器具がたくさん入ります。
その他にもキッチンカウンターの下に可動式の棚があるので、食材等のストックが出来て、とても使いやすいキッチンです(^_-)-☆
リビングダイニングキッチンの北東側に4.5帖の洋室があります。北側に窓があって、室内は明るく照らされています。
東側の天井になにやらワイヤーが。。こちらはピクチャーレールです。このワイヤーを使ってお気に入りの絵を壁に掛けておくことが出来ます。場所を自由に変えられ、壁も傷つかない。実はとても便利な道具です(^_-)-☆
南側にあるクローゼットは扉が大きく開くので、中に入れている服が見やすく取り出しやすくなっています。上段にも荷物をしまっておけるので、工夫次第でたくさん収納できますよ(^v^)
リビングダイニングキッチンの東側には7.5帖のゆったりとした洋室があります。
こちらは南向きの窓があるので、室内は自然の光で十分に明るいです☆
お部屋の北東側にはウォークインクローゼットがありました!!
ドアを開けるとハンガーパイプと棚板がL字に組まれていて、とても広々と使えます。
バルコニーへはリビングダイニングからとキッチンから、出ることが出来ます。
南向きのため、明るい陽射しが射し込む気持ちのいいバルコニーです☆
2階なので、眺望が良いというわけではありませんが、晴れた日には青い空と白い雲、気持ちのいい陽射しを全身で感じる事が出来ますよ(^v^)
いかがでしたか。桜新町から平坦な道で徒歩9分、玉川通りのすぐ近くにありながらとても静かな環境です。駐車場の専用使用権がついて、お部屋の中はオール絨毯貼りの豪華な雰囲気。
ご家族でのんびり過ごすなら、こんなお家がいいですね(^v^)
みなさまからのお問い合わせ、お待ちしております。





































































































