・
□□□□□□□□□□□□□□□□□□□□□□□□□□□□□□□□□□□□□□□
いつも弊社ホームページをご覧頂き誠にありがとうございます。
ドミシール田園はお陰様で販売を終了致しました。弊社問合せフォームにてご要望頂けましたら、当お部屋でキャンセル等が発生した場合、他のお部屋が販売になりました際にご紹介させて頂きます。
不動産Agent 六棒株式会社
TEL:03‐5413‐5336
□□□□□□□□□□□□□□□□□□□□□□□□□□□□□□□□□□□□□□□
・
自由が丘のひとつお隣、「田園調布」駅より徒歩7分。
リノベーションマンション『ドミシール田園』のご紹介です!
20分と少々歩きますが、自由が丘にも歩いて行ける距離です(´∀`*)
東急東横線、目黒線の2路線が乗り入れる田園調布。
西洋の民家を思わせるデザインの駅舎が特徴的です。
ちなみに関東駅百選のひとつにもなっていているそう!
改札口北側のバスターミナルからはイケア行きの無料シャトルバスも出ています。私も利用したことがありますが・・・無料でスムーズに行けて◎。
駅の上には本館・南館・アネックス・北館の4棟からなるショッピングモールの東急スクエア・ガーデンサイトがあります。スーパーやカフェ、書籍、生花店、パティスリー等々が入っておりお買い物やちょっと休憩に便利。
駅周辺には一軒家風のカフェやイタリアン、デリカテッセンのお店も。見た目がオシャレですねぇ(人´∀`).☆.。.:*・機会があったら入ってみたいです。
駅を出ると商店街もあり、この日は商店街の中を通ってマンションまで向かってみました。店数は多くないものの、コンビニやクリーニング店、飲食店、ドラッグストアなどがあり暮らしやすそうな雰囲気です。それにしてもこの辺り、なんだか品がある感じで雰囲気がいいです✧
商店街を抜け、住宅街の中を少し歩くともうすぐマンション。
マンションの道のお隣には中高学校、斜め向かいは児童館&保育園。元気な子供たちに多く出会いそうな環境です。
ドミシール田園は昭和49年築、地下1階付き地上4階建て、総世帯数29戸。
環八沿いに佇んでいます。
平成21年9月に給水管更新工事、平成17年3月に大規模修繕工事が実施されており、外観もキレイに保たれています。
エントランスは環八沿いに面しておらず、道を1本入ったところにあります。
エントランス前に背の高い植栽があり、入口部分は通りからみえずらいようになっています。
入口まで近づいてみました。
エントランスホール。テーブルとイスがセットしてあり、ゆったりしています。
管理は安心の住込管理。
1階の壁面にはドミシール田園の文字。しゃれてます。
エレベーターでお部屋へ向かいます。
外廊下ですが、ガラスのついたてがあるので外からの視線は気になりません。エントランスまわりと同じ色合いのタイル貼り。
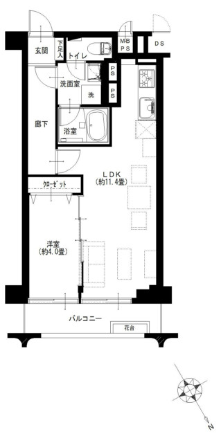
ここで間取り図のご紹介です。
※間取り図は別タブで開きますので、確認しながらご覧いただくことが出来ます。
今回ご紹介するお部屋は2階、専有面積39.60㎡の1LDK。お一人暮らしの方にお勧めのお部屋です。では、早速行ってみましょう!
玄関から続く廊下は正面にドアがなく、戸口からお部屋の中が見えづらい造り。宅配業者やフードデリバリーなどの利用機会も増えているので有難いですね。シューズボックスは収納力のあるトールタイプ。扉の姿見はお出かけ前の最終チェックに活躍してくれそうです。
廊下の途中には洗面室。
洗面室には洗面化粧台の他に洗濯機スペース、トイレ、浴室がまとまっていて脱衣所を兼ねています。洗濯機スペース上部には棚が付いているので洗濯洗剤などのランドリーグッズはこちらへどうぞ。トイレはINAX製の洗浄機能一体型。トイレットペーパーや掃除道具の収納に便利な吊戸棚も付いています。
浴室はベージュの木目パネルを使った柔らかい雰囲気。リラックスした気分でバスタイムを過ごせそうです。新規交換した給湯器には追い焚き機能が付いているのでお風呂の準備もワンタッチ。そのまま保温もしてくれるのでいつでも温かいお風呂に入れますよ。雨や花粉の季節に嬉しい浴室乾燥機付き!
こちらは約11.4帖のリビング・ダイニング・キッチン+約4帖の洋室。
仕切りの引き戸を開けてワンルームにした様子です。扉が隠れる引き込み式なのにくわえ、床にレールがないので一体感がありますね。普段はこんな感じで生活していて来客時などには扉を閉める・・・そんな使い方もよさそうです。
仕切り戸を閉めれば約4帖の独立した洋室に…
細長いお部屋ですがベッドルームになることを考えれば問題はなさそうです。収納はフルオープンになるクローゼット。収納物が確認しやすく「あれ?こんなの持ってたんだ!」なんてことも減ると思いますよ。
キッチンを奥まったところに設置し、凸凹のあまりない四角いスペースをリビングダイニングとして使えるようにしています。整った形だと数字以上に使い勝手がいいですからね。内装は中間調の木目をベースにシンプルな色使い。家具などのインテリアも合わせやすそうです。
キッチンは壁付けタイプ。
横向きなこととサイドに設置された腰壁によって、一般的な壁付けキッチンに比べるとキッチン内が目立ちにくくなっています。とはいえ、スライドキャビネットや吊戸棚、調理台奥の棚など収納は豊富ですからキッチンはなるべくキレイにしておきましょう!
最後にバルコニーのご紹介。
広さは5.40㎡、北東向き。レンガ調のタイルや洒落た手すりを使ったヴィンテージ感のあるバルコニーです。陽当たりはあまり期待できませんが、前が駐車場になっているので解放感はまずまずですよ。
・
以上でドミシール田園のご案内を終わります。
いかがでしたでしょうか??
田園調布駅から徒歩7分のマンションです。
リノベーション済みという事で室内はとてもキレイですよ (っ・ω・)っ
内見のご予約やご質問などございましたらお気軽にお問い合わせくださいませ。
ご連絡お待ちしております。
弊社、不動産Agent 六棒株式会社では、
□リノベーションマンションはほぼ全て仲介手数料無料!
□その他一般仲介物件は仲介手数料20%~30%OFF!
にてお取り扱いしております!※弊社の「Agent Fee=仲介手数料」についてはご案内、ご面談の際に営業担当者よりご説明いたします!
なるべく沢山のお部屋をホームページに掲載したいと思っておりますが、時間的成約もございますので、残念ながらご紹介できるお部屋の一部しか掲載できておりません。
このホームページに掲載中のお部屋、その他サイト等で気になるお部屋、街を歩いていて気になったマンション等々ございましたら是非、弊社営業部までご相談ください!
~不動産Agent 六棒株式会社の特徴~
・一般仲介物件の仲介手数料は20%~30%OFFにてご案内中です!
・リノベーションマンションについてはほぼ全て仲介手数料無料です!
・住宅ローンに自信あります!
・頭金10万円より購入できます。是非ご相談下さい!
・お部屋のご見学は車で2~3件まとめて案内します!
・物件数3000件以上、新築戸建、リノベ物件も多数ご用意しております!
過去に販売していたお部屋の概要 こちらのお部屋の販売は終了いたしました
| 価格 | -万円 |
| 面積 | 88.00㎡ |
| 間取り | 3bedrooms(3LDK) |
| 管理費 | 月額:17,220円 修繕積立金:17,600円 組合費:月額9,202円 |
| 所在階 | 3階 |
| お問い合わせ・ご内見のご予約はこちらからお気軽にどうぞ | |
間取りのご紹介です。3LDK、88.00㎡のファミリータイプ。
東南向きにつき陽当りも良好です!
平置き駐車場所有権(月額1,000円)もついているのでお車をお持ちの方にゼヒおすすめです。
インターホンはTVモニター付き。来訪者の顔もバッチリ確認できます。
お部屋に入る前に・・・
3階にはこんな開放的なスペースもありました。
陽ざしがサンサンと降りそそいで気持がいいです。
お部屋の中へ。玄関ホールは白基調の明るい空間。
トールサイズのシューズBOXは家族全員分の靴もしっかり収納できそうです。
玄関を上がると、左右へ廊下が伸びています。
廊下を右方向へ進むと洗面室、トイレと水廻りの設備があります。
廊下にはトビラ&棚付きの大きな収納も設置されていました。日用品のストックや掃除用具、長靴やサンダルなどシーズン物の靴の保管・・・マルチに活躍してくれそうです。
洗面室はバスルーム、洗面化粧台、洗濯機置場がまとまっています。
洗面カウンターが広々とした洗面化粧台。朝の身支度もスムーズに進められそうです。
洗面室を入って左側に洗濯機置場。
木目柄の壁パネルで落ち着いた印象のバスルーム。
追い焚き機能と浴室換気乾燥機能がついています。雨の日や部屋干し派の方もここで乾かせて便利。
トイレは洗面室を出てすぐ横にあります。
ウォシュレット付き。ペーパーのストックや掃除用具の保管に便利な吊戸棚も設置されています。
玄関を上がって正面にLDKの扉、左手に洋室の扉があります。
玄関から一番近い洋室は約6.2帖。
大きなクローゼットが設置されているので居住スペースも有効的に利用できそうです。
いよいよLDKへ。
LDKは約21.2帖!南西向きの大きな窓からは明るい光が差し込みます。
ご覧のとおり家具もゆとりを持って配置できる広さが魅力的です✧
キッチンは開放感のあるオープンキッチン。
家族と会話を楽しみながらお料理がしたい方におすすめです。
お子様が小さいうちは家事をしながらリビングで遊ぶ子供も見守れます。
食洗機、浄水器付き水栓とキッチンは設備も充実。
コンロ前には透明の油はねガードがついているので、火を使って料理している間でもリビングの様子が見えますよd(´▽`)
キッチンスペースの一番奥に冷蔵庫置場、その向かいにカウンターが設置されています。電子レンジや炊飯器などの調理家電もカウンターの上にスッキリ設置できそうです。
3部屋ある洋室のうち、2部屋がリビングに隣接してつくられています。
お子様が小さいうちはリビング側のお部屋を子供部屋に、成長したら玄関に一番近いお部屋へ変更と成長過程や生活シーンに合わせて使い分けてもよさそうです。
まずは写真の左側の洋室へ。
洋室2部屋目は約5.5帖。窓はありませんが、エアコンが設置できるようになっています。
クローゼットも設置されています。
洋室3部屋目は約7.1帖。洋室3部屋の中で一番広いお部屋です。
クローゼットも大容量。お部屋もすっきり片付きそうです。
最後にLDKと約7.1帖の洋室に面したバルコニーに出てみます。
扉は二重サッシ。
キレイにタイルが敷かれたバルコニーは約13.20㎡。
南西向きで陽当たり良好です☀
外は環八。車道に植えられた木がいい感じに目隠しになっています。二重サッシなのでお部屋の中に車の音は聞こえませんが、バルコニーに出れば多少聞こえます。音の感じ方は個人差がございますのでご内見の際にご確認くださいませ。
ドミシール田園いかがでしたでしょうか?
少しでも気になったらお早目のご内見をおすすめいたします!
お問合せはお電話03-5413-5336もしくは下の↓「内覧・資金相談会予約」からお気軽にどうぞ!









































































弊社 公式HP
六棒総合研究所
掲載予定物件
価格変更と販売終了物件
ハザードマップ検索
適合証明書.jp
Facebook
Twitter
Instagram