□□□□□□□□□□□□□□□□□□□□□□□□□□□□□□□□□□□□□□□
いつも弊社ホームページをご覧頂き誠にありがとうございます。
グランシティ上用賀ラ・アヴェニューはお陰様で販売を終了致しました。弊社問合せフォームにてご要望頂けましたら、当お部屋でキャンセル等が発生した場合、他のお部屋が販売になりました際にご紹介させて頂きます。
弊社では、仲介手数料無料orお値引(50%off、30%off、20%off)にて皆様のマイホーム探しのお手伝いをさせて頂きいております。グランシティ上用賀ラ・アヴェニューの類似物件や、お探しのご条件等をお聞かせ頂けましたらご条件に合ったお部屋をご紹介させて頂きます。また、ご来社頂き一緒に探させて頂くことも可能ですので、是非弊社問合せフォームよりお気軽にお問合せください。
不動産Agent 六棒株式会社
TEL:03‐5413‐5336
□□□□□□□□□□□□□□□□□□□□□□□□□□□□□□□□□□□□□□□
今回は最初に結論から(笑)
「こんな暮らしをしてみたいと思っておりました♪♪」
と大きな声でお伝えしたいのが、今回ご紹介する「グランシティ上用賀 ラ・アヴェニュー」です。
今回は、小田急線『千歳船橋』駅から出発しますが、お隣の『祖師ヶ谷大蔵』駅からも同じくらいの距離ですし、すぐ近くのバス停からバスで『渋谷』駅、『成城学園』駅にも行くことができるので、交通の便もいいですね♪
今回は『千歳船橋』駅からスタートして徒歩で向かってみたいと思います。
駅を出てすぐにはスーパー「オオゼキ」があります。他にも飲食店や商店の立ち並ぶ商店街もあるので、便利便利☆
ガード下には駐輪場もあるので、自転車通勤・通学もいいですね♪
駅から祖師ヶ谷大蔵駅方面に歩き、「千歳通り」を左折し、まっすぐ歩きます。
特に目立った商店や施設はありませんが、左右を緑に囲まれた気持ちのいい道を歩いていきます。
そこは住宅街。緑がいっぱいの公園や、菜園用のレンタル農園があり、街が自然と調和しているとてもいい雰囲気でした。
世田谷通りまで出たら、左に曲がります。
そこには『関東中央病院』という大きな総合病院がありました。このお隣が目指す『グランシティ上用賀 ラ・アヴェニュー』です!!
そこに『鎮座』している、という表現が当てはまるくらい、見事な外観です。まるで一流ホテルに来たような、そんな感じがありワクワクしてしまいました♪
ここに入っていくというだけで、なんだか誇らしげになってしまいそうな、そんな佇まいでした。
100戸の大規模マンションなので、宅配ボックスもとても大きく、しっかりと管理されていました。
中に入ると、コンシェルジュ付きのカウンターがあるので、とても安心♪
何より、リゾートホテルさながらの明るくオシャレなエントランスホールが期待をさらに大きくさせてくれますね☆
2階に上がると、ゲスト用の応接ルームと、“音楽室”がありました♪♪
楽器の演奏が趣味の方にはとてもありがたい施設ですね~☆☆
居住者の方であれば、どなたでも利用可能なようですよ♪
1階の中庭は中世ヨーロッパを思わせる凝ったデザインで、吹抜けになっているのでとても気持ちのいい雰囲気でした☆
ちなみに、立体駐車場の使用権は無料でついてきます!!車を持っている方にはとっても有り難いですね☆
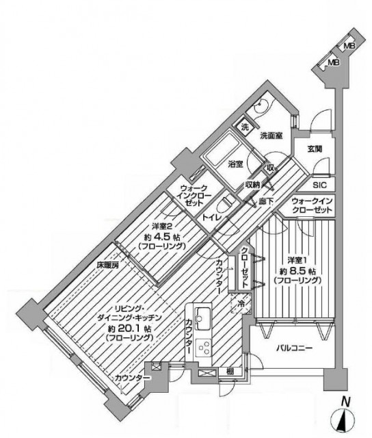
間取りのご紹介です。2LDK、82.08㎡ の角部屋です。
LDKはゆとりの約20.1帖!
室内はリフォーム工事を平成27年4月に終えたばかり。
とても綺麗な室内をご案内いたします♪
玄関を開けると、広い玄関ホールに正面のドアからは陽射しがまぶしい、とても明るいお部屋がひろがっていました。
玄関にあるドアを開けると、シューズインクローゼットがありました。大容量なので、たくさん靴をもっていて、置き場所に困っていた方もラクラク収納できそうです(*^^)v
また、玄関には人感センサーつきライトがあります。
夜に真っ暗なお家に戻って来ても、人感センサーが反応して、足元をパッと明るく照らしてくれます☆
廊下に上がってすぐ右側にサニタリールームがあります。
とても広く、換気・採光用に東側に窓が付いています。この窓の向こうはポーチ内なので、他の人がすぐ近くを通る事がなく安心です(^v^)
洗面台には大きな一枚鏡が設置されています。室内が広く、鏡も大きいので、お出かけ前に全身のチェックも出来て嬉しいですね☆
洗面台の隣に洗濯機置場があります。上部にカウンタースペースがありますので、収納用にお使い頂けます(^v^)
バスルームはとても広くゆったりとした造りなので、のんびりとバスタイムを過ごすことができそうです(#^.^#)
浴室換気乾燥機が付いていますので、これからの雨の季節や、台風の季節、雪の降る日にも安心して気兼ねなくお洗濯物を干すことができます!(^^)!
廊下の右側には扉が大きく左右に開く収納棚があります。棚板は移動できますので、大きな物もラクラク収納できそうです!(^^)!
廊下収納の隣にトイレがあります。上部に吊り棚があるので、いろいろ収納でき、トイレ内を清潔にしておくことができます。
廊下の左側には8.5帖の洋室があります。南向きの大きな窓があるので、室内はとても明るく開放的です☆
お部屋の北側にはウォークインクローゼットがあります。棚板とハンガーパイプがL字型になっていて、洋服がたくさん掛けられますし、その他の物もたくさん収納できそうです(^o^)
お部屋の西側にも大きなクローゼットがあります。奥様は先ほどのウォークインクローゼット、ご主人様がこちらのクローゼットと、使う人で分けてもいいですし、夏物・冬物と季節で分けることも出るるので、とても便利です(^v^)
このお部屋からはバルコニーに出ることができます。
バルコニーへの窓は左右に大きく開くので、天気のいい日にはこの様に窓を開けておくと、とても気持ちのいい風が入って来そうですね♪
バルコニーにはもう一つドアがありますが、こちらはキッチンに繋がっています。
また、ドアの上の辺りにライトが付いていますので、夜でもバルコニーを明るく照らせます。
たまには夜にバルコニーにテーブルと椅子を置いて、外でディナーというのも気持ちいいですよ(*^。^*)
廊下に戻り、廊下の突き当りにはリビングダイニングキッチンが広がります。
リビングの窓は南西向きなのでとても明るく、室内は開放的です☆
そして、なんといっても20.1帖という広さがとても魅力的です(*^。^*)
リビングダイニングキッチンに入るドアのすぐ左にはカウンターと収納棚があります。
固定電話をお持ちの方はこちらを電話台にお使いください♪♪
収納棚はご家族みなさん共有の物を入れてください(^^)/
キッチンは南側、東側に窓があってとても明るく広く感じられます☆
キッチンカウンターも大きくお料理がしやすそう(*^^)v
浄水器付水栓と大きなシンク、3口のコンロがお料理をより快適にできるサポートをしてくれます☆
収納力も◎なので、お手持ちの調理器具がたくさん収納できますよ(^o^)
東側の壁上部には吊り棚もあるので、食材のストック庫としてもお使い頂けます☆
リビングダイニングにある引戸を開けると、4.5帖の洋室がありました。
北側にはウォークインクローゼットがあります。縦に長いウォークインクローゼットにはクルリとハンガーパイプ、棚板が取り付けられているので、収納力◎です!!
最後にもう一度リビングです。リビングには床暖房が設置されているので、冬は足元からポカポか温めてくれて、エアコンいらずかもしれません(*^^)v
南側の大きな窓にはカウンターがあるので、様々な観葉植物を置いておくことができます。
ブラウンと白のリビングダイニングキッチンに彩りを加えてみてください(^^)/
いかがでしたでしょうか。
まるでホテルの様な共用部を抜けると、広くてゆったりとしたお部屋が待っている。
誰もが羨むような、ゆったりとした優雅な暮らししてみませんか??
皆さまからのお問い合わせ、お待ちしております。
過去に販売していたお部屋の概要 このお部屋の販売は終了いたしました。
| 価格 | -万円 |
| 面積 | 82.73㎡ |
| 間取り | 3bedrooms(3LDK) |
| 管理費 | 月額:33,920円 修繕積立金:月額14,060円 |
| 所在階 | 2階 |
| お問い合わせ・ご内見のご予約はこちらからお気軽にどうぞ | |
さて、ここでお部屋の間取りを紹介します。3LDK 82.73㎡。
お部屋へと続く廊下からも中庭を見ることができ、ホテルの様な雰囲気をここでも味わうことが出来ると思います。全てのお部屋にポーチがついていて、高級感がありました(^v^)
玄関に入ると、重厚感のある茶色いドアとフローリングが印象的なお部屋でした。
玄関右側には大きなシューズボックスがあります。3~4人分の靴はしっかり収納できそう(^^)/
玄関からすぐ左側のお部屋が7.0帖の洋室です。
収納力たっぷりのウォークインクローゼットが付いているので、荷物をここに入れてしまえば、お部屋は広々ゆったり使えそうです♪
玄関からすぐ右側は6.5帖の洋室です。こちらにもウォークインクローゼットがついているので、先程の7.0帖とご夫婦それぞれのお部屋にするもよし、お子様のいらっしゃるご家族なら、どちらかを寝室、どちらかを子供部屋にするもよし、いろいろとイメージできそうですね♪
再度廊下に戻り、6.5帖のお部屋の隣がウォシュレット付トイレです。上にある収納棚を有効に使えば、スッキリお使い頂けそうですね(^o^)
廊下を挟んで、トイレの正面がサニタリールームです。
サニタリールームには、洗濯機置場、バスルームが一緒になっているので、洗濯の時には何かと便利そう☆
大きな鏡付きの洗面台はまるでホテルのようでした☆カウンターが広々しているので、お出かけ準備の時には重宝しそうですね(^^)/
浴室乾燥機付のバスルームはピンクのタイルで可愛らしい雰囲気でした☆
バスタブも大きいのでバスタイムも楽しく過ごせそう♪
廊下の突き当り、リビングに入るまえに収納棚がありました。
小さいながらも背の高い棚なので、食材のストックルームとしても使えますし、小物類の収納にも役に立ちそうですね☆
リビングに入ると、入ってすぐ左側に大きな収納棚がありました。大容量スペースなので、日頃お使いになる掃除機等を「ポン」っと入れておけそうですね!
その向かい側にはインターフォンの液晶パネルがありました。その下には小さめの棚が備え付けてあります。
リビングはうれしいエアコン付なので、ご入居日から快適な生活を送れそう♪
リビングをくるっと回り込むとキッチンスペースです。
広い空間に欧米のキッチンを思わせる大きなシステムキッチン。奥様の腕が鳴りますね(^^)/
このキッチンには、食洗機とオーブンレンジが備え付けてありました。
旦那さんの為に、お子さんの為に、招待したお友達の為に、美味しい料理を作ってあげて下さい(*^。^*)
リビングの隣りには6.0帖の和室があります。
押入の収納力も魅力ですが、南側の壁面に、ハンガーをかけられる様になっていました。
ちょっとした事ですが、嬉しい心遣いですね☆
リビングの端に玄関の様なスペース発見!!なんと小さいながらもしっかりとしたシューズボックスまで付いているではありませんか!!
外に出てみると、、、
ポーチとバルコニーでした。
残念ながらまだリフォーム途中で、床が出来ていませんでしたが、きっとここもオシャレな空間になるんでしょうねー(*^。^*)
バルコニーから上を見上げると、ハンドル操作で開閉できる屋根を発見♪休日の晴れた日に、屋根を出してここでティータイムを楽しんだら、気分はまるでヨーロッパですね(#^.^#)
・・・!?ポーチの先に下に降りる階段を発見☆正面の扉を開けてみると、、、
関東中央病院側の道路に直接出られるようになっていました♪
このお部屋専用のエントランスなので、これは2階ならではの特権かもしれませんね(^v^)
いかがでしょうか。まるでホテルの様な空間に、ホテルの様なお部屋。
お仕事帰りのあなたをこの空間が迎えてくれる、休日のゆったりとした時間を演出してくれる、そんなワンランク上の生活ができそうな「グランシティ上用賀」。
最後にもう一度いいます。
「こんな暮らしをしてみたいと思っておりました♪♪」
皆様のご内見、お待ちしております。




























































































弊社 公式HP
六棒総合研究所
掲載予定物件
価格変更と販売終了物件
ハザードマップ検索
適合証明書.jp
Facebook
Twitter
Instagram