・
□□□□□□□□□□□□□□□□□□□□□□□□□□□□□□□□□□□□□□□
仲介手数料無料でご好評頂いております不動産Agent 六棒株式会社です。
弊社ではリノベーションマンションはほぼ全て仲介手数料無料にてお取り扱いして
おります。気になるお部屋がございましたら是非お問い合わせください!
駒場ネオパレスは…
正規仲介手数料をお支払いの場合と比べ約190万円お得にご購入頂けます!
□□□□□□□□□□□□□□□□□□□□□□□□□□□□□□□□□□□□□□□
・
東急田園都市線「池尻大橋駅」より徒歩1分
リノベーションマンション駒場ネオパレスのご紹介です。
おはようございます!!池尻大橋と言えば池尻ジャンクション
東西方向の「首都高3号渋谷線」と、地下を南北に走っている
「首都高中央環状線」を結ぶこの建造物は、近くで見るとその巨大さに圧倒されます!
□□□□□□□□□□□□□□□□□□□□□□□□□□□□□□□□□□□□□□□
★★★【駒場ネオパレス】周辺のハザードマップをCHECK!!★★★
お部屋の記事を読む前に…!周辺のハザードマップをチェックしておきませんか!
駒場ネオパレスのハザードマップは★こちらから…どうぞ★
□□□□□□□□□□□□□□□□□□□□□□□□□□□□□□□□□□□□□□□
ハザードマップもご確認いただきましたので、次は街の紹介です!
高架下部分には生活に便利な施設がたくさんあるんですよ
郵便局に病院、ドラッグストア、スーパーなど。
地上の246号線沿いは様々なお店が並んでいます。
お気に入りのお店を見つけるのが楽しくなりそうです。
ランチタイムは多くのサラリーマンでにぎわっています!
目黒川は246を超えると地下に入り、上が緑道になっています。
都会の緑道といった感じがします!
緑道から空を見上げると大きなマンションが視界に入ってきます。
ちょうど真ん中に写っている建物が今回ご案内する駒場ネオパレス!
こちらは池尻大橋駅の地上出口とマンション前になります。
歩道を挟んだ先が駅入り口ですよ(゚д゚)!近い・・・
さすがの徒歩1分です。改札からなら1分くらい、出口からなら10秒ほどです。
また、渋谷駅行きのバス停も目の前にあります。
電車もバスもドアtoドア\(^o^)/
このマンションの変わった点は、お部屋によって住所が違う所です。プレートにもある通り、世田谷区池尻と目黒区大橋の二種類。普通はエントランスの場所で統一される事が多いんですけどね。学区なども変わってくるのでご注意を!
高級感あるエントランスですね!!
階段もないので出入りもしやすくベビーカーをお使いのご家族などに優しいマンションです。
【築年月:1969年5月】
期待高まる中、さっそくお邪魔いたします!!!
入って正面に管理員室があります。
ご挨拶をして、いざ中へε=ε=(ノ≧∇≦)ノ
鉄骨鉄筋コンクリート造、地下1階付地上11階建て
管理会社は日本ハウズイングです。【全部委託:通勤】
明るいホールを抜けていくとエレベーターが2基あります。
総戸数124戸のビッグコミュニティです。
お部屋に行く前に駐車場のご案内!!
マンションの1階は駐車場になっています。
空き状況は随時変わるのでご希望の方はお早めに(”◇”)ゞ
今回ご紹介するお部屋は10階。専有面積50.76㎡の1LDK。お一人暮らしやDINKSの方にお勧めのお部屋です。
間取り図はコチラ ↓ ↓ ↓
※間取り図は別タブで開きますので、確認しながらご覧いただくことができます。
では行ってみましょう!
【玄関廊下:木目と白の落ち着いた雰囲気】
【洗面室:三面鏡付き洗面台・洗濯機スペース】
【浴室:追い焚き機能・浴室換気乾燥機付き】
【トイレ:洗浄機能一体型】
【LDK:約10.5帖・窓なし】
【キッチン:壁付けタイプ・食器洗浄乾燥機付き・浄水機能一体型水栓】
【洋室:約6帖・南東向きバルコニー・クローゼット付き】
【LDK+洋室:可動間仕切りを全開にすれば1Rとして使用可能】
・
以上で駒場ネオパレスのご案内を終わります。
いかがでしたでしょうか??
池尻大橋駅から徒歩1分のマンションです。
リノベーション済みという事で室内はとてもキレイですよ (っ・ω・)っ
内見のご予約やご質問などございましたらお気軽にお問い合わせくださいませ。
ご連絡お待ちしております。
弊社、不動産Agent 六棒株式会社では、
□リノベーションマンションはほぼ全て仲介手数料無料!
□その他一般仲介物件は仲介手数料20%~30%OFF!
にてお取り扱いしております!※弊社の「Agent Fee=仲介手数料」についてはご案内、ご面談の際に営業担当者よりご説明いたします!
なるべく沢山のお部屋をホームページに掲載したいと思っておりますが、時間的成約もございますので、残念ながらご紹介できるお部屋の一部しか掲載できておりません。
このホームページに掲載中のお部屋、その他サイト等で気になるお部屋、街を歩いていて気になったマンション等々ございましたら是非、弊社営業部までご相談ください!
~不動産Agent 六棒株式会社の特徴~
・一般仲介物件の仲介手数料は20%~30%OFFにてご案内中です!
・リノベーションマンションについてはほぼ全て仲介手数料無料です!
・住宅ローンに自信あります!
・頭金10万円より購入できます。是非ご相談下さい!
・お部屋のご見学は車で2~3件まとめて案内します!
・物件数3000件以上、新築戸建、リノベ物件も多数ご用意しております!
過去に販売していたお部屋の概要 こちらのお部屋の販売は終了いたしました
| 価格 | -万円 |
| 面積 | 50.76㎡ |
| 間取り | 1bedrooms(1SLDK) |
| 管理費 | 月額14,620円 修繕積立金:月額8,730円 |
| 所在階 | 2階 |
| お問い合わせ・ご内見のご予約はこちらからお気軽にどうぞ | |
ここで間取り図のご紹介です。
※間取り図は別タブで開きますので、見比べながらご覧いただくことができます。
今回ご紹介するお部屋は2階、専有面積50.76㎡の1SLDK。おひとり暮らしやDINKSの方にお勧めのお部屋です。では、早速行ってみましょう!
【玄関廊下】
玄関から伸びた廊下はシンプルな色使いで明るい印象です。
【玄関廊下】
たっぷり収納できるシューズインクローゼット付きで玄関はいつもスッキリ!お掃除もしやすくなっています。SICの隣には奥行きのある物入れがあって季節のものやスポーツ用品などの置き場に困りません。
【サービスルーム】
サービスルームとは、採光などの関係で法律上「洋室」と呼べないお部屋のこと。あくまでも法律上なので居室として使えることがほとんどです。こちらのお部屋も約3.5帖と多少コンパクトながらクローゼットの付いた立派な洋室です。
【洗面室】
洗面台と浴室をまとめたスペースです。洗面台は身だしなみを整えるのに便利な三面鏡付き。鏡の裏がキャビネットになっているので収納面でも助かります。
【浴室】
1216サイズの浴室は、お部屋のイメージに合わせた木目パネルを使用していてスタイリッシュです。広見え効果のあるワイドミラーもポイント。浴室換気乾燥機付きなので、梅雨の時期のお洗濯にも困ることもありません。
【トイレ】
トイレは洗浄機能付き。一体型なので掃除がしやすくスッキリとしています。トイレットペーパーや掃除道具の収納に使える吊り戸棚付きです。
【LDK】
約12.2帖のリビングダイニングキッチンは、南東向きバルコニーに面したお部屋です。天井に木目を使ったナチュラルな雰囲気でとても居心地が良さそうですね。
【LDK】
和を感じるアクセントウォールが素敵ですね。家具付き(小物を除く)なのでこのままのイメージで新生活を始められますよ。
【LDK】
デスクや棚が備え付けられたDENスペースはちょっとした書き物や在宅ワークに便利です。デスクの背面には飾り棚付き。
【キッチン】
フローリングに合わせた木目パネル使用のシステムキッチンは、開放的なカウンタータイプでオシャレな空間に馴染んでいます。食器洗浄乾燥機付きなので、食後はみんなでのんびり過ごせます。
【洋室】
約4.6帖の洋室は、LDKと同じ南東向きでバルコニーに面したお部屋です。収納は収納力抜群の約1.3帖のウォークインクローゼット!ハンガーパイプに加えて棚や引き出しが付いたマルチタイプなのでお部屋に家具を置かずに済みそうです。
・
以上で駒場ネオパレスのご案内を終わります。
いかがでしたでしょうか??
池尻大橋駅から徒歩1分のマンションです。
リノベーション済みという事で室内はとてもキレイですよ (っ・ω・)っ
内見のご予約やご質問などございましたらお気軽にお問い合わせくださいませ。
ご連絡お待ちしております。
弊社、不動産Agent 六棒株式会社では、
□リノベーションマンションはほぼ全て仲介手数料無料!
□その他一般仲介物件は仲介手数料20%~30%OFF!
にてお取り扱いしております!※弊社の「Agent Fee=仲介手数料」についてはご案内、ご面談の際に営業担当者よりご説明いたします!
なるべく沢山のお部屋をホームページに掲載したいと思っておりますが、時間的成約もございますので、残念ながらご紹介できるお部屋の一部しか掲載できておりません。
このホームページに掲載中のお部屋、その他サイト等で気になるお部屋、街を歩いていて気になったマンション等々ございましたら是非、弊社営業部までご相談ください!
~不動産Agent 六棒株式会社の特徴~
・一般仲介物件の仲介手数料は20%~30%OFFにてご案内中です!
・リノベーションマンションについてはほぼ全て仲介手数料無料です!
・住宅ローンに自信あります!
・頭金10万円より購入できます。是非ご相談下さい!
・お部屋のご見学は車で2~3件まとめて案内します!
・物件数3000件以上、新築戸建、リノベ物件も多数ご用意しております!
過去に販売していたお部屋の概要 こちらのお部屋の販売は終了いたしました
| 価格 | -万円 |
| 面積 | 64.85㎡ |
| 間取り | 2bedrooms(2LDK) |
| 管理費 | 月額16,800円 修繕積立金:月額10,030円 |
| 所在階 | 2階 |
| お問い合わせ・ご内見のご予約はこちらからお気軽にどうぞ | |
ここで間取り図のご紹介です。
※間取り図は別タブで開きますので、間取り図と記事や写真を照らし合わせながらご覧いただくことができます。
□□□□□□□□□□□□□□□□□□□□□□□□□□□□□□□□□□□□□□□
★★★【駒場ネオパレス】周辺のハザードマップをCHECK!!★★★
お部屋の記事を読む前に…!周辺のハザードマップをチェックしておきませんか!
駒場ネオパレスのハザードマップは★こちらから…どうぞ★
□□□□□□□□□□□□□□□□□□□□□□□□□□□□□□□□□□□□□□□
お部屋は2階、間取りは2SLDK、専有面積は64.85㎡。サービスルームも十分お部屋として使えますので、実質3LDKのファミリータイプのお部屋です。
ちなみに、こちらのお部屋の住所は世田谷区池尻になります。
では早速行ってみましょう!
エレベーターで2階に上がってきました。階段もエレベータのすぐそばにありますので、エレベーターが混み合っている場合は階段も使えます。
現在大規模修繕工事中です!
玄関前に到着!
インターホンはモニター付。お部屋にいながら、来訪者が誰なのかモニター越しに確認できるので、防犯面でも安心できます。
ではでは、お部屋の中をご案内していきましょう!お邪魔しまーす!!
最近流行りの色味のフローリングに白いクロスがピッタリの玄関です。
廊下の先が見えないようになっているので、玄関先で生活感が溢れ出るのを防ぐことができます!笑
玄関の照明は人感センサー付。人の動きを感知して照明を自動でon・offしてくれるので、暗がりの中スイッチを探す必要がありません!また、消し忘れ防止にも有効です!人感センサーにお任せしておけば、省エネにも繋がります。
右の写真をご覧いただければお分かりになるかと思いますが、シューズボックスの扉は一部姿見になっています!これがあれば、お出かけ前の身だしなみチェックもバッチリです。
シューズボックスはトール型。一般的なご家庭にはちょうど良い大きさです。靴がお好きなご家族ですと、もしかしたら足りないかも?!
しかしながら、玄関を上がった先にも収納がありますので、こちらも併用すれば大体は収まりそうですよ。
変形の廊下を先に進んでいきます。
正面にあるスリット入りの扉を開けて行きますよ〜!
あ、ちらっとキッチンが見えてきましたね♪
こちらが約12.5帖のリビングダイニングキッチンです。キッチンの位置が面白いですね!
リビングダイニング部分は長方形の空間です。
全ての居室がこのリビングダイニングを中心に出入りする形となっておりますので、もしかしたら家具のレイアウトに利用可能な壁面が少なく感じられるかもしれません。
インターホンのモニターはニッチ内に設置されています。こちらのニッチは家族みんなの携帯端末置場としても便利に使えそうです。
窓の外は綺麗なブルーの外壁。壁までは少し距離があるので採光通風にも役立ちそうです。足場があるので今は窓を開けてはおけませんが、もう少しの辛抱ですよ!
隣合う外壁がブルーだと、まるで空か海のようにも思えてきます![]()
キッチン越しにリビングダイニングを眺めると、窓から見える緑が心地よく感じます。
天井にはダウンライトが設置されていて、空間をスッキリと見せてくれます。
キッチンをご紹介します。
白っぽい木目調のシンプルなキッチンです。壁面はお掃除しやすいパネルが採用されています。
キッチンキャビネットは引出し収納です。独立型キッチンなので、吊戸棚も設置されております。
コンロは3口、魚焼きグリル付。レンジフードは薄型、幕板は扉の面材と統一されていて、特有の圧迫感は感じられません。
キッチンの水栓はシャワーにも切り替え可能なタイプです。ご覧の通り、蛇口が引き出せるのでお掃除や大きな野菜等洗うのに大助かりです。
キッチンの空間は変形なので、冷蔵庫や食器棚をレイアウトするのに工夫が必要かもしれません…しかし、そこが空間のオリジナリティにつながる楽しさもあります。
バルコニーに向かって左側のお部屋をご案内しましょう!
こちらは約5.2帖の洋室です。目線に道路の案内板が見えます!この景色もなかなか良い感じです。
窓の向かい側の壁面にはクローゼットがあります。
ちょうど首都高と向かい合う場所にクローゼットがレイアウトされています。首都高といっても街路樹もあり、意外と都会のオアシス的な景色かも?
クローゼットは枕棚とハンガーパイプ付です。これに市販の衣類ボックス等を合わせてカスタマイズを楽しみましょう♪♪
続きましてバルコニーに向かって右側のお部屋をご案内します。
約5.8帖の洋室です。こちらも首都高viewです!
リビングダイニングとは引き戸で仕切られています。壁の一面にはグレーのアクセントクロスが採用されていてオシャレですね![]()
引き戸は壁側に完全に引き込めるようになっています。残念ながら引き戸はハンガータイプではありませんが、こちらのお部屋をリビングダイニングと一体化してお使いいただくことは可能です。オープンな子供部屋としても良さそうです。
リビングダイニングキッチンと洋室を一体化すると、広さ的には約18.3帖の広々とした空間が出現します。
バルコニー側からお部屋を一望してみました。やはり引き戸を開け放つと開放感があります。
最初にご紹介した洋室の並びに、もう一部屋居室がありますので行ってみましょう!
こちらは約5.0帖の洋室です。この洋室は中居室なので窓はありません。
建具もクロスも白に統一されているので、窓はありませんが圧迫感もなく、実際よりも広く見えるかもしれません。
クローゼットもしっかりと確保されています。
こちらの洋室も引き戸が採用されており、壁側に引き込めるようになっております。なので、リビングダイニングとこちらの洋室を一体化してご利用いただくこともできます。
引き戸で仕切られているお部屋が複数あると、空間の使い方も何通りにもなって、暮らし始めてからも飽きることがないかもしれません!模様替えが楽しみになりそうですね。
さて、廊下に戻って水廻りをご案内して行きます。
まずは、廊下を進んで行った突き当たりにある扉から。こちら、廊下の床面と段差がありますので、慣れるまでは躓かないように注意が必要です。
トイレです。壁の一面にアクセントクロスが採用されています。
トイレ上部には吊戸棚付。こちらにはトイレットペーパーのストックを収納しておくことができます。
ペーパーホルダーはダブルのカウンター付。トイレ内にちょっとしたカウンターがあると、携帯端末を持って入った際に置いておくのに便利にお使いいただけます。
もちろん、温水暖房洗浄便座も完備されていますよ!
トイレの手前には洗面室があります。
洗面化粧台・洗濯機置場・ユニットバスといったシンプルな構成の洗面室です。
こちらが洗面化粧台です。スッキリとしたデザインですね。
洗面化粧台の水栓は三面鏡下に設置されています。水を出したり止めたりする時に、手からの水滴が洗面ボウルにダイレクトに落ちてくれるので、洗面周りを無駄に濡らしてしまうことがありません。蛇口は引き出せますよ!これで洗面ボウルのお掃除も心配いりません。
ユニットバスです。濃い木目調のパネルが落ち着いた雰囲気を醸し出しています。
シャワーヘッドはスライドバーに設置されているので、高さ調整は自由自在です。
浴槽は追い焚きできます!
体にフィットするようにデザインされているような形状の浴槽。
すっぽり入ればでたくなくなりそうです笑
浴室には浴室暖房換気乾燥機が設置されています。梅雨時や冬場等洗濯物が乾きにくい季節も、これさえあればカラッと乾かせてしまいます。
リビングダイニングに戻りまして、最後にバルコニーをご紹介して終わります。
バルコニーは首都高側にあります。
奥行きは人一人が通るのに十分なくらいです。洗濯物も干せそうですが、排気ガスが気になる方は浴室で乾かす方がベターかもしれません。
この眺め、池尻大橋らしくってわたしは結構好きです!
街路樹の銀杏が良い借景になってくれます。
バルコニーのすぐ下に駅の出入口があります!来客の際は思わずここから手を振ってしまいそう…
・
以上で駒場ネオパレスのご案内を終わります。
いかがでしたでしょうか??
池尻大橋駅から徒歩1分のマンションです。
リノベーション済みという事で室内はとてもキレイですよ (っ・ω・)っ
内見のご予約やご質問などございましたらお気軽にお問い合わせくださいませ。
ご連絡お待ちしております。
□□□□□□□□□□□□□□□□□□□□□□□□□□□□□□□□□□□□□□□
★★★【駒場ネオパレス】周辺のハザードマップをCHECK!!★★★
お部屋のご購入前に…!周辺のハザードマップをチェックしておきませんか!
駒場ネオパレスのハザードマップは★こちらから…どうぞ★
□□□□□□□□□□□□□□□□□□□□□□□□□□□□□□□□□□□□□□□
弊社、不動産Agent 六棒株式会社では、
□リノベーションマンションはほぼ全て仲介手数料無料!
□その他一般仲介物件は仲介手数料20%~30%OFF!
にてお取り扱いしております!※弊社の「Agent Fee=仲介手数料」についてはご案内、ご面談の際に営業担当者よりご説明いたします!
なるべく沢山のお部屋をホームページに掲載したいと思っておりますが、時間的成約もございますので、残念ながらご紹介できるお部屋の一部しか掲載できておりません。
このホームページに掲載中のお部屋、その他サイト等で気になるお部屋、街を歩いていて気になったマンション等々ございましたら是非、弊社営業部までご相談ください!
~不動産Agent 六棒株式会社の特徴~
・一般仲介物件の仲介手数料は20%~30%OFFにてご案内中です!
・リノベーションマンションについてはほぼ全て仲介手数料無料です!
・住宅ローンに自信あります!
・頭金10万円より購入できます。是非ご相談下さい!
・お部屋のご見学は車で2~3件まとめて案内します!
・物件数3000件以上、新築戸建、リノベ物件も多数ご用意しております!
過去に販売していたお部屋の概要 こちらのお部屋の販売は終了いたしました
| 価格 | -万円 |
| 面積 | 58.32㎡ |
| 間取り | 2bedrooms(2LDK) |
| 管理費 | 月額16,800円 修繕積立金:月額10,030円 |
| 所在階 | 7階 |
| お問い合わせ・ご内見のご予約はこちらからお気軽にどうぞ | |
ここで間取り図のご紹介です。
※間取り図は別タブで開きますので、間取り図と記事や写真を照らし合わせながらご覧いただくことができます。
お部屋は7階、間取りは2LDK、専有面積は58.32㎡。角部屋で全居室に窓があります。シングルからファミリーまで、幅広くお使いいただけるサイズ感ですね。
ちなみに、こちらのお部屋の住所は目黒区大橋になります。
□□□□□□□□□□□□□□□□□□□□□□□□□□□□□□□□□□□□□□□
★★★【駒場ネオパレス】周辺のハザードマップをCHECK!!★★★
お部屋の記事を読む前に…!周辺のハザードマップをチェックしておきませんか!
駒場ネオパレスのハザードマップは★こちらから…どうぞ★
□□□□□□□□□□□□□□□□□□□□□□□□□□□□□□□□□□□□□□□
では早速行ってみましょう!
7階までエレベーターで上がります。実はこのマンション、只今大規模修繕工事中。廊下も工事途中だと思われます。ただ、足場を崩し始めていたので終わりも近そうですよ。
外廊下からの眺め。遠くまで見渡せてしまいます!
養生中ですが、こちらが今回ご紹介するお部屋の玄関です。インターホンはモニター付。管理員さんがいて管理体制も良好な上、玄関前もモニター付でセキュリティ面はバッチリです!
早速お部屋の中にお邪魔してみましょう♪♪
わー
ピカピカで広々とした玄関がお迎えしてくれました。圧巻の広さです。
玄関の照明は人感センサー付。これくらい広い玄関ですと、ないと困ってしまう設備ですね。スイッチを消しに行くのにも玄関のタタキ部分までおりていかないといけませんので、人感センサーが付いていて良かった!といった感じです。
玄関扉を開けて左手にはシューズクローゼットがあります。奥行きもしっかりあって、更には窓もあるので、空気がこもる場所に収納しておきたくないものはこちらに収納しましょう!時々窓を開けて換気ができる収納なんて、マンションではなかなか出会えませんよ!
玄関正面にはトール型のシューズボックス、玄関のタタキ部分にはカウンタータイプのシューズボックスがあります。カウンタータイプのシューズボックス横にも窓があり、玄関の明かり取りや空気を入れ替えたい際に大活躍してくれます。
正面のシューズボックスには姿見が設置されています。本日のコーディネートを玄関で撮影してSNSにアップしちゃったりして![]()
廊下を進んで、ガラス入りの扉を開けてみます!
スッキリとした空間が目に飛び込んできました。
こちらは約14.6帖のリビングダイニングキッチンです。細長い空間は壁面量も多く、家具のレイアウトがしやすそうです。
入り口と反対側奥にはキッチンが見えますね!
まずはキッチンをご紹介しましょう!
独立型のキッチンはお料理に集中したい方にオススメです。
キッチンのキャビネットは引出し収納となっております。また独立型キッチンならではの吊戸棚収納もあります。
コンロは3口魚焼きグリル付。コンロは温度設定可能なタイプです。
レンジフードは薄型で、圧迫感がありません。
食器洗浄乾燥機も完備。食後の面倒なお片づけはこちらにお任せして、家族団欒の時間を楽しんじゃいましょう♪
キッチンの水栓はシャワーにも切り替え可能、もちろん蛇口が引き出せるタイプでシンクのお掃除も楽々行えます。
では、リビングダイニングに戻りまして、バルコニーに近い扉を開けて室内をご紹介していきましょう!
こちらは約5.6帖の洋室です。角住戸・二面採光のお部屋でとても明るいです。
バルコニーに出入り可能な掃き出し窓と腰高窓があります。
掃き出し窓側からお部屋を眺めるとこんな感じです。
正面にクローゼットが見えます。
クローゼットはしっかりとした大きさが確保されているので、ある程度の洋服や日用品は収納できてしまいそうです。
窓の外には目黒川緑道越しの開放的な眺めが広がっています。気持ちの良い眺めです。
再びリビングダイニングに戻り、キッチン側にある扉を開けてみます!
こちらは約3.7帖の洋室です。このお部屋にも腰高窓があります。北向きですが明るいですよ!
ちょっとしたものを収納するのに便利なサイズのクローゼットが確保されています。
こちらのお部屋からの眺めも、もちろん開放的で気持ち良いです!
さて、廊下に戻ってきました。水廻りをご案内していきましょう!
リビングダイニングの出入り口の一番近くにある扉の中からご紹介します。
こちらはトイレです。シンプルでシャープなペーパーホルダーがカッコよくて、個人的には気になります…
便座は温水暖房洗浄機能付。この設備は今やなくてはならない存在ですよね!
吊戸棚も同様、トイレの必須アイテムです!笑
次にシューズクローゼット近くの扉をご案内します。
こちらは洗面室でした!
白とグレーで統一された、シンプルなインテリアの洗面室。
洗面化粧台の三面鏡裏は全て収納となっております。
洗面化粧台のキャビネット部分は引出し収納です。それぞれ合わせるとそれなりに収納力があります。
洗面化粧台の水栓は三面鏡下に設置されています。このタイプですと水を出したり止めたりする時に、手からの水滴が洗面ボウルにダイレクトに落ちてくれるので、洗面周りを無駄に濡らしてしまうこともありません。
蛇口は写真の通り引き出せますので、お掃除の際も困りませんよ!
洗面化粧台の向かい側は浴室です。
グレーの大理石調パネルが高級感を醸し出しています。
照明がLED化されたメリットが浴室でも享受できるようになりました。
なんと、ボタン一つで照明の色を変えることができるのです!
元気な時は白っぽい色で、疲れた時は温かみのある色で。お風呂時間が更に楽しくなりそうです。
浴槽は追い焚き機能付き。帰宅時間がバラバラのご家族でも、追い焚きボタンを押すだけで、暖かいお湯が整います。
シャワーヘッドはスライドバーに設置されており、高さ調整が自由自在です。
浴室暖房換気乾燥機も設置されております。寒〜い季節も、これさえあれば、入浴前に暖房機能で浴室を温めてから入浴可能です。
最後にバルコニーをご案内します。
約8.10㎡の広々バルコニー!一部格子手摺の部分からはバルコニー内の通風も期待できます。ただ、雨の日は雨が降り込んでしまうので気をつけてください。
右側はビルが建ち並んでいます。ただこちらには玉川通りと高速が通っていますので、防音壁だと思えば丁度いいのかもしれませんね。
左側には緑道の緑が見えます。都心のオアシスのようです。
・
以上で駒場ネオパレスのご案内を終わります。
いかがでしたでしょうか??
池尻大橋駅から徒歩1分のマンションです。
リノベーション済みという事で室内はとてもキレイですよ (っ・ω・)っ
内見のご予約やご質問などございましたらお気軽にお問い合わせくださいませ。
ご連絡お待ちしております。
□□□□□□□□□□□□□□□□□□□□□□□□□□□□□□□□□□□□□□□
★★★【駒場ネオパレス】周辺のハザードマップをCHECK!!★★★
お部屋のご購入前に…!周辺のハザードマップをチェックしておきませんか!
駒場ネオパレスのハザードマップは★こちらから…どうぞ★
□□□□□□□□□□□□□□□□□□□□□□□□□□□□□□□□□□□□□□□
弊社、不動産Agent 六棒株式会社では、
□リノベーションマンションはほぼ全て仲介手数料無料!
□その他一般仲介物件は仲介手数料20%~30%OFF!
にてお取り扱いしております!※弊社の「Agent Fee=仲介手数料」についてはご案内、ご面談の際に営業担当者よりご説明いたします!
なるべく沢山のお部屋をホームページに掲載したいと思っておりますが、時間的成約もございますので、残念ながらご紹介できるお部屋の一部しか掲載できておりません。
このホームページに掲載中のお部屋、その他サイト等で気になるお部屋、街を歩いていて気になったマンション等々ございましたら是非、弊社営業部までご相談ください!
~不動産Agent 六棒株式会社の特徴~
・一般仲介物件の仲介手数料は20%~30%OFFにてご案内中です!
・リノベーションマンションについてはほぼ全て仲介手数料無料です!
・住宅ローンに自信あります!
・頭金10万円より購入できます。是非ご相談下さい!
・お部屋のご見学は車で2~3件まとめて案内します!
・物件数3000件以上、新築戸建、リノベ物件も多数ご用意しております!
過去に販売していたお部屋の概要 このお部屋の販売は終了いたしました。
| 価格 | -万円 |
| 面積 | 47.52㎡ |
| 間取り | 1bedrooms(1LDK) |
| 管理費 | 月額13,690円 修繕積立金:月額8,170円 |
| 所在階 | 5F |
| お問い合わせ・ご内見のご予約はこちらからお気軽にどうぞ | |
ここで間取り図のご紹介です。
※間取り図は別タブで開きますので、確認しながらご覧いただく事が出来ます。
今回のお部屋は、1LDK、47.52㎡、5階。シングル、カップルにお勧めです。届出をすれば事務所利用も可能だそうですよ。
□□□□□□□□□□□□□□□□□□□□□□□□□□□□□□□□□□□□□□□
★★★【駒場ネオパレス】周辺のハザードマップをCHECK!!★★★
お部屋の記事を読む前に…!周辺のハザードマップをチェックしておきませんか!
駒場ネオパレスのハザードマップは★こちらから…どうぞ★
□□□□□□□□□□□□□□□□□□□□□□□□□□□□□□□□□□□□□□□
では、早速行ってみましょう!
エレベーターを5階で降りて、外廊下を進みます。
ドア横にはカメラ付きインターホンがあって、玄関前を見張ってくれています。返事をする前によく確認しましょうね。
それではお邪魔します!
壁も扉も真っ白な廊下は、濃いめのフローリングによってぐっと落ち着いた感じになっています。
振り返って玄関の様子です。
ドアには安心のダブルロック。鍵が複数付いてるだけで空き巣などに狙われにくくなるとか。中にはダミーの鍵を付けている所もありましたよ^^;)
人感センサーは照明器具と一体になったタイプ。いつでも明るい玄関が迎えてくれます。トールタイプのシューズボックスは収納力抜群!棚を調整すれば、ブーツなどでも収納可能ですよ。
廊下の途中にはとても大きな収納棚が。大きく開いて中も見やすく、使いやすそうな収納ですね。
では、突き当りのドアを開けて最初のお部屋へ…
キッチンの横を奥へ進みます。
こちらは約14.5帖のリビング・ダイニング・キッチン。奥が全面窓になっているとても明るいお部屋ですね。
遠目には真っ白に見える壁ですが、左側の一面はアクセントウォールになっています。あまり主張し過ぎないのが素敵ですね。白の壁も良く見るとスタッコ塗りのような凹凸があり、これまたイイ感じです♬
キッチンを見ていきましょう。
調理台の下の収納は出し入れしやすい引き出しタイプ。大小様々なサイズがあって、いろんな物がスッキリ収まりそうです。
上部には換気扇と吊戸棚。吊戸棚は少し出し入れがしづらいので、あまり使わない物を入れるか、収納グッズを利用するといいですよ。ま~、背の高い方は問題ないとは思いますけど^^;)
コンロは3口。グリルも付いています。
三つのコンロでお料理の効率もアップしそうですね♪♪
調理台の横は、冷蔵庫スペースになっていました。ここならキッチンからもリビングからも使いやすい場所です。
では、次のお部屋へ…
約5.8帖の洋室です。
白一色のシンプルな色使いの中、ガラスブロックとニッチがいいアクセントになっています。窓の無いお部屋なのでガラスブロックからの光も嬉しいですね。
奥の扉の奥にはウォークインクローゼットが。奥行きがあってハンガーポールが手前に設置された、少し変わったクローゼットです。洋服をかき分けて奥へ進む感じですかね?かくれんぼには良さそうです(笑)
この洋室は、扉を開けてリビングの一部としても利用可能です。20帖を超える大きなワンルームですね♬
今度はトイレへ…
居室とは打って変わって主張強めですね( ゚Д゚)
もちろん温水洗浄便座も付いていますよ。INAX製『シャワートイレ』です。
次は洗面室へ…
洗濯機スペース、浴室、洗面台があります。
三面鏡付きの洗面台。
収納は洗面台下と横の棚、鏡裏のキャビネット。細かい物が多くなりがちな洗面周りには、キャビネットが重宝します。
水洗はハンドシャワータイプ。広い洗面ボウルを流したりに便利ですよ。
次は浴室へ…
追い焚き機能が付いていますので、長風呂の方でも最後まで温かいお湯に入る事が出来ますよ。寒い時期にはありがたいです(*‘ω‘ *)
浴室乾燥機を、換気扇代わりだけに使うのはもったいないですよ。お洗濯物乾燥やヒートショック予防、熱中症予防など様々な働きをしてくれます。
それでは、最後にバルコニーへ出てみましょう。
三枚の窓の内、右側はFIX窓で開きません。真ん中と左側から出られます。
6.6.73㎡のバルコニー。奥行きがあるので広く感じます。幅があっても細長いと狭く感じますからね。形によってだいぶ印象が変わるものです(・_・D フムフム
水栓や物干し金具も付いていました。バルコニーや窓のお掃除の時など、水栓があると大助かりです。
外の様子です。
正面から右側には建物がビッシリ。ただ、このすぐ向こうには首都高が通っていますので、防音壁代わりにちょうど良いかもしれません。実際、通りに面したお部屋とは全然違いますよ!
残念ながら正面は建物に塞がれていましたが、左方向には抜けた風景が広がっています。和みたい時はこちらをどうぞ(^^)
・
以上で駒場ネオパレスのご案内を終わります。
いかがでしたでしょうか??
池尻大橋駅から徒歩1分のマンションです。
リノベーション済みという事で室内はとてもキレイですよ (っ・ω・)っ
内見のご予約やご質問などございましたらお気軽にお問い合わせくださいませ。
ご連絡お待ちしております。
□□□□□□□□□□□□□□□□□□□□□□□□□□□□□□□□□□□□□□□
★★★【駒場ネオパレス】周辺のハザードマップをCHECK!!★★★
お部屋のご購入前に…!周辺のハザードマップをチェックしておきませんか!
駒場ネオパレスのハザードマップは★こちらから…どうぞ★
□□□□□□□□□□□□□□□□□□□□□□□□□□□□□□□□□□□□□□□
弊社、不動産Agent 六棒株式会社では、
□リノベーションマンションはほぼ全て仲介手数料無料!
□その他一般仲介物件は仲介手数料20%~30%OFF!
にてお取り扱いしております!※弊社の「Agent Fee=仲介手数料」についてはご案内、ご面談の際に営業担当者よりご説明いたします!
なるべく沢山のお部屋をホームページに掲載したいと思っておりますが、時間的成約もございますので、残念ながらご紹介できるお部屋の一部しか掲載できておりません。
このホームページに掲載中のお部屋、その他サイト等で気になるお部屋、街を歩いていて気になったマンション等々ございましたら是非、弊社営業部までご相談ください!
~不動産Agent 六棒株式会社の特徴~
・一般仲介物件の仲介手数料は20%~30%OFFにてご案内中です!
・リノベーションマンションについてはほぼ全て仲介手数料無料です!
・住宅ローンに自信あります!
・頭金10万円より購入できます。是非ご相談下さい!
・お部屋のご見学は車で2~3件まとめて案内します!
・物件数3000件以上、新築戸建、リノベ物件も多数ご用意しております!
過去に販売していたお部屋の概要 このお部屋の販売は終了いたしました。
| 価格 | -万円 |
| 面積 | 58.32㎡ |
| 間取り | 1bedrooms(1LDK) |
| 管理費 | 月額14,620円 修繕積立金:月額8,730円 |
| 所在階 | 11階 |
| お問い合わせ・ご内見のご予約はこちらからお気軽にどうぞ | |
ここで間取り図のご紹介です。
※間取り図は別タブで開きますので、確認しながらご覧いただく事が出来ます。
□□□□□□□□□□□□□□□□□□□□□□□□□□□□□□□□□□□□□□□
★★★【駒場ネオパレス】周辺のハザードマップをCHECK!!★★★
お部屋の記事を読む前に…!周辺のハザードマップをチェックしておきませんか!
駒場ネオパレスのハザードマップは★こちらから…どうぞ★
□□□□□□□□□□□□□□□□□□□□□□□□□□□□□□□□□□□□□□□
今回のお部屋は、世田谷区アドレス、1LDK、58.32㎡、11階。58.32㎡で1LDKだと結構ゆったりした間取りですね。お二人orお一人暮らしの方にお勧めです。では、早速行ってみましょう!
11階までエレベーターで上がり、眺めのいい外廊下を進むと玄関に到着です。
玄関ドア横にはモニター付きインターホンが設置されて、お部屋の中から訪問者を確認する事が出来ます。返事をする前に映像で確認出来るので、しつこいセールスなどにつかまる心配もありません。
玄関から真っ直ぐに伸びた廊下は、白を基調にした明るい雰囲気。正面ドアのすりガラスから漏れる光が照らしています。
シューズボックスはトールタイプ。収納力抜群、棚を調節すればブーツなどでもそのまま収納可能ですよ。廊下に設置されているので玄関は広く使えそう。
では、お部屋の中へ…
こちらはリビング・ダイニング・キッチン+洋室。洋室の仕切り戸を開けて二部屋をつなげた様子です。ワンルームの様な使い方になりますが、LDKには窓がありませんので日中はこんな感じもアリですね。どちらにしても、状況に応じて使い分けが出来るのは便利です。
仕切り戸は引込式なので開放時もスッキリですよ。扉を引き出して閉めれば…
独立した洋室に。東向きの大きな窓のある明るいお部屋です。古材の様なアクセントウォールが印象的ですね。広いお部屋でベッド二つも余裕で置けそうです。
収納は間口が広くて使いやすそうなクローゼットが二つ。奥行きもあるので収納力もなかなかですよ。キャリーバッグやスーツケースなどの嵩張る物も収納可能です。
リビング・ダイニング・キッチンに戻って…
手前のアクセントウォールの辺りがリビング、その奥キッチン前がダイニングになるイメージでしょうか。レイアウトがしやすそうなお部屋です。生活感のあるキッチンが、奥まった所に設置されていて目立たないのもいいですね。
リビング部分にはマガジンラックもありましたので、お気に入りの雑誌とかをインテリアとしても使えます。インターホンのモニターはお部屋の入口脇に設置されいて、どこからでも素早く駆け付けられそう。
では、キッチンを見ていきましょう。
冷蔵庫スペースは調理台手前にあります。これならお料理の邪魔をされる事なく、冷蔵庫を使えますね。
調理台はフローリングに合わせたパネル使用。窓もある明るいキッチンです。
収納は調理台下のスライドキャビネットと吊り扉。引き出しタイプは出し入れがしやすく、大きな鍋でも楽に収納出来ます。ぎっしり詰めても中身が確認しやすいのもいいですね。
水栓は浄水機能付きシャワー水栓。切り替えるだけで気軽に美味しいお水を使えます。ヘッドが伸びてシンクを流したりにも便利ですよ。
コンロは三口、グリルも付いて調理器具も充実しています。調理中は換気扇をお忘れなく!換気扇は少し前から回しておくと効果的らしいですよ。その際、窓を開けるならキッチンの窓ではなく、遠くの窓を開けた方がいいそうです。窓から換気扇への空気の流れを作るのが大事なんだとか(^^)
廊下へ戻って、トイレへ…
窓付きで明るいトイレは清潔感があります。
トイレットペーパーなどのストックに便利な収納棚が前に付いています。すぐ手の届く場所は何かと便利ですよね^^;)もちろん洗浄便座付き。TOTO製のウォシュレットです。
次は洗面室へ…
洗面室には洗面台の他に浴室と洗濯機スペースがまとまっていて、脱衣所も兼ねています。入浴中に洗濯出来れば効率的ですね。
洗面台は三面鏡付き。360°確認出来て身だしなみチェックに活躍します。上部に付いた照明で、鏡を見る時に影になったりする事もありません。
収納は三面鏡裏のキャビネットと洗面台下。細々した物が多くなりがちな洗面廻りには、やはりミラーキャビネットが欠かせませんよね。
ビルドインの水栓はハンドシャワータイプ。普段はすっきり収納されたヘッドは引き出す事が出来、洗面ボウルを流したり、寝ぐせくらいなら直せそう(笑)
グレーのアクセントパネルを使用した浴室。朝のシャワーが似合いそうな雰囲気です。
追い焚き機能付きユニットバスは「自動」ボタンひとつでお風呂を沸かす事が出来ます。そのまま保温もしてくれるので、いつでも温かいお風呂に入れますよ。
ゆったり浸かれる広々浴槽。
浴室換気乾燥機は浴室の換気の他にも、ヒートショック予防になる浴室暖房、雨天や花粉の季節のお洗濯物乾燥など様々な使い道があります。「涼風」ボタンを使えば暑い季節にも活躍してくれそう。冷房ではありませんが、濡れた体には十分涼しいですよ。
それでは、最後はバルコニーのご紹介。
奥の洋室の窓から出ます。一番右の窓はFIX窓で開きませんので他の窓からどうぞ。
広さは8.10㎡、東向き。幅もさることながら、奥行きのある広々としたバルコニーです。物干し金具も付いていて、お洗濯物も干せるようになっています。午前中の陽当りはご覧の通り、お洗濯物も気持ち良く乾きそうですね。
正面の眺めは、いかにも都会の真ん中という感じですが…
左方向に目を向ければ、目黒川緑道が望めます。春には綺麗な桜も見られるらしいですよ。季節感のある風景って素敵ですよね♬
・
以上で駒場ネオパレスのご案内を終わります。
いかがでしたでしょうか??
池尻大橋駅から徒歩1分のマンションです。
リノベーション済みという事で室内はとてもキレイですよ (っ・ω・)っ
内見のご予約やご質問などございましたらお気軽にお問い合わせくださいませ。
ご連絡お待ちしております。
□□□□□□□□□□□□□□□□□□□□□□□□□□□□□□□□□□□□□□□
★★★【駒場ネオパレス】周辺のハザードマップをCHECK!!★★★
お部屋のご購入前に…!周辺のハザードマップをチェックしておきませんか!
駒場ネオパレスのハザードマップは★こちらから…どうぞ★
□□□□□□□□□□□□□□□□□□□□□□□□□□□□□□□□□□□□□□□
弊社、不動産Agent 六棒株式会社では、
□リノベーションマンションはほぼ全て仲介手数料無料!
□その他一般仲介物件は仲介手数料20%~30%OFF!
にてお取り扱いしております!※弊社の「Agent Fee=仲介手数料」についてはご案内、ご面談の際に営業担当者よりご説明いたします!
なるべく沢山のお部屋をホームページに掲載したいと思っておりますが、時間的成約もございますので、残念ながらご紹介できるお部屋の一部しか掲載できておりません。
このホームページに掲載中のお部屋、その他サイト等で気になるお部屋、街を歩いていて気になったマンション等々ございましたら是非、弊社営業部までご相談ください!
~不動産Agent 六棒株式会社の特徴~
・一般仲介物件の仲介手数料は20%~30%OFFにてご案内中です!
・リノベーションマンションについてはほぼ全て仲介手数料無料です!
・住宅ローンに自信あります!
・頭金10万円より購入できます。是非ご相談下さい!
・お部屋のご見学は車で2~3件まとめて案内します!
・物件数3000件以上、新築戸建、リノベ物件も多数ご用意しております!
過去に販売していたお部屋の概要 このお部屋の販売は終了いたしました。
| 価格 | -万円 |
| 面積 | 61.22㎡ |
| 間取り | 2bedrooms(2LDK) |
| 管理費 | 月額16,800円 修繕積立金:月額10,030円 |
| 所在階 | 7階 |
| お問い合わせ・ご内見のご予約はこちらからお気軽にどうぞ | |
・
こちらが今回ご紹介させて頂くお部屋の間取りです。
マンションの角に位置している物件なので、ちょっと変わった形をしています。
専有面積は61.22㎡。2LDKです。
間取り図はクリックすると別タブで開くので、見比べながら進んで行くのも良いかもしれませんね。
エレベーターを降りて廊下を進んで行きます。
駒場ネオパレスは基本的に外廊下なのですが、今回の物件はエレベーターの近くにあるので屋根のある部分から出なくて大丈夫です。
雨が降っていても問題ないですよ!
玄関前にはモニター付きのインターフォンが付いています。
お部屋の中にいながら廊下の様子を確認することが出来るので、防犯的にも安心です。
7匹の子ヤギの家のインターフォンもモニター付きだと、オオカミに襲われることも無かったんだろうなと思います。もしリノベーションの機会があればぜひ検討して欲しいものです。
□□□□□□□□□□□□□□□□□□□□□□□□□□□□□□□□□□□□□□□
★★★【駒場ネオパレス】周辺のハザードマップをCHECK!!★★★
お部屋の記事を読む前に…!周辺のハザードマップをチェックしておきませんか!
駒場ネオパレスのハザードマップは★こちらから…どうぞ★
□□□□□□□□□□□□□□□□□□□□□□□□□□□□□□□□□□□□□□□
それではお邪魔します。
玄関入って右手には上部がカウンター状になったシューズボックスがあります。
中の棚板は高さの調節が出来るので、ブーツのような背の高い履物でも問題なく収納することが出来ます。
上に物を置くことが出来るので、靴の脱ぎ履きの際に荷物を置くことができ、これが地味に助かるのです。
玄関の照明は人感センサー付きです。
玄関ドアを開けると室内がパッと明るくなるので、両手に荷物を持っての帰宅でもノーストレスです。切れるのも自動なのでお財布に優しい機能でもありますね!!(LEDなので微々たるものではありますが)
玄関が綺麗だと気持ちが良いですね。
入口でもあり、出口でもあるので、意外と重要な場所です。
それでは玄関を後にして廊下を突当りまで進んで行きましょう!!
こちらのスリットの入ったドアを開けると・・・
こちらはリビング・ダイニング・キッチンです。
広さは約11.7帖。バルコニーに面した窓が付いています。
ダウンライトとシーリングライトが組み合わされていて、明るいお部屋になっています。
リビングのお隣には洋室が繋がっています。
こちらは約5.0帖の洋室です。
リビングとはスライド式のドアで仕切られているので、開けていればリビングの一部として、閉じれば1つの寝室としても使用することが出来ます。状況に応じて使い分けていきましょう。
クローゼットも付いてます。ハンガーポール付きなのでお洋服も大量に収納することが出来ますよ。
次はキッチンを見ていきましょう。
3口のグリル付きガスコンロ、浄水機能付きの水栓はシャワーヘッドになっています。
グリルがあればお肉やお魚もこんがりふっくら焼き上げることが出来るのでお料理のレパートリーも広がりそうです。トーストなんかもグリルで焼けば美味しいですよ!(火力が強いので焦がさないようにだけ注意してくださいね)
キッチンの隣は洗濯機置き場になっています。
奥に配置してあるので、来客時にも人目につくことが無さそうです。
棚も設置してあるので、洗剤などの洗濯グッスの置き場所に困ることもありませんね!
キッチンの後ろには小窓が付いています。
北側になるので陽当たりは期待できませんが、こちらを開けておけば南北に風が抜けるので、お部屋の換気も効率よく行うことが出来そうですね!
それでは廊下へと戻りましょう!!
廊下に戻って1つ目のドアを開けると・・・
中は洗面室になっていました!!
大きな三面鏡の付いた洗面化粧台です。
三面鏡は顔を左右から見比べることが出来るので、メイクもしやすいですよ。
ミラーの内部は収納になっているので、歯ブラシや基礎化粧品などの小物はコチラにしまっておきましょう。
水栓はビルドインタイプなので、根元に水垢が溜まりにくくお掃除もカンタンです。
次はお風呂です。
お風呂には浴室換気乾燥機能が付いています。
入浴後の湿気をすぐに取り除くことによって、カビの発生を抑制し、浴室を綺麗に保ってくれます。
他にも雨の日は浴室で洗濯物を干すことが出来たり、冬は入浴前に浴室を暖めておけたりとなかなかに優秀な機能です。
追炊き機能も付いているので、1日中アツアツのお風呂に入ることが出来ます。
男性は特にシャワーだけで済ませがちではありますが、たまにはちゃんと肩までお湯に浸かって疲れを取ってくださいね。
それでは廊下へと戻って・・・・
玄関前のドアを開けてみましょう!
中はトイレになっていました!!
TOTOのウォシュレット機能付きのトイレです。リモコンタイプなので操作性も良さそうです!
100年の歴史があり、衛生陶器シェア60%を持つ企業のTOTO。いまさら説明は必要ないですよね!みなさんよくご存知かと思います!
それではリビングへと戻ってきて・・・
こちらの洋室です。
東側の角に位置しているこちらの洋室は約6.0帖の広さがあります。
南東向きの窓が付いているので、お昼すぎ頃までは明るい光が入ってくると思います。
奥行のあるクローゼットも付いているので、お洋服の収納場所に困ることは無さそうです。
最後にバルコニーへ出てみましょう。
窓にはインナーサッシが付いています。
首都高に面したマンションにはなりますが、車の音はほとんど気になりませんでした。
音に不安な方は内見の際に耳を澄ませてみるのをお忘れなく!!
車が好きな方なら永遠に眺めてられそうな光景です。
皆さんどこに行かれるのでしょうね??
眺望はご覧の通りです。
首都高のおかげで近くに背の高い建物も建ってなく、午前中は陽当たりも良さそうです。
バルコニーの真下に駅の入口がありました。
寝坊したとしても、ここから飛び降りるのはやめた方がいいと思いますよ!!
では、以上で駒場ネオパレスのご案内を終わります。
いかがでしたでしょうか??
池尻大橋駅から徒歩1分のマンションです。
リノベーション済みという事で室内はとてもキレイですよ (っ・ω・)っ
内見のご予約やご質問などございましたらお気軽にお問い合わせくださいませ。
ご連絡お待ちしております。
□□□□□□□□□□□□□□□□□□□□□□□□□□□□□□□□□□□□□□□
★★★【駒場ネオパレス】周辺のハザードマップをCHECK!!★★★
お部屋のご購入前に…!周辺のハザードマップをチェックしておきませんか!
駒場ネオパレスのハザードマップは★こちらから…どうぞ★
□□□□□□□□□□□□□□□□□□□□□□□□□□□□□□□□□□□□□□□
弊社、不動産Agent 六棒株式会社では、
□リノベーションマンションはほぼ全て仲介手数料無料!
□その他一般仲介物件は仲介手数料20%~30%OFF!
にてお取り扱いしております!※弊社の「Agent Fee=仲介手数料」についてはご案内、ご面談の際に営業担当者よりご説明いたします!
なるべく沢山のお部屋をホームページに掲載したいと思っておりますが、時間的成約もございますので、残念ながらご紹介できるお部屋の一部しか掲載できておりません。
このホームページに掲載中のお部屋、その他サイト等で気になるお部屋、街を歩いていて気になったマンション等々ございましたら是非、弊社営業部までご相談ください!
~不動産Agent 六棒株式会社の特徴~
・一般仲介物件の仲介手数料は20%~30%OFFにてご案内中です!
・リノベーションマンションについてはほぼ全て仲介手数料無料です!
・住宅ローンに自信あります!
・頭金10万円より購入できます。是非ご相談下さい!
・お部屋のご見学は車で2~3件まとめて案内します!
・物件数3000件以上、新築戸建、リノベ物件も多数ご用意しております!
過去に販売していたお部屋の概要 このお部屋の販売は終了いたしました。
| 価格 | -万円 |
| 面積 | 58.32㎡ |
| 間取り | 2bedrooms(2LDK+WIC) |
| 管理費 | 月額16,800円 修繕積立金:月額10,030円 |
| 所在階 | 10階 |
| お問い合わせ・ご内見のご予約はこちらからお気軽にどうぞ | |
早速ですが間取り図のご紹介です。
※間取り図は別タブで開きますので、確認しながらご覧いただく事が出来ます。
今回のお部屋は10階、間取りは2LDK+WIC、専有面積は58.32㎡となります。
□□□□□□□□□□□□□□□□□□□□□□□□□□□□□□□□□□□□□□□
★★★【駒場ネオパレス】周辺のハザードマップをCHECK!!★★★
お部屋の記事を読む前に…!周辺のハザードマップをチェックしておきませんか!
駒場ネオパレスのハザードマップは★こちらから…どうぞ★
□□□□□□□□□□□□□□□□□□□□□□□□□□□□□□□□□□□□□□□
では、さっそく行ってみましょう!
10階でエレベーターを降りて…
見晴らしのいい外廊下を進むと、玄関に到着です。
玄関にはカメラ付きインターホンやダブルロックが設置されています。防犯面で心強いですね。
それでは、お邪魔します♪♪
玄関を一歩入ると、廊下が真っ直ぐに伸びていました。ブルーのドアが印象的ですね。
振り返って玄関内の様子です。
人感センサーは、ドアを開けるだけでライトを点けてくれますよ。両手が塞がっている時などに助かりますね。なにより、いつでも明るい玄関が迎えてくれるのが嬉しいです♬
シューズボックスはトールタイプ、しかも扉三枚分もあって収納力バツグンです。傘が入るような場所もあって、玄関内もスッキリですね(^^)
まずは、正面突き当りから開けてみましょう。
こちらが約10.5帖のリビング・ダイニング・キッチンとなります。
大きな窓が三つもあってとても明るいですね。縦長でダイニング、リビングなどの使い分けがしやすそうなお部屋です。
北東側の二つの窓の外を見てみましょう。二重サッシの向こうには…
素晴らしい眺望が広がっていました!開放感がすごいですね♪♪
アクセントウォールや天井のラインが、白を基調としたシンプルになりがちなお部屋に変化を付けています。
キッチン方向を。
キッチン横にはカップボードがありました。上の三枚の棚は高さ調整可能ですよ。すぐ隣の壁面にあるのは、インターホンのモニターと給湯のスイッチです。
では、キッチンを見ていきます。
コンロ部分とシンク部分が分かれているタイプのカウンターキッチンですね。作業スペースが多く、大勢でのお料理も大丈夫ですよ(^^)v
まずはコンロ部分から…
下部のスペースは全て収納になっていました。コンロは3口。三つもあればコンロ待ちの心配もありませんね。
このキッチンには窓があって換気はしやすいかと思いますが、グリルを使う時は換気扇をお忘れなく。お魚の時は特にですよ^^;
上部には二つの吊戸棚があります。
こんどはシンク部分を…
水栓はシンプルなタイプ。下部はやはり全て収納になっていました。
では、次のお部屋へ…
リビング・ダイニング・キッチンの真ん中辺りのドアです。
こちらが約6帖の洋室となります。
ここからもバルコニーへ出る事が出来るようですね。奥の壁はグレーのアクセントウォールになっています。
お部屋のもう一つのドアを開けると…
約1.5帖もある、広いウォークインクローゼットになっていました。右側にはハンガーパイプが、奥には収納棚が設置されています。床面が広いと大きな物が置けるのがいいですよね。
ではいちど廊下に戻って…
すぐ左のドアを開けてみます。
こちら洗面室となります。
一般的な洗面室とは違い、浴室にはつながっていません。洗面台と洗濯機スペースだけのお部屋です。
洗濯機スペース上には棚がありますので、洗剤や柔軟剤、洗濯ネットなどの洗濯関係の物をまとめておけますね。
洗面化粧台です。
既製品でなく造作となります。やっぱり一点物はいいですね。
鏡の後ろも収納になってます。
洗面室は廊下から一段高くなっていますので、慣れるまでは注意が必要そうです。
では、次へ…
玄関近くのドアです。
脱衣所になります。
ここからは浴室とトイレに行けます。
ブラウンの鏡面仕上げを一面だけに使った、落ち着いた雰囲気の浴室です。リラックス出来そうですね(^^)
追い炊き機能などは無いシンプルな浴槽です。最近の浴槽は保温機能が優れていますので、フタをきっちり閉めておけば長時間温かさを保てるそうですよ。
ではおトイレへ…
収納はありませんが、カウンターがありますのでトイレットペーパーなどは置いておけそうです。
もちろんシャワートイレも完備しています。この時代無いと困りますよね、INAXさんお世話になっています(笑)
では、次のお部屋へ…
洗面室のとなりのドアです。
こちらが約4.5帖の洋室となります。
ここの窓も二重サッシになっています。防音、遮熱、防犯などいろいろと嬉しいですね。窓の外は外廊下ですので、しっかり面格子が設置されていました。
コンパクトなクローゼットもついています。
それでは、最後にバルコニーへ出てみましょう!
幅も奥行きも十分な、広々としたバルコニーです。
物干し竿受け金具が付いています。陽当りも良さそうですので、お洗濯物も気持ち良く乾きそうですね。南東向きなので午前中がお勧めですよ。
正面、南南東方向の眺望です。
ビルがありますが、それほど高くないのと距離があるのとであまり気になりませんでした。それどころか、高速との間の防音壁になってくれている気がします(^^)
東方向は綺麗に抜けた景色が広がっています。
エントランス前の雰囲気からは考えられない風景ですね。下を通る緑道にも癒されます♬
・
以上で駒場ネオパレスのご案内を終わります。
いかがでしたでしょうか??
池尻大橋駅から徒歩1分のマンションです。
リノベーション済みという事で室内はとてもキレイですよ (っ・ω・)っ
内見のご予約やご質問などございましたらお気軽にお問い合わせくださいませ。
ご連絡お待ちしております。
□□□□□□□□□□□□□□□□□□□□□□□□□□□□□□□□□□□□□□□
★★★【駒場ネオパレス】周辺のハザードマップをCHECK!!★★★
お部屋のご購入前に…!周辺のハザードマップをチェックしておきませんか!
駒場ネオパレスのハザードマップは★こちらから…どうぞ★
□□□□□□□□□□□□□□□□□□□□□□□□□□□□□□□□□□□□□□□
弊社、不動産Agent 六棒株式会社では、
□リノベーションマンションはほぼ全て仲介手数料無料!
□その他一般仲介物件は仲介手数料20%~30%OFF!
にてお取り扱いしております!※弊社の「Agent Fee=仲介手数料」についてはご案内、ご面談の際に営業担当者よりご説明いたします!
なるべく沢山のお部屋をホームページに掲載したいと思っておりますが、時間的成約もございますので、残念ながらご紹介できるお部屋の一部しか掲載できておりません。
このホームページに掲載中のお部屋、その他サイト等で気になるお部屋、街を歩いていて気になったマンション等々ございましたら是非、弊社営業部までご相談ください!
~不動産Agent 六棒株式会社の特徴~
・一般仲介物件の仲介手数料は20%~30%OFFにてご案内中です!
・リノベーションマンションについてはほぼ全て仲介手数料無料です!
・住宅ローンに自信あります!
・頭金10万円より購入できます。是非ご相談下さい!
・お部屋のご見学は車で2~3件まとめて案内します!
・物件数3000件以上、新築戸建、リノベ物件も多数ご用意しております!
過去に販売していたお部屋の概要 このお部屋の販売は終了いたしました。
| 価格 | -万円 |
| 面積 | 54.12㎡ |
| 間取り | 1bedrooms(1SLDK+SIC) |
| 管理費 | 月額16,800円 修繕積立金:月額10,030円 |
| 所在階 | 2階 |
| お問い合わせ・ご内見のご予約はこちらからお気軽にどうぞ | |

クリックすると別タブで開くことも可能です。
間取り図とお部屋比較すると見やすいですよ
では、営業部小倉が【駒場ネオパレス 2階】
お部屋一緒にご案内させて頂きます(o*。_。)oペコッ
今回のお部屋は2階になります。
朝などエレベーターが混みやすい時間帯は階段で行けるのも良い点(`・ω・´)b
駒場ネオパレスは外廊下タイプになります
お隣さんが修繕中で視界が遮られちゃっていますね!
トコトコ(((((*´・ω・)先に進むと・・・
お隣さんの建物がなくなるので視界が開けました。
東邦大学医療センターの大橋病院が見えますねー!!!
新しい環境でかかりつけの病院を探すときは新しさ重視で探す小倉です(”◇”)ゞ
平成30年6月下旬に建て替えして完全移管済みだそうですφ(`д´)メモメモ…
綺麗が一番ですよね\(^o^)/
ってことで、今回のお部屋も内装リノベーション済み!!
グリーンの扉が目印☆
TVモニタ付きインターホンで来訪者も確認出来ます
玄関は明るくフローリングの色合いがとっても素敵\(^o^)/
シューズクロークがあるのでベビーカーや傘立てなども楽々収納
全部しまって玄関周りがスッキリ出来ます(^^♪
お休みの日は全部屋換気したいところ。
シューズクロークにも小窓があるので換気出来るのはとっても嬉しい(*ノωノ)
玄関照明は人感センサー付き。
帰宅してパっと明るくなると家に帰って来た安心感があります(*´ω`)
玄関廊下からは洗面などの水回りにも行けますが、先にリビングへ
|ω・`)ちら
リビングへの扉はガラス戸になります!!!!
オシャレな香りがしてきましたよo(^o^)o ワクワク
リビングへ入ると正面にすぐクローゼットがありました。
高さもあり奥行もあるので様々なものが収納出来そう!
リビングにありますが人目につきにくいところにあるので
来客時でも扉を開けても中が丸見えにならなくていいですね(`・ω・´)b
その隣りにはー・・・
じゃんっ
レンガ調のオープン棚収納がありました。
ライトで照らしてお洒落に演出(/・ω・)/
写真や本・DVDなどなど
思い思い、自分の好きなものが飾れます!!
シーズンで飾るものを変えるとお部屋の雰囲気もガラッと変わります(^^♪
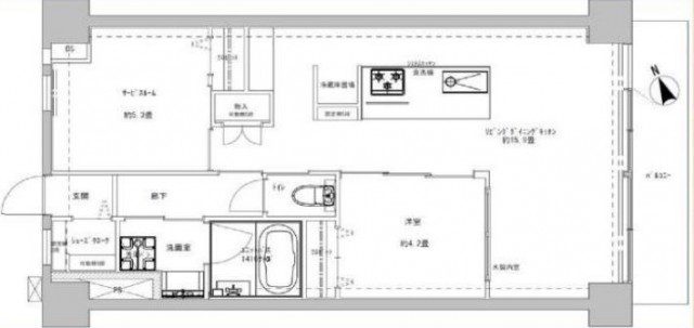
開口部南東向きの日当たり良好!!!!
約15.9帖のリビングは窓が大きくとられ開放感があります
明るいリビングには明るい未来!!!
お部屋が暗いと気分も暗くなっちゃいますからね。
駒場ネオパレスで明るい未来を築きましょう\(^o^)/
と、なんかおかしな宣伝みたくなってしまったので
慌てて部屋の説明をしますε=┏(;・ω・)┛
リビングから洋室へ行けます。
引き込み式の扉は存在感を出さないので普段開け放してリビング使いも◎
開けるとキッチンが正面に見えます。
この洋室を子供部屋とかにすると子供が遊んでる姿も
キッチンに立ちながら見守る事が出来ますねφ(`д´)メモメモ…
右にも左にも寄せることが出来ますよ。
リビングから見えていましたよね、こちらの大きな可愛い窓枠!
モスグリーン?味わいのある色合い!
窓がないと閉め切ったときに圧迫感が出てしまいますよね。
窓を作ることにより開放感が出て、更に明るい室内に( `ー´)ノ☀
お部屋の一体感も出ると思います!
ちゃんと収納もありますよ。
エアコンはついておりませんが、すぐ設置出来るように準備はバッチリ(`・ω・´)b
さて、そろそろキッチン紹介していきましょうかo(^o^)o ワクワク
幅がとっても広い素敵なキッチン♡
トップが白いのは、人工大理石だからなんです!!
シンクの中も人工大理石なので一体感があります。
また、リビングから見えてもお洒落なのがいいですよね!!!
水栓部分はこのように伸びるのでシンクの隅々までお掃除が出来ます。
白い分汚れも目立ちますからね、毎日シャワーして綺麗にしましょう(^^♪
3口コンロはガスになります。
今時のグリルは水なしでオッケー(`・ω・´)b
水なしグリルだと、水蒸気が一切ないのでこんがりカリカリにお魚が焼けます🐟
お手入れも抜群にしやすくなっているのでいいこと尽くし!!!
時代は進歩し続けていますね!!
食洗機も最近予備洗いをしなくても油汚れが落ちるとか??
ミートソースの後とかサッと洗わなきゃいけなかったりでしたよね。
だったら食洗機いらなーい!と面倒くさがりな私は思ってましたが
予備洗いがいらないとなると欲しくなってきます(>_<)うずうず
キッチン収納は引き戸タイプ
このように奥まで見やすいので収納苦手だなー。。。
という方も整理しやすいんですよ(`・ω・´)b
また、ここの冷蔵庫の高さが決まっており
179cm×幅70cm以下の冷蔵庫のみ設置可能です。
400L以上大容量サイズの一般的な高さが180cm前後は必要なものが多いです!
なので家にあるのを持ってくる場合は要チェックです(;゚Д゚)
これから買う方は気を付けてご購入くださいね(o*。_。)oペコッ
キッチンの奥にはちょっとした作業棚があります。
炊飯器や電子レンジ、オーブンなどが置けますよ!!
上段にもオーブンラックがあります。
普段使わないパーティー皿を置いといてもいいですね
下にも置けるので工夫すると結構な収納力がありそう。
コンセントもしっかり左手についています(`・ω・´)b
また、こちらからキッチンの前に出ることが出来ます。
キッチンの後ろが少し狭いので冷蔵庫に用があるご家族はこっちから来ると
調理中のお母さんに邪魔ー!って小言を言われないで済みそう (^ー^* )フフ♪
そろそろ他の水回りも紹介していきましょうか
トコトコ(((((*´・ω・)
リビングからすぐの扉はお手洗いでした。
ウォシュレット一体型トイレです!!
フルフラットのトイレは老若男女問わず危なくなくていいですね。
清潔感もあり、汚れも目立ちにくいフロアになっています!
もちろん収納も完備。
トイレの収納はなくてはならない存在ですね(^-^;
扉もついているため、人目も気になりません。
玄関の方へ移動し・・・
トコトコ(((((*´・ω・)
洗面化粧台へ!!
鏡面仕上げの為、カメラが写っていますね
ご容赦ください(o*。_。)oペコッ
鏡面仕上げ、ピカピカで高級感が違います!
かといって木目調なのでいやらしさもありませんね(*´ω`)
水栓はビルドインタイプ。
水垢なども気にならないし、デザインもスッキリしています☆
三面鏡の裏は収納になってますよ!
歯ブラシや基礎化粧品まわりをしまって洗面台周りをスッキリさせましょう
収納は下の引き戸と、隣の洗濯機置場の上にもあります。
ドライヤーは洗面台、洗剤や柔軟剤は洗濯機置場の上へ(^^♪
続いて浴室は・・・
|ω・`)ちら
優しい色、角のないフォルムで美しい(≧▽≦)
鏡の上の照明もでっかくていいですね!!
浴室乾燥機付きなので、雨の日が続いても洗濯物に悩まされません。
どんどん洗っていきましょう( `ー´)ノ☂
その他にも追い炊き機能もついています。
入るときにすぐ温められるのが嬉しい!!
帰宅時間がバラバラでもいつでも湯舟につかれます。
浴槽の水を抜くのもスイッチ一つでお水が抜けるので衛生的です。
浴室を出てリビングにもう一度戻りますε=┏(・ω・)┛
洋室は下の写真の一番奥の扉になります!
玄関からリビングへ行ってすぐ左手ですね(/・ω・)/
洋室約6.3帖です。
洋室と言ってしまいましたが、こちらはサービスルームです!
何が違うかというと、生活する分には特に洋室との変わりはありません。
小窓横のデッドスペースにはオープン棚を設置しました。
寝る前に読む本など並べてもいいですね(*´ω`)
高さ調節が出来るのでなんでも入れられますよ!!
その他にもちゃんと収納があります。
見ていきましょう
|ω・`)ちら
ハンガーラックがあり、コートもスーツもかけられます。
上にも収納出来るスペースがあるので、シーズンオフのものも収納可能!
さてお部屋いかがでしたか?
最後に!南東向き日当たり良好のバルコニーへ!!!!
二重サッシで
防音性◎断熱性◎結露防止◎
この日はあいにくのお天気(´;ω;`)
かなり広めのバルコニーです。
物干し竿をかける支えがなかったので購入が必要です(”◇”)ゞ
前にはマンションが建っていますが、真上はお空が見えますよ(/・ω・)/
お天気のいい日に一緒に見学に行きませんか?
◆新規内装リノベーション済み
Lアフターサービス保証付き
◆池尻大橋駅の出入口エレベーターがエントランス目の前にあります
◆インプラスで遮音・断熱
◆事務所使用可能(要届け出)
◆南東向きバルコニー
他にも詳細が知りたい!!実際に見学をしたい!!などありましたら
仲介手数料最大無料の当社
お電話ください(^-^*)/
TEL 03-5413-5336
お気軽にお問い合わせください。
スタッフ一同お待ちしております。
弊社、不動産Agent 六棒株式会社では、
□リノベーションマンションはほぼ全て仲介手数料無料!
□その他一般仲介物件は仲介手数料20%~30%OFF!
にてお取り扱いしております!※弊社の「Agent Fee=仲介手数料」についてはご案内、ご面談の際に営業担当者よりご説明いたします!
なるべく沢山のお部屋をホームページに掲載したいと思っておりますが、時間的成約もございますので、残念ながらご紹介できるお部屋の一部しか掲載できておりません。
このホームページに掲載中のお部屋、その他サイト等で気になるお部屋、街を歩いていて気になったマンション等々ございましたら是非、弊社営業部までご相談ください!
~不動産Agent 六棒株式会社の特徴~
・一般仲介物件の仲介手数料は20%~30%OFFにてご案内中です!
・リノベーションマンションについてはほぼ全て仲介手数料無料です!
・住宅ローンに自信あります!
・頭金10万円より購入できます。是非ご相談下さい!
・お部屋のご見学は車で2~3件まとめて案内します!
・物件数3000件以上、新築戸建、リノベ物件も多数ご用意しております!
過去に販売していたお部屋の概要 このお部屋の販売は終了いたしました。
| 価格 | -万円 |
| 面積 | 58.32㎡ |
| 間取り | 2bedrooms(2LDK+WIC+SIC) |
| 管理費 | 月額16,800円 修繕積立金:月額10,030円 |
| 所在階 | 3階 |
| お問い合わせ・ご内見のご予約はこちらからお気軽にどうぞ | |
こちらが今回ご案内させて頂くお部屋です。
ドアの外にはカメラ付きのインターフォンがあります。セールスや勧誘はドアを開ける前にお断りできますね。
玄関に入ります。とても収納の多い玄関ですので順番にご紹介していきます。
玄関の左手のドアはシューズインクローゼットになっています。
棚の高さは自由に変えることができるのでブーツなどの背の高い履物でも問題なくしまう事が出来ます。
シューズインクローゼットの隣はマルチクローゼット。ハンガーポールもあるのでコートなどでも大丈夫です。
マルチクローゼットの先は洗面室になっています。
ビルドインタイプの棚が付いているので備品やタオルなどの置場にも困りませんね。

ミラー内部の収納を設けていないので、空間を広く使うことができます。
洗面室の隣がトイレです。奥にはカウンターがあります。小物やお花などを飾ってもよさそうですよ。
トイレにはウォシュレットが付いています。TOTO製のトイレは安心感がありますね。

吊戸棚も付いているので収納には困りませんね。
シンプルで使い勝手のいいトイレだと思います。
玄関右手にはマルチウォークインクローゼットです。約1.7帖もの広さがあるのでちょっとしたお部屋のような感覚です。
玄関の右奥の引き戸を開けると洗濯機置場付きの脱衣所です。
棚が付いているので洗剤や柔軟剤などの置き場所にも困ることはありません。
脱衣所の先は当然ながらお風呂です。
木目調の壁が落ち着いた雰囲気を出しています。
横に長いミラーが浴室内を実寸よりも広く見せてくれます。
浴室乾燥機能が付いているので雨の日は浴室で洗濯物を干すことができますし、使用後に乾燥させておくことでカビの予防にもなります。
お風呂は追い焚きもすることができるのでいつでも熱いお風呂に入ることができます。
忙しいとシャワーで済ませてしまいがちですが疲労がたまっている時こそ、お風呂に浸かって体を癒してほしいものです。
玄関から廊下にかけてはご案内しましたので次はリビングダイニングキッチンです。
先ずはキッチンからご案内致します。
水栓は浄水機能付きの物が採用されています。簡単に切り替えができますので、お料理用に改めてお水を買ってくる必要はありません。
コンロは3口のグリル付きガスコンロとなっています。3口はもちろんですが、グリルが付いているとお料理の幅がぐっと広がります。
食器洗浄機も付いています。最後の洗い物が自動であれば少し手間のかかるにも挑戦してみようという気になってきますね!
続いてはリビングダイニングです。
奥の約5.5帖の洋室はスライド式のドアになっています。
壁にはエコカラットが使われています。
エコカラットは現代版の土壁のようなもので、湿度を一定に保ちつつ、臭いを吸収し、有害物質であるホルムアルデヒドを抑制するという優れものです。
家具付きの物件なのでソファーやテーブルなどは新調しなくてもいいですね!
こちらが奥の洋室です。
スライド式のドアを閉じれば一つのお部屋として使うことができます。状況に応じて使い分けていきたいですね。
こちらはもう一つの洋室です。広さは約5.6帖、収納スペースが付いています。
中央が棚になっていて両サイドにお洋服を掛けることができるシステム収納です。
自由度が高くさまざまな物を収納することができます。
最後はバルコニーです。バルコニーは東向きではありますが周辺の建物の関係もあり、直接日光が当たる時間は少ないと思います。
246を走るクルマの音をブロックしてくれているので決して無駄に邪魔をしているわけではないのですが。
北側には高い建物が無いので写真で感じるほど圧迫感はないですよ。
以上で駒場ネオパレスのご案内を終わります。
如何でしたでしょうか?
とにかく駅から近いマンションです。渋谷行きのバス停もエントランスの目の前から出ているので交通のアクセスには不自由しないと思います。
リノベーションによって新しく生まれ変わったお部屋なので新築のような住み心地ですよ。
内見のご予約やご質問などございましたらお気軽にお問い合わせくださいませ。
ご連絡お待ちしております。









































































































































































































































































































































































































































































































































