・
□□□□□□□□□□□□□□□□□□□□□□□□□□□□□□□□□□□□□□□
いつも弊社ホームページをご覧頂き誠にありがとうございます。
明大前フラワーマンションはお陰様で販売を終了致しました。弊社問合せフォームにてご要望頂けましたら、当お部屋でキャンセル等が発生した場合、他のお部屋が販売になりました際にご紹介させて頂きます。
不動産Agent 六棒株式会社
TEL:03‐5413‐5336
□□□□□□□□□□□□□□□□□□□□□□□□□□□□□□□□□□□□□□□
・
京王線・井の頭線の2路線利用可能な明大前より徒歩5分。
『明大前フラワーマンション』のご紹介です。
代田橋駅もご利用いただけます。
アクセス
京王線・井の頭線「明大前」駅徒歩5分
京王線「代田橋」駅徒歩6分
まずは…こちらをご確認ください!
□□□□□□□□□□□□□□□□□□□□□□□□□□□□□□□□□□□□□□□
★★★【明大前フラワーマンション】周辺のハザードマップをCHECK!!★★★
お部屋の記事を読む前に…!周辺のハザードマップをチェックしておきませんか!
明大前フラワーマンションのハザードマップは★こちらから…どうぞ★
□□□□□□□□□□□□□□□□□□□□□□□□□□□□□□□□□□□□□□□
それでは街をご案内していきましょう!
最寄りの明大前駅。京王線、井の頭線の主要駅であり、回送列車を含めたすべての列車が止まるそう。渋谷、新宿へも乗り換えなしで10分ほどとターミナル駅へのアクセスも◎。
明治大学があるためか、ファーストフード店やお手頃なお食事処が駅回りにはたくさんあります。駅ビルのフレンテ明大前の中にはフィットネスジムも入っています。
さらに商店街もあり、中にはスーパーもあるので食料品のお買い物も安心。
商店街の中をちょっと散策。
リーズナブルな定食屋さんやラーメン屋、ファミレスなど手軽に食事がとれるところが多い感じ。忙しくて食事を作るのもなかなか時間が・・・なんて方にはうれしいですね。郵便局もあります。
ジブリの映画に出てきそうな風景です。
この線路沿いに歩いて行けば井之頭公園に着く・・・・はず!!
駅前から玉川上水公園経由でもマンション近くへと行くことができます。
名前の通り、近くには水道局の施設がありますよ!!
明大前フラワーマンションは昭和44年築、14階建て、総世帯数90戸の大規模マンション。管理形態は日勤管理です。
ちょうど甲州街道と井の頭通りが交差しているところに建っているので周辺の交通量は多めですね。
階段を数段上った先にエントランス。
エレベーターは1基なので朝の通勤ラッシュ時は少し待ち時間が発生するかもしれません。
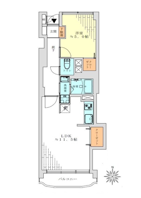
今回ご紹介するお部屋は4階、専有面積41.14㎡の1DK。おひとり暮らしやDINKSの方にお勧めのお部屋です。
間取り図はコチラ ↓ ↓ ↓
※間取り図は別タブで開きますので、確認しながらご覧いただくことができます。
では早速行ってみましょう!
【玄関廊下】
玄関はアルコーブ付き。アルコーブ内にはモニター付きインターホンが設置され、室内から玄関前の様子を確認することができるようになっています。ちょっと手が離せない時とかは有難いですよね。
【玄関廊下】
玄関を入るとまっすぐ伸びた廊下が印象的。40㎡台のお部屋とは思えないゆったり感があります。第一印象って大事です。
【玄関廊下】
玄関横には凹んだスペースがあり、傘立てやちょっとしたものを置くのにぴったり♬ 限られた空間を有効に使える工夫がされているのはいいですね。シューズボックスの真ん中はカウンターになっていてインテリを楽しむことが可能です。
それではお部屋へ・・・
こちらは約11.5帖のリビング・ダイニング・キッチン。南向きバルコニーに面したお部屋です。
【LDK】
白い壁と木目調のフローリングが調和したナチュラルな空間。木のぬくもりを感じられるフローリングはどんなインテリアとも相性が良く、コーディネートも楽しめますよ(^▽^)/
【LDK】
LDKにはクローゼット付き!扉を開けると想像以上の大容量✨で日用品や季節物をしっかり収納できるのでお部屋をすっきりと保てます。
【LDK】
LDKに電気の明るさを調整できる機能がついていて夜はほんのり落ち着いた雰囲気にもできます。おうち時間が特別になりますよね♬
【キッチン】
キッチンは壁付けタイプ。場所をとらずにお部屋を広く使えるのが特徴です☆彡
【キッチン】
コンロは2口、グリル付き✨水栓は浄水器一体型なので気軽に美味しいお水が使えます。お料理やコーヒーなどはもちろん、お米を研いだりにも贅沢に使っちゃいましょう!
【キッチン】
収納は出し入れのしやすいスライドキャビネット。ぎっしり詰めても中身のチェックがしやすいのも嬉しいですね。あまり使わない物は吊戸棚へどうぞ。
廊下へ戻って、洋室へ・・・
【洋室】
こちらは約5.0帖の洋室。くもりガラスの窓が付いていて外からの視線を気にせず自然光を取り込めるのがうれしいお部屋です。
【洋室】
奥行きのあるクローゼット付き。
洗面室へ・・・
【洗面室】
洗面室には洗面化粧台の他に洗濯機スペースと浴室がまとまっていて脱衣室も兼ねています。
【洗面室】
洗面台は照明付き。鏡を見る時に影になることもありません。洗濯機スペースには棚などが付いていませんので、ご自身でつっぱり棚などを設置するのもいいかもしれませんね。
【洗面室】
鏡裏がキャビネットになっているので、洗面周りに散らかりがちな細々したものもスッキリと片付けることができますよ。下部にも収納スペースあり。
【浴室】
浴室は白を基調にしたリラックス空間。ゆったりと湯舟に浸かれば一日の疲れも洗い流せそうですね♬
【浴室】
追い焚き機能や浴室換気乾燥機などの便利機能も完備。これからの季節お天気を気にせずにお洗濯できるのは助かります。
【浴室】
浴室の上にはバーが設置されていて、洗濯物を干したりバスグッズをかけたりと便利に使えます。シャンプーなどを設ける棚も2段+下段と収納力がありますよ(^^♪
トイレへ・・・
【トイレ】
モノトーンでまとめられどこか高級感が漂う空間。尚且つ清潔感もしっかり感じられて毎日気持ちよく使えそうです。
【トイレ】
INAX製の洗浄機能一体型。節水機能もあってエコですよ。
【バルコニー】
広さ4.68㎡、南向き☀ 手すりが下まで柵になっている開放感のあるバルコニーです。お洗濯物も気持ち良く乾きそうですね。
【眺望】
バルコニーからは空が大きく広がる開放的な眺望が楽しめます!空に向かって深呼吸したくなるような気持ち良さ。バルコニーでの休憩タイムが毎日の楽しみになりそうです♬✨
・
以上で明大前フラワーマンションのご案内を終わります。
いかがでしたでしょうか??
明大前駅から徒歩5分のマンションです。
リノベーション済みという事で室内はとてもキレイですよ (っ・ω・)っ
内見のご予約やご質問などございましたらお気軽にお問い合わせくださいませ。
ご連絡お待ちしております。
弊社、不動産Agent 六棒株式会社では、
□リノベーションマンションはほぼ全て仲介手数料無料!
□その他一般仲介物件は仲介手数料20%~30%OFF!
にてお取り扱いしております!※弊社の「Agent Fee=仲介手数料」についてはご案内、ご面談の際に営業担当者よりご説明いたします!
なるべく沢山のお部屋をホームページに掲載したいと思っておりますが、時間的成約もございますので、残念ながらご紹介できるお部屋の一部しか掲載できておりません。
このホームページに掲載中のお部屋、その他サイト等で気になるお部屋、街を歩いていて気になったマンション等々ございましたら是非、弊社営業部までご相談ください!
~不動産Agent 六棒株式会社の特徴~
・一般仲介物件の仲介手数料は20%~30%OFFにてご案内中です!
・リノベーションマンションについてはほぼ全て仲介手数料無料です!
・住宅ローンに自信あります!
・頭金10万円より購入できます。是非ご相談下さい!
・お部屋のご見学は車で2~3件まとめて案内します!
・物件数3000件以上、新築戸建、リノベ物件も多数ご用意しております!
過去に販売していたお部屋の概要 こちらのお部屋の販売は終了いたしました
| 価格 | -万円 |
| 面積 | 43.68㎡ |
| 間取り | 1bedrooms(1LDK) |
| 管理費 | 月額10,500円 修繕積立金:月額7,800円 |
| 所在階 | 1階 |
| お問い合わせ・ご内見のご予約はこちらからお気軽にどうぞ | |
ここで間取り図のご紹介です。
※間取り図は別タブで開きますので、確認しながらご覧いただく事が出来ます。
□□□□□□□□□□□□□□□□□□□□□□□□□□□□□□□□□□□□□□□
★★★【明大前フラワーマンション】周辺のハザードマップをCHECK!!★★★
お部屋の記事を読む前に…!周辺のハザードマップをチェックしておきませんか!
明大前フラワーマンションのハザードマップは★こちらから…どうぞ★
□□□□□□□□□□□□□□□□□□□□□□□□□□□□□□□□□□□□□□□
今回のお部屋は1階、間取りは1LDK、専有面積は43.68㎡となります。
では、早速行ってみましょう!
お部屋へはエントランスを通らずに、甲州街道から直接入ります。並びのお部屋には店舗になっている所もありました。
手摺の付いた階段を、5段上がると玄関が…
カメラ付きインターホンが設置されていて、お部屋の中から訪問者を確認する事が出来ます。見てから応対するかを決められるのは嬉しいですね。
それではお邪魔します。
中はリノベーション済みで新築の雰囲気♪♪ 白いクロスに濃い色の建具がいいアクセントになっています。
振り返って玄関の様子です。
玄関ドアは安心のダブルロック。サムターンカバーも付いています。面倒でもちゃんと両方共ロックしましょうね。
入って左側には、ニッチカウンターとトールタイプのシューズボックスがありました。シューズボックスの棚は高さが変えられるので、ブーツなどでも収納可能ですよ。
では、まずは廊下突き当りのドアから開けてみましょう。
こちらは約12.8帖のリビング・ダイニング・キッチンとなります。
バルコニーに面した大きな窓から眩しい光が射し込んでいて、とても明るいお部屋ですね。
リビング側から見るとキッチンはあまり目立ちません。来客時などには、目を気にせず思う存分腕を振るえますね(^^)
扉の奥は、間口が広くて使いやすそうなクローゼットになっていました。奥行きもとても深く、大きな物を入れたり、衣装ケースなどでの収納力アップも良さそうです。
今度はキッチンを見ていきましょう。
白を基調にした清潔感のある調理台です。
調理台の下は収納に。広めのカウンターが付いていて、お料理を出したり下げ物の時にちょっと置くのに便利です。
水栓は浄水機能付きシャワー水栓です。
切り替えるだけで水道水が美味しいお水に早変わり。ヘッドが伸びるのでシンクのお掃除も楽々です。
コンロの前は塞がれているので、リビング・ダイニングへの油跳ねの心配もありません。
コンロは3口。片面焼きグリルが付いています。三つのコンロでお料理の効率も上がりますね。
お料理中は換気扇をお忘れなく!
調理台後ろには、冷蔵庫や家電ラック、食器棚などのスペースが確保されていました。
では、いちど廊下に戻って…
リビングを出て右側には収納棚。
次は洗面室を…
洗面室には洗濯機スペース、浴室、洗面台があります。
三面鏡ではなく、大きな一枚鏡の付いた洗面台です。
洗面ボウルには濡れても大丈夫な一段低くなった部分があり、コップなどを置くのにいいですね。下は収納になっていました。
水洗はハンドシャワータイプ。洗面ボウルを流したり、寝ぐせなんかを直したりも出来ますよ。
では浴室へ…
ダークブラウンの鏡面仕上げのアクセントパネルを使用していて、ぐっと夜の雰囲気です。
追い焚き機能が付いていますので、寒い季節の長風呂も大丈夫(^^)v
浴室乾燥機能は浴室のカビ予防だけでなく、お洗濯物乾燥やヒートショック予防など様々な働きをしてくれます。どんどん使っていきましょう。
次はトイレです。
シンプルって落ち着くんですよね(^^)
もちろん温水洗浄便座も完備されていますよ。INAX製『シャワートイレ』です。
では、次のお部屋へ…
こちらが約5.24帖の洋室となります。
窓は両側にロックの付いたタイプ。
外は甲州街道ですので、開けるとそれなりの音はします。寝室にするなら、遮音性の高いカーテンが良さそうですね。
収納はウォークインクローゼット!L字型にハンガー設置されています。ウォークインってなんか憧れます(笑)
それでは、最後にバルコニーへ出てみましょう。
きれいな長方形のバルコニー。奥行きもあって、4.68㎡という数字より広く感じます。
東側半分はビルで塞がれていますが西側半分が開けていますので、午後になれば陽射しが期待出来そうです。
こちらは甲州街道とは反対側なので、わりと静かですよ(^^)
・
・
以上で明大前フラワーマンションのご案内を終わります。
いかがでしたでしょうか?2020
明大前駅から徒歩5分のマンションです。
リノベーション済みという事で室内はとてもキレイですよ (っ・ω・)っ
内見のご予約やご質問などございましたらお気軽にお問い合わせくださいませ。
ご連絡お待ちしております。
□□□□□□□□□□□□□□□□□□□□□□□□□□□□□□□□□□□□□□□
★★★【明大前フラワーマンション】周辺のハザードマップをCHECK!!★★★
お部屋のご購入前に…!周辺のハザードマップをチェックしておきませんか!
明大前フラワーマンションのハザードマップは★こちらから…どうぞ★
□□□□□□□□□□□□□□□□□□□□□□□□□□□□□□□□□□□□□□□
弊社、不動産Agent 六棒株式会社では、
□リノベーションマンションはほぼ全て仲介手数料無料!
□その他一般仲介物件は仲介手数料20%~30%OFF!
にてお取り扱いしております!※弊社の「Agent Fee=仲介手数料」についてはご案内、ご面談の際に営業担当者よりご説明いたします!
なるべく沢山のお部屋をホームページに掲載したいと思っておりますが、時間的成約もございますので、残念ながらご紹介できるお部屋の一部しか掲載できておりません。
このホームページに掲載中のお部屋、その他サイト等で気になるお部屋、街を歩いていて気になったマンション等々ございましたら是非、弊社営業部までご相談ください!
~不動産Agent 六棒株式会社の特徴~
・一般仲介物件の仲介手数料は20%~30%OFFにてご案内中です!
・リノベーションマンションについてはほぼ全て仲介手数料無料です!
・住宅ローンに自信あります!
・頭金10万円より購入できます。是非ご相談下さい!
・お部屋のご見学は車で2~3件まとめて案内します!
・物件数3000件以上、新築戸建、リノベ物件も多数ご用意しております!
過去に販売していたお部屋の概要 このお部屋の販売は終了いたしました。
| 価格 | -万円 |
| 面積 | 43.68㎡ |
| 間取り | 1bedrooms(1LDK) |
| 管理費 | 月額10,500円 修繕積立金:月額5,200円 |
| 所在階 | 6階 |
| お問い合わせ・ご内見のご予約はこちらからお気軽にどうぞ | |

上にあがると半内廊下になっています。
臭いや湿気が籠らないように風の通りは確保しつつ、雨を防ぐことができています。
まさに内廊下と外廊下のいいと取りって感じですねヽ(・∀・ )ノ
こちらが今回ご紹介させて頂くお部屋の間取り図です。
リフォーム済みの1LDKです。
さっそく参りましょうヾ(*≧∀≦)ノ゙
玄関前にはカメラ付きのインターフォンが付いています。
お部屋の中にいながら外の様子を確認できるのは防犯面でも心強いですよ!!
ドアを開けると白を基調とした清潔感のある室内が見えます。
まずは玄関からご案内していきますね∠(`・ω・´)
玄関に入ってすぐ右手には高さの調節ができるシューズボックスが付いています。
背の高いブーツのような履物でも問題なく収納することができますよ(・`ω´・ ○)
サイドにはカウンターもあるので、お洒落なインテリアを置くこともできますよ。お家に入ってきて最初に目につく場所なので、センスのいいものを置きたいですね ( ・∀・)
奥へと進んでいきます。
玄関から廊下にかけての照明には人感センサーが付いているので、お買い物帰りなどで両手が塞がっていても問題ありません。自動で切ってくれるので省エネでもありますね!
突当りのドアです。
スリットから漏れる光が、この先のお部屋の期待度を更にあげていきます(☆Д☆)
はい!
こちらがリビング・ダイニング・キッチンです!!
約11帖の広さがありますよ!!
キッチンまでを四角い大きな一部屋としたこの間取りは、全体的に広く見えるので個人的には好きです(/ω・\)
バルコニーは最後にご案内します。
リビングにはクローゼットが付いているので、収納も問題ありませんね!!
下段にはハンガーポールが付いているのでお洋服が、上段は棚になっているので家電などを収納することができますよヽ(´∀`)
こちらはキッチンですね。
浄水機能付きの水栓、3口のグリル付きガスコンロが付いていますよ ( ̄∀ ̄*)
水栓はシャワーヘッドになっているので、シンクの隅々まで水を流すことができます。
普段は洗いにくい大きなお鍋でも簡単に洗うことができますよ!
収納は吊戸棚とカウンターの下に用意されています。
これだけあれば十分!と思える量がありますよ。
足元の収納は引き出しタイプになっているので奥まで無駄なく使うことができますし、取り出しも上からなので屈んで奥を覗きこむ必要もありません。
主婦に人気があるのも納得ですね!!
それでは廊下に戻って玄関までを順に見ていきましょう!!
なんだかよく分からない棚があります。
図面には載ってないのでデッドスペースを利用して・・・ってやつですね。
でん!
ででん!!
でででん!!! 以上です。
それではこちらのドアを開けてみましょう!!
こちらは洗面室になっています。
隣りには浴室の入口も見えますね!
大きな洗面化粧台ですよ!!
少ないスペースを最大限有効に使っていますねヽ(´∀`)
ミラーキャビネットになっているので、内部には歯ブラシや基礎化粧品といった小物を収納することができます。
洗面台の下部も収納になっていますよ。こちらは掃除用具などがいいかもしれませんね!
背後には洗濯機置場もあります。
洗面室は脱衣所も兼ねているので、脱いだお洋服はすぐに洗濯機に投げ込むことができますね!!部屋の中に脱いだ服が散乱することも無くなりそうです(っ・ω・)っ
それでは浴室へ。
換気乾燥機能が付いているので、洗った洗濯物をこちらに干すことも可能です。
夏の外出中に洗濯物が夕立に打たれる心配も無くなりますね(っ´∀`c)
追い焚き機能つきのお風呂なので、朝でも深夜でもタップリのお湯に浸かることができますよ。
男性はサッと済ませがちなお風呂ですが、たまにはゆっくりとお風呂を楽しむのも良いと思いますよ∠(`・ω・´)
玄関近くまで戻ってきましたね。
見ての通りトイレです。
シンプルな造りですが、しっかりとウォシュレットが付いているのが嬉しいですね!!
個人的にはこのくらいスッキリとしたトイレの方が落ち着くので好きです(*’д`*)
こちらで最後のお部屋です。
約6帖の洋室です。
窓が上下に付いていますね。明るさを確保しつつも室内を広く感じさせてくれているらしいですよ( ゚ω^ )ゝ
ハンガーポールの付いたクローゼットも付いています。
収納用に余計な家具を置く必要もないのでお部屋を広く使うことができますよ!!
最後にバルコニーです。
南向きではあるのですが、東側の半分の前に建物が建っているので陽の光が入るのは午後からになりそうです。
そのかわり西側の眺望は採光ですよヾ(*≧∀≦)ノ゙
では、以上で明大前フラワーマンションのご案内を終わります。
いかがでしたでしょうか??
駅から徒歩5分、2路線利用可とアクセスにも恵まれたマンションです。
リフォーム済みで綺麗なお部屋となっていますよ!!
内見のご予約やご質問などございましたらお気軽にお問い合わせくださいませ。
ご連絡お待ちしております。
弊社、不動産Agent 六棒株式会社では、
□リノベーションマンションはほぼ全て仲介手数料無料!
□その他一般仲介物件は仲介手数料20%~30%OFF!
にてお取り扱いしております!※弊社の「Agent Fee=仲介手数料」についてはご案内、ご面談の際に営業担当者よりご説明いたします!
なるべく沢山のお部屋をホームページに掲載したいと思っておりますが、時間的成約もございますので、残念ながらご紹介できるお部屋の一部しか掲載できておりません。
このホームページに掲載中のお部屋、その他サイト等で気になるお部屋、街を歩いていて気になったマンション等々ございましたら是非、弊社営業部までご相談ください!
~不動産Agent 六棒株式会社の特徴~
・一般仲介物件の仲介手数料は20%~30%OFFにてご案内中です!
・リノベーションマンションについてはほぼ全て仲介手数料無料です!
・住宅ローンに自信あります!
・頭金10万円より購入できます。是非ご相談下さい!
・お部屋のご見学は車で2~3件まとめて案内します!
・物件数3000件以上、新築戸建、リノベ物件も多数ご用意しております!
過去に販売していたお部屋の概要 このお部屋の販売は終了いたしました。
| 価格 | -万円 |
| 面積 | 43.68㎡ |
| 間取り | 1bedroom(1LDK) |
| 管理費 | 月額10,500円 修繕積立金:月額5,200円 |
| 所在階 | 3階 |
| お問い合わせ・ご内見のご予約はこちらからお気軽にどうぞ | |
今回ご紹介させて頂くお部屋はこちらです。
リノベーション工事済みなので中はピカピカに生まれ変わっていますよ(っ´∀`c)
さっそく行ってみましょう!!
このスペースのおかげで、ドアを開けても廊下から室内が見えないようになっています。
ドアの外にはカメラ付きのインターフォンもあるので防犯的にも安心できますね(´∀`)
ドアを開けると清潔感のある白を基調としつつも、木目を生かした温かみのある室内が出迎えてくれます。
シューズボックスの他に、カウンターと小さなシューズボックスがあります。
棚の高さの調節ができるタイプなので、ブーツなどの背の高い履物でも問題なく収納することができますよ(・`ω´・ ○)
シューズボックスは姿見を兼ねているので、お出かけ前の服装チェックも玄関でできます!
学生の多い街だからこそ、大人の見本となるべく服装には気を付けたいですね!!
それではまずは奥へと進んでいきましょう!!
いっきに行きますよ!!-=≡ヘ(*・ω・)ノ
ドアを開けました!!-=≡ヘ(*・ω・)ノ
キッチンが見えます!!-=≡ヘ(*・ω・)ノ -=≡ヘ(*・ω・)ノ
キッチンを通り過ぎて!!-=≡ヘ(*・ω・)ノ -=≡ヘ(*・ω・)ノ
ここは!!-=≡ヘ(*・ω・)ノ -=≡ヘ(*・ω・)ノ -=≡ヘ(*・ω・)ノ
リビング・ダイニングです!!!!!
通り過ぎて行ったキッチンは後でご紹介するのでご安心ください (○´ω`○)
家具の置いてある物件は写真でイメージが伝わりやすいので個人的にも好きです。。。
ぜんぜん違った使い方をしても良いのですけどね ( ´∀`)b
ソファーの後ろにはクローゼットがあります。ハンガーポールも付いているのでお洋服を掛けることもできますよ!!
ニッチと呼ばれる飾り棚です。
専用の照明が付いているので、お気に入りのインテリアも抜群に映えますよ!!
そしてキッチンです。
水栓は浄水機能付きです。シャワーヘッドになっているのでシンクの隅々まで水を流すことができます。大きくて洗いにくいホットプレートやお鍋も楽に洗うことができますよ。
コンロは2口のグリル付きガスコンロです。グリルが付いているので魚やお肉はもちろん、スキレット等を使えばピザなんかも焼くことができます( ゚ω^ )ゝ
吊戸棚と足元には引き出しタイプの収納が設置されています。
引き出しタイプの収納は、無駄なく奥まで使えることができますし、取り出しも上からなので重いものでも楽に取り出すことが可能です(´∀`*)ノ
それでは、いったん廊下に戻って・・・の前に、目の前にドアがあるので先ずはそこから。
こちらは洗面室ですね!
丸い洗面ボウルがとってもかわいいですね!!
洗面ボウルの周囲には遊びのスペースが設けられているので、写真の様に観葉植物を置いても良さそうです(・∀・)
収納はミラーサイドと足元にあります。
大容量とはいきませんが、ことさら不自由はすることはないかと思います。
もともと洗面周りは散らかりがちではあるので、普段から意識をして整理整頓に努めたいですね!!
洗面台の横は短い廊下になっていて、お風呂場へと続いています。
浴室の入口にはタオルラックがあるので、洗面室との間に暖簾を付ければ廊下を脱衣所として使う事もできますよヽ(・∀・ )ノ
浴室には換気乾燥機能が付いているので、洗濯物をこちらで干すこともできますよ。
また、照明の切り替えスイッチが付いていて、「現代的な白い光」と「柔らかな暖色光」とを自由に選択することができます。
その日の気分によって使い分けることができますよ(`・ω・´)
追い焚き機能もあるので、いつでも時間を選ばずにタップリのお湯に浸かることができますよ!!
1日の疲れを吹き飛ばして明日も馬車馬のように働きましょう!!
お風呂が綺麗なのは気持ちがいいですね!!
お休みの日は1日中入っていても良さそうな気がします。゜+.(o´∀`o)゜+.゜
それでは、改めて廊下に戻りましょう。
リビングからみて右手には収納が設けてありますね。棚の高さも調整ができます。こちらは掃除機などの掃除用具を入れていても良いかもしれませんね( ゚ω゚ )
収納の反対側には
トイレがあります!!
TOTOのウォシュレット付きのトイレです。
こちらのトイレは、特殊な素材で汚れが付きにくく、水の流れを工夫することによってかなりの節水に成功しています。従来型と比べてなんと1/4にまでの節水という事で、これは無駄に3回くらい流したくなりますね (っ・ω・)っ
玄関まで戻ってきちゃいましたね。
こちらは北側に位置している約4.5帖の洋室です。
窓際にカウンターが付いているので、ちょっとしたインテリアをこちらに置くことができますよ!
上下に採光窓が設置されているので、通常よりも明るいお部屋になっています。
収納も付いているので、快適に過ごすことができそうですよヾ(*≧∀≦)ノ゙
最後にバルコニーです。
南向きではあるのですが、正面に建っているビルによってちょうど東側半分が見えない状態です。
午後からは問題なく太陽の光を拝むことができそうです(☆Д☆)
では、以上で明大前フラワーマンションのご案内を終わります。
いかがでしたでしょうか??
駅から徒歩5分、2路線利用可とアクセスにも恵まれたマンションです。
リノベーション済みで新たに生まれ変わったお部屋となっていますよ!!
内見のご予約やご質問などございましたらお気軽にお問い合わせくださいませ。
ご連絡お待ちしております。
弊社、不動産Agent 六棒株式会社では、
□リノベーションマンションはほぼ全て仲介手数料無料!
□その他一般仲介物件は仲介手数料20%~30%OFF!
にてお取り扱いしております!※弊社の「Agent Fee=仲介手数料」についてはご案内、ご面談の際に営業担当者よりご説明いたします!
なるべく沢山のお部屋をホームページに掲載したいと思っておりますが、時間的成約もございますので、残念ながらご紹介できるお部屋の一部しか掲載できておりません。
このホームページに掲載中のお部屋、その他サイト等で気になるお部屋、街を歩いていて気になったマンション等々ございましたら是非、弊社営業部までご相談ください!
~不動産Agent 六棒株式会社の特徴~
・センチュリー21加盟店です!
・一般仲介物件の仲介手数料は20%~30%OFFにてご案内中です!
・リノベーションマンションについてはほぼ全て仲介手数料無料です!
・住宅ローンに自信あります!
・頭金10万円より購入できます。是非ご相談下さい!
・お部屋のご見学は車で2~3件まとめて案内します!
・物件数3000件以上、新築戸建、リノベ物件も多数ご用意しております!
過去に販売していたお部屋の概要 このお部屋の販売は終了いたしました。
| 価格 | -万円 |
| 面積 | 43.68㎡ |
| 間取り | 1bedroom(1LDK) |
| 管理費 | 月額10,500円 修繕積立金:月額5,200円 |
| 所在階 | 5階 |
| お問い合わせ・ご内見のご予約はこちらからお気軽にどうぞ | |
間取りのご紹介です。1LDK、43.68㎡。
5階・南向きにつき陽当り・眺望なお部屋です☀
室内はリノベーション済み。
ご内見のご希望・ご質問などございましたら、お気軽にお問い合わせくださいませ♪
過去に販売していたお部屋の概要 このお部屋の販売は終了いたしました。
| 価格 | -万円 |
| 面積 | 39.92㎡ |
| 間取り | 1bedroom(1LDK) |
| 管理費 | 月額:9,670円 修繕積立金:月額4,790円 |
| 所在階 | 4階 |
間取りのご紹介です。1LDK、39.92㎡。
東南角部屋。眺望、通風良好です。
室内はリノベーション済み。
【リノベーション内容】
■玄関・・・玄関収納、人感センサー
■廊下・・・収納、棚
■LD・・・クローゼット、カウンター
■キッチン・・・クリナップシステムキッチン(人造大理石トップ、浄水器内蔵シャワー水栓)
■浴室・・・パナソニックユニットバス(サーモ付シャワー水栓、保温浴槽)
■洗面・・・LIXILシャワー付洗面化粧台、防水パン
■トイレ・・・TOTOトイレ(ウォシュレット付き)
■共通・・・壁・天井クロス、照明器具、建具、給湯器(追炊、マルチリモコン付き)、フロアタイル(玄関・洗面・トイレ)、フローリング(廊下・洋室・LDK)、インターホン(カラーTVモニター付き)、給水、給湯、排水、ガス管(専有部分)、住宅用火災警報器、室内クリーニングなど
ご内見のご希望・ご質問などございましたら、お気軽にお問い合わせくださいませ♪
過去に販売していたお部屋の概要 このお部屋の販売は終了いたしました。
| 価格 | -万円 |
| 面積 | 43.68㎡ |
| 間取り | 1bedroom(1LDK) |
| 管理費 | 月額:10,500円 修繕積立金:月額5,200円 |
| 所在階 | 1階 |
間取りのご紹介です。1LDK、43.68㎡。
南向きにつき陽当り良好!
シングルの方におすすめです。ペットも一緒に暮らせます。(細則あり)
1階部分はエントランスからぐるりとまわり、甲州街道沿いに入口が並んでいます。
この1階の並びにはカイロプラクティックなどの店舗も入っています。
TVモニター付きインターホンが安心安全な暮らしをサポートしてくれます。
白基調の明るい玄関ホール。
右側にトールサイズのシューズBOXが設置されています。
表扉の半分には鏡がついているのでお出かけ前の身だしなみチェックもサッと済ませられます。
シューズBOXのとなりには小さなカウンターも。
お気に入りのインテリアや植物などディスプレイしてみてはいかがでしょうか?
玄関をあがると目の前に廊下がまっすぐのびています。
手前から洋室、トイレ、正面にLDKの扉。順番に見ていきます。
洋室は約6帖。お部屋内に設置されている家具もセットでついてきます。
道路沿いだとやっぱり気になるのが車の通行音ですが、扉は二重サッシなので室内は静かです。クローゼットも設置されています。
洋室のお隣はトイレ。ウォシュレット付き。
LDKへ。
縦長のLDKは約10帖。手前がキッチンスペース、奥がリビングダイニングスペースになっています。
キッチンは3口コンロ、浄水機能付き水栓と設備も◎。
一人暮らし分のキッチングッズなら上下の収納スペースに収まるのではないでしょうか。
近くに窓がないので、お料理の際は換気扇を忘れずに・・・。
リビングダイニングスペース。
白いクロスに白めの明るいフローリングの空間はどんな色あいの家具を置いてもしっくり馴染みそうです。
リビングダイニングスペースの横に洗濯機置場が設置されていました。
お洗濯が終わったら、すぐにバルコニーに干せる距離感がいいですね。
洗濯機置場の中はスペースに余裕あり。横に掃除機やフローリングワイパーなどの掃除用品も一緒に入れて置けるハズ。洗剤や洗濯ネットは上の棚へどうぞ。
リビングダイニングとキッチンスペースの中間地点に洗面室の扉があります。
洗面室。正面に洗面化粧台、左側にバスルーム。
お部屋にあわせて洗面化粧台も白。鏡の裏が一面収納になっているのでゴチャゴチャ散らかりがちな水まわりのアイテムもスッキリ片付けられます。
横にタオルハンガーも設置済み。
天然石のような柄の壁パネルが使われた落ち着いた雰囲気のバスルーム。
追い焚き、浴室換気乾燥機能付きと設備も充実しています。
雨の日や夜、花粉の気になる季節など外干しするのはちょっと・・・なんて日は乾燥機が活躍してくれます。
最後にLDKからバルコニーに出てみます。
こちらも扉は二重サッシ。
南向きのバルコニー。広さが確認できていませんが、洗濯物干し作業もゆとりをもってできそうです。この日は曇天でしたが、晴れた日は日差しも期待できます。
目の前の駐車場をはさんで外は井の頭通り。
バルコニーへ出ると車の走行音は気になる方は気になるかもしれません。
バルコニーには手すりのところにちょっとした花壇スペースみたいなものが作られているので鉢植えなどグリーンを置いてみるのもいいかも!グングン育てば外からも見えにくくなるのではないでしょうか。
明大前フラワーマンション、いかがでしたでしょうか?
ご内見のご希望・ご質問などございましたら、お気軽にお問い合わせくださいませ♪




































































































































































































































































弊社 公式HP
六棒総合研究所
掲載予定物件
価格変更と販売終了物件
ハザードマップ検索
適合証明書.jp
Facebook
Twitter
Instagram