・
□□□□□□□□□□□□□□□□□□□□□□□□□□□□□□□□□□□□□□□
いつも弊社ホームページをご覧頂き誠にありがとうございます。
明大前グランドハイツはお陰様で販売を終了致しました。弊社問合せフォームにてご要望頂けましたら、当お部屋でキャンセル等が発生した場合、他のお部屋が販売になりました際にご紹介させて頂きます。
不動産Agent 六棒株式会社
TEL:03‐5413‐5336
□□□□□□□□□□□□□□□□□□□□□□□□□□□□□□□□□□□□□□□
・
京王井の頭線『明大前』駅より徒歩3分の駅チカマンション、
『明大前グランドハイツ』のご紹介です!
明大前駅は京王線、井の頭線の主要駅であり、回送列車を含めたすべての
列車が止まるそう。渋谷、新宿へも乗り換えなしで行けます。便利ですね。
明治大学があるためか、ファーストフード店やお手頃なお食事処が駅回りに
はたくさんあります。駅ビルのフレンテ明大前の中にはフィットネスジムも
入っています。
さらに 商店街もあり、中にはスーパーもあるので食料品のお買い物も安心です。
商店街の中をちょっと散策。24時間営業のカラオケ店やファミレス、不動産屋も数店
ありました。ガッツ!カレーでは500円でカレーが食べられるそう。
食べログを見たところ、ボリュームもありおいしいとか。ヤヤッ!気になります。
マンションまでは駅改札をでたら右方向へ道なりにまっすぐ行き、
首都高へでたら左折して少し歩いて到着しました。
アッというまです。
明大前グランドハイツは昭和50年築、14階建て、総世帯数102戸の
大規模マンション。首都高沿いにドーンと佇んでいます。
なお、平成22年には大規模修繕工事が実施済。
築年数は経っていますが、古さはあまり感じません。
1階には歯医者や会社も入っていますが、居住スペースとはエントランスが別に
なります。
管理は安心の住込管理。エントランス入ってすぐ正面に管理人室があります。
夜間はオートロックになるので更に安心です。
エレベーターは2基設置。
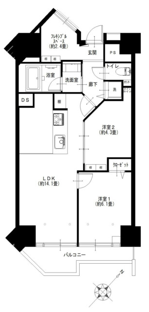
ここで間取り図のご紹介です。
※間取り図は別タブで開きますので、確認しながらご覧いただくことができます。
今回ご紹介するお部屋は4階、専有面積60.36㎡の2LDK。おひとり暮らしからスモールファミリーまで幅広くお使いいただけるお部屋です。では、早速行ってみましょう。
【玄関:人感センサー付き照明】
【フレキシブルスペース:土間のような空間】
【洗面室:三面鏡付き洗面化粧台】
【浴室:追い焚き機能・浴室換気乾燥機付】
【洗濯機スペース:収納棚付き】
【トイレ:洗浄機能一体型】
【LDK:約14.1帖・エアコン付き】
【LDK:キッチンは横向きのカウンタータイプ】
【キッチン:食器洗浄乾燥機付き】
【洋室1:約6.1帖・バルコニーに面した明るいお部屋】
【洋室2:約4.3帖・窓ナシながらすりガラスの扉で採光あり】
・
以上で明大前グランドハイツのご案内を終わります。
いかがでしたでしょうか??
明大前駅から徒歩3分のマンションです。
リフォーム済みという事で室内はとてもキレイですよ (っ・ω・)っ
内見のご予約やご質問などございましたらお気軽にお問い合わせくださいませ。
ご連絡お待ちしております。
弊社、不動産Agent 六棒株式会社では、
□リノベーションマンションはほぼ全て仲介手数料無料!
□その他一般仲介物件は仲介手数料20%~30%OFF!
にてお取り扱いしております!※弊社の「Agent Fee=仲介手数料」についてはご案内、ご面談の際に営業担当者よりご説明いたします!
なるべく沢山のお部屋をホームページに掲載したいと思っておりますが、時間的成約もございますので、残念ながらご紹介できるお部屋の一部しか掲載できておりません。
このホームページに掲載中のお部屋、その他サイト等で気になるお部屋、街を歩いていて気になったマンション等々ございましたら是非、弊社営業部までご相談ください!
~不動産Agent 六棒株式会社の特徴~
・一般仲介物件の仲介手数料は20%~30%OFFにてご案内中です!
・リノベーションマンションについてはほぼ全て仲介手数料無料です!
・住宅ローンに自信あります!
・頭金10万円より購入できます。是非ご相談下さい!
・お部屋のご見学は車で2~3件まとめて案内します!
・物件数3000件以上、新築戸建、リノベ物件も多数ご用意しております!
過去に販売していたお部屋の概要 こちらのお部屋の販売は終了いたしました
| 価格 | -万円 |
| 面積 | 60.36㎡ |
| 間取り | 2bedrooms(2LDK) |
| 管理費 | 月額14,300円 修繕積立金:月額9,300円 |
| 所在階 | 14階 |
| お問い合わせ・ご内見のご予約はこちらからお気軽にどうぞ | |
ここで間取り図のご紹介です。
※間取り図は別タブで開きますので、確認しながらご覧いただくことができます。
今回ご紹介するお部屋は14階、専有面積60.36㎡の2LDK。ファミリーやDINKSの方にお勧めのお部屋です。では、早速行ってみましょう。
石張りの玄関からフローリングの廊下へと続いています。最近は段差の小さい上り口も増えていますが、こちらはしっかり高さがあるタイプ。これならちょっと腰掛けて靴を履いたりにも便利ですね。天井までのシューズボックスは収納力抜群!玄関内に靴が溢れたりする心配もありませんよ。
こちらは約5.8帖の洋室。
LDKから離れ廊下に面した独立性の強いお部屋です。五角形という変わった形をしているので家具のレイアウトには少し工夫が必要かもしれません。ただ、パズルのようなもので使い勝手良く収まったときが嬉しいんですよね。
収納はクローゼット。コンパクトですが間口が広く使いやすそうです。
洗面室には洗面化粧台の他に洗濯機スペースと浴室がまとまっていて、脱衣所も兼ねています。洗面化粧台には身だしなみチェックに便利な三面鏡付き。裏がキャビネットになっているので、洗面周りの細かいものもスッキリ収納しておけますよ。洗濯機スペースには吊戸棚も付いているのでランドリー用品はそちらへどうぞ。
1316サイズの浴室はダークブラウンの鏡面仕上げパネルで高級感たっぷり。落ち着いた雰囲気で疲れも癒されそうです。ライトの映り込みがキラキラと綺麗ですね。追い焚き機能ではワンタッチでお風呂を沸かせます。ご家族でお風呂の時間がバラバラになっても、そのまま保温してくれるのでいつでも温かいお風呂に入れますよ。浴室換気乾燥機付き。
トイレはINAX製の洗浄機能一体型。トイレットペーパーのストックや、掃除道具を入れるのに便利な吊戸棚も付いています。アクセントのタイルがいい感じですね。
こちらは約14.2帖のリビング・ダイニング・キッチン。
南東向きバルコニーに面したお部屋です。内装は木目を生かした中間調のフローリングと白のクロスを使用したナチュラルテイスト。家具も合わせやすく幅広いイメージを創り出すことができます。現在は家具にブラックやグレイを多用しているのでシックな雰囲気になっていますが、明るいトーンや木目の家具を使うことによって全然違った印象にすることも可能ですよ。(家具はディスプレイなので参考にさせてもらいましょう)
LDKの収納棚はリビングに散らかりがちな細々としたものを片付けるのに便利です。棚の手前にスペースがあるのでフロアモップなど背の高いものでも大丈夫!
キッチンは開放的なカウンタータイプ。
お料理をしながらリビングダイニングとの会話を楽しめる人気のキッチンです!夕食の用意をしながらお子様の話に耳を傾けたり、おつまみを作りながらご友人とお話しをしたり・・・自然とキッチン周辺に人が集まる、そんなところが人気の秘密です。食器洗浄乾燥機や浄水機能一体型水栓などの便利機能も充実♪
後方には調理台とお揃いのカップボードが造り付けになっています。収納はもちろん家電を置いたり、作業スペースとしても有難い存在ですね。個人的にはゴミ箱が置けそうな足元のスペースが一押しです。
こちらは約6.4帖の洋室。
LDKと同じ南東向きのバルコニーに面したお部屋です。寝室としての広さは十分。メインベッドルームとして大きめのベッドを置いたり、ベッド以外のデスクやドレッサーなどを置いたりすることもできそうです。
収納は先程と同じフルオープンになるタイプ。大きさは倍くらいありそうです。
最後にバルコニーからの眺望をご紹介。
さすが最上階!文句なしの眺めですね!新宿や渋谷の高層ビル群も良く見えて夜景も楽しみです♬
・
以上で明大前グランドハイツのご案内を終わります。
いかがでしたでしょうか??
明大前駅から徒歩3分のマンションです。
リノベーション済みという事で室内はとてもキレイですよ (っ・ω・)っ
内見のご予約やご質問などございましたらお気軽にお問い合わせくださいませ。
ご連絡お待ちしております。
弊社、不動産Agent 六棒株式会社では、一般仲介物件は仲介手数料20%~30%OFF!
にてお取り扱いしております!
なるべく沢山のお部屋をホームページに掲載したいと思っておりますが、時間的成約もございますので、残念ながらご紹介できるお部屋の一部しか掲載できておりません。
このホームページに掲載中のお部屋、その他サイト等で気になるお部屋、街を歩いていて気になったマンション等々ございましたら是非、弊社営業部までご相談ください!
~不動産Agent 六棒株式会社の特徴~
・一般仲介物件の仲介手数料は20%~30%OFFにてご案内中です!
・住宅ローンに自信あります!
・頭金10万円より購入できます。是非ご相談下さい!
・お部屋のご見学は車で2~3件まとめて案内します!
・物件数3000件以上、新築戸建、リノベ物件も多数ご用意しております!
過去に販売していたお部屋の概要 こちらのお部屋の販売は終了いたしました
| 価格 | -万円 |
| 面積 | 70.47㎡ |
| 間取り | 2bedrooms(2LDK) |
| 管理費 | 月額16,700円 修繕積立金:月額10,850円 トランクルーム使用料:月額2,300円 |
| 所在階 | 14階 |
| お問い合わせ・ご内見のご予約はこちらからお気軽にどうぞ | |
ここで間取り図のご紹介です。
※間取り図は別タブで開きますので、確認しながらご覧頂く事が出来ます。
今回のお部屋は最上階の14階、間取りは2LDK、専有面積は70.47㎡。70㎡超で2LDKと余裕があり、ゆったり過ごしたい方にお勧めです。では、早速行ってみましょう!
エレベーターで最上階14階まで上がり、明るい外廊下を進むとお部屋に到着です。
玄関ドア横にはテレビモニター付きインターホンが設置されていて、お部屋の中から訪問者を確認する事が出来ます。映像で確認してから応対するかを決められるのがいいですね。
アクセントウォールが印象的な玄関ホール。リノベーション済みということでとても綺麗ですね。正面のドアのすりガラスから洩れる光に、明るいお部屋への期待が高まります。
玄関ドアには安心のダブルロック。開けづらいのはもちろんのこと、狙われづらいという効果も期待出来るらしいですよ。
シューズボックスはトールタイプ。天井まで使えて収納力は抜群!可動式の棚を調節すれば、ブーツなどでも収納可能です。
中央部分はカウンターになっていて、物を置くことが出来ます。実用的に鍵やコインを置くのもいいですし、観葉植物や写真などを飾ってインテリアを楽しんだりもいいですね。「玄関は家の顏」って言いますから綺麗にしておきたいものです。人感センサーが自動的にライトを点けてくれるので、暗い中手探りでスイッチを探す必要はありません。荷物が多くて両手が塞がっている時などにはとても重宝しますよ。
では、お部屋の中へ…
こちらは約16.7帖のリビング・ダイニング・キッチン。南東向きバルコニーに面した大きな窓のある、明るいお部屋です。キッチン部分にも窓があるので風通しも良さそうですね。二面に窓があると10倍近く換気能力が上がるらしいですよ(^^)木目を生かしたフローリングでナチュラルな雰囲気です。
リビング部分にはグレー系のアクセントウォール。石を積んだようなテクスチャで、光や見る角度によってもイメージが変わります。奥行きの深い収納棚も付いていますので、散らかりがちなリビングもすっきり片づけることが出来ますね。
キッチンは壁付けタイプ。場所を取らずにお部屋を広く使うことが出来ます。少し奥まった所にあり、キッチン内が丸見えという弱点もカバーされていますね。では、キッチンを詳しく見ていきましょう。
コーナーが窓になっていてとても明るいキッチンです。窓の外は開放的ないい眺めですよ♪
明るい色のパネル使用で目立たないようになった調理台。これもお部屋を広く見せる効果があります。
調理台下にはスライドキャビネットと食器洗浄乾燥機。スライドキャビネットは出し入れがしやすく、ぎっしり詰めても中身が確認しやすいのが特徴です。食洗機に洗い物をお任せすれば、食後の時間をみんなでのんびり過ごす事が出来ますね♬
上部には吊戸棚と換気扇。オープンキッチンなので臭いには注意が必要です。換気扇は調理少し前から回しておくと効果的ですよ。
コンロは3口、グリル付き。タイマーや温度設定などが可能な高機能タイプです。こういうのはIHの専売特許かと思っていましたが、ガスでも出来るんですね。
冷蔵庫は調理台横にスペースがありました。ここなら料理を邪魔されることなく出し入れ出来るのでいいですね。水栓は浄水機能付き。切替えひとつで気軽に美味しいお水を使えますよ。
では、次のお部屋へ…
こちらは約6.3帖の洋室。LDKと同じバルコニーに面したお部屋です。シンプルな色使いで、いろいろな家具を合わせることが出来そうですね。
収納はクローゼット。扉がフルオープンになり、間口が広くて使いやすそうです。中が確認しやすい収納は無駄な買い物を減らしてくれるらしいですよ。うちも少しは減っているのかな?(笑)
廊下に戻って、次のお部屋へ…
こちらは約9.6帖の洋室。10帖近い、洋室としては大きめなお部屋です。大きめのベッドを二つ置いても余裕のある広さ!メインのベッドルームにピッタリですね。北東向きの大きな窓からはバルコニー出られますので、後で出てみましょう。
収納は先程の洋室と同じタイプのクローゼット。ただ、大きさはこちらの方がかなり大きめですね。三枚扉の真ん中は片側に寄せて全開にすることが出来ます。キャリーバッグやスーツケースなどの大きな荷物も置けますし、衣装ケースなどで収納力を上げるのもいいですね。
では、バルコニーへ出てみましょう。バルコニーへの窓は防音、遮熱に優れた二重サッシになっています。
三角形のバルコニーは広くはありませんが出ることは可能。ただ、高い所が苦手な方は少し怖いかもしれませんね^^;)
外には開放的な眺めが広がっています。下の道は首都高速4号新宿線(甲州街道)。交通量も多めで音もそれなりにしますが、二重サッシのおかげで室内は問題ありません。
次は洗面室へ…
少し段差がありますので足元にご注意を。つま先をぶつけると痛いですからね^^;)
洗面室は洗面台の他に、洗濯機スペース、トイレ、浴室がまとまっていて、脱衣場も兼ねています。洗濯機スペースには吊戸棚も付いているので洗剤などはこちらへどうぞ。真っ白な洗面台は三面鏡付き。上部の照明のおかげで鏡を見る時に影になることもありませんよ。
細々した物が多くなりがちな洗面廻りには豊富な収納が有難いですね。タイプが違うものが揃っているのもポイントです。
水栓はハンドシャワータイプ。ヘッドが伸びて洗面ボウルを流したりに便利です。
次はトイレへ…
まず気になったのは白いドア??ですね。入って来た引き戸とは別のドアで、何処へ繋がっているのか非常に気になります。
もちろん洗浄便座付き。INAX製のシャワートイレです。
そして気になっていたドアですが・・・広いダクトスペースになっていました^^;)結構スペースが空いているので何か置けそうですが、置く時は確認してからお願いします。
浴室はブラウンの木目パネルで落ち着いた雰囲気。一日の終わりに疲れを癒すのにはピッタリの雰囲気ですね。
追い焚き機能付きユニットバスはワンタッチでお風呂を沸かせます。そのまま保温もしてくれるのでいつでも温かいお風呂に入れますよ。ご家族でお風呂の時間がバラバラになっても大丈夫(^^♪
ゆったり浸かれる広々とした浴槽。
浴室換気乾燥機は浴室換気の他に、寒い季節の浴室暖房、雨天や花粉の季節のお洗濯物乾燥など様々な使い方があります。あまり使われていないようですが、「涼風」ボタンは暑い季節には強い味方。冷房ではありませんが火照った顏に風が心地よいですよ(*´▽`*)
それでは、最後は南東向きのバルコニーのご紹介。
LDK、洋室どちらの窓からでも出られます。
二部屋分の幅を持つ広々としたバルコニー。奥行きのある洋室側には物干し金具も設置されていますので、お洗濯物を干すことも出来ますよ。南東向きなので午前中から干すのがお勧めです。
バルコニーの外はまさに絶景!!!遥か先まで見晴らせる素晴らしい眺めです。甲州街道とは反対側なので、車の音も気になりませんよ(^^♪
・
以上で明大前グランドハイツのご案内を終わります。
いかがでしたでしょうか??
明大前駅から徒歩3分のマンションです。
リノベーション済みという事で室内はとてもキレイですよ (っ・ω・)っ
内見のご予約やご質問などございましたらお気軽にお問い合わせくださいませ。
ご連絡お待ちしております。
弊社、不動産Agent 六棒株式会社では、
□リノベーションマンションはほぼ全て仲介手数料無料!
□その他一般仲介物件は仲介手数料20%~30%OFF!
にてお取り扱いしております!※弊社の「Agent Fee=仲介手数料」についてはご案内、ご面談の際に営業担当者よりご説明いたします!
なるべく沢山のお部屋をホームページに掲載したいと思っておりますが、時間的成約もございますので、残念ながらご紹介できるお部屋の一部しか掲載できておりません。
このホームページに掲載中のお部屋、その他サイト等で気になるお部屋、街を歩いていて気になったマンション等々ございましたら是非、弊社営業部までご相談ください!
~不動産Agent 六棒株式会社の特徴~
・一般仲介物件の仲介手数料は20%~30%OFFにてご案内中です!
・リノベーションマンションについてはほぼ全て仲介手数料無料です!
・住宅ローンに自信あります!
・頭金10万円より購入できます。是非ご相談下さい!
・お部屋のご見学は車で2~3件まとめて案内します!
・物件数3000件以上、新築戸建、リノベ物件も多数ご用意しております!
過去に販売していたお部屋の概要 こちらのお部屋の販売は終了いたしました
| 価格 | -万円 |
| 面積 | 62.09㎡ |
| 間取り | 3bedrooms(3LDK) |
| 管理費 | 月額14,900円 修繕積立金:月額4,800円 |
| 所在階 | 7F |
| お問い合わせ・ご内見のご予約はこちらからお気軽にどうぞ | |
ここで間取りのご紹介です。3LDK、62.09㎡。
お部屋のある7階へ上がります。
お部屋は3方角部屋。写真手前の扉がご紹介するお部屋になります。
廊下は外廊下ですが、お部屋の前はちょうど壁になっているので雨や風の影響
もよけられそうです。
モニター付きインターフォンがついているので、訪問者の顔も確認できます。
玄関を入ると右手に真っ白のシューズBOXがつくられています。
下からライトアップされているので、窓がなくても足元が明るくていいですね。
収納量も◎です!
廊下はL字型になっています。
途中に棚の高さが変えられる物入れもつくられています。
そのまま廊下の奥まで進み、採光部のあるトビラの奥へ・・・。
中へ入ります。
約12.6畳のリビングダイニング・キッチン。
開口部は南向き。明るいお部屋は家族の憩いの場にピッタリですね!
最後にご紹介しますが、バルコニーからの眺めもグーなので窓際にソファとか
置いて外をながめつつ過ごすのもよさそうです。
ゆったりしたキッチンスペース。
一番奥に冷蔵庫を置くスペースがつくられています。
光沢のある木目柄のシステムキッチンは3口コンロに大割りの引き出し収納と
使い勝手もよさそう。ワークトップは しっとりした質感が魅力の人造大理石が
使われています。
カウンタータイプなのでリビングにいる家族と会話を楽しみながら、お料理が
したい方にはオススメです。
つづいて水まわりをご紹介します。
洗面室は入口入って、右手に洗面化粧台と洗濯機置場、正面が
バスルームになっています。脱衣スペースも余裕ありますね。
システムキッチンと同じく光沢のある木目柄の洗面化粧台。
3面鏡の裏は一面が収納になっています。ゴチャゴチャ散らかりがちな
洗面まわりの物もスッキリ片付けられます。
蛇口はグーッと引き出せるのでお掃除も楽らくできます。
洗面化粧台の左となりは洗濯機置場。
上には棚もつくられています。
落ち着いた木目柄のパネルが使われたバスルーム。
浴室換気乾燥機と追い焚き機能がついています。
トイレは玄関上がってすぐ左側につくられています。
ウォシュレットと上には吊戸棚付き。
トイレ内によーく見ると扉がありますが、中はパイプスペースになっていました。
ここから洋室を3部屋、順番にご紹介します。
1部屋目は約5.4畳の広さ。玄関から一番近いお部屋になります。
枕棚付きのクローゼットがつくられています。
残りの2部屋はリビング内に入口があります。
2部屋目は約4.5畳の広さ。
クローゼットもついています。
3部屋目は約4.9畳の広さ。
3部屋ともクローゼットがつくられています。
収納があると生活スペースを有効に使えるのでいいですね。
最後にバルコニーにでてみます。南向き、約2.68㎡。
7階からの眺めです。ハッと息をのむ感じの爽快な景色。空が近く感じます。
晴れた日や夜景も見てみたいですね!
ちなみに3つある洋室からの眺めもグーです。
こちらのマンションはペットもOKです。(飼育細則あり)
みなさまのご内見、こころよりお待ちしております!
























































































































































弊社 公式HP
六棒総合研究所
掲載予定物件
価格変更と販売終了物件
ハザードマップ検索
適合証明書.jp
Instagram