・
□□□□□□□□□□□□□□□□□□□□□□□□□□□□□□□□□□□□□□□
いつも弊社ホームページをご覧頂き誠にありがとうございます。
ネオコーポ芦花公園はお陰様で販売を終了致しました。弊社問合せフォームにてご要望頂けましたら、当お部屋でキャンセル等が発生した場合、他のお部屋が販売になりました際にご紹介させて頂きます。
不動産Agent 六棒株式会社
TEL:03‐5413‐5336
□□□□□□□□□□□□□□□□□□□□□□□□□□□□□□□□□□□□□□□
・
今回は京王線『八幡山』徒歩7分、『芦花公園』徒歩7分のリノベーションマンション
『ネオコーポ芦花公園』のご紹介です!
快速停車駅『八幡山』からスタートします!
駅を降りるとガード下に京王リトナード八幡山があり、スーパーマーケット「京王ストア」や飲食店等色々なお店が入っております。
周辺にはスーパーマーケット「オオゼキ」や薬局などもあります。
環八を渡るともう少しで到着です!
あの激安の殿堂やコンビニ、スターバックスもありました。
こちらは京王線「芦花公園」徒歩7分ほどでマンションまで環八を渡らず住宅街を通って行けます。
深夜1時までのスーパーマーケット「サミット」と24hのフィットネスクラブ、銀行やコンビニもあります。
総戸数111戸の大規模マンション『ネオコーポ芦花公園』
昭和52年5月築、9階建て。
向かいにファミリーマート、スターバックスがあります。
長いアプローチからエントランス向かいます。中庭の植栽もきれいに整えられてました。
大規模修繕工事実施済できれいになったエントランスとエレベーターホール。
オートロックはありませんが、管理は安心の住込み管理。
管理人室の隣には宅配BOXもあり、留守がちな方でも安心して宅配便を使う事が出来ますよ(^^)
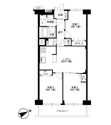
ここで間取り図のご紹介です。
※間取り図は別タブで開きますので、確認しながらご覧いただく事が出来ます。
今回のお部屋は3階、間取りは3LDK、専有面積は66.00㎡となります。
お部屋をグルリと取り囲んだバルコニー、気になります♪♪
では、早速行ってみましょう!
エレベーターを3階で降りて…
明るい外廊下を進みます。すりガラスを設置し、開放感とプライバシーを両立していますね。
玄関脇に設置されたカメラ付きインターホンで、お部屋の中から訪問者を確認する事が出来ます。玄関まで来る必要がないのはいいですね。
それではお邪魔します。
玄関ドアを開けると、突き当りのドアまで廊下が真っ直ぐに伸びていました。明るい色のフローリングや建具などを使用した、ナチュラルな印象の空間です。
振り返って…
玄関ドアは安心のダブルロック。面倒でも両方ロックしましょうね(^^)
シューズボックスはトールタイプ。棚板の高さ調整が出来るので、ブーツなどでも収納可能です。
人感センサーは、両手が塞がっていても自動的にライトを点けてくれますよ。いつでも明るい玄関が迎えてくれるのは嬉しいですよね♬
まずは、正面のドアから開けてみましょう。
こちらは約12.7帖のリビング・ダイニング・キッチンとなります。
バルコニーに面した大きな窓から明るい光が射し込んでいて、とても明るいお部屋ですね。お部屋の中も明るい色使いのナチュラルな雰囲気です。
アクセントウォールはお部屋の雰囲気に合わせた優しい感じ。建具も白木のようで手触り最高ですよ。
家具は見本なので付いてはいませんが、生活のイメージがし易くて助かります。大きさや色、質感などの参考にさせてもらいましょう。
リビング中央辺りには収納棚がありました。棚を調節すれば、掃除機なども入りそうです。
今度は、キッチンを見ていきます。
調理台の下は、食洗器と収納になっていました。
洗い物は食洗器にお任せして、食後はのんびり過ごせそうですね♬
コンロは3口。しかも操作パネルを見る限り、温度設定やタイマーなどだいぶ賢いコンロみたいですよ(^^)
カウンターキッチンですので、お料理中は換気扇をお忘れなく。特にグリル使用時は絶対ですよ!
水栓は浄水機能付きシャワー水栓です。
切り替えひとつで水道水が美味しいお水に早変わり。ヘッドが伸びるのでシンクのお掃除などにも便利です。
調理台後ろには、冷蔵庫や家電ラック、食器棚などのスペースがありました。
では、次のお部屋へ…
こちらが約5.5帖の洋室となります。
このお部屋の窓も南西向きなので陽当りは良好ですね。オーソドックスな雰囲気なので、お好きな家具やカーテンを選んで頂く事が出来そうです。
収納は、間口が広くて使いやすそうなクローゼットになっていました。中が全部見えると服のチョイスも楽ですよね。
では隣のお部屋へ…
リビングの引き戸です。
こちらは約4.3帖の洋室となります。
少しコンパクトですが、入口が引き戸でデッドスペースもありませんので、ベッドなどを置いて寝室としても十分使う事が出来ます。
収納は、やはり広く開くタイプのクローゼット。奥行きもあるので衣装ケースなどで収納力アップもいいですね。クローゼットの横にはオープンになった収納棚もありました。
それでは、いちど廊下に戻って…
出てすぐの所には収納棚が。
では次のお部屋へ…
収納棚隣のドアです。
こちらは約5.8帖の洋室となります。
二面採光なので明るいのはもちろんの事、風通しも良さそうです。一番広い洋室ですのでメインの寝室にいかがでしょう。
収納は、今までのお部屋と同じタイプのクローゼットです。
次は洗面室へ…
三面鏡の付きの洗面台。清潔感がありますね。
収納は洗面台下とミラーキャビネットになります。細かい物が多くなりがちな洗面周りには、ミラーキャビネットの様な収納があると助かります。
水洗はハンドシャワータイプ。洗面ボウルを流したり、寝ぐせを直したりも出来ますよ。
洗面台横の洗濯機スペースには吊戸棚が付いていて、洗剤や柔軟剤などのお洗濯グッズをまとめて置く事が出来ます。
では、浴室へ…
追い焚き機能が付いていますので、いつでも温かいお風呂に入れます。お風呂って自分のタイミングで入りたいですよね(^^)
ゆったり浸かれる1216の浴槽。
浴室乾燥機は浴室の乾燥だけでなく、お洗濯物乾燥やヒートショック予防など様々な働きをしてくれます。どんどん使っていきましょう。
次はトイレです。
梁と柱の隙間に上手く作られた収納です。トイレットペーパーなどはトイレ内にストックしておきたいものですよね(笑)もちろんウォシュレットも完備していますよ。
それでは、最後にバルコニーへ出てみましょう!
リビングから出て、進んで行きます。
なんとバルコニー面積は24.32㎡!ルーフバルコニーとか以外ではあまり見かけない広さです。こちらは南西向きで陽当りは良好ですので、お洗濯物もカラッと乾きそうですね♬ 干すなら昼過ぎがお勧めですよ。
外の様子…
前には広く空いたスペースがあり、開放感もありますよ。
では、コーナーを曲がって…
北西側のバルコニー。長さ、凄いですね^^;)
前には2~3階建ての住宅が並んでいますので、まずまずの眺めですし、とても静かですよ。
更に進んで、コーナーを曲がります。
北東側のバルコニーです。
幅は短いですが、奥行きがあるので広く感じますね。正面の壁を破ると玄関前ですので、非常時にはここからも出られます。
こちらにもそれ程高い建物はありません。空が広くて気持ち良いですね(^^)
・
・
以上でネオコーポ芦花公園のご案内を終わります。
いかがでしたでしょうか??
芦花公園駅から徒歩7分のマンションです。
リノベーション済みという事で室内はとてもキレイですよ (っ・ω・)っ
内見のご予約やご質問などございましたらお気軽にお問い合わせくださいませ。
ご連絡お待ちしております。
弊社、不動産Agent 六棒株式会社では、
□リノベーションマンションはほぼ全て仲介手数料無料!
□その他一般仲介物件は仲介手数料20%~30%OFF!
にてお取り扱いしております!※弊社の「Agent Fee=仲介手数料」についてはご案内、ご面談の際に営業担当者よりご説明いたします!
なるべく沢山のお部屋をホームページに掲載したいと思っておりますが、時間的成約もございますので、残念ながらご紹介できるお部屋の一部しか掲載できておりません。
このホームページに掲載中のお部屋、その他サイト等で気になるお部屋、街を歩いていて気になったマンション等々ございましたら是非、弊社営業部までご相談ください!
~不動産Agent 六棒株式会社の特徴~
・一般仲介物件の仲介手数料は20%~30%OFFにてご案内中です!
・リノベーションマンションについてはほぼ全て仲介手数料無料です!
・住宅ローンに自信あります!
・頭金10万円より購入できます。是非ご相談下さい!
・お部屋のご見学は車で2~3件まとめて案内します!
・物件数3000件以上、新築戸建、リノベ物件も多数ご用意しております!
過去に販売していたお部屋の概要 このお部屋の販売は終了いたしました。
| 価格 | -万円 | |
| 面積 |
|
|
| 間取り | 3bedrooms(3LDK) | |
| 管理費 | 月額:9,920円 修繕積立金:12,660円 | |
| 所在階 | 1階 | |
| お問い合わせ・ご内見のご予約はこちらからお気軽にどうぞ | ||
・
・

今回ご紹介するお部屋の間取りをご紹介です♪
3LDK、66㎡のお部屋です。
それでは早速お部屋へ入っていきましょう!


1階のお部屋なのでエレベーターや階段を昇らずサクッとお部屋に着いちゃいます✿
カメラ付インターフォンなので安心です☆ミ


玄関に入ってきました!
玄関床は淡いカラーの石調になっていて落ち着きのある空間を演出してくれます(*´˘`*)♡

シューズボックスはたくさんの靴がしまえるのはもちろん、扉の一部は全身鏡になっています♪
身だしなみをチェックしてからお出かけできちゃいますよ(o^-^o)

廊下を進んで直ぐの左の扉を開けていきましょう!

こちらはサニタリールームです。
白を基調とした淡いカラーで統一され清潔感ある空間となっています(●´∀`)

洗面台は便利な三面鏡です!

引き出し収納はもちろん、鏡裏にも収納が用意されています!
お風呂上りのケア用品やリネン類などしまうのに便利ですね((´I `*))

蛇口は上下可動式なので手が埋まっていても簡単に水を出すことが出きます!

お隣には洗濯機置場があります!
水廻りがまとまっているのでお掃除がラクに出来ます(*´v`*)ノ

お次はこちらの扉を開けていきましょう♪

バスルームがあります!
木目調の造りは自然を彷彿とさせます。
居心地の良い空間でゆったりとくつろいじゃいましょうd(‘v`●)
ワイドミラーはお部屋を広く見せてくれますよ♪

蛇口はシャワーとカランに分かれているのでとても便利です!
浴槽は体にフィットする丸みをおびた造りになっています(*´▽`)

廊下奥へ進んで行きましょう☆


サニタリールーム隣にはトイレがあります。
トイレットぺーパーホルダーは携帯などのちょっとした物を置くのに便利ですね
(´∀`*)
吊戸棚も用意されているのでストック品はこちらへ♪


トイレ向かいの扉には洋室が有ります!
窓が付いているので電気なしでもお部屋が明るいです❃
1階で外に面していますが半透明ガラスなので安心です(●´∀`)

こちらのお部屋の収納はバーが付いているのでお気に入りの服をかけておけます☆
上に棚があるので季節もので着なくなったお洋服などしまってもいいかもしれません(●’∀’●)ノ


リビングダイニングキッチンへやってきました!
キッチンは広々とした造りになっています!
調理スペースがしっかり取ってあるのでいちいち片付ける事もありませんよ(●´∀`)

調理時間短縮には嬉しい3口コンロに浄水機能も付いています☆ミ

キッチンカウンターがあるので出来上がった料理はこちらに置いておくこともできます♪


キッチンとなりには5.6帖の洋室があります!
こちらも窓が付いているのでお部屋がとても明るいです(*´˘`*)♡

小型の収納も用意されているので生活感を隠せます♪



リビングダイニングは奥行のある広々とした空間になっています(´∀`*)
照明がついているので陽の光が届かない所も明るくなりますよ✿


3枚扉を開けていくとより広々とした空間へ早変わり!
障害物がない分お掃除もラクラクです(*´˘`*)♡


戸を閉めれば5.7帖のプライベート空間になりますよ(^-^)

こちらも収納が用意されているので、お洋服など綺麗に収納しちゃいましょう♡


バルコニーは21.3㎡と広々空間!
物干し竿は高い位置に掛けられるので裾が長いお洋服も干せますよ(●´∀`)

お部屋の周りは植裁の緑が落ち着きます♪
いかがでしたでしょうか?
閑静な住宅街で新しい生活をしてみませんか?
皆様のご内見心よりお待ちしております!
過去に販売していたお部屋の概要 このお部屋の販売は終了いたしました。
| 価格 | -万円 |
| 面積 | 61.60㎡ |
| 間取り | 3bedrooms(3LDK) |
| 管理費 | 月額:9,230円 修繕積立金:11,790円 |
| 所在階 | 2階 |
| お問い合わせ・ご内見のご予約はこちらからお気軽にどうぞ | |

今回ご紹介するお部屋の間取りのご紹介です♪
3LDK、61.60㎡のお部屋です。
それでは早速お部屋へ入っていきましょう!


お部屋までの廊下は高さのある壁が設置されているので安心です(*´˘`*)♡
こちらの青い扉のお家です。

玄関の中へやってきました☆
木目調の廊下と扉が落ち着きのある空間を演出しています!

シューズボックスの扉は全身鏡付きです✿
お出かけの前にはこちらでチェックできます(*´▽`)
収納もたっぷり用意されているのでたくさん靴がしまえます♪

玄関入って右手前の扉を開けていきましょう!

こちらはサニタリールームです!
一人で入るのに丁度良い大きさです☆


洗面台は、嬉しい三面鏡です!
鏡裏収納、引き出し収納が用意されています(●´∀`)
化粧水や補充品などしまえます♪

お次はバスルーム!
淡いカラーの木目調の壁はお部屋を明るくしてくれます。
浴槽は大きい造りになっているので、ゆったりと入浴出来ますよ(o^-^o)

もちろん追い焚き機能付きです♪

サニタリールームお隣はトイレが有ります。
嬉しいウォシュレット機能付きです(●´∀`)

廊下左の扉を開けていくと・・・


洋室があります!
小窓から外の光がはいってくるのでお部屋が明るくなりますよ(^-^)

収納は大容量収納です!
バーも付いているのでお洋服は掛けてしまっておけますよ(●’∀’●)


リビングダイニングへやってきました!
こちらは家具付きのお部屋になっています(●´∀`)

エコカラットの装飾がお部屋をおしゃれにしてくれています(*´˘`*)♡


キッチンは広々としています。
冷蔵庫設置場所もしっかりと確保されています✿

上下に収納もたっぷり用意されています♪

三口コンロや食器洗浄機は時間短縮にとても便利!

リビングダイニングにつながるカウンターが用意されているのでお料理を持って移動する手間が省けます☆


キッチン横のお部屋へやってきました!
こちらは約6.1帖の洋室となっています☆
エアコンの設置ができますよ♪

ピクチャーレールにはお気に入りの絵や写真などをどうぞ((´I `*))
収納もしっかり用意されていますよ☆ミ


お隣は約5.8帖の洋室です!
南東からの陽の光が入って気持ちが良いですd(‘v`●)

収納スペースには段差がないのでお掃除ラクラクです♪

こちらの洋室はスライド扉になっているのでリビングダイニングとつなげて使うこともできますよ♪


バルコニーからは緑豊かなお庭を眺望出来ますよ☆ミ
いかがでしたでしょうか?
皆様のご内見心よりお待ちしております!
過去に販売していたお部屋の概要 このお部屋の販売は終了いたしました。
| 価格 | -万円 |
| 面積 | 44.46㎡ |
| 間取り | 2bedrooms(2DK) |
| 管理費 | 月額:6,510円 修繕積立金:8,300円 |
| 所在階 | 8階 |
| お問い合わせ・ご内見のご予約はこちらからお気軽にどうぞ | |
間取図はこちら。
南東向きの2DK+WIC 44.46㎡
エレベーターホール右側の奥行きのあるアルコープからお部屋に入ります。
玄関を入ると正面にシューズBOX、扉に鏡がありますので、お出かけ前の最終チェックはこちらで。
玄関ホールからお部屋へ入ります。
収納も十分なキッチンスペース。
ダイニングキッチンは8.0帖。コンパクトですが無駄のない間取りです。
ダイニングキッチンの奥のベッドルームは5.0帖。
ダイニングキッチンとつなげて広々としたLDKとしても使えます!
こちらはサニタリールーム。洗面台はシャンプードレッサー。
可動棚の収納もあり背の高い物も楽々収納出来ます!
トイレはもちろんウォシュレット。バスルームには浴室乾燥と追炊き付です!
こちらのベッドルームは5.6帖。南東向きの日当たりの良いお部屋です。
嬉しいウォークインクローゼットがありました。
分かりづらいですが、遮る建物がなく新宿のビル群が一望できる眺望です!
マンションから徒歩7分ほどで緑豊かな蘆花恒春園(芦花公園)があります。
アスレッチックもあり、お散歩ジョギングなども楽しめます!
新規リノベーション・家具付きマンションの『ネオコーポ芦花公園』
皆様のご内見、こころよりお待ちしております!



























































































































