□□□□□□□□□□□□□□□□□□□□□□□□□□□□□□□□□□□□□□□
いつも弊社ホームページをご覧頂き誠にありがとうございます。
ニューライフ等々力はお陰様で販売を終了致しました。弊社問合せフォームにてご要望頂けましたら、当お部屋でキャンセル等が発生した場合、他のお部屋が販売になりました際にご紹介させて頂きます。
不動産Agent 六棒株式会社
TEL:03‐5413‐5336
□□□□□□□□□□□□□□□□□□□□□□□□□□□□□□□□□□□□□□□
・
渓谷で有名な等々力より
リノベーションマンションニューライフ等々力のご紹介です!
アクセス
東急大井町線「等々力」駅徒歩15分、「尾山台」駅徒歩16分
□□□□□□□□□□□□□□□□□□□□□□□□□□□□□□□□□□□□□□□
★★★【ニューライフ等々力】周辺のハザードマップをCHECK!!★★★
お部屋の記事を読む前に…!周辺のハザードマップをチェックしておきませんか!
ニューライフ等々力のハザードマップは★こちらから…どうぞ★
□□□□□□□□□□□□□□□□□□□□□□□□□□□□□□□□□□□□□□□
センチュリー21六棒ではご案内に先立ってハザードマップをご確認いただいております!
等々力と言えば等々力渓谷!!
等々力という名前の由来にもなっているようで、滝の音が「トドロク」事から等々力という名前になったという話しは有名です。
等々力不動近くの稚児大師像の辺りからはもみじが見えて来て都内では珍しくキレイな紅葉。
お不動さんの石段を上がって行くとイチョウの巨木があって紅葉ばっちり楽しめます。
反対側の日本庭園も落ち着いていい感じで、運が良ければ川面で遊ぶカルガモを見られますc (っ・ω・)っ
絶えず鳥のさえずりが聞こえてくるので、心にも体にもゆとりが生まれてくるような気がします。
こちらは等々力駅。
将来的には地下化の予定があるそうですが、その工事によって渓谷の湧水が止まってしまう可能性があるらしく、なかなか工事が実現していないようです( ・`ω・´)
駅前は昔ながらの町って感じですね。
スナック、焼き鳥、ラーメン・・・・
今も営業しているのかは謎ですが、少し気になりますよね (/ω・\)チラッ
異世界に通じてそうな階段。
立ち入り禁止と言われると入ってみたくなるのが人間です。
外から見る限り、階段の先はスナックみたいですが、、、、
うーーん、気になります ( ゚д゚ )
駅の周りには今どきのお店がチラホラしています。
とは言っても、駅からマンションまでは歩いて15分。駅前での買い物はチョットしんどいですよね。
マンションの近くにはスーパーがありますし、この辺りはそこまで探索しなくてもいいかと思います( ・`ω・´)
等々力には何度かきていますが、この豚丼のお店はノーマークでした。
こんど機会があれば入ってみたいですね。
それではマンションへと向かって歩きましょう。
基本的には真っ直ぐです。
テクテク歩きます。
まっすぐ、まっすぐ。
まっすぐ、まっすぐ
しばらく歩くとドラッグストアの「ぱぱす」
郵便局や・・・・
サミットまでくればマンションまではもう少しです。
サミットの裏手にはトドロ城跡があります。正確な場所は分かってないらしく、いまは園芸高等学校のあたりに合ったんじゃないかなーってことになっています。
東京都立園芸高等学校はたくさんの緑に囲まれた、とても敷地面積の広い高校です。 都内唯一の動物科があり、多くの種類の動物が飼育されているのも魅力的ですよ(U^ω^)
もうマンションの近くです。
ビリヤード屋さんが近所にあります。
ダーツの字も見えますが、現在ダーツは休業中との事。
ビリヤードは一見とっつきにくいですが、はまれば無限に遊べるゲームですので是非一度挑戦してみてください。
ニューライフ等々力は昭和54年築、10階建て、総世帯数127戸の大規模マンション。
(平成23年12月に大規模修繕工事実施済み。)
1階部分には飲食店や眼科・皮膚科などのクリニックが入っています。
細則がありますが、ペットも一緒に暮らせます。(犬及び猫あわせて2匹まで)
周囲は静かな住宅街。マンション前からは等々力行きのバスもでています。
これで雨の日や疲れた日の移動も安心。
エントランスは自動ドア。重い荷物を持っている時も出入りがスムーズにおこなえます。管理形態は安心の住込管理。オートロックはありませんが、人がいることで防犯効果が期待できます。
エレベーターは1基。戸数が多いので時間帯によっては少し待つことがあるかもしれません。
共用廊下は外廊下タイプ。雨風に弱い反面、臭いや湿気が籠ることもありませんので快適に過ごせますよ!!
ここで間取り図のご紹介です。
※間取り図は別タブで開きますので、確認しながらご覧いただく事が出来ます。
□□□□□□□□□□□□□□□□□□□□□□□□□□□□□□□□□□□□□□□
★★★【ニューライフ等々力】周辺のハザードマップをCHECK!!★★★
お部屋の記事を読む前に…!周辺のハザードマップをチェックしておきませんか!
ニューライフ等々力のハザードマップは★こちらから…どうぞ★
□□□□□□□□□□□□□□□□□□□□□□□□□□□□□□□□□□□□□□□
今回のお部屋は2階、間取りは2LDK、専有面積は61.18㎡となります。
では、早速行ってみましょう。
エレベーターを2階で降りて…
中庭を囲む外廊下を進みます。途中で半階分階段を下りたので、1階から階段を上がった方が早いかもしれませんね^^;)
そうこうしているうちに、玄関に到着です。
カメラ付きインターホンが設置されていて、お部屋の中から訪問者を確認する事が出来ます。玄関まで来る必要がないのがいいですね。
それではお邪魔します。
縦に広い玄関と短めの廊下。フローリングや建具の色によって落ち着いた雰囲気になっています。
振り返って玄関内の様子です。
玄関ドアは安心のダブルロックです。面倒がらずに両方共ロックしましょうね。
中に入った時に照明を点けてくれたのは、人感センサー。いつでも明るい玄関が迎えてくれるのは嬉しいものです(^^)
玄関内のドアを開けると、なんとシューズインクローゼットが!L字型に可動棚が設置されています。『IN』って憧れますよね♬
広いので靴以外の物も置けそうです。アウトドアグッズやスポーツ道具など、多少汚れていてもここならOKですね(^^)
では、廊下のドアを右側から開けていきましょう。
こちらが約12.8帖のリビング・ダイニング・キッチン+約6.2帖の洋室となります。
中央奥が洋室です。二つ並んだ大きな窓から入って来る光で、明るいお部屋になっていますね。
合わせると約19帖。なかなかの広さです(^^)全体的にナチュラルな印象で、いろいろな家具を合わせる事が出来そうです。
ここに玄関前の様子が映るんですが、意外に綺麗でビックリです。
ちょっとした所に飾り棚。得した気分になりませんか♪♪
洋室側から…
洋室には、間口が広くて使いやすそうなクローゼットが付いています。奥行きもあって収納力も抜群ですよ。
壁部分に収納された仕切りの扉を引き出すと…
独立した洋室になります。
必要に応じていろいろな使い方が出来るのは便利ですよね。
リビング・ダイニング・キッチン側から…
これでも十分広い感じがしますね。
次は、キッチンを見ていきましょう。
木目を生かしたパネルを使用した調理台です。
調理台の下は収納と食器洗浄乾燥機になっていました。
『キッチンの三種の神器』のひとつ食洗器。洗い物はお任せして、食後はのんびりさせてもらいましょう♬
上部には吊戸棚と換気扇。吊戸棚は出し入れがしづらいので、あまり使わない物を入れるか、収納グッズを活用するのがいいですね。
コンロは3口。片面焼きグリルが付いています。
グリルってお魚イメージが強いですが、他のお料理にもいろいろと使えるらしいですよ。ご興味のある方は是非調べてみて下さい。
水洗はハンドシャワータイプです。
切り替えひとつで水道水が美味しいお水に早変わり。ヘッドが伸びるのでシンクのお掃除などにも便利です。
キッチン奥には収納棚が、左側と…
右側にありました。コンセントも付いていますので、家電などを置く事も出来ますよ。
調理台後ろには冷蔵庫スペースがありました。スペースが確保されていると出っ張ったりしなくていいですよね。ただし、サイズにはご注意を。
では、いちど廊下に戻って…
次はトイレです。
もちろん温水洗浄便座も完備していますよ。ちなみに、ウォシュレットが商品名だってご存知ですか?今回はINAXさんの製品なので『シャワートイレ』になります。
次は洗面室へ…
三面鏡の付いた洗面台です。
収納はミラーキャビネットと洗面台下になります。細かい物はミラーキャビネットへ、大きな物下へと上手いこと収まりそうですね。
水洗はハンドシャワータイプです。洗面ボウルを流したり、寝ぐせを直したり(笑)
洗濯機スペースです。棚などはありませんが、上や周りにはスペースがありますのでご自身で用意するのも良いかもしれませんね。
では、浴室へ…
グレーのアクセントウォールを使ったスタイリッシュな浴室です。お部屋とは少し雰囲気が違いますね。
追い焚き機能が付いていますので、長風呂しても大丈夫(^^)v
ゆったり浸かれる広々とした浴槽です。
浴室乾燥機能は浴室のカビ予防だけでなく、雨天のお洗濯物乾燥やヒートショック予防など様々な働きをしてくれます。どんどん使っていきましょう。
では、最後のドアを…
こちらが約6帖の洋室となります。
濃い色のアクセントウォールが印象的です。このお部屋もリビングなどとは少し雰囲気が違いますね。広さ的にはベッドが二つは置けますよ。
窓の外は外廊下ですので、しっかり面格子が設置されています。とはいっても、夜間は上部の換気窓をご利用下さい。
収納はクローゼット。中は扉の幅より広く、お部屋の幅いっぱいを使っています。ハンガーポールが長いのでたくさんお洋服を掛ける事が出来ますね。
それでは、最後にバルコニーへ出てみましょう。
LDK、洋室どちらの窓からでも出る事が出来ます。
4.33㎡のバルコニーです。
すりガラスの手摺のおかげでバルコニー内も明るく、実際の数字より広く感じますね。
物干し金具があってお洗濯物を干す事も出来ます。南東向きのバルコニーですので、午前中がお勧めですよ。
2階にしては開放的な眺めですね。敷地内には緑も豊富ですし、とても静かで落ち着く場所です(^^)
・
・
以上でニューライフ等々力のご案内を終わります。
いかがでしたでしょうか??
等々力駅から徒歩15分のマンションです。
リノベーション済みという事で室内はとてもキレイですよ (っ・ω・)っ
内見のご予約やご質問などございましたらお気軽にお問い合わせくださいませ。
ご連絡お待ちしております。
□□□□□□□□□□□□□□□□□□□□□□□□□□□□□□□□□□□□□□□
★★★【ニューライフ等々力】周辺のハザードマップをCHECK!!★★★
お部屋のご購入前に…!周辺のハザードマップをチェックしておきませんか!
ニューライフ等々力のハザードマップは★こちらから…どうぞ★
□□□□□□□□□□□□□□□□□□□□□□□□□□□□□□□□□□□□□□□
弊社、不動産Agent 六棒株式会社では、
□リノベーションマンションはほぼ全て仲介手数料無料!
□その他一般仲介物件は仲介手数料20%~30%OFF!
にてお取り扱いしております!※弊社の「Agent Fee=仲介手数料」についてはご案内、ご面談の際に営業担当者よりご説明いたします!
なるべく沢山のお部屋をホームページに掲載したいと思っておりますが、時間的成約もございますので、残念ながらご紹介できるお部屋の一部しか掲載できておりません。
このホームページに掲載中のお部屋、その他サイト等で気になるお部屋、街を歩いていて気になったマンション等々ございましたら是非、弊社営業部までご相談ください!
~不動産Agent 六棒株式会社の特徴~
・一般仲介物件の仲介手数料は20%~30%OFFにてご案内中です!
・リノベーションマンションについてはほぼ全て仲介手数料無料です!
・住宅ローンに自信あります!
・頭金10万円より購入できます。是非ご相談下さい!
・お部屋のご見学は車で2~3件まとめて案内します!
・物件数3000件以上、新築戸建、リノベ物件も多数ご用意しております!
過去に販売していたお部屋の概要 このお部屋の販売は終了いたしました。
| 価格 | -万円 |
| 面積 | 61.89㎡ |
| 間取り | 2bedrooms(2LDK+S) |
| 管理費 | 月額10,370円 修繕積立金:月額11,380円 専用庭使用料:月額480円 |
| 所在階 | 1階 |
| お問い合わせ・ご内見のご予約はこちらからお気軽にどうぞ | |
・
ここで間取り図のご紹介です。
※間取り図は別タブで開きますので、確認しながらご覧いただく事が出来ます。
今回のお部屋は1階、間取りは2LDK+W+納戸+専用庭、専有面積は61.89㎡となります。
では、早速行ってみましょう!
お部屋は1階ですので、今回はエレベーターは使いません。
中庭を囲む外廊下を進むと…
玄関に到着です。
カメラ付きインターホンが設置されていて、お部屋の中にいながらにして訪問者を確認する事が出来ます。玄関まで来る必要がないのがいいですよね。
それではお邪魔します。
ドアを開けると、真っ直ぐ伸びた廊下に扉が並んでいました。中間調のフローリングに白のクロスで、自然な雰囲気になっています。
振り返って玄関内の様子です。
玄関ドアはダブルロック。空き巣は開けるのに時間が掛かるのを嫌うそうですから、これは安心ですね(^^)
中に入った時に自動で照明を点けてくれたのは、人感センサーです。いつでも明るい玄関が迎えてくれるのは嬉しいですよね♬
シューズボックスはトールタイプ。棚板の高さが変えられるので、ブーツなどでも収納可能ですよ。
まずは、正面のドアから開けてみましょう。
こちらが約12帖のリビング・ダイニング・キッチンとなります。
今回のお部屋は色使いがシンプルで、いろいろな家具を合わせる事が出来そうです。置いてある家具などはディスプレイですが、生活のイメージがしやすくて助かります。大きさや素材感などの参考にもなりますね(^^)
奥の大きな窓からは、お庭に出る事が出来ます。お庭の様子は後程ご紹介しますね。
次は、キッチンを見ていきましょう。
お部屋の雰囲気に合わせた、木目パネルを使用した調理台です。
調理台下は収納と食器洗浄乾燥機になっていました。
『キッチン三種の神器』のひとつ食洗器。せっかくなので洗い物はお任せして、食後はのんびりさせてもらいましょう♬
コンロは3口です。操作パネルを見ると温度設定やタイマーなどが…いつの間にガスコンロはこんなに進化したんですかね^^;)
お料理中は換気扇をお忘れなく。特にグリル使用時は絶対ですよ。
水栓は浄水機能付きシャワー水栓です。切り替えるだけで水道水が美味しいお水に早変わり。ノズルが伸びてシンクのお掃除などにも便利です。
調理台後方には冷蔵庫や食器棚、家電ラックなどのスペースが確保されていました。
それでは、次のお部屋へ…
ダイニングあたりのドアです。
こちらは約6.1帖の洋室となります。
奥に大きな窓がある明るいお部屋です。ここからもお庭に出る事が出来ますよ。
クローゼットも付いていますね。
次は、リビング入口横の引き戸を開けてみます。
こちらは約1.7帖の納戸です。
何もないフリーなスペース。大きな物も余裕で入りますし、必要に応じて収納棚などを置く事も出来ます。収納としてだけでなく、書斎や趣味のお部屋としても使うのもアリかもしれませんね(^^)
では、一度廊下に戻ります。リビングから廊下は一段高くなっていますので、躓かないようお気を付け下さい。
出てすぐの扉は収納棚です。奥行きがあって収納力抜群ですよ。
では次へ…
収納向かいのドアです。
トイレです。
もちろんウォシュレットも完備していますよ。今の時代、無いと困りますよね(笑) TOTOさんお世話になっています。
トイレ隣の扉を開けてみると・・・温水器がびっしり詰まっていました^^;)滅多に開ける事はなさそうですね。
では、次のお部屋へ…
こちらは約6.5帖の洋室となります。
シングルベッドなら二つは置けそうな広さのお部屋ですよ。
引き戸を開けると、ウォークインクローゼットになっていました。ハンガーポールがL字型に設置された、使いやすそうなクローゼットです。
とても収納が充実した物件です。収納は多すぎて困る事はないので嬉しいですね♪♪
では、廊下最後のドアを開けてみます。
洗面室となります。
三面鏡の付いた広い洗面台。真っ白で清潔感がありますね。
収納はミラーキャビネットと洗面台の下になります。細かい物から大きな物まで上手く収まりそうです。
水栓はハンドシャワータイプ。洗面ボウル横のスペースも地味に便利なんですよね(^^)
洗面室内には洗濯機スぺ―スもありました。
次は浴室へ…
ブラウンパネルを使用した、落ち着いた感じの浴室ですね。
追い焚き機能が付いていますので、いつでも温かいお風呂に入れます。お風呂って自分のタイミングで入りたいですよね(^^)
浴室乾燥機能は浴室のカビ予防だけでなく、雨天のお洗濯物乾燥やヒートショック予防など様々な働きをしてくれます。もったいないので、どんどん使っていきましょう。
それでは、最後にお庭へ出てみましょう!
17.5㎡の専用庭になります。
お庭の外側にも敷地内空地が広がっていて予想以上の開放感です。南東向きで周りには高い建物もないので、午前中は陽当りも期待出来そうですね。
園芸好きの方なら、綺麗なお庭を作り上げていく楽しみがありますね。興味がない方も、これを機会に始めてみるのは如何ですか?
・
以上でニューライフ等々力のご案内を終わります。
いかがでしたでしょうか??
等々力駅から徒歩16分のマンションです。
リノベーション済みという事で室内はとてもキレイですよ (っ・ω・)っ
内見のご予約やご質問などございましたらお気軽にお問い合わせくださいませ。
ご連絡お待ちしております。
弊社、不動産Agent 六棒株式会社では、
□リノベーションマンションはほぼ全て仲介手数料無料!
□その他一般仲介物件は仲介手数料20%~30%OFF!
にてお取り扱いしております!※弊社の「Agent Fee=仲介手数料」についてはご案内、ご面談の際に営業担当者よりご説明いたします!
なるべく沢山のお部屋をホームページに掲載したいと思っておりますが、時間的成約もございますので、残念ながらご紹介できるお部屋の一部しか掲載できておりません。
このホームページに掲載中のお部屋、その他サイト等で気になるお部屋、街を歩いていて気になったマンション等々ございましたら是非、弊社営業部までご相談ください!
~不動産Agent 六棒株式会社の特徴~
・一般仲介物件の仲介手数料は20%~30%OFFにてご案内中です!
・リノベーションマンションについてはほぼ全て仲介手数料無料です!
・住宅ローンに自信あります!
・頭金10万円より購入できます。是非ご相談下さい!
・お部屋のご見学は車で2~3件まとめて案内します!
・物件数3000件以上、新築戸建、リノベ物件も多数ご用意しております!
過去に販売していたお部屋の概要 このお部屋の販売は終了いたしました。
| 価格 | -万円 |
| 面積 | 52.51㎡ |
| 間取り | 2bedrooms(2LDK) |
| 管理費 | 月額8,740円 修繕積立金:月額6,300円 特別修繕積立金:月額3,000円 |
| 所在階 | 3階 |
| お問い合わせ・ご内見のご予約はこちらからお気軽にどうぞ | |
こちらが今回ご紹介させて頂くお部屋です。
クリックして頂ければ別タブで開きますので、間取り図と見比べながら進んでいきましょう!!
玄関前にはモニター付きのインターフォンが付いています。
お部屋の中から廊下の様子を確認することができるので防犯的にも安心できますね!!
チャイムが鳴ったらまずは外を確認する癖をつけておきましょうね!!
玄関ドアをあけるとリノベーション済みの室内が出迎えてくれます。
ピカピカの室内なのでこれから先も期待できそうですね!!
右側にはシューズボックスです。
ショートタイプですが、棚板の高さを調節することが出来るので見た目以上に収納力がありそうです。
上部はカウンター状になっているので、お花や小物を飾ってもいいですね!!
では先へと進んでいきましょう!!
突当り左のスリットの入ったドアを開けます。
こちらは・・・・
リビング・ダイニング・キッチンです。
南向きの窓から明るい光が入って来ています。
照明はシーリングライトと埋め込み式のダウンライトを組み合わせてあるので、空間に広がりを感じられます。
お隣のお部屋が見えていますね。
こちらはリビングのお隣の洋室です。
リビングとはスライド式のドアで仕切られているので、リビングの一部としても使うことが出来そうです。
クローゼットも付いています。
お洋服もたくさん掛けることが出来るので、ハンガーラック等を購入する必要もなく、お部屋の中を広く使うことが出来ますよ!
次はキッチンを見ていきましょう!!
大きなシンクの付いた水栓、3口のグリル付きのガスコンロが付いています。
グリルは魚を焼くだけでなく、お肉や野菜料理、トースト、揚げもののあたため直しにも使えるマルチプレイヤー。アルミ箔やアルミカップなどを使えば、グラタンやお菓子作りなど、レパートリーが広がります。
目の前に窓があるので、日中は手元も明るいですよ。
香りの強いお料理でもすぐに換気をすることが出来るので、マトン等の食材も気兼ねなく使うことが出来ますよ
収納スペースもたっぷりです。
足もとの収納の他に吊戸棚も。
細かな仕切りは付いていないので、カゴや箱等を使って上手に使っていきたいですね!!
次はキッチン横のこちらの扉を開けてみましょう!
こちらは洗面室ですね!!
右側に洗面台が見えています。
足もとにちょっとした段差があるので注意してくださいね!
3日も住めば慣れると思いますが、1~2回くらいは躓いてみてください。新しいお家に慣れない!というのも引越しの醍醐味ですよ!
大きな1枚もののミラーが付いた洗面化粧台です。
つなぎ目の無いミラーは視認性もバツグンですね!
ミラーサイドにはコンセントもあるので、ドライヤーなどの家電も問題なく使うことが出来ますよ!
次はお風呂に向かいましょう!!
と、お風呂の向こう側に洗濯機置場がありました。
洗面室は脱衣所も兼ねている場所でもあるので、脱いだお洋服はすぐに洗濯することが出来ますよ!!
改めましてお風呂です。
ブラックの壁が大人の雰囲気を出しています。
落ち着いた空間になっていますよ。
追い焚き機能も付いています。
一日中熱いお風呂に入ることが出来るので、お休みの日は朝からお風呂を楽しむことが出来ますよ!!お酒と氷をバケツに突っ込んで、明るいうちからお風呂で酒盛りするのも楽しそうですよね(何かあっても責任は取りませんが!!)
深さのある浴槽で、肩までしっかり暖まることができますよ!!
それでは、ぐーーーーーっと戻って、玄関の突当りのこちら。
こちらはトイレでした。
ウォシュレット付きのトイレは新鮮味は薄れてしまったかもしれませんが、それでもまだまだ付いているのを確認出来れば嬉しい気持ちになります。
背後にはモザイクタイル調のクロスが使用されていました。クラシックな雰囲気も嫌いじゃないです!
ではリビングに戻ってきて、最後の洋室です。
先ほどは右側の洋室を見ましたので、次は左のお部屋です。
こちらの洋室もお隣のお部屋と同じくらいの広さです。
クローゼットもついているのでお部屋を広く使うことが出来そうです。
それではバルコニーへ出てみましょう!!
がらがら~~
3階という事なので、遠くを見渡せるわけではありませんが、決して悪い眺望ではありません。
南東向きのバルコニーはご覧の通り陽当たりもバツグンです。
交通量の多そうな交差点ですが、見かけ倒しです。
意外と静かな雰囲気のエリアですよ。
では、以上でニューライフ等々力のご案内を終わります。
いかがでしたでしょうか??
等々力駅から徒歩17分のマンションです。
リノベーション済みという事で室内はとてもキレイですよ (っ・ω・)っ
内見のご予約やご質問などございましたらお気軽にお問い合わせくださいませ。
ご連絡お待ちしております。
弊社、不動産Agent 六棒株式会社では、
□リノベーションマンションはほぼ全て仲介手数料無料!
□その他一般仲介物件は仲介手数料20%~30%OFF!
にてお取り扱いしております!※弊社の「Agent Fee=仲介手数料」についてはご案内、ご面談の際に営業担当者よりご説明いたします!
なるべく沢山のお部屋をホームページに掲載したいと思っておりますが、時間的成約もございますので、残念ながらご紹介できるお部屋の一部しか掲載できておりません。
このホームページに掲載中のお部屋、その他サイト等で気になるお部屋、街を歩いていて気になったマンション等々ございましたら是非、弊社営業部までご相談ください!
~不動産Agent 六棒株式会社の特徴~
・一般仲介物件の仲介手数料は20%~30%OFFにてご案内中です!
・リノベーションマンションについてはほぼ全て仲介手数料無料です!
・住宅ローンに自信あります!
・頭金10万円より購入できます。是非ご相談下さい!
・お部屋のご見学は車で2~3件まとめて案内します!
・物件数3000件以上、新築戸建、リノベ物件も多数ご用意しております!
過去に販売していたお部屋の概要 このお部屋の販売は終了いたしました。
| 価格 | -万円 |
| 面積 | 38.65㎡ |
| 間取り | 1bedrooms(1LDK) |
| 管理費 | 月額6,420円 修繕積立金:月額4,640円 特別修繕積立金:月額2,460円 |
| 所在階 | 3階 |
| お問い合わせ・ご内見のご予約はこちらからお気軽にどうぞ | |
さて今回のお部屋は4階になります。
間取り図はこちら↓

クリックすると別タブで開くことも可能です。
間取り図とお部屋比較しながら一緒にお部屋みましょう(((((((((((っ・ω・)っ
こちら今回のお部屋玄関前になります\( ´・ω・`)┐
ダブルロックのしっかりした造りの玄関ですね!
TVモニタ付きインターフォンもあり、来訪者もばっちり確認|ω・`)ちら
セキュリティ面も安心ですねー
今回のお部屋新規リノベーション物件になります(”◇”)ゞ
撮影日、仕上げ段階でした(^▽^;)
なので玄関とトイレが撮影出来ていません。。
ご了承ください(o*。_。)oペコッ
リビング突き当りになります。
リビングからご案内させて頂きます(っ・ω・)っ
打ちっ放しの天井がカッコイイですね!
エアコン設置済みで経済的です( ´艸`)
玄関廊下につながるドアの手前には収納があります。
高さ調整の出来る棚ですねφ(`д´)メモメモ…
日用品のストックや本棚としても良いですね(((uдu*)ゥンゥン
浄水器機能一体型の2口ガスコンログリル付きのシステムキッチン!!
1LDKにちょうどよい大きさですね(((uдu*)ゥンゥン
水栓はシャワーヘッドになっている為
シンクを隅々までお掃除出来て、いつでも清潔に保つ事が出来ます。
上部にも下部に収納が出来ますΣ(゚Д゚)
下部収納はスライド式です
何が良いって色々入れても奥が見やすい事ですね!
私よく奥に入れ過ぎて存在忘れます。。
重いものなんかも出し入れがしやすく( ´∀`)bグッ!
洋室は約6帖になります。
リビングとは振り分けられプライバシーが守れます◎
洋室も天井は打ちっ放しになっています◎
クローゼットもありますよ|ω・`)
奥行もあり、上部に棚もあります!
お荷物が多い方でも十分な大きさですねo(^O^*=*^O^)o ワクワク
続いて玄関廊下に戻って洗面所見ていきましょう。
(((((((((((っ・ω・)っ
独立洗面台もシャワーヘッドタイプになっています。
隅々までお掃除が出来るのでいつでもお客さんを呼べますね(^^♪
こちらも下部収納はスライド式になります。
物の出し入れをしやすく、重くないので最適ですね( ´∀`)bグッ!
続いて浴室、浴室乾燥機付き!!
雨が続いてもこれから冬にかけてどんどんお洗濯しづらくなります。
ですがこれがれば気にせずお洗濯まわせます( ´∀`)bグッ!
またこれからの時期に多いヒートショック防止に暖房もつけられます
お子様なども湯舟でじっとしてること滅多にないですよね(^▽^;)
そんな時にとっても便利です☆色々試しに使ってみてください!!
ナチュラルなお色の木目調で落ち着いた空間に◎
1日の疲れを洗い流してください♡
ステンレスでお手入れもしやすいですね(((uдu*)ゥンゥン
さてお部屋いかがでしたか?
最後に!西向きバルコニーへいってみましょう♪
(((((((((((っ・ω・)っ
他にも詳細が知りたい!!実際に見学をしたい!!などありましたら
仲介手数料最大無料の当社
お電話ください(^-^*)/
TEL 03-5413-5336
お気軽にお問い合わせください。
スタッフ一同お待ちしております。
弊社、不動産Agent 六棒株式会社では、
□リノベーションマンションはほぼ全て仲介手数料無料!
□その他一般仲介物件は仲介手数料20%~30%OFF!
にてお取り扱いしております!※弊社の「Agent Fee=仲介手数料」についてはご案内、ご面談の際に営業担当者よりご説明いたします!
なるべく沢山のお部屋をホームページに掲載したいと思っておりますが、時間的成約もございますので、残念ながらご紹介できるお部屋の一部しか掲載できておりません。
このホームページに掲載中のお部屋、その他サイト等で気になるお部屋、街を歩いていて気になったマンション等々ございましたら是非、弊社営業部までご相談ください!
~不動産Agent 六棒株式会社の特徴~
・一般仲介物件の仲介手数料は20%~30%OFFにてご案内中です!
・リノベーションマンションについてはほぼ全て仲介手数料無料です!
・住宅ローンに自信あります!
・頭金10万円より購入できます。是非ご相談下さい!
・お部屋のご見学は車で2~3件まとめて案内します!
・物件数3000件以上、新築戸建、リノベ物件も多数ご用意しております!
過去に販売していたお部屋の概要 このお部屋の販売は終了いたしました。
| 価格 | -万円 |
| 面積 | 50.46㎡ |
| 間取り | 2bedrooms(2LDK) |
| 管理費 | 月額8,460円 修繕積立金:月額6,060円 特別修繕積立金:月額3,220円 |
| 所在階 | 3階 |
| お問い合わせ・ご内見のご予約はこちらからお気軽にどうぞ | |
こちらが今回ご紹介させて頂くお部屋の間取りです。
写真で見る方が分かりやすいですよね!!?
さっそく参りましょうヾ(*≧∀≦)ノ゙
玄関先にはカメラ付きのインターフォンが付いています。
マンション入り口にオートロックはありませんが、お部屋の中から外の様子を確認できるのは防犯的にも安心できますね!
向うからはこちらの顔が見えないのは気持ちがいいです(´°(エ)°`)
玄関右手にはシューズボックスが付いています。
中の棚は高さの調節ができるので、ブーツ等の背の高い履物でも問題なく収納することができますよ!!
足元に隙間が空いているので土間部分を広く使えるのも良いですね(・ω・)b
すぐそこのドアも気になりますが、まずは真っ直ぐ奥まで進みましょう=≡ヘ(*・ω・)ノ
スリットから漏れる光が気になりますね・・・
ドアをあけると・・・・・
こちらはリビング・ダイニング・キッチンです。
窓は南西向きなのでお昼以降は明るい光が入ってきますよ(☆Д☆)
キッチンは後ほどご紹介します(`・ω・´)
こちらを、
一枚ずつ、
開けていくと、
奥に洋室が隠れていました!!
リビングとはスライド式のドアで仕切られていたのですね!!
全て開けてしまえば、洋室はリビングの一部としてもお使い頂けますよヽ(´∀`)
このくらい広い空間だとさすがに開放感がありますね。
開閉は簡単にできるので状況に応じて使い分けるのが良さそうですよ!
個人的には開けたままの方が好みですが。来客時だけ閉めればいいような気もしますね。
それではキッチンです。
浄水機能付きの水栓はシャワーヘッドになっているのでシンクの隅々まで水を流すことができます。大きなお鍋でも洗いやすそうですね(っ´∀`c)
3口のグリル付きガスコンロもあるのであらゆるお料理に対応可能ですよ!!
キッチンカウンターの他には吊戸棚が収納として付いています。
足元の収納は引き出しタイプになっていますよ!!開き戸の物と違って奥まで無駄なく使用することができますし、取り出しも簡単なので主婦の方に人気があるのも納得です!!
キッチンの隣りにもスライド式のドアがありますね。
こちらも洋室となっていますよ。
先ほどのお部屋とは違って窓が無いので、お休みの日は太陽に邪魔されることもなく、お昼までぐっすり眠ることができます(ノ∀`○)
クローゼットが付いています。
お洋服が掛けられる他に棚も付いているので、季節ものお家電や生活小物なども収納出来ますね!!
改めて収納家具を置く必要もないので、その分お部屋を広く使うことができますよ。
それでは一度玄関方面に戻って、リビングの入口の隣のドアを開けます。
こちらは洗面室です。
大きなミラーの付いた洗面化粧台と吊戸棚付きの洗濯機置場が付いていますよ♪♪
水栓はシャワーヘッドになっているのでこちらで洗髪をすることもできます彡⌒ミ
ミラーの内部は収納になっています。
歯ブラシや基礎化粧品などの小物はこちらに収納することができますね。洗面周りは何かと散らかりがちなので普段から整理整頓を心がけたいものです(`・ω・´)
洗面台の隣のスペースには電気給湯器が隠れています。
深夜の安い電気を使って水を温めるので経済的。中のタンクの水は万が一の断水時にも使うことができますよヽ(´∀`)
次は浴室です。
こちらには浴室換気乾燥機能が付いているので、雨の日はこちらに洗濯物を干すことができます。雨風の心配をしなくていいので、基本的には浴室でもいいかもしれませんね♪♪
カビの防止にもなるので浴室の乾燥は普段から心がけたいです!
広々としたお風呂にゆっくりと浸かれば一日の疲れも吹き飛びますね!!
翌日への英気を養うためにもお風呂にはこだわりたいですね∠(`・ω・´)
玄関まで戻ってきちゃいましたね。
こちらは・・・
トイレですね!!
CMでもおなじみ、TOTO製のトイレなので節水には期待できます!!
業界最大手の実力は伊達じゃないですよ!!
語り始めると終わらないので、詳しくはWebで!!
ありがたいことにウォシュレットが付いています。
最近のトイレにはだいたい付いていますけど、やはり現物を確認できると安心しますね。
噂によると、ここ100年における人類最大の発明にウォシュレットを挙げる人もいるとかいないとかです。
最後にバルコニーです。
2部屋にわたっているので洗濯物を干しても余裕があります。
南西向きなのでお昼頃からは太陽の光が入ってくると思いますよ。
目の前の交差点のところにあるバス亭からバスに乗ると「成城学園前」「渋谷」「恵比寿」「都立大」「目黒」へと向かうことができます。
わざわざ駅まで歩かなくても十分なアクセスポイントが目の前にありますよ ( ´∀`)b
では、以上でニューライフ等々力のご案内を終わります。
いかがでしたでしょうか??
駅からは少し離れますが、バスでのアクセスが良好なマンションです。
リノベーション済みで新たに生まれ変わったお部屋となっていますよ!!
内見のご予約やご質問などございましたらお気軽にお問い合わせくださいませ。
ご連絡お待ちしております。
弊社、不動産Agent 六棒株式会社では、
□リノベーションマンションはほぼ全て仲介手数料無料!
□その他一般仲介物件は仲介手数料20%~30%OFF!
にてお取り扱いしております!※弊社の「Agent Fee=仲介手数料」についてはご案内、ご面談の際に営業担当者よりご説明いたします!
なるべく沢山のお部屋をホームページに掲載したいと思っておりますが、時間的成約もございますので、残念ながらご紹介できるお部屋の一部しか掲載できておりません。
このホームページに掲載中のお部屋、その他サイト等で気になるお部屋、街を歩いていて気になったマンション等々ございましたら是非、弊社営業部までご相談ください!
~不動産Agent 六棒株式会社の特徴~
・一般仲介物件の仲介手数料は20%~30%OFFにてご案内中です!
・リノベーションマンションについてはほぼ全て仲介手数料無料です!
・住宅ローンに自信あります!
・頭金10万円より購入できます。是非ご相談下さい!
・お部屋のご見学は車で2~3件まとめて案内します!
・物件数3000件以上、新築戸建、リノベ物件も多数ご用意しております!
過去に販売していたお部屋の概要 このお部屋の販売は終了いたしました。
| 価格 | -万円 |
| 面積 | 52.97㎡ |
| 間取り | 2bedrooms(2LDK) |
| 管理費 | 月額6,360円 修繕積立金:月額8,870円 特別修繕積立金:月額3,380円 |
| 所在階 | 5階 |
| お問い合わせ・ご内見のご予約はこちらからお気軽にどうぞ | |
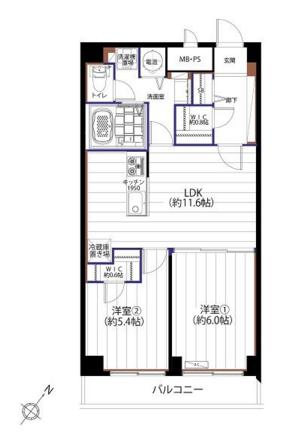
間取りのご紹介です。2LDK、専有面積は52.97㎡。
5階、南東向きにつき陽当り・通風・眺望良好!
室内は以下のリノベーションをおこなっています。
【リノベーション内容】
■フローリング、天井・壁、クロス
■洗面所、トイレ、CF
■システムキッチン(食洗機)
■ユニットバス、洗面化粧台、ウォシュレット
■給湯器
■建具、SIC、網戸張替
■コスモスイッチ、照明器具、クリーニング、他
さっそく中へ。玄関ホールには人感センサーがついているので人の動きを察知して自動で照明が点灯・消灯します。消し忘れがなく経済的な上、スイッチを押す手間も省けて便利。インターホンは来訪者の顔が確認できるTVモニターがついており、防犯面も安心です。
玄関先は廊下がまっすぐのびています。床はツルリとした質感のタイルで高級感があります♪
廊下の右側は約0.5帖のシューズインクローゼットと約0.8帖のウォークインクローゼットが並んでつくられており、収納豊富。掃除機や日用品のストック、衣替えの衣類などもこの辺りにまとめて収まりそうですね。
収納の向かい側壁面は長いニッチスペースになっています。
何をどう飾ろうか・・・センスの見せどころではないでしょうか(´∀`*)
廊下をまっすぐ進んだ先、採光部のある扉の奥は・・・
約11.6帖のLDK。壁面の一部には調湿・消臭効果のあるエコカラットが設置されています。窓がないものの、これでお部屋の空気は快適に保てるはず♪
キッチンは建具と同じくダークブラウン。対面式なのでリビングにいる家族と会話を楽しみながらお料理ができます。水栓は浄水機能付き、コンロは3口ガスコンロ、食洗機にグリル付きとスペックも◎!後は腕をふるうのみです。
洗面室と2部屋ある洋室はLDKを介していけるようになっています。
キッチン横の扉が洗面室です。
洗面室。この中に洗面化粧台、洗濯機置場、トイレ、バスルームと水まわりの設備がまとまっています。お掃除もこなしやすいですね♪
洗面室内は白基調で清潔感たっぷり。洗面化粧台の鏡の裏、横の棚など小物の収納スペースも豊富です。
トイレはウォシュレット付き。ペーパーのストックの保管に便利な吊戸棚も設置されています。
洗濯機置場の横にも物置き棚が設けられていました。
洗剤類が近くに置いておけて便利ですね。
バスルームは追い焚き、浴室換気乾燥機能付きと設備充実。
乾燥機があれば雨の日や花粉の時期のお洗濯も安心。ランドリーポールも設置されています。
洋室2部屋の扉は並んでいます。
3枚の可動扉側の洋室は約6.0帖。
南東向きのバルコニーに面した明るいお部屋です。エアコンも設置済み。
約6.0帖の洋室はLDKとつなげて、より広々とした空間としてもご利用いただけます。生活シーンや家族構成に合わせてフレキシブルに空間を使えるのが便利ですね♪
もう1部屋の洋室は約5.4帖。約0.6帖のウォークインクローゼットがついており、居住スペースは有効的に利用できそうです。
最後に洋室2部屋に面したバルコニーに出てみます。
広さは5.13㎡、南東向きで陽当たり良好!
お洗濯物からお布団まで気持ちよく干しておけますよ。
眺望。高い建物がなく、抜けた眺めと広い空が楽しめます。
ご内見のご希望・ご質問などございましたら、お気軽にお問い合わせくださいませ♪
過去に販売していたお部屋の概要 このお部屋の販売は終了いたしました。
| 価格 | -万円 |
| 面積 | 88.05㎡ |
| 間取り | 3bedrooms(3LDK) |
| 管理費 | 月額:14,610円 修繕積立金:月額10,570円 |
| 所在階 | 9階 |
間取りのご紹介です。3LDK、88.05㎡のファミリータイプ。
インターホンは来訪者の顔が確認できるTVモニター付き。
安心な暮らしをサポートしてくれます。
玄関扉を開けると右側にシューズBOX、廊下が左方向へ伸びています。
お部屋の中が玄関から丸見えにならず、 プライバシーも確保できます。
シューズBOXは収納力◎!ファミリー全員の靴もこれだけ容量があればすっぽり収まりそうです。
廊下にはトイレ、洗面室、リビングダイニングの扉があります。
帰ってきての手洗い・うがいもお部屋に行く前にサッと済ませられます。
トイレはウォシュレット機能付き。
上の吊り棚はペーパーのストックや掃除用具を入れておくのに便利。
トイレのお隣は洗面室。
洗面化粧台は鏡の裏が一面収納、さらに横にリネン庫付きと収納豊富。
タオルやシャンプーのストック、ドライヤーと洗面室内で使う物はこの辺りにまとめて仕舞っておけるのではないでしょうか。
幅もあるので忙しい朝の時間は2人並んでの身支度もスムーズにできそうです。
洗濯機置場の横にも収納棚が設置されています。
着替えも置くスペースがあって便利です。
ナチュラルな木目柄の壁面パネルが使われたやわらかい雰囲気のバスルーム。
追い焚きと浴室乾燥機能付き。
帰宅時間がバラバラでも、あたたかいお湯に浸かれるのがうれしいですね。
つづいてリビングダイニングへ。
リビングダイニングは約17.5帖と開放感たっぷり。
大型の家具でもゆとりを持って配置できますd(´∀`)
リビングダイニング内から洋室3部屋、キッチンへ行けるようになっています。
家族もリビングに集まりやすく、コミュニケーションも自然と増えそうです。
キッチンスペースは約3.4帖。
リビングダイニング側から作業スペースが見えづらいので、急な来客があっても慌てて片付ける心配はいらなさそうです。
収納も上下にたっぷり。大きなお鍋やフライパンもすっぽり仕舞っておけます。
水栓は浄水器付き、コンロは3口。調理スペースも広めでお料理も快適にすすめられそう。
2人並んでのお料理も楽しめますね♪
ここから洋室を3部屋ご紹介します。
1部屋目は約6.0帖の広さ。
2面に窓のある風通しのよいお部屋です。
枕棚付きの大型クローゼットが設置されています。
2部屋目。
2部屋目も約6.0帖の広さ。
枕棚付きのクローゼットが設置されています。
3部屋目は約8.4帖の広さ。
一番広いのでご夫婦の寝室になるイメージでしょうか。
枕棚付きの大型のクローゼットが設置されています。
収納が大きいと生活スペースを広く使えるのがうれしいですね。
最後にバルコニーに出てみます。
2面あるうちの、こちらは南東向きのエリア。
スーっと遠くまで見渡せる開放感のある眺め。
あいにくの曇りですが、遠くに東京タワーも見えました。スカイツリーも見えるそうです。
まさに「いいね!」って言いたくなる眺めです。
こちらは南西向きエリア。晴れた日は2面とも陽当たりが期待できます。
南にみなとみらい、西に富士山も見えるそうなので朝から夜までさまざまな表情が楽しめます。夏には多摩川の花火大会も見えるそうなので、親戚やお友達を呼んで皆で鑑賞もいいですね。広いリビングでみんなでワイワイ・・・毎年の楽しみになりそうです(*´∀`)
ご内見のご予約・ご質問などございましたらお気軽にお問合せください![]()




































































































































































































































































































































































































