・
□□□□□□□□□□□□□□□□□□□□□□□□□□□□□□□□□□□□□□□
いつも弊社ホームページをご覧頂き誠にありがとうございます。
日生野沢マンションはお陰様で販売を終了致しました。弊社問合せフォームにてご要望頂けましたら、当お部屋でキャンセル等が発生した場合、他のお部屋が販売になりました際にご紹介させて頂きます。
不動産Agent 六棒株式会社
TEL:03‐5413‐5336
□□□□□□□□□□□□□□□□□□□□□□□□□□□□□□□□□□□□□□□
・
急行停車駅の東急東横線「学芸大学」駅徒歩14分。
リフォームマンション『日生野沢マンション』のご紹介です!
東急田園都市線『駒沢大学』駅も同じく徒歩15分で利用可能です。
□□□□□□□□□□□□□□□□□□□□□□□□□□□□□□□□□□□□□□□
★★★【日生野沢マンション】周辺のハザードマップをCHECK!!★★★
お部屋の記事を読む前に…!周辺のハザードマップをチェックしておきませんか!
日生野沢マンションのハザードマップは★こちらから…どうぞ★
□□□□□□□□□□□□□□□□□□□□□□□□□□□□□□□□□□□□□□□
ハザードマップもご確認いただきましたので、次は街の紹介です!
この日は学芸大学駅からマンションまで向かってみます。
駅前には深夜1時まで営業している東急ストアもあるので、帰りが遅い時のお買い物も
便利です。
学芸大学の改札は西口と東口の2か所。その両方向に商店街(西口商店街と東口商店街)が広がっており、飲食店から薬局、青果店・・・とお店がキュキュッと並んでいます。ちなみにマンションは西口商店街方向です。
私の好きな王将発見。ABCマートやスタバなどもあり、栄えています。
商店街を抜けると静かな住宅街。徒歩12分と少し距離がありますが、道は平坦。
途中には新鮮な自然野菜やお米・パンのお店(ナチュラルハーモニー)もありました。
近所に安心して食材が買えるお店があるっていいですね。
日生野沢マンションは昭和45年築、地下1階付きの地上9階建て、総世帯数59戸。
マンション前にはバス亭があり、渋谷・中目黒・目黒駅行きが出ています。
これは便利!
オートロックはありませんが、管理体制は良好。(日勤管理)
階段をあがりエントランスを入るとすぐに管理人室があるので安心です。
エントランス横から裏へまわると、駐車場、駐輪場、ゴミ置場があります。駐輪場は屋内にもありましたよ。空き状況は内見時にお尋ね下さい。
エントランスを入ると管理人室があります。
ホールも綺麗にお掃除されています。管理が行き届いている証拠ですね♪♪
エレベーターでお部屋へ向かいます。
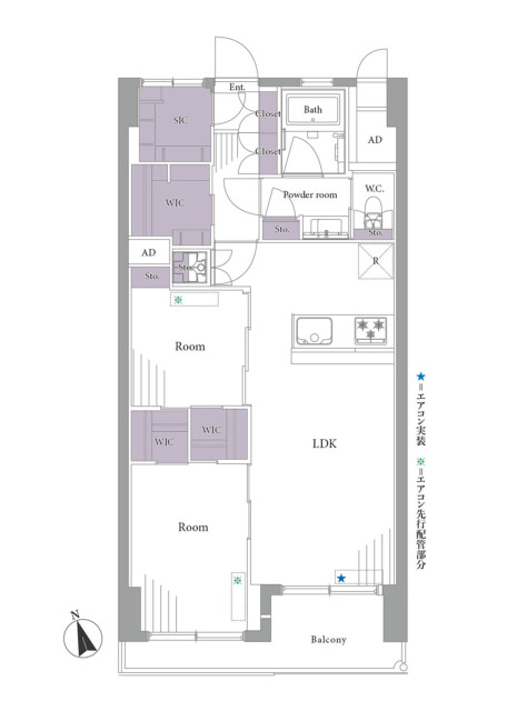
ここで間取り図のご紹介です。
※間取り図は別タブで開きますので、確認しながらご覧いただく事が出来ます。
今回のお部屋は3階、専有面積55.89㎡の2LDK。豊富な収納が嬉しい、お一人暮らしやDINKSの方にお勧めのお部屋です。
□□□□□□□□□□□□□□□□□□□□□□□□□□□□□□□□□□□□□□□
★★★【日生野沢マンション】周辺のハザードマップをCHECK!!★★★
お部屋の記事を読む前に…!周辺のハザードマップをチェックしておきませんか!
日生野沢マンションのハザードマップは★こちらから…どうぞ★
□□□□□□□□□□□□□□□□□□□□□□□□□□□□□□□□□□□□□□□
では、早速行ってみましょう!

玄関から廊下にかけては収納が盛沢山!!!
まず、入って左側には通常のシューズボックスが二つ。右側にはシューズインクローゼットとウォークインクローゼットが並んでいます!こういった大きな収納は靴や衣類だけでなく、スーツケースやゴルフバッグ、季節もの家電などのかさばるものを入れて置けて便利ですよね♬

洗面室には洗面化粧台の他に収納棚とトイレ、浴室がまとまっていて脱衣所も兼ねています。洗面室にタオルとか入れるところがあるのって助かるんですよね。
洗面化粧台には身だしなみチェックに便利な三面鏡付き。裏がキャビネットになっているので、洗面周りに散らかり勝ちな細々としたものもスッキリ収納しておけますよ。トイレはINAX製の洗浄機能一体型。

マンションには珍しい窓から外光の入る浴室。廊下に面しているので開けっ放しで入るのは躊躇われますが、換気にも使えますし、人工的な照明とはまた違った雰囲気を味わえます。浴室換気乾燥機付きなので、天気なんか気にせずにお洗濯ができますよ。

こちらはリビング・ダイニング・キッチン。
南西向きバルコニーに面したとても明るいお部屋です。自然の木目を生かしたフローリングに白のクロスを合わせたナチュラルな雰囲気。ちょっと濃いめの扉がいいアクセントになっていますね。色使いがシンプルなので、カーテンやソファーなど好みの色を合わせていけそうです。

キッチン、ダイニング、リビングと縦に並ぶシンプルな造りなので、家具のレイアウトもしやすそうです。開放的なのが人気のカウンターキッチンですが、中が意外と目立たないというメリットもあるんですよ。これなら、人目を気にせず思う存分腕を振るえますね(笑)

システムキッチンには、食器洗浄乾燥機や浄水機能一体型水栓など快適生活をアシストしてくれる機能が充実!面倒な食器洗いをしなくて済むと思うと、食事がいっそう美味しく感じそうです♬

こちらはキッチン近くの洋室。
窓はありませんが、暗くて静かなので眠るには最高ですよ!オープンタイプの棚と二つ目のウォークインクローゼットが付いています。

こちらはLDKと同じバルコニーに面した洋室。
陽当たり良好なお部屋ですね。入口にデッドスペースが出来ない引き戸を使っているので、お部屋のスペースを無駄なく使うことができますよ。なんと、三つ目のウォークインクローゼット付き!!!
・
以上で日生野沢マンションのご案内を終わります。
いかがでしたでしょうか??
学芸大学駅から徒歩14分のマンションです。
リノベーション済みという事で室内はとてもキレイですよ (っ・ω・)っ
内見のご予約やご質問などございましたらお気軽にお問い合わせくださいませ。
ご連絡お待ちしております。
□□□□□□□□□□□□□□□□□□□□□□□□□□□□□□□□□□□□□□□
★★★【日生野沢マンション】周辺のハザードマップをCHECK!!★★★
お部屋のご購入前に…!周辺のハザードマップをチェックしておきませんか!
日生野沢マンションのハザードマップは★こちらから…どうぞ★
□□□□□□□□□□□□□□□□□□□□□□□□□□□□□□□□□□□□□□□
弊社、不動産Agent 六棒株式会社では、一般仲介物件は仲介手数料20%~30%OFF!
にてお取り扱いしております!
なるべく沢山のお部屋をホームページに掲載したいと思っておりますが、時間的成約もございますので、残念ながらご紹介できるお部屋の一部しか掲載できておりません。
このホームページに掲載中のお部屋、その他サイト等で気になるお部屋、街を歩いていて気になったマンション等々ございましたら是非、弊社営業部までご相談ください!
~不動産Agent 六棒株式会社の特徴~
・一般仲介物件の仲介手数料は20%~30%OFFにてご案内中です!
・住宅ローンに自信あります!
・頭金10万円より購入できます。是非ご相談下さい!
・お部屋のご見学は車で2~3件まとめて案内します!
・物件数3000件以上、新築戸建、リノベ物件も多数ご用意しております!
過去に販売していたお部屋の概要 こちらのお部屋の販売は終了いたしました
| 価格 | -万円 |
| 面積 | 55.89㎡ |
| 間取り | 1bedroom(1SLDK) |
| 管理費 | 月額12,910円 修繕積立金:月額7,270円 大規模修理積立金:月額5,000円 |
| 所在階 | 3階 |
| お問い合わせ・ご内見のご予約はこちらからお気軽にどうぞ | |
ここで間取り図のご紹介です。
※間取り図は別タブで開きますので、確認しながらご覧いただく事が出来ます。
今回のお部屋は3階、間取りは1SLDK、専有面積は55.89㎡となります。
□□□□□□□□□□□□□□□□□□□□□□□□□□□□□□□□□□□□□□□
★★★【日生野沢マンション】周辺のハザードマップをCHECK!!★★★
お部屋の記事を読む前に…!周辺のハザードマップをチェックしておきませんか!
日生野沢マンションのハザードマップは★こちらから…どうぞ★
□□□□□□□□□□□□□□□□□□□□□□□□□□□□□□□□□□□□□□□
では、早速行ってみましょう。
エレベーターを3階で降りて…
風通しがいい外廊下進むと…
玄関に到着です。
カメラ付きインターホンが設置されていて、お部屋の中から訪問者を確認する事が出来ます。玄関まで来る必要がないのがいいですね(^^)
それではお邪魔します。
玄関ドアを開けると、白やベージュを基調としたナチュラルな雰囲気の廊下が伸びていました。
振り返って玄関内の様子です。
玄関から廊下へは二段高くなっていますので、慣れるまではお気を付け下さい。
ロータイプのシューズボックスの上はカウンターになっていて、お花や観葉植物、写真などで玄関を飾る事が出来ますよ。お洒落なトレーを置いて、キーやコインを入れるのも良さそうです(^^)
入った時に照明を点けてくれたのは、天井に設置された人感センサーです。いつでも明るい玄関が迎えてくれるのは嬉しいですよね♬
玄関内のドアの向こうは…
シューズインクローゼットになります!
棚板は調整可能になっていますので、靴にこだわらずに他の物も収納する事が出来そうですね。スペースにベビーカーや大事な自転車などを置いたりと、使い方はいろいろありそうです。
上部で隣のお部屋とつながっていました…変わった造りですね。隣は何のお部屋なんでしょう?
窓もあり、換気にも配慮されていますよ。窓の外は外廊下なのでしっかり面格子が設置されています。
では、気になるので隣のお部屋をのぞいてみましょう。
こちらは洗濯室になります。
洗濯機スぺ―スをはじめ、物干し金具や収納棚などがあるお部屋です。洗濯室…あまり聞かないですよね。大豪邸でメイドさんが居る所っていうイメージです(笑)
シューズインクローゼットに開いていた天井辺りの穴は、換気の為だったんですね。今となれば納得です(^^)
では、先へ進みましょう。
突き当り右のドアを開けてみます。
こちらが約11.2帖のリビング・ダイニング・キッチンとなります。
廊下と同じ、白とベージュを基調としたナチュラルテイストのお部屋になっていますね。シンプルな色使いなので、幅広い家具やカーテンを合わせる事が出来そうです(^^)
玄関の様子がここに映ります。結構綺麗に映るんですよ。
エアコンが初めから付いていました。新生活を快適に始められますね♪♪
次は、キッチンを…
調理台が、コンロ部分とシンク部分に分かれたカウンターキッチンです。二つに分けることによって、コンロを壁際にできたり、作業スぺ―スを広げたり、移動距離を減らしたりと、いろいろな効果があります。横には冷蔵庫スペースもありました。
まずは、コンロ部分を…
収納は調理台の下全てと上部吊戸棚になります。
コンロは3口。片面焼きグリルが付いています。
グリルってお魚イメージが強いと思いますが、他のお料理にもいろいろと使えるらしいですよ。ネット上にレシピがたくさん上がってますので、ご興味のある方は是非調べてみて下さい。
カウンターキッチンですので、お料理中は換気扇をお忘れなく。
こんどはシンク部分を…
シンクの下は収納と食洗器になっていました。
洗い物はお任せして食後はみんなでのんびりしちゃいましょう♬
水栓は浄水機能付きシャワー水栓です。
切り替えひとつで水道水が美味しいお水に早変り、ヘッドが伸びてシンクのお掃除などにも便利ですよ。
広めのカウンターです。忙しい朝食の定位置になる予感が…(笑)
では、次へ…
キッチン近くの引き戸を開けてみます。
こちらが約4.6帖のサービスルームとなります。
サービスルームとは、建築基準法上で居室と認められないお部屋の事です。床面積に対して採光窓の面積が何%以上とかなんですが、法律上の分類ですから普通にお部屋として使う事が出来ますよ。
収納はクローゼットになっていました。奥行きがとても広く、収納力は抜群です。
では、次のお部屋へ…
リビングのバルコニー寄りのドアです。
こちらが約5.1帖の洋室となります。
バルコニーに面した大きな窓からの光でとても明るいお部屋ですね。
間口が広くて使いやすそうなクローゼットが付いていました。ドアなどには、木のぬくもりを感じられるような素材が使用されています。手触りがいいんですよね♬
それでは、いちど廊下に戻ります。
リビングを出てすぐの扉は、収納棚になっていました。棚より奥行きがありますので、手前に背の高い物も入れておく事が出来そうです。
次は、玄関そばのドアを開けてみます。
洗面室となります。
白とシルバーの清潔感のある洗面台です。
洗面台の下は全て収納になっていました。洗面台の横は普通なら洗濯機スぺ―スになるところですが空いていますので、棚などを設置したりしてもいいですし、ランドリーバッグを置いたりも出来ますね。
水洗はハンドシャワータイプです。
洗面ボウルが大きめですので、寝ぐせ直しくらいなら出来ますよ(^^)
では、次は浴室へ…
明るい色使いの、窓のある浴室です。
追い焚き機能が付いていますので、いつでも温かいお風呂に入れます。お風呂って自分のタイミングで入りたいですよね(^^)
ゆったり浸かれる広々浴槽です。
網戸付の窓が付いています。浴室の窓は小さくても、換気に採光にと大活躍ですよ。
では次へ…
洗面室内の引き戸です。
トイレとなります。
もちろんウォシュレットも完備していますよ。無いと困りますよね。TOTOさんいつもお世話になっています(笑)
それでは、最後にバルコニーへ出てみましょう。
リビングからでも洋室からでも出る事が出来ます。
7.83㎡のバルコニーです。
リビング前の部分は奥行きが広くなっていて、とても広々としています。
南向きで陽当りも良好ですので、お洗濯物も気持ち良く乾きそうですね(^^)
バルコニーはお部屋の床より低くなっています。躓かないようご注意下さい。
外は、3階にしては開放感のある眺めになっています。
目を下に向ければ敷地内の緑に癒されますよ(^^)
・
・
以上で日生野沢マンションのご案内を終わります。
いかがでしたでしょうか??
学芸大学駅から徒歩14分のマンションです。
リノベーション済みという事で室内はとてもキレイですよ (っ・ω・)っ
内見のご予約やご質問などございましたらお気軽にお問い合わせくださいませ。
ご連絡お待ちしております。
□□□□□□□□□□□□□□□□□□□□□□□□□□□□□□□□□□□□□□□
★★★【日生野沢マンション】周辺のハザードマップをCHECK!!★★★
お部屋のご購入前に…!周辺のハザードマップをチェックしておきませんか!
日生野沢マンションのハザードマップは★こちらから…どうぞ★
□□□□□□□□□□□□□□□□□□□□□□□□□□□□□□□□□□□□□□□
弊社、不動産Agent 六棒株式会社では、
一般仲介物件は仲介手数料20%~30%OFF!にてお取り扱いしております!
なるべく沢山のお部屋をホームページに掲載したいと思っておりますが、時間的成約もございますので、残念ながらご紹介できるお部屋の一部しか掲載できておりません。
このホームページに掲載中のお部屋、その他サイト等で気になるお部屋、街を歩いていて気になったマンション等々ございましたら是非、弊社営業部までご相談ください!
~不動産Agent 六棒株式会社の特徴~
・一般仲介物件の仲介手数料は20%~30%OFFにてご案内中です!
・住宅ローンに自信あります!
・頭金10万円より購入できます。是非ご相談下さい!
・お部屋のご見学は車で2~3件まとめて案内します!
・物件数3000件以上、新築戸建、リノベ物件も多数ご用意しております!
過去に販売していたお部屋の概要 このお部屋の販売は終了いたしました。
| 価格 | -万円 |
| 面積 | 47.12㎡ |
| 間取り | 1bedroom(1LDK+S) |
| 管理費 | 月額10,890円 修繕積立金:月額6,120円 大規模修理積立金:月額5,000円 |
| 所在階 | 7階 |
| お問い合わせ・ご内見のご予約はこちらからお気軽にどうぞ | |
ここで間取り図のご紹介です。
※間取り図は別タブで開きますので、確認しながらご覧いただく事が出来ます。
今回のお部屋は7階、間取りは1LDK+S、専有面積は47.12㎡となっています。
□□□□□□□□□□□□□□□□□□□□□□□□□□□□□□□□□□□□□□□
★★★【日生野沢マンション】周辺のハザードマップをCHECK!!★★★
お部屋の記事を読む前に…!周辺のハザードマップをチェックしておきませんか!
日生野沢マンションのハザードマップは★こちらから…どうぞ★
□□□□□□□□□□□□□□□□□□□□□□□□□□□□□□□□□□□□□□□
では、早速行ってみましょう!
エレベーターを7階で降りると…
すぐに玄関に到着です。
ドア横に設置されたカメラ付きインターホンによって、お部屋の中から訪問者を確認する事が出来ます。玄関まで来る必要がないのがいいですね。
それではお邪魔します。
玄関ドアを開けると、正面は壁。入って左を向いても壁。
曲がり角まで進んで右を見るとやっとドアが並んでいました^^;)今は宅配便やフードデリバリーなど、知らない人が訪ねて来る事も多くなっています。戸口からお部屋の中が見えづらいこういった造りが、今の時代に合っているのかもしれませんね。
玄関に戻って…
中に入った時に照明を点けてくれたのは、人感センサーです。いつでも明るい玄関が迎えてくれるのは嬉しいですよね(^^)
シューズボックスはトールタイプ。棚板の高さ調整が出来るので、ブーツなどでも収納可能です。
では、まずは廊下突き当りのドアから開けてみましょう。
こちらは約8.2帖のリビング・ダイニング・キッチン+約5.2帖の洋室となります。
バルコニーに面した大きな窓がふたつ。眩しい光が射し込んでいて、とても明るいお部屋ですね。明るい色使いで、ナチュラルな雰囲気に仕上がっています。
合わせて約13.4帖。余裕があればこんな感じで広く使いたいものですね(^^)
洋室には造り付けのオープンシェルフとクローゼットがありました。クローゼットは間口が広くて使いやすそうですよ。
壁部分に収納されている扉を引き出していくと…
本来の約5.2帖の洋室になります。
真っ白な扉がスッキリしていてイイですね♪♪
閉めた時のリビング・ダイニング・キッチンです。約8.2帖だとリビング、ダイニングそれぞれのセットを置くのはちょっときつそうですので、寛げるダイニングセットなどが良いかもしれませんね。
今度はキッチンを見ていきましょう。
お部屋の雰囲気に合わせた、木目のパネルを使用した調理台です。
収納は、上部の扉の無い吊戸棚と調理台下になります。棚には縁なども無いので、壊れ物を置くのはちょっと怖いですかね^^;)
水栓は浄水機能付きシャワー水栓です。
切り替えるだけで水道水が美味しいお水に早変わり。ヘッドが伸びるのでシンクのお掃除などにも便利です。
コンロは3口。操作パネルを見る限り、タイマーに温度調節など、とても賢いコンロみたいです(^^)
お料理中は換気扇をお忘れなく。特にグリル使用時は絶対ですよ!
では、次のお部屋へ…
こちらは約5.3帖のサービスルームとなります。
サービスルームというのは、採光不足などで建築基準法で居室と認められないお部屋の事です。といっても法律上の事ですから、普通のお部屋となんら変わらない事も多いんですよ。今回もそのパターンですね。
このお部屋にもクローゼットが付いていました。洋室にあったのと同じタイプです。
窓からの眺めです。素晴らしい眺望ですね♬
次はトイレです。
棚やカウンター、吊戸棚など収納豊富なトイレです。
もちろんウォシュレットも完備していますよ。
次は洗面室へ…
三面鏡ではなく、大きな一枚鏡の洗面台です。
収納は横に付いたキャビネットと洗面台下。細かい物が多くなりがちな洗面周りには、キャビネット助かります(^^)
水洗はハンドシャワータイプです。洗面ボウルを流したり、寝ぐせを直したりも出来ますよ。
洗面台後ろには、可動棚と洗濯機スペースがありました。洗濯機スペースには別に棚が付いていて、お洗濯グッズをまとめて置く事が出来るようになっています。
では、浴室へ…
白を基調とした明るい浴室です。やっぱり浴室は白が似合いますよね(^^)
追い焚き機能が付いていますので、寒い季節の長風呂も大丈夫(^^)v
ゆったり浸かれる広々とした浴槽です。
浴室乾燥機は浴室の乾燥だけでなく、お洗濯物乾燥やヒートショック予防など様々な働きをしてくれますよ。
それでは、最後にバルコニーへ出てみましょう!
リビング、洋室のどちらからでも出る事が出来ます。
6.20㎡のバルコニーです。
きれいな四角形をしているので、実際の数字より広く感じますね。
ご覧のように陽当りは抜群ですから、お洗濯物も気持ち良く乾きそうです♬ ほぼ南向きなので一日中お洗濯チャンスですよ(^^)
バルコニーからの眺望です。
多少高い建物はありますが問題無。7階という事で開放的な景色が広がっています。
・
・
以上で日生野沢マンションのご案内を終わります。
いかがでしたでしょうか??
学芸大学駅から徒歩14分のマンションです。
リノベーション済みという事で室内はとてもキレイですよ (っ・ω・)っ
内見のご予約やご質問などございましたらお気軽にお問い合わせくださいませ。
ご連絡お待ちしております。
□□□□□□□□□□□□□□□□□□□□□□□□□□□□□□□□□□□□□□□
★★★【日生野沢マンション】周辺のハザードマップをCHECK!!★★★
お部屋のご購入前に…!周辺のハザードマップをチェックしておきませんか!
日生野沢マンションのハザードマップは★こちらから…どうぞ★
□□□□□□□□□□□□□□□□□□□□□□□□□□□□□□□□□□□□□□□
弊社、不動産Agent 六棒株式会社では、
□リノベーションマンションはほぼ全て仲介手数料無料!
□その他一般仲介物件は仲介手数料20%~30%OFF!
にてお取り扱いしております!※弊社の「Agent Fee=仲介手数料」についてはご案内、ご面談の際に営業担当者よりご説明いたします!
なるべく沢山のお部屋をホームページに掲載したいと思っておりますが、時間的成約もございますので、残念ながらご紹介できるお部屋の一部しか掲載できておりません。
このホームページに掲載中のお部屋、その他サイト等で気になるお部屋、街を歩いていて気になったマンション等々ございましたら是非、弊社営業部までご相談ください!
~不動産Agent 六棒株式会社の特徴~
・一般仲介物件の仲介手数料は20%~30%OFFにてご案内中です!
・リノベーションマンションについてはほぼ全て仲介手数料無料です!
・住宅ローンに自信あります!
・頭金10万円より購入できます。是非ご相談下さい!
・お部屋のご見学は車で2~3件まとめて案内します!
・物件数3000件以上、新築戸建、リノベ物件も多数ご用意しております!
過去に販売していたお部屋の概要 このお部屋の販売は終了いたしました。
| 価格 | -万円 |
| 面積 | 56.70㎡ |
| 間取り | 2bedrooms(2LDK) |
| 管理費 | 月額13,100円 修繕積立金:月額7,370円 大規模修理積立金:月額5,000円 |
| 所在階 | 9階 |
| お問い合わせ・ご内見のご予約はこちらからお気軽にどうぞ | |
ここで間取り図のご紹介です。
※間取り図は別タブで開きますので、確認しながらご覧いただく事が出来ます。
今回のお部屋は9階、間取りは2LDK、専有面積は56.70㎡となります。
では、さっそく行ってみましょう。
エレベーターを9階で降りて…
眺めの良い外廊下を進みます。
素晴らしい眺望ですね♬
小さくて分かりづらいですが、青がスカイツリー、赤が東京タワーです(^^)
玄関に到着です。
カメラ付きインターホンが設置されていて、お部屋の中から訪問者を確認する事が出来ます。玄関まで来なくていいのが嬉しいですよね(^^)
それではお邪魔します。
玄関ドアを開けると、玄関から廊下にかけて大理石仕上げになっています。廊下まで大理石仕上げは珍しいですね。
振り返って玄関内の様子です。
シューズボックスは玄関内ではなく、廊下に上がった所にありました。姿見の付いたトールタイプで、収納力は問題なさそうです。棚板の高さ調整も出来ますので、ブーツなどでも収納可能ですよ。
では、まずは正面のドアから開けてみましょう。
こちらが約13帖のリビング・ダイニング・キッチンとなります。
白を基調とした明るい印象のお部屋ですね。家具は付いてくるそうですよ。
リビング部分です。
ダイニングからリビング方向を…
ダイニングテーブルはカウンターキッチンにつけるように置かれています。リビング部分もダイニング部分もバルコニーに面した大きな窓のそばにあって、お天気のいい日は気持ち良さそうです♬
キッチンとの仕切り壁のタイル、お洒落ですね(^^)
今度は、キッチンを見ていきましょう。
水栓は浄水機能付きシャワー水栓です。
ちょっとひねれば、水道水が美味しいお水に早変わりですよ。ヘッドが伸びるのもシンクのお掃除などに便利です。
食洗機が付いていますので、食後はみんなでのんびりしちゃいましょう。
換気扇、グリルを使う時には忘れずに。
コンロは3口です。少し凝ったお料理にも挑戦出来そうですね(^^)
調理台の背後には、造り付けのオープンな食器棚があります。壁の色がまたかわいいですね。その奥には冷蔵庫スペースも確保されていましたよ。
さらに食器棚のとなりには収納棚が。リビングにも近いので、キッチン関係にこだわらずになんでも入れておけそうです。
では、次のお部屋へ…
リビング近くのドアです。
こちらが約6帖の洋室となります。
このお部屋にも大きな窓があり、そこからバルコニーに出ることが出来ます。
スッキリとシンプルなお部屋で、どんな家具でも合わせられそうですね。
間口が広くて使いやすそうなクローゼットも付いていました。
では、いちど廊下に戻って…
玄関に入って左側のドアを開けてみましょう。
こちらは洗面室となります。
落ち着いた雰囲気の洗面台です。
収納はミラーキャビネットと洗面台下にありました。細かい物から大きな物まで上手いこと収まりそうですね。
水洗はハンドシャワータイプです。洗面ボウルが大きいので、寝ぐせ直しくらいならOKですよ。
洗濯機スペースには上部に収納があり、洗剤などの洗濯関係の物をまとめておけます。
こんどは浴室を見てみます。
追い焚き機能が付いていますので、いつでも温かいお風呂に入れますね。
この浴室には小さいですが窓が付いています。マンションでは窓の付いた浴室って結構貴重なんですよ♪♪
窓はあるものの、やはり浴室乾燥機能ですよね。換気だけでなく、雨天のお洗濯物乾燥やヒートショック予防など様々な役に立ってくれます。どんどん使っていきましょう。
浴室を出て、洗面室内の引き戸を開けると…
トイレとなります。
もちろんウォシュレットも完備していますよ。今の時代、無いと困りますよね(笑)
では、次のお部屋へ行きます。
こちらが約6.2帖の洋室となります。
窓の向こうは、先程の眺めの良い外廊下になっています。しっかり面格子も設置されていていますね。上部には鍵のかかる換気窓も付いてますよ。
収納はクローゼット。となりの洋室のものより間口も奥行きも広く、収納力はバツグンです。床に衣装ケースなどもおけそうですね。
扉は全開になります。
それでは、最後にバルコニーへ出てみましょう!
バルコニーへの窓は二重サッシになっていました。
窓三枚分の幅があり、奥行きもたっぷりの広々バルコニーです。奥に見える柱の向こうにもバルコニーが続いているんですよ。柱がなければもっと広いんですけど…仕方ないですね^^;)
水栓や物干し竿受け金具があります。
南向きで陽当りも良好ですので、お洗濯物も気持ち良く乾きそうですね♬
眺望は、言う事なしです(^^)
東方向…
正面、南方向…
西方向…
どの方角を眺めても、遮る物のない素晴らしい眺めです。お天気が悪いのがほんとに残念^^;)夜景とかも期待出来そうですよね♬
・
以上で日生野沢マンションのご案内を終わります。
いかがでしたでしょうか??
学芸大学駅から徒歩14分のマンションです。
リノベーション済みという事で室内はとてもキレイですよ (っ・ω・)っ
内見のご予約やご質問などございましたらお気軽にお問い合わせくださいませ。
ご連絡お待ちしております。
弊社、不動産Agent 六棒株式会社では、
□リノベーションマンションはほぼ全て仲介手数料無料!
□その他一般仲介物件は仲介手数料20%~30%OFF!
にてお取り扱いしております!※弊社の「Agent Fee=仲介手数料」についてはご案内、ご面談の際に営業担当者よりご説明いたします!
なるべく沢山のお部屋をホームページに掲載したいと思っておりますが、時間的成約もございますので、残念ながらご紹介できるお部屋の一部しか掲載できておりません。
このホームページに掲載中のお部屋、その他サイト等で気になるお部屋、街を歩いていて気になったマンション等々ございましたら是非、弊社営業部までご相談ください!
~不動産Agent 六棒株式会社の特徴~
・一般仲介物件の仲介手数料は20%~30%OFFにてご案内中です!
・リノベーションマンションについてはほぼ全て仲介手数料無料です!
・住宅ローンに自信あります!
・頭金10万円より購入できます。是非ご相談下さい!
・お部屋のご見学は車で2~3件まとめて案内します!
・物件数3000件以上、新築戸建、リノベ物件も多数ご用意しております!
















































































































































































































































弊社 公式HP
六棒総合研究所
掲載予定物件
価格変更と販売終了物件
ハザードマップ検索
適合証明書.jp
Facebook
Twitter
Instagram